
¡¡½©ÍÕ¸¶±Ø¤ÎºÆ³«È¯¡Ö(²¾¾Î)³°¿ÀÅİìÃúÌܷײè¡×(ÃϾå23³¬¡¢¹â¤µ135m)¤Ë¤Æ³°Áõ¥â¥Ã¥¯¥¢¥Ã¥×¤¬ÀßÃÖ¤µ¤ì¤Æ¤¤¤Þ¤·¤¿¡£½©ÍÕ¸¶¤ÇÀкàÄ´¤Î³°ÊɤÏͽÁÛ³°¤Ç¤·¤¿¡£

¡¡ÉßÃϤÏ2¤Ä¤Ëʬ¤«¤ì¤Æ¤ª¤ê¤³¤Á¤é¤¬Ä¶¹âÁØÅï¤È¤Ê¤ëAÅï¤Î·úÀßÃϤǤ¹¡£8·î31Æü¤Þ¤ÇÃϲ¼²òÂι©»ö¤È¤Ê¤Ã¤Æ¤¤¤Þ¤¹¤¬¡¢·úÃ۷ײè¤Î¤ªÃΤ餻¤Ç¤Ï2017ǯ5·îËöÆüÃ幩¤È¤Ê¤Ã¤Æ¤¤¤Þ¤¹¡£

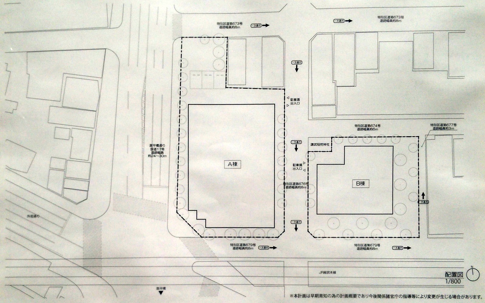
¡¡·úÀßÃϤϽ©ÍÕ¸¶±Ø¤«¤éÁíÉðÀþ±è¤¤¤Ë¸æÃã¥Î¿åÊýÌ̤˾¯¤·¹Ô¤Ã¤¿¾ì½ê¤Ç¡¢¡Öµì¥ä¥Þ¥®¥ïÅìµþ¥·¥ç¡¼¥ë¡¼¥à¡Ê¸å¤Ë½»Í§ÉÔÆ°»ºÁí¹ç¥Þ¥ó¥·¥ç¥ó¥®¥ã¥é¥ê¡¼½©ÍÕ¸¶´Û¡Ë¡×¤Ê¤É¤ÎÀ×ÃϤǤ¹¡£

¡¡¾ì½ê¤òÊѤ¨¤Æ¤â¤¦1Ëç¡£¼þÊդˤÏ͹âÁإӥ뤬¥Ý¥Ä¥Ý¥Ä¤È·ú¤Ã¤Æ¤¤¤Þ¤¹¤¬¡¢Ä¶¹âÁإӥ뷲¤È¸Æ¤Ö¤Ë¤Ï¤Á¤ç¤Ã¤ÈÎ¥¤ì¤Æ¤¤¤ë´¶¤¸¤¬¤¢¤ê¤Þ¤·¤¿¡£¤½¤ì¤¬¤³¤³¤Ë͹âÁإӥ뤬·ú¤Ä¤³¤È¤Ç½©ÍÕ¸¶¤«¤é¸æÃã¥Î¿åÊýÌ̤ޤdz¤¯Ä¶¹âÁإӥ뷲¤Ë¤Ê¤ë¤«¤â¤·¤ì¤Þ¤»¤ó¡£

¡¡Ï©ÃϤ«¤é»£±Æ¡£¼þÊդˤϽ©ÍÕ¸¶¤é¤·¤¤Å¹¤¬¿§¡¹¤È¤¢¤ê¤Þ¤¹¡£

¡¡¤³¤Á¤é¤Ï¡ÖµìÀдÝÅŵ¤ËÜŹ¡×¤ÎÀ×ÃϤÇÃϾå2³¬¡¢¹â¤µ22m¤È¤Ê¤ëBÅ郎·úÀߤµ¤ì¤Þ¤¹¡£¤³¤Á¤é¤ÎÉßÃϤ˳°Áõ¥â¥Ã¥¯¥¢¥Ã¥×¤¬¤¢¤ê¤Þ¤·¤¿¡£

¡¡·úÃ۷ײè¤Î¤ªÃΤ餻¤Ç¤¹¡£»Ü¹©¼Ô¤Ï¶õÍó¤Ë¤Ê¤Ã¤Æ¤¤¤Þ¤·¤¿¤¬¡¢¸½ºß²òÂι©»ö¤ò¹Ô¤Ã¤Æ¤¤¤ëÁ°ÅÄ·úÀߤ¬»Ü¹©¤â¤¹¤ë¤«¤È»×¤¤¤Þ¤¹¡£
¢£(²¾¾Î)³°¿ÀÅİìÃúÌܷײè AÅï¤Îʪ·ï³µÍ×¢£
·×²è̾¡§(²¾¾Î)³°¿ÀÅİìÃúÌܷײè AÅï
½êºßÃÏ¡§ÅìµþÅÔÀéÂåÅĶ賰¿ÀÅİìÃúÌÜ9ÈÖ4¾(ÃÏÈÖ)
ÍÑÅÓ¡§»ö̳½ê¡¢Å¹ÊÞ¡¢Ãó¼Ö¾ì¡ÊÁ´ÂΡË
³¬¿ô¡§ÃϾå23³¬¡¢Ãϲ¼1³¬
¹â¤µ¡§135m
ÉßÃÏÌÌÀÑ¡§2,058.45Ö
·úÃÛÌÌÀÑ¡§1,310Ö
±ä¾²ÌÌÀÑ¡§26,716Ö
¹½Â¤¡§Å´¹ü¤ °ìÉôÅ´¹üÅ´¶Ú¥³¥ó¥¯¥ê¡¼¥È¤
´ðÁù©Ë¡¡§¹º´ðÁÃ
·úÃۼ硧½»Í§ÉÔÆ°»º
Àß·×¼Ô¡§Æü·úÀß·×
»Ü¹©¼Ô¡§Ì¤Äê
¹©´ü¡§2017ǯ5·îËöÆüÃ幩¡Á2019ǯ9·îËöÆü½×¹©Í½Äê
- ¥«¥Æ¥´¥ê
- ͹âÁØ¥Ó¥ëÆüµ(ÅìµþÊÔ)





















