
¡¡À²³¤Â¦¤«¤é¸«¤¿Ë½§±ØÁ°¤Î¡Ö˽§¥Ù¥¤¥µ¥¤¥É¥¯¥í¥¹¡×¤Ç¤¹¡£º¸¤ÎÇØ¤Î¹â¤¤Êý¤¬¹âÁØÉô¤Ë¡Ö»°°æ¥¬¡¼¥Ç¥ó¥Û¥Æ¥ë˽§¥Ù¥¤¥µ¥¤¥É¥¯¥í¥¹¡×¤¬Æþ¤ë¡Ö˽§¥Ù¥¤¥µ¥¤¥É¥¯¥í¥¹¥¿¥ï¡¼¡×(ÃϾå36³¬¡¢¹â¤µ180m)¤Ç¡¢±¦¤¬¡ÖSMBC˽§¥Ó¥ë¡×(ÃϾå24³¬¡¢¹â¤µ125m)¤Ç¤¹¡£º£¤Þ¤ÇÅö¥Ö¥í¥°¤Ç¤Ï¡Ö˽§¥Ù¥¤¥µ¥¤¥É¥¯¥í¥¹¥¿¥ï¡¼BÅï¡×¤È¸Æ¤ó¤Ç¤¤Þ¤·¤¿¤¬¡ÖSMBC˽§¥Ó¥ë¡×¤Ë̾¾Î¤¬·èÄꤷ¤Æ¤¤¤Þ¤¹¡£
¡¡¼êÁ°¤ÎÄãÁؤηúʪ¤Ï¡Ö¥¢¡¼¥Ð¥ó¥É¥Ã¥¯ ¤é¤é¤Ý¡¼¤È˽§¡×¤Ç¡Ö˽§¥Ù¥¤¥µ¥¤¥É¥¯¥í¥¹¡×¤È¤Ï¥Ú¥Ç¥¹¥È¥ê¥¢¥ó¥Ç¥Ã¥¤ÇÀܳ¤µ¤ì¤Æ¤¤¤Þ¤¹¡£

¡¡¶á¤¯¤«¤é¸«¾å¤²¤¿¡ÖSMBC˽§¥Ó¥ë¡×¤Ç¤¹¡£2020ǯ10·î½×¹©Í½Äê¤Ç¹©»ö¤ò¤·¤Æ¤¤¤ëÍͻҤâ¤Ê¤«¤Ã¤¿¤Î¤ÇͽÄêÄ̤ê½×¹©¤·¤Æ¤¤¤ë¤â¤Î¤È»×¤ï¤ì¤Þ¤¹¡£

¡¡ÌܤÎÁ°¤Ë¤Ï¡Ö˽§¸ø±à¡×¤¬¤¢¤ê¡¢¤½¤ÎÀè¤Ë¤Ï³¤¤È¸À¤Ã¤¿Êý¤¬¤¤¤¤¤¯¤é¤¤¹¤¤À²³¤±¿²Ï¤¬¤¢¤ë¤¿¤á³«¤±¤¿»ë³¦¤¬¹¤¬¤ê¤Þ¤¹¡£

¡¡Î¢Â¦¤«¤é»£±Æ¡£Â¸µ¤Ë¥Ç¥Ã¥¤¬¸«¤¨¤Æ¤¤¤Þ¤¹¤¬¡¢¤æ¤ê¤«¤â¤á¡Ö˽§¡×±Ø¤Î²þ»¥³¬¤«¤é¥Õ¥é¥Ã¥È¤ÊÆ»¤Î¤ê¤ÇÀܳ¤µ¤ì¤Þ¤¹¡£Åìµþ¥á¥È¥íͳÚÄ®Àþ¡Ö˽§¡×±Ø¤È¤ÏÃϲ¼ÄÌÏ©¤ÇÀܳ¤µ¤ì¤ë¤è¤¦¤Ë¤Ê¤ë¤è¤¦¤Ç¤¹¡£

¡¡ÄãÁØÉô¤Ç¤¹¡£¥Ó¥ë¼þÊդζõÃÏ¤â¸ø³«¤µ¤ìÄ̤ì¤ë¤è¤¦¤Ë¤Ê¤Ã¤Æ¤¤¤Þ¤·¤¿¡£

¡¡Ãó¼Ö¾ì¤Ø¤ÎÆþ¤ê¸ý¤Ç¤¹¡£

¡¡¹¾ì¾õ¤Î¶õÃϤ⤢¤ê¤Þ¤¹¡£

¡¡ºÂ¤ì¤ë¥¹¥Ú¡¼¥¹¤â¤¤¤¯¤Ä¤«¤¢¤ê¤Þ¤·¤¿¤¬¡¢¿ÍÄ̤ê¤Î¾¯¤Ê¤¤¾ì½ê¤Ê¤Î¤ÇºÂ¤Ã¤Æ¤¤¤ë¿Í¤Ï¸«¤«¤±¤Þ¤»¤ó¤Ç¤·¤¿¡£

¡¡¥Ó¥ë¤Î³Ñ¤Ë¤Ï¿·¤¿¤ÊÊâÆ»¶¶¤âÀ°È÷¤µ¤ì¤Æ¤¤¤Þ¤¹¡£

¡¡¤½¤ÎÊâÆ»¶¶¤Ç¤¹¡£¡Ö¥¢¡¼¥Ð¥ó¥É¥Ã¥¯ ¤é¤é¤Ý¡¼¤È˽§¡×¤Ë¤Ï·Ò¤¬¤Ã¤Æ¤ª¤é¤º¡¢Æ»Ï©¾å¶õ¤òÅϤ뤳¤È¤¬¤Ç¤¤ë¤À¤±¤ÎÊâÆ»¶¶¤È¤Ê¤Ã¤Æ¤¤¤Þ¤¹¡£

¡¡ÊâÆ»¶¶¤òÅϤä¿Â¦¤«¤é»£±Æ¡£

¡¡¤½¤³¤«¤é¸«¾å¤²¤¿¡ÖSMBC˽§¥Ó¥ë¡×¤Ç¤¹¡£¤È¤³¤í¤Ç¤³¤¦¤¤¤Ã¤¿³Ñ¤¬´Ý¤¤¥ª¥Õ¥£¥¹¥Ó¥ë¤Ë¤ÏÆþ¤Ã¤¿¤³¤È¤¬¤Ê¤¤¤Î¤Ç¤¹¤¬»È¤¤¾¡¼ê¤É¤¦¤Ê¤ó¤Ç¤·¤ç¤¦¤Í¡©¥Ç¥Ã¥É¥¹¥Ú¡¼¥¹¤¬¤Ç¤¤½¤¦¤Êµ¤¤¬¤·¤Þ¤¹¤¬¡¢ÌµÂ̤ʥ¹¥Ú¡¼¥¹¤¬¤¢¤Ã¤¿Êý¤¬¹¡¹¤È¤·¤Æ¤¤¤¤¤Î¤«¤â¤·¤ì¤Ê¤¤¤Ç¤¹¤Í¡£

¡¡Ë½§¸ø±à¦¤Î2³¬¥ì¥Ù¥ë¤Î¥Ç¥Ã¥¤Ç¤¹¡£

¡¡¥ª¥Õ¥£¥¹¤Î¥¨¥ó¥È¥é¥ó¥¹¥Û¡¼¥ë¤Ç¤¹¡£º£¤ÏÆþµï´ë¶È¤Ë¤è¤ëÆâÁõ¹©»ö¤È¤¤¤Ã¤¿´¶¤¸¤Ç¤·¤ç¤¦¤«¡£SMBC¤Ï»°°æ½»Í§¶ä¹Ô¤Î¤³¤È¤Ç¤¹¤¬¡¢»°°æ½»Í§¥«¡¼¥É¤ÈSMBC¥Õ¥¡¥¤¥Ê¥ó¥¹¥µ¡¼¥Ó¥¹(µì¥»¥Ç¥£¥Ê)¤ÎÅìµþËܼҤ¬2021ǯ4·î¤Ë°Üž¤·¤Æ¤¯¤ëͽÄê¤È¤Ê¤Ã¤Æ¤¤¤Þ¤¹¡£

¡¡Ë½§Ï»ÃúÌÜÂèÆó¸ø±à¤«¤é¸«¤¿Ë½§±ØÊýÌ̤Ǥ¹¡£Ãæ±û±ü¤¬¡Ö˽§¥Ù¥¤¥µ¥¤¥É¥¯¥í¥¹¡×¤Ç±¦Â¦¤Î·úÀßÃæ¤Î¥¿¥ï¡¼¥Þ¥ó¥·¥ç¥ó¤¬¡Ö¥Ö¥é¥ó¥º¥¿¥ï¡¼Ë½§¡×(ÃϾå48³¬¡¢ºÇ¹â¹â¤µ180.50m)¤Ç¤¹¡£

¡¡¡ÖSMBC˽§¥Ó¥ë¡×¤Ë¥º¡¼¥à¤Ç¤¹¡£

¡¡¡Ö˽§Âç¶¶¡×¤«¤é¸«¤¿¡Ö˽§¥Ù¥¤¥µ¥¤¥É¥¯¥í¥¹¡×¤Ç¤¹¡£SMBC¤Î¥í¥´¤¬¤¢¤ë¼êÁ°¤Î¥Ó¥ë¤¬¡ÖSMBC˽§¥Ó¥ë¡×¤Ç¤¹¡£
¡¡¤¢¤È¤Ï¥¥ì¥¤¤ÊÀĶõ¤ÎÆü¤Ë»£±Æ¤¹¤ì¤Ð¤³¤Î¸½¾ì¤«¤é¤Ï´¶È¤È¤Ê¤ê¤Þ¤¹¤¬¡Ö¥Ö¥é¥ó¥º¥¿¥ï¡¼Ë½§¡×¤Î»£±Æ¥¹¥Ý¥Ã¥È¤Ç¤â¤¢¤ë¤Î¤Ç¡¢¤Þ¤ÀÄê´üŪ¤Ë¹Ô¤¯¤³¤È¤Ë¤Ê¤ê¤Þ¤¹¡£
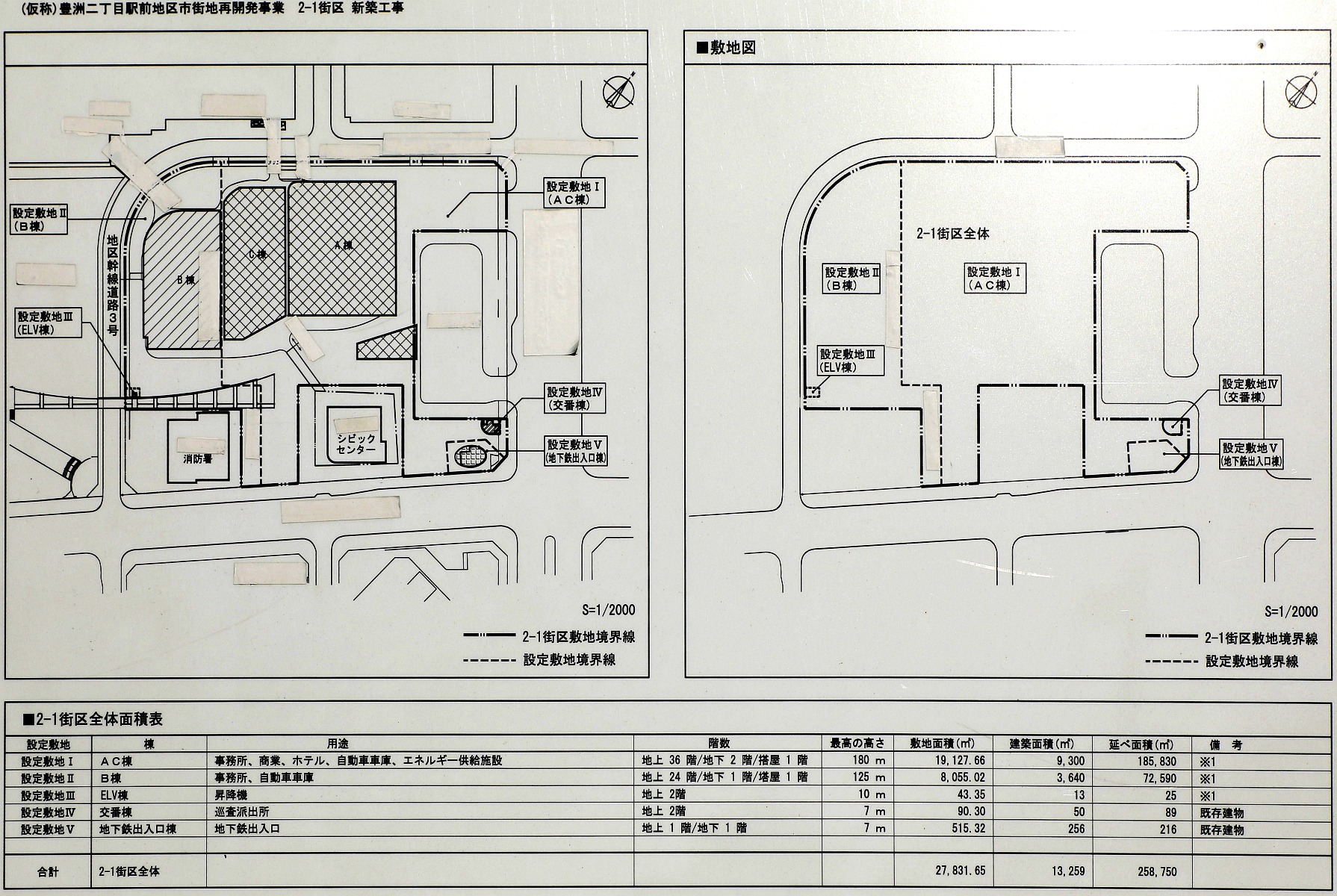
¢£Êª·ï³µÍ×(BÅï)¢£
̾¾Î¡§SMBC˽§¥Ó¥ë
·×²è̾¡§Ë½§ÆóÃúÌܱØÁ°Ã϶èÂè°ì¼ï»Ô³¹ÃϺƳ«È¯»ö¶È 2-1³¹¶è BÅï
½êºßÃÏ¡§ÅìµþÅÔ¹¾Åì¶è˽§£²ÃúÌÜ15ÈÖ12
ÍÑÅÓ¡§»ö̳½ê¡¦¼«Æ°¼Ö¼Ö¸Ë
³¬¿ô¡§ÃϾå24³¬¡¢Åã²°1³¬¡¢Ãϲ¼1³¬
¹â¤µ¡§125m
¹½Â¤¡§Å´¹ü¤
´ðÁù©Ë¡¡§¹º´ðÁù©Ë¡
ÉßÃÏÌÌÀÑ¡§8,055.02Ö
·úÃÛÌÌÀÑ¡§3,640Ö
±ä¾²ÌÌÀÑ¡§72,590Ö
·úÃۼ硧»°°æÉÔÆ°»º
Àß·×¼Ô¡§ÂçÀ®·úÀß
»Ü¹©¼Ô¡§ÂçÀ®·úÀß
¹©´ü¡§2016ǯ12·î1ÆüÃ幩¡Á2020ǯ10·î½×¹©
¹ðÃΤǤ¹¡£
12·î8Æü(²Ð) NHK¤Ç19»þ57ʬ¤«¤éÊüÁ÷¤Î¡Ø¤µ¤·Î¹¡Ù¤Ë½Ð¤Þ¤¹¡£¤è¤í¤·¤±¤ì¤Ð¤´Í÷¤¯¤À¤µ¤¤¡£
¡ÖÅìµþÉ÷·Ê¥Þ¥Ë¥¢¤È½ä¤ë¡È·Ê¿§¤¬¤³¤ó¤Ê¤Ë·ãÊÑ¡ª¡É¥Ä¥¢¡¼¡×
https://www4.nhk.or.jp/P4386/
- ¥«¥Æ¥´¥ê
- ͹âÁØ¥Ó¥ëÆüµ(ÅìµþÊÔ)






























































































































































