
¡¡¡Ö¸×¥ÎÌç¥Ò¥ë¥º ¥ì¥¸¥Ç¥ó¥·¥ã¥ë¥¿¥ï¡¼¡×(ÃϾå54³¬¡¢ºÇ¹â¹â¤µ221.55m)¤ÎÂè2´üÈÎÇ䤬ÀèÃå½ç¤Ç³«»Ï¤µ¤ì¤Þ¤·¤¿¡£ÈÎÇä¸Í¿ô¤Ï4¸Í¤Ç´Ö¼è¤ê¤Ï3BR+Guest Room¡¢4BR¡¢ÀìÍÌÌÀѤÏ227Ö¡Á379.12Ö¡¢ÈÎÇä²Á³Ê¤Ï9²¯6000Ëü±ß¡Á25²¯5000Ëü±ß¡¢´ÉÍýÈñ¤Ï·î³Û22Ëü6090±ß¡Á50Ëü2011±ß¡¢½¤Á¶ÀÑΩ¶â¤Ï·î³Û5Ëü7470±ß¡Á10Ëü4460±ß¡¢°úÅÏ»þ°ì³çʧ¤¤¤Î½¤Á¶ÀÑΩ´ð¶â¤Ï707Ëü2640±ß¡Á1183Ëü3680±ß¡¢´ÉÍý½àÈ÷¶â¤Ï22Ëü6090±ß¡Á50Ëü2110±ß¤È¤Ê¤Ã¤Æ¤¤¤Þ¤¹¡£
¡¡Ãó¼Ö¾ì¤Ïµ¡³£¼°200Âæ¤Ç·î³Û6Ëü±ß¡Á7Ëü±ß¡¢¼«Áö¼°82Âæ¤Ç·î³Û9Ëü±ß¡Á17Ëü±ß¡¢ÃóÎØ¾ì¤Ï435Âæ¤Ç·î³Û500±ß¡Á2000±ß¡¢¥×¥ì¥ß¥¢¥àÃóÎØ¾ì¤¬·î³Û1Ëü5000±ß¡¢¥Ð¥¤¥¯ÃÖ¾ì¤Ï28Âæ¤Ç·î³Û1Ëü5000±ß¤È¤Ê¤Ã¤Æ¤¤¤Þ¤¹¡£Ê¬¾ù½»¸Í¤ÏÊÝÍ»ñ»º¤¬5²¯±ß°Ê¾å¤ÎĶÉÙ͵Áؤ·¤«¼ê¤¬½Ð¤»¤Ê¤¤¥¿¥ï¡¼¥Þ¥ó¥·¥ç¥ó¤È¤Ê¤Ã¤Æ¤¤¤Þ¤¹¡£
¢§¸ø¼°HP
¸×¥ÎÌç¥Ò¥ë¥º ¥ì¥¸¥Ç¥ó¥·¥ã¥ë¥¿¥ï¡¼ ÈÎÇä¾ðÊó

½»¸Í³µÍ×[½Ðŵ¡§¸ø¼°HP]
¡¡¥Õ¥í¥¢¹½À®¤Ï4¡Á11³¬¤Ë¥µ¡¼¥Ó¥¹¥¢¥Ñ¡¼¥È¥á¥ó¥È¡¢12¡Á42³¬¤¬¥¹¥¤¡¼¥È¤Ç1BR¡Á4BR¤ÎÉô²°¤¬328¸Í¡¢41³¬¤Ë¥²¥¹¥È¥Ï¥¦¥¹ ¥²¥¹¥È¥ë¡¼¥à¡¢¥²¥¹¥È¥Ï¥¦¥¹ ¥ê¥Ó¥ó¥°¡¦¥À¥¤¥Ë¥ó¥°¡¢42³¬¤Ë¥¹¥«¥¤¥µ¥í¥ó¡¢¥¹¥«¥¹¥¤¡¼¥ÈÀìÍÑ¥Õ¥í¥ó¥È¡¢¤½¤·¤Æ43³¬¡Á54³¬¤¬¥¹¥«¥¤¥¹¥¤¡¼¥È¤Ç2BR¡Á5BR¤ÎÉô²°¤¬59¸Í¤È¤Ê¤Ã¤Æ¤¤¤Þ¤¹¡£

370-A type[½Ðŵ¡§¸ø¼°HP]
¡¡25²¯5000Ëü±ß¤ÎÉô²°¤È»×¤ï¤ì¤ë50³¬ÆîÅì³Ñ¤Î370-A type¤Î´Ö¼è¤ê¿Þ¤Ç¤¹¡£4¥Ù¥Ã¥É¥ë¡¼¥à¤ÇÀìÍÌÌÀѤÏ379.12֤ǡ¢¥È¥¤¥ì¤Ï4¥õ½ê¡¢¥Ð¥¹¥ë¡¼¥à¤Ï3¥õ½ê¡¢¤½¤·¤Æ¥µ¥Ö¥¨¥ó¥È¥é¥ó¥¹¤â¤¢¤ê¤Þ¤¹¡£Âè1´ü¤ÇÈÎÇ䤵¤ì¤¿Æ±¥¿¥¤¥×Éô²°¤Ï25²¯±ß¤Ç¤·¤¿¡£

¥ª¡¼¥À¡¼¥á¥¤¥ÉÍѽ»¸Í[½Ðŵ¡§¸ø¼°HP]
¡¡51³¬ËÌÅì³Ñ¤ÎÉô²°¤Ï2ÈÖÌܤ˹¤¤ÀìÍÌÌÀÑ314.91֤ǥª¡¼¥À¡¼¥á¥¤¥ÉÍѽ»¸Í¤È¤Ê¤Ã¤Æ¤¤¤Þ¤¹¡£¥Õ¥ë¥ê¥Î¥Ù¡¼¥·¥ç¥ó¹©»ö¤¬Á°Äó¤ÎÉô²°¤È¤Ê¤ê¤Þ¤¹¡£

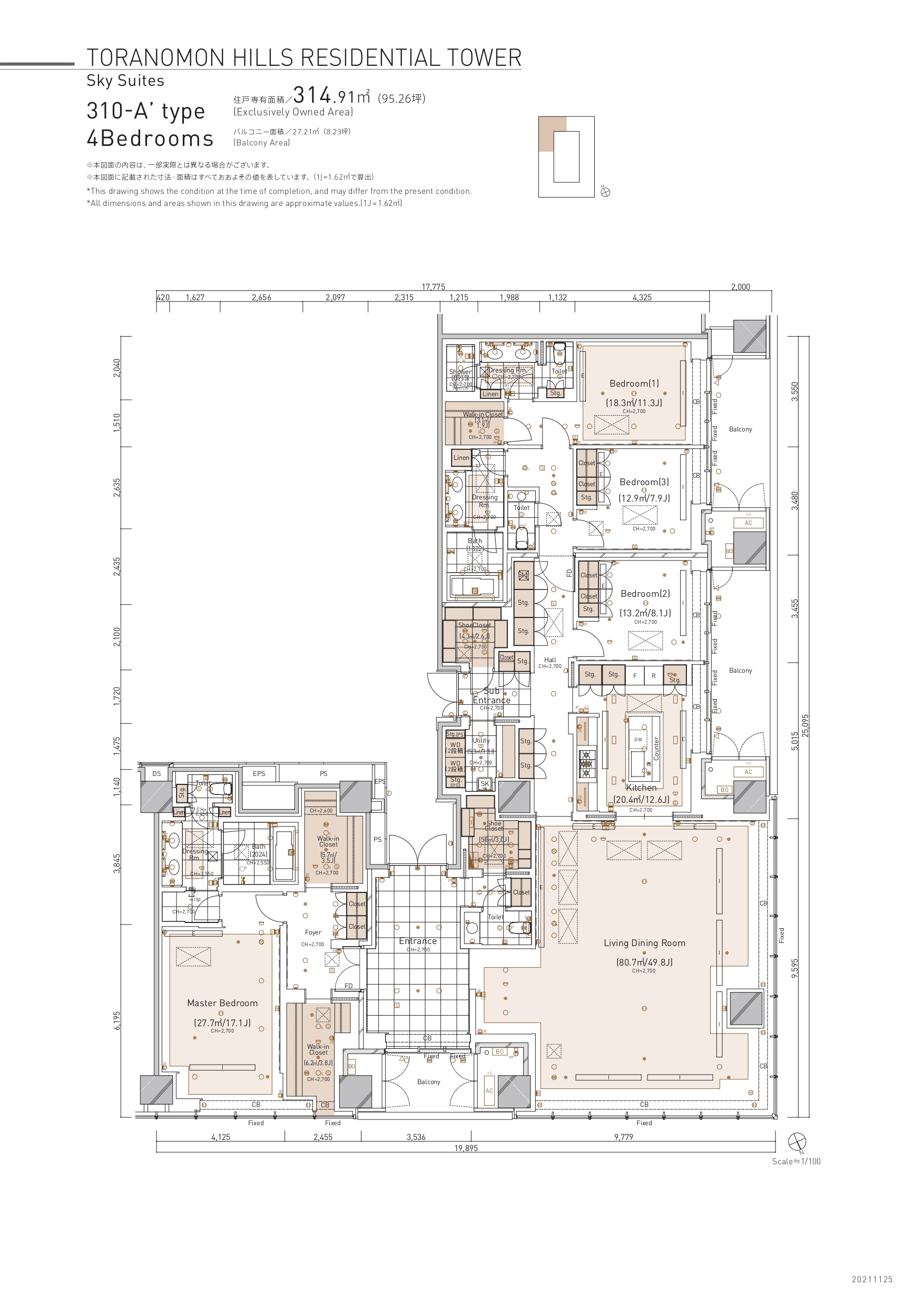
310-A' type[½Ðŵ¡§¸ø¼°HP]
¡¡51³¬ËÌÀ¾³Ñ¤Î310-A' type¤Î´Ö¼è¤ê¿Þ¤Ç¤¹¡£4¥Ù¥Ã¥É¥ë¡¼¥à¤ÇÀìÍÌÌÀѤÏ314.91֤ǡ¢¥È¥¤¥ì¤Ï4¥õ½ê¡¢¥Ð¥¹¥ë¡¼¥à¤Ï2¥õ½ê¡¢¥·¥ã¥ï¡¼¥ë¡¼¥à¤Ï1¥õ½ê¡¢¤½¤·¤Æ¥µ¥Ö¥¨¥ó¥È¥é¥ó¥¹¤â¤¢¤ê¤Þ¤¹¡£º£²ó¤ÎÈÎÇä²Á³Ê¤ÏÉÔÌÀ¤Ç¤¹¤¬Âè1´ü¤ÇÈÎÇ䤵¤ì¤¿Æ±¥¿¥¤¥×Éô²°¤Ï14²¯2000Ëü±ß¤Ç¤·¤¿¡£

220-A1 type[½Ðŵ¡§¸ø¼°HP]
¡¡9²¯6000Ëü±ß¤ÎÉô²°¤È»×¤ï¤ì¤ë35³¬ÆîÅì³Ñ¤Î220-A1 type¤Î´Ö¼è¤ê¿Þ¤Ç¤¹¡£3¥Ù¥Ã¥É¥ë¡¼¥à¡Ü¥²¥¹¥È¥ë¡¼¥à¤ÇÀìÍÌÌÀѤÏ227.00֤ǡ¢¥È¥¤¥ì¤Ï4¥õ½ê¡¢¥Ð¥¹¥ë¡¼¥à¤Ï2¥õ½ê¡¢¥·¥ã¥ï¡¼¥ë¡¼¥à¤Ï1¥õ½ê¤¢¤ê¤Þ¤¹¡£

¥²¥¹¥È¥Ï¥¦¥¹ ¥ê¥Ó¥ó¥°¡¦¥À¥¤¥Ë¥ó¥°[½Ðŵ¡§¸ø¼°HP]
¡¡41³¬¤Î¥²¥¹¥È¥Ï¥¦¥¹ ¥ê¥Ó¥ó¥°¡¦¥À¥¤¥Ë¥ó¥°¤Ç¤¹¡£Ìó210֤ζõ´Ö¤Ç¥Ñ¡¼¥Æ¥£¤Ê¤ÉÂßÀڤǤÎÍøÍѤ¬²Äǽ¤Ç¤¹¡£

¥¹¥«¥¤¥µ¥í¥ó[½Ðŵ¡§¸ø¼°HP]
¡¡¥¹¥«¥¤¥¹¥¤¡¼¥È(43³¬¡Á54³¬)ÀìÍѥ饦¥ó¥¸¤È¤Ê¤ë42³¬¤Î¥¹¥«¥¤¥µ¥í¥ó¤Ç¤¹¡£¥³¡¼¥Ò¡¼¤ä¥½¥Õ¥È¥É¥ê¥ó¥°¡¢¥¹¥Ê¥Ã¥¯¤Ê¤É¤¬ÍѰդµ¤ì¡¢1³¬¤Ë¤¢¤ë¸×¥ÎÌç¥Ò¥ë¥º¥¥Ã¥Á¥ó¤«¤é¥ë¡¼¥à¥µ¡¼¥Ó¥¹¤âÍøÍѲÄǽ¤È¤Ê¤Ã¤Æ¤¤¤Þ¤¹¡£

¡¡2022ǯ4·î2ÆüÅìµþ¥¿¥ï¡¼¤Î¥È¥Ã¥×¥Ç¥Ã¥¤«¤é»£±Æ¤·¤¿¡Ö¸×¥ÎÌç¥Ò¥ë¥º¡×¤ÇÃæ±û¤¬¡Ö¸×¥ÎÌç¥Ò¥ë¥º ¥ì¥¸¥Ç¥ó¥·¥ã¥ë¥¿¥ï¡¼¡×¤Ç¤¹¡£
¡¡¸½»þÅÀ¤Ç¹â¤µ215.25m¡ÊºÇ¹â¹â¤µ221.55m¡Ë¤Ï¹â¤µÆüËܰì¤Î¥¿¥ï¡¼¥Þ¥ó¥·¥ç¥ó¤È¤Ê¤ê¤Þ¤¹¤¬¡¢±¦¸å¤í¤Ë¡Ö¸×¥ÎÌç¥Ò¥ë¥º ¿¹¥¿¥ï¡¼¡×(ÃϾå52³¬¡¢ºÇ¹â¹â¤µ255.5m)¤¬¤¢¤ê¡¢¤½¤·¤Æº¸Â¦¤Ç¤Ï¡Ö¸×¥ÎÌç¥Ò¥ë¥º ¥¹¥Æ¡¼¥·¥ç¥ó¥¿¥ï¡¼¡×(ÃϾå49³¬¡¢ºÇ¹â¹â¤µ265.75m)¤¬·úÀßÃæ¤Î¤¿¤á¿ôÃͤè¤ê¤âÄ㤯´¶¤¸¤Æ¤·¤Þ¤¤¤Þ¤¹¡£

¡¡É¸¹â25.7m¤Î°¦Å滳¤Î»³Äº¤Ë¤¢¤ë°¦Åæ¿À¼Ò¤«¤é¸«¤¿¥ì¥¸¥Ç¥ó¥·¥ã¥ë¥¿¥ï¡¼¤È¿¹¥¿¥ï¡¼¤Ç¤¹¡£¥ì¥¸¥Ç¥ó¥·¥ã¥ë¥¿¥ï¡¼¤«¤éľÀܰ¦Å滳¤Ë¹Ô¤±¤ë¥Ç¥Ã¥¤¬À°È÷¤µ¤ì¤Æ¤¤¤Þ¤¹¡£

¡¡³¬Ãʾõ¤ÎÄí¤Î¾å¤Ë¤¢¤ë¥Ç¥Ã¥¤¬°¦Å滳¤Ë·Ò¤¬¤Ã¤Æ¤¤¤Þ¤¹¡£

¡¡¥ì¥¸¥Ç¥ó¥·¥ã¥ë¥¿¥ï¡¼¤È¿¹¥¿¥ï¡¼¤Ï¥Ç¥Ã¥¤ÇÀܳ¤µ¤ì¤Æ¤ª¤ê¡¢¡Ö¸×¥ÎÌç¥Ò¥ë¥º¡×¤Î³ÆÅï¤Ï¥Ç¥Ã¥¤Ê¤É¤ÇÀܳ¤µ¤ì¤ë¤¿¤á¡¢³ÆÅ狼¤é¿®¹æ¤Ê¤É¤Ç»ß¤Þ¤ë¤³¤È¤Ê¤¯°¦Å滳¤Þ¤Ç¹Ô¤¯¤³¤È¤¬¤Ç¤¤Þ¤¹¡£
¢£Êª·ï³µÍ×¢£
̾¾Î¡§¸×¥ÎÌç¥Ò¥ë¥º ¥ì¥¸¥Ç¥ó¥·¥ã¥ë¥¿¥ï¡¼
·×²è̾¾Î¡§(²¾¾Î)°¦Å滳¼þÊÕÃ϶è(IÃ϶è)¿·Ã۷ײè
½êºßÃÏ¡§ÅìµþÅÔ¹Á¶è°¦Å棱ÃúÌÜ1-1
ÍÑÅÓ¡§¶¦Æ±½»Âð¡¢Å¹ÊÞ¡¢Ãó¼Ö¾ì¡¢»Ò°é¤Æ»Ù±ç»ÜÀß
Áí¸Í¿ô¡§547¸Í¡Ê¥µ¡¼¥Ó¥¹¥¢¥Ñ¡¼¥È¥á¥ó¥È160¸Í¡Ë
½»¸Í¹½À®¡§1BR¡ÊÌó55Ö¡Ë¡Á5BR¡ÊÌó1,270Ö¡Ë
¥µ¡¼¥Ó¥¹¥¢¥Ñ¡¼¥È¥á¥ó¥È¡§1R¡ÊÌó35Ö¡Ë¡Á2BR¡ÊÌó110Ö¡Ë
³¬¿ô¡§ÃϾå54³¬¡¢Åã²°1³¬¡¢Ãϲ¼4³¬
¹â¤µ¡§215.25m¡ÊºÇ¹â¹â¤µ221.55m¡Ë
¹½Â¤¡§Å´¶Ú¥³¥ó¥¯¥ê¡¼¥È¤¡Ê°ìÉôÅ´¹ü¤¡¦Å´¹üÅ´¶Ú¥³¥ó¥¯¥ê¡¼¥È¤¡Ë¡¢À©¿¶¹½Â¤
´ðÁù©Ë¡¡§Ä¾ÀÜ´ðÁᦸ½¾ì¤À®¹º
ÉßÃÏÌÌÀÑ¡§6,535.72Ö
·úÃÛÌÌÀÑ¡§4,000Ö
±ä¾²ÌÌÀÑ¡§121,000Ö
·úÃۼ硧¿¹¥Ó¥ë
Àß·×¼Ô¡§ÃÝÃæ¹©Ì³Å¹
¥Ç¥¶¥¤¥Ê¡¼(³°Áõ)¡§¥¤¥ó¥²¥ó¥Û¡¼¥Õ¥§¥ó¡¦¥¢¡¼¥¥Æ¥¯¥Ä
¥Ç¥¶¥¤¥Ê¡¼(ÆâÁõ)¡§¥È¥Ë¡¼¥Á¡¼¡¦¥¢¥½¥·¥¨¥¤¤Û¤«
»Ü¹©¼Ô¡§ÃÝÃæ¹©Ì³Å¹
¹©´ü¡§2017ǯ3·î20ÆüÃ幩¡Á2022ǯ1·î½×¹©
¸ø¼°HP¡§https://www.toranomonhills-residentialtower.com/






























































































































































