(²¾¾Î)Æâ¹¬Ä®°ìÃúÌܳ¹¶è ³«È¯·×²è(ËÌÃ϶è)

³°´Ñ¥¤¥á¡¼¥¸[½Ðŵ¡§ÅìµþÅԴͶÉ]
¡¡Äë¹ñ¥Û¥Æ¥ë¤È»°°æÉÔÆ°»º¤Ë¤è¤ëºÆ³«È¯¡Ö(²¾¾Î)Æâ¹¬Ä®°ìÃúÌܳ¹¶è ³«È¯·×²è(ËÌÃ϶è)¡×¤Î´Ä¶±Æ¶Áɾ²Á½ñ¤¬¸ø³«¤µ¤ì¤Þ¤·¤¿¡£·×²èÃϤϡÖÄë¹ñ¥Û¥Æ¥ëÅìµþ ËܴۡפȡÖÄë¹ñ¥Û¥Æ¥ë¥¿¥ï¡¼¡×¤¬¤¢¤ë¾ì½ê¤Ç¡¢ÃϾå46³¬¡¢¹â¤µÌó230m¤Î¥Î¡¼¥¹¥¿¥ï¡¼¤ÈÃϾå29³¬¡¢¹â¤µÌó145m¤Î¿·ËÜ´Û¤¬·úÀߤµ¤ì¤Þ¤¹¡£
¡¡µ´ü¡Ê¥Î¡¼¥¹¥¿¥ï¡¼¡Ë¤Ç¤Ï¡ÖÄë¹ñ¥Û¥Æ¥ë¥¿¥ï¡¼¡×(ÃϾå31³¬¡¢¹â¤µ129.1m)¤òÃϾå46³¬¡¢Ãϲ¼4³¬¡¢¹â¤µÌó230m¡¢±ä¾²ÌÌÀÑÌó27Ëü֤Υª¥Õ¥£¥¹¡¦¾¦¶È¡¦¥µ¡¼¥Ó¥¹¥¢¥Ñ¡¼¥È¥á¥ó¥È¡¦ÄÂÂß½»ÂðÅù¤Ç¹½À®¤µ¤ì¤ëÊ£¹ç»ÜÀߤ˷úÂØ¤¨¤Þ¤¹¡£¹©´ü¤Ï2024ǯÅÙÃ幩¡¢2030ǯÅÙ½×¹©Í½Äê¤È¤Ê¤Ã¤Æ¤¤¤Þ¤¹¡£
¡¡¶´ü¡Ê¿·ËܴۡˤǤϡÖÄë¹ñ¥Û¥Æ¥ëÅìµþ ËܴۡפòÃϾå29³¬¡¢Ãϲ¼4³¬¡¢¹â¤µÌó145m¡¢±ä¤Ù¾²ÌÌÀÑÌó15Ëü֤Υۥƥë¤Ë·úÂØ¤¨¤Þ¤¹¡£¹©´ü¤Ï2031ǯÅÙÃ幩¡¢2036ǯÅÙ½×¹©Í½Äê¤È¤Ê¤Ã¤Æ¤¤¤Þ¤¹¡£
¢§ÅìµþÅԴͶɡ§´Ä¶¥¢¥»¥¹¥á¥ó¥È¡Ê2022ǯ6·î6Æü¡Ë
¡Ö¡Ê²¾¾Î¡ËÆâ¹¬Ä®°ìÃúÌܳ¹¶è ³«È¯·×²è¡ÊËÌÃ϶è¡Ë¡×´Ä¶±Æ¶Áɾ²Á½ñ
¢¨±ÜÍ÷¤Ë¤ÏAdobe Acrobat Reader DC¤¬É¬ÍפǤ¹¡£Microsoft Edge¡¢Internet Explorer¡¢Google Chrome¤Ç±ÜÍ÷¤Ç¤¤Þ¤¹¡£

¿·ËÜ´Û¥¤¥á¡¼¥¸¥Ñ¡¼¥¹[½Ðŵ¡§Äë¹ñ¥Û¥Æ¥ë]
¡¡Äë¹ñ¥Û¥Æ¥ë¤«¤é¸ø³«¤µ¤ì¤¿¿·Ëܴۤδ°À®Í½ÁۿޤǤ¹¡£¥Õ¥é¥ó¥¹ºß½»¤Î·úÃ۲ȡ¢Åĺ¬¹ä»á¡ÊATTA- Atelier Tsuyoshi Tane Architects¡Ë¤Î¥Ç¥¶¥¤¥ó°Æ¤¬ºÎÍѤµ¤ì¤Æ¤ª¤ê¡Ö¥¶¡¦¥Û¥Æ¥ë¡×¤òÂ轤¹¤ë¥Ç¥¶¥¤¥ó¤È¤Ê¤Ã¤Æ¤¤¤Þ¤¹¡£

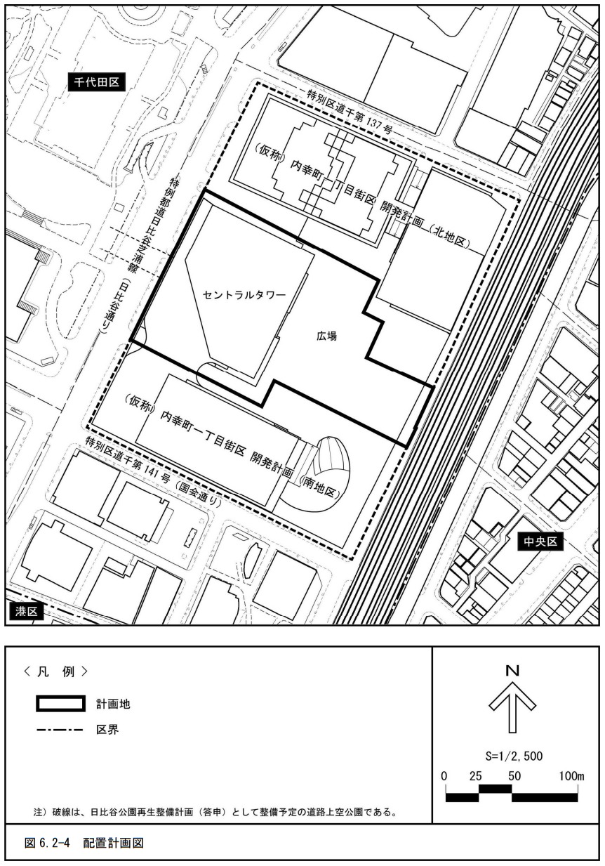
ÇÛÃַײè¿Þ[½Ðŵ¡§ÅìµþÅԴͶÉ]
¡¡¥Î¡¼¥¹¥¿¥ï¡¼¤ÏÉßÃÏÅ즤ÎJR¤ÎÀþÏ©±è¤¤¡¢¿·ËÜ´Û¤ÏÀ¾Â¦¤ÎÆüÈæÃ«¸ø±à¦¤ËÇÛÃÖ¤µ¤ì¤Þ¤¹¡£

·úʪÃÇÌÌ¿Þ(ÅìÀ¾)[½Ðŵ¡§ÅìµþÅԴͶÉ]
¡¡¿·Ëܴۤϥۥƥë¤È¤Ê¤ê¡¢¥Î¡¼¥¹¥¿¥ï¡¼¤Î¥Õ¥í¥¢¹½À®¤ÏÄãÁØÉô¤Ë¾¦¶È»ÜÀß¡¢ÃæÁØÉô¤Ë¥ª¥Õ¥£¥¹¡¢¹âÁØÉô¤Ë½ÉÇñ»ÜÀߤȤʤê¤Þ¤¹¡£º£Ç¯3·î¤Î¥Ë¥å¡¼¥¹¥ê¥ê¡¼¥¹¤Ç¤Ï¥Î¡¼¥¹¥¿¥ï¡¼¤Î½ÉÇñ»ÜÀߤϥµ¡¼¥Ó¥¹¥¢¥Ñ¡¼¥È¥á¥ó¥È¤ÈÄÂÂß½»Âð¤È¤Ê¤Ã¤Æ¤¤¤Þ¤¹¡£

·úʪÃÇÌÌ¿Þ(ÆîËÌ¡§¥Î¡¼¥¹¥¿¥ï¡¼)[½Ðŵ¡§ÅìµþÅԴͶÉ]
¡¡½ÉÇñ»ÜÀßÉô¤Î¥»¥Ã¥È¥Ð¥Ã¥¯¤·¤¿¤È¤³¤í¤«¤é¤¬ÄÂÂß½»Âð¤È¤Ê¤ê¤Þ¤¹¡£¤ª¤½¤é¤¯Äë¹ñ¥Û¥Æ¥ë¤Î¥µ¡¼¥Ó¥ë¤âÍøÍѲÄǽ¤È¤Ê¤ëĶ¥Ï¥¤¥°¥ì¡¼¥É¤Ê½»Âð¤Ë¤Ê¤ë¤È»×¤ï¤ì¤Þ¤¹¡£

·úʪÃÇÌÌ¿Þ(ÆîËÌ¡§¿·ËÜ´Û)[½Ðŵ¡§ÅìµþÅԴͶÉ]
¡¡¿·ËÜ´Û¤â¥Î¡¼¥¹¥¿¥ï¡¼¤â´ðÃÅÉô¤ÏÉ´¼Üµ¬À©»þÂå¤Î¹â¤µ31m¤ÇÅý°ì¤µ¤ì¤Þ¤¹¡£

·×²èÃϤθ½¶·¿Þ[½Ðŵ¡§ÅìµþÅԴͶÉ]
¡¡·úÀßÃϤÏÄë¹ñ¥Û¥Æ¥ëËÜ´Û¡¢Äë¹ñ¥Û¥Æ¥ë¥¿¥ï¡¼¡¢Ãó¼Ö¾ìÅ郎¤¢¤ë¾ì½ê¤È¤Ê¤Ã¤Æ¤¤¤Þ¤¹¡£

µ´üµÚ¤Ó¶´ü¤Ë¤ª¤±¤ëºî¶È¥¨¥ê¥¢[½Ðŵ¡§ÅìµþÅԴͶÉ]
¡¡µ´ü¤Ç¤ÏÄë¹ñ¥Û¥Æ¥ë¥¿¥ï¡¼¤¬·úÂØ¤¨¤é¤ì¡¢¶´ü¤Ç¤ÏÄë¹ñ¥Û¥Æ¥ëËÜ´Û¤¬·úÂØ¤¨¤é¤ì¡¢ºÇ¸å¤ËÃó¼Ö¾ìÅ郎²òÂΤµ¤ì¤Þ¤¹¡£

·×²èÃϰÌÃÖ¿Þ[½Ðŵ¡§ÅìµþÅԴͶÉ]
¡¡·×²èÃϤÏÅìµþ¥á¥È¥íÀéÂåÅÄÀþ¡ÖÆüÈæÃ«¡×±Ø¤Î¤¹¤°¶á¤¯¤Ç¡¢ÅԱϰÅÄÀþ¡¦ÆüÈæÃ«Àþ¤Î¡ÖÆüÈæÃ«¡×±Ø¤äJR¡ÖͳÚÄ®¡×±Ø¤Ê¤É¤¬ÅÌÊâ·÷¤Ë°ÌÃÖ¤·¤Æ¤¤¤Þ¤¹¡£

¡¡¸½ºß¤Î¡ÖÄë¹ñ¥Û¥Æ¥ëËܴۡפ϶´ü¹©»ö¤Î¤¿¤á¤·¤Ð¤é¤¯¤Ï¤³¤Î¤Þ¤Þ»Ä¤ê¤Þ¤¹¤¬¡Ä

¡¡¡ÖÄë¹ñ¥Û¥Æ¥ë¥¿¥ï¡¼¡×¤Ï¿ôǯ¸å¤Ë¤Ï²òÂι©»ö¤¬»Ï¤Þ¤ë¤³¤È¤Ë¤Ê¤ê¤Þ¤¹¡£

Á´Âι©»ö¹©Äø[½Ðŵ¡§ÅìµþÅԴͶÉ]
¡¡µ´ü¹©»ö¤Ç¤Ï2024ǯÅÙ¤«¤é¡ÖÄë¹ñ¥Û¥Æ¥ë¥¿¥ï¡¼¡×¤ò²òÂΤ·2030ǯÅ٤˥Ρ¼¥¹¥¿¥ï¡¼¤¬½×¹©Í½Äê¤Ç¡¢¶´ü¹©»ö¤Ç¤Ï2031ǯÅÙ¤«¤éËÜ´Û¤ò²òÂΤ·2036ǯÅ٤˿·ËÜ´Û¤¬½×¹©Í½Äê¤È¤Ê¤Ã¤Æ¤¤¤Þ¤¹¡£
¢£Êª·ï³µÍ×¢£
»ö¶È̾¡§(²¾¾Î)Æâ¹¬Ä®°ìÃúÌܳ¹¶è ³«È¯·×²è(ËÌÃ϶è)
½êºßÃÏ¡§ÅìµþÅÔÀéÂåÅĶèÆâ¹¬Ä®°ìÃúÌÜ1ÈÖ1¹æ ¾
¸òÄÌ¡§Åìµþ¥á¥È¥íÀéÂåÅÄÀþ¡¦Åìµþ¥á¥È¥íÆüÈæÃ«Àþ¡¦ÅԱϰÅÄÀþ¡ÖÆüÈæÃ«¡×±Ø
¡¡¡¡¡¡Åìµþ¥á¥È¥íͳÚÄ®Àþ¡¦JR»³¼êÀþ¡¦JRµþÉÍÅìËÌÀþ¡ÖͳÚÄ®¡×±Ø
¡¡¡¡¡¡ÅԱϰÅÄÀþ¡ÖÆâ¹¬Ä®¡×±Ø
¡¡¡¡¡¡JR³ÆÀþ¡¦Åìµþ¥á¥È¥í¶äºÂÀþ¡¦¤æ¤ê¤«¤â¤á¡Ö¿·¶¶¡×±Ø
ÍÑÅÓ¡§¥ª¥Õ¥£¥¹¡¦¾¦¶È¡¦¥µ¡¼¥Ó¥¹¥¢¥Ñ¡¼¥È¥á¥ó¥È¡¦ÄÂÂß½»ÂðÅù¡Êµ´ü¡§¥Î¡¼¥¹¥¿¥ï¡¼¡Ë
¡¡¡¡¡¡¥Û¥Æ¥ë¡¦±ã²ñ¾ìÅù¡Ê¶´ü¡§¿·ËÜ´Û¡Ë
³¬¿ô¡§ÃϾå46³¬¡¢Ãϲ¼4³¬¡Êµ´ü¡§¥Î¡¼¥¹¥¿¥ï¡¼¡Ë
¡¡¡¡¡¡ÃϾå29³¬¡¢Ãϲ¼4³¬¡Ê¶´ü¡§¿·ËÜ´Û¡Ë
¹â¤µ¡§Ìó230m¡Êµ´ü¡§¥Î¡¼¥¹¥¿¥ï¡¼¡Ë
¡¡¡¡¡¡Ìó145m¡Ê¶´ü¡§¿·ËÜ´Û¡Ë
¹½Â¤¡§Å´¹üÅ´¶Ú¥³¥ó¥¯¥ê¡¼¥È¤¡ÊÃϲ¼¡Ë¡¢Å´¹ü¤¡ÊÃϾå¡Ë
¶è°èÌÌÀÑ¡§Ìó2.4ha
±ä¾²ÌÌÀÑ¡§Ìó42ËüÖ
»ö¶È¼Ô¡§Äë¹ñ¥Û¥Æ¥ë¡¢»°°æÉÔÆ°»º¡ÊÂåɽ»ö¶È¼Ô¡Ë
Àß·×¼Ô¡§Æü·úÀ߷ס¦»³²¼Àß·×JV¡Êµ´ü¡§¥Î¡¼¥¹¥¿¥ï¡¼¡Ë
¡¡¡¡¡¡¡¡»³²¼À߷ס¦Æü·úÀß·×JV¡Ê¶´ü¡§¿·ËÜ´Û¡Ë
¥Ç¥¶¥¤¥ó¥¢¡¼¥¥Æ¥¯¥È¡§PLP¥¢¡¼¥¥Æ¥¯¥Á¥ã¡¼¡Êµ´ü¡§¥Î¡¼¥¹¥¿¥ï¡¼¡Ë
¡¡¡¡¡¡¡¡¡¡¡¡¡¡¡¡¡¡¡¡¡¡Atelier Tsuyoshi Tane Architects¡Ê¶´ü¡§¿·ËÜ´Û¡Ë
»Ü¹©¼Ô¡§¡Ý
¹©´ü¡§2024ǯÅÙÃ幩¡Á2030ǯÅÙ½×¹©Í½Äê¡Êµ´ü¡§¥Î¡¼¥¹¥¿¥ï¡¼¡Ë
¡¡¡¡¡¡2031ǯÅÙÃ幩¡Á2036ǯÅÙ½×¹©Í½Äê¡Êµ´ü¡§¿·ËÜ´Û¡Ë
¶¡Íѳ«»Ï¡§2037ǯÅÙͽÄê¡ÊºÇ½ª¶¦ÍÑʬ¡Ë
¢¨¹©´ü¤Ë¤Ï²òÂι©»ö¤â´Þ¤ß¤Þ¤¹¡£
(²¾¾Î)Æâ¹¬Ä®°ìÃúÌܳ¹¶è ³«È¯·×²è(ÃæÃ϶è)

³°´Ñ¥¤¥á¡¼¥¸[½Ðŵ¡§ÅìµþÅԴͶÉ]
¡¡¥¨¥Ì¡¦¥Æ¥£¡¦¥Æ¥£ÅÔ»Ô³«È¯(Âåɽ»ö¶È¼Ô)¡¢¸ø¶¦·úʪ¡¢ÅìµþÅÅÎϥѥ¥°¥ê¥Ã¥É¡¢»°°æÉÔÆ°»º¤Ë¤è¤ëºÆ³«È¯¡Ö(²¾¾Î)Æâ¹¬Ä®°ìÃúÌܳ¹¶è ³«È¯·×²è(ÃæÃ϶è)¡×¤Î´Ä¶±Æ¶Áɾ²Á½ñ¤¬¸ø³«¤µ¤ì¤Þ¤·¤¿¡£·×²èÃÏ¤Ï¡ÖÆüÈæÃ«U-1¥Ó¥ë¡×¤ä¡ÖNTTÆüÈæÃ«¥Ó¥ë¡×Åù¤¬¤¢¤ë¾ì½ê¤ÇÃϾå46³¬¡¢¹â¤µÌó230m¤Î¥»¥ó¥È¥é¥ë¥¿¥ï¡¼¤¬·úÀߤµ¤ì¤Þ¤¹¡£
¡¡µ¬ÌϤÏÃϾå46³¬¡¢Ãϲ¼6³¬¡¢¹â¤µÌó230m¡¢±ä¾²ÌÌÀÑÌó37ËüÖ¡£¥ª¥Õ¥£¥¹¡¦¾¦¶È¡¦¥Û¥Æ¥ëÅù¤Ç¹½À®¤µ¤ì¤ëÊ£¹ç»ÜÀߤÇ2022ǯÅÙÃ幩¡¢2029ǯÅÙ½×¹©Í½Äê¤Ç¤¹¡£
¢§ÅìµþÅԴͶɡ§´Ä¶¥¢¥»¥¹¥á¥ó¥È¡Ê2022ǯ6·î6Æü¡Ë
¡Ö¡Ê²¾¾Î¡ËÆâ¹¬Ä®°ìÃúÌܳ¹¶è ³«È¯·×²è¡ÊÃæÃ϶è¡Ë¡×´Ä¶±Æ¶Áɾ²Á½ñ
¢¨±ÜÍ÷¤Ë¤ÏAdobe Acrobat Reader DC¤¬É¬ÍפǤ¹¡£Microsoft Edge¡¢Internet Explorer¡¢Google Chrome¤Ç±ÜÍ÷¤Ç¤¤Þ¤¹¡£

ÇÛÃַײè¿Þ[½Ðŵ¡§ÅìµþÅԴͶÉ]
¡¡¥»¥ó¥È¥é¥ë¥¿¥ï¡¼ËÜÂΤÏÉßÃÏÀ¾Â¦¤ÎÆüÈæÃ«¸ø±à¦¤ËÇÛÃÖ¤µ¤ì¡¢JR¤ÎÀþϩ¦¤Ë¤Ï¹¾ì¤¬À°È÷¤µ¤ì¤Þ¤¹¡£

·úʪÃÇÌÌ¿Þ(ÅìÀ¾)[½Ðŵ¡§ÅìµþÅԴͶÉ]
¡¡¥»¥ó¥È¥é¥ë¥¿¥ï¡¼¤Î¥Õ¥í¥¢¹½À®¤ÏÄãÁØÉô¤Ë¾¦¶È»ÜÀß¡¢ÃæÁØÉô¤Ë¥ª¥Õ¥£¥¹¡¢¹âÁØÉô¤Ë½ÉÇñ»ÜÀߤȤʤê¤Þ¤¹¡£

·úʪÃÇÌÌ¿Þ(ÆîËÌ)[½Ðŵ¡§ÅìµþÅԴͶÉ]
¡¡ÄãÁØÉô¤Ë¤Ï¥Û¡¼¥ë¤âÇÛÃÖ¤µ¤ì¤Þ¤¹¡£

·×²èÃϤθ½¶·¿Þ[½Ðŵ¡§ÅìµþÅԴͶÉ]
¡¡·úÀßÃÏÆâ¤Ë¤Ï¡ÖÆüÈæÃ«U-1¥Ó¥ë¡×¤ä¡ÖNTTÆüÈæÃ«¥Ó¥ë¡×¤Ê¤ÉÊ£¿ô¤Î¥Ó¥ë¤¬¤¢¤ê¤Þ¤¹¡£

·×²èÃϰÌÃÖ¿Þ[½Ðŵ¡§ÅìµþÅԴͶÉ]
¡¡·×²èÃϤÏÅìµþ¥á¥È¥íÀéÂåÅÄÀþ¡ÖÆüÈæÃ«¡×±Ø¤ÈÅԱϰÅÄÀþ¡ÖÆâ¹¬Ä®¡×±Ø¤ÎÃæ´Ö¤¯¤é¤¤¤Ç¡ÖͳÚÄ®¡×±Ø¤ä¡Ö¿·¶¶¡×±Ø¤Ê¤É¤âÅÌÊâ·÷¤Ë¤¢¤ê¤Þ¤¹¡£

¡¡ÉßÃÏÆâ¤Ë¤¢¤ë͹âÁØ¥ª¥Õ¥£¥¹¥Ó¥ë¤Î¡ÖÆüÈæÃ«U-1¥Ó¥ë¡×(ÃϾå26³¬¡¢¹â¤µ109.3m¡¢1984ǯ½×¹©)¤Ç¤¹¡£ÂçÏÂÀ¸Ì¿¡Ê¸½¡§¥×¥ë¥Ç¥ó¥·¥ã¥ë ¥¸¥Ö¥é¥ë¥¿ ¥Õ¥¡¥¤¥Ê¥ó¥·¥ã¥ëÀ¸Ì¿Êݸ±¡Ë¤Ë¤è¤ê·úÀߤµ¤ì¤¿¥Ó¥ë¤Ç´°À®Åö»þ¤Î̾¾Î¤Ï¡ÖÂçÏÂÀ¸Ì¿¥Ó¥ë¡×¤Ç¤·¤¿¡£¤½¤Î¸å¡¢ÆüËÜ¥Ó¥ë¥Õ¥¡¥ó¥ÉÅê»ñË¡¿Í¤Ë¾ùÅϤ·¡ÖNBFÆüÈæÃ«¥Ó¥ë¡×¤È̾¾Î¤¬ÊѤï¤ê¡¢¤½¤·¤Æ2018ǯ3·î30Æü¤Ë»°°æÉÔÆ°»º¤Ë¾ùÅϤµ¤ì¡ÖÆüÈæÃ«U-1¥Ó¥ë¡×¤Ë̾¾Î¤¬Êѹ¹¤È¤Ê¤Ã¤Æ¤¤¤Þ¤¹¡£

¡¡¡ÖNTTÆüÈæÃ«¥Ó¥ë¡×(ÃϾå9³¬¡¢1961ǯ½×¹©)¤Ç¤¹¡£µì̾¾Î¤Ï¡ÖÆüÈæÃ«ÅÅÅÅ¥Ó¥ë¡×¡ÖÆüÈæÃ«ÅÅÅÅÁí¹ç·úʪ¡×¤Ç¤¹¡£Âç¼êÄ®¤Ø°Üž¤·¤¿NTT¥³¥ß¥å¥Ë¥±¡¼¥·¥ç¥ó¥º¤ÎËܼҤ¬Æþ¤Ã¤Æ¤¤¤Þ¤·¤¿¡£

Á´Âι©»ö¹©Äø[½Ðŵ¡§ÅìµþÅԴͶÉ]
¡¡2022ǯÅÙ¤«¤é¡ÖÆüÈæÃ«U-1¥Ó¥ë¡×¡ÖNTTÆüÈæÃ«¥Ó¥ë¡×¤Î²òÂΤò³«»Ï¤·2029ǯÅ٤ˤϥ»¥ó¥È¥é¥ë¥¿¥ï¡¼¤¬½×¹©Í½Äê¤È¤Ê¤Ã¤Æ¤¤¤Þ¤¹¡£¤½¤Î¸å¤ÏÀßÈ÷°ÜÀß¹©»ö¤ä»Ä¤ê¤Î´û¸¥Ó¥ë¤Î²òÂι©»ö¤¬¹Ô¤ï¤ì¡¢Á´ÂΤι©»ö´°Î»¤Ï2037ǯÅٰʹߤÎͽÄê¤È¤Ê¤Ã¤Æ¤¤¤Þ¤¹¡£
¢£Êª·ï³µÍסÊÃæÃ϶è¡Ë¢£
»ö¶È̾¡§(²¾¾Î)Æâ¹¬Ä®°ìÃúÌܳ¹¶è ³«È¯·×²è(ÃæÃ϶è)
½êºßÃÏ¡§ÅìµþÅÔÀéÂåÅĶèÆâ¹¬Ä®°ìÃúÌÜ1ÈÖ6¹æ ¾
¸òÄÌ¡§ÅԱϰÅÄÀþ¡ÖÆâ¹¬Ä®¡×±Ø
¡¡¡¡¡¡Åìµþ¥á¥È¥íÀéÂåÅÄÀþ¡¦Åìµþ¥á¥È¥íÆüÈæÃ«Àþ¡¦ÅԱϰÅÄÀþ¡ÖÆüÈæÃ«¡×±Ø
¡¡¡¡¡¡Åìµþ¥á¥È¥íͳÚÄ®Àþ¡¦JR»³¼êÀþ¡¦JRµþÉÍÅìËÌÀþ¡ÖͳÚÄ®¡×±Ø
¡¡¡¡¡¡JR³ÆÀþ¡¦Åìµþ¥á¥È¥í¶äºÂÀþ¡¦¤æ¤ê¤«¤â¤á¡¦ÅÔ±ÄÀõÁðÀþ¡Ö¿·¶¶¡×±Ø
ÍÑÅÓ¡§¥ª¥Õ¥£¥¹¡¢½ÉÇñ»ÜÀß¡¢¾¦¶È¡¢¥Û¡¼¥ëµÚ¤ÓÃó¼Ö¾ìÅù
³¬¿ô¡§ÃϾå46³¬¡¢Ãϲ¼6³¬
¹â¤µ¡§Ìó230m
¹½Â¤¡§Å´¹ü¤¡¢Å´¹üÅ´¶Ú¥³¥ó¥¯¥ê¡¼¥È¤
¶è°èÌÌÀÑ¡§Ìó2.2ha
±ä¾²ÌÌÀÑ¡§Ìó37ËüÖ
»ö¶È¼Ô¡§¥¨¥Ì¡¦¥Æ¥£¡¦¥Æ¥£ÅÔ»Ô³«È¯(Âåɽ»ö¶È¼Ô)¡¢¸ø¶¦·úʪ¡¢ÅìµþÅÅÎϥѥ¥°¥ê¥Ã¥É¡¢»°°æÉÔÆ°»º
Àß·×¼Ô¡§NTT¥Õ¥¡¥·¥ê¥Æ¥£¡¼¥º
¥Ç¥¶¥¤¥ó¥¢¡¼¥¥Æ¥¯¥È¡§PLP¥¢¡¼¥¥Æ¥¯¥Á¥ã¡¼
»Ü¹©¼Ô¡§¡Ý
¹©´ü¡§2022ǯÅÙÃ幩¡Á2029ǯÅÙ½×¹©Í½Äê¡¢2037ǯÅٰʹߤ˹©»ö´°Î»Í½Äê
¶¡Íѳ«»Ï¡§2037ǯÅÙͽÄê¡ÊºÇ½ª¶¦ÍÑʬ¡Ë
¢¨¹©´ü¤Ë¤Ï²òÂι©»ö¤â´Þ¤ß¤Þ¤¹¡£
(²¾¾Î)Æâ¹¬Ä®°ìÃúÌܳ¹¶è ³«È¯·×²è(ÆîÃ϶è)

³°´Ñ¥¤¥á¡¼¥¸[½Ðŵ¡§ÅìµþÅԴͶÉ]
¡¡Âè°ìÀ¸Ì¿Êݸ±(Âåɽ»ö¶È¼Ô)¡¢Ãæ±ûÆüËÜÅÚÃÏ·úʪ¡¢Åìµþ¥»¥ó¥Á¥å¥ê¡¼¡¢ÅìµþÅÅÎϥѥ¥°¥ê¥Ã¥É¤Ë¤è¤ëºÆ³«È¯¡Ö(²¾¾Î)Æâ¹¬Ä®°ìÃúÌܳ¹¶è ³«È¯·×²è(ÆîÃ϶è)¡×¤Î´Ä¶±Æ¶Áɾ²Á½ñ¤¬¸ø³«¤µ¤ì¤Þ¤·¤¿¡£·×²èÃϤϡ֤ߤº¤Û¶ä¹ÔÆâ¹¬Ä®¥Ó¥ë¡×Åù¤¬¤¢¤ë¾ì½ê¤ÇÃϾå43³¬¡¢¹â¤µÌó230m¤Î¥µ¥¦¥¹¥¿¥ï¡¼¤¬·úÀߤµ¤ì¤Þ¤¹¡£
¡¡µ¬ÌϤÏÃϾå43³¬¡¢Ãϲ¼5³¬¡¢¹â¤µÌó230m¡¢±ä¾²ÌÌÀÑÌó31ËüÖ¡£¾¦¶È¡¦½ÉÇñ»ÜÀß¡¦¥¦¥§¥ë¥Í¥¹Â¥¿Ê»ÜÀß¡¦¥ª¥Õ¥£¥¹¤Ç¹½À®¤µ¤ì¤ëÊ£¹ç»ÜÀߤÇ2022ǯÅÙÃ幩¡¢2028ǯÅÙ½×¹©Í½Äê¤Ç¤¹¡£
¢§ÅìµþÅԴͶɡ§´Ä¶¥¢¥»¥¹¥á¥ó¥È¡Ê2022ǯ6·î6Æü¡Ë
¡Ö¡Ê²¾¾Î¡ËÆâ¹¬Ä®°ìÃúÌܳ¹¶è ³«È¯·×²è¡ÊÆîÃ϶è¡Ë¡×´Ä¶±Æ¶Áɾ²Á½ñ
¢¨±ÜÍ÷¤Ë¤ÏAdobe Acrobat Reader DC¤¬É¬ÍפǤ¹¡£Microsoft Edge¡¢Internet Explorer¡¢Google Chrome¤Ç±ÜÍ÷¤Ç¤¤Þ¤¹¡£

ÇÛÃַײè¿Þ[½Ðŵ¡§ÅìµþÅԴͶÉ]
¡¡¡Ö(²¾¾Î)Æâ¹¬Ä®°ìÃúÌܳ¹¶è¡×¤ÎÃæ¤Ç¤Ï°ìÈÖÆî¦¤ÎÅï¤ÇÅìÀ¾¤ËĹºÙ¤¤Ä¶¹âÁØ¥ª¥Õ¥£¥¹¥Ó¥ë¤È¤Ê¤ê¤Þ¤¹¡£

·úʪÃÇÌÌ¿Þ(ÅìÀ¾)[½Ðŵ¡§ÅìµþÅԴͶÉ]
¡¡¥µ¥¦¥¹¥¿¥ï¡¼¤Î¥Õ¥í¥¢¹½À®¤ÏÄãÁØÉô¤Ë¾¦¶È¡¢½ÉÇñ»ÜÀß¡¢¥¦¥§¥ë¥Í¥¹Â¥¿Ê»ÜÀß¡¢Ãæ¹âÁØÉô¤¬¥ª¥Õ¥£¥¹¤È¤Ê¤ê¤Þ¤¹¡£

·úʪÃÇÌÌ¿Þ(ÆîËÌ)[½Ðŵ¡§ÅìµþÅԴͶÉ]
¡¡¥»¥ó¥È¥é¥ë¥¿¥ï¡¼¤â¥µ¥¦¥¹¥¿¥ï¡¼¤âÉ´¼Üµ¬À©»þÂå¤Î¹â¤µ31m¤Î¤È¤³¤í¤Ë¥Ç¥¶¥¤¥ó¤ÎÊÑ´¹ÅÀ¤È¤·¤Æ¤Îɽ¾ðÀþ¤¬Àߤ±¤é¤ì¤Þ¤¹¡£

·×²èÃϤθ½¶·¿Þ[½Ðŵ¡§ÅìµþÅԴͶÉ]
¡¡·×²èÃÏÆâ¤Ë¤Ï¡Ö¤ß¤º¤Û¶ä¹ÔÆâ¹¬Ä®¥Ó¥ë¡×(ÃϾå32³¬¡¢ºÇ¹â¹â¤µ140m)¤ä¡ÖÅìµþÅÅÎÏ¥Û¡¼¥ë¥Ç¥£¥ó¥°¥¹ËÜŹ¡×(ÃϾå16³¬¡¢¹â¤µ102.01m)¤¬¤¢¤ê¤Þ¤¹¡£

·×²èÃϰÌÃÖ¿Þ[½Ðŵ¡§ÅìµþÅԴͶÉ]
¡¡·×²èÃϤÏÅԱϰÅÄÀþ¡ÖÆâ¹¬Ä®¡×±Ø¤ÎÌܤÎÁ°¤Ç¤Ç¡ÖͳÚÄ®¡×±Ø¤ä¡Ö¿·¶¶¡×±Ø¤Ê¤É¤âÅÌÊâ·÷¤Ë¤¢¤ê¤Þ¤¹¡£Æâ¹¬Ä®±Ø¤Ë¤ÏÃϲ¼ÄÌÏ©Àܳ¸ý¤«¤é¤â¥¢¥¯¥»¥¹¤Ç¤¤ë¤è¤¦¤Ë¤¹¤ë¤È¤ÎµºÜ¤¬¤¢¤ë¤Î¤Ç¡¢±ØÄ¾·ë¤Ë¤Ê¤ë¤â¤Î¤È»×¤ï¤ì¤Þ¤¹¡£

¡¡¡Ö¤ß¤º¤Û¶ä¹ÔÆâ¹¬Ä®ËÜÉô¥Ó¥ë¡×¤Ç¤¹¡£Åö½é¤ÏµìÂè°ì´«¶È¶ä¹Ô¤ÎËÜŹ¥Ó¥ë¤È¤·¤Æ·úÀߤµ¤ì¤Þ¤·¤¿¡£

¡¡¡ÖÅìµþÅÅÎÏ¥Û¡¼¥ë¥Ç¥£¥ó¥°¥¹ËÜŹ¡×¤Ç¤¹¡£¹â¤µ102.01m¤Î¥Ó¥ë¤Ç¤¹¤¬¡¢ÀÖÇò¤ÎÅÅÇÈÅãÉôʬ¤â´Þ¤á¤ë¤È200m¶á¤¯¤Ï¤¢¤ê¤½¤¦¤Ç¤¹¡£

Á´Âι©»ö¹©Äø[½Ðŵ¡§ÅìµþÅԴͶÉ]
¡¡2022ǯÅÙ¤«¤é¡Ö¤ß¤º¤Û¶ä¹ÔÆâ¹¬Ä®ËÜÉô¥Ó¥ë¡×¤Î²òÂΤò³«»Ï¤·2028ǯÅ٤ˤϥµ¥¦¥¹¥¿¥ï¡¼¤¬½×¹©Í½Äê¤È¤Ê¤Ã¤Æ¤¤¤Þ¤¹¡£¤½¤Î¸å¤ÏÀßÈ÷°ÜÀß¹©»ö¤ä»Ä¤ê¤Î´û¸¥Ó¥ë¤Î²òÂι©»ö¤¬¹Ô¤ï¤ì¡¢Á´ÂΤι©»ö´°Î»¤Ï2037ǯÅٰʹߤÎͽÄê¤È¤Ê¤Ã¤Æ¤¤¤Þ¤¹¡£
¢£Êª·ï³µÍ×¡ÊÆîÃ϶è¡Ë¢£
»ö¶È̾¡§(²¾¾Î)Æâ¹¬Ä®°ìÃúÌܳ¹¶è ³«È¯·×²è(ÆîÃ϶è)
½êºßÃÏ¡§ÅìµþÅÔÀéÂåÅĶèÆâ¹¬Ä®°ìÃúÌÜ1ÈÖ3¹æ ¾
¸òÄÌ¡§ÅԱϰÅÄÀþ¡ÖÆâ¹¬Ä®¡×±Ø
¡¡¡¡¡¡JR³ÆÀþ¡¦Åìµþ¥á¥È¥í¶äºÂÀþ¡¦¤æ¤ê¤«¤â¤á¡¦ÅÔ±ÄÀõÁðÀþ¡Ö¿·¶¶¡×±Ø
¡¡¡¡¡¡Åìµþ¥á¥È¥íÀéÂåÅÄÀþ¡¦Åìµþ¥á¥È¥íÆüÈæÃ«Àþ¡¦ÅԱϰÅÄÀþ¡ÖÆüÈæÃ«¡×±Ø
ÍÑÅÓ¡§¥ª¥Õ¥£¥¹¡¢½ÉÇñ»ÜÀß¡¢¾¦¶È¡¢¥¦¥§¥ë¥Í¥¹Â¥¿Ê»ÜÀßµÚ¤ÓÃó¼Ö¾ìÅù
³¬¿ô¡§ÃϾå43³¬¡¢Ãϲ¼5³¬
¹â¤µ¡§Ìó230m
¹½Â¤¡§S¤¡¢°ìÉôSRC¤
¶è°èÌÌÀÑ¡§Ìó1.9ha
±ä¾²ÌÌÀÑ¡§Ìó31ËüÖ
»ö¶È¼Ô¡§Âè°ìÀ¸Ì¿Êݸ±(Âåɽ»ö¶È¼Ô)¡¢Ãæ±ûÆüËÜÅÚÃÏ·úʪ¡¢Åìµþ¥»¥ó¥Á¥å¥ê¡¼¡¢ÅìµþÅÅÎϥѥ¥°¥ê¥Ã¥É
Àß·×¼Ô¡§Æü·úÀß·×
¥Ç¥¶¥¤¥ó¥¢¡¼¥¥Æ¥¯¥È¡§Æü·úÀß·×
»Ü¹©¼Ô¡§¡Ý
¹©´ü¡§2022ǯÅÙÃ幩¡Á2028ǯÅÙ½×¹©Í½Äê¡¢2037ǯÅٰʹߤ˹©»ö´°Î»Í½Äê
¶¡Íѳ«»Ï¡§2037ǯÅÙͽÄê¡ÊºÇ½ª¶¦ÍÑʬ¡Ë
¢¨¹©´ü¤Ë¤Ï²òÂι©»ö¤â´Þ¤ß¤Þ¤¹¡£
TOKYO CROSS PARK¹½ÁÛ

Æâ¹¬Ä®°ìÃúÌܳ¹¶è´°À®¥¤¥á¡¼¥¸[½Ðŵ¡§»°°æÉÔÆ°»º]
¡¡¡ÖÆâ¹¬Ä®°ìÃúÌܳ¹¶è¡×¤ÎËÌÃÏ¶è¡¢ÃæÃ϶衢ÆîÃ϶è¤ò¹ç¤ï¤»¤¿3¤Ä¤ÎÃ϶è¤Ï»°°æÉÔÆ°»º¤Ê¤É»ö¶È¼Ô10¼Ò¤è¤ê¡ÖTOKYO CROSS PARK¹½ÁۡפȤ·¤Æ³µÍפ¬È¯É½¤µ¤ì¤Æ¤¤¤Þ¤¹¡£
¢§»°°æÉÔÆ°»º¡§¥Ë¥å¡¼¥¹¥ê¥ê¡¼¥¹¡Ê2022ǯ3·î24Æü¡Ë
ÅÔ¿´ºÇÂçµé±ä¾²Ìó110Ëüm2¡¢ÆüÈæÃ«¸ø±à¤È°ìÂΤȤʤä¿ÈæÎà¤Ê¤³¹¤Å¤¯¤ê
¡ÖTOKYO CROSS PARK¹½Áۡפòȯɽ
Æâ¹¬Ä®°ìÃúÌܳ¹¶è¤Ë¤ª¤±¤ë¼¡À¤Â她¥Þ¡¼¥È¥·¥Æ¥£¥×¥í¥¸¥§¥¯¥È

Æâ¹¬Ä®°ìÃúÌܳ¹¶è´°À®¥¤¥á¡¼¥¸[½Ðŵ¡§»°°æÉÔÆ°»º]
¡¡¡ÖTOKYO CROSS PARK¹½Áۡפ˹½Áۤ˴ð¤Å¤5¤Ä¤Î¥Æ¡¼¥Þ¡Ø¿Í¤¬¼çÌò¤Î³¹¤Å¤¯¤ê¡Ù¡Ø³¹¤Å¤¯¤ê¡ß¥Ç¥¸¥¿¥ë¡Ù¡Ø¤ª¤â¤Æ¤Ê¤·¤¬¹¤¬¤ê¡¢¿Í¤¬½¸¤¦³¹¤Ø¡Ù¡Ø¤¹¤Ù¤Æ¤Î¿Í¡¹¤Îwell-being¡Ù¡Ø»ý³²Äǽ¤Ê³¹¡¦¼Ò²ñ¤Ø¡Ù¤¬·Ç¤²¤é¤ì¤Æ¤¤¤Þ¤¹¡£
¡¡¤Þ¤¿¡¢¡ÖTOKYO CROSS PARK¹½ÁۡפǼ¸½¤¹¤ë£³¤Ä¤ÎCROSS¤È¤·¤Æ¡ØCROSS 1¡§ÆüÈæÃ«¸ø±à¤È³¹¤ò¤Ä¤Ê¤°¡Ù¡ØCROSS 2¡§ÅÔ¿´¼çÍ×µòÅÀ¤«¤é¿Íͤʿͤ¬½¸¤Þ¤ê¡¢¸ò¤ï¤ë·ëÀáÅÀ¡Ù¡ØCROSS 3¡§»ö¶È¼Ô10¼Ò¤Î¶¦Áϡ٤¬¤¢¤²¤é¤ì¤Æ¤¤¤Þ¤¹¡£

³¹¶èÍÑÅÓ³µÇ°¿Þ[½Ðŵ¡§»°°æÉÔÆ°»º]
¡¡¥ª¥Õ¥£¥¹¡¢¥Û¥Æ¥ë¡¢¾¦¶È¡¢¥Û¡¼¥ë¡¢ÄÂÂß½»Âð¡¢¥µ¡¼¥Ó¥¹¥¢¥Ñ¡¼¥È¥á¥ó¥È¤Ê¤ÉÍÍ¡¹¤Êµ¡Ç½¤òͤ¹¤ë³¹¶è¤È¤Ê¤ê¤Þ¤¹¡£

¶äºÂ¦¤«¤é2ha¤ÎÂ絬ÌϹ¾ì¤òÎפ।¥á¡¼¥¸[½Ðŵ¡§»°°æÉÔÆ°»º]
¡¡¶äºÂ¦¤Î´°À®Í½ÁۿޤǤ¹¡£ÀþÏ©±è¤¤¤Ë¤Ï2a¤ÎÂ絬ÌϹ¾ì¤¬À°È÷¤µ¤ì¤Þ¤¹¡£¤³¤ì¤Ï5¤Ä¤Î¥Æ¡¼¥Þ¤Î¤¦¤Á¡Ø¿Í¤¬¼çÌò¤Î³¹¤Å¤¯¤ê¡Ù¤Ë´ð¤Å¤¡¢¿Í¡¹¤¬½Ð²ñ¤¤¡¦¤Õ¤ì¤¢¤¤¡¦¿·¤¿¤Ê¥³¥ß¥å¥Ë¥Æ¥£¤ò°é¤à¡Ö¥Ñ¥Ö¥ê¥Ã¥¯¥¹¥Ú¡¼¥¹¡×¤È¤Ê¤ê¤Þ¤¹¡£

31m´ðÃÅÉô¾å¹¾ì¥¤¥á¡¼¥¸[½Ðŵ¡§»°°æÉÔÆ°»º]
¡¡É´¼Üµ¬À©»þÂå¤Î¹â¤µ31m¤Î¥é¥¤¥ó¤È¤Ê¤ë´ðÃÅÉô¾å¤Î¹¾ì¤Ï¡Ø¿Í¤¬¼çÌò¤Î³¹¤Å¤¯¤ê¡Ù¤ò¹½À®¤¹¤ëÍ×ÁǤΰì¤Ä¤È¤Ê¤ê¤Þ¤¹¡£

ÆüÈæÃ«¸ø±à¤«¤é³¹¶è¤òÎפ।¥á¡¼¥¸[½Ðŵ¡§»°°æÉÔÆ°»º]
¡¡·×²èÃϤÎÀ¾Â¦¤Ë¤¢¤ëÆüÈæÃ«¸ø±à¤«¤é¸«¤¿´°À®Í½ÁۿޤǤ¹¡£

³¹¶è¤ÈÆüÈæÃ«¸ø±à¤ò¤Ä¤Ê¤°Æ»Ï©¾å¶õ¸ø±à¥¤¥á¡¼¥¸[½Ðŵ¡§»°°æÉÔÆ°»º]
¡¡¤½¤ÎÆüÈæÃ«¸ø±à¤ÈƱºÆ³«È¯¤ò¤Ä¤Ê¤°¥Ç¥Ã¥¤¬À°È÷¤µ¤ì¤Þ¤¹¡£

¥¤¥á¡¼¥¸¥Ñ¡¼¥¹[½Ðŵ¡§Æâ³ÕÉÜ]
¡¡¤½¤Î¥Ç¥Ã¥¤Ïƻϩ¾å¶õ¸ø±à¤È¤Ê¤ê¥Ç¥Ã¥¾å¤Ë¤ÏÎÐÃϤâÀ°È÷¤µ¤ì¤Þ¤¹¡£

¡¡2019ǯ12·î14Æü¤Ë¥Ø¥ê¤«¤é»£±Æ¤·¤¿¡Ö(²¾¾Î)Æâ¹¬Ä®°ìÃúÌܳ¹¶è ³«È¯·×²è¡×¤Î·×²èÃϤǤ¹¡£ËÌÃÏ¶è¡¢ÃæÃ϶衢ÆîÃ϶è¤Î3¤Ä¤ÎÃ϶èÁ´ÂΤòÀÖ¤¤ÏȤǰϤߤޤ·¤¿¡£ÉßÃÏÆâ¤Ë¤Ï͹âÁإӥ뤬ʣ¿ôÅï·ú¤¢¤ê¤Þ¤¹¤¬Á´¤Æ²òÂΤµ¤ì¡¢±¦Â¦¤Î͹âÁØ¥Ó¥ë¤Ï¡ÖÅìµþ¥ß¥Ã¥É¥¿¥¦¥óÆüÈæÃ«¡×(ÃϾå35³¬¡¢¹â¤µ191.46m)¤è¤ê¤â¹â¤¤Ìó230m¤Î͹âÁإӥ뤬3Åï·ú¤Áʤ֤³¤È¤Ë¤Ê¤ê¤Þ¤¹¡£

¡¡È¿ÂЦ¤«¤é»£±Æ¡£´û¸¥Ó¥ë¤Î²òÂΤ¬»Ï¤Þ¤ë¤È´°À®¤ò¸«ÆÏ¤±¤ë¤¿¤á¤Ë10ǯ°Ê¾åÄ̤¦¤³¤È¤Ë¤Ê¤ê¤½¤¦¤Ç¤¹¡£

¡¡ÆüÈæÃ«¸ø±à¤«¤é¸«¤¿¡Ö(²¾¾Î)Æâ¹¬Ä®°ìÃúÌܳ¹¶è ³«È¯·×²è¡×ÊýÌ̤Ǥ¹¡£¤³¤Î·Ê¿§¤¬¹â¤µÌó230m¤Î͹âÁإӥ뤬·ú¤Áʤָ÷·Ê¤ËÊѤï¤ê¤Þ¤¹¡£
- ¥«¥Æ¥´¥ê
- ͹âÁØ¥Ó¥ëÆüµ(ÅìµþÊÔ)













