
´°À®Í½ÁÛ¿Þ[½Ðŵ¡§Ë̶è]
¡¡JR²¦»Ò±Ø¤ÎÅ즰ìÂÓ¤ÎÂ絬ÌϺƳ«È¯¡Ö²¦»Ò±ØÁ°ÃÏ¶èºÆ³«È¯·×²è¡×¤Î´Ä¶±Æ¶Áɾ²ÁÄ´ºº·×²è½ñ¤ÈÂè4²ó²¦»Ò¶¦ÁϲñµÄ¤Ç¤Î»ñÎÁ¤¬¸ø³«¤µ¤ì³µÍפ¬ÌÀ¤é¤«¤Ë¤Ê¤ê¤Þ¤·¤¿¡£Æ±ºÆ³«È¯¤Ï½»Í§ÉÔÆ°»º¤Ë¤è¤ëÃϾå51³¬¡¢¹â¤µÌó190m¤Î¥Ä¥¤¥ó¥¿¥ï¥Þ¥ó¤Ç¡¢¤³¤Î´°À®Í½Áۿޤκ¸²¼¤Ç¤ÏÊÌ»ö¶È¤È¤·¤ÆË̶迷ģ¼Ë¤¬·×²è¤µ¤ì¤Æ¤¤¤Þ¤¹¡£¤³¤Îµ»ö¤Ç¤ÏƱºÆ³«È¯¤Î³µÍפ丽¶·¡Ê2026ǯ2·î15Æü»þÅÀ¡Ë¡¢ÃÏ¿ÞÅù¤òºÜ¤»¤Æ¤¤¤Þ¤¹¡£
²¦»Ò±ØÁ°ÃÏ¶èºÆ³«È¯·×²è¤Ë¤Ä¤¤¤Æ

´°À®Í½ÁÛ¿Þ[½Ðŵ¡§Ë̶è]
¡¡¡Ö²¦»Ò±ØÁ°ÃÏ¶èºÆ³«È¯·×²è¡×¤ÏJR²¦»Ò±ØÅ즤ÎÀ¾³¹¶è¤ÈÅì³¹¶è¤Ëʬ¤«¤ì¤¿Â絬ÌϺƳ«È¯¤È¤Ê¤Ã¤Æ¤¤¤Þ¤¹¡£º¸¤¬À¾³¹¶è¤ÎÀ¾Åï¤Çµ¬ÌϤϡ¢ÃϾå51³¬¡¢Ãϲ¼2³¬¡¢¹â¤µÌó190m¡¢ÉßÃÏÌÌÀÑÌó1Ëü1300Ö¡¢·úÃÛÌÌÀÑÌó7,100Ö¡¢±ä¾²ÌÌÀÑÌó16Ëü5000Ö¡¢»ö¶È¼Ô¤Ï²¦»Ò±ØÁ°Ã϶è»Ô³¹ÃϺƳ«È¯½àÈ÷Áȹ硢½»Í§ÉÔÆ°»º¡¢²òÂι©»ö¤ò´Þ¤à¹©´ü¤Ï2027ǯÅÙÃ幩¡¢2033ǯÅ٤ν׹©Í½Äê¤Ç¤¹¡£
¡¡±¦Â¦¤ÎÅìÅï¤Îµ¬ÌϤϡ¢ÃϾå51³¬¡¢Ãϲ¼2³¬¡¢¹â¤µÌó190m¡¢ÉßÃÏÌÌÀÑÌó6,300Ö¡¢·úÃÛÌÌÀÑÌó3,000Ö¡¢±ä¾²ÌÌÀÑÌó10Ëü5000Ö¡¢»ö¶È¼Ô¤Ï²¦»Ò±ØÁ°Ã϶è»Ô³¹ÃϺƳ«È¯½àÈ÷Áȹ硢½»Í§ÉÔÆ°»º¡¢²òÂι©»ö¤ò´Þ¤à¹©´ü¤Ï2027ǯÅÙÃ幩¡¢2033ǯÅÙ½×¹©Í½Äê¤È¤Ê¤Ã¤Æ¤¤¤Þ¤¹¡£

ÃÇÌÌ¿Þ(À¾Åï)[½Ðŵ¡§ÅìµþÅԴͶÉ]
¡¡À¾Åï¤ÏÄãÁØÉô¤Ë¾¦¶È»ÜÀߤȥۥƥ뤬Æþ¤ê¡¢Ãæ¹âÁØÉô¤¬Ìó1050¸Í¤Î¥¿¥ï¡¼¥Þ¥ó¥·¥ç¥ó¤Ë¤Ê¤ê¤Þ¤¹¡£¤Þ¤¿¡¢¹â¤µÌó60m¤Î»ö̳½ê¤âÊ»Àߤµ¤ì¤Þ¤¹¡£

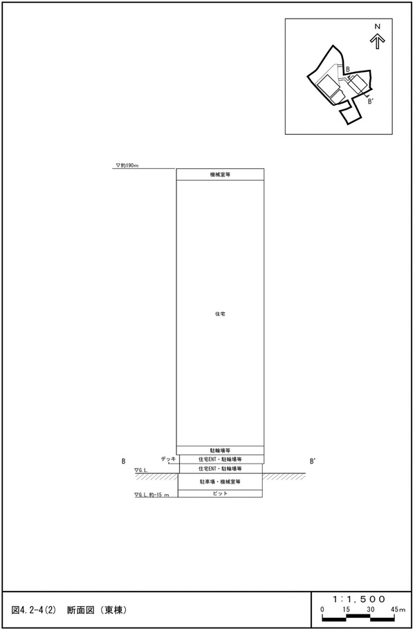
ÃÇÌÌ¿Þ(ÅìÅï)[½Ðŵ¡§ÅìµþÅԴͶÉ]
¡¡ÅìÅï¤ÏÁí¸Í¿ôÌó950¸Í¤Î¥¿¥ï¡¼¥Þ¥ó¥·¥ç¥ó¤Ë¤Ê¤ê¤Þ¤¹¡£

¥Þ¥¹¥¿¡¼¥Õ¥é¥ó¡Ê1FÉú¿Þ¡Ë[½Ðŵ¡§Ë̶è]
¡¡ÉßÃϤÎÀ¾Â¦¤ÏJRµþÉÍÅìËÌÀþ¡¢ÅÔÅŹÓÀîÀþ¡¢Ë̦¤ÏÌÀ¼£Ä̤ꡢÆî¦¤ÏÀпÀ°æÀî¤ËÌ̤·¤Æ¤ª¤ê¡¢JR²¦»Ò±Ø¤Ë¶á¤¤À¾Â¦¤ËÀ¾³¹¶è¡¢¤½¤ÎÅ즤ËÅì³¹¶è¡¢Ë̶迷ģ¼Ë¤¬ÇÛÃÖ¤µ¤ì¤Þ¤¹¡£¤Þ¤¿¡¢À¾³¹¶è¤ÈÅì³¹¶è¤Î´Ö¤Ë¤ÏÉý°÷16m¤ÎÆîËÌ´ÓÄÌÄÌϩƻϩ¤¬À°È÷¤µ¤ì¡¢ÀпÀ°æÀî¤Ë¤Ï¿·¤·¤¤¶¶¤¬²Í¤±¤é¤ì²¦»Ò±ØÆî¸ý±ØÁ°¹¾ì¤Ë·Ò¤¬¤ê¤Þ¤¹¡£

¥Þ¥¹¥¿¡¼¥Õ¥é¥ó¡Ê2FÉú¿Þ¡¿Ä£¼Ë3FÉú¿Þ¡Ë[½Ðŵ¡§Ë̶è]
¡¡À¾³¹¶è¤ÏÅì³¹¶è¤È¿·Ä£¼Ë¤Ë2³¬¥Ç¥Ã¥¤ÇÀܳ¤·¤Þ¤¹¡£

ÌÀ¼£Ä̤êË̦¤«¤é¤Þ¤Á¤Î¹¾ìÉÕ¶á¤ò¸«¤ë[½Ðŵ¡§Ë̶è]
¡¡ÌÀ¼£Ä̤êË̦¤«¤é¸«¤¿¹¾ìÉÕ¶á¤Î¥¤¥á¡¼¥¸¥¤¥é¥¹¥È¤Ç¤¹¡£Éý°÷16m¤ÎÆîËÌ´ÓÄÌÄÌϩƻϩ¤Îº¸Â¦¤ÏË̶迷ģ¼Ë¤È¤Ê¤ê¤Þ¤¹¡£

ÌÀ¼£Ä̤ꡦ´ÓÄÌÆ»Ï©Â¦¤ÎÄ»â×¥¤¥á¡¼¥¸[½Ðŵ¡§Ë̶è]
¡¡Ì±´Ö³¹¶è¤«¤é¿·Ä£¼Ë¤Ø°ìÂÎŪ¤Ë·Ò¤¬¤ë¤³¤È¤Ë¤Ê¤ê¤Þ¤¹¡£
°ÌÃÖ¿Þ

·×²èÃϰÌÃÖ¿Þ(¹°è)[½Ðŵ¡§ÅìµþÅԴͶÉ]
¡¡·×²èÃϤÏJRµþÉÍÅìËÌÀþ¡Ö²¦»Ò¡×±Ø¡¢ÅÔÅŹÓÀîÀþ¡Ö²¦»Ò±ØÁ°¡×Ääα¾ì¤ÎÅ즡¢Åìµþ¥á¥È¥íÆîËÌÀþ¡Ö²¦»Ò¡×±Ø¤ÎÆî¦¤Ç¡¢3±Ø3Ï©Àþ¤¬ÍøÍѲÄǽ¤Ê±ØÁ°Î©ÃϤȤʤäƤ¤¤Þ¤¹¡£

·×²èÃϰÌÃÖ¿Þ(¾ÜºÙ)[½Ðŵ¡§ÅìµþÅԴͶÉ]
¡¡ÌÀ¼£Ä̤ê¤ÈÀпÀ°æÀî¤Ë¶´¤Þ¤ì¤¿ÉßÃÏÌÌÀÑÌó1Ëü7600֤Ȥ¤¤¦¹Âç¤ÊÉßÃϤǡ¢¸½ºß¤Ï¡Ö²¦»Ò±ØÁ°¥µ¥ó¥¹¥¯¥¨¥¢¡×¤¬¤¢¤ë¾ì½ê¤È¤Ê¤Ã¤Æ¤¤¤Þ¤¹¡£

»ÜÀßÇÛÃַײè¿Þ
¡¡ÉßÃÏÆâ¤Ç¤ÏÀ¾Åï¤ÈÅìÅ郎·×²è¤µ¤ì¤Æ¤ª¤ê¡¢ËÌÅ즤ǤÏË̶迷ģ¼Ë¤â·×²è¤µ¤ì¤Æ¤¤¤Þ¤¹¡£
¸½¶·

¡¡2026ǯ2·î15Æü¤ËÌÀ¼£Ä̤ê¤Ë²Í¤«¤ëÊâÆ»¶¶¤«¤é»£±Æ¤·¤¿¡Ö²¦»Ò±ØÁ°ÃÏ¶èºÆ³«È¯·×²è À¾Åï¡×(ÃϾå51³¬¡¢¹â¤µÌó190m)¤Î·×²èÃϤǤ¹¡£¾¦¶È»ÜÀߤ䥹¥Ý¡¼¥Ä»ÜÀߤǹ½À®¤µ¤ì¤ë¡Ö²¦»Ò±ØÁ°¥µ¥ó¥¹¥¯¥¨¥¢¡×¤¬¤¢¤ë°ìÂÓ¤¬·×²èÃϤǡ¢ÊâÆ»¶¶¤Î³¬ÃʤÎÇØ¸å¤Ë¤ÏÅìµþ¥á¥È¥íÆîËÌÀþ¡Ö²¦»Ò¡×±Ø¤Î½ÐÆþ¸ý¤â¤¢¤ê¤Þ¤¹¡£
¡¡Çظå¤Î¥¿¥ï¡¼¥Þ¥ó¥·¥ç¥ó¤Ï¡Ö²¦»ÒÈôÄ»»³ ¥¶¡¦¥Õ¥¡¡¼¥¹¥È ¥¿¥ï¡¼¡õ¥ì¥¸¥Ç¥ó¥¹¡×(ÃϾå29³¬¡¢ºÇ¹â¹â¤µ97.86m)¤Ç¡¢¤³¤³¤Ç·×²è¤µ¤ì¤Æ¤¤¤ë¥Ä¥¤¥ó¥¿¥ï¥Þ¥ó¤Ï¤½¤ÎÇܶᤤ¹â¤µ¤È¤Ê¤ê¤Þ¤¹¡£

¡¡ÆîÅ즤«¤é»£±Æ¤·¤¿À¾³¹¶è¤Ç¤¹¡£

¡¡¤½¤ÎÎÙ¤¬¡Ö²¦»Ò±ØÁ°ÃÏ¶èºÆ³«È¯·×²è ÅìÅï¡×(ÃϾå51³¬¡¢¹â¤µÌó190m)¤¬·×²è¤µ¤ì¤Æ¤¤¤ëÅì³¹¶è¤È¤Ê¤Ã¤Æ¤¤¤Þ¤¹¡£

¡¡Åì³¹¶è¤Ï¥µ¥ó¥¹¥¯¥¨¥¢¥´¥ë¥Õ¤¬¤¢¤ë¾ì½ê¤È¤Ê¤Ã¤Æ¤¤¤Þ¤¹¡£

¡¡ÌÀ¼£Ä̤ê¤ËÌ̤·¤¿ÉßÃÏËÌÅ즤ˤϹ¾ì¤¬À°È÷¤µ¤ì¤Þ¤¹¡£

¡¡¡Ö²¦»Ò±ØÁ°ÃÏ¶èºÆ³«È¯·×²è¡×¤Ë¤è¤Ã¤Æ²¦»Ò±ØÁ°¤¬Â礤¯ÊѤï¤ë¤³¤È¤Ë¤Ê¤ê¤Þ¤¹¡£
ÃÏ¿Þ
ʪ·ï³µÍסÊÀ¾Åï¡Ë

¼ç¤Ê¹©»ö¹©Äø[½Ðŵ¡§ÅìµþÅԴͶÉ]
¡¡Æ±ºÆ³«È¯¤Ï¹©´ü¤Ï¡¢²òÂι©»ö¤â´Þ¤á¤ÆÎáÏÂ9ǯÅÙ¡Ê2027ǯÅ١ˤ«¤éÎáÏÂ15ǯÅÙ¡Ê2033ǯÅ١ˤòͽÄꤷ¤Æ¤¤¤Þ¤¹¡£
¢£Êª·ï³µÍסÊÀ¾Åï¡Ë¢£
»ö¶È̾¡§²¦»Ò±ØÁ°ÃÏ¶èºÆ³«È¯·×²è À¾³¹¶è¡ÊÀ¾Åï¡Ë
½êºßÃÏ¡§ÅìµþÅÔË̶貦»Ò°ìÃúÌܵڤÓËÙÁ¥°ìÃúÌÜÃÏÆâ
¸òÄÌ¡§JRµþÉÍÅìËֲ̡¦»Ò¡×±Ø
¡¡¡¡¡¡Åìµþ¥á¥È¥íÆîËÌÀþ¡Ö²¦»Ò¡×±Ø
¡¡¡¡¡¡ÅÔÅŹÓÀîÀþ¡Ö²¦»Ò±ØÁ°¡×Ääα½ê
ÍÑÅÓ¡§½»Âð¡¢¾¦¶È¡¢¥Û¥Æ¥ë¡¢»ö̳½ê¡¢Ãó¼Ö¾ìÅù
Áí¸Í¿ô¡§Ìó1050¸Í
³¬¿ô¡§ÃϾå51³¬¡¢Ãϲ¼2³¬
¹â¤µ¡§Ìó190m
¹½Â¤¡§Å´¹ü¤¡¢Å´¶Ú¥³¥ó¥¯¥ê¡¼¥È¤
ÉßÃÏÌÌÀÑ¡§Ìó11,300Ö
·úÃÛÌÌÀÑ¡§Ìó7,100Ö
±ä¾²ÌÌÀÑ¡§Ìó165,000Ö
»ö¶È¼Ô¡§²¦»Ò±ØÁ°Ã϶è»Ô³¹ÃϺƳ«È¯½àÈ÷Áȹ硢½»Í§ÉÔÆ°»º
Àß·×¼Ô¡§¡Ý
»Ü¹©¼Ô¡§¡Ý
¹©´ü¡§2027ǯÅÙÃ幩¡Á2033ǯÅÙ½×¹©Í½Äê¡Ê²òÂι©»ö´Þ¤à¡Ë
ʪ·ï³µÍסÊÅìÅï¡Ë
¢£Êª·ï³µÍסÊÅìÅï¡Ë¢£
»ö¶È̾¡§²¦»Ò±ØÁ°ÃÏ¶èºÆ³«È¯·×²è Åì³¹¶è¡ÊÅìÅï¡Ë
½êºßÃÏ¡§ÅìµþÅÔË̶貦»Ò°ìÃúÌܵڤÓËÙÁ¥°ìÃúÌÜÃÏÆâ
¸òÄÌ¡§JRµþÉÍÅìËֲ̡¦»Ò¡×±Ø
¡¡¡¡¡¡Åìµþ¥á¥È¥íÆîËÌÀþ¡Ö²¦»Ò¡×±Ø
¡¡¡¡¡¡ÅÔÅŹÓÀîÀþ¡Ö²¦»Ò±ØÁ°¡×Ääα½ê
ÍÑÅÓ¡§½»Âð¡¢¾¦¶È¡¢¥Û¥Æ¥ë¡¢»ö̳½ê¡¢Ãó¼Ö¾ìÅù
Áí¸Í¿ô¡§Ìó950¸Í
³¬¿ô¡§ÃϾå51³¬¡¢Ãϲ¼2³¬
¹â¤µ¡§Ìó190m
¹½Â¤¡§Å´¹ü¤¡¢Å´¶Ú¥³¥ó¥¯¥ê¡¼¥È¤
ÉßÃÏÌÌÀÑ¡§Ìó6,300Ö
·úÃÛÌÌÀÑ¡§Ìó3,000Ö
±ä¾²ÌÌÀÑ¡§Ìó105,000Ö
»ö¶È¼Ô¡§²¦»Ò±ØÁ°Ã϶è»Ô³¹ÃϺƳ«È¯½àÈ÷Áȹ硢½»Í§ÉÔÆ°»º
Àß·×¼Ô¡§¡Ý
»Ü¹©¼Ô¡§¡Ý
¹©´ü¡§2027ǯÅÙÃ幩¡Á2033ǯÅÙ½×¹©Í½Äê¡Ê²òÂι©»ö´Þ¤à¡Ë
½Ðŵ
¢§ÅìµþÅԴͶɡ§´Ä¶¥¢¥»¥¹¥á¥ó¥È¡Ê2026ǯ2·î13Æü¹¹¿·¡Ë
¡Ö²¦»Ò±ØÁ°ÃÏ¶èºÆ³«È¯·×²è¡×´Ä¶±Æ¶Áɾ²ÁÄ´ºº·×²è½ñ
¢¨ ¥¦¥§¥Ö¸øÉ½¤ÏÎáÏÂ8ǯ2·î13Æü¤«¤éƱǯ3·î31Æü¤Þ¤Ç
¢§Ë̶衧ÅԻԷײ衦¤Þ¤Á¤Å¤¯¤ê¡Ê2026ǯ1·î31Æü¹¹¿·¡Ë
²¦»Ò¶¦ÁϲñµÄ
- ¥«¥Æ¥´¥ê
- Ë̶è







