
³°´Ñ´°À®Í½ÁÛCG[½Ðŵ¡§¸ø¼°HP]
¡¡ÀÖ±©¤Îʬ¾ù¥¿¥ï¥Þ¥ó¡Ö¥×¥é¥¦¥É¥¿¥ï¡¼ÀÖ±©¡×(ÃϾå32³¬¡¢¹â¤µ126m)¤Î¸ø¼°HP¤¬¥ª¡¼¥×¥ó¤·¤Þ¤·¤¿¡£·úÀßÃϤϥÀ¥¤¥¨¡¼ÀÖ±©Å¹À×ÃÏ¡¢Çä¼ç¤ÏÌî¼ÉÔÆ°»ºÃ±ÆÈ¤Ç2026ǯ7·îÃæ½Ü¤«¤éÈÎÇ䳫»ÏͽÄê¤È¤Ê¤Ã¤Æ¤¤¤Þ¤¹¡£¤³¤Îµ»ö¤Ç¤ÏƱ¥¿¥ï¥Þ¥ó¤Î³µÍפä·úÀß¾õ¶·¡Ê2026ǯ1·î31Æü»þÅÀ¡Ë¡¢ÃÏ¿ÞÅù¤òºÜ¤»¤Æ¤¤¤Þ¤¹¡£
¥×¥é¥¦¥É¥¿¥ï¡¼ÀÖ±©¤Ë¤Ä¤¤¤Æ

³°´Ñ´°À®Í½ÁÛCG[½Ðŵ¡§¸ø¼°HP]
¡¡¡Ö¥×¥é¥¦¥É¥¿¥ï¡¼ÀÖ±©¡×¤ÏÎ٤˰Üž¤·¤¿¥À¥¤¥¨¡¼ÀÖ±©Å¹À×ÃϤΥ¿¥ï¡¼¥Þ¥ó¥·¥ç¥ó¤Ç¡¢µ¬ÌϤÏÃϾå32³¬¡¢Ãϲ¼1³¬¡¢¹â¤µ126.0m¡ÊÅã²°´Þ¤à¡Ë¡¢ÉßÃÏÌÌÀÑ4,388.76Ö¡¢·úÃÛÌÌÀÑ3,700Ö¡¢±ä¾²ÌÌÀÑ3Ëü3200Ö¡¢Áí¸Í¿ô325¸Í¤È¤Ê¤Ã¤Æ¤¤¤Þ¤¹¡£·úÃۼ硦Çä¼ç¤ÏÌî¼ÉÔÆ°»º¡¢Àß·×¼Ô¡¦»Ü¹©¼Ô¤ÏÁ°ÅÄ·úÀß¹©¶È¤Ç2027ǯ11·î²¼½Ü½×¹©¡¢2028ǯ3·î²¼½Ü¤ÎÆþµï³«»ÏͽÄê¤Ç¤¹¡£
¡¡2026ǯ7·îÃæ½Ü¤«¤éÈÎÇ䳫»ÏͽÄê¤Ç¡¢ÈÎÇäÂоݤȤʤë305¸Í¤Î´Ö¼è¤ê¤Ï1LDK¡Á3LDK¡¢ÀìÍÌÌÀѤÏ35.28Ö¡Á127.06Ö¡¢¥Ð¥ë¥³¥Ë¡¼ÌÌÀѤÏ4.06Ö¡Á21.89֤ȤʤäƤ¤¤Þ¤¹¡£

¥Õ¥í¥¢ÃÇÌÌ¿Þ[½Ðŵ¡§¸ø¼°HP]
¡¡Ë̦¤Î¥¨¥ó¥È¥é¥ó¥¹¤ÏÀÖ±©¥¹¥º¥é¥óÄ̤꾦ʳ¹¤ËÌ̤·¤Æ¤ª¤ê¡¢1³¬¤Ë¤Ï¥¹¡¼¥Ñ¡¼¥Þ¡¼¥±¥Ã¥È¡¢2³¬¤Ï¶¦ÍѶõ´Ö¤È²°¾å¥Æ¥é¥¹¡¢18³¬¤Ë¤Ï¥Ó¥å¡¼¥é¥¦¥ó¥¸¤¬ÇÛÃÖ¤µ¤ì¤Þ¤¹¡£¤Þ¤¿¡¢2³¬¡¢10³¬¡¢21³¬¡¢30³¬¤Ë¤ÏËɺÒÁҸˤ¬ÇÛÃÖ¤µ¤ì¤Þ¤¹¡£
¡¡Æ»Ï©¤ò¶´¤ó¤ÀÎÙ¤ÎÉßÃϤÏÃϾå2³¬¡¢¹â¤µ25.5m¡¢ÉßÃÏÌÌÀÑ708.96Ö¡¢·úÃÛÌÌÀÑ500Ö¡¢±ä¾²ÌÌÀÑ1,400֤Υ¿¥ï¡¼¥Ñ¡¼¥¥ó¥°¤Ë¤Ê¤ê¤Þ¤¹¡£

ÉßÃÏÇÛÃÖ¿Þ[½Ðŵ¡§¸ø¼°HP]
¡¡2³¬¤Ë¤Ï¶¦Íѥ饦¥ó¥¸¥¹¥Ú¡¼¥¹¡Ê¥é¥¦¥ó¥¸¥¨¥ê¥¢¡¢¥ï¡¼¥¯¥¨¥ê¥¢¡¢¥ê¡¼¥Ç¥£¥ó¥°¥¨¥ê¥¢¡¢¥¥Ã¥º¥¨¥ê¥¢¡Ë¡¢¥¹¥¿¥Ç¥£¥ë¡¼¥à¡¢¥²¥¹¥È¥ë¡¼¥à¡¢¤½¤·¤Æ¥Æ¥é¥¹¤¬ÇÛÃÖ¤µ¤ì¤Þ¤¹¡£

³°´Ñ´°À®Í½ÁÛCG[½Ðŵ¡§¸ø¼°HP]
¡¡ÀÖ±©¥¹¥º¥é¥óÄ̤꾦ʳ¹¤ËÌ̤·¤¿ÄãÁØÉô¤Î´°À®Í½ÁۿޤǤ¹¡£1³¬¤ËÆþ¤ë¥¹¡¼¥Ñ¡¼¥Þ¡¼¥±¥Ã¥È¤Ë¾¦Å¹³¹¤«¤é¹Ô¤±¤ë¤è¤¦¤Ë¤Ê¤ê¤Þ¤¹¡£

³°´Ñ´°À®Í½ÁÛCG[½Ðŵ¡§¸ø¼°HP]
¡¡¥¨¥ó¥È¥é¥ó¥¹¤ÏÀÖ±©¥¹¥º¥é¥óÄ̤꾦ʳ¹¤ËÌ̤·¤¿¾ì½ê¤ËÇÛÃÖ¤µ¤ì¤Þ¤¹¡£

¥¨¥ó¥È¥é¥ó¥¹¥Û¡¼¥ë´°À®Í½ÁÛCG[½Ðŵ¡§¸ø¼°HP]
¡¡¥¨¥ó¥È¥é¥ó¥¹¥Û¡¼¥ë¤Ï2ÁØ¿á¤È´¤±¤Î¶õ´Ö¤È¤Ê¤ê¤Þ¤¹¡£

2³¬¶¦Íѥ饦¥ó¥¸¥¹¥Ú¡¼¥¹´°À®Í½ÁÛCG[½Ðŵ¡§¸ø¼°HP]
¡¡2³¬¤ËÇÛÃÖ¤µ¤ì¤ë¶¦Íѥ饦¥ó¥¸¥¹¥Ú¡¼¥¹¤Ï¡¢4¤Ä¤Î¥é¥¦¥ó¥¸¤òÏ¢¤Í¤¿±ü¹ÔÌó40m¤Î¶õ´Ö¤È¤Ê¤ê¡¢¥é¥¦¥ó¥¸¥¨¥ê¥¢¡¢¥ï¡¼¥¯¥¨¥ê¥¢¡¢¥ê¡¼¥Ç¥£¥ó¥°¥¨¥ê¥¢¡¢¥¥Ã¥º¥¨¥ê¥¢¤¬ÇÛÃÖ¤µ¤ì¤Þ¤¹¡£

¥Ó¥å¡¼¥é¥¦¥ó¥¸´°À®Í½ÁÛCG[½Ðŵ¡§¸ø¼°HP]
¡¡18³¬ÆîÅ즤ËÇÛÃÖ¤µ¤ì¤ë¥Ó¥å¡¼¥é¥¦¥ó¥¸¤Î´°À®Í½ÁۿޤǤ¹¡£»öÁ°Í½Ìó¤Ë¤è¤ê¥Ñ¡¼¥Æ¥£¥ë¡¼¥à¤È¤·¤Æ¤âÍøÍѤǤ¤ë¤è¤¦¤Ë¤Ê¤ê¤Þ¤¹¡£
´Ö¼è¤ê¿Þ

B¥¿¥¤¥×[½Ðŵ¡§¸ø¼°HP]
¡¡B¥¿¥¤¥×¤Î´Ö¼è¤ê¿Þ¤Ç¤¹¡£´Ö¼è¤ê¤Ï2LDK¡¢ÀìÍÌÌÀѤÏ53.90Ö¡¢¥Ð¥ë¥³¥Ë¡¼ÌÌÀѤÏ12.49֤ȤʤäƤ¤¤Þ¤¹¡£

C¥¿¥¤¥×[½Ðŵ¡§¸ø¼°HP]
¡¡C¥¿¥¤¥×¤Î´Ö¼è¤ê¿Þ¤Ç¤¹¡£´Ö¼è¤ê¤Ï3LDK+WIC¡¢ÀìÍÌÌÀѤÏ67.00Ö¡¢¥Ð¥ë¥³¥Ë¡¼ÌÌÀѤÏ12.00Ö¡¢¥µ¡¼¥Ó¥¹¥¹¥Ú¡¼¥¹ÌÌÀѤÏ2.89֤ȤʤäƤ¤¤Þ¤¹¡£

F¥¿¥¤¥×[½Ðŵ¡§¸ø¼°HP]
¡¡F¥¿¥¤¥×¤Î´Ö¼è¤ê¿Þ¤Ç¤¹¡£´Ö¼è¤ê¤Ï3LDK+N+2WIC+SIC¡¢ÀìÍÌÌÀѤÏ93.26Ö¡¢¥Ð¥ë¥³¥Ë¡¼ÌÌÀѤÏ12.21Ö¡¢¥µ¡¼¥Ó¥¹¥¹¥Ú¡¼¥¹ÌÌÀѤÏ3.51֤ȤʤäƤ¤¤Þ¤¹¡£

PD¥¿¥¤¥×[½Ðŵ¡§¸ø¼°HP]
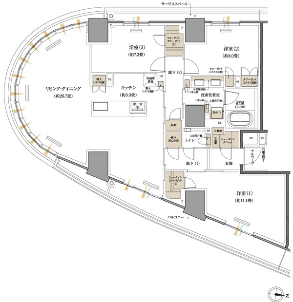
¡¡¥×¥ì¥ß¥¢¥à¥×¥é¥ó(31³¬¡¦32³¬)¤È¤Ê¤ëPD¥¿¥¤¥×¤Î´Ö¼è¤ê¿Þ¤Ç¤¹¡£´Ö¼è¤ê¤Ï3LDK+N+2WIC+SIC¡¢ÀìÍÌÌÀѤÏ127.06Ö¡¢¥Ð¥ë¥³¥Ë¡¼ÌÌÀѤÏ15.78Ö¡¢¥µ¡¼¥Ó¥¹¥¹¥Ú¡¼¥¹ÌÌÀѤÏ6.17֤ȤʤäƤ¤¤Þ¤¹¡£
°ÌÃÖ¿Þ

°ÌÃÖ¿Þ[½Ðŵ¡§¸ø¼°HP]
¡¡·úÀßÃϤÏÀÖ±©±Ø¤ÎÅ즤ÇÅÌÊâ6ʬ¡£ÀÖ±©¥¹¥º¥é¥óÄ̤꾦ʳ¹¤ÈÀÖ±©¸ø±à¤Ë¶´¤Þ¤ì¡¢¤½¤·¤ÆÀÖ±©´äÊ¥Ãæ³Ø¹»¤ËÎÙÀܤ·¤¿ÉßÃϤȤʤäƤ¤¤Þ¤¹¡£

ÀÖ±©¥¹¥º¥é¥óÄ̤꾦ʳ¹¥Þ¥Ã¥×[½Ðŵ¡§¸ø¼°HP]
¡¡ÆîË̤˺ÙŤ¤ÉßÃϤȤʤäƤ¤¤Þ¤¹¤¬¡¢¥¿¥ï¥Þ¥óËÜÂΤϾ¦Å¹³¹¤ËÌ̤·¤¿Ë̦¤ËÇÛÃÖ¤µ¤ì¤Þ¤¹¡£
·úÀß¾õ¶·

¡¡2026ǯ1·î31Æü¤ËÀÖ±©¥¹¥º¥é¥óÄ̤꾦ʳ¹¤«¤é»£±Æ¤·¤¿¡Ö¥×¥é¥¦¥É¥¿¥ï¡¼ÀÖ±©¡×(ÃϾå32³¬¡¢¹â¤µ126m)¤Î·úÀßÃϤǤ¹¡£¶íÂι©»ö¤¬»Ï¤Þ¤Ã¤Æ¤ª¤ê¡¢1³¬Éôʬ¤ÎÃ줬¸«¤¨¤Æ¤¤¤Þ¤·¤¿¡£

¡¡ÆîË̤˺ÙŤ¤ÉßÃϤο¿¤óÃæ¤¢¤¿¤ê¤«¤é»£±Æ¡£¤³¤Á¤é¤ÎË̦¤Ë¥¿¥ï¥Þ¥óËÜÂΤ¬ÇÛÃÖ¤µ¤ì¤Þ¤¹¡£

¡¡ÀÖ±©¸ø±àÁ°¤È¤Ê¤ëÆîÀ¾Â¦¤«¤é»£±Æ¡£·úÀßÃϤϥÀ¥¤¥¨¡¼ÀÖ±©Å¹À×ÃϤǤ¹¡£

¡¡Æî¦¤Î¥²¡¼¥È¤¬³«¤¤¤Æ¤¤¤ÆÃæ¤òÇÁ¤¯¤³¤È¤¬¤Ç¤¤Þ¤·¤¿¡£±ü¤ÎÅ´¶Ú¤¬¸«¤¨¤Æ¤¤¤ë¤È¤³¤í¤¬¥¿¥ï¥Þ¥óËÜÂΤηúÀßÃϤǤ¹¡£

¡¡ÆîÅ즤«¤é»£±Æ¡£Çظå¤ÎÈľõ¤Î¥¿¥ï¡¼¥Þ¥ó¥·¥ç¥ó¤Ï¡Ö¥×¥é¥¦¥É¥·¥Æ¥£ÀÖ±©¡×(ÃϾå24³¬¡¢¹â¤µ76.39m)¤Ç¡¢¤³¤Î¥¿¥ï¥Þ¥ó¤ÎÆî¦¤Îį˾¤ò¼ÙË⤷¤Ê¤¤°ÌÃ֤ˡ֥ץ饦¥É¥¿¥ï¡¼ÀÖ±©¡×¤ÏÇÛÃÖ¤µ¤ì¤Þ¤¹¡£

¡¡¤½¤Î¡Ö¥×¥é¥¦¥É¥·¥Æ¥£ÀÖ±©¡×¤ÎÆî¦¤Ë¤Ï¹â¤µ25.5m¤Î¥¿¥ï¡¼¥Ñ¡¼¥¥ó¥°¤¬·úÀߤµ¤ì¤Þ¤¹¡£¤Á¤Ê¤ß¤Ë¸µ¡¹¤³¤³¤Ë¤Ï¥À¥¤¥¨¡¼¤Î¥¿¥ï¡¼¥Ñ¡¼¥¥ó¥°¤¬¤¢¤ê¤Þ¤·¤¿¡£
ÃÏ¿Þ
ʪ·ï³µÍ×

¡¡·úÃ۷ײè¤Î¤ªÃΤ餻¤Ç¤¹¡£
¢£Êª·ï³µÍ×¢£
̾¾Î¡§¥×¥é¥¦¥É¥¿¥ï¡¼ÀÖ±©
»ö¶È̾¡§(²¾¾Î)ÀÖ±©ÆóÃúÌܶ·×²è AÉßÃÏ
½êºßÃÏ¡§ÅìµþÅÔË̶èÀÖ±©ÆóÃúÌÜ3ÈÖ21¡¢23(ÃÏÈÖ¡Ë
¸òÄÌ¡§JR³ÆÀþ ¡ÖÀÖ±©¡×±Ø ÅÌÊâ6ʬ
¡¡¡¡¡¡Åìµþ¥á¥È¥íÆîËÌÀþ¡¢ºë¶Ì¹â®Ŵƻ ¡ÖÀÖ±©´äÊ¥¡×±Ø ÅÌÊâ8ʬ
¡¡¡¡¡¡Åìµþ¥á¥È¥íÆîËÌÀþ ¡Ö»ÖÌÐ¡×±Ø ÅÌÊâ10ʬ
ÍÑÅÓ¡§¶¦Æ±½»Âð¡Ê°ìÉôŹÊÞ¡Ë
Áí¸Í¿ô¡§325¸Í¡ÊÊ罸Âоݳ°½»¸Í20¸Í¤ò´Þ¤à¡Ë
³¬¿ô¡§ÃϾå32³¬¡¢Ãϲ¼1³¬¡Ê°ìÉô2³¬·ú¤Æ¡Ë
¹â¤µ¡§126.0m¡ÊÅã²°´Þ¤à¡Ë
¹½Â¤¡§Å´¶Ú¥³¥ó¥¯¥ê¡¼¥È¡Ê°ìÉôÅ´¹ü¤¡Ë
´ðÁù©Ë¡¡§¹º´ðÁÃ
ÉßÃÏÌÌÀÑ¡§4,388.76Ö
·úÃÛÌÌÀÑ¡§3,700Ö
±ä¾²ÌÌÀÑ¡§33,200Ö
·úÃۼ硧Ìî¼ÉÔÆ°»º
Çä¼ç¡§Ìî¼ÉÔÆ°»º
Àß·×¼Ô¡§Á°ÅÄ·úÀß¹©¶È
»Ü¹©¼Ô¡§Á°ÅÄ¡¦¥µ¥à¥¹¥óʪ»ºÆÃÄê·úÀß¶¦Æ±´ë¶ÈÂÎ
¹©´ü¡§2024ǯ9·î1ÆüÃ幩¡Á2027ǯ11·î²¼½Ü½×¹©Í½Äê
Æþµï¡§2028ǯ3·î²¼½ÜͽÄê
½Ðŵ
¢§¸ø¼°HP¡§¥×¥é¥¦¥É¥¿¥ï¡¼ÀÖ±©
https://www.proud-web.jp/mansion/b115490/
- ¥«¥Æ¥´¥ê
- Ë̶è







