
¡¡²£¿Ü²ìÃæ±û±ØÄ¾·ë¤ÎºÆ³«È¯¡Ö¼ã¾¾Ä®£±ÃúÌÜÃ϶èÂè°ì¼ï»Ô³¹ÃϺƳ«È¯»ö¶È¡×(ÃϾå33³¬¡¢¹â¤µ130.26m)¤Î·úÀßÃϤǤ¹¡£2026ǯ1·î25Æü¤Ë»£±Æ¤·¤Þ¤·¤¿¡£Æ±ºÆ³«È¯¤ÏÄãÁØÉô¤Ë¾¦¶È»ÜÀߤȵþÉ͵޹ÔÅÅÅ´¤¬»ö¶È¼Ô¤È¤Ê¤ë¥Û¥Æ¥ë¤¬Æþ¤ê¡¢Ãæ¹âÁØÉô¤¬Âçµþ¤Ë¤è¤ë¥¿¥ï¡¼¥Þ¥ó¥·¥ç¥ó¤È¤Ê¤ê¤Þ¤¹¡£Æ±ºÆ³«È¯¤Ï2026ǯ1·î21Æü¤Ëµ¯¹©¼°¤¬¼¹¤ê¹Ô¤ï¤ìÃ幩¤·¤Æ¤¤¤Þ¤¹¡£¤³¤Îµ»ö¤Ç¤ÏƱºÆ³«È¯¤Î³µÍפä·úÀß¾õ¶·¡¢ÃÏ¿ÞÅù¤òºÜ¤»¤Æ¤¤¤Þ¤¹¡£
¼ã¾¾Ä®£±ÃúÌÜÃ϶è¤Ë¤Ä¤¤¤Æ

´°À®Í½ÁÛ¿Þ[½Ðŵ¡§µþÉ͵޹ÔÅÅÅ´]
¡¡¡Ö¼ã¾¾Ä®£±ÃúÌÜÃ϶èÂè°ì¼ï»Ô³¹ÃϺƳ«È¯»ö¶È¡×¤Ï¥Ú¥Ç¥¹¥È¥ê¥¢¥ó¥Ç¥Ã¥¤Ç²£¿Ü²ìÃæ±û±Ø¤Ëľ·ë¤·¤Æ¤¤¤¿¡Ö²£¿Ü²ì¥×¥é¥¤¥à¡×À×ÃϤκƳ«È¯¤Ç¡¢µ¬ÌϤÏÃϾå33³¬¡¢Åã²°1³¬¡¢Ãϲ¼1³¬¡¢¹â¤µ130.26m¡¢ÉßÃÏÌÌÀÑ3,445.93Ö¡¢·úÃÛÌÌÀÑ3,010.34Ö¡¢±ä¾²ÌÌÀÑ4Ëü7255.44֤Ȥʤê¤Þ¤¹¡£
¡¡·úÃÛ¼ç¤Ï¼ã¾¾Ä®£±ÃúÌÜÃ϶è»Ô³¹ÃϺƳ«È¯Áȹç¡Ê»²²ÃÁȹç°÷¡§Âçµþ¡Ë¡¢À߷׼Ԥϥ¢¡¼¥ë¡¦¥¢¥¤¡¦¥¨¡¼¡¢»Ü¹©¼Ô¤Ï¸ÍÅÄ·úÀߤǹ©´ü¤Ï2026ǯ1·î21ÆüÃ幩¡¢2029ǯ5·î31Æü¤Î½×¹©Í½Äê¤Ç¤¹¡£

»ÜÀßÃÇÌÌÌϼ°¿Þ[½Ðŵ¡§µþÉ͵޹ÔÅÅÅ´]
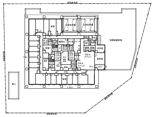
¡¡¥Õ¥í¥¢¹½À®¤ÏÃϲ¼1³¬¤¬Ãó¼Ö¾ì¡ÊÌó2,533Ö¡Ë¡¢1¡Á4³¬¤¬Å¹ÊÞ¡ÊÌó7,209Ö¡Ë¡¢6¡Á10³¬¤¬¥Û¥Æ¥ë¡ÊÌó3,599Ö¡Ë¡¢5³¬¡¢11¡Á33³¬¤¬½»Âð¡ÊÌó25,790Ö¡§2LDK¤¬86¸Í¡¢3LDK¤¬187¸Í¡Ë¤È¤Ê¤ê¤Þ¤¹¡£
¡¡¥Û¥Æ¥ë¤Î»ö¶È¼Ô¤ÏµþÉ͵޹ÔÅÅÅ´¤Ç¡ÖµþµÞEX¥¤¥ó²£¿Ü²ìÃæ±û±ØÁ°¡Ê²¾¾Î¡Ë¡×¤¬½ÐŹͽÄê¤È¤Ê¤Ã¤Æ¤ª¤ê¡¢¶¦Æ±½»Âð¤Î»ö¶È¼Ô¤ÏÂçµþ¤È¤Ê¤Ã¤Æ¤¤¤Þ¤¹¡£

ÃÇÌÌ¿Þ[½Ðŵ¡§²£¿Ü²ì»Ô]
¡¡¾ÜºÙ¤ÊÃÇÌ̿ޤǤ¹¡£½»ÂðÉô¤Ï¤É¤Î¥Õ¥í¥¢¤â³¬¹â¤¬3.3m¤È¤Ê¤Ã¤Æ¤¤¤Þ¤¹¡£

ÃÇÌÌ¿Þ[½Ðŵ¡§²£¿Ü²ì»Ô]
¡¡2³¬Éôʬ¤Ç¤Ï¥Ú¥Ç¥¹¥È¥ê¥¢¥ó¥Ç¥Ã¥¤Ç²£¿Ü²ìÃæ±û±Ø¤ËÀܳ¤·¤Þ¤¹¡£

²°¾å¹¾ì¤Î¥¤¥á¡¼¥¸[½Ðŵ¡§µþÉ͵޹ÔÅÅÅ´]
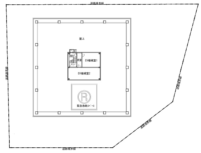
¡¡½»Âð¤Î¥í¥Ó¡¼¤È·Ò¤¬¤ë5³¬Éôʬ¤Ë¤Ï²°¾å¹¾ì¤¬À°È÷¤µ¤ì¤Þ¤¹¡£
Ê¿ÌÌ¿Þ

Ãϲ¼1³¬Ê¿ÌÌ¿Þ[½Ðŵ¡§²£¿Ü²ì»Ô]
¡¡Ê¿Ì̿ޤǤ¹¡£

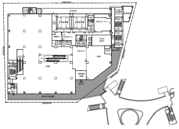
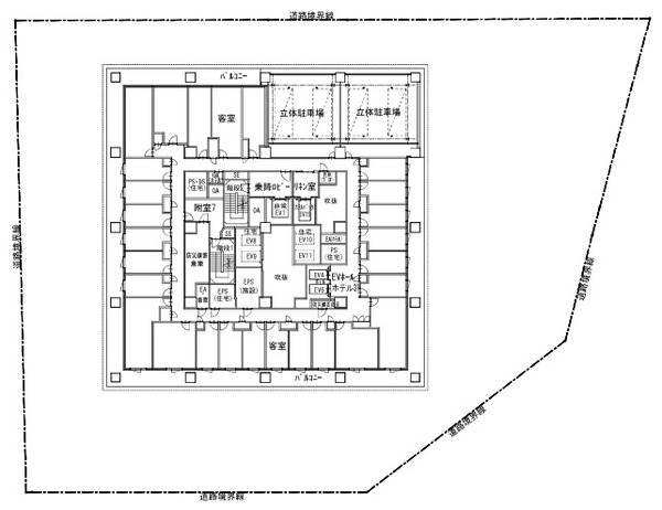
1³¬Ê¿ÌÌ¿Þ[½Ðŵ¡§²£¿Ü²ì»Ô]
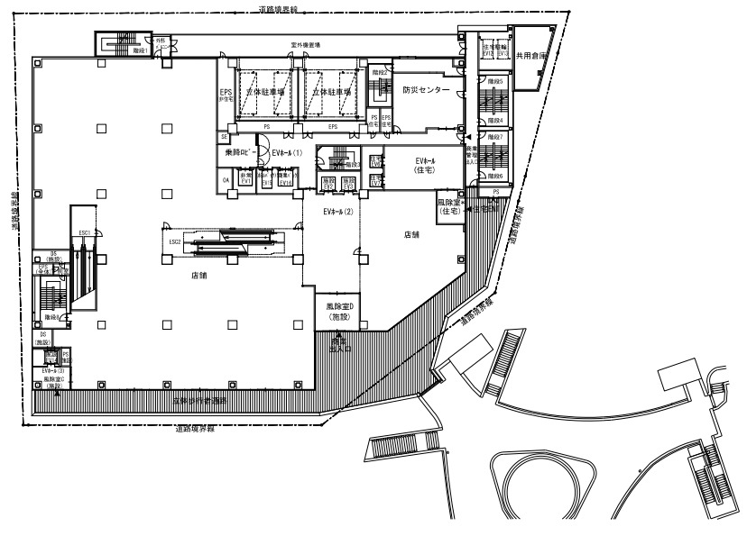
¡¡ÉßÃÏË̦¤Ë¥¿¥ï¡¼¥Ñ¡¼¥¥ó¥°¤ÈÃϲ¼Ãó¼Ö¾ì¤Î½ÐÆþ¸ý¤¬ÀßÃÖ¤µ¤ì¤Þ¤¹¡£

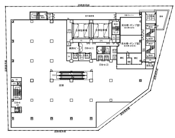
2³¬Ê¿ÌÌ¿Þ[½Ðŵ¡§²£¿Ü²ì»Ô]
¡¡2³¬¤Ç²£¿Ü²ìÃæ±û±Ø¤Ë·Ò¤¬¤ë¥Ú¥Ç¥¹¥È¥ê¥¢¥ó¥Ç¥Ã¥¡ÊY¥Ç¥Ã¥¡Ë¤ËÀܳ¤·¤Þ¤¹¡£

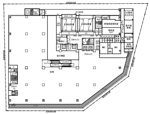
3³¬Ê¿ÌÌ¿Þ[½Ðŵ¡§²£¿Ü²ì»Ô]

4³¬Ê¿ÌÌ¿Þ[½Ðŵ¡§²£¿Ü²ì»Ô]
¡¡4³¬¤Þ¤ÇŹÊÞ¥Õ¥í¥¢¤È¤Ê¤ê¤Þ¤¹¡£

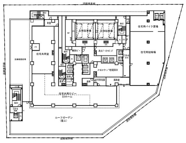
5³¬Ê¿ÌÌ¿Þ[½Ðŵ¡§²£¿Ü²ì»Ô]
¡¡5³¬¤Ë¤Ï½»Âð¤Î¥í¥Ó¡¼¤È²°¾å¹¾ì¡¢¶¦ÍÑ»ÜÀß¡¢ÃóÎØ¾ì¤Ê¤É¤¬ÇÛÃÖ¤µ¤ì¤Þ¤¹¡£½»Âð¥Õ¥í¥¢¤Ë¤Ï¤³¤Î¥í¥Ó¡¼³¬·Ðͳ¤·¤Æ¹Ô¤¯¤³¤È¤Ë¤Ê¤ê¤Þ¤¹¡£

6³¬Ê¿ÌÌ¿Þ[½Ðŵ¡§²£¿Ü²ì»Ô]
¡¡6³¬¤«¤é¤Ï¥Û¥Æ¥ë¡ÖµþµÞEX¥¤¥ó²£¿Ü²ìÃæ±û±ØÁ°¡Ê²¾¾Î¡Ë¡×¤Ë¤Ê¤ê¤Þ¤¹¡£

7¡Á10³¬Ê¿ÌÌ¿Þ[½Ðŵ¡§²£¿Ü²ì»Ô]
¡¡10³¬¤Þ¤Ç¤¬¥Û¥Æ¥ë¤ÎµÒ¼¼¤È¤Ê¤ê¤Þ¤¹¡£

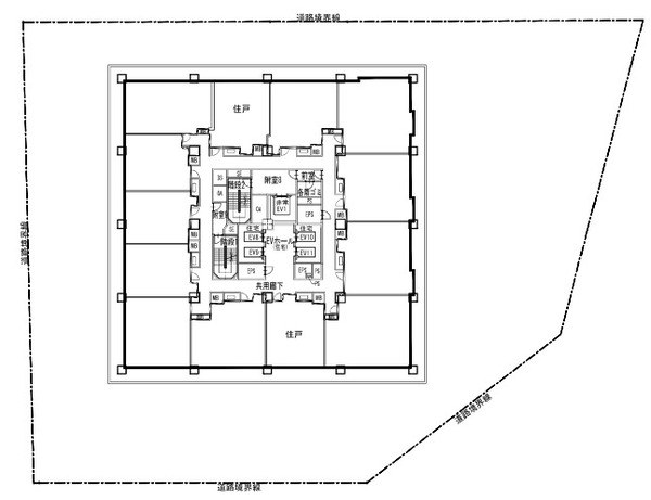
11¡Á14³¬Ê¿ÌÌ¿Þ[½Ðŵ¡§²£¿Ü²ì»Ô]
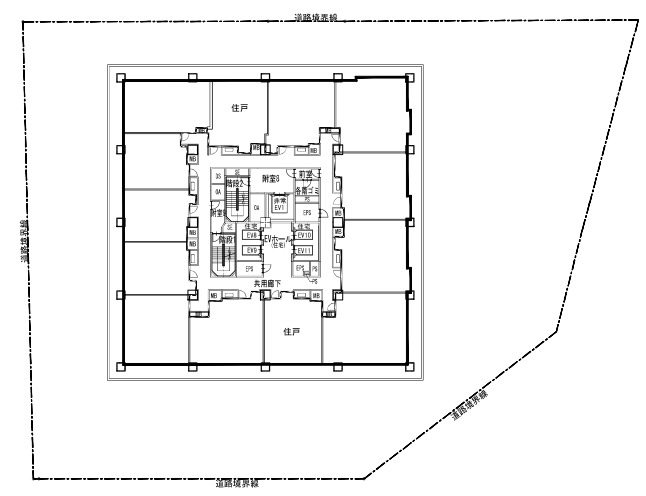
¡¡11³¬¤«¤é¤¬½»Âð¥Õ¥í¥¢¤Ç¡¢ËÌÅì³Ñ¤Î14³¬¤Î¹â¤µ¤Þ¤Ç¤¬¥¿¥ï¡¼¥Ñ¡¼¥¥ó¥°¤È¤Ê¤ê¤Þ¤¹¡£

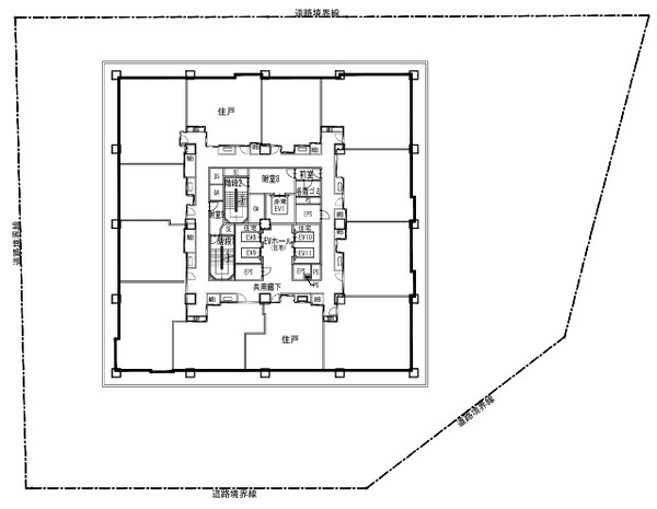
15¡Á19³¬Ê¿ÌÌ¿Þ[½Ðŵ¡§²£¿Ü²ì»Ô]
¡¡15³¬¤«¤é¤¬360ÅÙ½»Âð¥Õ¥í¥¢¤Ë¤Ê¤ê¤Þ¤¹¡£

20¡Á31³¬Ê¿ÌÌ¿Þ[½Ðŵ¡§²£¿Ü²ì»Ô]

32¡Á33³¬Ê¿ÌÌ¿Þ[½Ðŵ¡§²£¿Ü²ì»Ô]
¡¡¹âÁس¬¤Ë¹Ô¤¯¤ËÏ¢¤ì¤ÆÉô²°¤Ï¹¤¯¤Ê¤ê¤Þ¤¹¡£

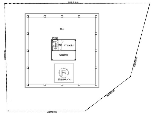
²°¾å³¬Ê¿ÌÌ¿Þ[½Ðŵ¡§²£¿Ü²ì»Ô]
°ÌÃÖ¿Þ

°ÌÃÖ¿Þ[½Ðŵ¡§²£¿Ü²ì»Ô]
¡¡·úÀßÃϤϵþµÞËÜÀþ¡Ö²£¿Ü²ìÃæ±û¡×±Ø¤ÎÌܤÎÁ°¤Ç¥Ú¥Ç¥¹¥È¥ê¥¢¥ó¥Ç¥Ã¥¤Ë¤è¤Ã¤Æ±ØÄ¾·ë¤Ë¤Ê¤ê¤Þ¤¹¡£

Êâ¹Ô¼Ô¥Í¥Ã¥È¥ï¡¼¥¯¤Î¶¯²½[½Ðŵ¡§µþÉ͵޹ÔÅÅÅ´]
¡¡¥Ú¥Ç¥¹¥È¥ê¥¢¥ó¥Ç¥Ã¥¤Ï±Ø¤Î²þ»¥³¬¤ËÃʺ¹¤Ê¤¯·Ò¤¬¤ê¡¢¥¹¥à¡¼¥º¤Ë±Ø¤È¤Î±ýÍ褬¤Ç¤¤ë¤è¤¦¤Ë¤Ê¤ê¤Þ¤¹¡£
·úÀß¾õ¶·

¡¡2026ǯ1·î25Æü¤Ë»£±Æ¤·¤¿¡Ö¼ã¾¾Ä®£±ÃúÌÜÃ϶èÂè°ì¼ï»Ô³¹ÃϺƳ«È¯»ö¶È¡×(ÃϾå33³¬¡¢¹â¤µ130.26m)¤Î·úÀßÃϤǤ¹¡£1·î21Æü¤Ëµ¯¹©¼°¤¬¹Ô¤ï¤ì¤ÆÃ幩¤·¤Æ¤¤¤Þ¤¹¡£

¡¡À¾Â¦¤«¤é»£±Æ¡£¸½ÃϤËÀßÃÖ¤µ¤ì¤¿ºî¶ÈÆâÍÆ¤ÏÀ°ÃÏ¡¦¸½¾ìÀ°ÃÏ¡¢»ÄÅÚÈ½С¢»³Î±¹©»ö¤È¤Ê¤Ã¤Æ¤¤¤Þ¤·¤¿¡£

¡¡Ë̦¤«¤é»£±Æ¡£Çظå¤Ë¸«¤¨¤Æ¤¤¤ë¥¿¥ï¡¼¥Þ¥ó¥·¥ç¥ó¤Ï¡Ö¥µ¥ó¥³¥ê¡¼¥Ì¥¿¥ï¡¼²£¿Ü²ìÃæ±û±ØÁ°¡×(ÃϾå26³¬¡¢¹â¤µ88.78m)¤Ç¤¹¡£

¡¡Å즤«¤é»£±Æ¡£±ü¤Î¥¿¥ï¡¼¥Þ¥ó¥·¥ç¥ó¤Ï²£¿Ü²ì»Ô¤ÇºÇ¤â¹â¤¤¡Ö¥¶¡¦¥¿¥ï¡¼²£¿Ü²ìÃæ±û¡×(ÃϾå38³¬¡¢¹â¤µÌó143m)¤Ç¤¹¡£

¡¡¤³¤³¤Ë·úÀߤµ¤ì¤ë¡Ö¼ã¾¾Ä®£±ÃúÌÜÃ϶èÂè°ì¼ï»Ô³¹ÃϺƳ«È¯»ö¶È¡×¤¬²£¿Ü²ì»Ô¤Ç2ÈÖÌܤι⤵¤Ë¤Ê¤ê¤Þ¤¹¡£
ÃÏ¿Þ
ʪ·ï³µÍ×

¡¡ÆÃÄê·úÃ۹԰٤ΤªÃΤ餻ÈĤǤ¹¡£
¢£Êª·ï³µÍ×¢£
»ö¶È̾¡§¼ã¾¾Ä®£±ÃúÌÜÃ϶èÂè°ì¼ï»Ô³¹ÃϺƳ«È¯»ö¶È
½êºßÃÏ¡§¿ÀÆàÀ²£¿Ü²ì»Ô¼ã¾¾Ä®£±ÃúÌÜ100ÈÖ¡ÊÃÏÈÖ¡Ë
¸òÄÌ¡§µþµÞËÜÀþ¡Ö²£¿Ü²ìÃæ±û¡×±Ø
ÍÑÅÓ¡§Å¹ÊÞ¡¢¥Û¥Æ¥ë¡ÊµþµÞEX¥¤¥ó²£¿Ü²ìÃæ±û±ØÁ°¡Ê²¾¾Î¡Ë¡Ë¡¢½»Âð¡¢Ãó¼Ö¾ì
Áí¸Í¿ô¡§273¸Í
ÁíµÒ¼¼¿ô¡§129¼¼
³¬¿ô¡§ÃϾå33³¬¡¢Åã²°1³¬¡¢Ãϲ¼1³¬
¹â¤µ¡§130.26m
¹½Â¤¡§Å´¶Ú¥³¥ó¥¯¥ê¡¼¥È¤ °ìÉôÅ´¹ü¤
ÉßÃÏÌÌÀÑ¡§3,445.93Ö
·úÃÛÌÌÀÑ¡§3,010.34Ö
±ä¾²ÌÌÀÑ¡§47,255.44Ö
·úÃۼ硧¼ã¾¾Ä®£±ÃúÌÜÃ϶è»Ô³¹ÃϺƳ«È¯Áȹç
»²²ÃÁȹç°÷¡§Âçµþ
Àß·×¼Ô¡§¥¢¡¼¥ë¡¦¥¢¥¤¡¦¥¨¡¼
»Ü¹©¼Ô¡§¸ÍÅÄ·úÀß
¹©´ü¡§2026ǯ1·î21ÆüÃ幩¡Á2029ǯ5·î31Æü½×¹©Í½Äê
½Ðŵ
¢§µþÉ͵޹ÔÅÅÅ´¡§¥Ë¥å¡¼¥¹¥ê¥ê¡¼¥¹¡Ê2026ǯ1·î21Æü¡Ë
²£¿Ü²ìÃæ±û¡Ø¼ã¾¾Ä®1ÃúÌÜÃ϶èÂè°ì¼ï»Ô³¹ÃϺƳ«È¯»ö¶È¡Ù¤¬¤¤¤è¤¤¤è¿·ÃÛ¹©»öÃ幩¤Ø
¢§²£¿Ü²ì»Ô¡Ê2025ǯ9·î17Æü¹¹¿·¡Ë
¼ã¾¾Ä®1ÃúÌÜÃ϶è
- ¥«¥Æ¥´¥ê
- ²£¿Ü²ì»Ô







