
¡¡¥ì¥¤¥ó¥Ü¡¼¥Ö¥ê¥Ã¥¸¶á¤¯¤Îʬ¾ù¥¿¥ï¥Þ¥ó¡ÖCITY TOWER THE RAINBOW¡Ê¥·¥Æ¥£¥¿¥ï¡¼ ¥¶ ¥ì¥¤¥ó¥Ü¡¼¡Ë¡×(ÃϾå34³¬¡¢¹â¤µ118.98m¡Ë¤Î·úÀßÃϤǤ¹¡£2026ǯ1·î11Æü¤Ë»£±Æ¤·¤Þ¤·¤¿¡£Î٤λ°³Ñ·Á¤Î¥Ó¥ë¤Ï¡Ö¥è¥³¥½¡¼¥ì¥¤¥ó¥Ü¡¼¥¿¥ï¡¼¡×(ÃϾå23³¬¡¢¹â¤µ94.6m)¤Ç¡¢¤½¤ì¤ò±Û¤¹¹â¤µ¤Î¥¿¥ï¡¼¥Þ¥ó¥·¥ç¥ó¤Ë¤Ê¤ê¤Þ¤¹¡£¤³¤Îµ»ö¤Ç¤ÏƱ¥¿¥ï¥Þ¥ó¤Î³µÍפä·úÀß¾õ¶·¡¢ÃÏ¿ÞÅù¤òºÜ¤»¤Æ¤¤¤Þ¤¹¡£
¥·¥Æ¥£¥¿¥ï¡¼ ¥¶ ¥ì¥¤¥ó¥Ü¡¼¤Ë¤Ä¤¤¤Æ

³°´Ñ´°À®Í½ÁÛ¿Þ[½Ðŵ¡§¸ø¼°HP]
¡¡¡ÖCITY TOWER THE RAINBOW¡Ê¥·¥Æ¥£¥¿¥ï¡¼ ¥¶ ¥ì¥¤¥ó¥Ü¡¼¡Ë¡×¤Ï¥ì¥¤¥ó¥Ü¡¼¥Ö¥ê¥Ã¥¸¤Î¼çÅã¤ËºÇ¤â¶á¤¤Ê¬¾ù¥¿¥ï¥Þ¥ó¤Ç¡¢µ¬ÌϤÏÃϾå34³¬¡¢Ãϲ¼1³¬¡¢¹â¤µ118.98m¡¢ÉßÃÏÌÌÀÑ2,368.30Ö¡¢·úÃÛÌÌÀÑ1,073.91Ö¡¢±ä¾²ÌÌÀÑ2Ëü8690.27֤ȤʤäƤ¤¤Þ¤¹¡£·úÃۼ硦Çä¼ç¤Ï½»Í§ÉÔÆ°»º¡¢À߷׼ԤȻܹ©¼Ô¤ÏÀ¾¾¾·úÀߤÇ2027ǯ9·îÃæ½Ü½×¹©¡¢2028ǯ4·î²¼½Ü¤ÎÆþµï³«»ÏͽÄê¤Ç¤¹¡£

³°´Ñ´°À®Í½ÁÛ¿Þ[½Ðŵ¡§¸ø¼°HP]
¡¡Áí¸Í¿ô¤Ï264¸Í(¹¹ðÂоݳ°½»¸Í10¸Í´Þ¤à)¤Ç2026ǯ2·î²¼½Ü¤«¤éÂè2´ü3¼¡¤ÎÈÎÇ䳫»ÏͽÄê¤È¤Ê¤Ã¤Æ¤¤¤Þ¤¹¡£Æ±´ü¤â´Þ¤àº£¸å¤ÎͽÄêÈÎÇä½»¸ÍÁ´ÂΡÊ120¸Í¡Ë¤Î´Ö¼è¤ê¤Ï1LDK¡Á3LDK¡¢ÀìÍÌÌÀѤÏ42.77Ö¡Á82.05Ö¡¢¥Ð¥ë¥³¥Ë¡¼ÌÌÀѤÏ10.80Ö¡Á40.23֤ȤʤäƤ¤¤Þ¤¹¡£
¡¡¤Þ¤¿¡¢¸½ºß¤Ï10¸Í¤¬ÀèÃå½ç¼õÉÕÃæ¤Ç¡¢ÈÎÇä´Ö¼è¤ê¤Ï2LDK¡Á3LDK¡¢ÀìÍÌÌÀѤÏ56.53Ö¡Á75.89Ö¡¢¥Ð¥ë¥³¥Ë¡¼ÌÌÀѤÏ16.50Ö¡Á40.23Ö¡¢ÈÎÇä²Á³Ê¤Ï1²¯6800Ëü±ß¡Á2²¯6000Ëü±ß¤Ç¤¹¡£

ÉßÃÏÇÛÃÖ¥¤¥é¥¹¥È[½Ðŵ¡§¸ø¼°HP]
¡¡·úÀßÃϤÏ3Êý¸þ¤¬Æ»Ï©¤ËÌ̤·¤¿³ÑÃϤǡ¢Æî¦¤Ë¤¢¤ë¹¤¤ÊâÆ»Â¦¤Ë¤Ï¸ø³«¶õÃϤ¬Àߤ±¤é¤ì¤Þ¤¹¡£

¸ø³«¶õÃÏ´°À®Í½ÁÛ¿Þ[½Ðŵ¡§¸ø¼°HP]
¡¡¤½¤Î¸ø³«¶õÃϤÏÌó1,360Öµ¬ÌϤȤʤê¥Ù¥ó¥Á¤âÀßÃÖ¤µ¤ì¤Þ¤¹¡£

¥¨¥ó¥È¥é¥ó¥¹´°À®Í½ÁÛ¿Þ[½Ðŵ¡§¸ø¼°HP]
¡¡¥Ô¥í¥Æ¥£¤â¤¢¤ë¥¨¥ó¥È¥é¥ó¥¹¤Î´°À®Í½ÁۿޤǤ¹¡£

¥¨¥ó¥È¥é¥ó¥¹¥Û¡¼¥ë´°À®Í½ÁÛ¿Þ[½Ðŵ¡§¸ø¼°HP]
¡¡¥¨¥ó¥È¥é¥ó¥¹¥Û¡¼¥ë¤ÏÅ·°æ¹âÌó6m¤ÎÆóÁØ¿áÈ´¤Î¶õ´Ö¤Ë¤Ê¤ê¤Þ¤¹¡£

¥³¡¼¥Á¥¨¥ó¥È¥é¥ó¥¹´°À®Í½ÁÛ¿Þ[½Ðŵ¡§¸ø¼°HP]
¡¡¥³¡¼¥Á¥¨¥ó¥È¥é¥ó¥¹¤ÏÃϲ¼¤ËÀߤ±¤é¤ì¤Þ¤¹¡£Ãó¼Ö¾ì¤Ï¥¿¥ï¡¼¥Ñ¡¼¥¥ó¥°90Âæ(Æâ¡¢¿È¾ã¼ÔÍÑ1Âæ)¤Ç¡¢·î³Û»ÈÍÑÎÁ¤Ï5Ëü5000±ß¡Á6Ëü±ß¤È¤Ê¤Ã¤Æ¤¤¤Þ¤¹¡£
¶¦ÍÑ»ÜÀß

¥Æ¥ì¥ï¡¼¥¯¥é¥¦¥ó¥¸´°À®Í½ÁÛ¿Þ[½Ðŵ¡§¸ø¼°HP]
¡¡¶¦ÍÑ»ÜÀߤȤ·¤Æ¥Æ¥ì¥ï¡¼¥¯¥é¥¦¥ó¥¸¤¬ÀßÃÖ¤µ¤ì¤Þ¤¹¡£

¥Õ¥£¥Ã¥È¥Í¥¹¥ë¡¼¥à´°À®Í½ÁÛ¿Þ[½Ðŵ¡§¸ø¼°HP]
¡¡¶¦ÍÑ»ÜÀߤȤ·¤Æ¥Õ¥£¥Ã¥È¥Í¥¹¥ë¡¼¥à¤âÀßÃÖ¤µ¤ì¤Þ¤¹¡£

¥ª¡¼¥Ê¡¼¥º¥¹¥¤¡¼¥È´°À®Í½ÁÛ¿Þ[½Ðŵ¡§¸ø¼°HP]
¡¡¥²¥¹¥È¥ë¡¼¥à¤Î´°À®Í½ÁۿޤǤ¹¡£

¥¹¥«¥¤¥é¥¦¥ó¥¸´°À®Í½ÁÛ¿Þ[½Ðŵ¡§¸ø¼°HP]
¡¡¥¹¥«¥¤¥é¥¦¥ó¥¸¤«¤é¤Ï¥ì¥¤¥ó¥Ü¡¼¥Ö¥ê¥Ã¥¸¤ò¸«ÅϤ»¤Þ¤¹¡£

¥¹¥«¥¤¥é¥¦¥ó¥¸´°À®Í½ÁÛ¿Þ[½Ðŵ¡§¸ø¼°HP]
¡¡ÆîÅì³Ñ¤ÎÁë¤Ï½»ÂðÉô¤â´Þ¤á¤Æ¾¯¤·¼Ð¤á¤ËÇÛÃÖ¤µ¤ì¤Þ¤¹¡£
´Ö¼è¤ê¿Þ

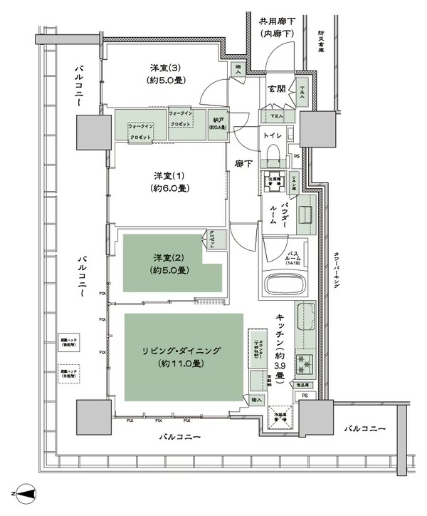
J-2¡Ê15¡Á23¡¦25¡Á33F¡Ë¥¿¥¤¥×[½Ðŵ¡§¸ø¼°HP]
¡¡J-2¡Ê15¡Á23¡¦25¡Á33F¡Ë¥¿¥¤¥×¤Î´Ö¼è¤ê¿Þ¤Ç¤¹¡£´Ö¼è¤ê¤Ï2LDK+N+WIC¡¢ÀìÍÌÌÀѤÏ56.53Ö¡¢¥Ð¥ë¥³¥Ë¡¼ÌÌÀѤÏ30.87֤ȤʤäƤ¤¤Þ¤¹¡£

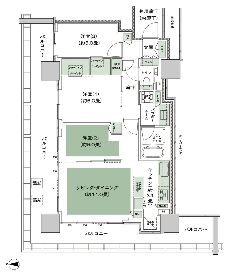
N-3¥¿¥¤¥×[½Ðŵ¡§¸ø¼°HP]
¡¡N-3¥¿¥¤¥×¤Î´Ö¼è¤ê¿Þ¤Ç¤¹¡£´Ö¼è¤ê¤Ï3LDK+N+2WIC¡¢ÀìÍÌÌÀѤÏ72.64Ö¡¢¥Ð¥ë¥³¥Ë¡¼ÌÌÀѤÏ40.23֤ȤʤäƤ¤¤Þ¤¹¡£
°ÌÃÖ¿Þ

°ÌÃÖ¿Þ[½Ðŵ¡§¸ø¼°HP]
¡¡¾ì½ê¤Ï¥ì¥¤¥ó¥Ü¡¼¥Ö¥ê¥Ã¥¸¤ÎÀ¾Â¦¤Ç°ìÈÌÆ»¤È¤æ¤ê¤«¤â¤á¤¬Ä̤ë¥ë¡¼¥×¤ÎË̦¤Ë°ÌÃÖ¤·¤Æ¤¤¤Þ¤¹¡£ºÇ´ó±Ø¤Ï¤æ¤ê¤«¤â¤á¡Ö¼Ç±º¤ÕƬ¡×±Ø¤ÇÅÌÊâ5ʬ¡¢Â¾¤Ë¤âJR»³¼êÀþ¡¦µþÉÍÅìËÌÀþ¡ÖÅÄÄ®¡×±Ø¤¬ÅÌÊâ14ʬ¡¢ÅԱϰÅÄÀþ¡¦ÀõÁðÀþ¡Ö»°Åġױؤ¬ÅÌÊâ15ʬ¤È¤Ê¤Ã¤Æ¤¤¤Þ¤¹¡£
·úÀß¾õ¶·

¡¡2026ǯ1·î11Æü¤ËÆîÀ¾Â¦¤«¤é»£±Æ¤·¤¿¡ÖCITY TOWER THE RAINBOW¡Ê¥·¥Æ¥£¥¿¥ï¡¼ ¥¶ ¥ì¥¤¥ó¥Ü¡¼¡Ë¡×(ÃϾå34³¬¡¢¹â¤µ118.98m¡Ë¤Î·úÀßÃϤǤ¹¡£
¡¡Çظå¤ÎÀĤ¤»°³Ñ·Á¤Î¥Ó¥ë¤Ï¡Ö¥è¥³¥½¡¼¥ì¥¤¥ó¥Ü¡¼¥¿¥ï¡¼¡×(ÃϾå23³¬¡¢¹â¤µ94.6m)¤Ç¡¢14¡Á23³¬¤ÏÄÂÂß½»Âð¤Î¡Ö¥è¥³¥½¡¼¥ì¥¤¥ó¥Ü¡¼¥¿¥ï¡¼¥Ï¥¤¥Ä¡×¤È¤Ê¤Ã¤Æ¤¤¤Þ¤¹¡£¤³¤ì¤ò¥¿¥ï¡¼¥Þ¥ó¥·¥ç¥ó¤È¸À¤Ã¤Æ¤¤¤¤¤Î¤«¤Ï¤ï¤«¤ê¤Þ¤»¤ó¤¬¡¢¥ì¥¤¥ó¥Ü¡¼¥Ö¥ê¥Ã¥¸¤Î¼çÅã¤Ë°ìÈֶᤤ¥¿¥ï¡¼¥Þ¥ó¥·¥ç¥ó¤Ç¡¢¤³¤³¡Ö¥·¥Æ¥£¥¿¥ï¡¼ ¥¶ ¥ì¥¤¥ó¥Ü¡¼¡×¤Ï¥ì¥¤¥ó¥Ü¡¼¥Ö¥ê¥Ã¥¸¤Î¼çÅã¤Ë°ìÈֶᤤʬ¾ù¥¿¥ï¥Þ¥ó¤Ë¤Ê¤ê¤Þ¤¹¡£

¡¡Æî¦¤«¤é»£±Æ¡£»£±Æ»þ¤Îºî¶È¹©Äø¤Ï2³¬Î©¾å¶íÂι©»ö¤È¤Ê¤Ã¤Æ¤¤¤Þ¤·¤¿¡£

¡¡ÆîÅ즤«¤é»£±Æ¡£ÃϾå¶íÂι©»ö¤¬»Ï¤Þ¤ë¤Þ¤ÇŤ«¤Ã¤¿¤Ç¤¹¡£

¡¡ËÌÅ즤«¤é»£±Æ¡£º¸¸å¤í¤Ë¸«¤¨¤Æ¤¤¤ë¹â²Í¤¬¡¢¥ì¥¤¥ó¥Ü¡¼¥Ö¥ê¥Ã¥¸¤Î¥ë¡¼¥×Éôʬ¤Ç¤¹¡£

¡¡ËÌÀ¾Â¦¤«¤é»£±Æ¡£3Êý¸þ¤¬Æ»Ï©¤ËÌ̤·¤¿³ÑÃϤȤʤäƤ¤¤Þ¤¹¡£

¡¡2025ǯ12·î28Æü¤Ë¥ì¥¤¥ó¥Ü¡¼¥Ö¥ê¥Ã¥¸¤«¤é»£±Æ¡£¥¿¥ï¡¼¥¯¥ì¡¼¥ó¤¬¸«¤¨¤Æ¤¤¤ë¾ì½ê¤¬¡ÖCITY TOWER THE RAINBOW¡Ê¥·¥Æ¥£¥¿¥ï¡¼ ¥¶ ¥ì¥¤¥ó¥Ü¡¼¡Ë¡×¤Î·úÀßÃϤǤ¹¡£Çظå¤Î¼Ç±º¥¢¥¤¥é¥ó¥É¤Î¥¿¥ï¡¼¥Þ¥ó¥·¥ç¥ó¤è¤ê¤ÏÄ㤤¤Ç¤¹¤¬¡¢±¦Â¦¤Î¡Ö¥è¥³¥½¡¼¥ì¥¤¥ó¥Ü¡¼¥¿¥ï¡¼¡×¤è¤ê¤Ï¹â¤¯¤Ê¤ê¤Þ¤¹¡£

¡¡2026ǯ1·î3Æü¤Ë¥Õ¥¸¥Æ¥ì¥Ó¤ÎµåÂΟ˾¼¼¡Ö¤Ï¤Á¤¿¤Þ¡×¤«¤é»£±Æ¡£

¡¡¥ì¥¤¥ó¥Ü¡¼¥Ö¥ê¥Ã¥¸¤âÆþ¤ì¤Æ»£±Æ¡£¹âÁس¬¤ÎÉô²°¤«¤é¤Ï¥ì¥¤¥ó¥Ü¡¼¥Ö¥ê¥Ã¥¸¤òÄ̤ë¼Ö¤¬ÅÓÀÚ¤ì¤ë¤³¤È¤Ê¤¯¸«¤¨¤ë¤¿¤á¡¢¾ï¤Ëư¤¤Î¤¢¤ë·Ê¿§¤Ë¤Ê¤Ã¤ÆË°¤¤¬Íè¤Ê¤µ¤½¤¦¤Ç¤¹¡£¹Ò¶õ¾ã³²Åô¤ÎÀÖ¤¤ÅÀÌǤ⤽¤¦¤Ç¤¹¤¬¡¢¸ÇÄꤵ¤ì¤¿·Ê¿§¤è¤ê¤âư¤¤Î¤¢¤ë·Ê¿§¤ÎÊý¤¬³Ú¤·¤á¤ë¤È¸Ä¿ÍŪ¤Ë¤Ï´¶¤¸¤Æ¤¤¤Þ¤¹¡£
ÃÏ¿Þ
ʪ·ï³µÍ×

¡¡·úÃ۷ײè¤Î¤ªÃΤ餻¤Ç¤¹¡£²¼µÊª·ï³µÍפϿôÃͤϸø¼°HP¤ÎÃͤòÍ¥À褷¤Æ·ÇºÜ¤·¤Æ¤¤¤Þ¤¹¡£
¢£Êª·ï³µÍ×¢£
̾¾Î¡§CITY TOWER THE RAINBOW
»ö¶È̾¡§(²¾¾Î)³¤´ß£³ÃúÌܷײ迷ÃÛ¹©»ö
½êºßÃÏ¡§ÅìµþÅÔ¹Á¶è³¤´ß»°ÃúÌÜ14ÈÖ18¡ÊÃÏÈÖ¡Ë
¸òÄÌ¡§¤æ¤ê¤«¤â¤á¡Ö¼Ç±º¤ÕƬ¡×±Ø ÅÌÊâ5ʬ
¡¡¡¡¡¡JR»³¼êÀþ¡¦µþÉÍÅìËÌÀþ¡ÖÅÄÄ®¡×±Ø ÅÌÊâ14ʬ
¡¡¡¡¡¡ÅԱϰÅÄÀþ¡¦ÀõÁðÀþ¡Ö»°ÅÄ¡×±Ø ÅÌÊâ15ʬ
ÍÑÅÓ¡§¶¦Æ±½»Âð
Áí¸Í¿ô¡§264¸Í¡Ê¹¹ðÂоݳ°½»¸Í10¸Í´Þ¤à¡Ë¡¡
³¬¿ô¡§ÃϾå34³¬¡¢Ãϲ¼1³¬
¹â¤µ¡§118.98m
¹½Â¤¡§Å´¶Ú¥³¥ó¥¯¥ê¡¼¥È¤
ÂÑ¿ÌÀǽ¡§Ìȿ̹½Â¤
´ðÁù©Ë¡¡§¸½¾ì¤À®¹º
ÉßÃÏÌÌÀÑ¡§2,368.30Ö
·úÃÛÌÌÀÑ¡§1,073.91Ö
±ä¾²ÌÌÀÑ¡§28,690.27Ö
·úÃۼ硧½»Í§ÉÔÆ°»º
Àß·×¼Ô¡§À¾¾¾·úÀß
»Ü¹©¼Ô¡§À¾¾¾·úÀß
¹©´ü¡§2024ǯ2·î5ÆüÃ幩¡Á2027ǯ9·îÃæ½Ü½×¹©Í½Äê
Æþµï¡§2028ǯ4·î²¼½ÜͽÄê
½Ðŵ
¢§¸ø¼°HP¡§CITY TOWER THE RAINBOW
https://www.sumitomo-rd-mansion.jp/shuto/kaigan/
- ¥«¥Æ¥´¥ê
- ¹Á¶è







