
¡¡Ï»ËÜÌڥҥ륺¤Ë¥Ç¥Ã¥¤ÇÀܳ¤¹¤ëʬ¾ù¥¿¥ï¥Þ¥ó¡Ö(²¾¾Î)À¾ËãÉÛ»°ÃúÌÜËÌÅìÃ϶èÂè°ì¼ï»Ô³¹ÃϺƳ«È¯»ö¶È¡×(ÃϾå54³¬¡¢ºÇ¹â¹â¤µ201.20m)¤Î·úÀßÃϤǤ¹¡£2026ǯ1·î18Æü¤ËÏ»ËÜÌڥҥ륺¤ÎŸ˾¼¼¤«¤é»£±Æ¤·¤Þ¤·¤¿¡£Ìî¼ÉÔÆ°»º¤È¥±¥ó¡¦¥³¡¼¥Ý¥ì¡¼¥·¥ç¥ó¤Ë¤è¤ëºÆ³«È¯¤Ç¡¢¹âÁØÉô¤Ë¤Ï³°»ñ·Ï¥é¥°¥¸¥å¥¢¥ê¡¼¥Û¥Æ¥ë¤¬Æþ¤ë¥¿¥ï¡¼¥Þ¥ó¥·¥ç¥ó¤Ë¤Ê¤ê¤Þ¤¹¡£¤³¤Îµ»ö¤Ç¤ÏƱºÆ³«È¯¤Î³µÍפä·úÀß¾õ¶·¡¢ÃÏ¿ÞÅù¤òºÜ¤»¤Æ¤¤¤Þ¤¹¡£
À¾ËãÉÛ»°ÃúÌÜËÌÅìÃ϶è¤Ë¤Ä¤¤¤Æ

¥¤¥á¡¼¥¸¥Ñ¡¼¥¹[½Ðŵ¡§¹Á¶è]
¡¡¡Ö(²¾¾Î)À¾ËãÉÛ»°ÃúÌÜËÌÅìÃ϶èÂè°ì¼ï»Ô³¹ÃϺƳ«È¯»ö¶È¡×¤Ï¡ÖÏ»ËÜÌڥҥ륺¡×¤ÎÀ¾Â¦(½Âë¦)¤ÎºÆ³«È¯¤Ç¡¢µ¬ÌϤÏÃϾå54³¬¡¢Ãϲ¼4³¬¡¢¹â¤µ199.98m¡¢ºÇ¹â¹â¤µ201.20m¡¢ÉßÃÏÌÌÀÑ7,427.87Ö¡¢·úÃÛÌÌÀÑ3,846.03Ö¡¢±ä¾²ÌÌÀÑ9Ëü6832.49Ö¡¢Áí¸Í¿ô498¸Í¤È¤Ê¤Ã¤Æ¤¤¤Þ¤¹¡£
¡¡·úÃÛ¼ç¤ÏÀ¾ËãÉÛ»°ÃúÌÜËÌÅìÃ϶è»Ô³¹ÃϺƳ«È¯Áȹç¡Ê»²²ÃÁȹç°÷¡§Ìî¼ÉÔÆ°»º¥±¥ó¡¦¥³¡¼¥Ý¥ì¡¼¥·¥ç¥ó¡Ë¡¢À߷׼Ԥϰ´À߷ס¦ÂçÀ®·úÀß¡¢»Ü¹©¼Ô¤ÏÂçÀ®·úÀߤÇ2029ǯ12·î²¼½Ü¤Î½×¹©Í½Äê¤Ç¤¹¡£

ÃÇÌÌ¿Þ[½Ðŵ¡§¹Á¶è]
¡¡¥Õ¥í¥¢¹½À®¤ÏÃϲ¼¤¬Ãó¼Ö¾ìÅù¡¢1³¬¡Á2³¬¤¬Å¹ÊÞ¡¢3³¬¤¬Ãϸ¢¼Ô¸þ¤±¤Î»ö̳½ê¡¢4³¬¡Á5³¬¤¬¥Û¥Æ¥ë»ÜÀß¡¢6³¬¡Á45³¬¤¬½»Âð¡¢46³¬¡Á52³¬¤¬¥Û¥Æ¥ë¡¢53³¬¡¢54³¬¤¬µ¡³£¼¼¤È¤Ê¤ê¤Þ¤¹¡£34³¬¤È36³¬¤Ë¤Ï½»Âð¤Î¶¦ÍÑ»ÜÀߤ¬ÇÛÃÖ¤µ¤ì¡¢¥Û¥Æ¥ë¤ÎµÒ¼¼¤Ï47³¬¡Á52³¬¤ËÇÛÃÖ¤µ¤ì¤Þ¤¹¡£
¡¡Æ±¥¿¥ï¥Þ¥ó¤ÏÌî¼ÉÔÆ°»º¤Ë¤è¤ë¥Ë¥å¡¼¥¹¥ê¥ê¡¼¥¹¤Ë¤è¤Ã¤Æ¡¢ºÇ¾åµé¥¯¥é¥¹¤Î¾¦ÉÊ´ë²è¡¦Àì°ÈÎÇäÂÎÀ©¤Ë¤è¤ë¤ªµÒÍÍÂбþ¤ò¼Â»Ü¤¹¤ë¹â³Ûʬ¾ù¥Þ¥ó¥·¥ç¥ó¤È¤·¤Æ¶¡µë¤µ¤ì¤ë¤³¤È¤¬È¯É½¤µ¤ì¤Æ¤¤¤Þ¤¹¡£

ÇÛÃÖ¿Þ[½Ðŵ¡§Ìî¼ÉÔÆ°»º]
¡¡ÉßÃÏ¤ÏÆîË̤˺ÙŤ¯¡¢¼óÅÔ¹â½ÂëÀþ¡¦Ï»ËÜÌÚÄ̤ê¤ËÌ̤·¤¿ÉßÃÏËÌü¤Ç¤ÏÊâ¹Ô¼Ô¥Ç¥Ã¥¤Ë¤è¤Ã¤ÆÅìÎ٤ˤ¢¤ë¡ÖÏ»ËÜÌڥҥ륺¡×¤ËÀܳ¤·¤Þ¤¹¡£¤Þ¤¿¡¢ÉßÃÏ¤ÎÆî¦¤Ë¤Ï¹¾ì¤¬À°È÷¤µ¤ì¡¢¤½¤Î¹¾ì¤Î¼þ¤ê¤Ë¤Ï·úÀßÃÏÆâ¤Ë¤¢¤Ã¤¿»û¼Ò¤¬ºÆÇÛÈ÷¤µ¤ì¤Þ¤¹¡£

´°À®¥¤¥á¡¼¥¸[½Ðŵ¡§Ìî¼ÉÔÆ°»º]
¡¡½Â릤«¤é¸«¤¿´°À®Í½ÁۿޤǤ¹¡£Çظå¤ËÇö¤Ã¤¹¤é¤ÈÉÁ¤«¤ì¤Æ¤¤¤ë¤Î¤¬¡ÖÏ»ËÜÌڥҥ륺¡×¤Ç¤¹¡£

¥¤¥á¡¼¥¸¥Ñ¡¼¥¹[½Ðŵ¡§Ìî¼ÉÔÆ°»º]
¡¡ÆîÅ즤«¤é¸«¤¿´°À®Í½ÁۿޤǤ¹¡£Æî¦¤Ë¤Ï¹¾ì¤¬À°È÷¤µ¤ì¤Þ¤¹¡£

¥¤¥á¡¼¥¸¥Ñ¡¼¥¹[½Ðŵ¡§Ìî¼ÉÔÆ°»º]
¡¡ÄãÁØÉô¤Î1¡Á2³¬¤Ï¾¦¶È»ÜÀß¡¢3³¬¤Ï»ö̳½ê¡¢4¡Á5³¬¤Ï¥Û¥Æ¥ë¤Î¥é¥¦¥ó¥¸¤ä¥ì¥¹¥È¥é¥ó¤Ë¤Ê¤ê¤Þ¤¹¡£

¥¤¥á¡¼¥¸¥Ñ¡¼¥¹[½Ðŵ¡§Ìî¼ÉÔÆ°»º]
¡¡Æ»Ï©¤ËÌ̤·¤¿Åì¦¤ËŹÊÞ¤¬ÇÛÃÖ¤µ¤ì¡¢½»Âð¤Î¥¨¥ó¥È¥é¥ó¥¹¤Ï¤½¤Î΢¦¤È¤Ê¤ëÀ¾Â¦¤ËÇÛÃÖ¤µ¤ì¤Þ¤¹¡£

¥¤¥á¡¼¥¸¥Ñ¡¼¥¹[½Ðŵ¡§Ìî¼ÉÔÆ°»º]
¡¡¼óÅÔ¹â½ÂëÀþ¡¦Ï»ËÜÌÚÄ̤ê¤ËÌ̤·¤¿ÉßÃÏËÌü¤Ç¤¹¡£¤³¤³¤Ë¤Ï¹¾ì¤ÈÏ»ËÜÌڥҥ륺¤ËÀܳ¤¹¤ëÊâ¹Ô¼Ô¥Ç¥Ã¥¤¬ÇÛÃÖ¤µ¤ì¤Þ¤¹¡£

¥¤¥á¡¼¥¸¥Ñ¡¼¥¹[½Ðŵ¡§Ìî¼ÉÔÆ°»º]
¡¡ÉßÃÏÆî¦¤ËÀ°È÷¤µ¤ì¤ë¹¾ì¤Î¼þ¤ê¤Ë¤Ï¡¢¸µ¡¹ÉßÃϱü¤Ë¤¢¤Ã¤¿»û¼Ò¤¬ºÆÇÛÃÖ¤µ¤ì¡¢¤³¤ì¤Ë¤è¤ê¹¾ì¤«¤é»û¼Ò¤Ë¹Ô¤±¤ë¤è¤¦¤Ë¤Ê¤ê¤Þ¤¹¡£
Ê¿ÌÌ¿Þ

Ê¿Ì̿ޡÊA³¹¶è¡¿¥Ô¥Ã¥È³¬¡ÁÃϲ¼1³¬¡Ë[½Ðŵ¡§¹Á¶è]
¡¡Ãϲ¼2³¬¤Ë¤Ï¥È¥é¥ó¥¯¥ë¡¼¥à¡¢Ãϲ¼1³¬¤Ë¤Ï½»ÂðÍѤμִ󤻤ȵ¡³£¼°Ãó¼Ö¾ì¤¬ÇÛÃÖ¤µ¤ì¤Þ¤¹¡£

Ê¿Ì̿ޡÊA³¹¶è¡¿1³¬¡Á2³¬¡Ë[½Ðŵ¡§¹Á¶è]
¡¡1³¬¤ÎÅì¦¤Ë¤ÏŹÊÞ¤¬ÇÛÃÖ¤µ¤ì¡¢½»Âð¤Î¥¨¥ó¥È¥é¥ó¥¹¤ÏŹÊÞ¤ÎÇØ¸å¤È¤Ê¤ëÀ¾Â¦¤ËÇÛÃÖ¤µ¤ì¤Þ¤¹¡£Ãó¼Ö¾ì¤Î½ÐÆþ¸ý¤ÏÅ즤Îƻϩ±è¤¤¤ËÀßÃÖ¤µ¤ì¤Þ¤¹¡£
¡¡Ï»ËÜÌڥҥ륺¤ÈÀܳ¤¹¤ë2³¬¤Ë¤âŹÊÞ¤¬ÇÛÃÖ¤µ¤ì¡¢¤½¤·¤Æ½»Âð¤Î¥¨¥ó¥È¥é¥ó¥¹¤âÇÛÃÖ¤µ¤ì¤Þ¤¹¡£2³¬¤Ë¤Ï»Ò°é¤Æ»Ù±ç»ÜÀߤâÇÛÃÖ¤µ¤ì¤Þ¤¹¡£

Ê¿Ì̿ޡÊA³¹¶è¡¿3³¬¡Á5³¬¡Ë[½Ðŵ¡§¹Á¶è]
¡¡3³¬¤ÏÃϸ¢¼Ô¸þ¤±¤Î¥ª¥Õ¥£¥¹¡¢4³¬¡¢5³¬¤Ï¥í¥Ó¡¼¤ä¥ì¥¹¥È¥é¥ó¤Ê¤É¥Û¥Æ¥ë»ÜÀߤ¬ÇÛÃÖ¤µ¤ì¤Þ¤¹¡£

Ê¿Ì̿ޡÊA³¹¶è¡¿6³¬¡Á8³¬¡Ë[½Ðŵ¡§¹Á¶è]
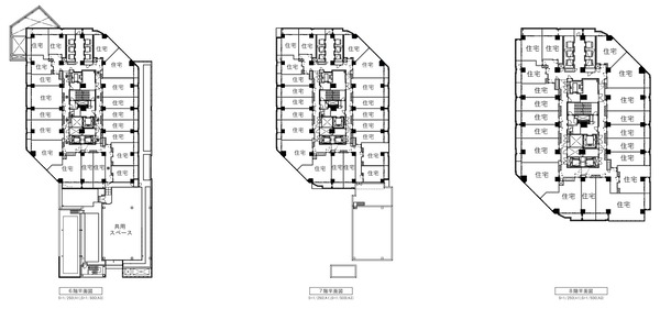
¡¡6³¬¤«¤é¤¬½»Âð¥Õ¥í¥¢¤È¤Ê¤ê¤Þ¤¹¡£

Ê¿Ì̿ޡÊA³¹¶è¡¿9³¬¡Á24³¬¡Ë[½Ðŵ¡§¹Á¶è]
¡¡½»Âð¤Î¥¨¥ì¥Ù¡¼¥¿¡¼¥Û¡¼¥ë¤ÏË̦¤ËÇÛÃÖ¤µ¤ì¤Þ¤¹¡£

Ê¿Ì̿ޡÊA³¹¶è¡¿25³¬¡Á45³¬¡Ë[½Ðŵ¡§¹Á¶è]
¡¡34³¬¤ÎÀ¾Â¦¡¢ËÌÀ¾³Ñ¡¢ËÌÅì³Ñ¤Ë¶¦ÍÑ¥¹¥Ú¡¼¥¹¤¬3¼¼ÇÛÃÖ¤µ¤ì¡¢¥¹¥«¥¤¥é¥¦¥ó¥¸¤È¤Ê¤ë¤È»×¤ï¤ì¤ëËÌÀ¾³Ñ¤Ï2ÁØ¿á¤È´¤±¤Î¶õ´Ö¤Ë¤Ê¤ê¤Þ¤¹¡£¤Þ¤¿¡¢36³¬ËÌÀ¾³Ñ¤Ë¤â¶¦ÍÑ¥¹¥Ú¡¼¥¹¤¬ÍѰդµ¤ì¤Þ¤¹¡£½»Âð¥Õ¥í¥¢¤È¤·¤Æ¤Ï45³¬¤¬ºÇ¾å³¬¤È¤Ê¤ê¤Þ¤¹¡£

Ê¿Ì̿ޡÊA³¹¶è¡¿46³¬¡Á51³¬¡Ë[½Ðŵ¡§¹Á¶è]
¡¡46³¬¤«¤é¤¬¥Û¥Æ¥ë¥Õ¥í¥¢¤È¤Ê¤ê¡¢46³¬¤Ë¤Ï¥¹¥ÑÅù¤¬ÇÛÃÖ¤µ¤ì¡¢47³¬¤«¤éµÒ¼¼¤È¤Ê¤ê¤Þ¤¹¡£

Ê¿Ì̿ޡÊA³¹¶è¡¿52³¬¡ÁR³¬¡Ë[½Ðŵ¡§¹Á¶è]
¡¡µÒ¼¼¤ÎºÇ¾å³¬¤Ï52³¬¤È¤Ê¤ê¤Þ¤¹¡£
°ÌÃÖ¿Þ

°ÌÃÖ¿Þ[½Ðŵ¡§ÅìµþÅÔ]
¡¡·úÀßÃϤϡÖÏ»ËÜÌڥҥ륺¡×¤ÎÀ¾Â¦¡Ê½Â릡ˤÇÊâ¹Ô¼Ô¥Ç¥Ã¥¤ÇÀܳ¤·¤Þ¤¹¡£ÉßÃÏ¤ÏÆîË̤˺ÙŤ¯Ë̦¤ÏÏ»ËÜÌÚÄ̤ꡦ¼óÅÔ¹â½ÂëÀþ¡¢Å즤ϥƥì¥ÓÄ«ÆüÄ̤ê¤ËÌ̤·¤Æ¤¤¤Þ¤¹¡£Ï»ËÜÌÚÄ̤ê¤òÅ즡ʱ¦Â¦¡Ë¤Ë¹Ô¤¯¤ÈºÇ´ó±Ø¤ÎÅìµþ¥á¥È¥íÆüÈæÃ«Àþ¤ª¤è¤ÓÅÔ±ÄÂç¹¾¸ÍÀþ¤Î¡ÖÏ»ËÜÌڡױؤ¬¤¢¤ê¤Þ¤¹¡£ÆüÈæÃ«Àþ¤Î±Ø¤Þ¤Ç¤Ï¡ÖÏ»ËÜÌڥҥ륺¡×·Ðͳ¤Ç¹Ô¤±¤ë¤è¤¦¤Ë¤Ê¤ê¤Þ¤¹¡£

¡¡2020ǯ12·î14Æü¤Ë¥Ø¥ê¤«¤é»£±Æ¤·¤¿À¾ËãÉÛ¡¦Ï»ËÜÌÚÊýÌ̤ζõ»£¤Ç¤¹¡£ÀÖ¤¤Ìֳݤ±¤ò¤·¤¿¾ì½ê¤¬¡Ö(²¾¾Î)À¾ËãÉÛ»°ÃúÌÜËÌÅìÃ϶èÂè°ì¼ï»Ô³¹ÃϺƳ«È¯»ö¶È¡×¤Î·úÀßÃϤǡ¢Ï»ËÜÌڥҥ륺¤ÎÎ٤˰ÌÃÖ¤·¤Æ¤¤¤ë¤³¤È¤¬¤ï¤«¤ê¤Þ¤¹¡£
·úÀß¾õ¶·

¡¡2026ǯ1·î18Æü¤ËÅ즤«¤é»£±Æ¤·¤¿¡Ö(²¾¾Î)À¾ËãÉÛ»°ÃúÌÜËÌÅìÃ϶èÂè°ì¼ï»Ô³¹ÃϺƳ«È¯»ö¶È¡×(ÃϾå54³¬¡¢ºÇ¹â¹â¤µ201.20m)¤Î·úÀßÃϤǤ¹¡£

¡¡·úÀßÃϤÎÅ즤ϥƥì¥ÓÄ«ÆüÄ̤ê¤ËÌ̤·¤Æ¤ª¤ê¡¢¤³¤ÎÄ̤ê¤ò¤³¤Á¤é¦¤ËÅϤ俤Ȥ³¤í¤¬Ï»ËÜÌڥҥ륺¤È¤Ê¤Ã¤Æ¤¤¤Þ¤¹¡£

¡¡¤³¤Î¥×¥ì¥Ï¥Ö»ö̳½ê¤¬¤¢¤ëÊÕ¤ê¤Ë¤Ï¹¾ì¤¬À°È÷¤µ¤ì¡¢¤³¤Î¹¾ì¤ÎÀ¾Â¦¤«¤éÆî¦¤Ë¤«¤±¤Æ¤ÏÉßÃÏÆâ¤Ë¤¢¤Ã¤¿»û¼Ò¤¬ºÆÇÛÃÖ¤µ¤ì¤Þ¤¹¡£

¡¡»û¼Ò¤¬·úÀßÃæ¤ÎÉßÃÏÆî¦¤Ç¤¹¡£¤³¤³¤«¤é¤À¤È¤ï¤«¤ê¤Ë¤¯¤¤¤Ç¤¹¤¬¡Ä

¡¡Ï»ËÜÌڥҥ륺¤ÎŸ˾¼¼¤«¤é¸«¤ë¤È·úÀß¹©»ö¤¬¿Ê¤ó¤Ç¤¤¤ë¤³¤È¤¬¤ï¤«¤ê¤Þ¤¹¡£

¡¡¤½¤ÎÎÙ¤ÎË̦¤¬¹âÁØÉô¤Ë¥Û¥Æ¥ë¤¬Æþ¤ë¥¿¥ï¡¼¥Þ¥ó¥·¥ç¥ó¤Î·úÀßÃϤȤʤäƤ¤¤Þ¤¹¡£

¡¡ÃϾå¶íÂι©»ö¤¬»Ï¤Þ¤ë¤Î¤Ï¤Þ¤À¤Þ¤ÀÀè¤Ë¤Ê¤ê¤½¤¦¤Ç¤¹¡£
ÃÏ¿Þ
ʪ·ï³µÍ×

¡¡A³¹¶è¤Î·úÃ۷ײè¤Î¤ªÃΤ餻¤Ç¤¹¡£
¢£Êª·ï³µÍ×¢£
»ö¶È̾¡§(²¾¾Î)À¾ËãÉÛ»°ÃúÌÜËÌÅìÃ϶èÂè°ì¼ï»Ô³¹ÃϺƳ«È¯»ö¶È »ÜÀß·úÃÛʪ(A³¹¶è)¿·ÃÛ¹©»ö
½êºßÃÏ¡§ÅìµþÅÔ¹Á¶èÀ¾ËãÉÛ»°ÃúÌÜ159ÈÖ(ÃÏÈÖ)
¸òÄÌ¡§Åìµþ¥á¥È¥íÆüÈæÃ«Àþ¡ÖÏ»ËÜÌÚ¡×±Ø
¡¡¡¡¡¡ÅÔ±ÄÂç¹¾¸ÍÀþ¡ÖÏ»ËÜÌÚ¡×±Ø
ÍÑÅÓ¡§¶¦Æ±½»Âð¡¢Å¹ÊÞ¡¢»ö̳½ê¡¢¥Û¥Æ¥ë¡¢¼«Æ°¼Ö¼Ö¸Ë
Áí¸Í¿ô¡§498¸Í¡ÊÃϸ¢¼Ô½»¸Í´Þ¤à¡Ë
³¬¿ô¡§ÃϾå54³¬¡¢Ãϲ¼4³¬
¹â¤µ¡§199.98m¡ÊºÇ¹â¹â¤µ201.20m¡Ë
¹½Â¤¡§Å´¶Ú¥³¥ó¥¯¥ê¡¼¥È¤ °ìÉô Å´¹ü¤¡¢À©¿Ì¹½Â¤
´ðÁù©Ë¡¡§Ä¾ÀÜ´ðÁᢰìÉô¹º´ðÁÃ
ÉßÃÏÌÌÀÑ¡§7,427.87Ö
·úÃÛÌÌÀÑ¡§3,846.03Ö
±ä¾²ÌÌÀÑ¡§96,832.49Ö
»ö¶È¼Ô¡§À¾ËãÉÛ»°ÃúÌÜËÌÅìÃ϶è»Ô³¹ÃϺƳ«È¯Áȹç
»²²ÃÁȹç°÷¡§Ìî¼ÉÔÆ°»º¡¢¥±¥ó¡¦¥³¡¼¥Ý¥ì¡¼¥·¥ç¥ó
ÆÃÄê¶È̳Âå¹Ô¼Ô¡§ÂçÀ®·úÀß
Àß·×¼Ô¡§°´À߷ס¦ÂçÀ®·úÀß
»Ü¹©¼Ô¡§ÂçÀ®·úÀß
¹©´ü¡§2025ǯ3·î²¼½ÜÃ幩¡Á2029ǯ12·î²¼½Ü½×¹©Í½Äê
½Ðŵ
¢§Ìî¼ÉÔÆ°»º¡§¥Ë¥å¡¼¥¹¥ê¥ê¡¼¥¹
¡¦ºÇ¾åµé¥¯¥é¥¹¤Î¾¦ÉÊ´ë²è¤ÈÀì°ÈÎÇäÂÎÀ©¤Ë¤è¤ë¤ªµÒÍÍÂбþ¤ò¼Â»Ü
ÅÔ¿´¥¨¥ê¥¢¤Ç¤Îʬ¾ù¥Þ¥ó¥·¥ç¥ó¤Î¶¡µë¿ô¤ò³ÈÂç
¡½¡Ö°¦ÅæÃ϶èÂè°ì¼ï»Ô³¹ÃϺƳ«È¯»ö¶È¡×¡¦¡ÖÀ¾ËãÉÛ»°ÃúÌÜËÌÅìÃ϶èÂè°ì¼ï»Ô³¹ÃϺƳ«È¯»ö¶È¡×¤¬Ã幩 ¡½¡Ê2025ǯ4·î23Æü¡Ë
¡¦½»Â𡦻ö̳½ê¡¦¾¦¶È¡¦¥Û¥Æ¥ë¤Î͹âÁØÅï¤È»°»û¼Ò¤«¤é¤Ê¤ëÊ£¹çºÆ³«È¯ ¡ØÀ¾ËãÉÛ»°ÃúÌÜËÌÅìÃ϶èÂè°ì¼ï»Ô³¹ÃϺƳ«È¯»ö¶È¡Ù ¸¢ÍøÊÑ´¹·×²èǧ²Ä¤Î¤ªÃΤ餻¡ÊÌî¼ÉÔÆ°»º¡¢¥±¥ó¡¦¥³¡¼¥Ý¥ì¡¼¥·¥ç¥ó¡Ë¡Ê2023ǯ2·î15Æü¡Ë
¡¦¡ÖÀ¾ËãÉÛ»°ÃúÌÜËÌÅìÃ϶èÂè°ì¼ï»Ô³¹ÃϺƳ«È¯»ö¶È¡×»Ô³¹ÃϺƳ«È¯ÁȹçÀßΩǧ²Ä¤Î¤ªÃΤ餻(Ìî¼ÉÔÆ°»º¡¢¥±¥ó¡¦¥³¡¼¥Ý¥ì¡¼¥·¥ç¥ó)¡Ê2020ǯ9·î10Æü¡Ë
¢§ÅìµþÅÔ¹Á¶è¡§Âè°ì¼ï»Ô³¹ÃϺƳ«È¯»ö¶È¡Ê2023ǯ11·î30Æü¡Ë
À¾ËãÉÛ»°ÃúÌÜËÌÅìÃ϶èÂè°ì¼ï»Ô³¹ÃϺƳ«È¯»ö¶È
¢§ÅìµþÅÔ¡§Êóƻȯɽ»ñÎÁ¡Ê2020ǯ9·î9Æü¡Ë
À¾ËãÉÛ»°ÃúÌÜËÌÅìÃ϶è»Ô³¹ÃϺƳ«È¯Áȹç¤ÎÀßΩ¤òǧ²Ä¤·¤Þ¤¹
- ¥«¥Æ¥´¥ê
- ¹Á¶è







