
¡¡ËÌÂçºåµÞ¹ÔÆîËÌÀþ¡Ö̧ÌÌÁ¥¾ìºåÂçÁ°¡×±ØÄ¾·ë¤Î¥¿¥ï¡¼¥Þ¥ó¥·¥ç¥ó¡Ö¥¯¥é¥Ã¥·¥£¥¿¥ï¡¼Ì§ÌÌÁ¥¾ì¡×(ÃϾå31³¬¡¢¹â¤µ99.9m)¤Î·úÀßÃϤǤ¹¡£2025ǯ11·î29Æü¤Ë»£±Æ¤·¤Þ¤·¤¿¡£¤³¤³¤Ïº¸Î٤Ρ֥֥ê¥ê¥¢¥¿¥ï¡¼Ì§ÌÌÁ¥¾ì SKY & GARDEN¡×¤È¹ç¤ï¤»¤Æ¡ÖW TOWERS ̧ÌÌÁ¥¾ì¡×¤È¸Æ¤Ð¤ì¤ë¥Ä¥¤¥ó¥¿¥ï¥Þ¥ó¤È¤Ê¤Ã¤Æ¤¤¤Þ¤¹¡£¤³¤Îµ»ö¤Ç¤Ï¥¯¥é¥Ã¥·¥£¥¿¥ï¡¼Ì§ÌÌÁ¥¾ì¤Î³µÍפä·úÀß¾õ¶·¡¢ÃÏ¿ÞÅù¤òºÜ¤»¤Æ¤¤¤Þ¤¹¡£
¥¯¥é¥Ã¥·¥£¥¿¥ï¡¼Ì§ÌÌÁ¥¾ì¤Ë¤Ä¤¤¤Æ

W TOWERS ̧ÌÌÁ¥¾ì ³°´Ñ´°À®Í½ÁÛCG[½Ðŵ¡§¸ø¼°]
¡¡¡Ö¥¯¥é¥Ã¥·¥£¥¿¥ï¡¼Ì§ÌÌÁ¥¾ì¡×¤ÏËÌÂçºåµÞ¹ÔÆîËÌÀþ¡Ö̧ÌÌÁ¥¾ìºåÂçÁ°¡×±ØÄ¾·ë¤Î¥¿¥ï¡¼¥Þ¥ó¥·¥ç¥ó¤Ç¡¢Î٤ˤϡ֥֥ê¥ê¥¢¥¿¥ï¡¼Ì§ÌÌÁ¥¾ì¡×¤¬¤¢¤ê¡¢Î¾Åï¹ç¤ï¤»¤Æ¡ÖW TOWERS ̧ÌÌÁ¥¾ì¡×¤È¸Æ¤Ð¤ì¤ë1Åï°·¤Î¥Ä¥¤¥ó¥¿¥ï¥Þ¥ó¤È¤Ê¤Ã¤Æ¤¤¤Þ¤¹¡£

³°´Ñ´°À®Í½ÁÛCG[½Ðŵ¡§¸ø¼°]
¡¡Î¾Åï¹ç¤ï¤»¤¿µ¬ÌϤÏÃϾå31³¬¡¢Ãϲ¼1³¬¡¢¹â¤µ99.9m¡¢ÉßÃÏÌÌÀÑ7,213.55Ö¡¢·úÃÛÌÌÀÑ4,903.67Ö¡¢±ä¾²ÌÌÀÑ9Ëü3114.65Ö¡¢·úÃۼ硦Çä¼ç¤Ï½»Í§¾¦»ö¡¢ºåµÞºå¿ÀÉÔÆ°»º¡¢Åìµþ·úʪ¡¢À߷׼ԤȻܹ©¼Ô¤ÏÃÝÃæ¹©Ì³Å¹¡¢½×¹©Í½Äê¤Ï2026ǯ10·î¾å½Ü¡¢Æþµï³«»ÏͽÄê¤Ï2026ǯ12·î²¼½Ü¤È¤Ê¤Ã¤Æ¤¤¤Þ¤¹¡£¤Þ¤¿¡¢Æ±¥Ä¥¤¥ó¥¿¥ï¥Þ¥ó¤Ë¤Ï70ǯ¤ÎÄê´ü¼ÚÃϸ¢¤¬ÉÕ¤¤¤Æ¤¤¤Þ¤¹¡£
¡¡Áí¸Í¿ô¤Ï567¸Í¤Ç¡¢¤½¤Î¤¦¤Á36¸Í¤¬ÀèÃå½çÈÎÇäÃæ¤È¤Ê¤Ã¤Æ¤ª¤ê¡¢ÈÎÇä´Ö¼è¤ê¤Ï1LDK¡Á4LDK¡¢ÀìÍÌÌÀѤÏ35.92Ö¡Á140.54Ö¡¢¥Ð¥ë¥³¥Ë¡¼ÌÌÀѤÏ4.76Ö¡Á31.05Ö¡¢¥µ¡¼¥Ó¥¹¥Ð¥ë¥³¥Ë¡¼ÌÌÀѤÏ1.51Ö¡Á3.84Ö¡¢ÈÎÇä²Á³Ê¤Ï4,040Ëü±ß¡Á2²¯4550Ëü±ß¤È¤Ê¤Ã¤Æ¤¤¤Þ¤¹¡£

1³¬Ê¿ÌÌ¿Þ[½Ðŵ¡§¸ø¼°]
¡¡1³¬¤ÎÊ¿Ì̿ޤǤ¹¡£1¤Ï¥¨¥ó¥È¥é¥ó¥¹¥¢¥×¥í¡¼¥Á¡¢2¤Ï¥°¥é¥ó¥É¥¨¥ó¥È¥é¥ó¥¹¡¢3¤Ï¥¨¥ì¥Ù¡¼¥¿¡¼¥Û¡¼¥ë¡¢4¤Ï¥¨¥ó¥È¥é¥ó¥¹¥é¥¦¥ó¥¸¡¢5¤Ï¥³¥ó¥·¥§¥ë¥¸¥å¡¢6¤Ï¥´¥ßÃ־졢7¤Ï¥á¡¼¥ë¥³¡¼¥Ê¡¼¡¦ÂðÇۥܥ寥¹¡¢8¤Ï¼Ö´ó¤»¡¢9¤Ï»Íµ¨¤ÎÅΡ¢10¤ÏÃó¼Ö¾ì¡¢11¤Ï¥Ð¥¤¥¯Ã־졢12¤Ï¥Ú¥Ã¥ÈÂÀö¤¤¾ì¤È¤Ê¤Ã¤Æ¤¤¤Þ¤¹¡£

2³¬Ê¿ÌÌ¿Þ[½Ðŵ¡§¸ø¼°]
¡¡2³¬¤ÎÊ¿Ì̿ޤǤ¹¡£1¤Ï¥²¥¹¥È¥¹¥Æ¥¤¡ÖÑۡס¢2¤Ï¥²¥¹¥È¥¹¥Æ¥¤¡Ö²¤¡×¡¢3¤Ï¥·¥§¥¢¥ï¡¼¥¯¥¹¥Ú¡¼¥¹¡¢4¤Ï¥¦¥§¥ë¥Í¥¹¥¹¥¿¥¸¥ª¡¢5¤Ï¼«Å¾¼ÖÃ־졢6¤Ï¥¨¥ì¥Ù¡¼¥¿¡¼¥Û¡¼¥ë¤È¤Ê¤Ã¤Æ¤¤¤Þ¤¹¡£

3³¬Ê¿ÌÌ¿Þ[½Ðŵ¡§¸ø¼°]
¡¡3³¬¤ÎÊ¿Ì̿ޤǤ¹¡£7¤ÏÁ¥¾ì¹¾ì¥á¥¤¥ó¥Ç¥Ã¥¤Ëľ·ë¤¹¤ëÉ÷½ü¼¼¡¢8¤Ï¥¨¥ó¥È¥é¥ó¥¹¥Û¡¼¥ë¡¢9¤Ï¥¢¡¼¥È¥é¥¦¥ó¥¸¡¢10¤Ï¥³¥ó¥Õ¥©¡¼¥È¥é¥¦¥ó¥¸¡¢11¤Ï¥Ñ¡¼¥Æ¥£¥À¥¤¥Ë¥ó¥°¡¢12¤Ï¥¨¥ì¥Ù¡¼¥¿¡¼¥Û¡¼¥ë¤È¤Ê¤Ã¤Æ¤¤¤Þ¤¹¡£¤Þ¤¿¡¢Á¥¾ì¹¾ì¥á¥¤¥ó¥Ç¥Ã¥¤ËÌ̤·¤¿¾ì½ê¤Ë¤ÏŹÊÞ¤¬ÇÛÃÖ¤µ¤ì¤Þ¤¹¡£

¼Ö´ó¤»´°À®Í½ÁÛCG[½Ðŵ¡§¸ø¼°]
¡¡¼Ö´ó¤»¤Ï¸òÄÌÎ̤ξ¯¤Ê¤¤Ë̦¤ËÇÛÃÖ¤µ¤ì¤Þ¤¹¡£

¥¨¥ó¥È¥é¥ó¥¹¥¢¥×¥í¡¼¥Á´°À®Í½ÁÛCG[½Ðŵ¡§¸ø¼°]
¡¡¥¨¥ó¥È¥é¥ó¥¹¥¢¥×¥í¡¼¥Á¤ÏÉßÃÏÆâ¤Ë¿·Àߤµ¤ì¤ëËÌÂçºåµÞ¹ÔÆîËÌÀþ¡Ö̧ÌÌÁ¥¾ìºåÂçÁ°¡×±Ø¤Î½ÐÆþ¸ý(¿Þ¤Îº¸Â¦)¤ÎÌܤÎÁ°¤ËÇÛÃÖ¤µ¤ì¤Þ¤¹¡£

É÷½ü¼¼´°À®Í½ÁÛCG[½Ðŵ¡§¸ø¼°]
¡¡1³¬¥°¥é¥ó¥É¥¨¥ó¥È¥é¥ó¥¹¤ÎÉ÷½ü¼¼¤Ç¤¹¡£±¦Â¦¤Ë¥¨¥ó¥È¥é¥ó¥¹¥é¥¦¥ó¥¸¤ä¥³¥ó¥·¥§¥ë¥¸¥å¡¢º¸Â¦¤Ë¥á¡¼¥ë¥³¡¼¥Ê¡¼¤ä¥¨¥ì¥Ù¡¼¥¿¡¼¤¬¤¢¤ê¤Þ¤¹¡£Ãæ¤Ç¤Ï·Ò¤¬¤Ã¤Æ¤¤¤Þ¤¹¡£

1³¬¥¨¥ó¥È¥é¥ó¥¹¥é¥¦¥ó¥¸´°À®Í½ÁÛCG[½Ðŵ¡§¸ø¼°]
¡¡ÆîÀ¾³Ñ¤ËÇÛÃÖ¤µ¤ì¤ë¥¨¥ó¥È¥é¥ó¥¹¥é¥¦¥ó¥¸¤Î´°À®Í½ÁۿޤǤ¹¡£

¥¢¡¼¥È¥é¥¦¥ó¥¸´°À®Í½ÁÛCG[½Ðŵ¡§¸ø¼°]
¡¡Á¥¾ì¹¾ì¥á¥¤¥ó¥Ç¥Ã¥¤Ë·Ò¤¬¤ë3³¬¤Ë¤Ï¥¢¡¼¥È¥é¥¦¥ó¥¸¤¬ÇÛÃÖ¤µ¤ì¤Þ¤¹¡£

¥³¥ó¥Õ¥©¡¼¥È¥é¥¦¥ó¥¸´°À®Í½ÁÛCG[½Ðŵ¡§¸ø¼°]
¡¡¥¢¡¼¥È¥é¥¦¥ó¥¸¤ÎÎ٤ˤϥ³¥ó¥Õ¥©¡¼¥È¥é¥¦¥ó¥¸¤¬ÇÛÃÖ¤µ¤ì¤Þ¤¹¡£

¥Ñ¡¼¥Æ¥£¥À¥¤¥Ë¥ó¥°´°À®Í½ÁÛCG[½Ðŵ¡§¸ø¼°]
¡¡¥³¥ó¥Õ¥©¡¼¥È¥é¥¦¥ó¥¸¤ÎÎ٤ˤϥѡ¼¥Æ¥£¥À¥¤¥Ë¥ó¥°¤¬ÇÛÃÖ¤µ¤ì¤Þ¤¹¡£

¥²¥¹¥È¥¹¥Æ¥¤¡ÖÑÛ¡×´°À®Í½ÁÛCG[½Ðŵ¡§¸ø¼°]
¡¡¥Ñ¡¼¥Æ¥£¥À¥¤¥Ë¥ó¥°¤Î²¼¤È¤Ê¤ë2³¬¤Ë¤Ï¥²¥¹¥È¥¹¥Æ¥¤¡ÖÑۡפ¬ÇÛÃÖ¤µ¤ì¤Þ¤¹¡£¡Ö¥â¥À¥ó¤ÊÏ¡פ¬É½¸½¤µ¤ì¤Æ¤¤¤Þ¤¹¡£

¥²¥¹¥È¥¹¥Æ¥¤¡Ö²¤¡×´°À®Í½ÁÛCG[½Ðŵ¡§¸ø¼°]
¡¡¥²¥¹¥È¥ë¡¼¥à2¥¿¥¤¥×¤¢¤ê¡¢¤â¤¦1¤Ä¤ÏÍμ¼¤Î¥²¥¹¥È¥¹¥Æ¥¤¡Ö²¤¡×¤È¤Ê¤Ã¤Æ¤¤¤Þ¤¹¡£

¥¹¥«¥¤¥é¥¦¥ó¥¸´°À®Í½ÁÛCG[½Ðŵ¡§¸ø¼°]
¡¡30³¬¤Ë¤Ï2ÁØ¿á¤È´¤±¤Î¥¹¥«¥¤¥é¥¦¥ó¥¸¤¬ÇÛÃÖ¤µ¤ì¤Þ¤¹¡£
´Ö¼è¤ê

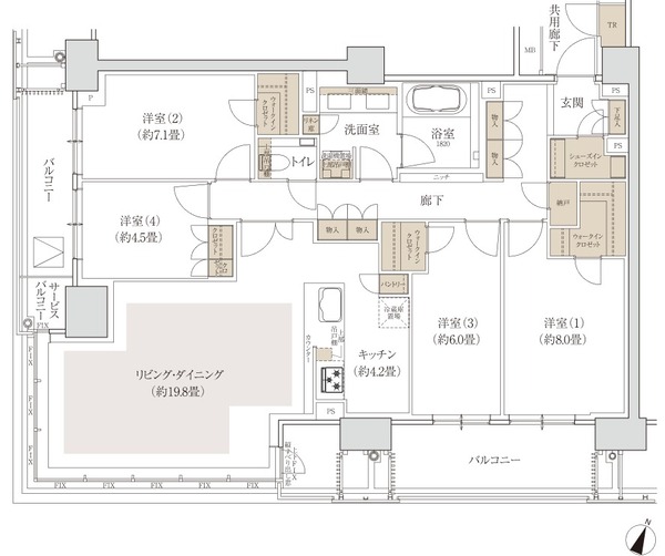
C-35U¥¿¥¤¥×[½Ðŵ¡§¸ø¼°]
¡¡C-35U¥¿¥¤¥×¤Î´Ö¼è¤ê¿Þ¤Ç¤¹¡£´Ö¼è¤ê¤Ï1LDK+N¡¢½»¸ÍÀìÍÌÌÀѤÏ35.92Ö¡¢¥Ð¥ë¥³¥Ë¡¼ÌÌÀѤÏ4.76֤ȤʤäƤª¤ê¡¢Æ±¥¿¥¤¥×¤¬4040Ëü±ß¤ÇÀèÃå½çÈÎÇäÃæ¤È¤Ê¤Ã¤Æ¤¤¤Þ¤¹¡£

C-75S¥¿¥¤¥×[½Ðŵ¡§¸ø¼°]
¡¡C-75S¥¿¥¤¥×¤Î´Ö¼è¤ê¿Þ¤Ç¤¹¡£´Ö¼è¤ê¤Ï2LDK+DEN+SIC¡¢½»¸ÍÀìÍÌÌÀѤÏ78.74Ö¡¢¥Ð¥ë¥³¥Ë¡¼ÌÌÀѤÏ6.66֤ȤʤäƤª¤ê¡¢Æ±¥¿¥¤¥×¤¬6560Ëü±ß¤È6770Ëü±ß¤ÇÀèÃå½çÈÎÇäÃæ¤È¤Ê¤Ã¤Æ¤¤¤Þ¤¹¡£

C-140PJ¥¿¥¤¥×[½Ðŵ¡§¸ø¼°]
¡¡¥×¥ì¥ß¥¢¥à¥×¥é¥ó¤È¤Ê¤ëC-140PJ¥¿¥¤¥×¤Î´Ö¼è¤ê¿Þ¤Ç¤¹¡£´Ö¼è¤ê¤Ï3LDK+2WIC+SIC+N¡¢½»¸ÍÀìÍÌÌÀѤÏ139.44Ö¡¢Àìͥȥé¥ó¥¯¥ë¡¼¥àÌÌÀѤÏ1.10Ö¡¢¥Ð¥ë¥³¥Ë¡¼ÌÌÀѤÏ31.05֤ȤʤäƤª¤ê¡¢Æ±¥¿¥¤¥×¤¬2²¯3340Ëü±ß¤ÇÀèÃå½çÈÎÇäÃæ¤È¤Ê¤Ã¤Æ¤¤¤Þ¤¹¡£

C-115G¥¿¥¤¥×[½Ðŵ¡§¸ø¼°]
¡¡C-115G¥¿¥¤¥×¤Î´Ö¼è¤ê¿Þ¤Ç¤¹¡£´Ö¼è¤ê¤Ï4LDK+3WIC+SIC¡¢½»¸ÍÀìÍÌÌÀѤÏ117.73Ö¡¢Àìͥȥé¥ó¥¯¥ë¡¼¥àÌÌÀѤÏ0.78Ö¡¢¥Ð¥ë¥³¥Ë¡¼ÌÌÀѤÏ21.20Ö¡¢¥µ¡¼¥Ó¥¹¥Ð¥ë¥³¥Ë¡¼ÌÌÀѤÏ1.77֤ȤʤäƤª¤ê¡¢Æ±¥¿¥¤¥×¤¬1²¯4330Ëü±ß¡Á1²¯5810Ëü±ß¤ÇÀèÃå½çÈÎÇäÃæ¤È¤Ê¤Ã¤Æ¤¤¤Þ¤¹¡£
°ÌÃÖ¿Þ

°ÌÃÖ¿Þ[½Ðŵ¡§¸ø¼°]
¡¡¥Ä¥¤¥ó¥¿¥ï¥Þ¥ó¤Î¡ÖW TOWERS ̧ÌÌÁ¥¾ì¡×¤Î·úÀßÃϤÏ2024ǯ3·î23Æü¤Ë³«¶È¤·¤¿ËÌÂçºåµÞ¹ÔÆîËÌÀþ¡Ö̧ÌÌÁ¥¾ìºåÂçÁ°¡×±Ø¤ËÉßÃÏÆâ¤Çľ·ë¤·¤Æ¤ª¤ê¡¢¡Ö¥¯¥é¥Ã¥·¥£¥¿¥ï¡¼Ì§ÌÌÁ¥¾ì¡×¤Ï±ØÁ°¤È¤Ê¤ëÆî¦¡¢¡Ö¥Ö¥ê¥ê¥¢¥¿¥ï¡¼Ì§ÌÌÁ¥¾ì SKY & GARDEN¡×¤ÏË̦¤ËÇÛÃÖ¤µ¤ì¤Æ¤¤¤Þ¤¹¡£
·úÀß¾õ¶·

¡¡2025ǯ11·î29Æü¤ËÆîÀ¾Â¦¤«¤é»£±Æ¤·¤¿¡Ö¥¯¥é¥Ã¥·¥£¥¿¥ï¡¼Ì§ÌÌÁ¥¾ì¡×(ÃϾå31³¬¡¢¹â¤µ99.9m)¤Î·úÀßÃϤǤ¹¡£»£±Æ»þ¤Ë¤Ï24³¬¤¢¤¿¤ê¤Þ¤Ç·úÀߤ¬¿Ê¤ó¤Ç¤¤¤Þ¤·¤¿¡£

¡¡ÆîÅ즤«¤é»£±Æ¡£º¸²¼¤Î¿Áؤβ°º¬¤¬¤¢¤ë¾ì½ê¤ÎÃϲ¼¤ËËÌÂçºåµÞ¹ÔÆîËÌÀþ¡Ö̧ÌÌÁ¥¾ìºåÂçÁ°¡×±Ø¤¬¤¢¤ê¤Þ¤¹¡£¤Þ¤¿¡¢³¬ÃʤòÅФä¿Àè¤Ë¤ÏÁ¥¾ì¹¾ì¥á¥¤¥ó¥Ç¥Ã¥¤¬¤¢¤ê¡¢¤½¤³¤È·Ò¤¬¤ë¥¨¥ó¥È¥é¥ó¥¹¤âÀߤ±¤é¤ì¤Þ¤¹¡£

¡¡ËÌÅ즤ȤʤëÁ¥¾ì¹¾ì¥á¥¤¥ó¥Ç¥Ã¥¤«¤é»£±Æ¡£¤³¤Î¥Ç¥Ã¥¤ËÌ̤·¤¿¾ì½ê¤Ë¤ÏŹÊÞ¤¬Àߤ±¤é¤ì¤Þ¤¹¡£

¡¡Ë̦¤«¤é»£±Æ¡£L»ú·¿¤Î¥¿¥ï¡¼¥Þ¥ó¥·¥ç¥ó¤È¤Ê¤ê¤Þ¤¹¡£

¡¡ËÌÀ¾Â¦¤«¤é»£±Æ¡£º¸Â¦¤Ç·úÀßÃæ¤Î¥¿¥ï¡¼¥Þ¥ó¥·¥ç¥ó¤¬¡Ö¥Ö¥ê¥ê¥¢¥¿¥ï¡¼Ì§ÌÌÁ¥¾ì SKY & GARDEN¡×¤Ç¡¢Æ±¥¿¥ï¥Þ¥ó¤È¤ÏÄãÁØÉô¤Ç·Ò¤¬¤Ã¤Æ¤ª¤ê¡¢Î¾Åï¹ç¤ï¤»¤Æ¡ÖW TOWERS ̧ÌÌÁ¥¾ì¡×¤È¸Æ¤Ð¤ì¤Æ¤¤¤Þ¤¹¡£
¡¡¤ï¤«¤ê¤Ë¤¯¤¤¤Ç¤¹¤¬¡¢Î¾Åï¤Î´Ö¤Î±ü¤Ë¸«¤Æ¤¤¤ë¥¿¥ï¡¼¥Þ¥ó¥·¥ç¥ó¤¬¡Ö¥Ö¥ê¥ê¥¢¥¿¥ï¡¼Ì§ÌÌÁ¥¾ì TOP OF THE HILL¡×(ÃϾå30³¬¡¢¹â¤µ103.48m)¡¢±¦¤¬¡Ö¥·¥Æ¥£¥²¡¼¥È¥¿¥ï¡¼ÀéÎ¤Ãæ±û¡×(ÃϾå26³¬¡¢¹â¤µ86m)¤Ç¡¢4Åï¤Î¥¿¥ï¡¼¥Þ¥ó¥·¥ç¥ó¤¬·ú¤Áʤ֥¨¥ê¥¢¤Ë¤Ê¤ê¤Þ¤¹¡£
ÃÏ¿Þ
ʪ·ï³µÍ×

¡¡·úÃ۷ײè¤Î³µÍפǤ¹¡£
¢£Êª·ï³µÍ×¢£
̾¾Î¡§W TOWERS ̧ÌÌÁ¥¾ì¡Ê¥¯¥é¥Ã¥·¥£¥¿¥ï¡¼Ì§ÌÌÁ¥¾ì¡¦¥Ö¥ê¥ê¥¢¥¿¥ï¡¼Ì§ÌÌÁ¥¾ì¡Ë
»ö¶È̾¡§(²¾¾Î)̧ÌÌÁ¥¾ì±ØÁ°³«È¯·×²è
½êºßÃÏ¡§ÂçºåÉÜ̧ÌÌ»ÔÁ¥¾ìÅì»°ÃúÌÜ
¸òÄÌ¡§ËÌÂçºåµÞ¹ÔÆîËÌÀþ¡Ö̧ÌÌÁ¥¾ìºåÂçÁ°¡×±Ø ľ·ëÅÌÊâ1ʬ
ÍÑÅÓ¡§¶¦Æ±½»Âð¡¦Å¹ÊÞ
Áí¸Í¿ô¡§567¸Í¡ÊÁ´ÂΤÇ728¸Í¡§°ìÈÌʬ¾ù720¸Í¡¦Ãϸ¢¼Ô½»¸Í8¸Í¡Ë
³¬¿ô¡§ÃϾå31³¬¡¢Ãϲ¼1³¬
¹â¤µ¡§99.9m
¹½Â¤¡§Å´¶Ú¥³¥ó¥¯¥ê¡¼¥È¤ °ìÉô Å´¹ü¤
ÂÑ¿ÌÀǽ¡§Ìȿ̹½Â¤
ÉßÃÏÌÌÀÑ¡§7,213.55Ö
·úÃÛÌÌÀÑ¡§4,903.67Ö
±ä¾²ÌÌÀÑ¡§93,114.65Ö
·úÃۼ硧½»Í§¾¦»ö¡¢ºåµÞºå¿ÀÉÔÆ°»º¡¢Åìµþ·úʪ
Àß·×¼Ô¡§ÃÝÃæ¹©Ì³Å¹
»Ü¹©¼Ô¡§ÃÝÃæ¹©Ì³Å¹
¹©´ü¡§2023ǯ9·î1ÆüÃ幩¡Á2026ǯ10·î¾å½Ü½×¹©Í½Äê
Æþµï¡§2026ǯ12·î²¼½ÜͽÄê
Äê´ü¼ÚÃϸ¢¡§70ǯ
½Ðŵ
¢§¸ø¼°HP¡§W TOWERS ̧ÌÌÁ¥¾ì¡Ê¥¯¥é¥Ã¥·¥£¥¿¥ï¡¼Ì§ÌÌÁ¥¾ì¡¦¥Ö¥ê¥ê¥¢¥¿¥ï¡¼Ì§ÌÌÁ¥¾ì¡Ë
https://wtowers-minoh.com/
- ¥«¥Æ¥´¥ê
- ̧ÌÌ»Ô







