
´°À®Í½ÁÛ¿Þ[½Ðŵ¡§¸ø¼°HP]
¡¡µþÅԺǹâÁØ¥¿¥ï¥Þ¥ó¡ÖJ.GRAN TOWER µþÅÔ¸þÆüÄ®¡×(ÃϾå38³¬¡¢¹â¤µÌó128m)¤Î´°À®Í½ÁۿޤǤ¹¡£Æ±¥¿¥ï¥Þ¥ó¤ÏµþÅÔÉܸþÆü»Ô¤ÎJRµþÅÔÀþ¡Ö¸þÆüÄ®¡×±Ø¤Ëľ·ë¤¹¤ëµþÅÔÉܤǺǤâ¹â¤¤Ê¬¾ù¤Î¥¿¥ï¡¼¥Þ¥ó¥·¥ç¥ó¤Ç¡¢µþÅÔÉÜÆâ¤Ç¤ÏµþÅÔ±ØÁ°¤Ë¤¢¤ë¡Ö¥Ë¥Ç¥Ã¥¯µþÅÔ¥¿¥ï¡¼¡×(¹â¤µ131m)¤Ë¼¡¤°¹â¤µ¤Î·ú¤ʪ¤Ë¤Ê¤ê¤Þ¤¹¡£¤³¤Îµ»ö¤Ç¤ÏƱ¥¿¥ï¥Þ¥ó¤Î³µÍפä·úÀß¾õ¶·¡¢ÃÏ¿ÞÅù¤òºÜ¤»¤Æ¤¤¤Þ¤¹¡£
J.GRAN TOWER µþÅÔ¸þÆüÄ®¤Ë¤Ä¤¤¤Æ

´°À®Í½ÁÛ¿Þ[½Ðŵ¡§»°°æÉÔÆ°»º]
¡¡¡ÖJ.GRAN TOWER µþÅÔ¸þÆüÄ®¡×¤ÏµþÅÔÉܸþÆü»Ô¤ÎJRµþÅÔÀþ¡Ö¸þÆüÄ®¡×±Ø¤Ëľ·ë¤¹¤ë¥¿¥ï¡¼¥Þ¥ó¥·¥ç¥ó¤Ç¡¢µ¬ÌϤÏÃϾå38³¬¡¢¹â¤µÌó128m¡¢ÉßÃÏÌÌÀÑ1,659.63Ö¡¢·úÃÛÌÌÀÑ1,431.32Ö¡¢±ä¾²ÌÌÀÑ4Ëü2014.26֤Ȥʤê¤Þ¤¹¡£Çä¼ç¤ÏJRÀ¾ÆüËÜÉÔÆ°»º³«È¯¡¢»°°æÉÔÆ°»º¥ì¥¸¥Ç¥ó¥·¥ã¥ë¡¢À߷׼Ԥϥ¢¡¼¥ë¡¦¥¢¥¤¡¦¥¨¡¼¡¢»Ü¹©¼Ô¤ÏÂçÎÓÁȤǡ¢2028ǯ7·î²¼½Ü½×¹©¡¢2028ǯ9·î²¼½Ü¤ÎÆþµï³«»ÏͽÄê¤Ç¤¹¡£
¡¡Áí¸Í¿ô¤Ï343¸Í¡Ê°ìÈÌÈÎÇäÂоÝ274¸Í¡Ë¤Ç2026ǯ6·î²¼½Ü¤«¤éÈÎÇ䳫»ÏͽÄê¤È¤Ê¤Ã¤Æ¤¤¤Þ¤¹¡£Á´ÈÎÇäͽÄê½»¸Í¤Î´Ö¼è¤ê¤Ï2LDK¡Á4LDK¡¢ÀìÍÌÌÀѤÏ55.07Ö¡Á101.62Ö¡¢¥Ð¥ë¥³¥Ë¡¼ÌÌÀѤÏ8.85Ö¡Á25.48֤Ǥ¹¡£

´°À®Í½ÁÛ¿Þ[½Ðŵ¡§»°°æÉÔÆ°»º]
¡¡Æ±¥¿¥ï¥Þ¥ó¤Ï¡ÖJR¸þÆüÄ®±Ø¼þÊÕÃ϶èÂè°ì¼ï»Ô³¹ÃϺƳ«È¯»ö¶È¡×¤Î½»ÂðÅï¤Ç¡¢Î٤ˤÏÃϾå5³¬¡¢Ìó5,700֤αإӥëÅï¤â·úÀߤµ¤ì¤Þ¤¹¡£

´°À®Í½ÁÛ¿Þ[½Ðŵ¡§¸ø¼°HP]
¡¡±Ø¥Ó¥ëÅï¤ÏJRµþÅÔÀþ¡Ö¸þÆüÄ®¡×±Ø¤Ëľ·ë¤·¡¢3³¬Éôʬ¤Ç¤Ï¡ÖJ.GRAN TOWER µþÅÔ¸þÆüÄ®¡×¤Ë¤âÀܳ¤·¤Þ¤¹¡£

¥¨¥ó¥È¥é¥ó¥¹¥Û¡¼¥ë´°À®Í½ÁÛ¿Þ[½Ðŵ¡§»°°æÉÔÆ°»º]
¡¡3³¬¤Ë¤Ï2ÁØ¿á¤È´¤±¤Î¥¨¥ó¥È¥é¥ó¥¹¥Û¡¼¥ë¤¬ÇÛÃÖ¤µ¤ì¤Þ¤¹¡£

¥¹¥«¥¤¥é¥¦¥ó¥¸´°À®Í½ÁÛ¿Þ[½Ðŵ¡§»°°æÉÔÆ°»º]
¡¡18³¬¤ÎËÌÅì³Ñ¤Ë¤Ï¶¦ÍÑ»ÜÀߤȤ·¤Æ¥¹¥«¥¤¥é¥¦¥ó¥¸¤¬ÇÛÃÖ¤µ¤ì¤Þ¤¹¡£

´°À®Í½ÁÛ¿Þ[½Ðŵ¡§»°°æÉÔÆ°»º]
¡¡¼þ°Ï¤Ë¤ÏÆîÅ즤Ë10³¬·ú¤Æ¤Î¥Þ¥ó¥·¥ç¥ó¤¬¤¢¤ë¤¯¤é¤¤¤Ç¡¢Â¾¤Ë¹â¤¤·úʪ¤Ï¤Ê¤¤¤¿¤áÄãÁس¬¤Ç¤â³«¤±¤¿»ë³¦¤¬¹¤¬¤ê¤Þ¤¹¡£
ÃÇÌ̿ޡ¦Ê¿ÌÌ¿Þ

ÃÇÌÌ¿Þ1[½Ðŵ¡§¸þÆü»Ô]
¡¡±Ø¥Ó¥ëÅï¤ÎÃÇÌ̿ޤǤ¹¡£Å¹ÊÞ¡¢¿ÇÎŽꡢÊݰé½ê¡¢¶È̳»ÜÀߤǹ½À®¤µ¤ì¤Þ¤¹¡£

ÃÇÌÌ¿Þ2[½Ðŵ¡§¸þÆü»Ô]
¡¡¡ÖJ.GRAN TOWER µþÅÔ¸þÆüÄ®¡×¤ÎÃÇÌ̿ޤǤ¹¡£Ãó¼Ö¾ì¤Ï¥¿¥ï¡¼¥Ñ¡¼¥¥ó¥°¤Ç180ÂæÊ¬ÍѰդµ¤ì¤Æ¤¤¤Þ¤¹¡£Â¾¤ËÊ¿ÌÌ1ÂæÊ¬¤â¤¢¤ê¤Þ¤¹¡£

1³¬Ê¿ÌÌ¿Þ[½Ðŵ¡§¸þÆü»Ô]
¡¡1³¬¤ÎÊ¿Ì̿ޤǤ¹¡£±Ø¥Ó¥ëÅï¤Ë¤ÏŹÊÞ¤¬ÇÛÃÖ¤µ¤ì¡¢½»ÂðÅï¤Ë¤ÏÃóÎØ¾ì¤Ê¤É¤¬ÇÛÃÖ¤µ¤ì¤Þ¤¹¡£¤Þ¤¿¡¢Ìó2,400Ö¤ÎÅì¸ý±ØÁ°¹¾ì¤âÀ°È÷¤µ¤ì¤Þ¤¹¡£

2³¬Ê¿ÌÌ¿Þ[½Ðŵ¡§¸þÆü»Ô]
¡¡2³¬¤ÎÊ¿Ì̿ޤǤ¹¡£±Ø¥Ó¥ëÅï¤Ë¤Ï¿ÇÎŽ꤬ÇÛÃÖ¤µ¤ì¡¢½»ÂðÅï¤ÏÃóÎØ¾ì¤¬ÇÛÃÖ¤µ¤ì¤Þ¤¹¡£

3³¬Ê¿ÌÌ¿Þ[½Ðŵ¡§¸þÆü»Ô]
¡¡¡Ö¸þÆüÄ®¡×±Ø¤Ëľ·ë¤¹¤ë3³¬¤ÎÊ¿Ì̿ޤǤ¹¡£±Ø¥Ó¥ëÅï¤ÏŹÊÞ¡¢¿ÇÎŽꡢÊݰé½ê¤¬ÇÛÃÖ¤µ¤ì¡¢½»ÂðÅï¤Ï¥¨¥ó¥È¥é¥ó¥¹¥Û¡¼¥ë¤ä¶¦ÍÑ»ÜÀߤ¬ÇÛÃÖ¤µ¤ì¤Þ¤¹¡£¤Þ¤¿¡¢±Ø¥Ó¥ëÅï¤È½»ÂðÅ郎3³¬¤ÇÀܳ¤·¤Þ¤¹¡£

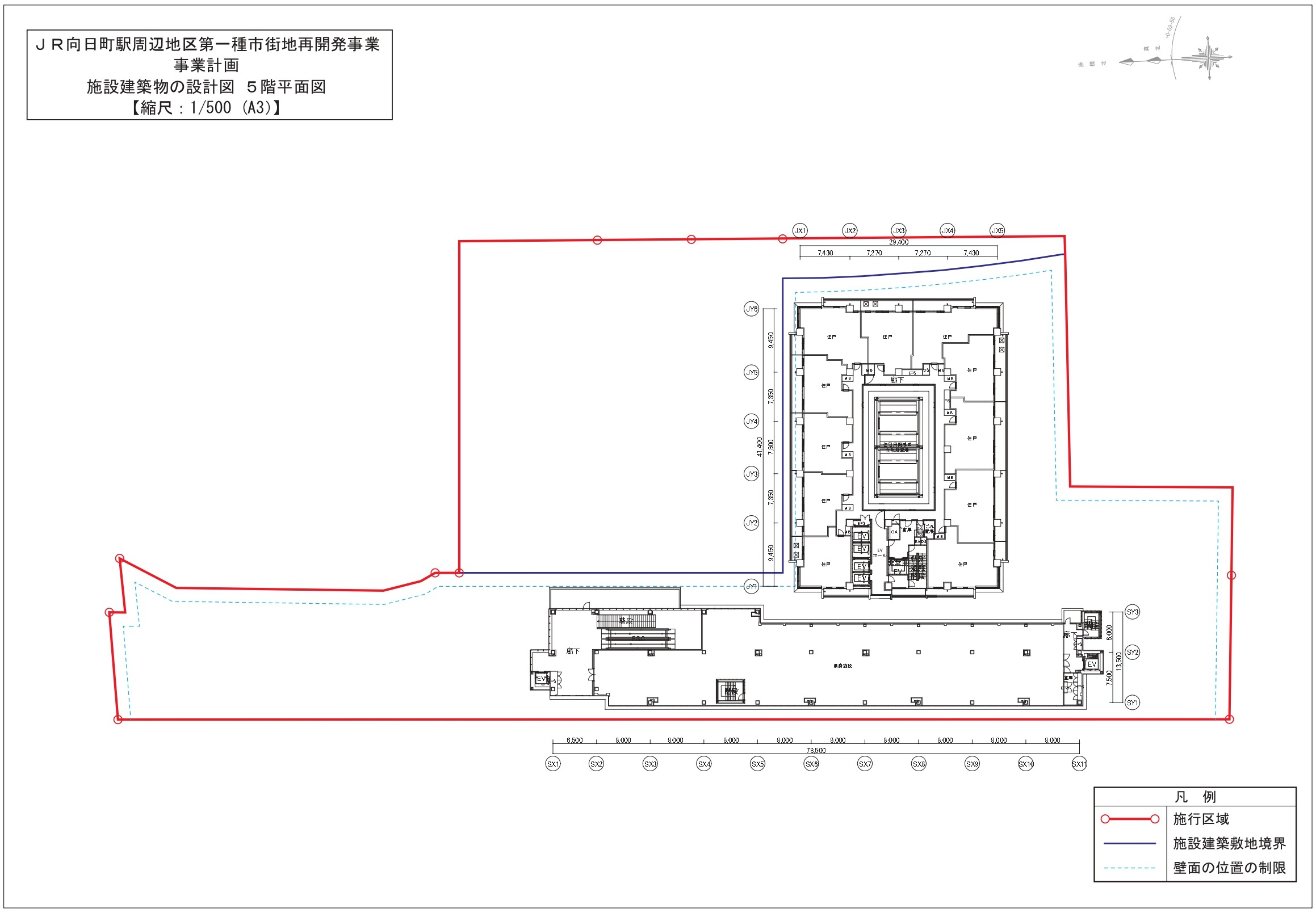
4³¬Ê¿ÌÌ¿Þ[½Ðŵ¡§¸þÆü»Ô]
¡¡4³¬¤ÎÊ¿Ì̿ޤǤ¹¡£±Ø¥Ó¥ëÅï¤Ë¤Ï¶È̳»ÜÀߤ¬ÇÛÃÖ¤µ¤ì¡¢¤³¤Î¥Õ¥í¥¢¤«¤é½»ÂðÅï¤Î³Æ½»¸Í¤¬ÇÛÃÖ¤µ¤ì¤Þ¤¹¡£

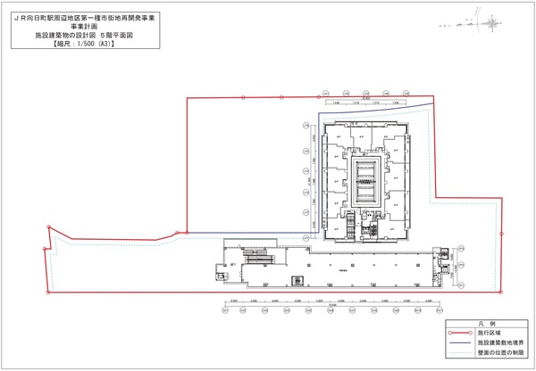
5³¬Ê¿ÌÌ¿Þ[½Ðŵ¡§¸þÆü»Ô]
¡¡5³¬¤ÎÊ¿Ì̿ޤǤ¹¡£±Ø¥Ó¥ëÅï¤Ë¤Ï¶È̳»ÜÀߤ¬ÇÛÃÖ¤µ¤ì¡¢¤³¤Î¥Õ¥í¥¢¤¬ºÇ¾å³¬¤È¤Ê¤ê¤Þ¤¹¡£½»ÂðÅï¤Ï4³¬¡Á38³¬¤Þ¤Ç½»Âð¤¬ÇÛÃÖ¤µ¤ì¤Þ¤¹¡£

6¡Á15³¬Ê¿ÌÌ¿Þ[½Ðŵ¡§¸þÆü»Ô]
¡¡6¡Á15³¬¤ÎÊ¿Ì̿ޤǤ¹¡£À¾Â¦¤Ë¤Ï¥¨¥ì¥Ù¡¼¥¿¡¼¥Û¡¼¥ë¤¬ÇÛÃÖ¤µ¤ì¤Æ¤¤¤Þ¤¹¡£

18³¬Ê¿ÌÌ¿Þ[½Ðŵ¡§¸þÆü»Ô]
¡¡18³¬¤ÎËÌÅì³Ñ¤Ë¤Ï¶¦ÍÑ»ÜÀߤȤ·¤Æ¥¹¥«¥¤¥é¥¦¥ó¥¸¤¬ÇÛÃÖ¤µ¤ì¤Þ¤¹¡£µþÅÔ±ØÊýÌ̤ò˾¤á¤ëÊý³Ñ¤È¤Ê¤Ã¤Æ¤¤¤Þ¤¹¡£

36¡Á38³¬Ê¿ÌÌ¿Þ[½Ðŵ¡§¸þÆü»Ô]
¡¡¹âÁس¬¤Ë¹Ô¤¯¤ËÏ¢¤ì¤Æ³Æ½»¸Í¤Ï¹¤¯¤Ê¤ê¡¢36¡Á38³¬Éôʬ¤Ï1¥Õ¥í¥¢7¸Í¤À¤±¤È¤Ê¤ê¤Þ¤¹¡£
´Ö¼è¤ê¿Þ

CC¥¿¥¤¥×[½Ðŵ¡§¸ø¼°HP]
¡¡31³¬¡Á34³¬¤ËÇÛÃÖ¤µ¤ì¤ëCC¥¿¥¤¥×¤Î´Ö¼è¤ê¿Þ¤Ç¤¹¡£´Ö¼è¤ê¤Ï3LDK+WIC¡¢ÀìÍÌÌÀѤÏ77.55Ö¡¢¥Ð¥ë¥³¥Ë¡¼ÌÌÀѤÏ20.60֤ȤʤäƤ¤¤Þ¤¹¡£

CD¥¿¥¤¥×[½Ðŵ¡§¸ø¼°HP]
¡¡31³¬¡Á34³¬¤ËÇÛÃÖ¤µ¤ì¤ëCD¥¿¥¤¥×¤Î´Ö¼è¤ê¿Þ¤Ç¤¹¡£´Ö¼è¤ê¤Ï4LDK+WIC+SIC¡¢ÀìÍÌÌÀѤÏ101.62Ö¡¢¥Ð¥ë¥³¥Ë¡¼ÌÌÀѤÏ20.90֤ȤʤäƤ¤¤Þ¤¹¡£

DF¥¿¥¤¥×[½Ðŵ¡§¸ø¼°HP]
¡¡36³¬¡Á38³¬¤ËÇÛÃÖ¤µ¤ì¤ëDF¥¿¥¤¥×¤Î´Ö¼è¤ê¿Þ¤Ç¤¹¡£´Ö¼è¤ê¤Ï3LDK+SIC+N¡¢ÀìÍÌÌÀѤÏ91.05Ö¡¢¥Ð¥ë¥³¥Ë¡¼ÌÌÀѤÏ22.27֤ȤʤäƤ¤¤Þ¤¹¡£
°ÌÃÖ¿Þ

°ÌÃÖ¿Þ[½Ðŵ¡§¸ø¼°HP]
¡¡·úÀßÃϤÏJRµþÅÔÀþ¡Ö¸þÆüÄ®¡×±Ø¤ÎÅ즤ǡ¢·úÀßÃæ¤Î¼«Í³ÄÌÏ©¤Ë¤è¤ê±Ø¥Ó¥ëÅ郎Åì¸ý¤Ëľ·ë¤·¡¢¤½¤Î±Ø¥Ó¥ëÅï·Ðͳ¤Ç¡ÖJ.GRAN TOWER µþÅÔ¸þÆüÄ®¡×¤â±Ø¤Ëľ·ë¤·¤Þ¤¹¡£¤Þ¤¿¡¢±Ø¤ÎÀ¾Â¦¤Ë¤ÏºåµÞµþÅÔÀþ¡ÖÅì¸þÆü¡×±Ø¤¬¤¢¤ê¡¢ÅÌÊâ9ʬ¤Îµ÷Î¥¤È¤Ê¤Ã¤Æ¤¤¤Þ¤¹¡£

´°À®Í½ÁÛ¿Þ[½Ðŵ¡§¸ø¼°HP]
¡¡¡Ö¸þÆüÄ®¡×±Ø¤«¤é¡ÖµþÅԡױؤޤǤÏ3±Ø¤Îµ÷Î¥¤È¤¤¤¦¶á¤µ¤È¤Ê¤Ã¤Æ¤¤¤Þ¤¹¡£
·úÀß¾õ¶·

¡¡2025ǯ11·î30Æü¤ËJRµþÅÔÀþ¡Ö¸þÆüÄ®¡×±Ø¤Î¥Û¡¼¥à¤«¤é»£±Æ¤·¤¿¡ÖJ.GRAN TOWER µþÅÔ¸þÆüÄ®¡×(ÃϾå38³¬¡¢¹â¤µÌó128m)¤Î·úÀßÃϤǤ¹¡£
¡¡Ãæ±û±ü¤Ë¸«¤¨¤Æ¤¤¤ë¤Î¤Ï¡Ö¥Ë¥Ç¥Ã¥¯Ëܼҥӥë¡×(ÃϾå22³¬¡¢¹â¤µ100.6m)¤Ç¡¢µþÅÔ¥¿¥ï¡¼¤ò½ü¤¯¤ÈµþÅԤǰìÈֹ⤤͹âÁØ¥Ó¥ë¤È¤Ê¤Ã¤Æ¤ª¤ê¡¢Æ±¥¿¥ï¥Þ¥ó¤Ï¤³¤Î¹â¤µ¤òÂ礤¯Ä¶¤¨¤ë¤³¤È¤Ë¤Ê¤ê¤Þ¤¹¡£

¡¡·úÀßÃϤÎÅ즤«¤é¤â»£¤ê¤¿¤«¤Ã¤¿¤Î¤Ç¤¹¤¬¡¢Åì¸ý¤Ï¤Þ¤À·úÀßÃæ¤Ç¡¢Å즤˹Ԥ¯¤Ë¤ÏÂ礤¯±ª²ó¤¹¤ëɬÍפ¬¤¢¤Ã¤¿¤Î¤ÇÄü¤á¤Þ¤·¤¿¡£

¡¡ÀþÏ©¾å¤Ë¤ÏÊâ¹Ô¼ÔÀìÍѤμ«Í³ÄÌÏ©¤Ï¿¤Ó¤Æ¤ª¤ê¡¢¤³¤ì¤¬·úÀßÃæ¤Î±Ø¥Ó¥ëÅï¤ËÀܳ¤¹¤ë¤ÈÅ즤˹Ԥ±¤ë¤è¤¦¤Ë¤Ê¤ê¤Þ¤¹¡£
ÃÏ¿Þ
ʪ·ï³µÍ×
̾¾Î¡§J.GRAN TOWER µþÅÔ¸þÆüÄ®
»ö¶È̾¡§JR¸þÆüÄ®±Ø¼þÊÕÃ϶èÂè°ì¼ï»Ô³¹ÃϺƳ«È¯»ö¶È
½êºßÃÏ¡§µþÅÔÉܸþÆü»Ô¿¹ËÜÄ®ÌîÅÄ202ÈÖÃÏ
¸òÄÌ¡§JRµþÅÔÀþ¡Ö¸þÆüÄ®¡×±Ø ÅÌÊâ1ʬ
¡¡¡¡¡¡ºåµÞµþÅÔÀþ¡ÖÅì¸þÆü¡×±Ø ÅÌÊâ9ʬ
ÍÑÅÓ¡§½»Âð¡¢¶È̳»ÜÀß¡¢Å¹ÊÞÅù
Áí¸Í¿ô¡§343¸Í¡Ê°ìÈÌÈÎÇäÂоÝ274¸Í¡Ë
³¬¿ô¡§ÃϾå38³¬
¹â¤µ¡§Ìó128m
¹½Â¤¡§Å´¶Ú¥³¥ó¥¯¥ê¡¼¥È¤ °ìÉôÅ´¹ü¤
ÉßÃÏÌÌÀÑ¡§1,659.63Ö
·úÃÛÌÌÀÑ¡§1,431.32Ö
±ä¾²ÌÌÀÑ¡§42,014.26Ö
·úÃۼ硦Çä¼ç¡§JRÀ¾ÆüËÜÉÔÆ°»º³«È¯¡¢»°°æÉÔÆ°»º¥ì¥¸¥Ç¥ó¥·¥ã¥ë
Àß·×¼Ô¡§¥¢¡¼¥ë¡¦¥¢¥¤¡¦¥¨¡¼
»Ü¹©¼Ô¡§ÂçÎÓÁÈ
¹©´ü¡§2025ǯ8·î1ÆüÃ幩¡Á2028ǯ7·î²¼½Ü½×¹©Í½Äê
Æþµï¡§2028ǯ9·î²¼½ÜͽÄê
½Ðŵ
¢§¸ø¼°HP¡§J.GRAN TOWER µþÅÔ¸þÆüÄ®
https://www.jgran.jp/mukomachi/
¢§¸þÆü»Ô¡§ÅԻԷײè²Ý¡Ê2025ǯ8·î28Æü¹¹¿·¡Ë
JR¸þÆüÄ®±Ø¼þÊÕÃ϶èÂè°ì¼ï»Ô³¹ÃϺƳ«È¯»ö¶È
¢§»°°æÉÔÆ°»º¡§¥×¥ì¥¹¥ê¥ê¡¼¥¹¡Ê2026ǯ1·î9Æü¡Ë
µþÅԽ顦ÃϾå38³¬·ú¡¢Ä¶¹âÁØ¥¿¥ï¡¼¥ì¥¸¥Ç¥ó¥¹ÃÂÀ¸
¢§À¾ÆüËÜιµÒÅ´Æ»¡§¥Ë¥å¡¼¥¹¥ê¥ê¡¼¥¹¡Ê2025ǯ8·î26Æü¡Ë
JR µþÅÔÀþ ¸þÆüÄ®±Ø ¼«Í³ÄÌÏ©¡ÊÀ¾¸ý¡Ë¡¦¶¶¾å±Ø¼Ë¤Î°ìÉô¶¡Íѳ«»Ï
µÚ¤ÓÅì¸ý¤Ë¤ª¤±¤ëºÆ³«È¯»ö¶È¤Î¹©»öÃå¼ê¤Ë¤Ä¤¤¤Æ
- ¥«¥Æ¥´¥ê
- µþÅÔÉÜ







