
¡¡Âçºå»Ô¤ÎƲÅçÉͤǷúÀßÃæ¤Îʬ¾ù¥¿¥ï¥Þ¥ó¡Ö¥Ñ¡¼¥¯¥¿¥ï¡¼ÂçºåƲÅçÉÍ¡×(ÃϾå40³¬¡¢¹â¤µ161.85m)¤Ç¤¹¡£2025ǯ11·î29Æü¤Ë»£±Æ¤·¤Þ¤·¤¿¡£»°°æÉÔÆ°»º¥ì¥¸¥Ç¥ó¥·¥ã¥ë¤Ë¤è¤ëʬ¾ù¤Î¥¿¥ï¡¼¥Þ¥ó¥·¥ç¥ó¤Ç¡¢ÅÓÃæ¥Õ¥í¥¢¤Î25³¬¡Á31³¬¤Ï¡Ö»°°æ¥¬¡¼¥Ç¥ó¥Û¥Æ¥ë¥º¡×¤Î¥×¥ì¥ß¥¢¥·¥ê¡¼¥º¤Ë¤Ê¤ê¤Þ¤¹¡£¤³¤Îµ»ö¤Ç¤ÏƱ¥¿¥ï¥Þ¥ó¤Î³µÍפä·úÀß¾õ¶·¡¢ÃÏ¿ÞÅù¤òºÜ¤»¤Æ¤¤¤Þ¤¹¡£
¥Ñ¡¼¥¯¥¿¥ï¡¼ÂçºåƲÅçÉͤˤĤ¤¤Æ

³°´Ñ´°À®Í½ÁÛCG[½Ðŵ¡§¸ø¼°HP]
¡¡¡Ö¥Ñ¡¼¥¯¥¿¥ï¡¼ÂçºåƲÅçÉ͡פÏÇßÅĤËÎÙÀܤ·¤¿Æ²ÅçÉÍ¥¨¥ê¥¢¤Î¥¿¥ï¡¼¥Þ¥ó¥·¥ç¥ó¤Ç¡¢µ¬ÌϤÏÃϾå40³¬¡¢Ãϲ¼1³¬¡¢¹â¤µ161.85m¡¢ÉßÃÏÌÌÀÑ5,735.23Ö¡¢·úÃÛÌÌÀÑ3,102.44Ö¡¢±ä¾²ÌÌÀÑ7Ëü4666.54֤ȤʤäƤ¤¤Þ¤¹¡£·úÃÛ¼ç¤Ï»°°æÉÔÆ°»º¥ì¥¸¥Ç¥ó¥·¥ã¥ë¡¢À߷׼ԤȻܹ©¼Ô¤ÏÀ¶¿å·úÀߤǡ¢½×¹©Í½Äê¤Ï2027ǯ1·î²¼½Ü¡¢Æþµï³«»Ï¤Ï2027ǯ5·î²¼½Ü¤ÎͽÄê¤Ç¤¹¡£¤Þ¤¿¡¢Æ»Ï©¤ò¶´¤ó¤ÀÆî¦¤ÎƲÅçÀî±è¤¤¤Ë¤ÏÃϾå2³¬¡¢¹â¤µ8.65m¤ÎANNEXÅï¤â¤¢¤ê¤Þ¤¹¡£
¡¡Áí¸Í¿ô¤Ï513¸Í¤Ç¡¢¤½¤Î¤¦¤Á°ìÈÌÈÎÇäÂоݸͿô357¸Í¤È¤Ê¤Ã¤Æ¤ª¤ê¡¢2026ǯ3·îÃæ½Ü¤«¤é¤ÏÂè3´ü1¼¡¤ÎÈÎÇ䳫»ÏͽÄê¤Ç¤¹¡£»Ä¤ê¤ÎÁíÈÎÇä¸Í¿ô¤Ï118¸Í¤Ç¡¢ÈÎÇä´Ö¼è¤ê¤Ï1LDK¡Á3LDK¡¢ÀìÍÌÌÀѤÏ40.13Ö¡Á200.85Ö¡¢¥Ð¥ë¥³¥Ë¡¼ÌÌÀѤÏ5.81Ö¡Á27.82֤ȤʤäƤ¤¤Þ¤¹¡£

ÉßÃÏÇÛÃÖ[½Ðŵ¡§»°°æÉÔÆ°»º¥ì¥¸¥Ç¥ó¥·¥ã¥ë]
¡¡L»ú·¿¤ÎÉßÃϤËÄãÁØÅï¤È¥¿¥ï¥Þ¥óËÜÂΤȤʤë¹âÁØÅ郎ÇÛÃÖ¤µ¤ì¡¢Æ»Ï©¤ò¶´¤ó¤ÀƲÅçÀî¤ËÌ̤·¤¿¾ì½ê¤Ë¤ÏANNEXÅ郎ÇÛÃÖ¤µ¤ì¤Þ¤¹¡£

ΩÌÌ¥¤¥á¡¼¥¸[½Ðŵ¡§»°°æÉÔÆ°»º¥ì¥¸¥Ç¥ó¥·¥ã¥ë]
¡¡Æ±¥¿¥ï¥Þ¥ó¤ÎÅÓÃæ¥Õ¥í¥¢¤È¤Ê¤ë25³¬¡Á31³¬¤Ï»°°æÉÔÆ°»º¥Û¥Æ¥ë¥Þ¥Í¥¸¥á¥ó¥È¤¬±¿±Ä¤¹¤ë¡Ö»°°æ¥¬¡¼¥Ç¥ó¥Û¥Æ¥ë¥º¡×¤Î¥×¥ì¥ß¥¢¥·¥ê¡¼¥º¤È¤Ê¤ê¤Þ¤¹¡£ÁíµÒ¼¼¿ô¤Ï220¼¼¤Ç¥Æ¥é¥¹¤òÈ÷¤¨¤¿¥ì¥¹¥È¥é¥ó¤ä¥Ð¡¼¡¢¥²¥¹¥È¥é¥¦¥ó¥¸¡¢·Ê¿§¤â³Ú¤·¤á¤ë¥Õ¥£¥Ã¥È¥Í¥¹¥¸¥à¤¬ÇÛÃÖ¤µ¤ì¤Þ¤¹¡£
¡¡¥¿¥ï¡¼¥Þ¥ó¥·¥ç¥ó¤È¤·¤Æ¤Ï¥Û¥Æ¥ë¤è¤ê¾å³¬¤È¤Ê¤ë32³¬¡Á38³¬¤¬¥¨¥°¥¼¥¯¥Æ¥£¥Ö¥Õ¥í¥¢¡¢39³¬¤¬¥×¥ì¥ß¥¢¥à¥Õ¥í¥¢¤È¤Ê¤ê¡¢¤½¤ì¤é¤Î¥Õ¥í¥¢¤«¤é¤Ï¥Û¥Æ¥ë¥Õ¥í¥¢¤Ø¥À¥¤¥ì¥¯¥È¥¢¥¯¥»¥¹²Äǽ¤È¤Ê¤ê¤Þ¤¹¡£

¥¨¥ó¥È¥é¥ó¥¹¥¢¥×¥í¡¼¥Á´°À®Í½ÁÛCG[½Ðŵ¡§¸ø¼°H]
¡¡¼Ö´ó¤»¤â¤¢¤ë¥¨¥ó¥È¥é¥ó¥¹¥¢¥×¥í¡¼¥Á¤Î´°À®Í½ÁۿޤǤ¹¡£

ANNEX´°À®Í½ÁÛCG[½Ðŵ¡§¸ø¼°H]
¡¡Æ»Ï©¤ò¶´¤ó¤ÀƲÅçÀî±è¤¤¤Ë¤ÏANNEXÅ郎ÇÛÃÖ¤µ¤ì¤Þ¤¹¡£

³°´Ñ´°À®Í½ÁÛCG[½Ðŵ¡§¸ø¼°H]
¡¡Æ²ÅçÀî±Û¤·¤Ë¸«¤¿´°À®Í½ÁۿޤǤ¹¡£

³°´Ñ´°À®Í½ÁÛCG[½Ðŵ¡§¸ø¼°H]
¡¡Æ±¥¿¥ï¥Þ¥ó¤ÏÇßÅĤ¬ÅÌÊâ·÷¤ÎΩÃϤȤʤäƤ¤¤Þ¤¹¡£

³°´Ñ´°À®Í½ÁÛCG[½Ðŵ¡§¸ø¼°H]
¡¡¡Ö¥Ñ¡¼¥¯¥¿¥ï¡¼ÂçºåƲÅçÉ͡פΥâ¥Á¡¼¥Õ¤Ï¿å¤ÎºÙ¤«¤¤Î®¤ì¤¬Ï¢Â³¤¹¤ëÂì¤Î¥«¥¹¥±¡¼¥É¤Ç¡¢ÄºÉô¤Î¥Ç¥¶¥¤¥ó¤Ï¿å¤Îή¤ì¤ò¾ÝħŪ¤Ëɽ¤·¤¿¤â¤Î¤Ë¤Ê¤Ã¤Æ¤¤¤Þ¤¹¡£ÊÒÊý¤ò¹â¤¯¤¹¤ë¤³¤È¤Ç¾åή¤«¤é²¼Î®¤Ø¤Èή¤ì¤ë¿å¤Îư¤¤òɽ¸½¤·¡¢ÈóÂоΥǥ¶¥¤¥ó¤ÎĺÉô¤¬±ó¤¯¤«¤é¸«¤Æ¤â°ìÌܤǤ狼¤ë¥¤¥ó¥Ñ¥¯¥È¤òÍ¿¤¨¤ë¤³¤È¤Ë¤Ê¤ê¤Þ¤¹¡£
¶¦ÍÑÉô

¥¨¥ó¥È¥é¥ó¥¹¥Û¡¼¥ë´°À®Í½ÁÛCG[½Ðŵ¡§¸ø¼°H]
¡¡¥¨¥ó¥È¥é¥ó¥¹¥Û¡¼¥ë¤Ï¿å·Ê¤ÈÅ·°æ¥¢¡¼¥È¤¬¤¢¤ë¶õ´Ö¤Ë¤Ê¤ê¤Þ¤¹¡£

¥³¥ó¥·¥§¥ë¥¸¥å¥«¥¦¥ó¥¿¡¼´°À®Í½ÁÛCG[½Ðŵ¡§¸ø¼°H]
¡¡¥³¥ó¥·¥§¥ë¥¸¥å¥«¥¦¥ó¥¿¡¼¤Î´°À®Í½ÁۿޤǤ¹¡£

¥é¥¤¥Ö¥é¥ê¡¼¥é¥¦¥ó¥¸´°À®Í½ÁÛCG[½Ðŵ¡§¸ø¼°H]
¡¡2³¬¤ËÇÛÃÖ¤µ¤ì¤ë¥é¥¤¥Ö¥é¥ê¡¼¥é¥¦¥ó¥¸¤Î´°À®Í½ÁۿޤǤ¹¡£

¥Ñ¥Ö¥ê¥Ã¥¯¥×¥ì¥¤¥¹´°À®Í½ÁÛCG[½Ðŵ¡§¸ø¼°H]
¡¡¥ï¡¼¥¥ó¥°¥¹¥Ú¡¼¥¹¤È¤Ê¤ë¥Ñ¥Ö¥ê¥Ã¥¯¥×¥ì¥¤¥¹¤Î´°À®Í½ÁۿޤǤ¹¡£

¥¤¥ó¥Õ¥£¥Ë¥Æ¥£¥×¡¼¥ë´°À®Í½ÁÛCG[½Ðŵ¡§¸ø¼°H]
¡¡24³¬¤Ë¤Ï¶¦ÍÑ»ÜÀߤȤ·¤Æ¥¤¥ó¥Õ¥£¥Ë¥Æ¥£¥×¡¼¥ë¤¬ÇÛÃÖ¤µ¤ì¤Þ¤¹¡£

¥¢¥¯¥é¥é¥¦¥ó¥¸´°À®Í½ÁÛCG[½Ðŵ¡§¸ø¼°H]
¡¡¥¤¥ó¥Õ¥£¥Ë¥Æ¥£¥×¡¼¥ë¤ÎÎ٤ˤϥ¢¥¯¥¢¥é¥¦¥ó¥¸¤¬ÇÛÃÖ¤µ¤ì¤Þ¤¹¡£

¥Á¥ë¥¢¥¦¥È¥Æ¥é¥¹´°À®Í½ÁÛCG[½Ðŵ¡§¸ø¼°H]
¡¡¥ê¥é¥Ã¥¯¥¹¥¨¥ê¥¢¤Ë¤Ï¥É¥é¥¤¥µ¥¦¥Ê¡¢¿åÉ÷Ϥ¤¬¤¢¤ê¡¢³°µ¤Íá¤ò³Ú¤·¤á¤ë¥Á¥ë¥¢¥¦¥È¥Æ¥é¥¹¤âÀßÃÖ¤µ¤ì¤Þ¤¹¡£
¡¡Â¾¤Ë¤â¶¦ÍÑ»ÜÀߤȤ·¤Æ¤Ï24»þ´ÖÍøÍѲÄǽ¤Ê¥Õ¥£¥Ã¥È¥Í¥¹¥ë¡¼¥à¡¢¥Þ¥Ã¥µ¡¼¥¸¤ò³Ú¤·¤á¤ë¥È¥ê¡¼¥È¥á¥ó¥È¥ë¡¼¥à¤âÍѰդµ¤ì¤Þ¤¹¡£

¥Ö¥ê¡¼¥º¥¥ã¥Ó¥ó´°À®Í½ÁÛCG[½Ðŵ¡§¸ø¼°H]
¡¡ANNEXÅï¤Î¥Ö¥ê¡¼¥º¥¥ã¥Ó¥ó¤Î´°À®Í½ÁۿޤǤ¹¡£Àî¤ËÉ⤫¤ÖÁ¥¤ò¥â¥Á¡¼¥Õ¤È¤·¤Æ¤ª¤ê¡¢¥ê¥Ð¡¼¥Ó¥å¡¼¤ò¸ʬ¤Ë´®Ç½¤Ç¤¤ë¥¬¥é¥¹Ä¥¤ê¤Î¶õ´Ö¤Ë¤Ê¤ê¤Þ¤¹¡£
´Ö¼è¤ê¿Þ

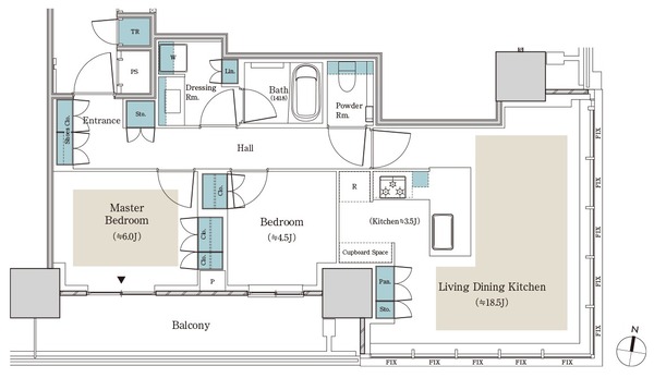
S-43An¥¿¥¤¥×[½Ðŵ¡§¸ø¼°H]
¡¡¥¹¡¼¥Ú¥ê¥¢¥Õ¥í¥¢¤ËÇÛÃÖ¤µ¤ì¤ëS-43An¥¿¥¤¥×¤Î´Ö¼è¤ê¿Þ¤Ç¤¹¡£´Ö¼è¤ê¤Ï1LDK+WIC+TR¡¢ÀìÍÌÌÀѤÏ43.43֡ʥȥé¥ó¥¯¥ë¡¼¥àÌÌÀÑ0.42Ö´Þ¤à¡Ë¡¢¥Ð¥ë¥³¥Ë¡¼ÌÌÀѤÏ11.78֤ȤʤäƤ¤¤Þ¤¹¡£

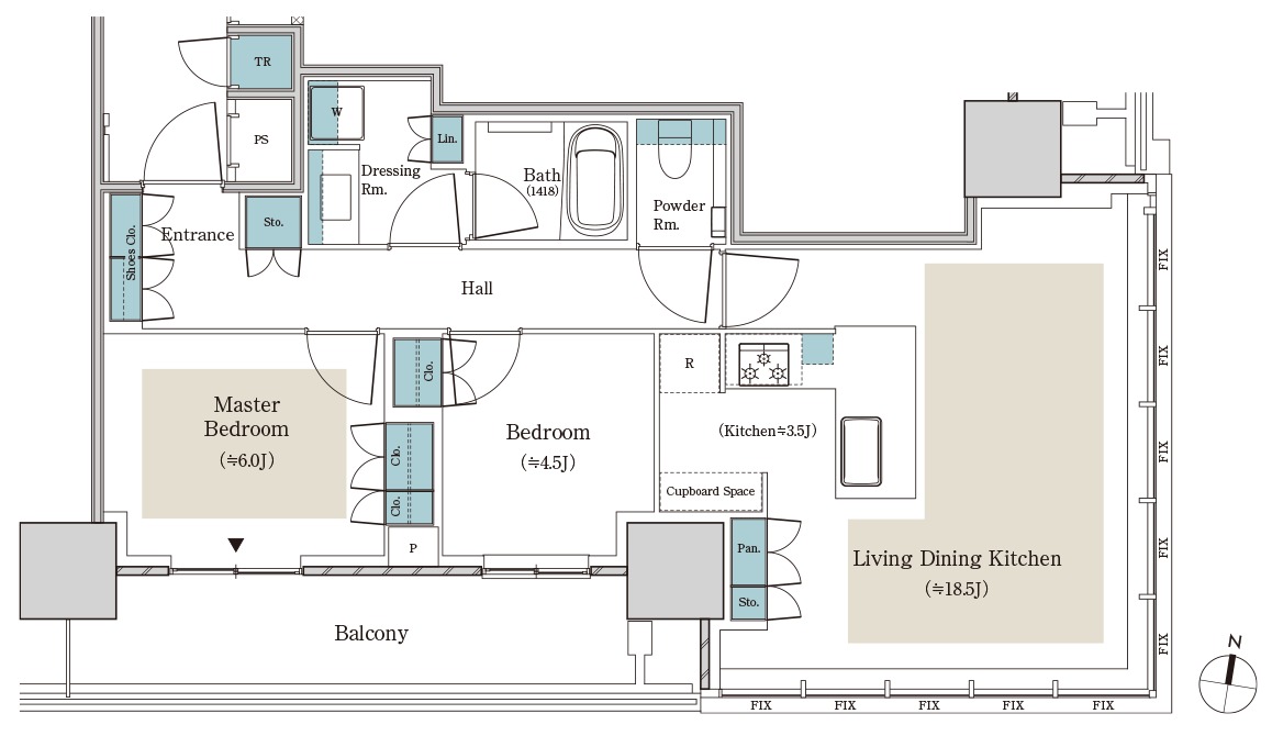
S-69Ase¥¿¥¤¥×[½Ðŵ¡§¸ø¼°H]
¡¡¥¹¡¼¥Ú¥ê¥¢¥Õ¥í¥¢¤ËÇÛÃÖ¤µ¤ì¤ëS-69Ase¥¿¥¤¥×¤Î´Ö¼è¤ê¿Þ¤Ç¤¹¡£´Ö¼è¤ê¤Ï2LDK+TR¡¢ÀìÍÌÌÀѤÏ69.24֡ʥȥé¥ó¥¯¥ë¡¼¥àÌÌÀÑ0.58Ö´Þ¤à¡Ë¡¢¥Ð¥ë¥³¥Ë¡¼ÌÌÀѤÏ11.70֤ȤʤäƤ¤¤Þ¤¹¡£

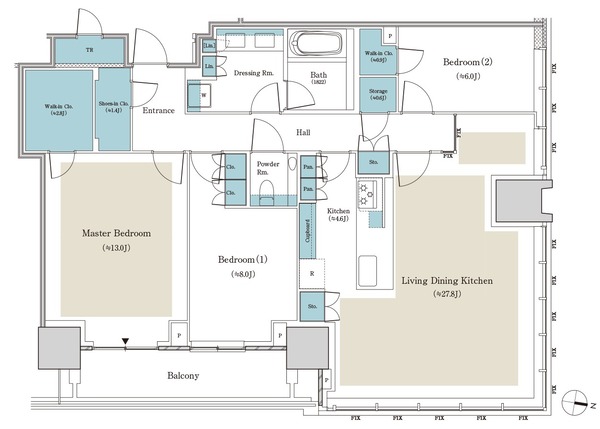
E-127Bne¥¿¥¤¥×[½Ðŵ¡§¸ø¼°H]
¡¡¥¨¥°¥¼¥¯¥Æ¥£¥Ö¥Õ¥í¥¢¤ËÇÛÃÖ¤µ¤ì¤ëE-127Bne¥¿¥¤¥×¤Î´Ö¼è¤ê¿Þ¤Ç¤¹¡£´Ö¼è¤ê¤Ï3LDK+2WIC+SIC+S+TR¡¢ÀìÍÌÌÀѤÏ127.73֡ʥȥé¥ó¥¯¥ë¡¼¥àÌÌÀÑ1.60Ö´Þ¤à¡Ë¡¢¥Ð¥ë¥³¥Ë¡¼ÌÌÀѤÏ11.00֤ȤʤäƤ¤¤Þ¤¹¡£

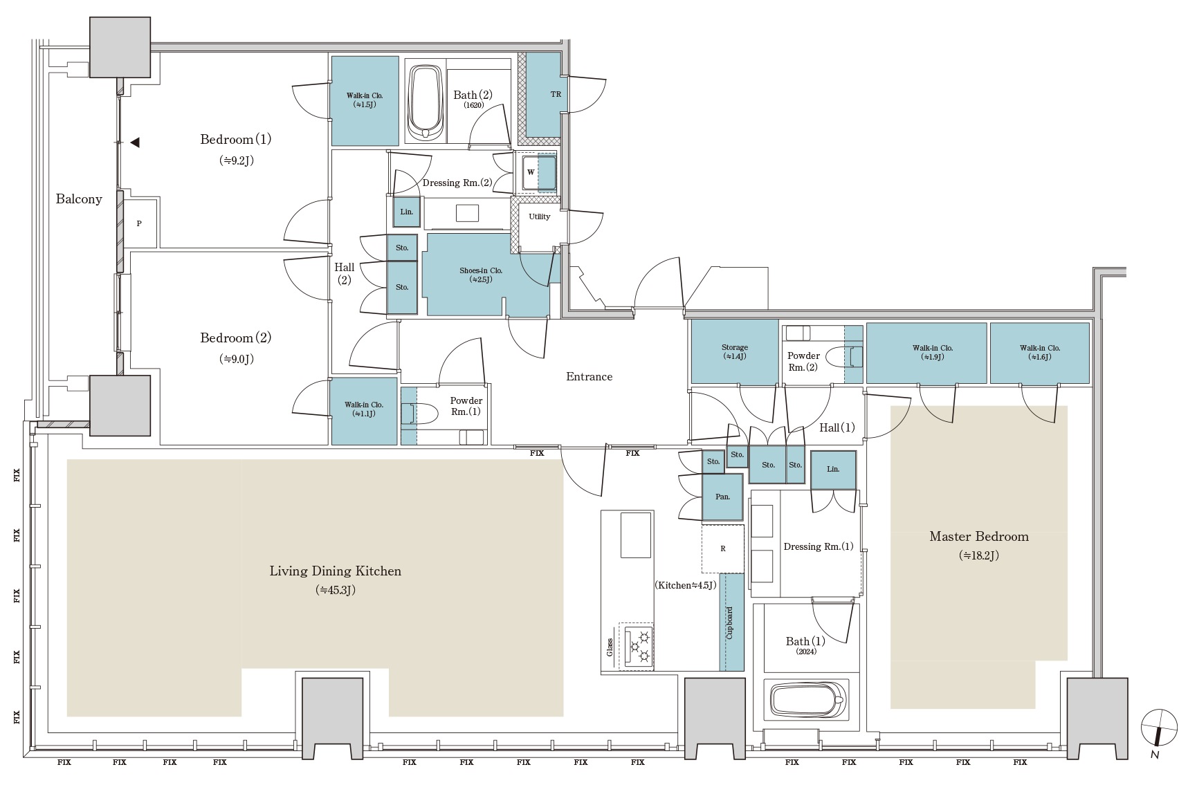
P-200Ane¥¿¥¤¥×[½Ðŵ¡§¸ø¼°H]
¡¡39³¬¤Î¥×¥ì¥ß¥¢¥à¥Õ¥í¥¢¡ÊÅ·°æ¹âÌó3,000mm¡Ë¤ËÇÛÃÖ¤µ¤ì¤ëP-200Ane¥¿¥¤¥×¤Î´Ö¼è¤ê¿Þ¤Ç¤¹¡£´Ö¼è¤ê¤Ï3LDK+4WIC+SIC+S+TR¡¢ÀìÍÌÌÀѤÏ200.85֡ʥȥé¥ó¥¯¥ë¡¼¥àÌÌÀÑ1.40Ö¡¢¥æ¡¼¥Æ¥£¥ê¥Æ¥£ÌÌÀÑ0.87Ö´Þ¤à¡Ë¡¢¥Ð¥ë¥³¥Ë¡¼ÌÌÀѤÏ11.00֤ȤʤäƤ¤¤Þ¤¹¡£
°ÌÃÖ¿Þ

°ÌÃÖ¿Þ[½Ðŵ¡§¸ø¼°HP]
¡¡¡Ö¥Ñ¡¼¥¯¥¿¥ï¡¼ÂçºåƲÅçÉ͡פÏÇßÅĤˤâ¶á¤¤Æ²ÅçÉÍ¥¨¥ê¥¢¤Ë°ÌÃÖ¤·¤Æ¤ª¤ê¡¢ºÇ´ó±Ø¤ÏƲÅçÀî¤òÅϤ俤Ȥ³¤í¤Ë¤¢¤ëµþºåÅÅÅ´µþºåÃæÇ·ÅçÀþ¡ÖÅÏÊÕ¶¶¡×±Ø¤ÇÅÌÊâ3ʬ¤È¤Ê¤Ã¤Æ¤¤¤Þ¤¹¡£
¡¡Â¾¤Ë¤âJR¡ÖÂçºå¡×±Ø¤«¤é¤ÏÅÌÊâ10ʬ¡¢JRÅìÀ¾Àþ¡ÖËÌ¿·Ãϡױؤ«¤é¤ÏÅÌÊâ6ʬ¡¢Âçºå¥á¥È¥í»Í¤Ä¶¶Àþ¡ÖÀ¾ÇßÅġױؤ«¤é¤ÏÅÌÊâ6ʬ¡¢Âçºå¥á¥È¥í¸æÆ²¶ÚÀþ¡ÖÍä²°¶¶¡×±Ø¤«¤é¤ÏÅÌÊâ10ʬ¤Ê¤ÉÊ£¿ô¤Î±Ø¡¦Ï©Àþ¤¬ÍøÍѲÄǽ¤ÊΩÃϤǡ¢Âçºå±Ø¤Ë·Ò¤¬¤ëÃϲ¼³¹¤Î½ÐÆþ¸ý¤Þ¤Ç¤ÏÅÌÊâ2ʬ¤È¤Ê¤Ã¤Æ¤¤¤Þ¤¹¡£
·úÀß¾õ¶·

¡¡2025ǯ11·î29Æü¤ËƲÅçÀî¤ÎÍ·ÊâÆ»¤«¤é»£±Æ¤·¤¿¡Ö¥Ñ¡¼¥¯¥¿¥ï¡¼ÂçºåƲÅçÉÍ¡×(ÃϾå40³¬¡¢¹â¤µ161.85m)¤Ç¤¹¡£

¡¡±¦²¼¤Î¥µ¥ó¥È¥ê¡¼¤Î´ÇÈĤ¬ß꡹¤È¥é¥¤¥È¥¢¥Ã¥×¤µ¤ì¤Æ¤¤¤ë¤³¤È¤Ç¡¢¤½¤Î´ÇÈÄÁ°¤ÎÉô²°Çä¤ì¤ë¤Î¤«¡©¤ÈÏÃÂê¤Ë¤Ê¤Ã¤Æ¤¤¤Þ¤·¤¿¤¬¡¢Ìë¤Ë¸«¤Ë¹Ô¤Ã¤¿¤È¤¤Ë¤Ï¾ÃÅô¤·¤Æ¤¤¤Þ¤·¤¿¡£

¡¡Æ²ÅçÀî±è¤¤¤Î·ä´Ö¤«¤é¡Ö¥Ñ¡¼¥¯¥¿¥ï¡¼ÂçºåƲÅçÉ͡פÎÄãÁØÉô¤¬¸«¤¨¤Æ¤¤¤Þ¤¹¤¬¡¢¤½¤Î·ä´Ö¤ËANNEXÅ郎·úÀߤµ¤ì¤Þ¤¹¡£

¡¡¤³¤Á¤é¤ÎÆî¸þ¤¤ÎÉô²°¤ÏÌܤÎÁ°¤ËÃæÇ·Åç¤Î͹âÁإӥ뷲¤¬¹¤¬¤ê¡¢È¿ÂФÎË̦¤ÏÇßÅĤÎ͹âÁإӥ뷲¤¬ÌܤÎÁ°¤Ë¹¤¬¤ê¤Þ¤¹¡£

¡¡Æ±¥¿¥ï¥Þ¥ó¤ÎÅÓÃæ¥Õ¥í¥¢¤È¤Ê¤ë25³¬¡Á31³¬¤Ï¡Ö»°°æ¥¬¡¼¥Ç¥ó¥Û¥Æ¥ë¥º¡×¤Î¥×¥ì¥ß¥¢¥·¥ê¡¼¥º¤Ë¤Ê¤ê¤Þ¤¹¤¬¡¢ËÌÀ¾Â¦¡Ê¼Ì¿¿º¸Â¦¡Ë¤Î¡Ö¥Ö¥ê¥ê¥¢¥¿¥ï¡¼Æ²Åç¡×(ÃϾå49³¬¡¢¹â¤µ195m)¤âÅÓÃæ¥Õ¥í¥¢¤È¤Ê¤ë28³¬¡Á37³¬¤¬¥Û¥Æ¥ë¡Ö¥Õ¥©¡¼¥·¡¼¥º¥ó¥º¥Û¥Æ¥ëÂçºå¡×¤Ë¤Ê¤ê¤Þ¤¹¡£

¡¡À¾Â¦¤«¤é»£±Æ¡£Á°¤ÎÁ°¤ÏƲÅçÀî¤Ç¡¢±¦¤¬ÅÚº´ËÙÀî¤Ë¶´¤Þ¤ì¤¿ÃæÇ·Åç¤È¤Ê¤Ã¤Æ¤¤¤Þ¤¹¡£

¡¡¤³¤ÎÊÕ¤ê¤Ï¤É¤³¤ò¸«¤Æ¤â͹âÁØ¥Ó¥ë¤ä¥¿¥ï¡¼¥Þ¥ó¥·¥ç¥ó¤¬¤¢¤ê¡¢Ä¶¹âÁØ¥Ó¥ë¥Þ¥Ë¥¢Åª¤Ë¤ÏÊ⤯¤Î¤¬³Ú¤·¤¤¾ì½ê¤Ç¤¹¡£

¡¡ÌܤÎÁ°¤È¤Ê¤ëËÌÀ¾Â¦¤«¤é¸«¾å¤²¤¿ÍͻҤǤ¹¡£

¡¡ËÌÅ즤«¤é»£±Æ¡£Ë̦¤ÏÌÏÍͤ¬Æþ¤Ã¤¿¥Ç¥¶¥¤¥ó¤È¤Ê¤Ã¤Æ¤¤¤Þ¤¹¡£

¡¡11·î30Æü¤Ë¡ÖÍä²°¶¶¥¹¥Æ¡¼¥·¥ç¥ó¥ï¥ó¡×(ÃϾå31³¬¡¢¹â¤µ149.205m)¤Î30³¬¤Ë¤¢¤ë¥¹¥«¥¤¥Æ¥é¥¹¤«¤é»£±Æ¡£Âçºå¤Ç°ìÈÖ¿·¤·¤¤Å¸Ë¾Âæ¤Ç̵ÎÁ³«Êü¤µ¤ì¤Æ¤ª¤ê¡¢¤³¤³¤«¤é¤ÏÌð°õ¤òÆþ¤ì¤¿¾ì½ê¤Ë¡Ö¥Ñ¡¼¥¯¥¿¥ï¡¼ÂçºåƲÅçÉ͡פ¬¥®¥ê¥®¥ê¸«¤¨¤Æ¤¤¤Þ¤·¤¿¡£

¡¡Åã²°¤Î·Á¤ò³Îǧ¤¹¤ë¤Ë¤Ï¤Á¤ç¤¦¤ÉÎɤ¤¾ì½ê¤Ë¤Ê¤ê¤½¤¦¤Ç¤¹¡£
ÃÏ¿Þ
ʪ·ï³µÍ×

¡¡·úÃ۷ײè¤Î¤ªÃΤ餻¤Ç¤¹¡£¿ôÃͤϸø¼°HP¤ÎÃͤòÍ¥À褷¤Æ·ÇºÜ¤·¤Æ¤¤¤Þ¤¹¡£
¢£Êª·ï³µÍ×¢£
̾¾Î¡§¥Ñ¡¼¥¯¥¿¥ï¡¼ÂçºåƲÅçÉÍ
»ö¶È̾¡§(²¾¾Î)Âçºå»ÔËÌ¶èÆ²ÅçÉÍÆóÃúÌܷײè
½êºßÃÏ¡§ÂçºåÉÜÂçºå»ÔËÌ¶èÆ²ÅçÉÍÆóÃúÌÜ4ÈÖ1³°
¸òÄÌ¡§JR¡ÖÂçºå¡×±Ø ÅÌÊâ10ʬ
¡¡¡¡¡¡JRÅìÀ¾Àþ¡ÖËÌ¿·ÃÏ¡×±Ø ÅÌÊâ6ʬ
¡¡¡¡¡¡Âçºå¥á¥È¥í»Í¤Ä¶¶Àþ¡ÖÀ¾ÇßÅÄ¡×±Ø ÅÌÊâ6ʬ
¡¡¡¡¡¡Âçºå¥á¥È¥í¸æÆ²¶ÚÀþ¡ÖÍä²°¶¶¡×±Ø ÅÌÊâ10ʬ
¡¡¡¡¡¡µþºåÅÅÅ´µþºåÃæÇ·ÅçÀþ¡ÖÅÏÊÕ¶¶¡×±Ø ÅÌÊâ3ʬ
ÍÑÅÓ¡§Ê¬¾ù¶¦Æ±½»Â𡢥ۥƥ롢°û¿©Å¹ÊÞ¡¢»ö̳½ê
Áí¸Í¿ô¡§513¸Í¡Ê°ìÈÌÈÎÇäÂоݸͿô357¸Í¡Ë
ÁíµÒ¼¼¿ô¡§220¼¼
³¬¿ô¡§ÃϾå40³¬¡¢Ãϲ¼1³¬
¹â¤µ¡§161.85m
¹½Â¤¡§Å´¶Ú¥³¥ó¥¯¥ê¡¼¥È¤¡¢Å´¹ü¤
ÂÑ¿ÌÀǽ¡§Ìȿ̹½Â¤
ÉßÃÏÌÌÀÑ¡§5,735.23Ö
·úÃÛÌÌÀÑ¡§3,102.44Ö
±ä¾²ÌÌÀÑ¡§74,666.54Ö
·úÃۼ硧»°°æÉÔÆ°»º¥ì¥¸¥Ç¥ó¥·¥ã¥ë
Àß·×¼Ô¡§À¶¿å·úÀß
»Ü¹©¼Ô¡§À¶¿å·úÀß
¹©´ü¡§2023ǯ6·î1ÆüÃ幩¡Á2027ǯ1·î²¼½Ü½×¹©Í½Äê
Æþµï¡§2027ǯ5·î²¼½Ü½ÕͽÄê
½Ðŵ
¢§¸ø¼°HP¡§¥Ñ¡¼¥¯¥¿¥ï¡¼ÂçºåƲÅçÉÍ
https://www.31sumai.com/mfr/K1902/
¢§»°°æÉÔÆ°»º¥ì¥¸¥Ç¥ó¥·¥ã¥ë¡§¥Ë¥å¡¼¥¹¡Ê2023ǯ6·î1Æü¡Ë
»°°æÉÔÆ°»º¥°¥ë¡¼¥×½é¤Îʬ¾ù¥Þ¥ó¥·¥ç¥ó¤È¥Û¥Æ¥ë¤ÎÂ絬ÌÏÊ£¹ç³«È¯
¡Ö¡Ê²¾¾Î¡ËÂçºå»ÔËÌ¶èÆ²ÅçÉÍÆóÃúÌܷײè¡×Ã幩
- ¥«¥Æ¥´¥ê
- Âçºå»Ô







