
¡¡ÃÓÂÞ¤ÎÂ絬ÌϺƳ«È¯¡ÖÅìÃÓÂÞ°ìÃúÌÜÃ϶èÂè°ì¼ï»Ô³¹ÃϺƳ«È¯»ö¶È¡×(ÃϾå31³¬¡¢¹â¤µ174.67m)¤Î·úÀßÃϤǤ¹¡£2025ǯ11·î22Æü¤Ë»£±Æ¤·¤Þ¤·¤¿¡£Ìó9,900֤Ȥ¤¤¦¹Âç¤ÊÉßÃÏÌÌÀѤκƳ«È¯¤Ç¡¢¥¤¥±¥Ð¥¹±¿¹ÔµòÅÀ¤äʸ²½Âθ³»ÜÀߤâÆþ¤ë¥ª¥Õ¥£¥¹¥Ó¥ë¤Ë¤Ê¤ê¤Þ¤¹¡£¤³¤Îµ»ö¤Ç¤ÏƱºÆ³«È¯¤Î³µÍפä·úÀß¾õ¶·¡¢ÃÏ¿ÞÅù¤òºÜ¤»¤Æ¤¤¤Þ¤¹¡£
ÅìÃÓÂÞ°ìÃúÌÜÃ϶è¤Ë¤Ä¤¤¤Æ

¥¤¥á¡¼¥¸¥Ñ¡¼¥¹[½Ðŵ¡§ÅìµþÅÔ]
¡¡¡ÖÅìÃÓÂÞ°ìÃúÌÜÃ϶èÂè°ì¼ï»Ô³¹ÃϺƳ«È¯»ö¶È¡×¤ÏJRÃÓÂޱؤÎËÌÅ즡¢»³¼êÀþÆâ¦¤ÎÂ絬ÌϺƳ«È¯¤Ç¡¢µ¬ÌϤÏÃϾå31³¬¡¢Ãϲ¼4³¬¡¢¹â¤µ174.67m¡¢ÉßÃÏÌÌÀÑ9,900.21Ö¡¢·úÃÛÌÌÀÑ7,618.38Ö¡¢±ä¾²ÌÌÀÑ15Ëü5561֤ȤʤäƤ¤¤Þ¤¹¡£
¡¡·úÃÛ¼ç¤ÏÅìÃÓÂÞ°ìÃúÌÜÃ϶è»Ô³¹ÃϺƳ«È¯Áȹç¡Ê»²²ÃÁȹç°÷¡§½»Í§ÉÔÆ°»º¡Ë¡¢À߷׼Ԥϥ¢¡¼¥ë¡¦¥¢¥¤¡¦¥¨¡¼¡¢»Ü¹©¼Ô¤ÏÂçÀ®·úÀߤÇ2028ǯ7·î²¼½Ü¤Î½×¹©Í½Äê¤Ç¤¹¡£

ÃÇÌÌ¿Þ[½Ðŵ¡§ËÅç¶è]
¡¡¥Õ¥í¥¢¹½À®¤ÏÃϲ¼1¡Á2³¬¤Ë¥¤¥Ù¥ó¥È¥Û¡¼¥ë¡¢ÃϾå1³¬¤Ë¥¢¥È¥ê¥¦¥à¤ä¥¤¥±¥Ð¥¹±¿¹ÔµòÅÀ¡¢3³¬¡¢5³¬¤Ëʸ²½Âθ³»ÜÀß¡¢¤½¤·¤Æ6³¬¡Á31³¬¤Ë¥ª¥Õ¥£¥¹¥Õ¥í¥¢¤¬ÇÛÃÖ¤µ¤ì¤Þ¤¹¡£

ÇÛÃÖ¿Þ[½Ðŵ¡§ÅìµþÅÔ]
¡¡»ÍÊý¤¬Æ»Ï©¤Ë°Ï¤Þ¤ì¤¿ÉßÃϤȤʤäƤª¤ê¡¢À¾Â¦¤Ë¤ÏÌó2000֤ι¾ì1¹æ(¥²¡¼¥È¹¾ì)¡¢Æî¦¤Ë¤ÏÌó900֤ι¾ì2¹æ¡¢Å즤«¤éË̦¤Ë¤«¤±¤Æ¤ÏÌó2000֤ι¾ì3¹æ(¤ß¤É¤ê¤ÎµÖ)¤¬À°È÷¤µ¤ì¡¢Ë̦¤Ë¤Ï¥¤¥±¥Ð¥¹±¿¹ÔµòÅÀ¤¬ÇÛÃÖ¤µ¤ì¤Þ¤¹¡£

¥¤¥±¥Ð¥¹±¿¹ÔµòÅÀ¤ÎÀ°È÷¥¤¥á¡¼¥¸[½Ðŵ¡§Æâ³ÕÉÜ]
¡¡¥¤¥±¥Ð¥¹±¿¹ÔµòÅÀ¤Ë¤Ï¾è¹ß¾ì¤äÂÔµ¡¡¦½¼ÅÅ¥¹¥Ú¡¼¥¹¡¢¤½¤·¤ÆÂÔ¹ç½ê¤ä´Ñ¸÷°ÆÆâ½ê¤â¤¢¤ë¥é¥¦¥ó¥¸¤¬ÇÛÃÖ¤µ¤ì¤Þ¤¹¡£

¥¤¥á¡¼¥¸¥Ñ¡¼¥¹[½Ðŵ¡§Æâ³ÕÉÜ]
¡¡À¾Â¦ÄãÁØÉô¤Ë¤Ï¥²¡¼¥È¹¾ì¤ä¥¢¥È¥ê¥¦¥à¶õ´Ö¤¬À°È÷¤µ¤ì¡¢Ê¸²½Âθ³»ÜÀߤǤϥ¢¥Ë¥á¤Îºî²è¡¦ÊÔ½¸Âθ³¤ä¥µ¥Ö¥«¥ë¥Á¥ã¡¼¤ÎÀ¤³¦¤Ë¿¨¤ì¤ë»ÜÀߤ¬·×²è¤µ¤ì¤Æ¤¤¤Þ¤¹¡£
¡¡¤Þ¤¿¡¢Ãϲ¼¤ËÀ°È÷¤µ¤ì¤ë¥¤¥Ù¥ó¥È¥Û¡¼¥ë¤Ç¤Ï¥¢¡¼¥È¡¦¥«¥ë¥Á¥ã¡¼Åù¤Î¥¤¥Ù¥ó¥ÈͶÃפ˼è¤êÁȤàÊý¿Ë¤Ç¡¢±¿±Ä¤Ï½»Í§ÉÔÆ°»º¤ÈKADOKAWA¤Î2¼Ò¤¬Ã´¤¦¤³¤È¤Ë¤Ê¤Ã¤Æ¤¤¤Þ¤¹¡£

¥¤¥á¡¼¥¸¥Ñ¡¼¥¹[½Ðŵ¡§Æâ³ÕÉÜ]
¡¡¥²¡¼¥È¹¾ì¤Ï²°º¬¤Î¤¢¤ë¶õ´Ö¤È¤Ê¤ê¡¢¥¤¥Ù¥ó¥ÈÍøÍѤâ·×²è¤µ¤ì¤Æ¤¤¤Þ¤¹¡£

¥¤¥á¡¼¥¸¥Ñ¡¼¥¹[½Ðŵ¡§Æâ³ÕÉÜ]
¡¡¾å¶õ¤«¤é¸«¤¿¡ÖÅìÃÓÂÞ°ìÃúÌÜÃ϶èÂè°ì¼ï»Ô³¹ÃϺƳ«È¯»ö¶È¡×¤Î´°À®Í½ÁۿޤǤ¹¡£Æ±ºÆ³«È¯¥Ó¥ë¤Î±¦Â¦¤ÏËÅç¶èÄ£¼ËÀ×ÃϤ˷úÀߤµ¤ì¤¿¥ª¥Õ¥£¥¹¥Ó¥ë¡Ö¥Ï¥ì¥¶¥¿¥ï¡¼¡×(ÃϾå33³¬¡¢¹â¤µ158.28m)¤Ç¡¢º¸Â¦¤Ï¹â¤µÌó210m¤Î±ìÆÍ¤¬¤¢¤ë¡ÖËÅçÀ¶Áݹ©¾ì¡×¤Ç¤¹¡£
Ê¿ÌÌ¿Þ

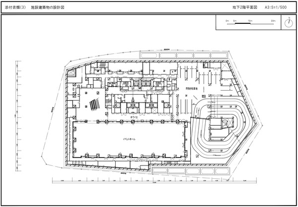
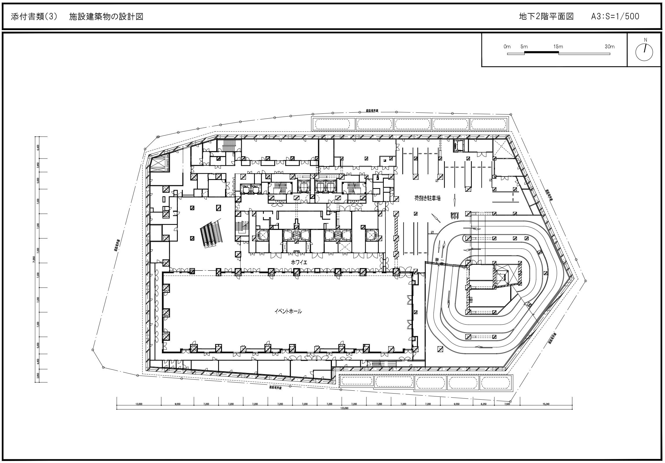
Ãϲ¼2³¬Ê¿ÌÌ¿Þ[½Ðŵ¡§ËÅç¶è]
¡¡Ãϲ¼2³¬¤Ë¤Ï¥¤¥Ù¥ó¥È¥Û¡¼¥ë¤¬ÇÛÃÖ¤µ¤ì¤Þ¤¹¡£

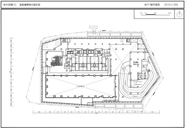
Ãϲ¼1³¬Ê¿ÌÌ¿Þ[½Ðŵ¡§ËÅç¶è]
¡¡Ãϲ¼1³¬¤Ï¥¤¥Ù¥ó¥È¥Û¡¼¥ë¤Ë¤Ê¤ê¤Þ¤¹¡£¤¿¤À¡¢Ãϲ¼2³¬¤«¤é2Áؤò»È¤Ã¤¿¶õ´Ö¤Î¤¿¤á¡¢Æþ¸ý¤ÏÃϲ¼2³¬¤È¤Ê¤ê¤Þ¤¹¡£

1³¬Ê¿ÌÌ¿Þ[½Ðŵ¡§ËÅç¶è]
¡¡ÃϾå1³¬¤Ï2ÁØ¿á¤È´¤±¤Î¥¢¥È¥ê¥¦¥à¡¢¥¨¥ó¥È¥é¥ó¥¹¡¢¥¤¥±¥Ð¥¹±¿¹ÔµòÅÀ¤¬ÇÛÃÖ¤µ¤ì¤Þ¤¹¡£

2³¬Ê¿ÌÌ¿Þ[½Ðŵ¡§ËÅç¶è]
¡¡2³¬¤Ë¤ÏËɺÒÈ÷ÃßÁҸˤ¬ÇÛÃÖ¤µ¤ì¤Þ¤¹¡£Ë̦¤Ë½»Âð¤Î¥¹¥Ú¡¼¥¹¤â¤¢¤ê¡¢·úÃÛʪ´Ä¶·×²è½ñÀ©ÅÙ¤ò¸«¤ë¤È½»Â𥹥ڡ¼¥¹¤¬50.46Ö³ÎÊݤµ¤ì¤Æ¤¤¤Þ¤¹¡£

3³¬Ê¿ÌÌ¿Þ[½Ðŵ¡§ËÅç¶è]
¡¡3³¬¤Ë¤Ïʸ²½Âθ³»ÜÀߤ¬ÇÛÃÖ¤µ¤ì¤Þ¤¹¡£

4³¬Ê¿ÌÌ¿Þ[½Ðŵ¡§ËÅç¶è]
¡¡Ê¸²½Âθ³»ÜÀߤÏ2Áؤò»È¤Ã¤¿¶õ´Ö¤È¤Ê¤ê¤Þ¤¹¡£

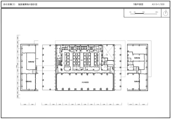
5³¬Ê¿ÌÌ¿Þ[½Ðŵ¡§ËÅç¶è]
¡¡5³¬¤Ë¤âʸ²½Âθ³»ÜÀߤ¬ÇÛÃÖ¤µ¤ì¤Þ¤¹¡£

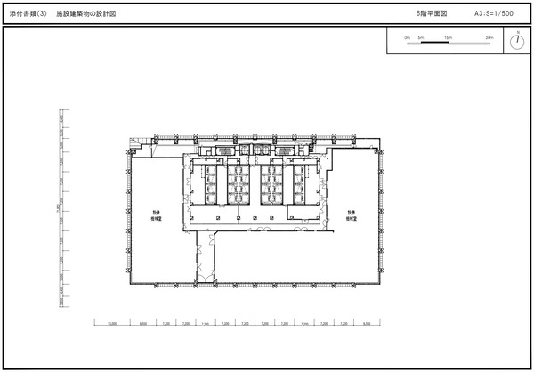
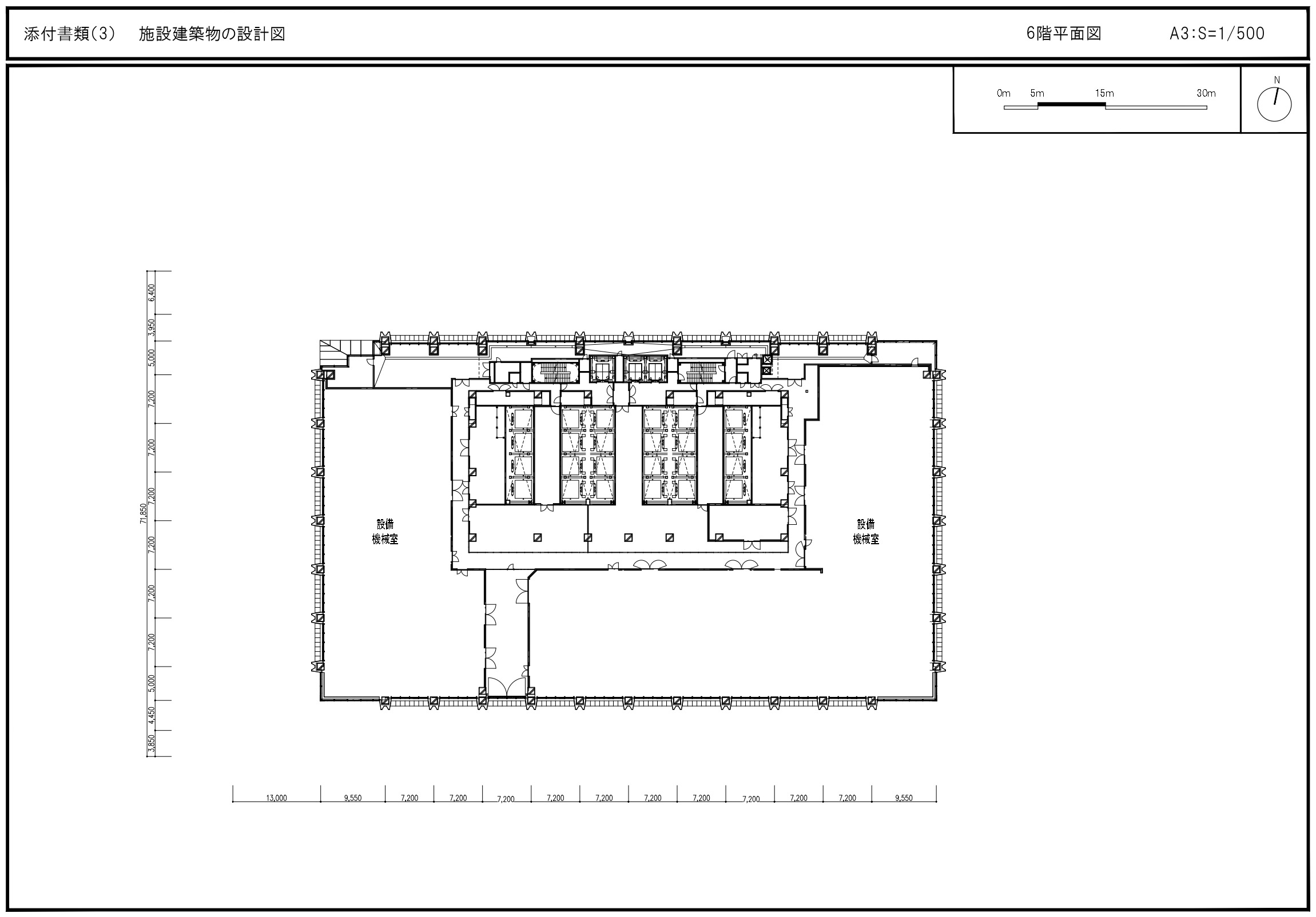
6³¬Ê¿ÌÌ¿Þ[½Ðŵ¡§ËÅç¶è]
¡¡6³¬¤ÏÀßÈ÷¡¦µ¡³£¼¼¤È¤Ê¤ê¤Þ¤¹¡£

7³¬Ê¿ÌÌ¿Þ[½Ðŵ¡§ËÅç¶è]
¡¡7³¬¤ÏËɺÒÈ÷ÃßÁҸˤȥª¥Õ¥£¥¹¥Õ¥í¥¢¤Ë¤Ê¤ê¤Þ¤¹¡£

8¡¦9³¬Ê¿ÌÌ¿Þ[½Ðŵ¡§ËÅç¶è]
¡¡8³¬¤«¤é¤¬½ã¿è¤Ê¥ª¥Õ¥£¥¹¥Õ¥í¥¢¤Ë¤Ê¤ê¤Þ¤¹¡£

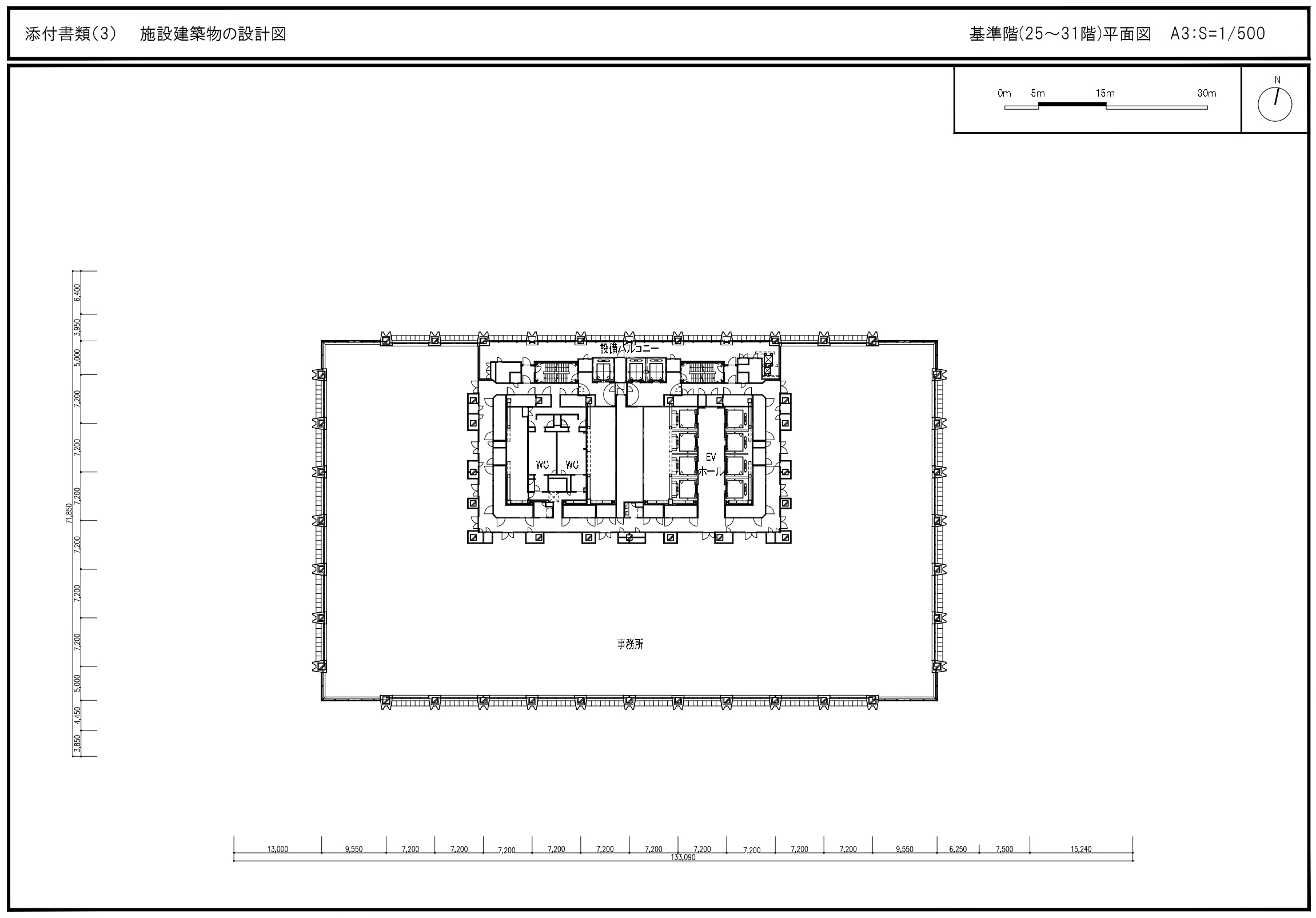
25¡Á31³¬Ê¿ÌÌ¿Þ[½Ðŵ¡§ËÅç¶è]
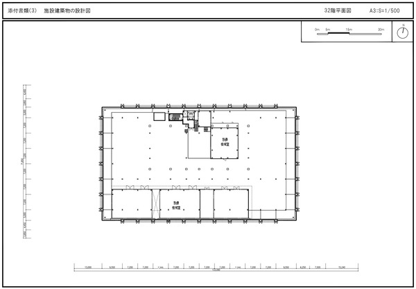
¡¡31³¬¤Þ¤Ç¤¬¥ª¥Õ¥£¥¹¥Õ¥í¥¢¤Ë¤Ê¤ê¤Þ¤¹¡£

32³¬Ê¿ÌÌ¿Þ[½Ðŵ¡§ËÅç¶è]
¡¡32³¬¤ÏÀßÈ÷¡¦µ¡³£¼¼¤Ë¤Ê¤ê¤Þ¤¹¡£
°ÌÃÖ¿Þ

°ÌÃÖ¿Þ[½Ðŵ¡§ÅìµþÅÔ]
¡¡·úÀßÃϤϻ³¼êÀþÆâ¦¤È¤Ê¤ëÃÓÂޱؤÎËÌÅ즤ǡ¢»³¼êÀþ¤ËÌ̤·¤¿¾ì½ê¤È¤Ê¤Ã¤Æ¤ª¤ê¡¢¤½¤ÎÀþÏ©¤ò¶´¤ó¤ÀË̦¤Ë¤ÏËÅç¶èΩÃÓÂÞ¥¹¥Ý¡¼¥Ä¥»¥ó¥¿¡¼¤ä¡ÖËÅçÀ¶Áݹ©¾ì¡×¤¬¤¢¤ê¤Þ¤¹¡£¤Á¤ç¤¦¤É¤³¤ÎÊÕ¤ê¤ÏÃÓÂÞ¤ÎÈ˲ڳ¹¤Îü¤¢¤¿¤ê¤Ë°ÌÃÖ¤·¤Æ¤¤¤Þ¤¹¡£
·úÀß¾õ¶·

¡¡2025ǯ11·î22Æü¤Ë¸ÙÀþ¶¶¤«¤é»£±Æ¤·¤¿¡ÖÅìÃÓÂÞ°ìÃúÌÜÃ϶èÂè°ì¼ï»Ô³¹ÃϺƳ«È¯»ö¶È¡×(ÃϾå31³¬¡¢¹â¤µ174.67m)¤Î·úÀßÃϤǤ¹¡£Ãæ±û±ü¤Î¥ª¥Õ¥£¥¹¥Ó¥ë¤ÏËÅç¶èÄ£¼ËÀ×ÃϤ˷úÀߤµ¤ì¤¿¡Ö¥Ï¥ì¥¶¥¿¥ï¡¼¡×(ÃϾå33³¬¡¢¹â¤µ158.28m)¤Ç¤¹¡£

¡¡·úÀßÃÏÆâ¤Ë¥º¡¼¥à¤Ç¤¹¡£ÃÏÃæ¾ã³²¹©»ö¤â¹Ô¤ï¤ì¤Æ¤ª¤ê¡¢°ú¤È´¤«¤ì¤¿¹º¤¬Å¾¤¬¤Ã¤Æ¤¤¤ë¾ì½ê¤â¤¢¤ê¤Þ¤·¤¿¡£

¡¡Â¾¤Îºî¶È¹©Äø¤Ï»³Î±¹©»ö¡¢·¡ºï¹©»ö¡¢¹½Âæ²¾ÀߤȤʤäƤ¤¤Þ¤·¤¿¡£

¡¡Å즤«¤é»£±Æ¡£

¡¡»³Î±¹©»ö¤Ë»ÈÍѤ¹¤ë¤È»×¤ï¤ì¤ëH¹Ý¤¬ÃÖ¤«¤ì¤Æ¤¤¤Þ¤·¤¿¡£

¡¡ÉßÃϤÎü¤ò¸«¤ë¤È·¡ºï¤µ¤ì¤Æ¤¤¤ë¤³¤È¤¬¤ï¤«¤ê¤Þ¤¹¡£

¡¡ÆîÅ즤«¤é»£±Æ¡£¤³¤ÎÊÕ¤ê¤Ïƻϩ¤ÈÊâÆ»¤¬¤´¤Á¤ã¤´¤Á¤ã¤·¤Æ¤¤¤Þ¤·¤¿¤¬¡¢¤ï¤«¤ê¤ä¤¹¤¯²þÎɤµ¤ì¤Æ¤¤¤Þ¤·¤¿¡£

¡¡ÆîÀ¾Â¦¤«¤é»£±Æ¡£

¡¡À¾Â¦¤«¤é¸«¤¿²¾°Ï¤¤¤ÎÃæ¤Ç¤¹¡£Çظå¤Ï¼óÅÔ¹âÃÓÂÞÀþ¤Ç¤¹¡£

¡¡ËÌÀ¾Â¦¤«¤é»£±Æ¡£

¡¡Ë̦¤«¤é»£±Æ¤·¤¿²¾°Ï¤¤¤ÎÃæ¤Ç¤¹¡£ÃϾå¶íÂι©»ö¤¬»Ï¤Þ¤ë¤Î¤Ï¤Þ¤À¤Þ¤ÀÀè¤Ë¤Ê¤ê¤½¤¦¤Ç¤¹¡£
ÃÏ¿Þ
ʪ·ï³µÍ×

¡¡·úÃ۷ײè¤Î¤ªÃΤ餻¤Ç¤¹¡£
¢£Êª·ï³µÍ×¢£
»ö¶È̾¡§ÅìÃÓÂÞ°ìÃúÌÜÃ϶èÂè°ì¼ï»Ô³¹ÃϺƳ«È¯»ö¶È»ÜÀß·úÃÛʪ
½êºßÃÏ¡§ÅìµþÅÔËÅç¶èÅìÃÓÂÞ°ìÃúÌÜ45¡Á48ÈÖ
¸òÄÌ¡§JR³ÆÀþ¡¦Åìµþ¥á¥È¥í³ÆÀþ¡¦ÅìÉðÅì¾åÀþ¡ÖÃÓÂÞ¡×±Ø
ÍÑÅÓ¡§»ö̳½ê¡¢½¸²ñ¾ì¡¢Å¹ÊÞ¡¢Ãó¼Ö¾ì¡¢ÃóÎØ¾ì
³¬¿ô¡§ÃϾå31³¬¡¢Ãϲ¼4³¬
¹â¤µ¡§174.67m
¹½Â¤¡§Å´¹ü¤¡¢°ìÉôÅ´¶Ú¥³¥ó¥¯¥ê¡¼¥È¤
´ðÁù©Ë¡¡§Ä¾ÀÜ´ðÁù©Ë¡
ÉßÃÏÌÌÀÑ¡§9,900.21Ö
·úÃÛÌÌÀÑ¡§7,618.38Ö
±ä¾²ÌÌÀÑ¡§155,561.00Ö
·úÃۼ硧ÅìÃÓÂÞ°ìÃúÌÜÃ϶è»Ô³¹ÃϺƳ«È¯Áȹç
»²²ÃÁȹç°÷¡§½»Í§ÉÔÆ°»º
Àß·×¼Ô¡§¥¢¡¼¥ë¡¦¥¢¥¤¡¦¥¨¡¼
»Ü¹©¼Ô¡§ÂçÀ®·úÀß
¹©´ü¡§2025ǯ3·î²¼½ÜÃ幩¡Á2028ǯ7·î²¼½Ü½×¹©Í½Äê
½Ðŵ
¢§ËÅç¶è¡§¤Þ¤Á¤Å¤¯¤ê
»Ô³¹ÃϺƳ«È¯»ö¶È¡ÊÅìÃÓÂÞ°ìÃúÌÜÃ϶è¡Ë
¢§ÅìµþÅÔ¡§»Ô³¹ÃϺƳ«È¯»ö¶È¤Ë¤Ä¤¤¤Æ
ÅìÃÓÂÞ°ìÃúÌÜ
¢§ÅìµþÅÔ¡§Êóƻȯɽ»ñÎÁ¡Ê2022ǯ7·î5Æü¡Ë
ÅìÃÓÂÞ°ìÃúÌÜÃ϶è»Ô³¹ÃϺƳ«È¯Áȹç¤ÎÀßΩ¤òǧ²Ä¤·¤Þ¤¹
¢§Âè17²ó¡¡ÅìµþÅÔÅÔ»ÔºÆÀ¸Ê¬²Ê²ñ¡¡ÇÛÉÛ»ñÎÁ¡Ê2020ǯ3·î23Æü¡Ë
»ñÎÁ£± ÅÔ»ÔºÆÀ¸ÆÃÊÌÃ϶è¡ÊÅìÃÓÂÞ°ìÃúÌÜÃ϶è¡ËÅԻԷײè¤Î³µÍ×
¢§½»Í§ÉÔÆ°»º¡§¥Ë¥å¡¼¥¹¥ê¥ê¡¼¥¹¡Ê2022ǯ7·î26Æü¡Ë
ÅìÃÓÂÞ°ìÃúÌÜÃ϶èÂè°ì¼ï»Ô³¹ÃϺƳ«È¯»ö¶È¡¡ºÆ³«È¯ÁȹçÀßΩ¤Î¤ªÃΤ餻
- ¥«¥Æ¥´¥ê
- ËÅç¶è







