
="pict" />
¥¤¥á¡¼¥¸¥Ñ¡¼¥¹[½Ðŵ¡§ÅìµþÅÔ]
¡¡É𢾮»³±ØÁ°¤Ç·×²è¤µ¤ì¤Æ¤¤¤ëʬ¾ù¥¿¥ï¥Þ¥ó¡Ö¾®»³»°ÃúÌÜÂè1Ã϶èÂè°ì¼ï»Ô³¹ÃϺƳ«È¯»ö¶È¡×(ÃϾå40³¬¡¢¹â¤µÌó145m)¤Ë¤Ä¤¤¤Æ¡¢11·î27Æü¤Ë¾®»³»°ÃúÌÜÂè1Ã϶è»Ô³¹ÃϺƳ«È¯Áȹç¤ÎÀßΩǧ²Ä¤ò¤¹¤ë¤ÈÅìµþÅÔ¤è¤êȯɽ¤¬¤¢¤ê¤Þ¤·¤¿¡£Æ±ºÆ³«È¯¤Ï»°É©ÃϽê¥ì¥¸¥Ç¥ó¥¹¤ÈÆüÅ´¶½ÏÂÉÔÆ°»º¤Ë¤è¤ëÁí¸Í¿ô823¸Í¤Î¥¿¥ï¡¼¥Þ¥ó¥·¥ç¥ó¤Ç¡¢¹©´ü¤Ï2029ǯ4·îÃ幩¡Á2033ǯ9·î½×¹©Í½Äê¤È¤Ê¤Ã¤Æ¤¤¤Þ¤¹¡£¤³¤Îµ»ö¤Ç¤ÏƱ¥¿¥ï¥Þ¥ó¤Î³µÍפ丽¶·¡¢ÃÏ¿ÞÅù¤òºÜ¤»¤Æ¤¤¤Þ¤¹¡£
¾®»³»°ÃúÌÜÂè1Ã϶è¤Ë¤Ä¤¤¤Æ

¥¤¥á¡¼¥¸¥Ñ¡¼¥¹[½Ðŵ¡§»°É©ÃϽê¥ì¥¸¥Ç¥ó¥¹]
¡¡¡Ö¾®»³»°ÃúÌÜÂè1Ã϶èÂè°ì¼ï»Ô³¹ÃϺƳ«È¯»ö¶È¡×¤Ï¥Ñ¥ë¥à¾¦Å¹³¹¤ÎÆþ¸ý¤ËÌ̤·¤¿É𢾮»³±ØÁ°¤Î¥¿¥ï¡¼¥Þ¥ó¥·¥ç¥ó¡ÊA-1³¹¶è¡§¹âÁØÅï¡Ë¤Ç¡¢µ¬ÌϤÏÃϾå39³¬¡¢Ãϲ¼2³¬¡¢¹â¤µÌó145m¡¢ÉßÃÏÌÌÀÑÌó8,090Ö¡¢·úÃÛÌÌÀÑÌó6,090Ö¡¢±ä¾²ÌÌÀÑÌó11Ëü4630Ö¡¢Áí¸Í¿ô823¸Í¤È¤Ê¤Ã¤Æ¤¤¤Þ¤¹¡£»ö¶È¼Ô¤Ï¾®»³»°ÃúÌÜÂè1Ã϶è»Ô³¹ÃϺƳ«È¯Áȹç¡Ê»²²ÃÁȹç°÷¡§¤Ï»°É©ÃϽê¥ì¥¸¥Ç¥ó¥¹¡¢ÆüÅ´¶½ÏÂÉÔÆ°»º¡Ë¡¢ÆÃÄê¶È̳Âå¹Ô¼Ô¤ÏÂçÎÓÁȤǹ©´ü¤Ï2029ǯ4·îÃ幩¡¢2033ǯ9·î½×¹©Í½Äê¡¢Áí»ö¶ÈÈñ¤Ï963²¯1000Ëü±ß¤Ç¤¹¡£
¡¡¤Þ¤¿¡¢¥Ñ¥ë¥à¾¦Å¹³¹¤ò¶´¤ó¤ÀÎÙ¤ÏA-2³¹¶è¤Ç¡¢µ¬ÌϤÏÃϾå3³¬¡¢Ãϲ¼2³¬¡¢¹â¤µÌó20m¡¢ÉßÃÏÌÌÀÑÌó3,190Ö¡¢±ä¾²ÌÌÀÑÌó9,220֤ȤʤäƤ¤¤Þ¤¹¡£

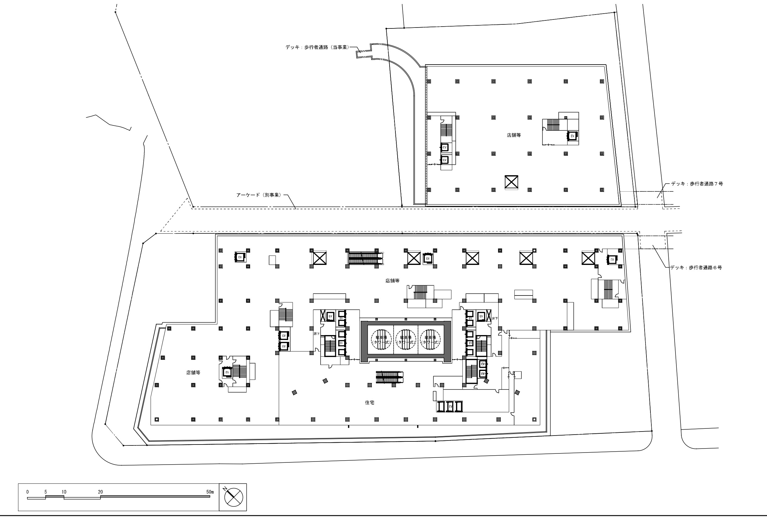
ÇÛÃÖ¿Þ[½Ðŵ¡§ÅìµþÅÔ]
¡¡¿Þ¤Îº¸¾å¤¬É𢾮»³±ØÁ°¤È¤Ê¤ëÇÛÃֿޤǤ¹¡£ÉßÃϤÎÃæ±û¤ò²£ÀڤäƤ¤¤ë¶è²èƻϩ1¹æ¤¬¥¢¡¼¥±¡¼¥É³¹¤Î¡Ö¥Ñ¥ë¥à¾¦Å¹³¹¡×¤Ç¡¢A-1³¹¶è¤Î¹âÁØÅï¤ÈA-2³¹¶è¤ÎÄãÁØÅï¤Ï¥Ç¥Ã¥¤ÇÀܳ¤·¤Þ¤¹¡£
¡¡¤Þ¤¿¡¢Êâ¹Ô¼ÔÄÌÏ©6¹æ¡¢7¹æ¤ÏÎ٤Ƿײ褵¤ì¤Æ¤¤¤ë¥Ä¥¤¥ó¥¿¥ï¥Þ¥ó¤Î¡Ö¾®»³»°ÃúÌÜÂè2Ã϶èÂè°ì¼ï»Ô³¹ÃϺƳ«È¯»ö¶È¡×(ÃϾå41³¬¡¢¹â¤µÌó145m)¤ËÀܳ¤¹¤ëÊâ¹Ô¼Ô¥Ç¥Ã¥¤È¤Ê¤Ã¤Æ¤¤¤Þ¤¹¡£Êâ¹Ô¼ÔÄÌÏ©9¹æ¡¢10¹æ¡¢13¹æ¤â¥Ç¥Ã¥¥ì¥Ù¥ë¤ÎÉßÃÏÆâÄÌÏ©¤È¤Ê¤Ã¤Æ¤¤¤Þ¤¹¡£

ÃÇÌÌ¥¤¥á¡¼¥¸[½Ðŵ¡§ÅìµþÅÔ]
¡¡¹âÁØÅï¤Î1¡Á3³¬¤ÏŹÊÞ¤Ç3¡Á39³¬¤¬¥¿¥ï¡¼¥Þ¥ó¥·¥ç¥óÉôʬ¤È¤Ê¤ê¡¢ÄãÁØÅï¤ÏÃϲ¼1³¬¡Á3³¬¤ËŹÊÞ¤¬ÇÛÃÖ¤µ¤ì¤Þ¤¹¡£

ÃÇÌÌ¿Þ(ÆîÀ¾-ËÌÅì)[½Ðŵ¡§ÉÊÀî¶è]
¡¡ÃÇÌ̿ޤξܺ٤Ǥ¹¡£¹âÁØÅï¤Î3³¬¤Ë½»Âð¤Î¥í¥Ó¡¼¤¬ÇÛÃÖ¤µ¤ì¡¢4³¬¤ÎÃóÎØ¾ì¤ò¶´¤ó¤Ç5³¬¡Á39³¬¤¬½»Âð¥Õ¥í¥¢¤È¤Ê¤ê¤Þ¤¹¡£

ÃÇÌÌ¿Þ(ÆîÅì-ËÌÀ¾)[½Ðŵ¡§ÉÊÀî¶è]
¡¡¹âÁØÅï¤ÎËÌÀ¾Â¦¤Ë¤Ï5³¬·ú¤Æ¤ÎŹÊÞ¤¬Æþ¤ëÄãÁØÉô¤â¤¢¤ê¤Þ¤¹¡£
Ê¿ÌÌ¿Þ

Ãϲ¼2³¬Ê¿ÌÌ¿Þ[½Ðŵ¡§ÉÊÀî¶è]
¡¡Ãϲ¼2³¬¤ÏÃó¼Ö¾ì¤Èµ¡³£¼¼¤È¤Ê¤ê¡¢¹âÁØÅï¤ÈÄãÁØÅï¤ÏÃϲ¼2³¬¤Ç¤â·Ò¤¬¤ê¤Þ¤¹¡£

Ãϲ¼1³¬Ê¿ÌÌ¿Þ[½Ðŵ¡§ÉÊÀî¶è]
¡¡¹âÁØÅï¤ÎÃϲ¼1³¬¤ÏÃó¼Ö¾ì¡¢ÃóÎØ¾ì¡¢µ¡³£¼¼¤È¤Ê¤ê¡¢ÄãÁØÅï¤ÎÃϲ¼1³¬¤ÏŹÊÞ¡¢ÃóÎØ¾ìÅù¤È¤Ê¤ê¤Þ¤¹¡£

1³¬Ê¿ÌÌ¿Þ[½Ðŵ¡§ÉÊÀî¶è]
¡¡Î¾Åï¤È¤â1³¬¤ÏŹÊޤȤʤê¤Þ¤¹¡£¹âÁØÅï¤Îξü¤Ë¤Ï¹¾ì¤¬À°È÷¤µ¤ì¤Þ¤¹¡£

2³¬Ê¿ÌÌ¿Þ[½Ðŵ¡§ÉÊÀî¶è]
¡¡2³¬¤âŹÊÞ¥Õ¥í¥¢¤ÇÊâ¹Ô¼Ô¥Ç¥Ã¥¤Ë¤è¤Ã¤Æ¹âÁØÅï¤ÈÄãÁØÅ郎Àܳ¤·¤Þ¤¹¡£

3³¬Ê¿ÌÌ¿Þ[½Ðŵ¡§ÉÊÀî¶è]
¡¡3³¬¤âŹÊÞ¥Õ¥í¥¢¤È¤Ê¤ê¤Þ¤¹¤¬¡¢¹âÁØÅï¤Î°ìÉô¤Ï½»Âð¤Î¥í¥Ó¡¼¤¬ÇÛÃÖ¤µ¤ì¤Þ¤¹¡£ÄãÁØÅï¤Ï3³¬¤¬ºÇ¾å³¬¤È¤Ê¤ê¤Þ¤¹¡£

4³¬Ê¿ÌÌ¿Þ[½Ðŵ¡§ÉÊÀî¶è]
¡¡4³¬±ØÂ¦¤ÎÄãÁØÉô¤ÏŹÊޤȤʤꡢ¥¿¥ï¥Þ¥óËÜÂΦ¤ÏÃóÎØ¾ì¤È¤Ê¤ê¤Þ¤¹¡£

5¡Á6³¬Ê¿ÌÌ¿Þ[½Ðŵ¡§ÉÊÀî¶è]
¡¡5³¬±ØÂ¦¤ÎÄãÁØÉô¤ÏŹÊޤȤʤꡢ¥¿¥ï¥Þ¥óËÜÂΦ¤Ï5³¬¤«¤é¤¬½»Âð¥Õ¥í¥¢¤È¤Ê¤ê¤Þ¤¹¡£

7¡Á29³¬Ê¿ÌÌ¿Þ[½Ðŵ¡§ÉÊÀî¶è]
¡¡29³¬¤Ë¤Ï½»Âð¤Î¶¦ÍÑ»ÜÀߤ¬ÇÛÃÖ¤µ¤ì¤Þ¤¹¡£

30¡Á39³¬Ê¿ÌÌ¿Þ[½Ðŵ¡§ÉÊÀî¶è]
¡¡Áí¸Í¿ô¤Ï823¸Í¡¢ÆâÌõ¤Ï1R¡Ê30֡ˤ¬36¸Í¡¢1LDK¡Ê40¡Á59֡ˤ¬204¸Í¡¢2LDK¡Ê640¡Á69֡ˤ¬169¸Í¡¢3LDK¡Ê70¡Á89֡ˤ¬324¸Í¡¢4LDK¡Ê90¡Á100ÖĶ¡Ë¤¬90¸Í¤Ç·×²è¤µ¤ì¤Æ¤¤¤Þ¤¹¡£½êÍ·ÁÂ֤϶èʬ½êͤÎʬ¾ù½»Âð¤È¤Ê¤ê¤Þ¤¹¡£
°ÌÃÖ¿Þ

°ÌÃÖ¿Þ[½Ðŵ¡§»°É©ÃϽê¥ì¥¸¥Ç¥ó¥¹]
¡¡·×²èÃϤÏÅìµÞÌܹõÀþ¡ÖÉ𢾮»³¡×±Ø¤ÎÌܤÎÁ°¤Ç¡Ö¥Ñ¥ë¥à¾¦Å¹³¹¡×¤ÎÆþ¸ý¤òL»ú·¿¤Ë¶´¤ó¤ÀÉßÃϤȤʤäƤ¤¤Þ¤¹¡£

¼ç¤Ê¼þÊÕ³«È¯¤Î¾ÜºÙ¿Þ[½Ðŵ¡§ÅìµþÅԴͶÉ]
¡¡·×²èÃϤÎË̦¤Ë¤Ï¡Ö¥Ñ¡¼¥¯¥·¥Æ¥£É𢾮»³ ¥¶ ¥¿¥ï¡¼¡ÊÉ𢾮»³¥Ñ¥ë¥à±ØÁ°Ã϶èÂè°ì¼ï»Ô³¹ÃϺƳ«È¯»ö¶È¡Ë¡×(ÃϾå41³¬¡¢ºÇ¹â¹â¤µ144.95m)¤È¡Ö¥·¥Æ¥£¥¿¥ï¡¼É𢾮»³¡ÊÉ𢾮»³±ØÁ°Ä̤êÃ϶èÂè°ì¼ï»Ô³¹ÃϺƳ«È¯»ö¶È¡Ë¡×(ÃϾå41³¬¡¢¹â¤µ144.504m)¤¬´û¤Ë´°À®¤·¤Æ¤ª¤ê¡¢ÅìÎ٤Ǥϥĥ¤¥ó¥¿¥ï¥Þ¥ó¤È¤Ê¤ë¡Ö(²¾¾Î)¾®»³»°ÃúÌÜÂè2Ã϶èÂè°ì¼ï»Ô³¹ÃϺƳ«È¯»ö¶È¡×(ÃϾå41³¬¡¢¹â¤µÌó145m)¤¬·×²è¤µ¤ì¤Æ¤¤¤Þ¤¹¡£

¾Íè¤Î´°À®Í½ÁÛ¿Þ[½Ðŵ¡§ÅìµþÅԴͶÉ]
¡¡¾ÍèŪ¤Ë¤Ï¤Û¤ÜƱ¤¸¹â¤µ¤Î¥¿¥ï¥Þ¥ó¤¬¹ç·×5Åïʤ֤³¤È¤Ë¤Ê¤ê¤Þ¤¹¡£
¸½¶·

¡¡É𢾮»³±ØÁ°¤Î¥í¡¼¥¿¥ê¡¼±Û¤·¤Ë»£±Æ¤·¤¿¡Ö¾®»³»°ÃúÌÜÂè1Ã϶èÂè°ì¼ï»Ô³¹ÃϺƳ«È¯»ö¶È¡×(ÃϾå40³¬¡¢¹â¤µÌó145m)¤Î·×²èÃϤǤ¹¡£º¸¤¬¡Ö¥Ñ¥ë¥à¾¦Å¹³¹¡×¤ÎÆþ¸ý¤Ç¡¢¤½¤³¤«¤é±¦Â¦°ìÂÓ¤¬Æ±ºÆ³«È¯¤ÎÉßÃϤȤʤê¤Þ¤¹¡£

¡¡ÉßÃϤÎËÌÀ¾Â¦¤«¤é»£±Æ¡£ÉßÃÏÆîÀ¾Â¦¤Ï´´Àþƻϩ¤Î»½§Â绳Àþ¤ËÌ̤·¤Æ¤¤¤Þ¤¹¡£
¡¡º¸Ã¼¤Ë¸«¤¨¤Æ¤¤¤ë¥¿¥ï¡¼¥Þ¥ó¥·¥ç¥ó¤ÏÉ𢾮»³±Ø¤«¤é°ìÈֶᤤ¡Ö¥Ñ¡¼¥¯¥·¥Æ¥£É𢾮»³ ¥¶ ¥¿¥ï¡¼¡×(ÃϾå41³¬¡¢ºÇ¹â¹â¤µ144.95m)¤Ç¤¹¡£

¡¡±ØÁ°¤«¤é»½§Â绳Àþ¤Ë·Ò¤¬¤ëû¤¤¶è´Ö¤â¡Ö¥Ñ¥ë¥à¾¦Å¹³¹¡×¤Î¥¢¡¼¥±¡¼¥É³¹¤È¤Ê¤Ã¤Æ¤¤¤Þ¤¹¤¬¡¢¤³¤Á¤é¤Î¥¢¡¼¥±¡¼¥É³¹¤ÏÊĺ¿¤È¤Ê¤ë¤è¤¦¤Ç¤¹¡£

¡¡ÉßÃÏÆîÀ¾Â¦¤«¤é»£±Æ¡£±¦±ü¤Ë¸«¤¨¤Æ¤¤¤ë¥¿¥ï¡¼¥Þ¥ó¥·¥ç¥ó¤Ï¡Ö¥Ñ¡¼¥¯¥·¥Æ¥£É𢾮»³ ¥¶ ¥¿¥ï¡¼¡×(ÃϾå41³¬¡¢ºÇ¹â¹â¤µ144.95m)¤È¡Ö¥·¥Æ¥£¥¿¥ï¡¼É𢾮»³¡×(ÃϾå41³¬¡¢¹â¤µ144.504m)¤Ç¤¹¡£¤³¤³¤Ë·úÀߤµ¤ì¤ë¥¿¥ï¡¼¥Þ¥ó¥·¥ç¥ó¤â¤½¤ì¤é¤È¤Û¤ÜƱ¤¸¹â¤µ¤Ë¤Ê¤ê¤Þ¤¹¡£

¡¡ÄãÁØÅ捻ȤʤëÉßÃÏËÌü¤Ç¤¹¡£º£Ç¯¤Î¤É¤³¤«¤À¤Ã¤¿¤È»×¤¤¤Þ¤¹¤¬¡¢¸½ÃϤò·Ú¤¯¸«¤Ë¹Ô¤Ã¤¿¤È¤¤Ï¤Þ¤ÀºÆ³«È¯¤¬»Ï¤Þ¤ë¤è¤¦¤ÊÍͻҤϤ¢¤ê¤Þ¤»¤ó¤Ç¤·¤¿¡£
ÃÏ¿Þ
ʪ·ï³µÍסʹâÁØÅï¡Ë
»ö¶È̾¡§¾®»³»°ÃúÌÜÂè1Ã϶èÂè°ì¼ï»Ô³¹ÃϺƳ«È¯»ö¶È A-1³¹¶è
½êºßÃÏ¡§ÅìµþÅÔÉÊÀî¶è¾®»³»°ÃúÌÜÃÏÆâ
¸òÄÌ¡§ÅìµÞÌܹõÀþ¡ÖÉ𢾮»³¡×±Ø
ÍÑÅÓ¡§½»Âð¡¢Å¹ÊÞ¡¢Ãó¼Ö¾ìÅù
Áí¸Í¿ô¡§823¸Í
³¬¿ô¡§ÃϾå39³¬¡¢Ãϲ¼2³¬
¹â¤µ¡§Ìó145m
¹½Â¤¡§Å´¶Ú¥³¥ó¥¯¥ê¡¼¥È¤
ÉßÃÏÌÌÀÑ¡§Ìó8,090Ö
·úÃÛÌÌÀÑ¡§Ìó6,090Ö
±ä¾²ÌÌÀÑ¡§Ìó114,630Ö
»ö¶È¼Ô¡§¾®»³»°ÃúÌÜÂè1Ã϶è»Ô³¹ÃϺƳ«È¯Áȹç
»²²ÃÁȹç°÷¡§»°É©ÃϽê¥ì¥¸¥Ç¥ó¥¹¡¢ÆüÅ´¶½ÏÂÉÔÆ°»º
ÆÃÄê¶È̳Âå¹Ô¼Ô¡§ÂçÎÓÁÈ
Àß·×¼Ô¡§ÂçÎÓÁÈ¡ÊͽÄê¡Ë
»Ü¹©¼Ô¡§¡Ý
¹©´ü¡§2029ǯ4·îÃ幩¡Á2033ǯ9·î½×¹©Í½Äê
Áí»ö¶ÈÈñ¡§963²¯1000Ëü±ß
½Ðŵ
¢§Êóƻȯɽ»ñÎÁ¡§ÅÔ»ÔÀ°È÷(2025ǯ11·î26Æü)
¾®»³»°ÃúÌÜÂè1Ã϶è»Ô³¹ÃϺƳ«È¯Áȹç¤ÎÀßΩ¤òǧ²Ä
¢§ÉÊÀî¶è¡§ÅÔ»ÔÀ°È÷(2025ǯ7·î17Æü)
É𢾮»³±Ø¼þÊÕÃ϶衡¢¨¾®»³»°ÃúÌÜÂè1Ã϶èÂè°ì¼ï»Ô³¹ÃϺƳ«È¯»ö¶È¤Î»ö¶È·×²è¤Î½ÄÍ÷¤Ë¤Ä¤¤¤Æ
¢§ÅìµþÅԴͶɡ§´Ä¶¥¢¥»¥¹¥á¥ó¥È(2023ǯ2·î1Æü)
¡Ö¡Ê²¾¾Î¡Ë¾®»³»°ÃúÌÜÂè1Ã϶èÂè°ì¼ï»Ô³¹ÃϺƳ«È¯»ö¶È¡×´Ä¶±Æ¶Áɾ²Á½ñ
¢§»°É©ÃϽê¥ì¥¸¥Ç¥ó¥¹¡§¥Ë¥å¡¼¥¹¥ê¥ê¡¼¥¹(2022ǯ8·î1Æü)
¡Ö¾®»³»°ÃúÌÜÂè1Ã϶èÂè°ì¼ï»Ô³¹ÃϺƳ«È¯»ö¶È¡×ÅԻԷײè·èÄê¤Î¤ªÃΤ餻
¡Á½»Âð¤È¾¦Å¹³¹¤¬°ìÂΤȤʤ俸ÄÀˤ«¤ÊÊ£¹ç»Ô³¹ÃϤÎÁϽФòÌܻؤ¹¡Á
- ¥«¥Æ¥´¥ê
- ÉÊÀî¶è







