
¡¡É𢾮¿ù¤Ç·úÀßÃæ¤Î¥Ä¥¤¥ó¥¿¥ï¥Þ¥ó¡Ö¥¶¡¦¥Ñ¡¼¥¯¥Ï¥¦¥¹ É𢾮¿ù¥¿¥ï¡¼¥º¡×(ÃϾå50³¬¡¢¹â¤µ175.67m)¤Ç¤¹¡£2025ǯ11·î1Æü¤Ë»£±Æ¤·¤Þ¤·¤¿¡£¡ÖÂçÃϤ«¤éÀ¸¤¨¤ëÆóËܤÎÂç¼ù¡×¤ò¥³¥ó¥»¥×¥È¤Ë·¨¸¦¸ã»á¤¬³°´Ñ¥Ç¥¶¥¤¥ó¤ò´Æ½¤¤·¤¿¥¿¥ï¡¼¥Þ¥ó¥·¥ç¥ó¤Ç¡¢É𢾮¿ù¤Î¥¿¥ï¥Þ¥ó·²¤ÎÃæ¤Ç¤ÏºÇËÌü¤Ë°ÌÃÖ¤·¤Æ¤¤¤Þ¤¹¡£¤³¤Îµ»ö¤Ç¤ÏƱ¥Ä¥¤¥ó¥¿¥ï¥Þ¥ó¤Î³µÍפä·úÀß¾õ¶·¡¢ÃÏ¿ÞÅù¤òºÜ¤»¤Æ¤¤¤Þ¤¹¡£
¥¶¡¦¥Ñ¡¼¥¯¥Ï¥¦¥¹ É𢾮¿ù¥¿¥ï¡¼¥º¤Ë¤Ä¤¤¤Æ

³°´Ñ´°À®Í½ÁÛCG[½Ðŵ¡§¸ø¼°HP]
¡¡¡Ö¥¶¡¦¥Ñ¡¼¥¯¥Ï¥¦¥¹ É𢾮¿ù¥¿¥ï¡¼¥º¡×¤ÏËÌÎÙ¤ÎÉßÃϤ˰Üž¤·¤¿¡ÖÆüËܰå²ÊÂç³Ø É𢾮¿ùɱ¡¡×À×ÃϤǷúÀßÃæ¤Î¥µ¥¦¥¹¤È¥Î¡¼¥¹¤Ëʬ¤«¤ì¤¿¥Ä¥¤¥ó¥¿¥ï¡¼¥Þ¥ó¥·¥ç¥ó¤Ç¤¹¡£µ¬ÌϤÏÃϾå50³¬¡¢Ãϲ¼1³¬¡¢¹â¤µ175.67m¡¢ÉßÃÏÌÌÀѤÏ2Ëü172.59Ö¡Ê¥µ¥¦¥¹¡§1Ëü1093.48Ö¡¢¥Î¡¼¥¹¡§9,079.11Ö¡Ë¡¢·úÃÛÌÌÀѤÏ9,883.83Ö¡¢±ä¾²ÌÌÀÑ17Ëü3821.92Ö¡¢Áí¸Í¿ô1438¸Í¡Ê¥µ¥¦¥¹¡§719¸Í¡¢¥Î¡¼¥¹¡§719¸Í¡Ë¤È¤Ê¤Ã¤Æ¤¤¤Þ¤¹¡£
¡¡·úÃÛ¼ç¤Ï»°É©ÃϽê¥ì¥¸¥Ç¥ó¥¹¡¢Çä¼ç¤Ï»°É©ÃϽê¥ì¥¸¥Ç¥ó¥¹¡¢Åìµþ·úʪ¡¢ÅìµÞ¡¢ÅìµÞÉÔÆ°»º¡¢À߷׼ԤȻܹ©¼Ô¤Ï¥Õ¥¸¥¿¤Ç¡¢¥µ¥¦¥¹¤¬2027ǯ9·î²¼½Ü½×¹©¡¢2028ǯ2·îÃæ½ÜÆþµï³«»ÏͽÄê¡¢¥Î¡¼¥¹¤Ï2028ǯ5·îÃæ½Ü½×¹©¡¢2028ǯ9·î²¼½Ü¤ÎÆþµï³«»ÏͽÄê¤Ç¤¹¡£

ËÌÀ¾Â¦³°´Ñ´°À®Í½ÁÛCG[½Ðŵ¡§¸ø¼°HP]
¡¡³°´Ñ¤Î¥Ç¥¶¥¤¥ó¥³¥ó¥»¥×¥È¤Ï¡ÖÂçÃϤ«¤éÀ¸¤¨¤ëÆóËܤÎÂç¼ù¡×¤Ç·¨¸¦¸ã»á¤¬´Æ½¤¤·¤Æ¤ª¤ê¡¢¼«Á³¤ÎÌڤ理¬°ìËܰìËܰ㤦¤è¤¦¤Ë2Åï¤Î¿§Ä´¤ËÈù̯¤Êº¹¤¬ÉÕ¤±¤é¤ì¤Þ¤¹¡£
¡¡2026ǯ1·îÃæ½Ü¤«¤é¤Ï¥µ¥¦¥¹¤ÎÂèÆó´ü¤ÎÈÎÇ䳫»ÏͽÄê¤Ç¡¢ÂèÆó´ü¤â´Þ¤à»Ä¤ê¤Î¶¡µëͽÄê454¸Í¤Î´Ö¼è¤ê¤Ï1LDK¡Á4LDK¡¢ÀìÍÌÌÀѤÏ44.07Ö¡Á104.09Ö¡¢¥Ð¥ë¥³¥Ë¡¼ÌÌÀѤÏ8.56Ö¡Á23.56֤ȤʤäƤ¤¤Þ¤¹¡£¥Î¡¼¥¹¤Ï2026ǯ5·î²¼½Ü¤«¤é¤ÎÈÎÇ䳫»ÏͽÄê¤Ç¡¢ÈÎÇä´Ö¼è¤ê¤Ï1LDK¡Á4LDK¡¢ÀìÍÌÌÀѤÏ44.07Ö¡Á133.64Ö¡¢¥Ð¥ë¥³¥Ë¡¼ÌÌÀѤÏ8.56Ö¡Á31.33֤ȤʤäƤ¤¤Þ¤¹¡£
¥é¥ó¥É¥¹¥±¡¼¥×

ÉßÃÏÇÛÃÖ´°À®Í½ÁÛCG[½Ðŵ¡§¸ø¼°HP]
¡¡¡Ö¥¶¡¦¥Ñ¡¼¥¯¥Ï¥¦¥¹ É𢾮¿ù¥¿¥ï¡¼¥º¡×¤Ç¤Ï¥Î¡¼¥¹¤È¥µ¥¦¥¹¤Î´Ö¤òÄ̤êÈ´¤±¤é¤ì¤ë¥³¥¹¥®¥×¥í¥à¥Ê¡¼¥É¤¬À°È÷¤µ¤ì¡¢Ìó1,200֤μÇÀ¸¹¾ì¤¬¤¢¤ë¥³¥¹¥®¥³¥ß¥å¥Ë¥Æ¥£¥Ñ¡¼¥¯¤òÃæ¿´¤È¤·¤¿3¤Ä¤Î¥¬¡¼¥Ç¥ó¤âÇÛÃÖ¤µ¤ì¤Þ¤¹¡£

¥³¥¹¥®¥³¥ß¥å¥Ë¥Æ¥£¥Ñ¡¼¥¯´°À®Í½ÁÛCG[½Ðŵ¡§¸ø¼°HP]
¡¡ÉßÃÏÃæ±û¤ËÇÛÃÖ¤µ¤ì¤ë¡Ö¥³¥¹¥®¥³¥ß¥å¥Ë¥Æ¥£¥Ñ¡¼¥¯¡×¤Î´°À®Í½ÁۿޤǤ¹¡£

¥³¥¹¥®¥×¥í¥à¥Ê¡¼¥É´°À®Í½ÁÛCG[½Ðŵ¡§¸ø¼°HP]
¡¡¡Ö¥³¥¹¥®¥×¥í¥à¥Ê¡¼¥É¡×¤ÏÉßÃϤòÅìÀ¾¤ËÄ̤êÈ´¤±¤é¤ì¤ë°ìÈ̳«Êü¤µ¤ì¤¿Êâ¹Ô¼Ô´ÓÄÌÄÌÏ©¤Ë¤Ê¤ê¤Þ¤¹¡£

¥¨¥³¥í¥¸¥«¥ë¥¬¡¼¥Ç¥ó´°À®Í½ÁÛCG[½Ðŵ¡§¸ø¼°HP]
¡¡¿åÊդλ¶ºöÏ©¤È¤Ê¤ë¡Ö¥¨¥³¥í¥¸¥«¥ë¥¬¡¼¥Ç¥ó¡×¤ÏÌë´Ö¾ÈÌÀ¤âÀߤ±¤é¤ì¤Þ¤¹¡£
¶¦ÍÑÉô

¥¿¥ï¡¼Î©Ì̳µÍ׿Þ[½Ðŵ¡§¸ø¼°HP]
¡¡¡Ö¥¶¡¦¥Ñ¡¼¥¯¥Ï¥¦¥¹ É𢾮¿ù¥¿¥ï¡¼¥º¡×¤Î¶¦ÍÑ»ÜÀߤȤ·¤Æ¡¢¥µ¥¦¥¹¤È¥Î¡¼¥¹¤Î3³¬¤Ë¥Ñ¡¼¥Æ¥£¥ë¡¼¥à¡¢¥¥Ã¥º¥ë¡¼¥à¡¢¥³¥ï¡¼¥¥ó¥°¥¹¥Ú¡¼¥¹¡¢¥×¥ì¥¤¥Õ¥£¡¼¥ë¡¢¥é¥ó¥É¥ê¡¼¥ë¡¼¥à¡¢32³¬¤Ë¥¹¥«¥¤¥Ó¥å¡¼¥é¥¦¥ó¥¸¤È¥²¥¹¥È¥ë¡¼¥à3¼¼¡¢¤½¤·¤Æ²°¾å¤Ë¤Ï¥¹¥«¥¤¥Ç¥Ã¥¤¬ÀßÃÖ¤µ¤ì¤Þ¤¹¡£
¡¡¤Þ¤¿¡¢¥Î¡¼¥¹¤Î1³¬¤Ë¤Ï¥¯¥ê¥Ë¥Ã¥¯¡¢Êݰé½ê¡¢¥É¥é¥Ã¥°¥¹¥È¥¢¡¢2³¬¤Ë¤Ï¥¯¥ê¥Ë¥Ã¥¯¤äÏ·¿ÍÊ¡»ã¥»¥ó¥¿¡¼¤Ê¤É¡¢¤½¤·¤Æ3¡Á4³¬¤Ë¤Ï¹âÎð¼Ô¸þ¤±½»Âð¤¬ÇÛÃÖ¤µ¤ì¤Þ¤¹¡£¤½¤·¤Æ¥µ¥¦¥¹¤Î1³¬¤Ë¤Ï¥¹¡¼¥Ñ¡¼¡¢2¡Á3³¬¤Ë¤Ï¥¹¥Ý¡¼¥Ä¥¸¥à¤¬ÇÛÃÖ¤µ¤ì¤Þ¤¹¡£

¼Ö´ó¤»¡Ê¥µ¥¦¥¹¡Ë´°À®Í½ÁÛCG[½Ðŵ¡§¸ø¼°HP]
¡¡¥µ¥¦¥¹Â¦¤Î¼Ö´ó¤»¤Î´°À®Í½ÁۿޤǤ¹¡£·¨¸¦¸ã»á¤Î´Æ½¤¤Ë¤è¤ëÂç¼ù¤ÎÇ¯ÎØ¤ò¥¤¥á¡¼¥¸¤·¤¿¶¦ÍÑÉô¥Ç¥¶¥¤¥ó¤È¤Ê¤Ã¤Æ¤¤¤Þ¤¹¡£

¥°¥é¥ó¥É¥¨¥ó¥È¥é¥ó¥¹¡Ê¥µ¥¦¥¹¡Ë´°À®Í½ÁÛCG[½Ðŵ¡§¸ø¼°HP]
¡¡¥µ¥¦¥¹Â¦¤Î¥°¥é¥ó¥É¥¨¥ó¥È¥é¥ó¥¹¤Î´°À®Í½ÁۿޤǤ¹¡£¥µ¥¦¥¹¤Ë¤Ï¥¹¡¼¥Ñ¡¼¡¢¥¹¥Ý¡¼¥Ä¥¸¥à¤È¤¤¤Ã¤¿Æü¾ï¤ò¥¢¥¯¥Æ¥£¥Ö¤Ë²á¤´¤¹¤¿¤á¤Î»ÜÀߤ¬Â·¤Ã¤Æ¤¤¤ë¤³¤È¤«¤é¡¢Æü¡¹¤ÎÊë¤é¤·¤ò³Ú¤·¤à¥À¥¤¥Ê¥ß¥º¥à¡ÖÌöư¡×¤ò¥Æ¡¼¥Þ¤Ë¥Ç¥¶¥¤¥ó¤µ¤ì¤Æ¤¤¤Þ¤¹¡£ºÐ·î¤ò½Å¤Í¡¢ÍªÁ³¤ÈÐʤàÂç¼ù¤Î¶ÊÀþÈþ¤ò¥Ç¥¶¥¤¥ó¡¢·úÃÛʪ¤È¼«Á³¤È¤ÎÍ»¹ç¤ò¥¿¥ï¡¼¤ÎÆâÉô¤Ç¤âɽ¸½¤·¤Æ¤¤¤Þ¤¹¡£

¥°¥é¥ó¥É¥¨¥ó¥È¥é¥ó¥¹¡Ê¥Î¡¼¥¹¡Ë´°À®Í½ÁÛCG[½Ðŵ¡§¸ø¼°HP]
¡¡¥Î¡¼¥¹Â¦¤Î¥°¥é¥ó¥É¥¨¥ó¥È¥é¥ó¥¹¤Î´°À®Í½ÁۿޤǤ¹¡£¥Î¡¼¥¹¤Ë¤Ï°åÎÅ»ÜÀߤäÊݰé½ê¡¢¹âÎð¼ÔÊ¡»ã»ÜÀߤʤɡ¢Éý¹¤¤Ç¯ÎðÁؤÎÊë¤é¤·¤ò»Ù¤¨¤ë»ÜÀߤ¬Â·¤Ã¤Æ¤¤¤ë¤³¤È¤«¤é¡¢Êë¤é¤·¤ò»Ù¤¨¤ëµ¬Â§Àµ¤·¤¤¥ê¥º¥à¡ÖΧư¡×¤ò¥Æ¡¼¥Þ¤Ë¥Ç¥¶¥¤¥ó¤µ¤ì¤Æ¤¤¤Þ¤¹¡£ÌÚ¤ÎÃæ¤Ë¤¢¤ëľÀþ¤ò±é½Ð¤¹¤ë¤³¤È¤Ç¡¢ÀФȤϰۤʤ벹¤«¤ß¤È¶¦¤ËÑÛ¡¹¤·¤µ¤òɽ¸½¤·¤Æ¤¤¤Þ¤¹¡£

¥Ñ¡¼¥Æ¥£¥ë¡¼¥à¡Ê¥µ¥¦¥¹¡Ë´°À®Í½ÁÛCG[½Ðŵ¡§¸ø¼°HP]
¡¡3³¬¤ËÇÛÃÖ¤µ¤ì¤ë¥Ñ¡¼¥Æ¥£¥ë¡¼¥à¤Î´°À®Í½ÁۿޤǤ¹¡£

¥¹¥«¥¤¥Ó¥å¡¼¥é¥¦¥ó¥¸¡Ê¥µ¥¦¥¹¡Ë´°À®Í½ÁÛCG[½Ðŵ¡§¸ø¼°HP]
¡¡¥µ¥¦¥¹¤Î32³¬¤ËÇÛÃÖ¤µ¤ì¤ë¥¹¥«¥¤¥Ó¥å¡¼¥é¥¦¥ó¥¸¤Î´°À®Í½ÁۿޤǤ¹¡£Å·°æ¤ÏÇ¯ÎØ¤ò»×¤ï¤»¤ë¥é¥¤¥È¤Î¶ÊÀþ¤¬ÉÁ¤«¤ì¡¢ÊÉÌ̤侲¤Ë¤ÏÌÚÄ´¤ÎÁõ¤¤¤¬»Ü¤µ¤ì¤ë¤Ê¤É¡¢³ÊÄ´¹â¤µ¤ÈÌڤβ¹¤â¤ê¤òƱ»þ¤Ë½É¤¹¶õ´Ö¤¬¼Â¸½¤µ¤ì¤Þ¤¹¡£

¥¹¥«¥¤¥Ó¥å¡¼¥é¥¦¥ó¥¸¡Ê¥µ¥¦¥¹¡Ë´°À®Í½ÁÛCG[½Ðŵ¡§¸ø¼°HP]
¡¡¥¹¥«¥¤¥é¥¦¥ó¥¸Æâ¤Ë¤Ï¥Ð¡¼¥«¥¦¥ó¥¿¡¼¥¹¥Ú¡¼¥¹¤âÍѰդµ¤ì¤Þ¤¹¡£

¥¹¥«¥¤¥Ó¥å¡¼¥é¥¦¥ó¥¸¡Ê¥µ¥¦¥¹¡Ë´°À®Í½ÁÛCG[½Ðŵ¡§¸ø¼°HP]
¡¡¤½¤ÎÎ٤ˤϸļ¼¤Ë¤â¤Ê¤ë¥¥Ã¥Á¥óÉÕ¤¤Î¥¹¥Ú¡¼¥¹¤¬¤¢¤ê¤Þ¤¹¡£

¥²¥¹¥È¥ë¡¼¥à¡Ê¥µ¥¦¥¹¡Ë´°À®Í½ÁÛCG[½Ðŵ¡§¸ø¼°HP]
¡¡32³¬¤Ë¤Ï¥²¥¹¥È¥ë¡¼¥à¤¬3¼¼ÍѰդµ¤ì¤Þ¤¹¡£¤³¤Î´°À®Í½Áۿޤϥ²¥¹¥È¥ë¡¼¥à - SHIRAKAB -¤Ç¤¹¡£

¥¹¥«¥¤¥Ç¥Ã¥´°À®Í½ÁÛCG[½Ðŵ¡§¸ø¼°HP]
¡¡²°¾å¤Ë¤Ï¥¹¥«¥¤¥Ç¥Ã¥¤¬ÇÛÃÖ¤µ¤ì¤Þ¤¹¡£¤³¤ì¤é¶¦ÍÑ»ÜÀߤϥµ¥¦¥¹¤È¥Î¡¼¥¹¤ÎξÅï¤ËÇÛÃÖ¤µ¤ì¤Þ¤¹¡£
´Ö¼è¤ê¿Þ

S-44A¥¿¥¤¥×[½Ðŵ¡§¸ø¼°HP]
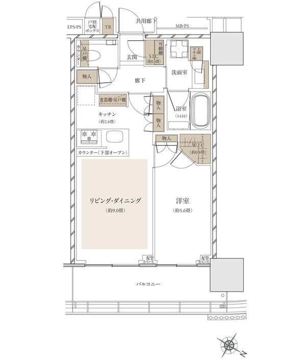
¡¡¥¹¡¼¥Ú¥ê¥¢¥Õ¥í¥¢¤ËÇÛÃÖ¤µ¤ì¤ëS-44A¥¿¥¤¥×¤Î´Ö¼è¤ê¿Þ¤Ç¤¹¡£´Ö¼è¤ê¤Ï1LDK+WIC+SIC+TR¡¢ÀìÍÌÌÀѤÏ44.07֡ʥȥé¥ó¥¯¥ë¡¼¥àÌÌÀÑ0.32Ö¡¦¸ÍÊÌÂðÇۥܥ寥¹0.42Ö´Þ¤à¡Ë¡¢¥Ð¥ë¥³¥Ë¡¼ÌÌÀѤÏ9.47֤ȤʤäƤ¤¤Þ¤¹¡£

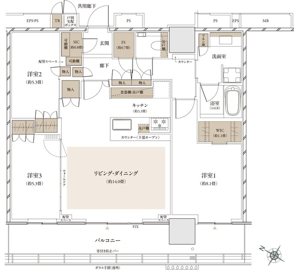
S-58A¥¿¥¤¥×[½Ðŵ¡§¸ø¼°HP]
¡¡¥¹¡¼¥Ú¥ê¥¢¥Õ¥í¥¢¤ËÇÛÃÖ¤µ¤ì¤ëS-58A¥¿¥¤¥×¤Î´Ö¼è¤ê¿Þ¤Ç¤¹¡£´Ö¼è¤ê¤Ï2LDK+SIC+TR¡¢ÀìÍÌÌÀѤÏ58.35֡ʥȥé¥ó¥¯¥ë¡¼¥àÌÌÀÑ0.32Ö¡¦¸ÍÊÌÂðÇۥܥ寥¹0.42Ö´Þ¤à¡Ë¡¢¥Ð¥ë¥³¥Ë¡¼ÌÌÀѤÏ12.34֤ȤʤäƤ¤¤Þ¤¹¡£

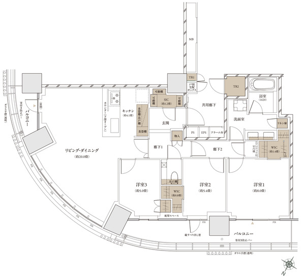
S-85B¥¿¥¤¥×[½Ðŵ¡§¸ø¼°HP]
¡¡44¡Á49³¬¤Î¥Ç¥é¥Ã¥¯¥¹¥Õ¥í¥¢¤ËÇÛÃÖ¤µ¤ì¤ëS-85B¥¿¥¤¥×¤Î´Ö¼è¤ê¿Þ¤Ç¤¹¡£´Ö¼è¤ê¤Ï3LDK+WIC+SIC+FS+TR¡¢ÀìÍÌÌÀѤÏ85.91֡ʥȥé¥ó¥¯¥ë¡¼¥àÌÌÀÑ0.32Ö¡¦¸ÍÊÌÂðÇۥܥ寥¹0.42Ö´Þ¤à¡Ë¡¢¥Ð¥ë¥³¥Ë¡¼ÌÌÀѤÏ17.13֤ȤʤäƤ¤¤Þ¤¹¡£

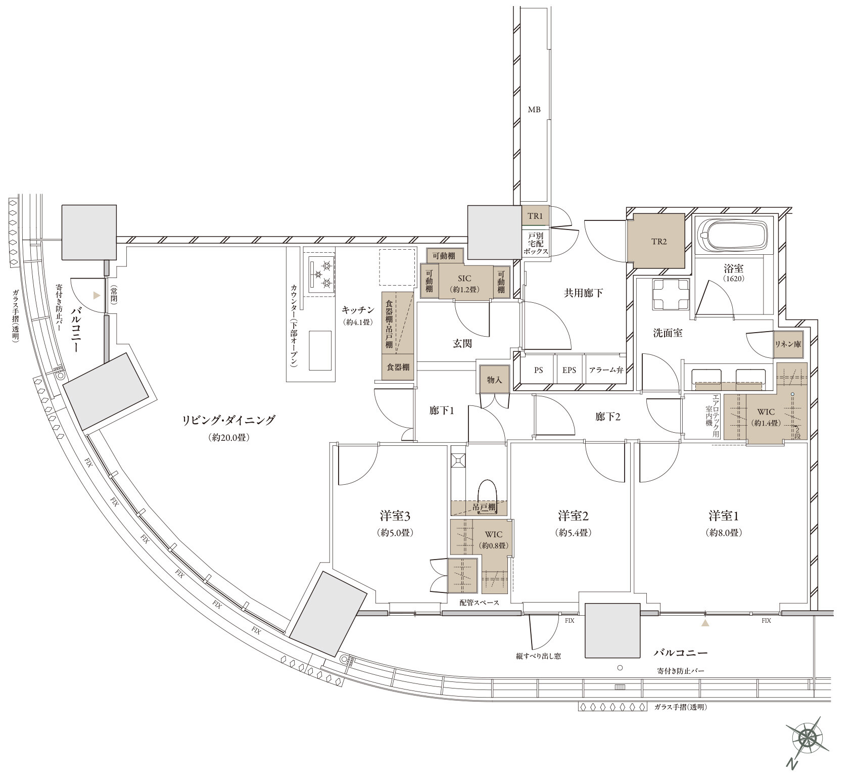
S-101A¥¿¥¤¥×[½Ðŵ¡§¸ø¼°HP]
¡¡50³¬¤Î¥¨¥°¥¼¥¯¥Æ¥£¥Ö¥Õ¥í¥¢¤ËÇÛÃÖ¤µ¤ì¤ëS-101A¥¿¥¤¥×¤Î´Ö¼è¤ê¿Þ¤Ç¤¹¡£´Ö¼è¤ê¤Ï3LDK+2WIC+SIC+2TR¡¢ÀìÍÌÌÀѤÏ101.27֡ʥȥé¥ó¥¯¥ë¡¼¥àÌÌÀÑ1.80Ö¡¦¸ÍÊÌÂðÇۥܥ寥¹0.42Ö´Þ¤à¡Ë¡¢¥Ð¥ë¥³¥Ë¡¼ÌÌÀѤÏ20.92֤ȤʤäƤ¤¤Þ¤¹¡£
¡¡50³¬¤Î¥¨¥°¥¼¥¯¥Æ¥£¥Ö¥Õ¥í¥¢¤ÏºÇ¹âÅ·°æ¹âÌó3m¤ÇÃó¼Ö¾ìÂè°ìÍ¥À踢ÉÕ¤¡¢44¡Á49³¬¤Î¥Ç¥é¥Ã¥¯¥¹¤ÏºÇ¹âÅ·°æ¹âÌó2.75m¤ÇÃó¼Ö¾ìÂèÆóÍ¥À踢ÉÕ¤¡¢33¡Á43³¬¤Î¥»¥ß¥Ç¥é¥Ã¥¯¥¹¤ÏºÇ¹âÅ·°æ¹âÌó2.6m¤ÇÃó¼Ö¾ìÂè»°Í¥À踢ÉÕ¤¡¢¤½¤·¤Æ¥¹¡¼¥Ú¥ê¥¢¤âºÇ¹âÅ·°æ¹âÌó2.6m¤È¤Ê¤Ã¤Æ¤¤¤Þ¤¹¡£¥È¥é¥ó¥¯¥ë¡¼¥à¡¢ÂðÇÛ¥í¥Ã¥«¡¼¤Ï³Æ¸Í¤ËÉÕ¤¤¤Æ¤¤¤Þ¤¹¡£
°ÌÃÖ¿Þ

°ÌÃÖ¿Þ[½Ðŵ¡§¸ø¼°HP]
¡¡·úÀßÃϤÏJRÆîÉðÀþ¡ÖÉ𢾮¿ù¡×±Ø¤ÎËÌÀ¾Â¦¤ÇÅÌÊâ3¡Á4ʬ¤Îµ÷Î¥¤È¤Ê¤Ã¤Æ¤¤¤Þ¤¹¡£JRºëµþÀþ¡¦²£¿Ü²ìÀþ¡¦¾ÅÆî¿·½É¥é¥¤¥ó¤Î¡ÖÉ𢾮¿ù¡×±Ø¤âÅÌÊâ3¡Á4ʬɽµ¤È¤Ê¤ê¤Þ¤¹¤¬¡¢ÆîÉðÀþ¤Î±Ø¹½Æâ¤«¤éŤ¤ÄÌÏ©¤ò°Üư¤¹¤ëɬÍפ¬¤¢¤ë¤¿¤á¡¢¥Û¡¼¥à¤Þ¤Ç¤Ï¤µ¤é¤Ë»þ´Ö¤¬¤«¤«¤ê¤Þ¤¹¡£
¡¡¤Þ¤¿¡¢ÆîÉðÀþ¤ÎÎ٤ˤ¢¤ëÅìµÞÅì²£Àþ¡¦ÌܹõÀþ¡ÖÉ𢾮¿ù¡×±Ø¤ÏÅÌÊâ4¡Á6ʬ¤Îµ÷Î¥¤Ç¡¢¸ø¼°HP¤Ëɽµ¤Ï¤¢¤ê¤Þ¤»¤ó¤¬ÅìµÞÅì²£Àþ¡¦ÌܹõÀþ¡Ö¿·´Ý»Ò¡×±Ø¤âÅÌÊâ·÷¤Ë°ÌÃÖ¤·¤Æ¤¤¤Þ¤¹¡£

³°´Ñ´°À®Í½ÁÛCG¡Ü¸½ÃϼþÊÕ¶õ»£[½Ðŵ¡§¸ø¼°HP]
¡¡¡Ö¥¶¡¦¥Ñ¡¼¥¯¥Ï¥¦¥¹ É𢾮¿ù¥¿¥ï¡¼¥º¡×¤ÏÉ𢾮¿ù¤Î¥¿¥ï¡¼¥Þ¥ó¥·¥ç¥ó·²¤ÎÃæ¤Ç¤Ï°ìÈÖË̦¤Ë°ÌÃÖ¤·¤Æ¤¤¤ë¤¿¤á¡¢¥Î¡¼¥¹¤Ë¤Ï»ë³¦¤ò¼×¤ë·úʪ¤¬°ìÀڤʤ¤Éô²°¤â¤¢¤ê¤Þ¤¹¡£
·úÀß¾õ¶·

¡¡2025ǯ11·î1Æü¤ËÆîÀ¾Â¦¤«¤é»£±Æ¤·¤¿¡Ö¥¶¡¦¥Ñ¡¼¥¯¥Ï¥¦¥¹ É𢾮¿ù¥¿¥ï¡¼¥º¡×(ÃϾå50³¬¡¢¹â¤µ175.67m)¤Î·úÀßÃϤǤ¹¡£

¡¡¡Ö¥Ñ¡¼¥¯¥·¥Æ¥£É𢾮¿ù ¥¶ ¥¬¡¼¥Ç¥ó ¥¿¥ï¡¼¥º¡×¤Î¥Ç¥Ã¥¤«¤é»£±Æ¤·¤¿¥µ¥¦¥¹¤Ç¤¹¡£6³¬Éôʬ¤Î·úÀߤ¬»Ï¤Þ¤Ã¤Æ¤¤¤Þ¤·¤¿¡£

¡¡É𢾮¿ù±Ø¤Ë°ìÈֶᤤÆîÅ즤«¤é»£±Æ¡£

¡¡¥¿¥ï¥Þ¥óËÜÂΤÏÉßÃÏÆâ¤Ç¤â±Ø¤Ë¶á¤¤Å즤ËÇÛÃÖ¤µ¤ì¤Þ¤¹¡£

¡¡ËÌÅ즤«¤é»£±Æ¡£Æî¦¤ÏÉ𢾮¿ù¤Î¥¿¥ï¥Þ¥ó¤ä͹âÁإӥ뤬·ú¤ÁʤӤޤ¹¡£

¡¡ËÌÀ¾Â¦¤«¤é»£±Æ¡£Å즤ˤϥ¿¥ï¡¼¥Þ¥ó¥·¥ç¥ó¤Ï¤Ê¤¤¤Î¤Ç³«¤±¤¿»ë³¦¤¬¹¤¬¤ê¤Þ¤¹¡£

¡¡¡Ö¥Ñ¡¼¥¯¥·¥Æ¥£É𢾮¿ù ¥¶ ¥¬¡¼¥Ç¥ó ¥¿¥ï¡¼¥º¡×¤Î¥Ç¥Ã¥¤«¤é»£±Æ¤·¤¿¥Î¡¼¥¹¤Ç¤¹¡£

¡¡À¾Â¦¤«¤é»£±Æ¡£¥Î¡¼¥¹¤Ï½×¹©»þ´ü¤âÈÎÇä»þ´ü¤â¥µ¥¦¥¹¤è¤êÃÙ¤¯¤Ê¤Ã¤Æ¤¤¤Þ¤¹¡£

¡¡ËÌÀ¾Â¦¤«¤é»£±Æ¡£

¡¡ËÌÅ즤«¤é»£±Æ¡£Çظå¤Î¥Ä¥¤¥ó¥¿¥ï¥Þ¥ó¤Ï»°°æ¤Ë¤è¤ë¡Ö¥Ñ¡¼¥¯¥·¥Æ¥£É𢾮¿ù ¥¶ ¥¬¡¼¥Ç¥ó ¥¿¥ï¡¼¥º¡×(ÃϾå53³¬¡¢¹â¤µ178.90m)¤Ç¡¢¤Û¤ÜƱ¤¸¹â¤µ¤Î»°É©¤Î¥Ä¥¤¥ó¥¿¥ï¥Þ¥ó¡Ö¥¶¡¦¥Ñ¡¼¥¯¥Ï¥¦¥¹ É𢾮¿ù¥¿¥ï¡¼¥º¡×(ÃϾå50³¬¡¢¹â¤µ175.67m)¤¬Ä¾³Ñ¤ËʤӤޤ¹¡£

¡¡ÆîÅ즤«¤é»£±Æ¡£±ü¤Î·úʪ¤¬Æ±¥¿¥ï¥Þ¥ó¤Î·úÀßÃϤ«¤é°Üž¤·¤¿¡ÖÆüËܰå²ÊÂç³Ø É𢾮¿ùɱ¡¡×¤Ç¤¹¡£

¡¡Æ±¤¸Æü¤Ë¡Ö½Â륹¥«¥¤¡×¤«¤é»£±Æ¡£¡Ö¥¶¡¦¥Ñ¡¼¥¯¥Ï¥¦¥¹ É𢾮¿ù¥¿¥ï¡¼¥º¡×¤ÏÉ𢾮¿ù¤Î¥¿¥ï¥Þ¥ó·²¤ÎÃæ¤Ç¤âÅìµþÅÔ¿´Â¦¤È¤Ê¤ëËÌü¤Ë°ÌÃ֤Ƥ¤¤ë¤¿¤á¡¢¥¿¥ï¡¼¥¯¥ì¡¼¥ó¤¬Â¾¤Î¥¿¥ï¥Þ¥ó¤Ë±£¤ì¤º¤Ë¸«¤¨¤Æ¤¤¤Þ¤¹¡£ÀèÄø¤â½ñ¤¤Þ¤·¤¿¤¬Æ±¥Ä¥¤¥ó¥¿¥ï¥Þ¥ó¤Ï±¦¸å¤í¤Î¡Ö¥Ñ¡¼¥¯¥·¥Æ¥£É𢾮¿ù ¥¶ ¥¬¡¼¥Ç¥ó ¥¿¥ï¡¼¥º¡×¤È¤Û¤ÜƱ¤¸¹â¤µ¤Ë¤Ê¤ê¤Þ¤¹¡£

¡¡Ä¶¹âÁØ¥ª¥Õ¥£¥¹¥Ó¥ë¤â3Åï´Þ¤Þ¤ì¤Æ¤¤¤Þ¤¹¤¬É𢾮¿ù¤Î¥¿¥ï¥Þ¥ó·²Á´ÂΤǤ¹¡£½é¤á¤ÆÉ𢾮¿ù¤Ëˬ¤ì¤¿¤È¤¤Ï͹âÁØ¥ª¥Õ¥£¥¹¥Ó¥ë¤·¤«¤¢¤ê¤Þ¤»¤ó¤Ç¤·¤¿¤¬¡¢º£¤ÏÆüËÜÍ¿ô¤Î¥¿¥ï¥Þ¥ó·²¤ËÀ®Ä¹Ãæ¤Ç¤¹¡£
ÃÏ¿Þ
ʪ·ï³µÍ×

¡¡·úÃ۷ײè¤Î¤ªÃΤ餻¤Ç¤¹¡£
¢£Êª·ï³µÍ×¢£
̾¾Î¡§¥¶¡¦¥Ñ¡¼¥¯¥Ï¥¦¥¹ É𢾮¿ù¥¿¥ï¡¼¥º
·×²è̾¡§ÆüËܰå²ÊÂç³ØÉ𢾮¿ùÃ϶èC³¹¶è·×²è
½êºßÃÏ¡§¿ÀÆàÀÀîºê»Ô¡¡Ã渶¶è¾®¿ùÄ®°ìÃúÌÜ390ÈÖ1¤Î°ìÉô¡ÊÃÏÈÖ¡Ë
¸òÄÌ¡§JRÆîÉðÀþ¡ÖÉ𢾮¿ù¡×±Ø ÅÌÊâ3ʬ¡Ê¥µ¥¦¥¹¡Ë¡¢4ʬ¡Ê¥Î¡¼¥¹¡Ë
¡¡¡¡¡¡JRºëµþÀþ¡¦²£¿Ü²ìÀþ¡¦¾ÅÆî¿·½É¥é¥¤¥ó¡ÖÉ𢾮¿ù¡×±Ø ÅÌÊâ3ʬ¡Ê¥µ¥¦¥¹¡Ë¡¢4ʬ¡Ê¥Î¡¼¥¹¡Ë
¡¡¡¡¡¡ÅìµÞÅì²£Àþ¡¦ÌܹõÀþ¡ÖÉ𢾮¿ù¡×±Ø ÅÌÊâ4ʬ¡Ê¥µ¥¦¥¹¡Ë¡¢6ʬ¡Ê¥Î¡¼¥¹¡Ë
¡¡¡¡¡¡ÅìµÞÅì²£Àþ¡¦ÌܹõÀþ¡Ö¿·´Ý»Ò¡×±Ø ÅÌÊâ6ʬ¡Ê¥µ¥¦¥¹¡Ë¡¢5ʬ¡Ê¥Î¡¼¥¹¡Ë
ÍÑÅÓ¡§¶¦Æ±½»Âð¡¢¹âÎð¼Ô¸þ¤±Ê¡»ã¥µ¡¼¥Ó¥¹»ÜÀß¡¢¹âÎð¼Ô¸þ¤±½»Âð¡¢·ò¹¯Áý¿Ê»ÜÀß¡¢¾¦¶È»ÜÀßÅù
Áí¸Í¿ô¡§1438¸Í¡Ê¥µ¥¦¥¹¡§719¸Í¡¢¥Î¡¼¥¹¡§719¸Í¡Ë
ÀìÍÌÌÀÑ¡§44.07Ö¡Á136.04Ö
´Ö¼è¤ê¡§1LDK¡Á4LDK
³¬¿ô¡§ÃϾå50³¬¡¢Ãϲ¼1³¬
¹â¤µ¡§175.67m
¹½Â¤¡§Å´¶Ú¥³¥ó¥¯¥ê¡¼¥È¤¡¢Ìȿ̹½Â¤
ÉßÃÏÌÌÀÑ¡§20,172.59Ö¡Ê¥µ¥¦¥¹¡§11,093.48Ö¡¢¥Î¡¼¥¹¡§9,079.11Ö¡Ë
·úÃÛÌÌÀÑ¡§9,883.83Ö
±ä¾²ÌÌÀÑ¡§173,821.92Ö
·úÃۼ硧»°É©ÃϽê¥ì¥¸¥Ç¥ó¥¹
Çä¼ç¡§»°É©ÃϽê¥ì¥¸¥Ç¥ó¥¹¡¢Åìµþ·úʪ¡¢ÅìµÞ¡¢ÅìµÞÉÔÆ°»º
Àß·×¼Ô¡§¥Õ¥¸¥¿
»Ü¹©¼Ô¡§¥Õ¥¸¥¿
¹©´ü¡§2024ǯ4·îÃ幩¡Á2027ǯ9·î²¼½Ü½×¹©Í½Äê¡Ê¥µ¥¦¥¹¡Ë
¡¡¡¡¡¡2024ǯ5·îÃ幩¡Á2028ǯ5·îÃæ½Ü½×¹©Í½Äê¡Ê¥Î¡¼¥¹¡Ë
Æþµï¡§2028ǯ2·îÃæ½ÜͽÄê¡Ê¥µ¥¦¥¹¡Ë
¡¡¡¡¡¡2028ǯ9·î²¼½ÜͽÄê¡Ê¥Î¡¼¥¹¡Ë
½Ðŵ
¢§¸ø¼°HP¡§¥¶¡¦¥Ñ¡¼¥¯¥Ï¥¦¥¹ É𢾮¿ù¥¿¥ï¡¼¥º
https://www.mecsumai.com/tph-musashikosugi-towers/
¢§»°É©ÃϽê¥ì¥¸¥Ç¥ó¥¹¡§¥Ë¥å¡¼¥¹¥ê¥ê¡¼¥¹¡Ê2024ǯ9·î27Æü¡Ë
¡Á¹½ÁÛ¤«¤é15ǯ°Ê¾å¤ÎºÐ·î¤ò¤«¤±¤¿É𢾮¿ùºÇÂçµé¤Î¡Ö¤Þ¤Á°ìÂη¿Ê£¹ç³«È¯¡×¡Á
¡Ö¥¶¡¦¥Ñ¡¼¥¯¥Ï¥¦¥¹ É𢾮¿ù¥¿¥ï¡¼¥º¡×»Ïư
¥Ç¥¶¥¤¥ó¥³¥ó¥»¥×¥È¤Ï¡ÖÂçÃϤ«¤éÀ¸¤¨¤ëÆóËܤÎÂç¼ù¡×¡¢·×1,438¸Í¡¦ÃϾå50³¬·ú2Åï¤Î¥¿¥ï¡¼¥ì¥¸¥Ç¥ó¥¹
¢§Àîºê»Ô¡§´Ä¶±Æ¶Áɾ²Á¡Ê´Ä¶¥¢¥»¥¹¥á¥ó¥È¡Ë¡Ê2023ǯ6·î20Æü¡Ë
¢¨ ½ÄÍ÷´ü´Ö½ªÎ»
¢§Àîºê»Ô¡§ÅԻԷײè¡Ê2023ǯ1·î19Æü¡Ë
¾®¿ùÄ®1¡¦2ÃúÌÜÃ϶è¡ÊCÃ϶è¡Ë
- ¥«¥Æ¥´¥ê
- Àîºê»Ô







