
¡¡ÅìµþÅÔ¾®Ê¿»Ô¤Î¡Ö¾®Àî¡×±ØÁ°¤Ç·úÀßÃæ¤Îʬ¾ù¥¿¥ï¥Þ¥ó¡Ö¥¢¥È¥é¥¹¥¿¥ï¡¼¾®Ê¿¾®Àî¡×(ÃϾå27³¬¡¢¹â¤µ98.51m)¤Ç¤¹¡£2025ǯ10·î18Æü¤Ë»£±Æ¤·¤Þ¤·¤¿¡£·úÃÛ¼ç¤Ï°°²½À®ÉÔÆ°»º¥ì¥¸¥Ç¥ó¥¹¤Ç¡¢ÄãÁØÉô¤Ë¤Ï¾¦¶È»ÜÀߤä¿Þ½ñ´Û¤¬Æþ¤ê¤Þ¤¹¡£¤³¤Îµ»ö¤Ç¤ÏƱ¥¿¥ï¥Þ¥ó¤Î³µÍפä·úÀß¾õ¶·¡¢ÃÏ¿ÞÅù¤òºÜ¤»¤Æ¤¤¤Þ¤¹¡£
¥¢¥È¥é¥¹¥¿¥ï¡¼¾®Ê¿¾®Àî¤Ë¤Ä¤¤¤Æ

³°´Ñ´°À®Í½ÁÛCG[½Ðŵ¡§¸ø¼°HP]
¡¡¡Ö¥¢¥È¥é¥¹¥¿¥ï¡¼¾®Ê¿¾®Àî¡×¤ÏÀ¾Éð¹ñʬ»ûÀþ¡¦ÇÒÅçÀþ¡Ö¾®Àî¡×±ØÁ°¤ÎºÆ³«È¯¤Ç¡¢µ¬ÌϤÏÃϾå27³¬¡¢Ãϲ¼1³¬¡¢¹â¤µ98.51m¡¢ÉßÃÏÌÌÀÑ5,045.35Ö¡¢·úÃÛÌÌÀÑ3,513.23Ö¡¢±ä¾²ÌÌÀÑ4Ëü266.97Ö¡¢·úÃÛ¼ç¤Ï¾®Àî±ØÀ¾¸ýÃ϶è»Ô³¹ÃϺƳ«È¯Áȹç¡Ê»²²ÃÁȹç°÷¡¦Çä¼ç¡§°°²½À®ÉÔÆ°»º¥ì¥¸¥Ç¥ó¥¹¡Ë¡¢Àß·×¼Ô¤ÏINA¿··úÃÛ¸¦µæ½ê¡¢»Ü¹©¼Ô¤Ï¸ÍÅÄ·úÀß¡¢½×¹©Í½Äê¤Ï2026ǯ5·î²¼½Ü¡¢Æþµï³«»ÏͽÄê¤Ï2026ǯ8·î²¼½Ü¤È¤Ê¤Ã¤Æ¤¤¤Þ¤¹¡£

³°´Ñ´°À®Í½ÁÛCG[½Ðŵ¡§¸ø¼°HP]
¡¡Áí¸Í¿ô¤Ï218¸Í¡ÊÈóʬ¾ù½»¸Í33¸Í´Þ¤à¡Ë¤Ç¡¢¤½¤Î¤¦¤Á13¸Í¤¬2025ǯ11·î1Æü¡Á2Æü¤ËÂè3´ü2¼¡¤ÎÅÐÏ¿¼õÉÕ³«»Ï¤È¤Ê¤ê¤Þ¤¹¡£ÈÎÇä´Ö¼è¤ê¤Ï2LDK¡Á3LDK¡¢ÀìÍÌÌÀѤÏ70.90Ö¡Á74.43Ö¡¢¥Ð¥ë¥³¥Ë¡¼ÌÌÀѤÏ12.76Ö¡Á18.51Ö¡¢ÈÎÇäͽÄê²Á³Ê¤Ï6878Ëü±ßÂæ¡Á8098Ëü±ß¤Ç¤¹¡£

³µÇ°¿Þ[½Ðŵ¡§¸ø¼°HP]
¡¡Æ±¥¿¥ï¥Þ¥ó¤Î1¡Á2³¬¤Ï¥³¡¼¥×¤ß¤é¤¤¡¦¾¦¶ÈŹÊÞ¡¢3³¬¤Ë¤ÏÀ¸³è¥µ¡¼¥Ó¥¹·ÏŹÊÞ¡¢4¡Á5³¬¤Ï¿Þ½ñ´Û¡¦¸ø±×»ÜÀߤ¬ÇÛÃÖ¤µ¤ì¡¢5³¬¤Ë¤Ï½»Âð¤Î¥á¥¤¥ó¥¨¥ó¥È¥é¥ó¥¹¤âÇÛÃÖ¤µ¤ì¤Þ¤¹¡£½»Âð¥Õ¥í¥¢¤Ï6¡Á27³¬¤Ë¤Ê¤ê¤Þ¤¹¡£

¥Õ¥í¥¢¿Þ¡Ê1¡Á3F¡Ë[½Ðŵ¡§¸ø¼°HP]
¡¡1¡Á3³¬¤Î¥Õ¥í¥¢¿Þ¤Ç¤¹¡£1³¬¤Ë¤Ï´ÓÄÌÄÌÏ©¤¬À°È÷¤µ¤ì¡¢¤½¤ÎÄÌÏ©¤òÈ´¤±¤¿ËÌÀ¾Â¦¤Ë¤Ï¹¾ì¤¬À°È÷¤µ¤ì¤Þ¤¹¡£¤Þ¤¿¡¢2³¬¤Ë¤Ï±ØÄ¾·ë¥Ç¥Ã¥¤¬À°È÷¤µ¤ì¤ëͽÄê¤Ç¡¢½»ÂðÍÑ¥¨¥ó¥È¥é¥ó¥¹¤âÀߤ±¤é¤ì¤Þ¤¹¡£

¥Õ¥í¥¢¿Þ¡Ê4¡Á5F¡Ë[½Ðŵ¡§¸ø¼°HP]
¡¡4¡Á5³¬¤Ï¿Þ½ñ´Û¤ä¸øÌ±´Û¡¢Ëɲ»¥¹¥¿¥¸¥ª¡¢Â¿ÌÜŪ¼¼¤Ê¤É»Ô¤Î¸ø¶¦»ÜÀߤ¬ÇÛÃÖ¤µ¤ì¤Þ¤¹¡£¤Þ¤¿¡¢À¾Éô½ÐÄ¥½ê¤Ç¤Ï½»Ì±É¼¤Î¸øÅª¤Ê½ñÎà¤ò¼õ¤±¼è¤ì¤ë¤è¤¦¤Ë¤Ê¤ê¤Þ¤¹¡£

¥¨¥ó¥È¥é¥ó¥¹´°À®Í½ÁÛCG[½Ðŵ¡§¸ø¼°HP]
¡¡±ØÄ¾·ëͽÄê¤Î2³¬¥¨¥ó¥È¥é¥ó¥¹¤Ç¤¹¡£

¥¨¥ó¥È¥é¥ó¥¹¥Û¡¼¥ë´°À®Í½ÁÛCG[½Ðŵ¡§¸ø¼°HP]
¡¡5³¬¤Ë¤Ï½»Âð³¬¤ÎÆþ¸ý¤È¤Ê¤ë¥¨¥ó¥È¥é¥ó¥¹¥Û¡¼¥ë¤¬ÇÛÃÖ¤µ¤ì¤Þ¤¹¡£

¥é¥¦¥ó¥¸´°À®Í½ÁÛCG[½Ðŵ¡§¸ø¼°HP]
¡¡¼þÊդˤϹ⤤·úʪ¤Ï¤Ê¤¤¤Î¤Ç5³¬¤ËÇÛÃÖ¤µ¤ì¤ë¥é¥¦¥ó¥¸¤«¤é¤Ç¤â·Ê¿§¤¬³Ú¤·¤á¤Þ¤¹¡£

¥²¥¹¥È¥ë¡¼¥à´°À®Í½ÁÛCG[½Ðŵ¡§¸ø¼°HP]
¡¡6³¬¤Ë¤Ï¶¦ÍÑ»ÜÀߤȤ·¤Æ¥²¥¹¥È¥ë¡¼¥à¤¬ÇÛÃÖ¤µ¤ì¤Þ¤¹¡£
´Ö¼è¤ê¿Þ

¥Õ¥í¥¢¥¤¥é¥¹¥È[½Ðŵ¡§¸ø¼°HP]
¡¡11¡Á13¡¢15¡Á20³¬¥Õ¥í¥¢¥¤¥é¥¹¥È¤Ç¤¹¡£Æâϲ¼Àß·×¤Ç³Æ¥Õ¥í¥¢¤Ë¤Ï¥´¥ßÃÖ¤¾ì¤¬ÀßÃÖ¤µ¤ì¤Þ¤¹¡£½»Âð¥Õ¥í¥¢¤Ï6³¬¤«¤é¤Ç¥¨¥ì¥Ù¡¼¥¿¡¼¤ÏÈó¾ïÍѤâ´Þ¤á¤Æ4´ð¤Ç¤¹¡£

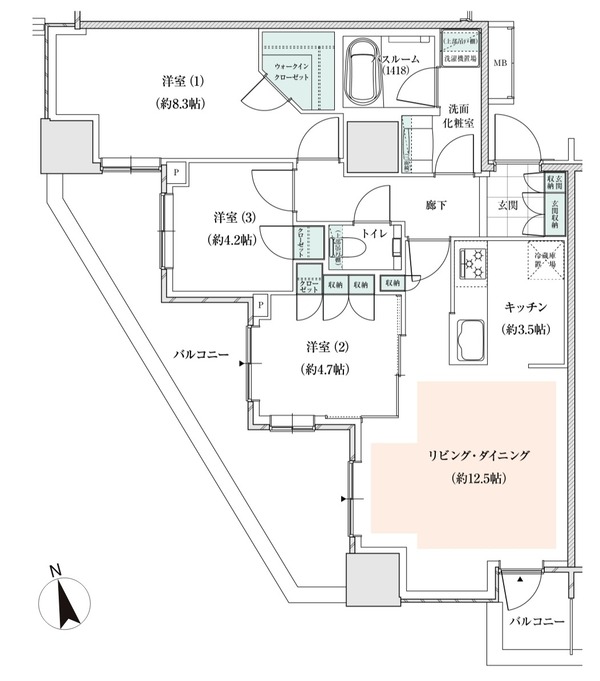
E2¥¿¥¤¥×[½Ðŵ¡§¸ø¼°HP]
¡¡E2¥¿¥¤¥×¤Î´Ö¼è¤ê¿Þ¤Ç¤¹¡£´Ö¼è¤ê¤Ï2LDK+WIC+SIC¡¢ÀìÍÌÌÀѤÏ59.74Ö¡¢¥Ð¥ë¥³¥Ë¡¼ÌÌÀѤÏ12.71֤ȤʤäƤ¤¤Þ¤¹¡£

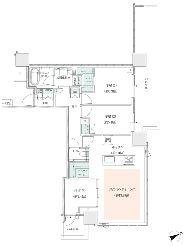
G2¥¿¥¤¥×[½Ðŵ¡§¸ø¼°HP]
¡¡G2¥¿¥¤¥×¤Î´Ö¼è¤ê¿Þ¤Ç¤¹¡£´Ö¼è¤ê¤Ï3LDK+WIC¡¢ÀìÍÌÌÀѤÏ70.90Ö¡¢¥Ð¥ë¥³¥Ë¡¼ÌÌÀѤÏ12.90֤ȤʤäƤ¤¤Þ¤¹¡£

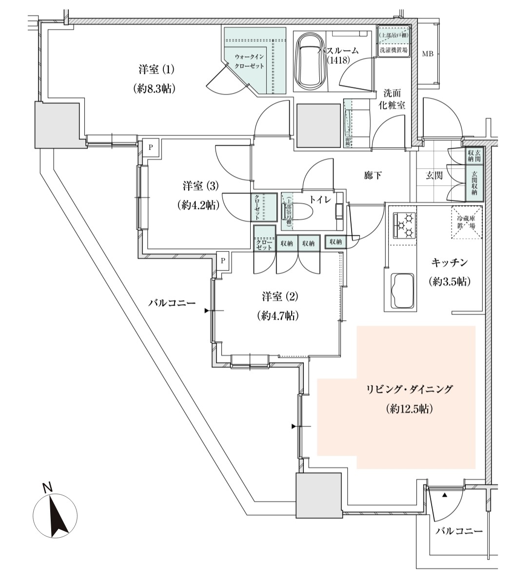
D1¥¿¥¤¥×[½Ðŵ¡§¸ø¼°HP]
¡¡D1¥¿¥¤¥×¤Î´Ö¼è¤ê¿Þ¤Ç¤¹¡£´Ö¼è¤ê¤Ï3LDK+WIC¡¢ÀìÍÌÌÀѤÏ74.43Ö¡¢¥Ð¥ë¥³¥Ë¡¼ÌÌÀѤÏ18.51֤ȤʤäƤ¤¤Þ¤¹¡£

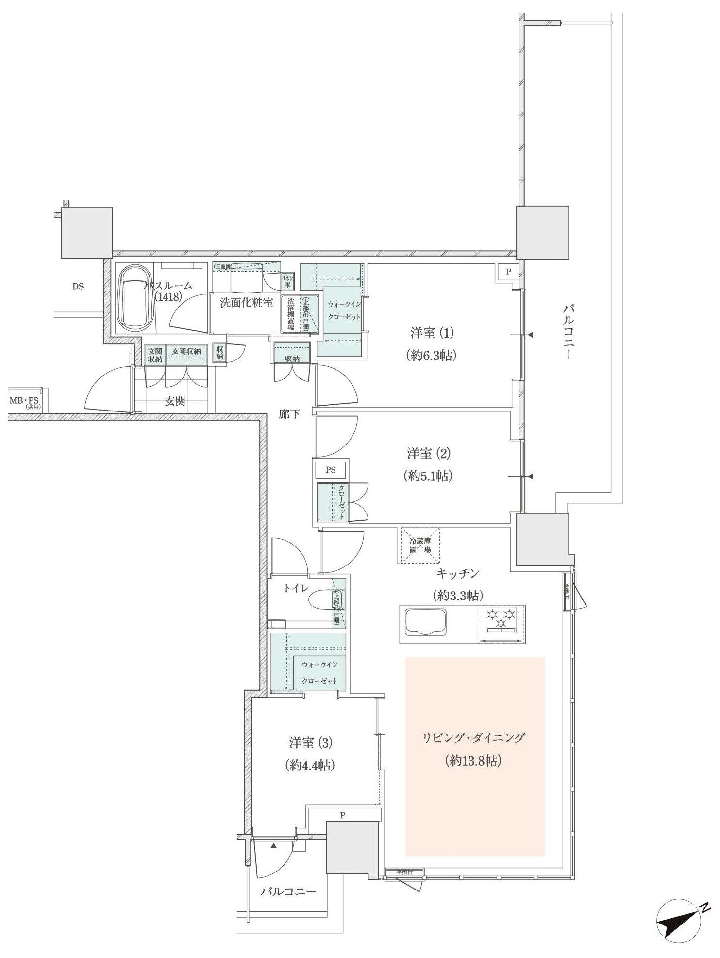
I2¥¿¥¤¥×[½Ðŵ¡§¸ø¼°HP]
¡¡I2¥¿¥¤¥×¤Î´Ö¼è¤ê¿Þ¤Ç¤¹¡£´Ö¼è¤ê¤Ï3LDK+2WIC¡¢ÀìÍÌÌÀѤÏ75.78Ö¡¢¥Ð¥ë¥³¥Ë¡¼ÌÌÀѤÏ20.41֤ȤʤäƤ¤¤Þ¤¹¡£
°ÌÃÖ¿Þ

°ÌÃÖ¿Þ[½Ðŵ¡§¸ø¼°HP]
¡¡·úÀßÃϤÏÀ¾Éð¹ñʬ»ûÀþ¡¦À¾ÉðÇÒÅçÀþ¡Ö¾®Àî¡×±Ø¤ÎÀ¾¸ý¤ÎÌܤÎÁ°¤Ç¡¢2³¬¤Ë¤Ï±ØÄ¾·ë¥Ç¥Ã¥¤¬ÀßÃÖͽÄê¤È¤Ê¤Ã¤Æ¤¤¤Þ¤¹¡£
¡¡¡Ö¾®Àî¡×±Ø¤ÏÅìµþÅÔ¾®Ê¿»ÔÆâ¤Î±Ø¤Ç¡¢¹ñʬ»û±Ø¤È½êÂô±Ø¤ÎÃæ´Ö¤¢¤¿¤ê¤Ë°ÌÃÖ¤·¤Æ¤ª¤ê¡¢¹ñʬ»û±Ø¤Þ¤Ç¤Ï3±Ø¤Îµ÷Î¥¤È¤Ê¤Ã¤Æ¤¤¤Þ¤¹¡£¤Þ¤¿¡Ö¾®Àî¡×±Ø¤«¤é¤ÏÇÒÅç¥é¥¤¥Ê¡¼¤ÇºÂ¤Ã¤Æ¡ÖÀ¾É𿷽ɡױؤ˹Ԥ¯¤³¤È¤¬²Äǽ¤Ç¤¹¡£
·úÀß¾õ¶·

¡¡2025ǯ10·î18Æü¤ËÆîÀ¾Â¦¤«¤é»£±Æ¤·¤¿¡Ö¥¢¥È¥é¥¹¥¿¥ï¡¼¾®Ê¿¾®Àî¡×(ÃϾå27³¬¡¢¹â¤µ98.51m)¤Ç¤¹¡£

¡¡ÄãÁØÉô¤Ï¤Ï¥³¡¼¥×¤ß¤é¤¤¤ä¾¦¶ÈŹÊÞ¡¢¿Þ½ñ´Û¤ä¸ø±×»ÜÀߤ¬ÇÛÃÖ¤µ¤ì¡¢6³¬¤«¤é¤¬½»Âð¥Õ¥í¥¢¤È¤Ê¤ê¤Þ¤¹¡£

¡¡ËÌÀ¾Â¦¤«¤é»£±Æ¡£ºÇ¾å³¬¤Î27³¬¤ËÅþ㤷¤Æ¤¤¤ë¤è¤¦¤Ç¤·¤¿¡£

¡¡ËÌÅ즤«¤é»£±Æ¡£º¸Â¦¤¬¾®Àî±Ø¤Ç¤¹¤¬¡¢¤Þ¤À±ØÄ¾·ë¥Ç¥Ã¥¤Î¹©»ö¤¬»Ï¤Þ¤ë¤è¤¦¤Êµ¤ÇۤϤ¢¤ê¤Þ¤»¤ó¤Ç¤·¤¿¡£

¡¡¾®Àî±Ø¤ÎÀ¾¸ý¤ò½Ð¤¿¤È¤³¤í¤«¤é»£±Æ¡£¤³¤Á¤é¤ÎÆî¦¤Ë¤ÏŹÊÞ¤¬ÇÛÃÖ¤µ¤ì¤Þ¤¹¡£
ÃÏ¿Þ
ʪ·ï³µÍ×

¡¡·úÃ۷ײè¤Î¤ªÃΤ餻¤Ç¤¹¡£¿ôÃͤϸø¼°HP¤ÎÃͤòÍ¥À褷¤Æ·ÇºÜ¤·¤Æ¤¤¤Þ¤¹¡£
¢£Êª·ï³µÍ×¢£
̾¾Î¡§¥¢¥È¥é¥¹¥¿¥ï¡¼¾®Ê¿¾®Àî
»ö¶È̾¡§¾®Àî±ØÀ¾¸ýÃ϶èÂè°ì¼ï»Ô³¹ÃϺƳ«È¯»ö¶È¤Ë·¸¤ë»ÜÀß·úÃÛʪ¿·ÃÛ¹©»ö
½êºßÃÏ¡§ÅìµþÅÔ¾®Ê¿»Ô¾®ÀîÀ¾Ä®4ÃúÌÜ3001ÈÖ¡ÊÃÏ̾ÃÏÈÖ¡Ë
¸òÄÌ¡§À¾Éð¹ñʬ»ûÀþ¡¦À¾ÉðÇÒÅçÀþ¡Ö¾®Àî¡×±Ø ÅÌÊâ1ʬ
ÍÑÅÓ¡§Å¹ÊÞ¡¢¿Þ½ñ´Û¡¢»ö̳½ê¡¢¶¦Æ±½»Âð¡¢Ãó¼Ö¾ì
Áí¸Í¿ô¡§218¸Í¡ÊÈóʬ¾ù½»¸Í33¸Í´Þ¤à¡Ë¡¢Å¹ÊÞ12¶è²è¡¢¶È̳1¶è²è¡¢¸ø¶¦1¶è²è
³¬¿ô¡§ÃϾå27³¬¡¢Ãϲ¼1³¬
¹â¤µ¡§98.51m
¹½Â¤¡§Å´¶Ú¥³¥ó¥¯¥ê¡¼¥È¤ °ìÉô Å´¹ü¤¡ÊËÜÂΡˡ¢Å´¹ü¤¡ÊÃó¼Ö¾ìÅï¡Ë
ÂÑ¿ÌÀǽ¡§À©¿Ì¹½Â¤
´ðÁù©Ë¡¡§Ä¾ÀÜ´ðÁáÊËÜÂΡˡ¢¹º´ðÁáÊÃó¼Ö¾ìÅï¡Ë
ÉßÃÏÌÌÀÑ¡§5,045.35Ö
·úÃÛÌÌÀÑ¡§3,513.23Ö
±ä¾²ÌÌÀÑ¡§40,266.97Ö
·úÃۼ硧¾®Àî±ØÀ¾¸ýÃ϶è»Ô³¹ÃϺƳ«È¯Áȹç
»²²ÃÁȹç°÷¡¦Çä¼ç¡§°°²½À®ÉÔÆ°»º¥ì¥¸¥Ç¥ó¥¹
Àß·×¼Ô¡§INA¿··úÃÛ¸¦µæ½ê
»Ü¹©¼Ô¡§¸ÍÅÄ·úÀß
¹©´ü¡§2023ǯ12·î1ÆüÃ幩¡Á2026ǯ5·î²¼½Ü½×¹©Í½Äê
Æþµï¡§2026ǯ8·î²¼½ÜͽÄê
½Ðŵ
¢§¸ø¼°HP¡§¥¢¥È¥é¥¹¥¿¥ï¡¼¾®Ê¿¾®Àî
https://www.atlas-web.jp/atlas/mansion/ogawa/
¢§¾®Ê¿»Ô¡§¤Þ¤Á¤Å¤¯¤ê
¾®Àî±ØÀ¾¸ýÃ϶èÂè°ì¼ï»Ô³¹ÃϺƳ«È¯»ö¶È
¢§¾®Àî±ØÀ¾¸ýÃ϶è»Ô³¹ÃϺƳ«È¯Áȹç
https://ogawawest-renewal.com/
- ¥«¥Æ¥´¥ê
- ¾®Ê¿»Ô







