
¡¡ºûÄͱض᤯¤ÎÄê¼Úʬ¾ù¥¿¥ï¥Þ¥ó¡Ö¥Ñ¡¼¥¯¥¿¥ï¡¼½ÂëºûÄÍ¡×(ÃϾå28³¬¡¢¹â¤µ99.98m)¤Î·úÀßÃϤǤ¹¡£2025ǯ10·î18Æü¤Ë»£±Æ¤·¤Þ¤·¤¿¡£¸½ÃϤǤϥ¿¥ï¡¼¥¯¥ì¡¼¥ó¤¬3´ð¤ÇÃϾå¶íÂι©»ö¤¬»Ï¤Þ¤Ã¤Æ¤¤¤Þ¤¹¡£¤³¤Îµ»ö¤Ç¤ÏƱ¥¿¥ï¥Þ¥ó¤Î³µÍפä·úÀß¾õ¶·¡¢ÃÏ¿ÞÅù¤òºÜ¤»¤Æ¤¤¤Þ¤¹¡£
¥Ñ¡¼¥¯¥¿¥ï¡¼½ÂëºûÄͤˤĤ¤¤Æ

³°´Ñ´°À®Í½ÁÛCG[½Ðŵ¡§¸ø¼°HP]
¡¡¡Ö¥Ñ¡¼¥¯¥¿¥ï¡¼½ÂëºûÄ͡פϺûÄÍ±ØÆî¸ý¤ÎÅ즡ʿ·½É¦¡Ë¤Ë¤¢¤Ã¤¿ÃæÂ¼²°Åìµþ»ö¶È½êÀ×ÃϤÎʬ¾ù¥¿¥ï¥Þ¥ó¤Ç¡¢µ¬ÌϤÏÃϾå28³¬¡¢Åã²°2³¬¡¢Ãϲ¼1³¬¡¢¹â¤µ99.98m¡¢ÉßÃÏÌÌÀÑ8,156.34Ö¡¢·úÃÛÌÌÀÑ5,284.96Ö¡¢±ä¾²ÌÌÀÑ7Ëü7376.68֤ȤʤäƤ¤¤Þ¤¹¡£
¡¡·úÃÛ¼ç¡ÊÇä¼ç¡Ë¤Ï»°°æÉÔÆ°»º¥ì¥¸¥Ç¥ó¥·¥ã¥ë¡¢À߷׼ԤȻܹ©¼Ô¤ÏÂçÎÓÁÈ¡¢½×¹©Í½Äê¤Ï2027ǯ12·î²¼½Ü¡¢Æþµï³«»ÏͽÄê¤Ï2028ǯ3·î²¼½Ü¤Ç¤¹¡£Æ±¥¿¥ï¥Þ¥ó¤Ë¤Ï2028ǯ3·î²¼½Ü¤«¤é2098ǯ12·î31Æü¤Þ¤Ç¤ÎÌó70ǯ¤ÎÄê´üž¼ÚÃϸ¢¤¬ÉÕ¤¤¤Æ¤¤¤Þ¤¹¡£

³°´Ñ´°À®Í½ÁÛCG[½Ðŵ¡§¸ø¼°HP]
¡¡Áí¸Í¿ô659¸Í¤Î¤¦¤Á°ìÈÌÈÎÇäÂоݽ»¸Í¤Ï643¸Í¤ÇÂè1´ü¤Î230¸Í¤ÈÂè2´ü1¼¡¤Î109¸Í¤ÏÁ´¸ÍÅÐÏ¿´°Ç䤷¤Æ¤¤¤Þ¤¹¡£2025ǯ11·îÃæ½Ü¤«¤é¤ÏÂè2´ü2¼¡¤ÎÈÎÇ䳫»ÏͽÄê¤Ç¡¢Æ±´ü¤â´Þ¤à»Ä¤ê¤ÎÁíÈÎÇä¸Í¿ô¤Ï304¸Í¡¢´Ö¼è¤ê¤Ï1LDK¡Á3LDK¡¢ÀìÍÌÌÀѤÏ43.94Ö¡Á108.56Ö¡¢¥Ð¥ë¥³¥Ë¡¼ÌÌÀѤÏ10.54Ö¡Á25.59֤ȤʤäƤ¤¤Þ¤¹¡£

¥Õ¥í¥¢¹½À®[½Ðŵ¡§¸ø¼°HP]
¡¡1³¬¤Ë¤ÏŹÊÞ¤äÃϰè¹×¸¥»ÜÀß¡¢2³¬¤Ë¤ÏŹÊÞ¡¢»Ò°é¤Æ»Ù±ç»ÜÀß¡¢¥²¥¹¥È¥ë¡¼¥à5¼¼¡¢3³¬¤Ë¤Ï¥é¥¦¥ó¥¸¤ä¥Ñ¡¼¥Æ¥£¥ë¡¼¥à¤Ê¤É¤Î¥Þ¥ó¥·¥ç¥ó¶¦ÍÑ»ÜÀߤ¬½¸¤á¤é¤ì¡¢²°¾å¤Ë¤Ï¥¹¥«¥¤¥Æ¥é¥¹¤¬ÇÛÃÖ¤µ¤ì¤Þ¤¹¡£½»Âð¥Õ¥í¥¢¤Ï4³¬¡Á28³¬¤Ç¡¢³Æ³¬¤Ë¤Ï¥´¥ßÃ־졢ËɺÒÁҸˡ¢ÂðÇۥܥ寥¹¤¬ÀßÃÖ¤µ¤ì¤Þ¤¹¡£

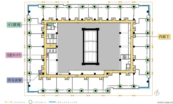
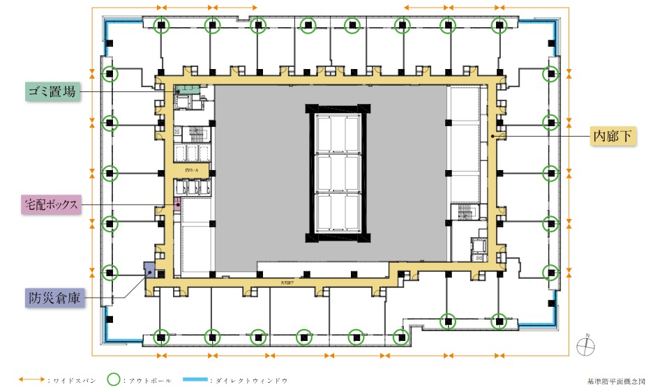
ÉßÃÏÇÛÃÖ³µÇ°¿Þ[½Ðŵ¡§¸ø¼°HP]
¡¡¡Ö¥Ñ¡¼¥¯¥¿¥ï¡¼½ÂëºûÄ͡פμþ°Ï¤Ë¤Ï6¤Ä¤Î¥¨¥ê¥¢¤Ë¿¢ºÏ¤¬ÇÛ¤µ¤ì¡¢650ËܤÎÃæ¹âÌÚ¤È3000³ô¤ÎÄãÌÚÃÏÈïÎà¤Ë¤è¤Ã¤Æ»Íµ¨¤¬ºÌ¤é¤ì¤Þ¤¹¡£

³°¹½´°À®Í½ÁÛCG[½Ðŵ¡§¸ø¼°HP]
¡¡¿åÍ·¤Ó¤â¤Ç¤¤ëÉßÃÏÇÛÃÖ³µÇ°¿Þ¤¤Û¤È¤ê[ÈÊ]¤Î´°À®Í½ÁۿޤǤ¹¡£

³°¹½´°À®Í½ÁÛCG[½Ðŵ¡§¸ø¼°HP]
¡¡ÉßÃÏÇÛÃÖ³µÇ°¿Þ£¤Ê¤¬¤ì[ή¤ì]¤Î´°À®Í½ÁۿޤǤ¹¡£¿å·Ê¤Ë´ó¤êꤦÊâÆ»¤¬À°È÷¤µ¤ì¤Þ¤¹¡£

¹¾ì´°À®Í½ÁÛCG[½Ðŵ¡§¸ø¼°HP]
¡¡ÉßÃÏÇÛÃÖ³µÇ°¿Þ¡¤ß¤Ê¤ß[¿åÌÌ]¤Î´°À®Í½ÁۿޤǤ¹¡£ÃÏÌ̤˥¢¡¼¥È¤¬¤¢¤ë¹¾ì¤Ë¤Ê¤ê¤Þ¤¹¡£

¥¨¥ó¥È¥é¥ó¥¹´°À®Í½ÁÛCG[½Ðŵ¡§¸ø¼°HP]
¡¡ºûÄͱؤ˰ìÈֶᤤËÌÀ¾Â¦¤ËÇÛÃÖ¤µ¤ì¤ë¥¨¥ó¥È¥é¥ó¥¹¤Î´°À®Í½ÁۿޤǤ¹¡£Ê£¿ô¤Î¿³Ñ·Á¤Ç¥Ç¥¶¥¤¥ó¤·¤¿¥¥ã¥Î¥Ô¡¼¡ÊÅ·³¸¡Ë¤¬¤¢¤ë¹¾ì¤Ë¤Ê¤ê¤Þ¤¹¡£

¼Ö´ó¤»´°À®Í½ÁÛCG[½Ðŵ¡§¸ø¼°HP]
¡¡Æî¦¤Î¥µ¥Ö¥¨¥ó¥È¥é¥ó¥¹¤Ë¤Ï¼Ö´ó¤»¤âÀßÃÖ¤µ¤ì¤Þ¤¹¡£
¶¦ÍÑÉô

¥¨¥ó¥È¥é¥ó¥¹¥Û¡¼¥ë´°À®Í½ÁÛCG[½Ðŵ¡§¸ø¼°HP]
¡¡¥¨¥ó¥È¥é¥ó¥¹¥Û¡¼¥ë¤ÏÅ·°æ¹âÌó7.8m¤Î2ÁØ¿áÈ´¤±¤Î¶õ´Ö¤Ç¡¢¾²¤äº¸´±¤Î¶ÊÀþÊɤϿå¤Îή¤ì¤ò¡¢Ãì¤ÏÌÚΩ¤ò¥¤¥á¡¼¥¸¤·¡¢Ìܤ˱Ǥë¤â¤Î¤¹¤Ù¤Æ¤Ë¶ÌÀî¾å¿å¤Î¼«Á³¤Îư¤¤¬É½¸½¤µ¤ì¤Æ¤¤¤Þ¤¹¡£

3³¬¶¦ÍÑÉôÊ¿ÌÌ¿Þ[½Ðŵ¡§¸ø¼°HP]
¡¡3³¬¤Ë¤ÏÊ£¿ô¤Î¶¦ÍÑ»ÜÀߤ¬½¸¤á¤é¤ì¤Æ¤¤¤Þ¤¹¡£

¥é¥¦¥ó¥¸´°À®Í½ÁÛCG[½Ðŵ¡§¸ø¼°HP]
¡¡3³¬¥é¥¦¥ó¥¸¤Î´°À®Í½ÁۿޤǤ¹¡£Áë¤Î³°¤Ï¥¢¥¦¥È¥É¥¢¥é¥¤¥Ö¥é¥ê¡¼¤Ç¡¢¥é¥¦¥ó¥¸±ü¤Î¶õ´Ö¤Ï»Ò¶¡¤ò¸«¼é¤ê¤Ê¤¬¤é»Å»ö¤â¤Ç¤¤ë¥×¥ì¥¤¡õ¥ï¡¼¥¯¥é¥¦¥ó¥¸¤È¤Ê¤Ã¤Æ¤¤¤Þ¤¹¡£

¥Ñ¡¼¥Æ¥£¥ë¡¼¥à´°À®Í½ÁÛCG[½Ðŵ¡§¸ø¼°HP]
¡¡3³¬¥Ñ¡¼¥Æ¥£¥ë¡¼¥à¤Î´°À®Í½ÁۿޤǤ¹¡£Â¾¤Ë¤â3³¬¤Ë¤Ï¥½¥í¥Õ¥£¥Ã¥È¥Í¥¹¥¹¥¿¥¸¥ª¡¢¥Õ¥ì¥Ã¥¯¥¹¥¹¥¿¥Ç¥£¥ë¡¼¥à¡¢¥é¥ó¥É¥ê¡¼¤âÇÛÃÖ¤µ¤ì¤Þ¤¹¡£

¥²¥¹¥È¥ë¡¼¥à´°À®Í½ÁÛCG[½Ðŵ¡§¸ø¼°HP]
¡¡2³¬¤Ë¤Ï¥²¥¹¥È¥ë¡¼¥à¤È¤·¤Æ¥Õ¥¡¥ß¥ê¡¼2Éô²°¡¢¥³¥ó¥Ñ¥¯¥È3Éô²°¤Î·×5Éô²°¤¬ÍѰդµ¤ì¤Þ¤¹¡£¤½¤ì¤¾¤ì¾¬·Ö¡¢¿·ÎС¢»³ºù¡¢¿åή¡¢ÍîÍÕ¤¬¥Æ¡¼¥Þ¤È¤Ê¤Ã¤Æ¤¤¤Þ¤¹¡£

¥³¥ó¥·¥§¥ë¥¸¥å¥«¥¦¥ó¥¿¡¼´°À®Í½ÁÛCG[½Ðŵ¡§¸ø¼°HP]
¡¡¥³¥ó¥·¥§¥ë¥¸¥å¥«¥¦¥ó¥¿¡¼¤â2³¬¤ËÇÛÃÖ¤µ¤ì¤Þ¤¹¡£

¥¹¥«¥¤¥Æ¥é¥¹´°À®Í½ÁÛCG[½Ðŵ¡§¸ø¼°HP]
¡¡¹â¤µÌó100m¤È¤Ê¤ë²°¾å¤Ë¤Ï¥¹¥«¥¤¥Æ¥é¥¹¤¬ÀßÃÖ¤µ¤ì¤Þ¤¹¡£
´Ö¼è¤ê¿Þ

´ð½à³¬Ê¿Ì̳µÇ°¿Þ[½Ðŵ¡§¸ø¼°HP]
¡¡½»Âð¥Õ¥í¥¢¤ÏÆâϲ¼À߷פ¬ºÎÍѤµ¤ì¤Æ¤ª¤ê¡¢³Æ³¬¤Ë¤Ï¥´¥ßÃ־졢ÂðÇۥܥ寥¹¡¢ËɺÒÁҸˤ¬ÇÛÃÖ¤µ¤ì¤Þ¤¹¡£

45A¥¿¥¤¥×[½Ðŵ¡§¸ø¼°HP]
¡¡45A¥¿¥¤¥×¤Î´Ö¼è¤ê¿Þ¤Ç¤¹¡£´Ö¼è¤ê¤Ï1LDK+WIC+TR¡¢ÀìÍÌÌÀѤÏ45.71֡ʥȥé¥ó¥¯¥ë¡¼¥àÌÌÀÑ0.66Ö´Þ¤à¡Ë¡¢¥Ð¥ë¥³¥Ë¡¼ÌÌÀѤÏ11.10֤ȤʤäƤ¤¤Þ¤¹¡£

58Cb¥¿¥¤¥×[½Ðŵ¡§¸ø¼°HP]
¡¡58Cb¥¿¥¤¥×¤Î´Ö¼è¤ê¿Þ¤Ç¤¹¡£´Ö¼è¤ê¤Ï2LDK+TR¡¢ÀìÍÌÌÀѤÏ58.70֡ʥȥé¥ó¥¯¥ë¡¼¥àÌÌÀÑ0.66Ö´Þ¤à¡Ë¡¢¥Ð¥ë¥³¥Ë¡¼ÌÌÀѤÏ13.32֤ȤʤäƤ¤¤Þ¤¹¡£

81A¥¿¥¤¥×[½Ðŵ¡§¸ø¼°HP]
¡¡81A¥¿¥¤¥×¤Î´Ö¼è¤ê¿Þ¤Ç¤¹¡£´Ö¼è¤ê¤Ï3LDK+WIC+SIC+S+TR¡¢ÀìÍÌÌÀѤÏ81.74֡ʥȥé¥ó¥¯¥ë¡¼¥àÌÌÀÑ0.66Ö´Þ¤à¡Ë¡¢¥Ð¥ë¥³¥Ë¡¼ÌÌÀѤÏ15.31֤ȤʤäƤ¤¤Þ¤¹¡£

P-107C¥¿¥¤¥×[½Ðŵ¡§¸ø¼°HP]
¡¡27³¬¡¦28³¬¥×¥ì¥ß¥¢¥à¥Õ¥í¥¢¤ÎP-107C¥¿¥¤¥×¤Î´Ö¼è¤ê¿Þ¤Ç¤¹¡£´Ö¼è¤ê¤Ï3LDK+DEN+3WIC+SIC+S+TR¡¢ÀìÍÌÌÀѤÏ107.73֡ʥȥé¥ó¥¯¥ë¡¼¥àÌÌÀÑ0.66Ö´Þ¤à¡Ë¡¢¥Ð¥ë¥³¥Ë¡¼ÌÌÀѤÏ25.29֤ȤʤäƤ¤¤Þ¤¹¡£
°ÌÃÖ¿Þ

°ÌÃÖ¿Þ[½Ðŵ¡§¸ø¼°HP]
¡¡¡Ö¥Ñ¡¼¥¯¥¿¥ï¡¼½ÂëºûÄ͡פϵþ²¦Àþ¡ÖºûÄÍ¡×±ØÆî¸ý¤ÎÅ즡ʿ·½É¦¡Ë¤ÇÅÌÊâ4ʬ¡£¾¯¡¹µ÷Î¥¤Ï¤¢¤ê¤Þ¤¹¤¬¾®Åĵ޾®Åĸ¶Àþ¡ÖÂ塹Ìھ帶¡×±Ø¤Þ¤Ç¤ÏÅÌÊâ16ʬ¡¢¡Ö²¼ËÌÂô¡×±Ø¤Þ¤Ç¤ÏÅÌÊâ22ʬ¤È¤Ê¤Ã¤Æ¤¤¤Þ¤¹¡£
·úÀß¾õ¶·

¡¡2025ǯ10·î18Æü¤ËÆîÀ¾Â¦¤«¤é»£±Æ¤·¤¿¡Ö¥Ñ¡¼¥¯¥¿¥ï¡¼½ÂëºûÄÍ¡×(ÃϾå28³¬¡¢¹â¤µ99.98m)¤Î·úÀßÃϤǤ¹¡£¥¿¥ï¡¼¥¯¥ì¡¼¥ó3´ð¤ÇÃϾå¶íÂι©»ö¤¬»Ï¤Þ¤Ã¤Æ¤¤¤Þ¤¹¡£¤³¤Á¤é¦¤Ë¤Ï¼Ö´ó¤»¤â¤¢¤ë¥µ¥Ö¥¨¥ó¥È¥é¥ó¥¹¤¬ÇÛÃÖ¤µ¤ì¤Þ¤¹¡£
¡¡Çظå¤Î¥Ó¥ë¤Ï¡ÖDaiwaºûÄÍ¥¿¥ï¡¼(µì¾Î¡§ºûÄÍNA¥Ó¥ë)¡×(ÃϾå18³¬¡¢¹â¤µ72.8m)¤Ç¡¢¤Á¤ç¤¦¤É¿·½ÉÊýÌ̤Îį˾¤ò¼×¤ë¥Ó¥ë¤Ë¤Ê¤ê¤Þ¤¹¡£

¡¡ÆîÅ즤«¤é»£±Æ¡£µþ²¦Àþ¤Î¹â²Í¤Èƻϩ¤Ë°Ï¤Þ¤ì¤¿ÆÈΩ¤·¤¿¶è²è¤È¤Ê¤Ã¤Æ¤¤¤Þ¤¹¡£

¡¡ËÌÅ즤«¤é»£±Æ¡£±¦±ü¤Ï¹âÁØÉô¤¬ÄÂÂߥ¿¥ï¥Þ¥ó¤È¤Ê¤Ã¤Æ¤¤¤ë¡Ö¥á¥ë¥¯¥Þ¡¼¥ëµþ²¦ºûÄÍ¡×(ÃϾå21³¬¡¢ºÇ¹â¹â¤µ93.27m)¤Ç¡¢ºûÄͱؤÎÌܤÎÁ°¤Ë°ÌÃÖ¤·¤Æ¤¤¤Þ¤¹¡£

¡¡ËÌÀ¾Â¦¤«¤é»£±Æ¡£ºûÄͱؤ˰ìÈֶᤤ¾ì½ê¤Ç¤³¤Á¤é¤Ë¥¨¥ó¥È¥é¥ó¥¹¤¬Àߤ±¤é¤ì¤Þ¤¹¡£

¡¡µþ²¦Àþ¤ÎÅÅ¼ÖÆâ¤«¤é»£±Æ¤·¤¿¡Ö¥Ñ¡¼¥¯¥¿¥ï¡¼½ÂëºûÄ͡פǤ¹¡£1¥Õ¥í¥¢¤¬Â礲᤮¤ë¤Î¤Ç¡¢ÅÅ¼ÖÆâ¤«¤é»£¤ë¤Î¤Ï¤â¤¦¸·¤·¤½¤¦¤Ç¤·¤¿¡£
ÃÏ¿Þ
ʪ·ï³µÍ×

¡¡·úÃ۷ײè¤Î¤ªÃΤ餻¤Ç¤¹¡£¿ôÃͤϸø¼°HP¤ÎÃͤòÍ¥À褷¤Æ·ÇºÜ¤·¤Æ¤¤¤Þ¤¹¡£
¢£Êª·ï³µÍ×¢£
̾¾Î¡§¥Ñ¡¼¥¯¥¿¥ï¡¼½ÂëºûÄÍ
»ö¶È̾¡§ºûÄÍ±ØÆî¸ýÅìÃÏ¶èºÆ³«È¯·×²è
½êºßÃÏ¡§ÅìµþÅÔ½Âë¶èºûÄÍ£±ÃúÌÜ50ÈÖ-1¾¡ÊÃÏÈÖ¡Ë
¸òÄÌ¡§µþ²¦Àþ¡¦µþ²¦¿·Àþ¡ÖºûÄÍ¡×±Ø ÅÌÊâ4ʬ
¡¡¡¡¡¡¾®ÅĵÞÅÅÅ´¾®Åĸ¶Àþ¡ÖÂ塹Ìھ帶¡×±Ø ÅÌÊâ16ʬ
ÍÑÅÓ¡§¶¦Æ±½»Â𡦻ö̳½ê¡¦ÊªÈÎŹÊÞ¡¦°û¿©Å¹¡¦Êݰé½ê¡¦¤½¤Î¾
Áí¸Í¿ô¡§659¸Í(°ìÈÌÈÎÇäÂоݽ»¸Í643¸Í)
³¬¿ô¡§ÃϾå28³¬¡¢Åã²°2³¬¡¢Ãϲ¼1³¬
¹â¤µ¡§99.98m
¹½Â¤¡§Å´¶Ú¥³¥ó¥¯¥ê¡¼¥È¤ °ìÉô Å´¹ü¤
ÂÑ¿ÌÀǽ¡§À©¿Ì¹½Â¤
´ðÁù©Ë¡¡§¹º´ðÁÃ
ÉßÃÏÌÌÀÑ¡§8,153.83Ö
·úÃÛÌÌÀÑ¡§5,284.96Ö
±ä¾²ÌÌÀÑ¡§77,376.68Ö
·úÃۼ硧»°°æÉÔÆ°»º¥ì¥¸¥Ç¥ó¥·¥ã¥ë
Çä¡¡¼ç¡§»°°æÉÔÆ°»º¥ì¥¸¥Ç¥ó¥·¥ã¥ë
Àß·×¼Ô¡§ÂçÎÓÁÈ
»Ü¹©¼Ô¡§ÂçÎÓÁÈ
¹©´ü¡§2024ǯ2·î¾å½ÜÃ幩¡Á2027ǯ12·î²¼½Ü½×¹©Í½Äê
Æþµï¡§2028ǯ3·î²¼½ÜͽÄê¡ÊÂè1´ü¡Ë
¡¡¡¡¡¡2028ǯ4·î²¼½ÜͽÄê¡ÊÂè2´ü¡Ë
ž¼ÚÃϸ¢¡§2028ǯ3·î²¼½Ü¤«¤é2098ǯ12·î31Æü¤Þ¤Ç
½Ðŵ
¢§¸ø¼°HP¡§¥Ñ¡¼¥¯¥¿¥ï¡¼½ÂëºûÄÍ
https://www.31sumai.com/mfr/X1901/
¢§½Âë¶è¡Ê2023ǯ7·î11Æü¹¹¿·¡Ë
ºûÄÍ±ØÆî¸ýÃ϶è¤Þ¤Á¤Å¤¯¤ê
- ¥«¥Æ¥´¥ê
- ½Âë¶è







