
¡¡È¬²¦»Ò¤Îʬ¾ù¥¿¥ï¥Þ¥ó¡Ö¥ë¥Í¥¿¥ï¡¼È¬²¦»Ò¡×(ÃϾå32³¬¡¢ºÇ¹â¹â¤µ115.175m)¤Î·úÀßÃϤǤ¹¡£2025ǯ10·î18Æü¤Ë»£±Æ¤·¤Þ¤·¤¿¡£Áí¹çÃϽê¤È¥¸¥§¥¤¥¢¡¼¥ëÅìÆüËÜÅÔ»Ô³«È¯¤¬Çä¼ç¤Î¥¿¥ï¡¼¥Þ¥ó¥·¥ç¥ó¤Ç¡¢·úÀßÃϤÏJRȬ²¦»Ò±Ø¤«¤éÀ¾Â¦¤ØÅÌÊâ5ʬ¤ÎÀþÏ©±è¤¤¤È¤Ê¤Ã¤Æ¤¤¤Þ¤¹¡£¤³¤Îµ»ö¤Ç¤ÏƱ¥¿¥ï¥Þ¥ó¤Î³µÍפä·úÀß¾õ¶·¡¢ÃÏ¿ÞÅù¤òºÜ¤»¤Æ¤¤¤Þ¤¹¡£
¥ë¥Í¥¿¥ï¡¼È¬²¦»Ò¤Ë¤Ä¤¤¤Æ

³°´Ñ´°À®Í½ÁÛCG[½Ðŵ¡§¸ø¼°HP]
¡¡¡Ö¥ë¥Í¥¿¥ï¡¼È¬²¦»Ò¡×¤ÏJRȬ²¦»Ò±Ø¤«¤éÀ¾Â¦¤ØÅÌÊâ5ʬ¤ÎÀþÏ©±è¤¤¤Î¥¿¥ï¡¼¥Þ¥ó¥·¥ç¥ó¤Ç¡¢µ¬ÌϤÏÃϾå32³¬¡¢Åã²°2³¬¡¢¹â¤µ111.68m¡¢ºÇ¹â¹â¤µ115.175m¡¢ÉßÃÏÌÌÀÑ6,023.57Ö¡¢·úÃÛÌÌÀÑ2,210.02Ö¡¢±ä¾²ÌÌÀÑ4Ëü6970.53֤ȤʤäƤ¤¤Þ¤¹¡£·úÃۼ硦Çä¼ç¤ÏÁí¹çÃϽê¤È¥¸¥§¥¤¥¢¡¼¥ëÅìÆüËÜÅÔ»Ô³«È¯¡¢À߷׼ԤȻܹ©¼Ô¤ÏĹ빩¥³¡¼¥Ý¥ì¡¼¥·¥ç¥ó¤Ç2028ǯ2·î¾å½Ü½×¹©¡¢2028ǯ3·îÃæ½Ü¤ÎÆþµï³«»ÏͽÄê¤Ç¤¹¡£Æ±¥¿¥ï¥Þ¥ó¤ÏȬ²¦»Ò»ÔÆâ¤ÇÂè2°Ì¤Î¹â¤µ¤È¤Ê¤ê¤Þ¤¹¡£

³°´Ñ´°À®Í½ÁÛCG[½Ðŵ¡§¸ø¼°HP]
¡¡Áí¸Í¿ô¤Ï499¸Í¤ÇÈÎÇ䳫»Ï¤Ï2025ǯ11·î¾å½ÜͽÄê¡£ÈÎÇä´Ö¼è¤ê¤Ï1DK¡Á4LDK¡¢ÀìÍÌÌÀѤÏ30.68Ö¡Á127.15Ö¡¢¥Ð¥ë¥³¥Ë¡¼ÌÌÀѤÏ5.78Ö¡Á37.79֤ǡ¢ÈÎÇäͽÄê²Á³Ê¤Ï3100Ëü±ßÂæ¡Á2²¯3000Ëü±ßÂæ¤È¤Ê¤Ã¤Æ¤¤¤Þ¤¹¡£

1³¬ÉßÃÏÇÛÃÖ¥¤¥é¥¹¥È[½Ðŵ¡§¸ø¼°HP]
¡¡È¬²¦»Ò±ØÂ¦¤È¤Ê¤ëÉßÃÏÅ즤ˤÏJRÃæ±ûËÜÀþ¤Î¸ÙÀþ¶¶¡ÖÃæ±ûÀþΦ¶¶¡×¤¬¤¢¤ê¡¢¡¤Î¥á¥¤¥ó¥¨¥ó¥È¥é¥ó¥¹¤Ï±Ø¤Ë¶á¤¤¤½¤Î¸ÙÀþ¶¶¤Î¤¿¤â¤È¤ËÇÛÃÖ¤µ¤ì¤Þ¤¹¡£µÕ¤Ë±Ø¤«¤é±ó¤¤À¾Â¦¤Ë¤ÏÃó¼Ö¾ì¤ÎÆþ¸ý¤ÈÃóÎØ¾ì¤Î½ÐÆþ¸ýÀߤ±¤é¤ì¤Þ¤¹¡£Ãó¼Ö¾ì¤ÎÆþ¸ý¤È½Ð¸ý¤Ïʬ¤«¤ì¤Æ¤ª¤ê¡¢½Ð¸ý¤ÏË̦¤ËÇÛÃÖ¤µ¤ì¤Þ¤¹¡£
¡¡¢¤Ï¥¨¥ó¥È¥é¥ó¥¹¥é¥¦¥ó¥¸¡¢£¤Ï¥³¥ó¥·¥§¥ë¥¸¥å¡¢¤¤ÏËɲ»¼¼¡¢¥¤Ï¥á¡¼¥ë¥³¡¼¥Ê¡¼¡¢¦¤ÏµÊ±ì¥¹¥Ú¡¼¥¹¡¢§¤ÏËɺҥ»¥ó¥¿¡¼¡¢¨¤ÏËɺÒÁҸˡ¢©¤Ï¥«¡¼¥ÈÃÖ¤¾ì¡¢ª¤Ï¥³¡¼¥Á¥¨¥ó¥È¥é¥ó¥¹¡¢«¤Ï¼Ö´ó¤»¡¢¬¤Ï¤ß¤ó¤Ê¤ÎÀö¤¤¾ì¡¢¤Ï¥¤¥Ù¥ó¥È¥¹¥Ú¡¼¥¹¡¢®¤Ï¤«¤Þ¤É¥¹¥Ä¡¼¥ë¤È¤Ê¤Ã¤Æ¤¤¤Þ¤¹¡£¥«¡¼¥È¤Ï¥Þ¥¤¥«¡¼¤ä¼«Å¾¼Ö¤Ç¤ÎÇ㤤ʪµ¢¤ê¤Ë¡¢½Å¤¤²Ùʪ¤Î»ý¤Á±¿¤Ó¤ËÍøÍѤǤ¤Þ¤¹¡£

2³¬ÉßÃÏÇÛÃÖ¥¤¥é¥¹¥È[½Ðŵ¡§¸ø¼°HP]
¡¡2³¬¤ÎË̦¤Ï¶¦ÍÑ»ÜÀߤǯ¤Ï¥Ñ¡¼¥Æ¥£¥ë¡¼¥à¡¢°¤ÏTSUMUGU lounge¡¢±¤Ï¥ï¡¼¥¥ó¥°¥é¥¦¥ó¥¸¡¢²¤Ï¥²¥¹¥È¥ë¡¼¥àSILKS¡¢³¤Ï¥²¥¹¥È¥ë¡¼¥à ¸¨¤Î´Ö¤È¤Ê¤Ã¤Æ¤¤¤Þ¤¹¡£

¥¨¥ó¥È¥é¥ó¥¹¥¢¥×¥í¡¼¥Á´°À®Í½ÁÛCG[½Ðŵ¡§¸ø¼°HP]
¡¡¥á¥¤¥ó¥¨¥ó¥È¥é¥ó¥¹¤Þ¤Ç¤ÏÎФΥ¢¥×¥í¡¼¥Á¤È¤Ê¤ê¡¢ÌÚÌÜÄ´¤ÎÂç²°º¬¤¬½Ð·Þ¤¨¤Þ¤¹¡£

¥¨¥ó¥È¥é¥ó¥¹¥é¥¦¥ó¥¸´°À®Í½ÁÛCG[½Ðŵ¡§¸ø¼°HP]
¡¡¥¨¥ó¥È¥é¥ó¥¹¥é¥¦¥ó¥¸¤Ï»½¤ÎËú¤«¤é»å¤ò¥É¤ê¤À¤·Ë¤°¹©Äø¤ò¡¢¾ÈÌÀ¤äÅ·°æ¤Î¥Ç¥¶¥¤¥ó¤Çɽ¸½¤µ¤ì¤Æ¤¤¤Þ¤¹¡£

¥³¡¼¥Á¥¨¥ó¥È¥é¥ó¥¹´°À®Í½ÁÛCG[½Ðŵ¡§¸ø¼°HP]
¡¡¥¿¥ï¥Þ¥óËÜÂΤÎÀ¾Â¦¤Ë¤Ï¥³¡¼¥Á¥¨¥ó¥È¥é¥ó¥¹¤¬Àߤ±¤ì¤Þ¤¹¡£

¥Ñ¡¼¥Æ¥£¥ë¡¼¥à ¡õ TSUMUGU lounge ´°À®Í½ÁÛCG[½Ðŵ¡§¸ø¼°HP]
¡¡¥Ñ¡¼¥Æ¥£¥ë¡¼¥à¤Ï¥í¥°¥Ï¥¦¥¹Ä´¤Ë¤Ê¤ê¤Þ¤¹¡£

¥²¥¹¥È¥ë¡¼¥à SILKS ´°À®Í½ÁÛCG[½Ðŵ¡§¸ø¼°HP]
¡¡¥²¥¹¥È¥ë¡¼¥à¤Ï2³¬¤Ë2Éô²°ÍѰդµ¤ì¤Þ¤¹¡£¤³¤Á¤é¤Ï¥Û¥ï¥¤¥È¤ò´ðÄ´¤È¤·¤¿¥Û¥Æ¥ë¥é¥¤¥¯¤ÊÍμ¼¤ÎSILKS¤Ç¤¹¡£

¥¹¥«¥¤¥é¥¦¥ó¥¸´°À®Í½ÁÛCG[½Ðŵ¡§¸ø¼°HP]
¡¡30³¬¤Ë¤Ï¥¹¥«¥¤¥é¥¦¥ó¥¸¤¬ÇÛÃÖ¤µ¤ì¤Þ¤¹¡£
´Ö¼è¤ê¿Þ

35A1¥¿¥¤¥×[½Ðŵ¡§¸ø¼°HP]
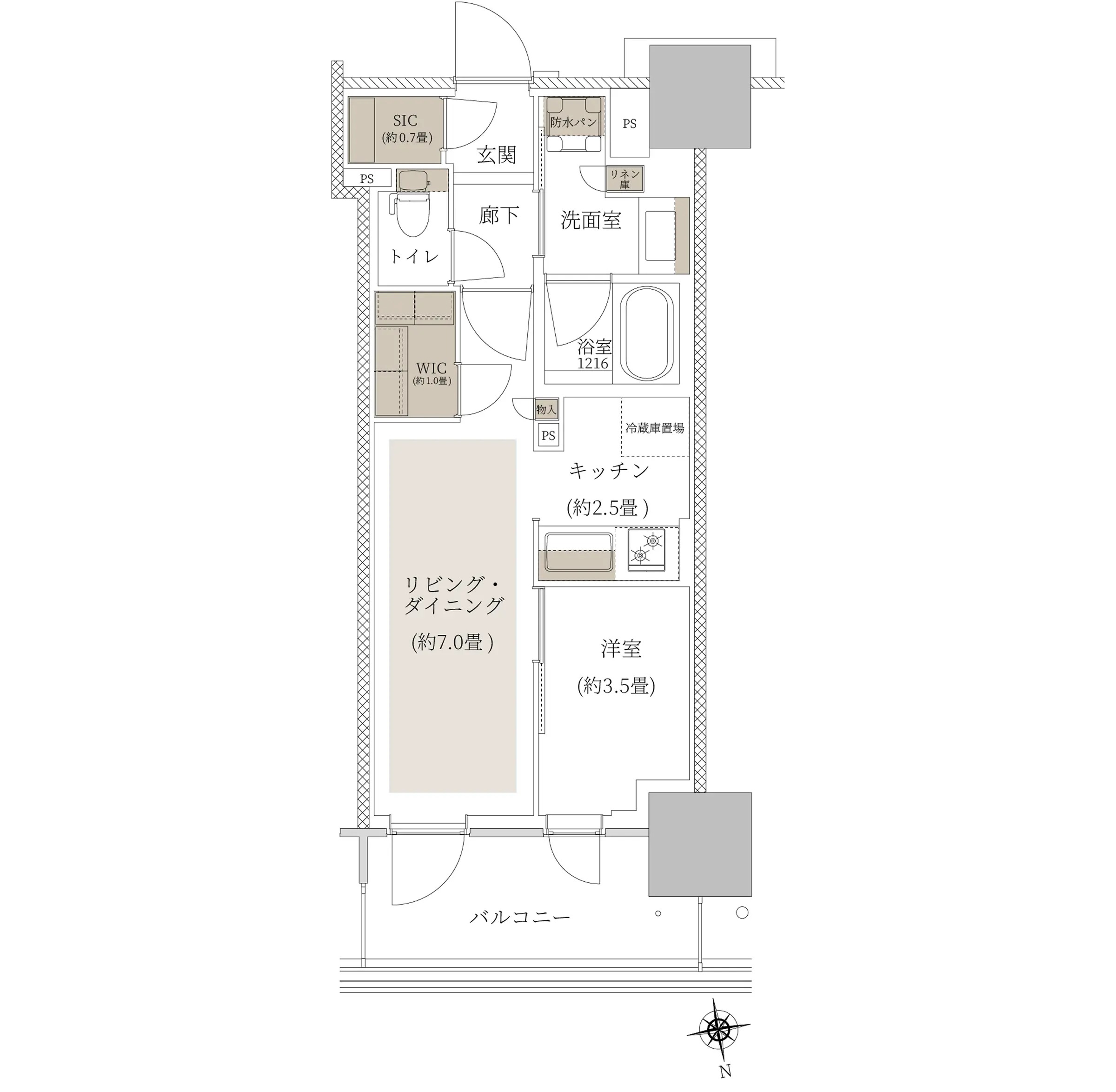
¡¡35A1¥¿¥¤¥×¤Î´Ö¼è¤ê¿Þ¤Ç¤¹¡£´Ö¼è¤ê¤Ï1LDK+WIC+SIC¡¢ÀìÍÌÌÀѤÏ36.00Ö¡¢¥Ð¥ë¥³¥Ë¡¼ÌÌÀѤÏ6.80֤ȤʤäƤ¤¤Þ¤¹¡£

55A1¥¿¥¤¥×[½Ðŵ¡§¸ø¼°HP]
¡¡55A1¥¿¥¤¥×¤Î´Ö¼è¤ê¿Þ¤Ç¤¹¡£´Ö¼è¤ê¤Ï2LDK+SIC¡¢ÀìÍÌÌÀѤÏ53.94Ö¡¢¥Ð¥ë¥³¥Ë¡¼ÌÌÀѤÏ9.60֤ȤʤäƤ¤¤Þ¤¹¡£

70C1¥¿¥¤¥×[½Ðŵ¡§¸ø¼°HP]
¡¡70C1¥¿¥¤¥×¤Î´Ö¼è¤ê¿Þ¤Ç¤¹¡£´Ö¼è¤ê¤Ï3LDK+WIC¡¢ÀìÍÌÌÀѤÏ67.69Ö¡¢¥Ð¥ë¥³¥Ë¡¼ÌÌÀѤÏ13.94֤ȤʤäƤ¤¤Þ¤¹¡£

80B1¥¿¥¤¥×[½Ðŵ¡§¸ø¼°HP]
¡¡80B1¥¿¥¤¥×¤Î´Ö¼è¤ê¿Þ¤Ç¤¹¡£´Ö¼è¤ê¤Ï3LDK+WIC¡¢ÀìÍÌÌÀѤÏ80.09Ö¡¢¥Ð¥ë¥³¥Ë¡¼ÌÌÀѤÏ27.98֤ȤʤäƤ¤¤Þ¤¹¡£

120A2¥¿¥¤¥×[½Ðŵ¡§¸ø¼°HP]
¡¡120A2¥¿¥¤¥×¤Î´Ö¼è¤ê¿Þ¤Ç¤¹¡£´Ö¼è¤ê¤Ï3LDK+3WIC+SIC+N¡¢ÀìÍÌÌÀѤÏ123.16Ö¡¢¥Ð¥ë¥³¥Ë¡¼ÌÌÀѤÏ32.72֤ȤʤäƤ¤¤Þ¤¹¡£
°ÌÃÖ¿Þ

°ÌÃÖ¿Þ[½Ðŵ¡§¸ø¼°HP]
¡¡·úÀßÃϤÏJRȬ²¦»Ò±Ø¤ÎÀ¾Â¦¤ÇJRÃæ±ûËÜÀþ±è¤¤¤ÎË̦ÎÙÀÜÃϤȤʤäƤª¤ê¡¢±Ø¤«¤éÅÌÊâ5ʬ¤Îµ÷Î¥¤Ç¤¹¡£¤Þ¤¿¡¢JRȬ²¦»Ò±Ø¤ÎËÌÅ즤ˤ¢¤ëµþ²¦È¬²¦»Ò±Ø¤«¤é¤ÏÅÌÊâ11ʬ¤Îµ÷Î¥¤È¤Ê¤Ã¤Æ¤¤¤Þ¤¹¡£
·úÀß¾õ¶·

¡¡2025ǯ10·î18Æü¤Ë¥¨¥ó¥È¥é¥ó¥¹¤¬ÀßÃÖ¤µ¤ì¤ëËÌÅ즤«¤é»£±Æ¤·¤¿¡Ö¥ë¥Í¥¿¥ï¡¼È¬²¦»Ò¡×(ÃϾå32³¬¡¢ºÇ¹â¹â¤µ115.175m)¤Î·úÀßÃϤǤ¹¡£

¡¡Å즤«¤é»£±Æ¡£

¡¡·úÀßÃϤÎÅ즤ÏJRÃæ±ûËÜÀþ¤Î¸ÙÀþ¶¶¡ÖÃæ±ûÀþΦ¶¶¡×¤È¤Ê¤Ã¤Æ¤¤¤ë¤¿¤á¡¢¤³¤¦¤·¤Æ¾¯¤·¹â¤¤°ÌÃÖ¤«¤é¸«¤ë¤³¤È¤¬¤Ç¤¤Þ¤¹¡£Æ±¥¿¥ï¥Þ¥ó¤Ï¤½¤Î¶¶¤«¤éľÀÜ¥¢¥¯¥»¥¹¤Ç¤¤ë¤è¤¦¤Ë¤Ê¤ê¤Þ¤¹¡£

¡¡·úÀßÃϤ˥º¡¼¥à¤Ç¤¹¡£»£±Æ»þ¤Îºî¶È¹©Äø¤Ï¶íÂι©»ö¤È¥³¥ó¥¯¥ê¡¼¥ÈÂÇÀߤȤʤäƤ¤¤Þ¤·¤¿¡£Ãϲ¼¤¬¤Ê¤¤¥¿¥ï¡¼¥Þ¥ó¥·¥ç¥ó¤Î¤¿¤á¡¢¸½ºß¤ÏÌÈ¿ÌÁØÉôʬ¤Î¹©»ö¤«¤È»×¤ï¤ì¤Þ¤¹¡£

¡¡È¿ÂЦ¤ÎÆîÀ¾Â¦¤«¤é»£±Æ¡£Æî¦¤ÏJRÃæ±ûÀþ¤¬Ä̤äƤª¤ê¡¢À¾Â¦¤Ë¤ÏƧÀÚ¤¬¤¢¤ê¤Þ¤¹¡£

¡¡À¾Â¦¤ÎƧÀÚ¤ÎÌܤÎÁ°¤¬Ãó¼Ö¾ì¤ÎÆþ¸ý¤Ë¤Ê¤ê¤Þ¤¹¡£Ãó¼Ö¾ì¤Î½Ð¸ý¤ÏÉßÃÏË̦¤Ë¤Ê¤ë¤¿¤á¡¢Æ§ÀÚ½ÂÂڤˤè¤Ã¤Æ¤Ê¤«¤Ê¤«½Ð¤é¤ì¤Ê¤¤¤È¤¤¤Ã¤¿¤³¤È¤ÏȯÀ¸¤·¤Þ¤»¤ó¡£
¡¡¤Þ¤¿¡¢±¦±ü¤Ë¸«¤¨¤Æ¤¤¤ë¥¿¥ï¡¼¥Þ¥ó¥·¥ç¥ó¤ÏJRȬ²¦»Ò±ØÆî¸ýľ·ë¤Î¡Ö¥·¥Æ¥£¥¿¥ï¡¼È¬²¦»Ò¥Õ¥ì¥·¥¢¡×(ÃϾå26³¬¡¢¹â¤µ97.575m)¤È¡Ö¥µ¥¶¥ó¥¹¥«¥¤¥¿¥ï¡¼È¬²¦»Ò(¥µ¥¶¥ó¥¹¥«¥¤¥¿¥ï¡¼¥ì¥¸¥Ç¥ó¥¹)¡×(ÃϾå41³¬¡¢ºÇ¹â¹â¤µ157.5m)¤Ç¤¹¡£¤³¤Î¡Ö¥µ¥¶¥ó¥¹¥«¥¤¥¿¥ï¡¼¥ì¥¸¥Ç¥ó¥¹¡×¤¬È¬²¦»Ò»Ô¤ÇºÇ¹âÁØ¥¿¥ï¥Þ¥ó¤Ç¡¢¤³¤³¤Ç·úÀßÃæ¤Î¡Ö¥ë¥Í¥¿¥ï¡¼È¬²¦»Ò¡×¤¬È¬²¦»Ò»Ô¤Ç2ÈÖÌܤι⤵¤Ë¤Ê¤ê¤Þ¤¹¡£

¡¡¥²¡¼¥È¤¬³«¤¤¤Æ¤¤¤¿¤Î¤Ç·úÀßÃÏÆâ¤Ë¥º¡¼¥à¡£±ü¤Ë¹Ô¤¯¤Û¤É¹¤¯¤Ê¤ëÉßÃϤȤʤäƤª¤ê¡¢°ìÈÖ±ü¤Ë¥¿¥ï¥Þ¥óËÜÂΤ¬ÇÛÃÖ¤µ¤ì¡¢¼êÁ°¤Î¶¹¤¤¾ì½ê¤Ëµ¡³£¼°¤ÎÃó¼Ö¾ì¤äÃóÎØ¾ì¤¬ÀßÃÖ¤µ¤ì¤Þ¤¹¡£
ÃÏ¿Þ
ʪ·ï³µÍ×

¡¡³«È¯µö²Ä¡¦ÂðÃϤÀ®Ëô¤ÏÆÃÄêÀ¹ÅÚÅù¤Ë´Ø¤¹¤ë¹©»ö¤Îµö²Äɸ¼±¤Ç¤¹¡£

¡¡·úÃ۷ײè¤Î¤ªÃΤ餻¤Ç¤¹¡£¿ôÃͤϸø¼°HP¤ÎÃͤòÍ¥À褷¤Æ·ÇºÜ¤·¤Æ¤¤¤Þ¤¹¡£
¢£Êª·ï³µÍ×¢£
̾¾Î¡§¥ë¥Í¥¿¥ï¡¼È¬²¦»Ò
»ö¶È̾¡§(²¾¾Î)Ȭ²¦»Ò»Ô»ûÄ®·×²è¿·ÃÛ¹©»ö
½êºßÃÏ¡§ÅìµþÅÔȬ²¦»Ò»Ô»ûÄ®40ÈÖ13¾¡¢»°ºêÄ®1ÈÖ5¾(ÃÏÈÖ)
¸òÄÌ¡§JRÃæ±ûËÜÀþ¡¦²£ÉÍÀþ¡¦È¬¹âÀþ¡ÖȬ²¦»Ò¡×±Ø ÅÌÊâ5ʬ
¡¡¡¡¡¡µþ²¦Àþ¡Öµþ²¦È¬²¦»Ò¡×±Ø ÅÌÊâ11ʬ
ÍÑÅÓ¡§¶¦Æ±½»Âð
Áí¸Í¿ô¡§499¸Í
³¬¿ô¡§ÃϾå32³¬¡¢Åã²°2³¬
¹â¤µ¡§111.68m¡ÊºÇ¹â¹â¤µ115.175m¡Ë
¹½Â¤¡§Å´¶Ú¥³¥ó¥¯¥ê¡¼¥È¤
ÂÑ¿ÌÀǽ¡§Ìȿ̹½Â¤
´ðÁù©Ë¡¡§¸½¾ì¤À®¹º
ÉßÃÏÌÌÀÑ¡§6,023.57Ö
·úÃÛÌÌÀÑ¡§2,210.02Ö
±ä¾²ÌÌÀÑ¡§46,970.53Ö
·úÃۼ硧Áí¹çÃϽꡢ¥¸¥§¥¤¥¢¡¼¥ëÅìÆüËÜÅÔ»Ô³«È¯
Çä¼ç¡§Áí¹çÃϽꡢ¥¸¥§¥¤¥¢¡¼¥ëÅìÆüËÜÅÔ»Ô³«È¯
Àß·×¼Ô¡§Ä¹Ã«¹©¥³¡¼¥Ý¥ì¡¼¥·¥ç¥ó
»Ü¹©¼Ô¡§Ä¹Ã«¹©¥³¡¼¥Ý¥ì¡¼¥·¥ç¥ó
¹©´ü¡§2024ǯ11·î22ÆüÃ幩¡Á2028ǯ2·î¾å½Ü½×¹©Í½Äê
Æþµï¡§2028ǯ3·îÃæ½ÜͽÄê
½Ðŵ
¢§¸ø¼°HP¡§¥ë¥Í¥¿¥ï¡¼È¬²¦»Ò
https://www.sgr-sumai.jp/mansion/r-hachioji-tower/
- ¥«¥Æ¥´¥ê
- Ȭ²¦»Ò»Ô







