
¥¤¥á¡¼¥¸¥Ñ¡¼¥¹[½Ðŵ¡§ÅìµþÅÔ]
¡¡¥Ñ¡¼¥¯¥·¥Æ¥£ÃæÌî¤ÎÀ¾Î٤˷úÀߤµ¤ì¤ë¥¿¥ï¡¼¥Þ¥ó¥·¥ç¥ó¡Ö°ÏÄ®À¾Ã϶èÂè°ì¼ï»Ô³¹ÃϺƳ«È¯»ö¶È¡×(ÃϾå25³¬¡¢ºÇ¹â¹â¤µ89.12m)¤Î´°À®Í½ÁۿޤǤ¹¡£½»Í§ÉÔÆ°»º¤Ë¤è¤ëÁí¸Í¿ôÌó510¸Í¤Îʬ¾ù¥¿¥ï¥Þ¥ó¤Ç¡¢¸½ºß¤Ï´û¸·úʪ¤Î²òÂι©»ö¤¬¹Ô¤ï¤ì¤Æ¤¤¤Þ¤¹¡£¸½ÃϤˤϷúÃ۷ײè¤Î¤ªÃΤ餻¤¬ÀßÃÖ¤µ¤ì¡¢¸ÞÍηúÀߤλܹ©¤Ç2026ǯ4·î¤ËÃ幩¤¹¤ë¤³¤È¤¬È½ÌÀ¤·¤Æ¤¤¤Þ¤¹¡£¤³¤Îµ»ö¤Ç¤ÏƱºÆ³«È¯¤Î³µÍפä´û¸·úʪ²òÂξõ¶·¡Ê2025ǯ10·î18Æü»þÅÀ¡Ë¡¢ÃÏ¿ÞÅù¤òºÜ¤»¤Æ¤¤¤Þ¤¹¡£
°ÏÄ®À¾Ã϶è¤Ë¤Ä¤¤¤Æ

ÃÇÌÌ¿Þ[½Ðŵ¡§ÃæÌî¶è]
¡¡¡Ö°ÏÄ®À¾Ã϶èÂè°ì¼ï»Ô³¹ÃϺƳ«È¯»ö¶È¡×¤ÏÃæÌî±ØË̸ý¦¤Ç·úÀßÃæ¤Î¡Ö¥Ñ¡¼¥¯¥·¥Æ¥£ÃæÌî¡×¤ÎÀ¾Î٤˰ÌÃÖ¤¹¤ë¥¿¥ï¡¼¥Þ¥ó¥·¥ç¥ó¤Ç¡¢µ¬ÌϤÏÃϾå25³¬¡¢Åã²°1³¬¡¢Ãϲ¼1³¬¡¢¹â¤µ85.87m¡¢ºÇ¹â¹â¤µ89.12m¡¢ÉßÃÏÌÌÀÑ6,191.81Ö¡¢·úÃÛÌÌÀÑ3,313.20Ö¡¢±ä¾²ÌÌÀÑ5Ëü3780.28֤ȤʤäƤ¤¤Þ¤¹¡£·úÃÛ¼ç¤Ï°ÏÄ®À¾Ã϶è»Ô³¹ÃϺƳ«È¯Áȹç¡Ê»²²ÃÁȹç°÷¡§½»Í§ÉÔÆ°»º¡Ë¡¢Àß·×¼Ô¤ÏINA¿··úÃÛ¸¦µæ½ê¡¢»Ü¹©¼Ô¤Ï¸ÞÍηúÀߤǡ¢¹©´ü¤Ï2026ǯ4·î15ÆüÃ幩¡¢2029ǯ10·î31Æü¤Î½×¹©Í½Äê¤Ç¤¹¡£
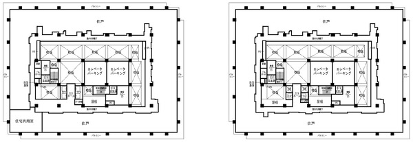
¡¡¥Õ¥í¥¢¹½À®¤Ï1³¬¤ËŹÊÞ¤È»Ò°é¤Æ»Ù±ç»ÜÀߤ¬ÇÛÃÖ¤µ¤ì¡¢2³¬¡Á25³¬¤¬Áí¸Í¿ôÌó510¸Í¤Î¶¦Æ±½»Âð¤È¤Ê¤ê¤Þ¤¹¡£¶¦ÍÑ»ÜÀߤÏ2³¬¡¢16³¬¤ËÇÛÃÖ¤µ¤ì¤ë·×²è¤È¤Ê¤Ã¤Æ¤¤¤Þ¤¹¡£

ÃÇÌÌ¿Þ[½Ðŵ¡§ÃæÌî¶è]
¡¡ÃÇÌ̿ޤξܺ٤Ǥ¹¡£

ÃÇÌÌ¿Þ[½Ðŵ¡§ÃæÌî¶è]
¡¡ºÇ¾å³¬¤Ç¤â³¬¹â¤Ï¾¤Î¥Õ¥í¥¢¤ÏÊѤï¤é¤Ê¤¤¤è¤¦¤Ç¤¹¡£

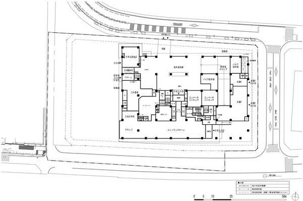
ÇÛÃÖ¿Þ[½Ðŵ¡§ÅìµþÅÔ]
¡¡ÉßÃϤμþ°Ï¤Ë¤ÏÊâÆ»¾õ¶õÃϤÈÌó940֤ι¾ì¤¬À°È÷¤µ¤ì¡¢¤µ¤é¤Ë¹¾ì¤ÎÀ¾Â¦¤Ç¤ÏÉý°÷Ìó10m¡¢±äĹÌó60m¤Î¶è²èƻϩ¤â·×²è¤µ¤ì¤Æ¤¤¤Þ¤¹¡£
Ê¿ÌÌ¿Þ

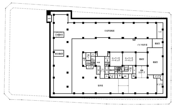
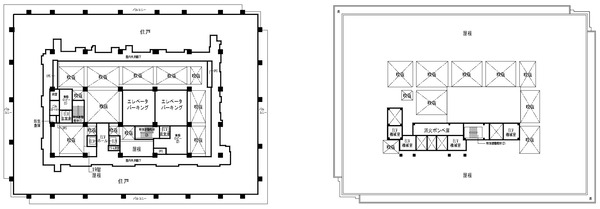
Ãϲ¼1³¬Ê¿ÌÌ¿Þ[½Ðŵ¡§ÃæÌî¶è]
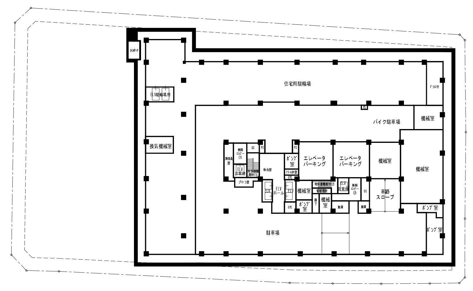
¡¡Ãϲ¼1³¬¤Ë¤ÏÃóÎØ¾ì¤ÈÃó¼Ö¾ì¤¬ÇÛÃÖ¤µ¤ì¤Þ¤¹¡£

1³¬Ê¿ÌÌ¿Þ[½Ðŵ¡§ÃæÌî¶è]
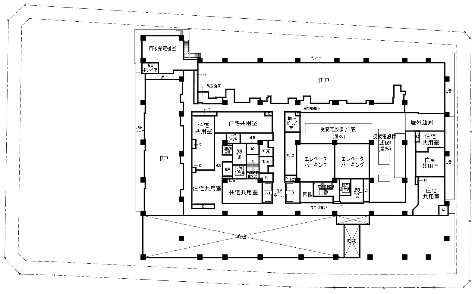
¡¡1³¬¤Ë¤Ï¥¨¥ó¥È¥é¥ó¥¹¤ä¥¨¥ó¥È¥é¥ó¥¹¥Û¡¼¥ë¡¢¥é¥¦¥ó¥¸¡¢¼Ö´ó¤»¤¬ÇÛÃÖ¤µ¤ì¡¢ÃæÌî±ØÂ¦¤È¤Ê¤ëÅì¦¤Ë¤ÏŹÊÞ¥¹¥Ú¡¼¥¹¤¬2¶è²èÍѰդµ¤ì¤Þ¤¹¡£

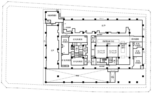
2³¬Ê¿ÌÌ¿Þ[½Ðŵ¡§ÃæÌî¶è]
¡¡2³¬¤Ë¤Ï½»Âð¤È¶¦ÍÑ»ÜÀߤ¬ÇÛÃÖ¤µ¤ì¤Þ¤¹¡£

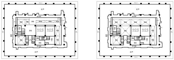
3³¬Ê¿ÌÌ¿Þ[½Ðŵ¡§ÃæÌî¶è]
¡¡3³¬°Ê¾å¤Ï½»Âð¥Õ¥í¥¢¤À¤±¤Ç¡¢Á´Êý¸þ¤Ë½»Âð¤¬ÇÛÃÖ¤µ¤ì¤Þ¤¹¡£

4¡Á5³¬Ê¿ÌÌ¿Þ[½Ðŵ¡§ÃæÌî¶è]
¡¡ÅÓÃæ¤Î°ìÉô¥Õ¥í¥¢¤Ï¾Êά¤·¤Þ¤¹¡£

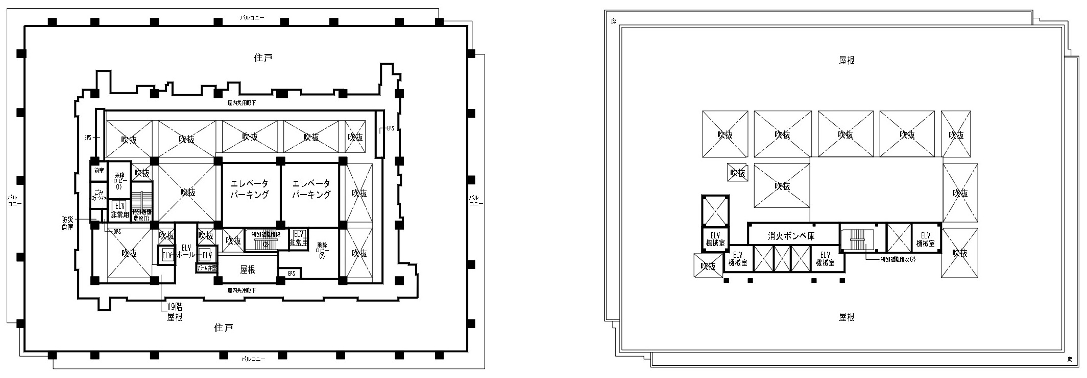
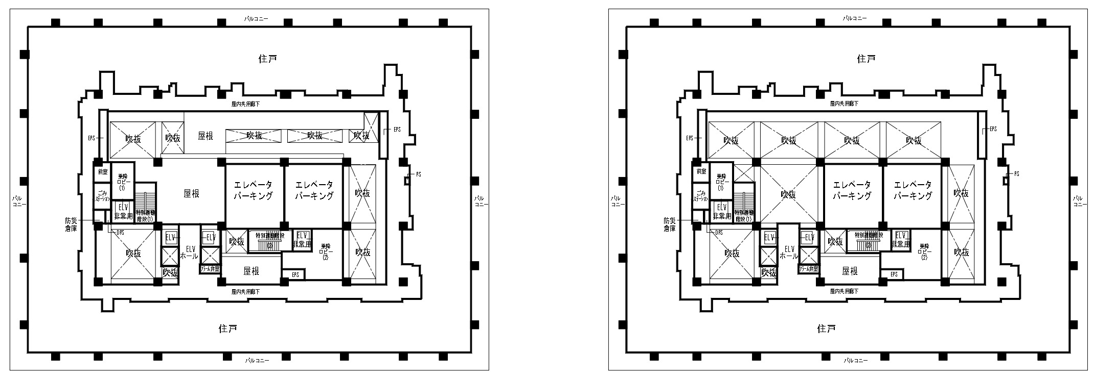
16¡Á17³¬Ê¿ÌÌ¿Þ[½Ðŵ¡§ÃæÌî¶è]
¡¡16³¬¤ÎÆîÀ¾³Ñ¤Ï¶¦ÍÑ»ÜÀߤ¬ÇÛÃÖ¤µ¤ì¤Þ¤¹¡£¤³¤³¤ÏÃæÌî¤Î͹âÁإӥ롦¥¿¥ï¡¼¥Þ¥ó¥·¥ç¥ó·²¤ÎÆîÀ¾Ã¼¤Ë°ÌÃÖ¤·¤Æ¤¤¤ë¤³¤È¤«¤é¡¢16³¬¤Ç¤â³«¤±¤¿Ä¯Ë¾¤¬¹¤¬¤ê¤Þ¤¹¡£

20¡Á25³¬¡¦PH1³¬Ê¿ÌÌ¿Þ[½Ðŵ¡§ÃæÌî¶è]
¡¡¤³¤ÎÊ¿Ì̿ޤˤϵºÜ¤Ï¤¢¤ê¤Þ¤»¤ó¤¬¡¢°ÏÄ®À¾Ã϶èÂè°ì¼ï»Ô³¹ÃϺƳ«È¯»ö¶È»ö¶È·×²è½ñ¤Î³Æ³¬¾²ÌÌÀÑÅù¤Ç¤Ï25³¬¤¬½»Â𡦽»Âð¶¦ÍѤȽñ¤«¤ì¤Æ¤¤¤Þ¤¹¡£
°ÌÃÖ¿Þ

°ÌÃÖ¿Þ[½Ðŵ¡§ÅìµþÅÔ]
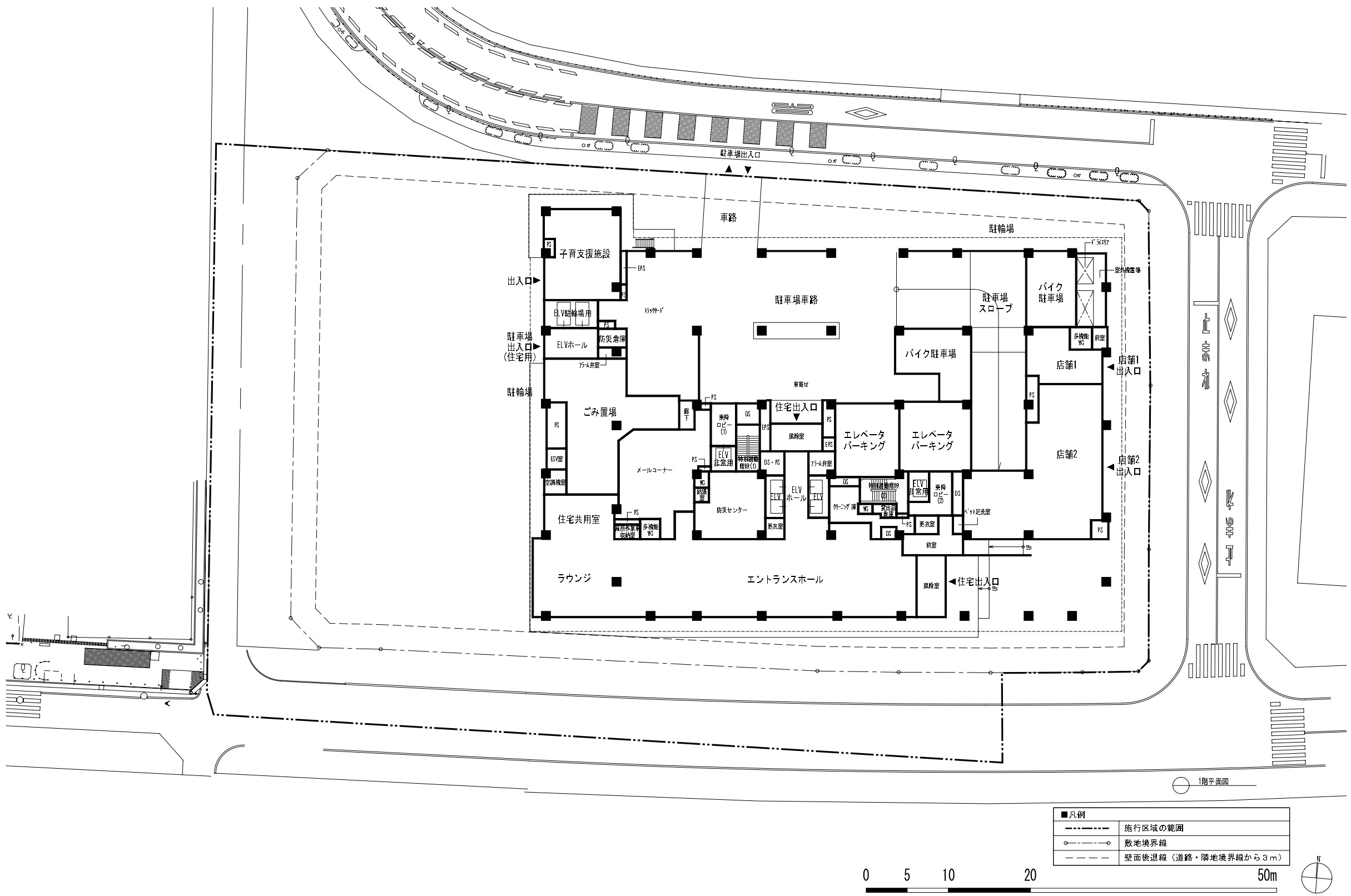
¡¡·×²èÃϤÏÃæÌî±ØË̸ý¤ÎÀ¾Â¦¤Ë¤¢¤ë¡Ö¥Ñ¡¼¥¯¥·¥Æ¥£ÃæÌî¡×¤ÎÀ¾Î٤ζè²è¤Ç¡¢JR¤ÎÀþÏ©¤ÈÌÀ¼£Âç³ØÃæÌã¥ó¥Ñ¥¹¤Ë¶´¤Þ¤ì¤¿ÉßÃϤȤʤäƤ¤¤Þ¤¹¡£

ÅÔ»Ô´ðÈ×»ÜÀߤÎÇÛÃÖ[½Ðŵ¡§ÃæÌî¶èµÄ²ñ]
¡¡¡Ö°ÏÄ®À¾Ã϶èÂè°ì¼ï»Ô³¹ÃϺƳ«È¯»ö¶È¡×¤¬´°À®¤¹¤ë¤È3Åï¤Î¥¿¥ï¡¼¥Þ¥ó¥·¥ç¥ó¤¬·ú¤ÁʤӤޤ¹¡£
´û¸·úʪ²òÂξõ¶·

¡¡2025ǯ10·î18Æü¤ËËÌÅ즤«¤é»£±Æ¤·¤¿¡Ö°ÏÄ®À¾Ã϶èÂè°ì¼ï»Ô³¹ÃϺƳ«È¯»ö¶È¡×(ÃϾå25³¬¡¢ºÇ¹â¹â¤µ89.12m)¤Î·×²èÃϤǤ¹¡£³ÑÃϤΥޥ󥷥ç¥ó¤Ï¤Þ¤À²òÂΤ¬»Ï¤Þ¤Ã¤Æ¤¤¤Ê¤¤¤è¤¦¤Ç¤·¤¿¤¬¡¢¤½¤Î¼þÊդǤϲòÂι©»ö¤¬¿Ê¤ó¤Ç¤¤¤Þ¤¹¡£

¡¡Ë̦¤òÄÌ¤ëÆ»Ï©±è¤¤¤«¤é¡£º¸±ü¤Ë¸«¤¨¤Æ¤¤¤ë¥¿¥ï¡¼¥Þ¥ó¥·¥ç¥ó¤¬¡Ö¥Ñ¡¼¥¯¥·¥Æ¥£ÃæÌî¡×(ÃϾå20³¬¡¦25³¬)¤Ç¤¹¡£

¡¡ËÌÀ¾Â¦¤«¤é»£±Æ¡£±¦Â¦¤Ï¡Ö¤¿¤«¤Ï¤é¸ø±à¡×¤ÎÌÚ¡¹¤Ç¡¢¤³¤Î¸ø±àÁ°¤Ë¤Ï¹¾ì¤È¶è²èƻϩ¤¬À°È÷¤µ¤ì¤Þ¤¹¡£

¡¡ÆîÀ¾Â¦¤«¤é»£±Æ¡£°ìµ¤¤Ë´û¸·úʪÁ´ÂΤò²òÂΤ¹¤ë¤Î¤Ç¤Ï¤Ê¤¯¡¢½ç¤Ë²òÂι©»ö¤¬¹Ô¤ï¤ì¤Æ¤¤¤Þ¤¹¡£

¡¡ÉßÃÏÃæ±û¤Ï²òÂι©»ö¤¬¿Ê¤ó¤Ç¤¤¤ë¤è¤¦¤Ç¤·¤¿¡£

¡¡ÉßÃÏÆî¦¤Îƻϩ±è¤¤¤Ç¤â²òÂι©»ö¤¬¿Ê¤ó¤Ç¤¤¤¿¤Î¤Ç¡¢¼¡²óˬÌä»þ¤Ë¤Ï·Ê¿§¤¬Â礤¯ÊѤï¤Ã¤Æ¤¤¤½¤¦¤Ç¤¹¡£

¡¡Î٤ΰÏÄ®ÅìÃ϶è¤Ç·úÀßÃæ¤Î¡Ö¥Ñ¡¼¥¯¥·¥Æ¥£ÃæÌî¡×¤ÎÆî¦¤ÏJRÀþÏ©¤È¤Ê¤Ã¤Æ¤¤¤Þ¤¹¤¬¡¢¤³¤Á¤é¤Î°ÏÄ®À¾Ã϶è¤ÎÀþϩ¦¤Ë¤ÏÄãÁؤδû¸·úʪ¤¬1Îóʤó¤Ç¤¤¤Þ¤¹¡£Æî¦¤Î½»¸Í¤Ï¤½¤Î´û¸·úʪ¤òͤ¹¹â¤µ¤Î3³¬°Ê¾å¤ËÇÛÃÖ¤µ¤ì¤Þ¤¹¡£

¡¡ÆîÅ즤«¤é»£±Æ¡£¼¡²óˬÌä»þ¤Ë¤Ï¤³¤Î³ÑÃϤηúʪ¤Ï»Ñ¤ò¾Ã¤·¤Æ¤¤¤½¤¦¤Ç¤¹¡£

¡¡JR¤Î¸ÙÀþ¶¶¤«¤é»£±Æ¤·¤¿¡Ö°ÏÄ®À¾Ã϶èÂè°ì¼ï»Ô³¹ÃϺƳ«È¯»ö¶È¡×¤Î·×²èÃϤǤ¹¡£¤³¤³¤Ë½»Í§ÉÔÆ°»º¤Ë¤è¤ëÃϾå25³¬¡¢ºÇ¹â¹â¤µ89.12m¤Î¥¿¥ï¡¼¥Þ¥ó¥·¥ç¥ó¤¬·úÀߤµ¤ì¤Þ¤¹¡£

¡¡¤½¤ÎÎ٤ϡ֥ѡ¼¥¯¥·¥Æ¥£ÃæÌî ¥¶ ¥¿¥ï¡¼ ¥Ö¥ê¡¼¥º¡×(ÃϾå20³¬¡¢¹â¤µ81.98m)¤È¤Ê¤Ã¤Æ¤ª¤ê¡¢¥¿¥ï¡¼¥Þ¥ó¥·¥ç¥ó¤¬ÀþÏ©¤Ë±è¤Ã¤Æ²£°ìÎó¤ËʤӤޤ¹¡£

¡¡¤ª¤Þ¤±¤Ç¡Ö¥Ñ¡¼¥¯¥·¥Æ¥£ÃæÌî¡×¤Ç¤¹¡£2026ǯ4·î¤Î½×¹©Í½Äê¤Ç¤¹¡£
ÃÏ¿Þ
ʪ·ï³µÍ×

¡¡·úÃ۷ײè¤Î¤ªÃΤ餻¤Ç¤¹¡£
¢£Êª·ï³µÍ×¢£
»ö¶È̾¡§°ÏÄ®À¾Ã϶èÂè°ì¼ï»Ô³¹ÃϺƳ«È¯»ö¶È
½êºßÃÏ¡§ÅìµþÅÔÃæÌî¶èÃæÌî»ÍÃúÌÜ2ÈÖ178¾
¸òÄÌ¡§JRÃæ±ûÀþ¡¦ÁíÉðÀþ¡ÖÃæÌî¡×±Ø
¡¡¡¡¡¡Åìµþ¥á¥È¥íÅìÀ¾Àþ¡ÖÃæÌî¡×±Ø
ÍÑÅÓ¡§¶¦Æ±½»Âð¡¦Å¹ÊÞ¡¦»Ò°é»Ù±ç»ÜÀß
Áí¸Í¿ô¡§Ìó510¸Í
³¬¿ô¡§ÃϾå25³¬¡¢Åã²°1³¬¡¢Ãϲ¼1³¬
¹â¤µ¡§85.87m¡ÊºÇ¹â¹â¤µ89.12m¡Ë
¹½Â¤¡§Å´¶Ú¥³¥ó¥¯¥ê¡¼¥È¤¡¢´ðÁÃÌȿ̹½Â¤
´ðÁù©Ë¡¡§Ä¾ÀÜ´ðÁÃ
ÉßÃÏÌÌÀÑ¡§6,191.81Ö
·úÃÛÌÌÀÑ¡§3,313.20Ö
±ä¾²ÌÌÀÑ¡§53,780.28Ö
·úÃۼ硧°ÏÄ®À¾Ã϶è»Ô³¹ÃϺƳ«È¯Áȹç
»²²ÃÁȹç°÷¡§½»Í§ÉÔÆ°»º
Àß·×¼Ô¡§INA¿··úÃÛ¸¦µæ½ê
»Ü¹©¼Ô¡§¸ÞÍηúÀß
¹©´ü¡§2026ǯ4·î15ÆüÃ幩¡Á2029ǯ10·î31Æü½×¹©Í½Äê
½Ðŵ
¢§ÃæÌî¶è¡§¤Þ¤Á¤Å¤¯¤ê¡¦ÅԻԷײè¡Ê2025ǯ7·î24Æü¡Ë
°ÏÄ®Ã϶è¤Î¤Þ¤Á¤Å¤¯¤ê¤Ë¤Ä¤¤¤Æ
¢§ÅìµþÅÔ¡§»Ô³¹ÃϺƳ«È¯»ö¶È¡Ê»ö¶È·×²èǧ²Äǯ·îÆü¡§2024ǯ5·î15Æü¡Ë
°ÏÄ®À¾Ã϶è
¢§ÅìµþÅÔ¡§Êóƻȯɽ»ñÎÁ¡Ê2024ǯ5·î14Æü¡Ë
°ÏÄ®À¾Ã϶è»Ô³¹ÃϺƳ«È¯Áȹç¤ÎÀßΩ¤òǧ²Ä¤·¤Þ¤¹
¢§ÃæÌî¶èµÄ²ñ¡§·úÀ߰Ѱ÷²ñ»ñÎÁ¡Ê2023ǯ10·î11Æü¡Ë
°ÏÄ®À¾Ã϶è¤Ë¤ª¤±¤ë»ö¶È·×²èÅù¤Îǧ²Ä¿½ÀÁ¤Ë¤Ä¤¤¤Æ
- ¥«¥Æ¥´¥ê
- ÃæÌî¶è







