
¡¡·îÅç¤Ç·úÀßÃæ¤Î¡Ö¥°¥é¥ó¥É¥·¥Æ¥£¥¿¥ï¡¼·îÅç¡×(ÃϾå58³¬¡¢ºÇ¹â¹â¤µ199.45m)¤Ç¤¹¡£2025ǯ10·î12Æü¤Ë»£±Æ¤·¤Þ¤·¤¿¡£·îÅç¤â¤ó¤¸¤ã¥¹¥È¥ê¡¼¥È¤ËÌ̤·¤¿¾¦¶È»ÜÀߤâÊ»Àߤ¹¤ë2026ǯ4·î²¼½Ü½×¹©Í½Äê¤Îʬ¾ù¥¿¥ï¥Þ¥ó¤È¤Ê¤Ã¤Æ¤¤¤Þ¤¹¡£¤³¤Îµ»ö¤Ç¤ÏƱ¥¿¥ï¥Þ¥ó¤Î³µÍפä·úÀß¾õ¶·¡¢ÃÏ¿ÞÅù¤òºÜ¤»¤Æ¤¤¤Þ¤¹¡£
¥°¥é¥ó¥É¥·¥Æ¥£¥¿¥ï¡¼·îÅç¤Ë¤Ä¤¤¤Æ

³°´Ñ´°À®Í½ÁÛ¿Þ[½Ðŵ¡§¸ø¼°HP]
¡¡¡Ö¥°¥é¥ó¥É¥·¥Æ¥£¥¿¥ï¡¼·îÅç¡×¤Ï·îÅç±Ø¤È¾¡¤É¤±Ø¤¬ÍøÍѲÄǽ¤Ê¶ùÅÄÀî¤Î¶á¤¯¤Ë°ÌÃÖ¤¹¤ëʬ¾ù¤Î¥¿¥ï¡¼¥Þ¥ó¥·¥ç¥ó¤Ç¡¢µ¬ÌϤÏÃϾå58³¬¡¢Ãϲ¼2³¬¡¢¹â¤µ197.65m¡¢ºÇ¹â¹â¤µ199.45m¡¢ÉßÃÏÌÌÀÑ1Ëü76.42Ö¡¢·úÃÛÌÌÀÑ6,743.49Ö¡¢±ä¾²ÌÌÀÑ14Ëü4276.80֤ȤʤäƤ¤¤Þ¤¹¡£
¡¡·úÃÛ¼ç¤Ï·îÅç»°ÃúÌÜËÌÃ϶è»Ô³¹ÃϺƳ«È¯Áȹç¡Ê»²²ÃÁȹç°÷¡¦Çä¼ç¡§½»Í§ÉÔÆ°»º¡¢Åìµþ·úʪ¡¢ÂçÏ¥ϥ¦¥¹¹©¶È¡¢¼óÅÔ·÷ÉÔdz·úÃÛ¸ø¼Ò¡Ë¡¢À߷׼ԤϸÞÍηúÀß¡¦Âç·úÀ߷ׯÃÄê¶È̳Âå¹Ô¶¦Æ±ÂΡ¢»Ü¹©¼Ô¤Ï¸ÞÍηúÀߤÇ2026ǯ4·î²¼½Ü½×¹©¡¢2026ǯ9·î²¼½Ü¤ÎÆþµï³«»ÏͽÄê¤Ç¤¹¡£

³°´Ñ´°À®Í½ÁÛ¿Þ[½Ðŵ¡§¸ø¼°HP]
¡¡Áí¸Í¿ô1285¸Í¤Î¤¦¤ÁÈóʬ¾ù½»¸Í¤¬340¸Í¡¢¹¹ðÂоݳ°½»¸Í¤¬30¸Í¤Ç¡¢Â¾¤ËŹÊÞÅù25¶è²è¤¬¤¢¤ê¡¢¸½ºß¤Ï12¸Í¤¬ÀèÃå½ç¼õÉÕÃæ¤È¤Ê¤Ã¤Æ¤¤¤Þ¤¹¡£ÈÎÇä´Ö¼è¤ê¤Ï2LDK¡Á3LDK¡¢ÀìÍÌÌÀѤÏ58.57Ö¡Á86.96Ö(°ìÉô½»¸Í¤ÎÀìͥȥé¥ó¥¯¥ë¡¼¥àÌÌÀÑ0.89Ö¡Á2.32Ö¤ò´Þ¤à)¡¢¥Ð¥ë¥³¥Ë¡¼ÌÌÀÑ10.04Ö¡Á17.37Ö¡¢ÈÎÇä²Á³Ê¤Ï1²¯7000Ëü±ß¡Á3²¯2500Ëü±ß¤È¤Ê¤Ã¤Æ¤¤¤Þ¤¹¡£

ÉßÃÏÇÛÃÖ³µÇ°¿Þ[½Ðŵ¡§¸ø¼°HP]
¡¡¡Ö¥°¥é¥ó¥É¥·¥Æ¥£¥¿¥ï¡¼·îÅç¡×¤Ï¡Ö·îÅç»°ÃúÌÜËÌÃ϶èÂè°ì¼ï»Ô³¹ÃϺƳ«È¯»ö¶È¡×¤ÎA³¹¶è¤È¤Ê¤Ã¤Æ¤ª¤ê¡¢¶ùÅÄÀî¤ËÌ̤·¤¿¾ì½ê¤Ë¤Ï¾®µ¬ÌϤÊB1³¹¶è¤ÈB2³¹¶è¤¬¤¢¤ê¤Þ¤¹¡£B1³¹¶è¤ÏÃϾå6³¬¡¢¹â¤µ24.80m¡¢ºÇ¹â¹â¤µ27.40m¡¢±ä¾²ÌÌÀÑ1,925.19Öµ¬ÌϤǾ㤬¤¤¼Ô¥°¥ë¡¼¥×¥Û¡¼¥à¡Ö¥ê¥ô¥§¡¼¥ë·îÅç¡×¤¬´°À®¤·¤Æ¤ª¤ê¡¢¶ùÅÄÀî¥Æ¥é¥¹¤Ë·Ò¤¬¤ë¹¾ì¤¬À°È÷Ãæ¤Ç¤¹¡£¤Þ¤¿¡¢B2³¹¶è¤Ç¤ÏÃϾå7³¬¡¢¹â¤µ25.37m¡¢ºÇ¹â¹â¤µ27.12m¡¢±ä¾²ÌÌÀÑ3,245.34֤ζ¦Æ±½»Â𤬷úÀßÃæ¤Ç¤¹¡£
¡¡A³¹¶è¤Î¡Ö·îÅçÀ¾ÃçÄ̤꾦ʳ¹(·îÅç¤â¤ó¤¸¤ã¥¹¥È¥ê¡¼¥È)¡×¤ËÌ̤·¤¿¾ì½ê¤Ë¤Ï2³¬·ú¤Æ¤ÎŹÊÞÅ郎ÇÛÃÖ¤µ¤ì¡¢¥Þ¥ó¥·¥ç¥óËÜÂΤÎ1¡¢2³¬¤Ë¤âŹÊÞ¤¬ÇÛÃÖ¤µ¤ì¤Þ¤¹¡£ÉßÃÏÆâ¤Ë¤Ï½¾Á°¤ÎÏ©ÃϤò·Ñ¾µ¤·¤¿Ä̤êÈ´¤±¶õ´Ö¤âÀ°È÷¤µ¤ì¡¢A³¹¶è¤ÈB1³¹¶è¤Ï2³¬¥ì¥Ù¥ë¤ËÀ°È÷¤µ¤ì¤ëÊâ¹Ô¼Ô¥Ç¥Ã¥¤Ë¤è¤Ã¤ÆÀܳ¤·¤Þ¤¹¡£¤³¤ì¤Ë¤è¤ê·îÅç¤â¤ó¤¸¤ã¥¹¥È¥ê¡¼¥È¤«¤é¶ùÅÄÀî¥Æ¥é¥¹¤Ë·Ò¤¬¤ë¿·¤¿¤Ê¥ë¡¼¥È¤¬ÃÂÀ¸¤·¤Þ¤¹¡£

¥×¥é¥¶¥¬¡¼¥Ç¥ó´°À®Í½ÁÛ¿Þ[½Ðŵ¡§¸ø¼°HP]
¡¡¡Ö·îÅçÀ¾ÃçÄ̤꾦ʳ¹(·îÅç¤â¤ó¤¸¤ã¥¹¥È¥ê¡¼¥È)¡×¤ËÌ̤·¤¿¾ì½ê¤Ë¤Ï¹¾ì¶õ´Ö¤Î¡Ö¥×¥é¥¶¥¬¡¼¥Ç¥ó¡×¤¬À°È÷¤µ¤ì¤Þ¤¹¡£

¥³¥ß¥å¥Ë¥Æ¥£¥¹¥È¥ê¡¼¥È´°À®Í½ÁÛ¿Þ[½Ðŵ¡§¸ø¼°HP]
¡¡¥×¥é¥¶¥¬¡¼¥Ç¥ó¤ÎÀè¤Ë¤ÏƱ¥¨¥ê¥¢¤ÎÏ©ÃÏʸ²½¤ò·Ñ¾µ¤·¤¿¥³¥ß¥å¥Ë¥Æ¥£¥¹¥È¥ê¡¼¥È¤¬À°È÷¤µ¤ì¤Þ¤¹¡£³¬Ãʤò¾å¤Ã¤¿Àè¤Ë¤Ï¥Õ¥©¥ì¥¹¥È¥Ñ¡¼¥¯¤¬¤¢¤ê¡¢¤½¤³¤«¤éÊâ¹Ô¼Ô¥Ç¥Ã¥¤Ë¤è¤Ã¤Æ¶ùÅÄÀî¥Æ¥é¥¹¤Þ¤Ç¹Ô¤±¤ë¤è¤¦¤Ë¤Ê¤ê¤Þ¤¹¡£
¶¦ÍѶõ´Ö¡¦¶¦ÍÑ»ÜÀß

¥°¥é¥ó¥É¥¨¥ó¥È¥é¥ó¥¹´°À®Í½ÁÛ¿Þ[½Ðŵ¡§¸ø¼°HP]
¡¡ÉßÃÏË̦¤ËÇÛÃÖ¤µ¤ì¤ë¥°¥é¥ó¥É¥¨¥ó¥È¥é¥ó¥¹¤Î´°À®Í½ÁۿޤǤ¹¡£Æ±¥¿¥ï¥Þ¥ó¤Ï±Ø¤Ë¶á¤¤·îÅç¤â¤ó¤¸¤ã¥¹¥È¥ê¡¼¥È¦¤ËŹÊÞ¤¬ÇÛÃÖ¤µ¤ì¤ë¤¿¤á¡¢¥¨¥ó¥È¥é¥ó¥¹¤Ï±Ø¤«¤é±ó¤¤¶ùÅÄÀËÇÛÃÖ¤µ¤ì¤Þ¤¹¡£

¥°¥é¥ó¥É¥¨¥ó¥È¥é¥ó¥¹¥Û¡¼¥ë´°À®Í½ÁÛ¿Þ[½Ðŵ¡§¸ø¼°HP]
¡¡¥°¥é¥ó¥É¥¨¥ó¥È¥é¥ó¥¹¥Û¡¼¥ë¤Ï¥é¥¦¥ó¥¸¥¹¥Ú¡¼¥¹¤â¤¢¤ë2ÁØ¿á¤È´¤±¤Î¶õ´Ö¤È¤Ê¤ê¤Þ¤¹¡£

¤Ä¤¤·¤ÞFARM´°À®Í½ÁÛ¿Þ[½Ðŵ¡§¸ø¼°HP]
¡¡Å¹ÊÞÅï¤Î²°¾å¤Ë¤Ï²ÈÄíºÚ±à¤Î¡Ö¤Ä¤¤·¤ÞFARM¡×¤¬ÇÛÃÖ¤µ¤ì¤Þ¤¹¡£

¥²¥¹¥È¥ë¡¼¥à´°À®Í½ÁÛ¿Þ[½Ðŵ¡§¸ø¼°HP]
¡¡3³¬¤Ë¤ÏÏÂÉ÷¤ÈÍÎÉ÷¤Î¥²¥¹¥È¥ë¡¼¥à¤¬2Éô²°ÍѰդµ¤ì¤Þ¤¹¡£

¥Ó¥å¡¼¥é¥¦¥ó¥¸´°À®Í½ÁÛ¿Þ[½Ðŵ¡§¸ø¼°HP]
¡¡30³¬¤Ë¤Ï¥Ó¥å¡¼¥é¥¦¥ó¥¸¤¬ÇÛÃÖ¤µ¤ì¤Þ¤¹¡£

¥Ó¥å¡¼¥é¥¦¥ó¥¸´°À®Í½ÁÛ¿Þ[½Ðŵ¡§¸ø¼°HP]
¡¡¥Ó¥å¡¼¥é¥¦¥ó¥¸¤«¤é¤Ï´ã²¼¤Ë¶ùÅÄÀî¡¢ÀµÌ̤ËÅìµþÅÔ¿´¤Î͹âÁإӥ뷲¤ò˾¤á¤ë¶õ´Ö¤Ë¤Ê¤ê¤Þ¤¹¡£

¥Ñ¡¼¥Æ¥£¥ë¡¼¥à´°À®Í½ÁÛ¿Þ[½Ðŵ¡§¸ø¼°HP]
¡¡30³¬¤Ë¤Ï¥Ñ¡¼¥Æ¥£¥ë¡¼¥à¤âÇÛÃÖ¤µ¤ì¤Þ¤¹¡£
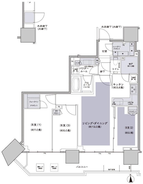
´Ö¼è¤ê¿Þ

S-60Btr ɸ½à¥¿¥¤¥×[½Ðŵ¡§¸ø¼°HP]
¡¡S-60Btr ɸ½à¥¿¥¤¥×¤Î´Ö¼è¤ê¿Þ¤Ç¤¹¡£´Ö¼è¤ê¤Ï2LDK+N+WIC¡¢ÀìÍÌÌÀѤÏ60.85Ö¡¢¥Ð¥ë¥³¥Ë¡¼ÌÌÀÑ12.20֤ǡ¢Æ±¥¿¥¤¥×¤Î15³¬Éô²°¤¬1²¯7000Ëü±ß¤ÇÀèÃå½ç¼õÉÕÃæ¤È¤Ê¤Ã¤Æ¤¤¤Þ¤¹¡£

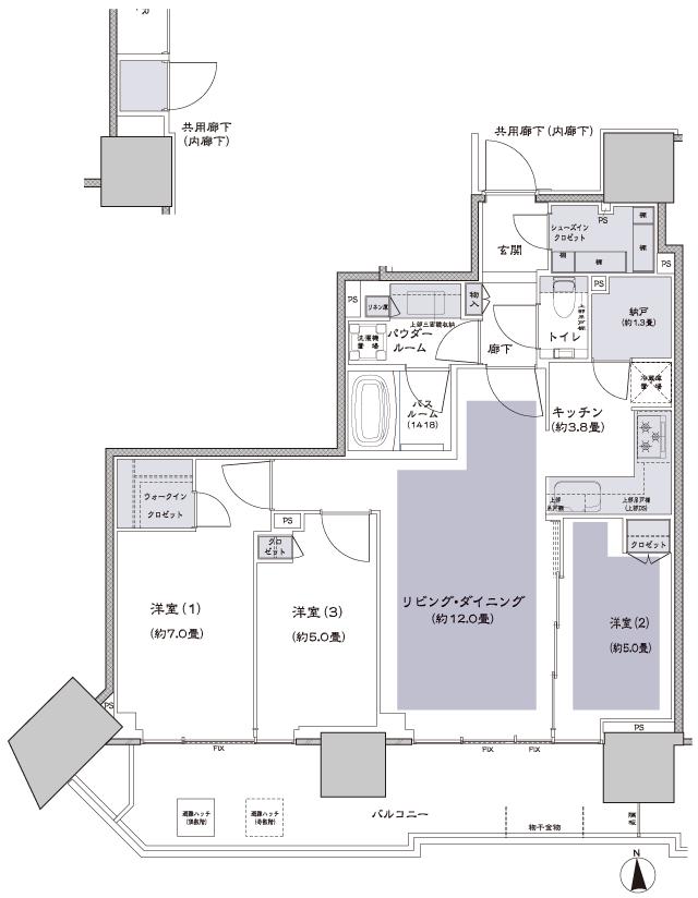
N-70Btr ɸ½à¥¿¥¤¥×[½Ðŵ¡§¸ø¼°HP]
¡¡N-70Btr ɸ½à¥¿¥¤¥×¤Î´Ö¼è¤ê¿Þ¤Ç¤¹¡£´Ö¼è¤ê¤Ï3LDK+N+WIC+SIC¡¢ÀìÍÌÌÀѤÏ73.10Ö¡¢¥Ð¥ë¥³¥Ë¡¼ÌÌÀÑ11.40֤ǡ¢Æ±¥¿¥¤¥×¤Î40³¬¤ÎÉô²°¤¬2²¯8000Ëü±ß¤ÇÀèÃå½ç¼õÉÕÃæ¤È¤Ê¤Ã¤Æ¤¤¤Þ¤¹¡£

E-75Ctr ɸ½à¥¿¥¤¥×[½Ðŵ¡§¸ø¼°HP]
¡¡E-75Ctr ɸ½à¥¿¥¤¥×¤Î´Ö¼è¤ê¿Þ¤Ç¤¹¡£´Ö¼è¤ê¤Ï3LDK¡¢ÀìÍÌÌÀѤÏ78.52Ö¡¢¥Ð¥ë¥³¥Ë¡¼ÌÌÀÑ15.60֤ǡ¢Æ±¥¿¥¤¥×¤Î46³¬¤ÎÉô²°¤¬2²¯8000Ëü±ß¤ÇÀèÃå½ç¼õÉÕÃæ¤È¤Ê¤Ã¤Æ¤¤¤Þ¤¹¡£

S-70Btr¥¿¥¤¥×½Ðŵ¡§SUUMO]
¡¡S-70Btr¥¿¥¤¥×¤Î´Ö¼è¤ê¿Þ¤Ç¤¹¡£´Ö¼è¤ê¤Ï3LDK+N+WIC+SIC¡¢ÀìÍÌÌÀѤÏ74.44Ö¡¢¥Ð¥ë¥³¥Ë¡¼ÌÌÀÑ17.99֤ǡ¢Æ±¥¿¥¤¥×¤Î24³¬¤ÎÉô²°¤¬2²¯5000Ëü±ß¤ÇÀèÃå½ç¼õÉÕÃæ¤È¤Ê¤Ã¤Æ¤¤¤Þ¤¹¡£
°ÌÃÖ¿Þ

°ÌÃÖ¿Þ[½Ðŵ¡§¸ø¼°HP]
¡¡·úÀßÃϤÏÅÔ±ÄÂç¹¾¸ÍÀþ¡¦Åìµþ¥á¥È¥íͳÚÄ®Àþ¡Ö·îÅç¡×±Ø¤ÈÅÔ±ÄÂç¹¾¸ÍÀþ¡Ö¾¡¤É¤¡×±Ø¤ÎÃæ´ÖÃÏÅÀ¤Î¶ùÅÄÀ˰ÌÃÖ¤·¤Æ¤ª¤ê¡¢É½µ¾å¤Ç¤Ï¡Ö·îÅç¡×±Ø¤¬ÅÌÊâ5ʬ¡¢¡Ö¾¡¤É¤¡×±Ø¤¬ÅÌÊâ9ʬ¤È¤Ê¤ê¤Þ¤¹¡£¤¿¤À¡¢Ãϲ¼ÄÌÏ©¤òÊ⤯µ÷Î¥¤â´Þ¤á¤ë¤Èξ±Ø¤ËÂ礤ʺ¹¤Ï¤¢¤Þ¤ê¤Ê¤¤¤«¤â¤·¤ì¤Þ¤»¤ó¡£
·úÀß¾õ¶·

¡¡2025ǯ10·î12Æü¤Ë»£±Æ¤Ë·îÅç±ØÂ¦¤Î¤â¤ó¤¸¤ã¥¹¥È¥ê¡¼¥È¤«¤é»£±Æ¤·¤¿¡Ö¥°¥é¥ó¥É¥·¥Æ¥£¥¿¥ï¡¼·îÅç¡×(ÃϾå58³¬¡¢ºÇ¹â¹â¤µ199.45m)¤Ç¤¹¡£

¡¡¤â¤ó¤¸¤ã¥¹¥È¥ê¡¼¥È¤«¤é°ìËÜÃæ¤ËÆþ¤Ã¤¿Ï©ÃϤ«¤é»£±Æ¡£ÄãÁؤηúʪ¤¬·ú¤ÁʤÖÏ©ÃϤÎÀè¤Ë¥¿¥ï¥Þ¥ó¤¬¸«¤¨¤ëÂÐÈæ¤¬¹¥¤¤Ç¤¹¡£

¡¡¶ùÅÄÀî¤Ë²Í¤«¤ëÄÑÂç¶¶¤«¤é»£±Æ¡£±¦±ü¤Ï¾¡¤É¤±Ø¥¨¥ê¥¢¤Î¥¿¥ï¥Þ¥ó·²¤Ç¤¹¡£

¡¡Åã²°¤ÎÇò¤¤¥Õ¥ì¡¼¥à¤Þ¤Ç´°À®¤·¤Æ¤ª¤ê¥¿¥ï¡¼¥¯¥ì¡¼¥ó¤ÏűµîºÑ¤ß¤Ç¤¹¡£

¡¡ÅìµþÅÔ¿´Â¦¤Î¶ùÅÄÀî¥Æ¥é¥¹¤«¤é»£±Æ¡£Â¸µ¤Îº¸¤Ë¸«¤¨¤ë·úÀ߸½¾ì¤ÏÃϾå7³¬¡¢ºÇ¹â¹â¤µ27.12m¤Î¶¦Æ±½»Âð¤È¤Ê¤ëB2³¹¶è¤Ç¡¢±¦Â¦¤ÏB1³¹¶è¤È¤Ê¤Ã¤Æ¤¤¤Þ¤¹¡£¤Á¤Ê¤ß¤Ë¡Ö¥°¥é¥ó¥É¥·¥Æ¥£¥¿¥ï¡¼·îÅç¡×¤Ï¡Ö·îÅç»°ÃúÌÜËÌÃ϶èÂè°ì¼ï»Ô³¹ÃϺƳ«È¯»ö¶È¡×¤ÎA³¹¶è¤Ç¤¹¡£

¡¡B1³¹¶è¤Ç¤Ï¶ùÅÄÀî¥Æ¥é¥¹¤Ë·Ò¤²¤ë¹©»ö¤¬¹Ô¤ï¤ì¤Æ¤¤¤Þ¤¹¡£¤Þ¤¿¡¢B1³¹¶è¤Ç¤ÏÃϾå6³¬¡¢ºÇ¹â¹â¤µ27.40m¤Î¾ã¤¬¤¤¼Ô¥°¥ë¡¼¥×¥Û¡¼¥à¡Ö¥ê¥ô¥§¡¼¥ë·îÅç¡×¤¬´°À®¤·¤Æ¤¤¤Þ¤¹¡£

¡¡¾¡¤É¤¶¶¤Î¤¿¤â¤È¤«¤é»£±Æ¡£

¡¡¾¡¤É¤¶¶¤«¤é»£±Æ¡£¡Ö¥°¥é¥ó¥É¥·¥Æ¥£¥¿¥ï¡¼·îÅç¡×¤È¶ùÅÄÀî¤Î´Ö¤Ë¤Ï¥Þ¥ó¥·¥ç¥ó¤Ê¤É¤¬¤¢¤ë¤¿¤á¡¢´°Á´¤Ê¥ê¥Ð¡¼¥Ó¥å¡¼¤ò³Ú¤·¤á¤ë¤Î¤Ï15³¬°Ê¾å¤¯¤é¤¤¤Ë¤Ê¤ê¤½¤¦¤Ç¤¹¡£

¡¡À¾Â¦¤ÎÌܤÎÁ°¤«¤é¸«¾å¤²¤Æ»£±Æ¡£Â¸µ¤Ç¤ÏB1³¹¶è¤Ë·Ò¤¬¤ëÏ¢Íí¥Ç¥Ã¥¤¬¤¢¤ê¡¢¤³¤ì¤Ë¤è¤ê·îÅç¤â¤ó¤¸¤ã¥¹¥È¥ê¡¼¥È¤«¤é¶ùÅÄÀî¥Æ¥é¥¹¤Þ¤Ç¹Ô¤¯¿·¤·¤¤¥ë¡¼¥È¤¬ÃÂÀ¸¤·¤Þ¤¹¡£

¡¡¤½¤ÎB1³¹¶è¤Ë·Ò¤¬¤ë¥Õ¥©¥ì¥¹¥È¥Ñ¡¼¥¯¤Î·úÀߤâ¿Ê¤ó¤Ç¤¤¤Þ¤¹¡£

¡¡Ë̦¤«¤é»£±Æ¡£±Ø¤Ë¶á¤¤Â¦¤Ï¾¦¶È»ÜÀߤȤʤ뤿¤á¡¢¶ùÅÄÀî¤Ë¶á¤¤¤³¤Á¤é¦¤Ë¥°¥é¥ó¥É¥¨¥ó¥È¥é¥ó¥¹¤¬ÇÛÃÖ¤µ¤ì¤Þ¤¹¡£

¡¡·îÅç±Ø¤Ë°ìÈֶᤤÅ즤«¤é»£±Æ¡£¥°¥é¥ó¥É¥¨¥ó¥È¥é¥ó¥¹¤Ï±¦¤Îƻϩ¤ÎÀè¤Ë¤Ê¤ê¤Þ¤¹¡£

¡¡·îÅç¤â¤ó¤¸¤ã¥¹¥È¥ê¡¼¥È¤ËÌ̤·¤¿¾ì½ê¤Ç¤Ï2³¬·ú¤Æ¤Î¾¦¶È»ÜÀߤ¬·úÀßÃæ¤Ç¡¢¤³¤³¤Î²°¾å¤¬²ÈÄíºÚ±à¤Î¡Ö¤Ä¤¤·¤ÞFARM¡×¤È¤Ê¤ê¤Þ¤¹¡£

¡¡Æ±¤¸Æü¤Ë¥«¥ì¥Ã¥¿¼®Î±¤Î̵ÎÁŸ˾¥¹¥Ú¡¼¥¹¤«¤é»£±Æ¤·¤¿¡Ö¥°¥é¥ó¥É¥·¥Æ¥£¥¿¥ï¡¼·îÅç¡×¤Ç¤¹¡£

¡¡¹³Ñ¤Ç»£±Æ¡£¼êÁ°¤Î¹Âç¤Ê¹¹ÃϤÏÃÛÃϻԾìÀ×ÃϤǡ¢¡ÖÃÛÃÏÃ϶è¤Þ¤Á¤Å¤¯¤ê»ö¶È¡×¤È¤·¤ÆÂ絬ÌϽ¸µÒ¡¦¸òή»ÜÀߡʥޥë¥Á¥¹¥¿¥¸¥¢¥à¡Ë¤òÃæ¿´¤Ë¡¢¼þ°Ï¤Ë¤Ï¹â¤µÌó110m¡Á210m¤È¤Ê¤ë͹âÁØ¥ª¥Õ¥£¥¹¡¦¥¿¥ï¡¼¥Þ¥ó¥·¥ç¥ó¡¦Ä¶¹âÁإۥƥëÅù¤¬ÇÛÃÖ¤µ¤ì¤ë·×²è¤È¤Ê¤Ã¤Æ¤¤¤Þ¤¹¡£Æ±¥¿¥ï¥Þ¥ó¤Ï¤³¤ÎÃÛÃÏÃ϶è¤âÅÌÊâ·÷¤È¤Ê¤ê¤Þ¤¹¡£
ÃÏ¿Þ
ʪ·ï³µÍ×

¡¡·úÃ۷ײè¤Î¤ªÃΤ餻¤Ç¤¹¡£
¢£Êª·ï³µÍ×¢£
̾¾Î¡§¥°¥é¥ó¥É¥·¥Æ¥£¥¿¥ï¡¼·îÅç
»ö¶È̾¡§·îÅç»°ÃúÌÜËÌÃ϶èÂè°ì¼ï»Ô³¹ÃϺƳ«È¯»ö¶È A³¹¶è
½êºßÃÏ¡§ÅìµþÅÔÃæ±û¶è·îÅ磳ÃúÌÜ3300ÈÖ¾¡ÊÃÏÈÖ¡Ë
¸òÄÌ¡§Åìµþ¥á¥È¥íͳÚÄ®Àþ¡Ö·îÅç¡×±Ø¤Þ¤ÇÅÌÊâ5ʬ
¡¡¡¡¡¡ÅÔ±ÄÂç¹¾¸ÍÀþ¡Ö·îÅç¡×±Ø¤Þ¤ÇÅÌÊâ5ʬ
¡¡¡¡¡¡ÅÔ±ÄÂç¹¾¸ÍÀþ¡Ö¾¡¤É¤¡×±Ø¤Þ¤ÇÅÌÊâ9ʬ
ÍÑÅÓ¡§¶¦Æ±½»Âð¡¢¾¦¶È¡¢Êݰé½ê¡¢¥Ç¥¤¥µ¡¼¥Ó¥¹Â¾
Áí¸Í¿ô¡§1285¸Í¡Êʬ¾ù½»¸Í915¸Í¡¢Èóʬ¾ù½»¸Í340¸Í¡¢¤½¤Î¾¹¹ðÂоݳ°½»¸Í30¸Í¡Ë¡¢Â¾Å¹ÊÞÅù25¶è²è
³¬¿ô¡§ÃϾå58³¬¡¢Ãϲ¼2³¬
¹â¤µ¡§197.65m¡ÊºÇ¹â¹â¤µ199.45m¡Ë
¹½Â¤¡§Å´¶Ú¥³¥ó¥¯¥ê¡¼¥È¤ °ìÉôÅ´¹ü¤¡¢À©¿¶¹½Â¤
´ðÁù©Ë¡¡§¸½¾ì¤À®¹º¡Ê¥¢¡¼¥¹¥É¥ê¥ë¼°³ÈÄ칩ˡ¡Ë
ÉßÃÏÌÌÀÑ¡§10,076.42Ö
·úÃÛÌÌÀÑ¡§6,743.49Ö
±ä¾²ÌÌÀÑ¡§144,276.80Ö
·úÃۼ硧·îÅç»°ÃúÌÜËÌÃ϶è»Ô³¹ÃϺƳ«È¯Áȹç
»²²ÃÁȹç°÷(Çä¼ç)¡§½»Í§ÉÔÆ°»º¡¢Åìµþ·úʪ¡¢ÂçÏ¥ϥ¦¥¹¹©¶È¡¢¼óÅÔ·÷ÉÔdz·úÃÛ¸ø¼Ò
»ö¶È¶¨Îϼԡ§¸ÞÍηúÀß¡¢¼óÅÔ·÷ÉÔdz·úÃÛ¸ø¼Ò
Àß·×¼Ô¡§¸ÞÍηúÀß¡¦Âç·úÀ߷ׯÃÄê¶È̳Âå¹Ô¶¦Æ±ÂÎ
»Ü¹©¼Ô¡§¸ÞÍηúÀß
¹©´ü¡§2022ǯ10·î20ÆüÃ幩¡Á2026ǯ4·î²¼½Ü½×¹©Í½Äê
Æþµï¡§2026ǯ12·î²¼½ÜͽÄê
½Ðŵ
¢§¸ø¼°HP¡§¥°¥é¥ó¥É¥·¥Æ¥£¥¿¥ï¡¼·îÅç
https://www.sumitomo-rd-mansion.jp/shuto/tsukishima/
¢§½»Í§ÉÔÆ°»º¡§¥Ë¥å¡¼¥¹¥ê¥ê¡¼¥¹¡Ê2022ǯ11·î7Æü¡Ë
·îÅ票¥ê¥¢¤ÎÆÃÀ¤ò³è¤«¤·¡¢Æø¤ï¤¤¤È¿åÊմͤÎÌ¥ÎϤò°ú¤½Ð¤¹ºÆ³«È¯
¡Ö·îÅç»°ÃúÌÜËÌÃ϶èÂè°ì¼ï»Ô³¹ÃϺƳ«È¯»ö¶È¡× 10·î20ÆüÃ幩
¢§ÅìµþÅÔÃæ±û¶è¡§»Ô³¹ÃϺƳ«È¯»ö¶È
·îÅç»°ÃúÌÜËÌÃ϶è
- ¥«¥Æ¥´¥ê
- Ãæ±û¶è







