
¡¡È¬½Å½§¤ÎÂ絬ÌϺƳ«È¯¡ÖȬ½Å½§ÆóÃúÌÜÃæÃ϶èÂè°ì¼ï»Ô³¹ÃϺƳ«È¯»ö¶È¡×(ÃϾå43³¬¡¢¹â¤µ223.42m)¤Î·úÀßÃϤǤ¹¡£2025ǯ10·î12Æü¤Ë»£±Æ¤·¤Þ¤·¤¿¡£·úÀßÃϤÏȬ½Å½§¥Ö¥Ã¥¯¥»¥ó¥¿¡¼Åù¤ÎÀ×ÃϤǡ¢ÄãÁØÉô¤Ë¾¦¶È»ÜÀß¡¢¥¤¥ó¥¿¡¼¥Ê¥·¥ç¥Ê¥ë¥¹¥¯¡¼¥ë¡¢·à¾ì¡¢ÃæÁØÉô¤Ë¥ª¥Õ¥£¥¹¡¢¹âÁØÉô¤Ë¥µ¡¼¥Ó¥¹¥¢¥Ñ¡¼¥È¥á¥ó¥È¤¬Æþ¤ëÊ£¹ç»ÜÀߤˤʤê¤Þ¤¹¡£¤Þ¤¿¡¢Æ±¥Ó¥ë¤Ë¤ÏHonda¤ÎËܼҵ¡Ç½¤Î°Üž¤¬·èÄꤷ¤Æ¤¤¤Þ¤¹¡£¤³¤Îµ»ö¤Ç¤ÏƱºÆ³«È¯¤Î³µÍפä·úÀß¾õ¶·¡¢ÃÏ¿ÞÅù¤òºÜ¤»¤Æ¤¤¤Þ¤¹¡£
Ȭ½Å½§ÆóÃúÌÜÃæÃ϶è¤Ë¤Ä¤¤¤Æ

³°´Ñ¥¤¥á¡¼¥¸¥Ñ¡¼¥¹[½Ðŵ¡§»°°æÉÔÆ°»º¡Ê¸½ÃÏ´ÇÈĤò»£±Æ¡Ë]
¡¡¡ÖȬ½Å½§ÆóÃúÌÜÃæÃ϶èÂè°ì¼ï»Ô³¹ÃϺƳ«È¯»ö¶È¡×¤ÏȬ½Å½§¥¨¥ê¥¢¤ÎÂ絬ÌϺƳ«È¯¤Ç¡¢µ¬ÌϤÏÃϾå43³¬¡¢Åã²°1³¬¡¢Ãϲ¼3³¬¡¢¹â¤µ223.42m¡¢ÉßÃÏÌÌÀÑ1Ëü9562.71Ö¡¢·úÃÛÌÌÀÑ1Ëü5438.82Ö¡¢±ä¾²ÌÌÀÑ38Ëü9384.02֤ȤʤäƤ¤¤Þ¤¹¡£
¡¡·úÃÛ¼ç¤ÏȬ½Å½§ÆóÃúÌÜÃæÃ϶è»Ô³¹ÃϺƳ«È¯Áȹç¡Ê»²²ÃÁȹç°÷¡§ÅÔ»ÔºÆÀ¸µ¡¹½¡¢¼¯Åç·úÀß¡¢½»Í§ÉÔÆ°»º¡¢ºåµÞºå¿ÀÉÔÆ°»º¡¢¥Ò¥å¡¼¥ê¥Ã¥¯¡¢»°°æÉÔÆ°»º¡Ë¡¢À߷׼ԤȻܹ©¼Ô¤Ï¼¯Åç·úÀߤÇ2029ǯ1·î31Æü¤Î½×¹©Í½Äê¤Ç¤¹¡£

ÍÑÅÓÃÇÌÌ¿Þ[½Ðŵ¡§»°°æÉÔÆ°»º]
¡¡¥Õ¥í¥¢¹½À®¤ÏÃϲ¼2³¬¡ÁÃϲ¼1³¬¤¬¥Ð¥¹¥¿¡¼¥ß¥Ê¥ë¡¢Ãϲ¼1³¬¡Á3³¬¤¬¾¦¶È»ÜÀß¡¢3³¬¡Á6³¬¤¬·à¾ì¡¢3³¬¡Á4³¬¤¬¥¤¥ó¥¿¡¼¥Ê¥·¥ç¥Ê¥ë¥¹¥¯¡¼¥ë¡¢3¡Á38³¬¤¬¥ª¥Õ¥£¥¹¡¢¤½¤·¤Æ40¡Á43³¬¤¬¥µ¡¼¥Ó¥¹¥¢¥Ñ¡¼¥È¥á¥ó¥È¤È¤Ê¤Ã¤Æ¤¤¤Þ¤¹¡£10³¬¤Ë¤Ï¥ª¥Õ¥£¥¹¤Î¥¹¥«¥¤¥í¥Ó¡¼¡¢40³¬¤Ë¤Ï¥µ¡¼¥Ó¥¹¥¢¥Ñ¡¼¥È¥á¥ó¥È¤Î¥í¥Ó¡¼¤¬ÇÛÃÖ¤µ¤ì¤Þ¤¹¡£
¡¡·úÀßÃϤˤÏHonda¤ÎËܼҵ¡Ç½¤òô¤Ã¤Æ¤¤¤¿¤³¤È¤â¤¢¤ë¡Ö¥Û¥ó¥ÀȬ½Å½§¥Ó¥ë¡×¤¬¤¢¤Ã¤¿¤³¤È¤«¤éƱºÆ³«È¯»ö¶È¤Î°ì°÷¤È¤Ê¤Ã¤Æ¤ª¤ê¡¢»°°æÉÔÆ°»º¤Ï¥Û¥ó¥À¤ËƱºÆ³«È¯¥Ó¥ë¤Î¥ª¥Õ¥£¥¹¥Õ¥í¥¢¤Î°ìÉô¸¢Íø¤ò¾ùÅϤ·¡¢¥Û¥ó¥À¤Ï·úÂØ¤¨¤¬»Ï¤Þ¤ë¡ÖHondaÀÄ»³¥Ó¥ë¡×¤Î½ê͸¢¤Î°ìÉô¤ò»°°æÉÔÆ°»º¥ì¥¸¥Ç¥ó¥·¥ã¥ë¤Ø¾ùÅϤ·¤Þ¤¹¡£¤³¤ì¤Ë¤è¤êHonda¤ÎËܼҤ¬°Üž¤·¤Æ¤¯¤ë¤³¤È¤¬·èÄꤷ¤Æ¤¤¤Þ¤¹¡£

¾¦¶È»ÜÀß1³¬ ²°Æâ¹¾ì[½Ðŵ¡§»°°æÉÔÆ°»º]
¡¡¾¦¶È»ÜÀ߯â¤ËÇÛÃÖ¤µ¤ì¤ë²°Æâ¹¾ì¤Î´°À®Í½ÁۿޤǤ¹¡£¾¦¶È»ÜÀߤÏÌó50ŹÊޤǷײ褵¤ì¤Æ¤ª¤ê¡¢·úÀßÃϤˤ¢¤Ã¤¿¡ÖȬ½Å½§¥Ö¥Ã¥¯¥»¥ó¥¿¡¼¡×¤¬ºÆ¤Ó½Ðʤ¹¤ë·×²è¤È¤Ê¤Ã¤Æ¤¤¤Þ¤¹¡£

¾¦¶È»ÜÀßÃϲ¼1³¬ ÄÌÏ©[½Ðŵ¡§»°°æÉÔÆ°»º]
¡¡Ë̦¤Ë¤¢¤ëÅìµþ¥ß¥Ã¥É¥¿¥¦¥óȬ½Å½§¤È¤ÏÃϲ¼1³¬¤ÎÃϲ¼ÄÌÏ©¤ÈÃϾå2³¬¤ÎÊâ¹Ô¼Ô¥Ç¥Ã¥¤ÇÀܳ¤·¡¢¤³¤ì¤Ë¤è¤êξ»ÜÀß¹ç¤ï¤»¤Æ100ŹÊÞ¡ÊÌó5,000Äڡˤòͤ¨¤ë¾¦¶È¶õ´Ö¤¬·ÁÀ®¤µ¤ì¤Þ¤¹¡£

²°³°¹¾ì¥¤¥á¡¼¥¸¥Ñ¡¼¥¹[½Ðŵ¡§»°°æÉÔÆ°»º]
¡¡Åìµþ±Ø¤È¤ÏÈ¿ÂЦ¤È¤Ê¤ëÅ즤ÎÏ©Ãϱ褤¤Ë¤ÏÂ絬ÌϤʹ¾ì¤¬À°È÷¤µ¤ì¤Þ¤¹¡£Å즤Î3¡Á4³¬¤ÏÂΰé´Û¡¦¥×¡¼¥ë¡¦²°³°±¿Æ°¾ì¤â¤¢¤ë¥¤¥ó¥¿¡¼¥Ê¥·¥ç¥Ê¥ë¥¹¥¯¡¼¥ë¤¬ÇÛÃÖ¤µ¤ì¡¢¿Þ¤Îº¸Ã¼¤Î3³¬¡Á6³¬¤Ë¤Ï·à¾ì¤¬ÇÛÃÖ¤µ¤ì¤Þ¤¹¡£

Ãϲ¼ÄÌÏ©¥¤¥á¡¼¥¸¥Ñ¡¼¥¹[½Ðŵ¡§»°°æÉÔÆ°»º]
¡¡È¬½Å½§¤Ç¤Ïµþ²¦ÅÅÅ´¥Ð¥¹¤¬±¿±Ä¤¹¤ë¡Ö¥Ð¥¹¥¿¡¼¥ß¥Ê¥ëÅìµþȬ½Å½§¡×¤¬·úÀßÃæ¤Ç¡¢Âè1´ü¥¨¥ê¥¢¤È¤·¤Æ¡ÖÅìµþ¥ß¥Ã¥É¥¿¥¦¥óȬ½Å½§¡×¤ÎÃϲ¼¤Ë³«¶È¤·¤Æ¤¤¤Þ¤¹¡£Âè2´ü¥¨¥ê¥¢¤Ï·úÀßÃæ¤Î¡Ö¥È¥Õ¥í¥à ¥ä¥¨¥¹ ¥¿¥ï¡¼¡×¤ÎÃϲ¼¤Ç¡¢Âè3´ü¥¨¥ê¥¢¤ÏƱºÆ³«È¯¤ÎÃϲ¼¤Ë³«¶È¤·¤Þ¤¹¡£¤³¤ì¤é3¥¨¥ê¥¢¹ç¤ï¤»¤Æ¹ç·×20¥Ð¡¼¥¹¤È¤Ê¤ëÆüËܺÇÂçµé¤Î¹â®¥Ð¥¹¥¿¡¼¥ß¥Ê¥ë¤¬ÃÂÀ¸¤·¤Þ¤¹¡£

³°´Ñ¥¤¥á¡¼¥¸¥Ñ¡¼¥¹[½Ðŵ¡§»°°æÉÔÆ°»º¡Ê¸½ÃÏ´ÇÈĤò»£±Æ¡Ë]
¡¡Ìë·Ê¥Ð¡¼¥¸¥ç¥ó¤Î´°À®Í½ÁۿޤǤ¹¡£È¬½Å½§¥¨¥ê¥¢¤Ë¤Ï¹â¤µ200mͤ¨¤Î͹âÁإӥ뤬·ú¤ÁʤӤޤ¹¡£
Ê¿ÌÌ¿Þ

Ãϲ¼3³¬Ê¿ÌÌ¿Þ[½Ðŵ¡§ÅìµþÅÔÃæ±û¶è]
¡¡Ãϲ¼3³¬¤ÏÃó¼Ö¾ì¤È¤Ê¤ê¤Þ¤¹¡£

Ãϲ¼2³¬Ê¿ÌÌ¿Þ[½Ðŵ¡§ÅìµþÅÔÃæ±û¶è]
¡¡Ãϲ¼2³¬¤ÏÃó¼Ö¾ì¤Î¾¤Ë¡Ö¥Ð¥¹¥¿¡¼¥ß¥Ê¥ëÅìµþȬ½Å½§¡×¤¬ÀßÃÖ¤µ¤ì¤Þ¤¹¡£¥Ð¥¹¤ÎÁö¹Ô¥ë¡¼¥È¤ÏËÌÎ٤ˤ¢¤ë¡ÖÅìµþ¥ß¥Ã¥É¥¿¥¦¥óȬ½Å½§¡×¤Î¡Ö¥Ð¥¹¥¿¡¼¥ß¥Ê¥ëÅìµþȬ½Å½§¡×·Ðͳ¤Ë¤Ê¤ê¤Þ¤¹¡£

Ãϲ¼1³¬Ê¿ÌÌ¿Þ[½Ðŵ¡§ÅìµþÅÔÃæ±û¶è]
¡¡Ãϲ¼1³¬¤Ï¾¦¶È»ÜÀߤ¬ÇÛÃÖ¤µ¤ì¡¢¿Þ¤Î¾å¦¡ÊÀ¾Â¦¡Ë¤Ç¤Ï¡ÖȬ½Å½§Ãϲ¼³¹¡×¤ËÀܳ¤·¡¢¿Þ¤Î±¦Â¦¡ÊË̦¡Ë¤Ç¤Ï¡ÖÅìµþ¥ß¥Ã¥É¥¿¥¦¥óȬ½Å½§¡×¤ËÀܳ¤·¤Þ¤Þ¤¹¡£¤³¤ì¤Ë¤è¤êJR¡ÖÅìµþ¡×±Ø¤ËÃϲ¼¤«¤é¹Ô¤±¤ë¤è¤¦¤Ë¤Ê¤ê¤Þ¤¹¡£
¡¡¤Þ¤¿¡¢¿Þ¤Î²¼Â¦¡ÊÅ즡ˤǤϡֵþ¶¶¥¨¥É¥°¥é¥ó¡×¤ËÀܳ¤¹¤ë¤³¤È¤Ç¡¢Åìµþ¥á¥È¥í¶äºÂÀþ¡Öµþ¶¶¡×±Ø¤Ë¤âÃϲ¼¤«¤é¹Ô¤±¤ë¤è¤¦¤Ë¤Ê¤ê¤Þ¤¹¡£¤µ¤é¤Ë¡¢¿Þ¤Îº¸Â¦¡ÊÆî¦¡Ë¤Ç¤Ï¡ÖȬ½Å½§ÆóÃúÌÜÆîÆÃÄê³¹¶è¡×(ÃϾå39³¬¡¢¹â¤µÌó230m)¤¬·×²è¤µ¤ì¤Æ¤ª¤ê¡¢¤½¤³¤ËÀܳ¤¹¤ëÃϲ¼ÄÌÏ©Éôʬ¤âÉÁ¤«¤ì¤Æ¤¤¤Þ¤¹¡£

1³¬Ê¿ÌÌ¿Þ[½Ðŵ¡§ÅìµþÅÔÃæ±û¶è]
¡¡1³¬¤Ë¤Ï²°Æâ¹¾ì¤Î¤ÈŹÊÞ¤¬ÇÛÃÖ¤µ¤ì¤Þ¤¹¡£

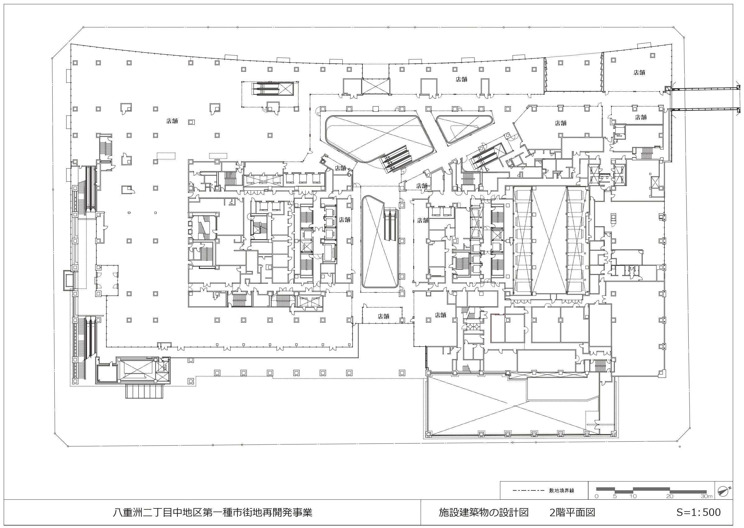
2³¬Ê¿ÌÌ¿Þ[½Ðŵ¡§ÅìµþÅÔÃæ±û¶è]
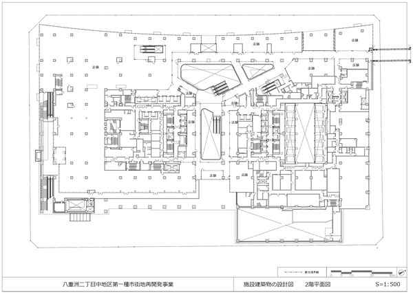
¡¡2³¬¤Ë¤âŹÊÞ¤¬ÇÛÃÖ¤µ¤ì¡¢¿Þ¤Î±¦Â¦¡ÊË̦¡Ë¤Ç¤Ï¡ÖÅìµþ¥ß¥Ã¥É¥¿¥¦¥óȬ½Å½§¡×¤Ë¥Ç¥Ã¥¤ÇÀܳ¤·¤Þ¤¹¡£

3³¬Ê¿ÌÌ¿Þ[½Ðŵ¡§ÅìµþÅÔÃæ±û¶è]
¡¡3³¬¤Ë¤ÏŹÊޤξ¤Ë¡¢Æî¦¤Ë¤Ï·à¾ì¡¢Å즤ˤϥ¤¥ó¥¿¡¼¥Ê¥·¥ç¥Ê¥ë¥¹¥¯¡¼¥ë¤¬ÇÛÃÖ¤µ¤ì¤Þ¤¹¡£¤Þ¤¿¡¢Ë̦¤Ë¤Ï»ö̳½ê¥¹¥Ú¡¼¥¹¤âÇÛÃÖ¤µ¤ì¤Þ¤¹¡£

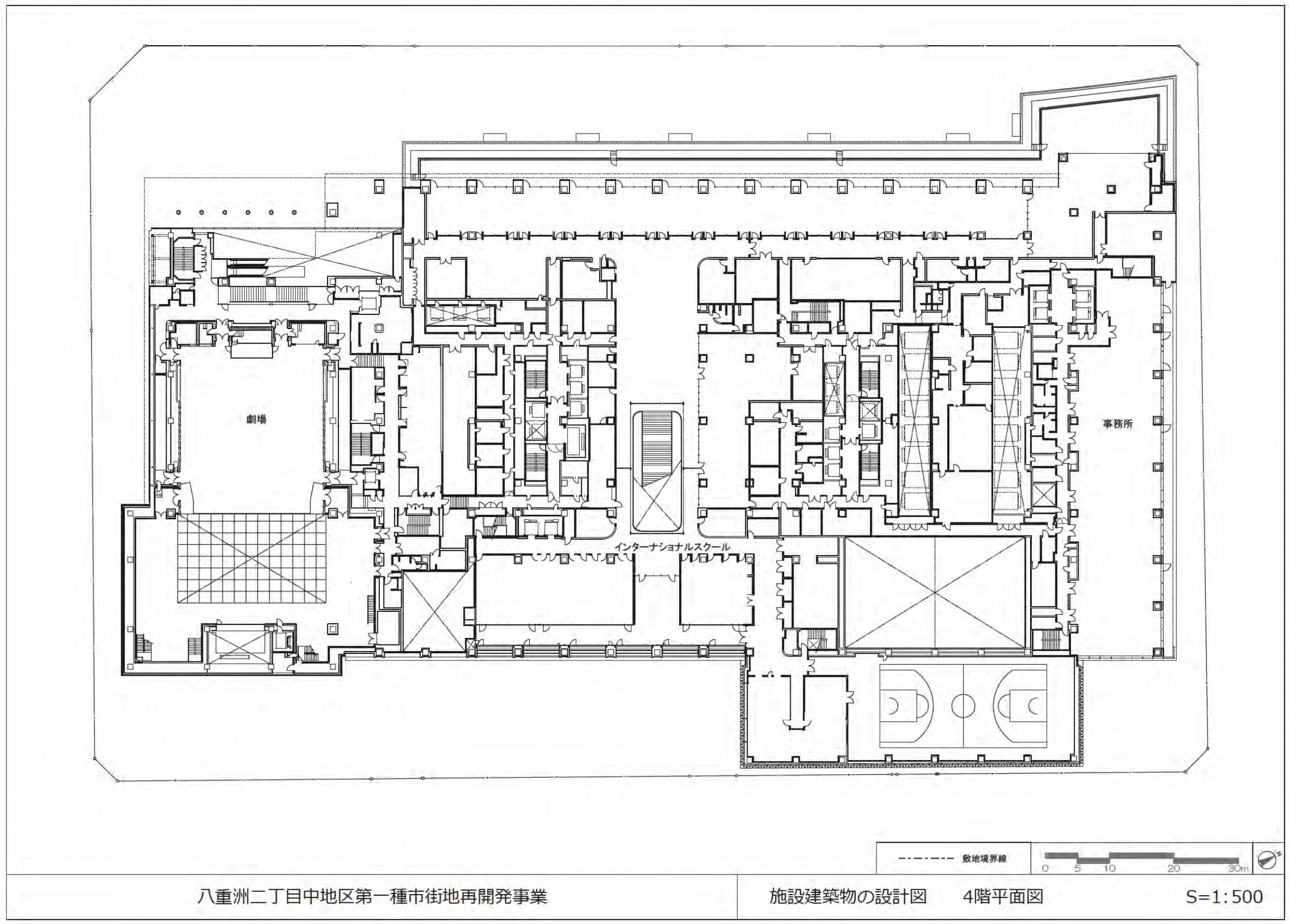
4³¬Ê¿ÌÌ¿Þ[½Ðŵ¡§ÅìµþÅÔÃæ±û¶è]
¡¡4³¬¤Ë»ö̳½ê¡¢·à¾ì¡¢¥¤¥ó¥¿¡¼¥Ê¥·¥ç¥Ê¥ë¥¹¥¯¡¼¥ë¤È¤Ê¤ê¤Þ¤¹¡£

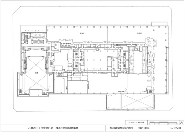
5³¬Ê¿ÌÌ¿Þ[½Ðŵ¡§ÅìµþÅÔÃæ±û¶è]
¡¡5³¬¡Á9³¬¤Ï»ö̳½ê¡¢·à¾ì¤Ë¤Ê¤ê¤Þ¤¹¡£

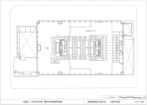
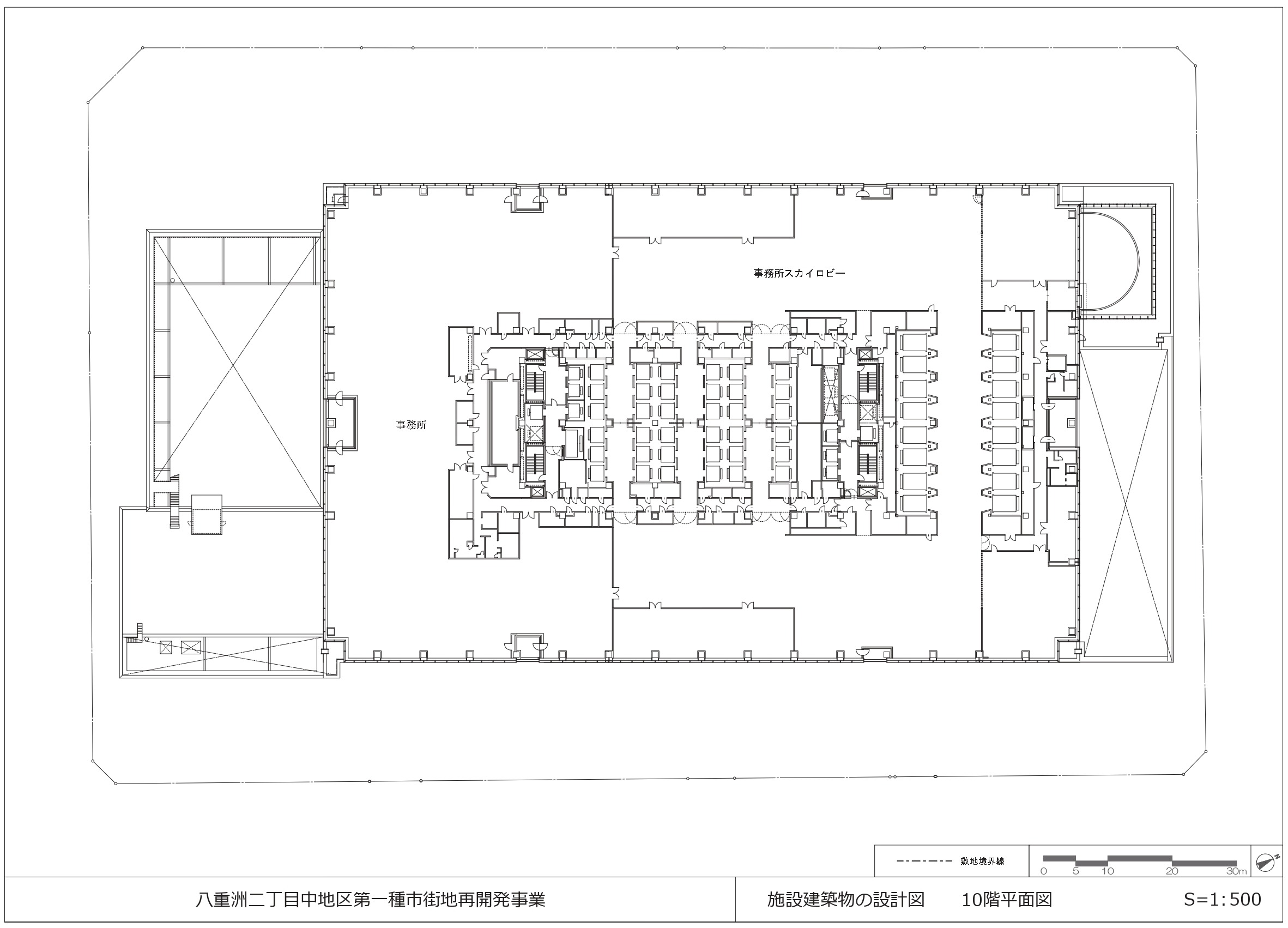
10³¬Ê¿ÌÌ¿Þ[½Ðŵ¡§ÅìµþÅÔÃæ±û¶è]
¡¡10³¬¤Ë¤Ï¥ª¥Õ¥£¥¹¤Î¥¹¥«¥¤¥í¥Ó¡¼¤¬ÇÛÃÖ¤µ¤ì¤Þ¤¹¡£

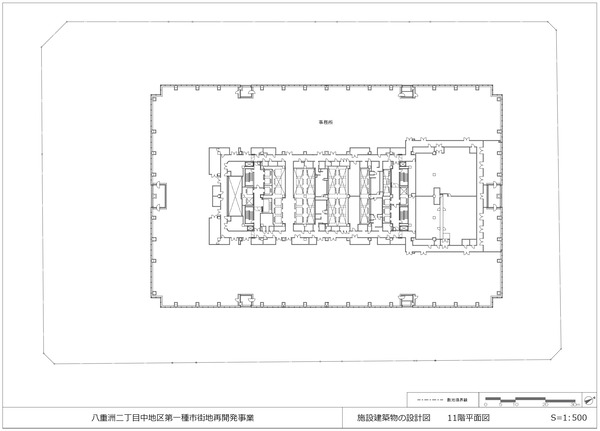
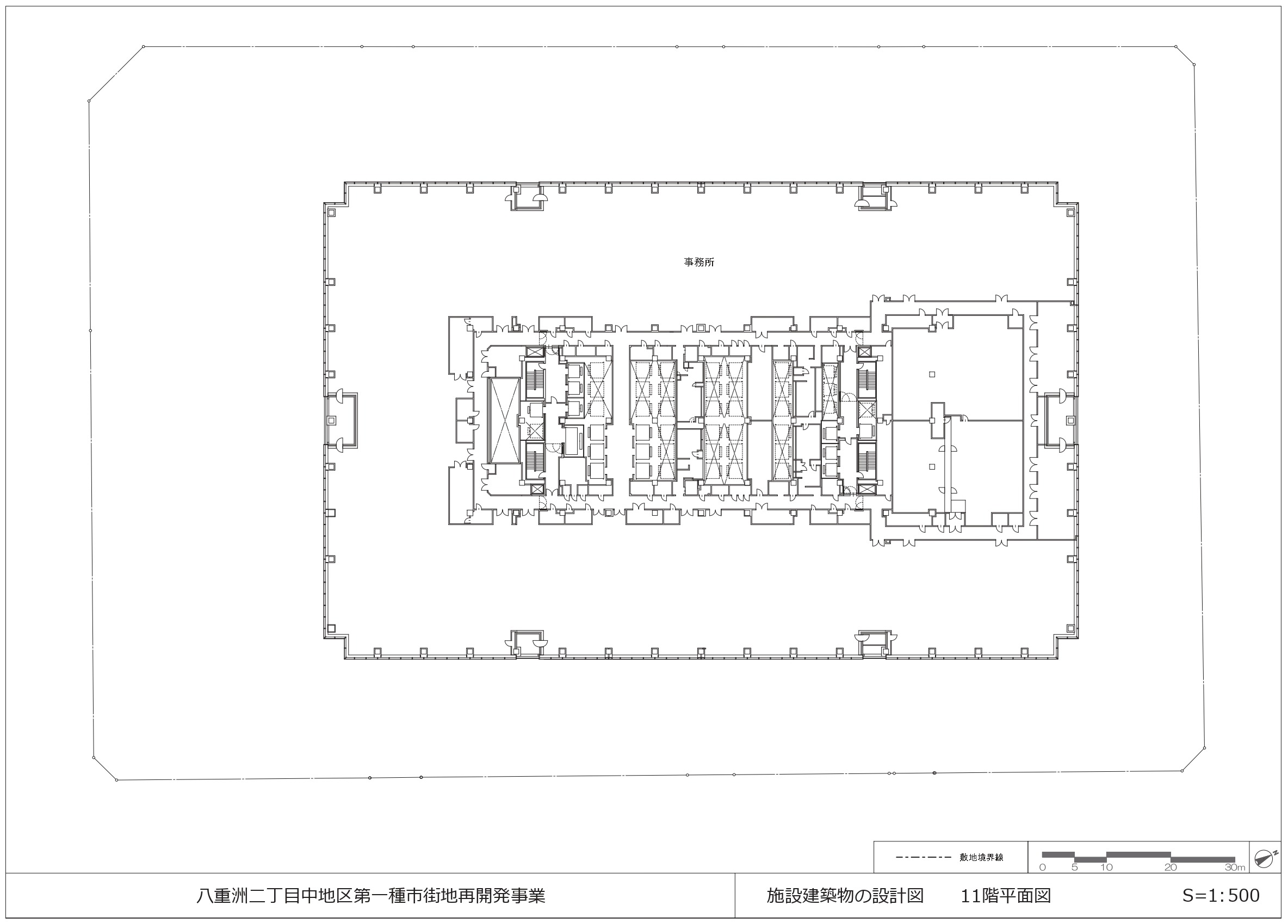
11³¬Ê¿ÌÌ¿Þ[½Ðŵ¡§ÅìµþÅÔÃæ±û¶è]
¡¡11³¬¤ÎË̦¤Ï»ö̳½ê¥¹¥Ú¡¼¥¹¤Ë¤Ê¤Ã¤Æ¤¤¤Þ¤»¤ó¤¬¡Ä

12³¬Ê¿ÌÌ¿Þ[½Ðŵ¡§ÅìµþÅÔÃæ±û¶è]
¡¡12³¬¡Á38³¬¤Ï360ÅÙ»ö̳½ê¥¹¥Ú¡¼¥¹¤Ë¤Ê¤ê¤Þ¤¹¡£

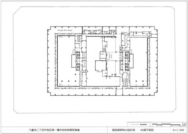
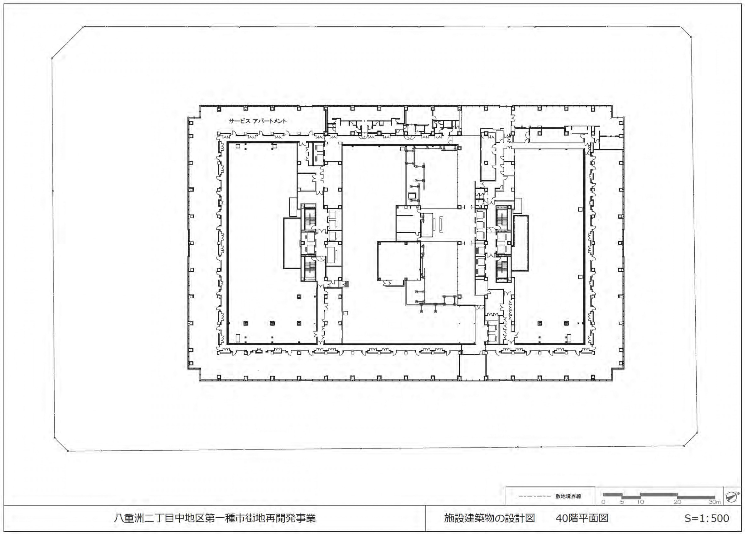
40³¬Ê¿ÌÌ¿Þ[½Ðŵ¡§ÅìµþÅÔÃæ±û¶è]
¡¡39³¬¤ÎÅŵ¤¼¼¤ò¶´¤ó¤Ç40³¬¤«¤é¥µ¡¼¥Ó¥¹¥¢¥Ñ¡¼¥È¥á¥ó¥È¤Ë¤Ê¤ê¤Þ¤¹¡£

42³¬Ê¿ÌÌ¿Þ[½Ðŵ¡§ÅìµþÅÔÃæ±û¶è]
¡¡42³¬¡¢43³¬¤Ï360ÅÙÉô²°¤¬ÇÛÃÖ¤µ¤ì¤Þ¤¹¡£

PH³¬Ê¿ÌÌ¿Þ[½Ðŵ¡§ÅìµþÅÔÃæ±û¶è]
¡¡²°¾å¤ÏR¥Þ¡¼¥¯¤Ê¤Î¤Ç¥Ø¥ê¤ÏÃåΦ¤Ç¤¤Ê¤¤¥Û¥Ð¡¼¥ê¥ó¥°¥¹¥Ú¡¼¥¹¤È¤Ê¤ê¤Þ¤¹¡£¶ÛµÞ»þ¤Ë¤Ï¥Ø¥ê¤òÃåΦ¤µ¤»¤º¤ËÉ⤫¤·¤¿¾õÂ֤ǵ߽õ³èư¤ò¹Ô¤¤¤Þ¤¹¡£
°ÌÃÖ¿Þ

°ÌÃÖ¿Þ[½Ðŵ¡§»°°æÉÔÆ°»º]
¡¡·úÀßÃϤÏÅìµþ±Ø¤ÎÆîÅ즡¢¡ÖÅìµþ¥ß¥Ã¥É¥¿¥¦¥óȬ½Å½§¡×¤ÎÆî¦¤Ç¡¢À¾Â¦¤Ï³°ËÙÄ̤ꡢÆî¦¤ÏÃÃÌê¶¶Ä̤ꡢ¤½¤·¤ÆÅ즤ÏÌøÄ̤ê¤ËÌ̤·¤¿¾ì½ê¤È¤Ê¤Ã¤Æ¤¤¤Þ¤¹¡£Ãϲ¼1³¬¤Ç¤Ï¡ÖȬ½Å½§Ãϲ¼³¹¡×¡¢¡ÖÅìµþ¥ß¥Ã¥É¥¿¥¦¥óȬ½Å½§¡×¤ËÀܳ¤¹¤ë¤³¤È¤ÇÅìµþ±Ø¤Ë·Ò¤¬¤ê¡¢ÅìÎ٤ˤ¢¤ë¡Öµþ¶¶¥¨¥É¥°¥é¥ó¡×¤Ë¤âÃϲ¼ÄÌÏ©¤ÇÀܳ¤¹¤ë¤³¤È¤ÇÅìµþ¥á¥È¥í¶äºÂÀþ¡Öµþ¶¶¡×±Ø¤Ë¤â·Ò¤¬¤ê¤Þ¤¹¡£
¡¡¤Þ¤¿¡¢¤³¤Î¿Þ¤Ë¤ÏÉÁ¤«¤ì¤Æ¤¤¤Þ¤»¤ó¤¬¡¢·úÀßÃÏ¤ÎÆî¦¤Ç·×²è¤µ¤ì¤Æ¤¤¤ë¡ÖȬ½Å½§ÆóÃúÌÜÆîÆÃÄê³¹¶è¡×(ÃϾå39³¬¡¢¹â¤µÌó230m)¤Ë¤âÃϲ¼ÄÌÏ©¤ÇÀܳ¤¹¤ë·×²è¤È¤Ê¤Ã¤Æ¤¤¤Þ¤¹¡£
·úÀß¾õ¶·

¡¡2025ǯ10·î12Æü¤ËȬ½Å½§¥°¥é¥ó¥ë¡¼¥Õ¤«¤é»£±Æ¤·¤¿¡ÖȬ½Å½§ÆóÃúÌÜÃæÃ϶èÂè°ì¼ï»Ô³¹ÃϺƳ«È¯»ö¶È¡×(ÃϾå43³¬¡¢¹â¤µ223.42m)¤Î·úÀßÃϤǤ¹¡£

¡¡Åìµþ¥ß¥Ã¥É¥¿¥¦¥óȬ½Å½§¤Î2³¬¤«¤é»£±Æ¡£¤³¤Î»£±Æ¾ì½ê¤¬Æ±ºÆ³«È¯¤È¤Î¥Ç¥Ã¥ÀܳÉô¤Ë¤Ê¤ê¤Þ¤¹¡£

¡¡·úÀßÃϤ˥º¡¼¥à¤Ç¤¹¡£

¡¡¸½ºß¤ÏÃϲ¼¶íÂι©»ö¤Ê¤É¤¬¹Ô¤ï¤ì¤Æ¤¤¤Þ¤¹¡£

¡¡³°ËÙÄ̤ê¤ËÌ̤·¤¿ÉßÃÏÀ¾Â¦¤Ë¤¢¤Ã¤¿¡ÖȬ½Å½§¥Ö¥Ã¥¯¥»¥ó¥¿¡¼¡×¤ÏºÆ³«È¯¸å¤Î¾¦¶È»ÜÀߤ˺ƤÓÌá¤Ã¤Æ¤¯¤ëͽÄê¤È¤Ê¤Ã¤Æ¤¤¤Þ¤¹¡£

¡¡Åìµþ¥ß¥Ã¥É¥¿¥¦¥óȬ½Å½§¤Î2³¬¥Ç¥Ã¥Éôʬ¤«¤é»£±Æ¡£

¡¡·úÀßÃϤ˥º¡¼¥à¤Ç¤¹¡£

¡¡ÉßÃÏËÌÅì³Ñ¤Ë¤Ïº£¤Þ¤Ç¤Ê¤«¤Ã¤¿¥×¥ì¥Ï¥Ö»ö̳½ê¤¬ÀßÃÖ¤µ¤ì¤Æ¤¤¤Þ¤·¤¿¡£

¡¡Ãϲ¼¶íÂι©»ö¤Ï»Ï¤Þ¤Ã¤Æ¤¤¤Þ¤¹¤¬¡¢¤Þ¤ÀÃϲ¼²òÂι©»ö¤ä·¡ºï¤â¹Ô¤ï¤ì¤Æ¤¤¤ë¤è¤¦¤Ç¤¹¡£

¡¡¹½Âæ¤Î¾å¤Ë¤¤¤ë½Åµ¡¤¬¤¤¤Ê¤¯¤Ê¤Ã¤¿¤éÃϾå¶íÂι©»ö¤¬»Ï¤Þ¤ë¤Î¤«¤â¤·¤ì¤Þ¤»¤ó¡£

¡¡1¥Õ¥í¥¢¤¬¤«¤Ê¤êÂ礤ʥӥë¤Î¤¿¤á¡¢¥¿¥ï¡¼¥¯¥ì¡¼¥ó¤Ï4´ð°Ê¾åÀßÃÖ¤µ¤ì¤ë¤«¤È»×¤¤¤Þ¤¹¡£

¡¡ÃϾå¤Ë¹ß¤ê¤ÆËÌÅ즤«¤é»£±Æ¡£

¡¡ÆîÅ즤«¤é»£±Æ¡£±¦Â¦¤Î¥Ó¥ë¤¬Ãϲ¼ÄÌÏ©¤È¥Ç¥Ã¥¤ÇÀܳ¤¹¤ë¡ÖȬ½Å½§¥»¥ó¥È¥é¥ë¥¿¥ï¡¼¡ÊÅìµþ¥ß¥Ã¥É¥¿¥¦¥óȬ½Å½§¡Ë¡×(ÃϾå45³¬¡¢¹â¤µ238.2m)¤Ç¤¹¡£

¡¡ÆîÀ¾Â¦¤È¤Ê¤ëÃÃÌê¶¶¸òº¹ÅÀ¤«¤é»£±Æ¡£±¦Â¦¤Î¥Ó¥ë¤Ï¡Öµþ¶¶¥¨¥É¥°¥é¥ó¡×(ÃϾå32³¬¡¢ºÇ¹â¹â¤µ170.41m)¤ÇÃϲ¼ÄÌÏ©¤ÇÀܳ¤·¤Þ¤¹¡£
¡¡·úÀßÃϤÏ͹âÁØ¥Ó¥ë¤Ç°Ï¤Þ¤ì¤Æ¤¤¤Þ¤¹¤¬¸½ºß¤ÏÆî¦¡Ê¼Ì¿¿±¦Â¦¡Ë¤Ë͹âÁؤϤ¢¤ê¤Þ¤»¤ó¡£¤¿¤À¡¢¤½¤³¤Ç¤Ï¡ÖȬ½Å½§ÆóÃúÌÜÆîÆÃÄê³¹¶è¡×(ÃϾå39³¬¡¢¹â¤µÌó230m)¤Î·úÀߤ˸þ¤±¤Æ´û¸·úʪ¤Î²òÂι©»ö¤¬»Ï¤Þ¤Ã¤Æ¤ª¤ê¡¢ºÇ½ªÅª¤Ë¤Ï¡ÖȬ½Å½§ÆóÃúÌÜÃæÃ϶èÂè°ì¼ï»Ô³¹ÃϺƳ«È¯»ö¶È¡×¤Ï͹âÁØ¥Ó¥ë¤Ë°Ï¤Þ¤ì¤Þ¤¹¡£
ÃÏ¿Þ
ʪ·ï³µÍ×

¡¡·úÃ۷ײè¤Î¤ªÃΤ餻¤Ç¤¹¡£
¢£·úÃ۷ײ袣
»ö¶È̾¡§È¬½Å½§ÆóÃúÌÜÃæÃ϶èÂè°ì¼ï»Ô³¹ÃϺƳ«È¯»ö¶È»ÜÀß·úÃÛʪ
½êºßÃÏ¡§ÅìµþÅÔÃæ±û¶èȬ½Å½§£²ÃúÌÜ4ÈÖ¡¢5ÈÖ¡¢6ÈÖ¡¢7ÈÖ
¸òÄÌ¡§JR³ÆÀþ¡ÖÅìµþ¡×±ØÈ¬½Å½§¸ý ÅÌÊâ3ʬ¡ÊÃϲ¼Ä¾·ë¡Ë
¡¡¡¡¡¡Åìµþ¥á¥È¥í¶äºÂÀþ¡Öµþ¶¶¡×±Ø ÅÌÊâ2ʬ¡ÊÃϲ¼Ä¾·ë¡Ë
¡¡¡¡¡¡Åìµþ¥á¥È¥í¶äºÂÀþ¡¦ÅìÀ¾Àþ¡¦ÅÔ±ÄÀõÁðÀþ¡ÖÆüËܶ¶¡×±Ø ÅÌÊâ8ʬ
¡¡¡¡¡¡Åìµþ¥á¥È¥íͳÚÄ®Àþ¡Ö¶äºÂ°ìÃúÌÜ¡×±Ø ÅÌÊâ5ʬ
ÍÑÅÓ¡§»ö̳½ê¡¢Å¹ÊÞ¡¢·à¾ì¡¢¥µ¡¼¥Ó¥¹¥¢¥Ñ¡¼¥È¥á¥ó¥È¡¢¥¤¥ó¥¿¡¼¥Ê¥·¥ç¥Ê¥ë¥¹¥¯¡¼¥ë¡¢¥Ð¥¹¥¿¡¼¥ß¥Ê¥ë¡¢Ãó¼Ö¾ìÅù
³¬¿ô¡§ÃϾå43³¬¡¢Åã²°1³¬¡¢Ãϲ¼3³¬
¹â¤µ¡§223.42m
ÉßÃÏÌÌÀÑ¡§19,562.71Ö
·úÃÛÌÌÀÑ¡§15,538.82Ö
±ä¾²ÌÌÀÑ¡§389,384.02Ö
¹½Â¤¡§Å´¹ü¤¡Ê°ìÉô Å´¹üÅ´¶Ú¥³¥ó¥¯¥ê¡¼¥È¤¡Ë
´ðÁù©Ë¡¡§Ä¾ÀÜ´ðÁà °ìÉô ¹º´ðÁÃ
·úÃۼ硧Ȭ½Å½§ÆóÃúÌÜÃæÃ϶è»Ô³¹ÃϺƳ«È¯Áȹç
»²²ÃÁȹç°÷¡§ÅÔ»ÔºÆÀ¸µ¡¹½¡¢¼¯Åç·úÀß¡¢½»Í§ÉÔÆ°»º¡¢ºåµÞºå¿ÀÉÔÆ°»º¡¢¥Ò¥å¡¼¥ê¥Ã¥¯¡¢»°°æÉÔÆ°»º
Àß·×¼Ô¡§¼¯Åç·úÀß
»Ü¹©¼Ô¡§¼¯Åç·úÀß
¹©´ü¡§2024ǯ8·î8ÆüÃ幩¡Á2029ǯ1·î31Æü½×¹©Í½Äê
³«¶È¡§2028ǯÅÙͽÄê
½Ðŵ
¢§ÅìµþÅÔÃæ±û¶è¡§»Ô³¹ÃϺƳ«È¯»ö¶È
Ȭ½Å½§ÆóÃúÌÜÃæÃ϶è
¢§ËÜÅĵ»¸¦¹©¶È¡§¥Ë¥å¡¼¥¹¥ê¥ê¡¼¥¹¡Ê2025ǯ8·î29Æü¡Ë
Ȭ½Å½§ÃÏ¶è¤Ø¤ÎËܼҰÜž¡¢¤ª¤è¤ÓHondaÀÄ»³¥Ó¥ë·ú¤ÆÂؤ¨·×²è¤ÎÊѹ¹¤Ë¤Ä¤¤¤Æ
¢§»°°æÉÔÆ°»º¡§¥Ë¥å¡¼¥¹¥ê¥ê¡¼¥¹¡Ê2025ǯ8·î29Æü¡Ë
Ȭ½Å½§ÆóÃúÌÜÃæÃ϶èÂè°ì¼ï»Ô³¹ÃϺƳ«È¯»ö¶È¡¡ËÜÅĵ»¸¦¹©¶È¤Ø°ìÉô¸¢Íø¤ò¾ùÅϤʤé¤Ó¤ËHondaÀÄ»³¥Ó¥ë¤Î¶¦Æ±·úÂØ¤¨¤Ë¤Ä¤¤¤Æ
¢§»°°æÉÔÆ°»º¡§¥Ë¥å¡¼¥¹¥ê¥ê¡¼¥¹¡Ê2024ǯ8·î26Æü¡Ë
¡ÖȬ½Å½§ÆóÃúÌÜÃæÃ϶èÂè°ì¼ï»Ô³¹ÃϺƳ«È¯»ö¶È¡×Ã幩
¢§»°°æÉÔÆ°»º¡§¥Ë¥å¡¼¥¹¥ê¥ê¡¼¥¹¡Ê2021ǯ10·î26Æü¡Ë
¡ÖȬ½Å½§ÆóÃúÌÜÃæÃ϶èÂè°ì¼ï»Ô³¹ÃϺƳ«È¯»ö¶È¡×»Ô³¹ÃϺƳ«È¯ÁȹçÀßΩ¤Î¤ªÃΤ餻
¢§µþ²¦ÅÅÅ´¥Ð¥¹¡Ê2022ǯ3·î15Æü¡Ë
9·î17Æü¡ÊÅڡ˳«¶ÈͽÄê¤Î¡Ê²¾¾Î¡ËȬ½Å½§¥Ð¥¹¥¿¡¼¥ß¥Ê¥ë¤Î̾¾Î¤ò¡Ö¥Ð¥¹¥¿¡¼¥ß¥Ê¥ëÅìµþȬ½Å½§¡×¤Ë·èÄê
¢§ÅìµþÅÔ¡§Êóƻȯɽ»ñÎÁ¡Ê2021ǯ10·î18Æü¡Ë
Ȭ½Å½§ÆóÃúÌÜÃæÃ϶è»Ô³¹ÃϺƳ«È¯Áȹç ǧ²Ä
- ¥«¥Æ¥´¥ê
- Ãæ±û¶è







