
¡¡±ºÏ±ØÁ°¤Ç·úÀßÃæ¤Îʬ¾ù¥¿¥ï¥Þ¥ó¡ÖURAWA THE TOWER¡Ê±ºÏÂ¥¶¡¦¥¿¥ï¡¼¡Ë¡×(ÃϾå27³¬¡¢¹â¤µ98.64m)¤Ç¤¹¡£»£±Æ¤·¤¿2025ǯ9·î27Æü¤Ë¤ÏºÇ¾å³¬¤Þ¤ÇÅþ㤷¤Æ¤¤¤Þ¤·¤¿¡£¾¦¶È»ÜÀߤä¡Ö»Ô̱²ñ´Û¤¦¤é¤ï¡Ê°¦¾Î¡§Urawa U Hall¡Ë¡×¤¬Ê»Àߤµ¤ì¤ëÊ£¹çºÆ³«È¯¤Ç¡¢³¹¶èÁ´ÂΤÎ̾¾Î¤Ï¡Ö±ºÏÂ¥«¥ë¥¨¡ÊURAWA CulE¡Ë¡×¤Ë·èÄꤷ¤Æ¤¤¤Þ¤¹¡£¤³¤Îµ»ö¤Ç¤ÏƱ¥¿¥ï¥Þ¥ó¤Î³µÍפä·úÀß¾õ¶·¡¢ÃÏ¿ÞÅù¤òºÜ¤»¤Æ¤¤¤Þ¤¹¡£
±ºÏÂ¥¶¡¦¥¿¥ï¡¼¤Ë¤Ä¤¤¤Æ

´°À®Í½ÁÛ¿Þ[½Ðŵ¡§¸ø¼°HP]
¡¡¡ÖURAWA THE TOWER¡Ê±ºÏÂ¥¶¡¦¥¿¥ï¡¼¡Ë¡×¤ÏJR¡Ö±ºÏ¡ױØÀ¾¸ýÁ°¤ÎÂ絬ÌϺƳ«È¯¤Ç¡¢µ¬ÌϤÏÃϾå27³¬¡¢Åã²°3³¬¡¢Ãϲ¼2³¬¡¢¹â¤µ98.64m¡¢ÉßÃÏÌÌÀÑÌó1Ëü564.45Ö¡¢·úÃÛÌÌÀÑ8,443.44Ö¡¢±ä¾²ÌÌÀÑ9Ëü7886.15֤ȤʤäƤ¤¤Þ¤¹¡£
¡¡»ö¶È¼Ô¤Ï±ºÏ±ØÀ¾¸ýÆî¹âº½Ã϶è»Ô³¹ÃϺƳ«È¯Áȹç¡Ê»²²ÃÁȹç°÷¡¦Çä¼ç¡§Ìî¼ÉÔÆ°»º¡¢»°É©ÃϽê¥ì¥¸¥Ç¥ó¥¹¡¢ÂçÏ¥ϥ¦¥¹¹©¶È¡Ë¡¢À߷׼Ԥϰ°æ·úÃÛÀß·×»ö̳½ê¡¦Á°ÅÄ·úÀß¹©¶È¡¢»Ü¹©¼Ô¤ÏÁ°ÅÄ¡¦ºØÆ£¡¦¥¿¥«¥é¶¦Æ±´ë¶ÈÂΤÇ2026ǯ4·îÃæ½Ü½×¹©¡¢2026ǯ10·î²¼½Ü¤ÎÆþµï³«»ÏͽÄê¤Ç¤¹¡£

´°À®Í½ÁÛ¿Þ[½Ðŵ¡§¤µ¤¤¤¿¤Þ»Ô]
¡¡Æ±¥¿¥ï¥Þ¥ó¤Ë¤Ï¾¦¶È»ÜÀߤä¡Ö»Ô̱²ñ´Û¤¦¤é¤ï¡Ê°¦¾Î¡§Urawa U Hall¡Ë¡×¤¬Ê»Àߤµ¤ì¤Æ¤ª¤ê¡¢³¹¶èÁ´ÂΤÎ̾¾Î¤Ï¡Ö±ºÏÂ¥«¥ë¥¨¡ÊURAWA CulE¡Ë¡×¤Ë·èÄꤷ¤Æ¤¤¤Þ¤¹¡£
¡¡Áí¸Í¿ô¤Ï525¸Í¡ÊÈóʬ¾ù234¸Í´Þ¤à¡Ë¤Î¤¦¤Á14¸Í¤¬ÀèÃå½çÈÎÇäÃæ¤Ç¡¢ÈÎÇä´Ö¼è¤ê¤Ï2LDK¡Á3LDK¡¢ÀìÍÌÌÀѤÏ60.29Ö¡Á76.23Ö¡¢¥Ð¥ë¥³¥Ë¡¼ÌÌÀѤÏ12.44Ö¡Á16.72Ö¡¢ÈÎÇä²Á³Ê¤Ï1²¯980Ëü±ß¡Á2²¯980Ëü±ß¤È¤Ê¤Ã¤Æ¤¤¤Þ¤¹¡£¤Þ¤¿¡¢2025ǯ10·îÃæ½Ü¤«¤é¤ÏÂè3´ü2¼¡¤ÎÈÎÇ䳫»ÏͽÄê¤Ç¡¢Æ±´ü¤â´Þ¤à»Ä¤ê¤Î̤ʬ¾ù¸Í¿ô¤Ï65¸Í¡¢´Ö¼è¤ê¤Ï1LDK¡Á3LDK¡¢ÀìÍÌÌÀѤÏ40.43Ö¡Á76.38Ö¡¢¥Ð¥ë¥³¥Ë¡¼ÌÌÀѤÏ5.73Ö¡Á23.84֤ȤʤäƤ¤¤Þ¤¹¡£

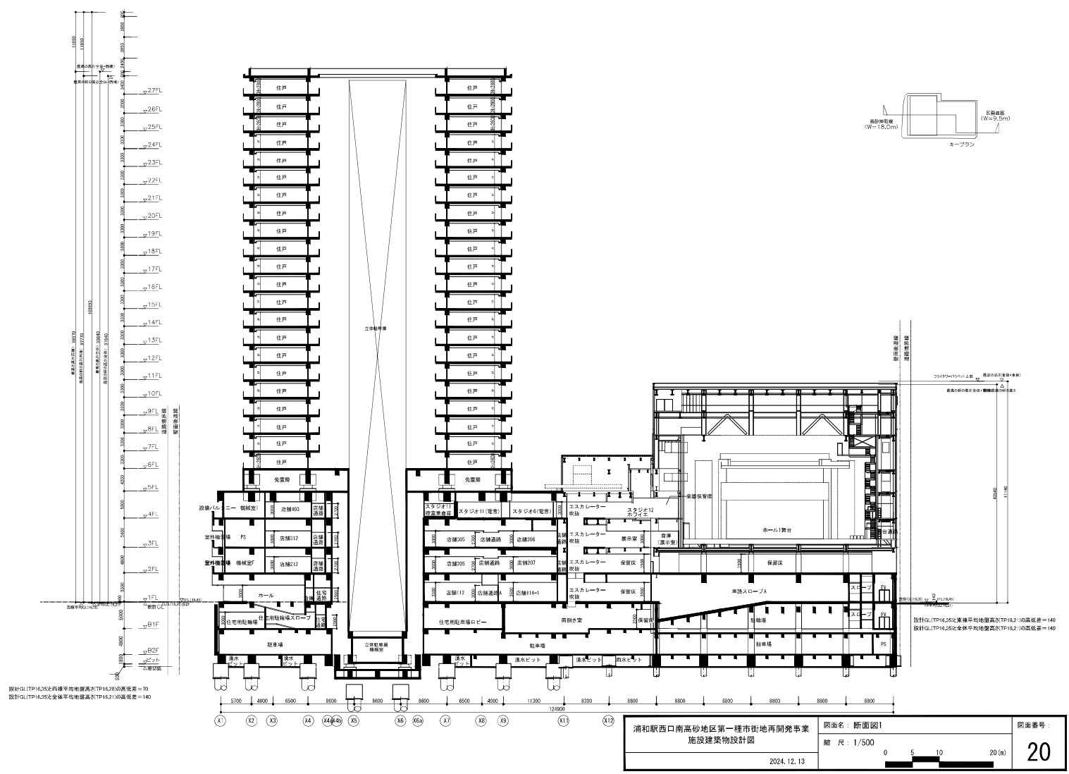
ÃÇÌÌ¿Þ[½Ðŵ¡§¸ø¼°HP]
¡¡Ãϲ¼1³¬¡ÁÃϾå4³¬¤Ï¾¦¶È»ÜÀß¡¢2³¬¤Î°ìÉô¤Ï»Ò°é¤Æ»Ù±ç¥»¥ó¥¿¡¼¡£¤½¤·¤Æ3¡Á4³¬¤Ë¤Ï¡Ö»Ô̱²ñ´Û¤¦¤é¤ï¡Ê°¦¾Î¡§Urawa U Hall¡Ë¡×¤¬°Üž¤·¤Æ¤¤Þ¤¹¡£
¡¡¡Ö±ºÏÂ¥¶¡¦¥¿¥ï¡¼¡×¤È¤·¤Æ¤Ï6¡Á27³¬¤¬½»Âð¥Õ¥í¥¢¤Ç¡¢¶¦ÍÑ»ÜÀߤȤ·¤Æ6³¬¤Ë¥¥Ã¥º¥ë¡¼¥à¡¢¥¸¥à¡¢¥é¥ó¥É¥ê¡¼¡¢¥²¥¹¥È¥ë¡¼¥à¡¢17³¬¤Ë¥Ö¥Ã¥¯¥é¥¦¥ó¥¸¡¢¥³¥ï¡¼¥¥ó¥°¥¹¥Ú¡¼¥¹¡¢¥Ñ¡¼¥Æ¥£¥ë¡¼¥à¡¢¥²¥¹¥È¥ë¡¼¥à¤¬ÇÛÃÖ¤µ¤ì¤Þ¤¹¡£

ÃÇÌÌ¿Þ[½Ðŵ¡§¤µ¤¤¤¿¤Þ»Ô]
¡¡¾ÜºÙ¤ÊÃÇÌ̿ޤǤ¹¡£¡ÖUrawa U Hall¡Ê¥¦¥é¥ï ¥æ¡¼¥Û¡¼¥ë¡Ë¡×¤ÏÂç¥Û¡¼¥ë¡ÊÌó650Àʡˡ¢Ã桦¾®¥Û¡¼¥ë¡ÊÌó100Àʤ«¤é50Àʡˤ˲䨡¢¥¹¥¿¥¸¥ª ¡¢ Ÿ¼¨¼¼¡¢½¸²ñ¼¼¤Ê¤É¤âÈ÷¤¨¤¿Ê¸²½·Ý½ÑÁϤµòÅÀ¤È¤Ê¤ë»ÜÀߤˤʤê¤Þ¤¹¡£Æ±Ì¾¾Î¤Ï¡Ö±ºÏÂ¡×¤ÎÆ¬Ê¸»ú¤Ç¤¢¤ë¡ÖU¡×¡¢±Ñ¸ì¤Î¡Ö¤¢¤Ê¤¿¡ÊYou¡Ë¡×¤ò°ÕÌ£¤¹¤ë¡ÖU¡×¡¢¤µ¤é¤Ë¡ÖÍ·¡×¤Î²»ÆÉ¤ß¤â³Ý¤±¹ç¤ï¤»¤¿¡ÖU¡×¤Ç¡¢¡ÖU Hall¡×¡ÖYou Hall¡×¡Ö¤¢¤Ê¤¿¤Î¥Û¡¼¥ë¡×¤È¤¤¤¦»×¤¤¤¬¹þ¤á¤é¤ì¤Æ¤¤¤Þ¤¹¡£

¥¨¥ó¥È¥é¥ó¥¹³°´Ñ´°À®Í½ÁÛCG[½Ðŵ¡§¸ø¼°HP]
¡¡¥¨¥ó¥È¥é¥ó¥¹¤Î´°À®Í½ÁۿޤǤ¹¡£

¥¨¥ó¥È¥é¥ó¥¹¥Û¡¼¥ë´°À®Í½ÁÛCG[½Ðŵ¡§¸ø¼°HP]
¡¡¥¨¥ó¥È¥é¥ó¥¹¥Û¡¼¥ë¤Î´°À®Í½ÁۿޤǤ¹¡£Æ±¥¿¥ï¥Þ¥ó¤Î¥³¥ó¥»¥×¥È¤Ï¡ÖÁêÀ¸¡Ê¤ª¸ß¤¤¤Ë¡¢¤È¤â¤Ë¡¢´Ø·¸¤·¹ç¤¤¤Ê¤¬¤éÀ¸¤¤ë¡Ë¡×¤È¤Ê¤Ã¤Æ¤¤¤Þ¤¹¡£

¥¸¥à´°À®Í½ÁÛCG[½Ðŵ¡§¸ø¼°HP]
¡¡6³¬¤ËÇÛÃÖ¤µ¤ì¤ë¥¸¥à¤Î´°À®Í½ÁۿޤǤ¹¡£Â¾¤Ë¤â6³¬¤Ë¤Ï¶¦ÍÑ»ÜÀߤȤ·¤Æ¥¥Ã¥º¥ë¡¼¥à¡¢¥é¥ó¥É¥ê¡¼¡¢¥²¥¹¥È¥ë¡¼¥à¤¬ÍѰդµ¤ì¤Þ¤¹¡£

¥Ö¥Ã¥¯¥é¥¦¥ó¥¸´°À®Í½ÁÛCG[½Ðŵ¡§¸ø¼°HP]
¡¡17³¬¤ËÇÛÃÖ¤µ¤ì¤ë¥Ö¥Ã¥¯¥é¥¦¥ó¥¸¤Î´°À®Í½ÁۿޤǤ¹¡£

¥³¥ï¡¼¥¥ó¥°¥¹¥Ú¡¼¥¹´°À®Í½ÁÛCG[½Ðŵ¡§¸ø¼°HP]
¡¡17³¬¤ËÇÛÃÖ¤µ¤ì¤ë¥³¥ï¡¼¥¥ó¥°¥¹¥Ú¡¼¥¹¤Î´°À®Í½ÁۿޤǤ¹¡£

¥Ñ¡¼¥Æ¥£¡¼¥ë¡¼¥à´°À®Í½ÁÛCG[½Ðŵ¡§¸ø¼°HP]
¡¡17³¬¤ËÇÛÃÖ¤µ¤ì¤ë¥Ñ¡¼¥Æ¥£¡¼¥ë¡¼¥à¤Î´°À®Í½ÁۿޤǤ¹¡£

¥¹¥«¥¤¥²¥¹¥È´°À®Í½ÁÛCG[½Ðŵ¡§¸ø¼°HP]
¡¡17³¬¤ËÇÛÃÖ¤µ¤ì¤ë¥¹¥«¥¤¥²¥¹¥È¤Î´°À®Í½ÁۿޤǤ¹¡£
´Ö¼è¤ê¿Þ

EP¥¿¥¤¥×[½Ðŵ¡§¸ø¼°HP]
¡¡EP¥¿¥¤¥×¤Î´Ö¼è¤ê¿Þ¤Ç¤¹¡£´Ö¼è¤ê¤Ï2LDK+N¡¢ÀìÍÌÌÀѤÏ60.29Ö¡¢¥Ð¥ë¥³¥Ë¡¼ÌÌÀѤÏ12.44֤ǡ¢8³¬¤ÎÉô²°¤¬1²¯980Ëü±ß¤ÇÀèÃå½çÈÎÇäÃæ¤È¤Ê¤Ã¤Æ¤¤¤Þ¤¹¡£

WB¥¿¥¤¥×[½Ðŵ¡§¸ø¼°HP]
¡¡WB¥¿¥¤¥×¤Î´Ö¼è¤ê¿Þ¤Ç¤¹¡£´Ö¼è¤ê¤Ï3LDK+2WIC+SIC¡¢ÀìÍÌÌÀѤÏ70.96Ö¡¢¥Ð¥ë¥³¥Ë¡¼ÌÌÀѤÏ13.96֤ǡ¢6³¬¤ÎÉô²°¤¬1²¯3080Ëü±ß¡¢13³¬¤ÎÉô²°¤¬1²¯4980Ëü±ß¤ÇÀèÃå½çÈÎÇäÃæ¤È¤Ê¤Ã¤Æ¤¤¤Þ¤¹¡£

J¥¿¥¤¥×[½Ðŵ¡§¸ø¼°HP]
¡¡J¥¿¥¤¥×¤Î´Ö¼è¤ê¿Þ¤Ç¤¹¡£´Ö¼è¤ê¤Ï3LDK+N+WIC+SIC¡¢ÀìÍÌÌÀѤÏ76.15Ö¡¢¥Ð¥ë¥³¥Ë¡¼ÌÌÀѤÏ16.34֤ǡ¢18³¬¤ÎÉô²°¤¬2²¯980Ëü±ß¤ÇÀèÃå½çÈÎÇäÃæ¤È¤Ê¤Ã¤Æ¤¤¤Þ¤¹¡£
°ÌÃÖ¿Þ

°ÌÃÖ¿Þ[½Ðŵ¡§¸ø¼°HP]
¡¡·úÀßÃϤÏJR¡Ö±ºÏ¡ױؤÎÀ¾¸ýÁ°¤Ç¡ÖURAWA THE TOWER¡Ê±ºÏÂ¥¶¡¦¥¿¥ï¡¼¡Ë¡×¤È¤·¤Æ¤Ï±Ø¤«¤éÅÌÊâ3ʬ¤Îµ÷Î¥¤È¤Ê¤Ã¤Æ¤¤¤Þ¤¹¡£
·úÀß¾õ¶·

¡¡2025ǯ9·î27Æü¤Ë±ºÏ±ØÁ°¤«¤é»£±Æ¤·¤¿¡ÖURAWA THE TOWER¡Ê±ºÏÂ¥¶¡¦¥¿¥ï¡¼¡Ë¡×(ÃϾå27³¬¡¢¹â¤µ98.64m)¤Ç¤¹¡£ÄãÁØÉô¤Ï¾¦¶È»ÜÀߤȤʤꡢ±ØÂ¦¤Ë¤Ï¡Ö»Ô̱²ñ´Û¤¦¤é¤ï¡Ê°¦¾Î¡§Urawa U Hall¡Ë¡×¤âÆþ¤ëÊ£¹ç»ÜÀߤǡ¢³¹¶èÁ´ÂΤÎ̾¾Î¤Ï¡Ö±ºÏÂ¥«¥ë¥¨¡ÊURAWA CulE¡Ë¡×¤È¤Ê¤Ã¤Æ¤¤¤Þ¤¹¡£

¡¡ËÌÀ¾Â¦¤«¤é»£±Æ¡£±¦Â¦¤Ë¸«ÀÚ¤ì¤Æ¤¤¤ë¥¿¥ï¡¼¥Þ¥ó¥·¥ç¥ó¤Ï¡Ö¥é¥¤¥ª¥ó¥º¥Þ¥ó¥·¥ç¥ó ¥³¥¹¥¿¡¦¥¿¥ï¡¼±ºÏ¡×(ÃϾå31³¬¡¢¹â¤µ107.5m)¤Ç¤¹¡£

¡¡ÆîÀ¾Â¦¤«¤é»£±Æ¡£ºÇ¾å³¬¤Þ¤ÇÅþ㤷¤ÆÅã²°¤Î·úÀߤâ¿Ê¤ó¤Ç¤¤¤ë¤è¤¦¤Ç¤·¤¿¡£

¡¡ÆîÅ즤«¤é»£±Æ¡£ÉßÃÏÆî¦¤Îƻϩ¤Ï³ÈÉýͽÄê¤È¤Ê¤Ã¤Æ¤¤¤Þ¤¹¡£

¡¡¤½¤Îƻϩ¤Ë²Í¤«¤ëÊâÆ»¶¶¡Ö¥æ¡¼¥Ç¥£¥±¡¼¹âº½Êâ¹Ô¼Ô¥Ç¥Ã¥¡×¤«¤é»£±Æ¤·¤¿¡Ö±ºÏÂ¥«¥ë¥¨¡ÊURAWA CulE¡Ë¡×Á´ÂΤǤ¹¡£¡Ö»Ô̱²ñ´Û¤¦¤é¤ï¡Ê°¦¾Î¡§Urawa U Hall¡Ë¡×Éôʬ¤Î³°´Ñ¤¬¸«¤¨¤ë¤è¤¦¤Ë¤Ê¤Ã¤Æ¤¤¤Þ¤·¤¿¡£
ÃÏ¿Þ
ʪ·ï³µÍ×

¡¡»ö¶È·×²è¤Î¤ªÃΤ餻¤Ç¤¹¡£
¢£Êª·ï³µÍ×¢£
̾¾Î¡§URAWA THE TOWER¡Ê±ºÏÂ¥¶¡¦¥¿¥ï¡¼¡Ë
»ö¶È̾¡§±ºÏ±ØÀ¾¸ýÆî¹âº½Ã϶èÂè°ì¼ï»Ô³¹ÃϺƳ«È¯»ö¶È¤Ëȼ¤¦»ÜÀß·úÃÛʪ¿·ÃÛ¹©»ö
½êºßÃÏ¡§ºë¶Ì¸©¤µ¤¤¤¿¤Þ»Ô±ºÏ¶è¹âº½°ìÃúÌÜ1000ÈÖ
¸òÄÌ¡§JR¾ÅÆî¿·½É¥é¥¤¥ó ¡Ö±ºÏÂ¡×±Ø ÅÌÊâ3ʬ
¡¡¡¡¡¡JRµþÉÍÅìËÌÀþ ¡Ö±ºÏÂ¡×±Ø ÅÌÊâ3ʬ
¡¡¡¡¡¡JR¹âºêÀþ ¡Ö±ºÏÂ¡×±Ø ÅÌÊâ3ʬ
¡¡¡¡¡¡JR±§ÅÔµÜÀþ ¡Ö±ºÏÂ¡×±Ø ÅÌÊâ3ʬ
ÍÑÅÓ¡§¶¦Æ±½»Âð¡¦Å¹ÊÞ¡¦¸ø¶¦¸ø±×»ÜÀß¡¦Ãó¼Ö¾ì
Áí¸Í¿ô¡§525¸Í¡ÊÈóʬ¾ù234¸Í´Þ¤à¡Ë
³¬¿ô¡§ÃϾå27³¬¡¢Åã²°3³¬¡¢Ãϲ¼2³¬
¹â¤µ¡§98.64m
¹½Â¤¡§RC¤¡¢Å´¹ü¤ °ìÉôSRC¤
ÉßÃÏÌÌÀÑ¡§10.564.45Ö
·úÃÛÌÌÀÑ¡§8,443.44Ö
±ä¾²ÌÌÀÑ¡§97,886.15Ö
·úÃۼ硧±ºÏ±ØÀ¾¸ýÆî¹âº½Ã϶è»Ô³¹ÃϺƳ«È¯Áȹç
»²²ÃÁȹç°÷¡¦Çä¼ç¡§Ìî¼ÉÔÆ°»º¡¢»°É©ÃϽê¥ì¥¸¥Ç¥ó¥¹¡¢ÂçÏ¥ϥ¦¥¹¹©¶È
Àß·×¼Ô¡§°Â°æ·úÃÛÀß·×»ö̳½ê¡¢Á°ÅÄ·úÀß¹©¶È
»Ü¹©¼Ô¡§Á°ÅÄ¡¦ºØÆ£¡¦¥¿¥«¥é¶¦Æ±´ë¶ÈÂÎ
¹©´ü¡§2023ǯ1·î½é½ÜÃ幩¡Á2026ǯ4·îÃæ½Ü½×¹©Í½Äê
Æþµï¡§2026ǯ10·î²¼½ÜͽÄê
½Ðŵ
¢§¸ø¼°HP¡§URAWA THE TOWER
https://www.proud-web.jp/mansion/b113230/
¢§¤µ¤¤¤¿¤Þ»Ô¡§±ºÏ¶èÆâ¤Î¤Þ¤Á¤Å¤¯¤ê
±ºÏ±ØÀ¾¸ýÆî¹âº½Ã϶èÂè°ì¼ï»Ô³¹ÃϺƳ«È¯»ö¶È
¢§¤µ¤¤¤¿¤Þ»Ô¡Ê2025ǯ2·î20Æü¡Ë
ÎáÏÂ9ǯ4·î¥ª¡¼¥×¥óͽÄꡪ¡Ö»Ô̱²ñ´Û¤¦¤é¤ï¡×¤Î°¦¾Î¤¬·èÄꤷ¤Þ¤·¤¿¡¡¡Á¡ÖUrawa U Hall ¡Ê¥¦¥é¥ï ¥æ¡¼¥Û¡¼¥ë ¡Ë¡×¡Á
- ¥«¥Æ¥´¥ê
- ¤µ¤¤¤¿¤Þ»Ô







