
¡¡É½»²Æ»±ØÅÌÊâ·÷¡¢ÆîÀÄ»³¥¢¥É¥ì¥¹¤Îʬ¾ù¥¿¥ï¥Þ¥ó¡Ö¥Ñ¡¼¥¯¥³¡¼¥ÈÀÄ»³¹â¼ùÄ® ¥¶ ¥¿¥ï¡¼¡×(ÃϾå21³¬¡¢¹â¤µ74.79m)¤Î·úÀßÃϤǤ¹¡£2025ǯ9·î21Æü¤Ë»£±Æ¤·¤Þ¤·¤¿¡£·úÀßÃϤϽÂë¤ÈÏ»ËÜÌÚ¤ÎÃæ´ÖÃÏÅÀ¤¢¤¿¤ê¤Î¹üÆ¡Ä̤ê¤ËÌ̤·¤¿ÆîÀÄ»³¥¢¥É¥ì¥¹¤È¤Ê¤Ã¤Æ¤¤¤Þ¤¹¡£¤³¤Îµ»ö¤Ç¤ÏƱ¥¿¥ï¥Þ¥ó¤Î³µÍפä·úÀß¾õ¶·¡¢ÃÏ¿ÞÅù¤òºÜ¤»¤Æ¤¤¤Þ¤¹¡£
¥Ñ¡¼¥¯¥³¡¼¥ÈÀÄ»³¹â¼ùÄ® ¥¶ ¥¿¥ï¡¼¤Ë¤Ä¤¤¤Æ

³°´Ñ´°À®Í½ÁÛCG[½Ðŵ¡§¸ø¼°HP]
¡¡¡Ö¥Ñ¡¼¥¯¥³¡¼¥ÈÀÄ»³¹â¼ùÄ® ¥¶ ¥¿¥ï¡¼¡×¤ÏÆîÀÄ»³¤Î¹üÆ¡Ä̤ê¤ËÌ̤·¤¿¥¿¥ï¡¼¥Þ¥ó¥·¥ç¥ó¤Ç¡¢µ¬ÌϤÏÃϾå21³¬¡¢Ãϲ¼2³¬¡¢¹â¤µ74.79m¡¢ÉßÃÏÌÌÀÑ1,312.65Ö¡¢·úÃÛÌÌÀÑ547.72Ö¡¢±ä¾²ÌÌÀÑ9,699.97Ö¡¢·úÃۼ硦Çä¼ç¤Ï»°°æÉÔÆ°»º¥ì¥¸¥Ç¥ó¥·¥ã¥ë¡¢À߷׼ԤȻܹ©¼Ô¤ÏÁ°ÅÄ·úÀß¹©¶È¤Ç2026ǯ9·î²¼½Ü½×¹©¡¢2026ǯ10·î¾å½Ü¤ÎÆþµï³«»ÏͽÄê¤È¤Ê¤Ã¤Æ¤¤¤Þ¤¹¡£Æ±¥¿¥ï¥Þ¥ó¤Ë¤Ï2098ǯ4·î11Æü¤Þ¤ÇÌó70ǯ¤ÎÄê´ü¼ÚÃϸ¢¤¬ÉÕ¤¤¤Æ¤¤¤Þ¤¹¡£

³°´Ñ´°À®Í½ÁÛCG[½Ðŵ¡§¸ø¼°HP]
¡¡Áí¸Í¿ô¤Ï85¸Í¤Ç2025ǯ10·îÃæ½Ü¤«¤é¤ÏÂèÆó´ü»Í¼¡¤ÎÈÎÇ䳫»ÏͽÄê¤È¤Ê¤Ã¤Æ¤¤¤Þ¤¹¡£ËÜÈÎÇä´ü¤â´Þ¤à»Ä¤ê¤ÎÁíÈÎÇä¸Í¿ô¤Ï12¸Í¡¢´Ö¼è¤ê¤Ï2LDK¡¢ÀìÍÌÌÀѤÏ61.70Ö¡Á70.43Ö¡¢¥Ð¥ë¥³¥Ë¡¼ÌÌÀѤÏ5.18Ö¡Á13.32֤ȤʤäƤ¤¤Þ¤¹¡£

ÉßÃÏÇÛÃÖ´°À®Í½ÁÛ¥¤¥é¥¹¥È[½Ðŵ¡§¸ø¼°HP]
¡¡Æ±¥¿¥ï¥Þ¥ó¤Ï3Êý¸þ¤¬ÀÜÆ»¤¹¤ëÉßÃϤȤʤäƤª¤ê¡¢Ë̦¡Ê¿Þ¤Î±¦Â¦¡Ë¤Î¹üÆ¡Ä̤꤬´´Àþƻϩ¤È¤Ê¤Ã¤Æ¤¤¤Þ¤¹¡£Æî¦¤ÈÅ즤Ϻ٤¤Ï©ÃϤȤʤäƤª¤ê¡¢¤½¤ÎÏ©Ãϱ褤¤ËÃó¼Ö¾ì¤Î½ÐÆþ¸ý¤¬Àߤ±¤é¤ì¤Þ¤¹¡£

¥³¡¼¥Á¥¨¥ó¥È¥é¥ó¥¹´°À®Í½ÁÛCG[½Ðŵ¡§¸ø¼°HP]
¡¡¾å¤Î¿Þ¤ÎAÃÏÅÀ¤ËÇÛÃÖ¤µ¤ì¤ë¥³¡¼¥Á¥¨¥ó¥È¥é¥ó¥¹¤Î´°À®Í½ÁۿޤǤ¹¡£ÉÁ¤«¤ì¤Æ¤¤¤ë¼Ö¤Ï¹âµé¼Ö¤È¤·¤ÆÃΤé¤ì¤ë¥¢¥¹¥È¥ó¥Þ¡¼¥Á¥ó¤È¥Þ¥»¥é¥Ã¥Æ¥£¤Ç¤¹¡£

¥¨¥ó¥È¥é¥ó¥¹´°À®Í½ÁÛCG[½Ðŵ¡§¸ø¼°HP]
¡¡¥¨¥ó¥È¥é¥ó¥¹¤ÏË̦¤Î¹üÆ¡Ä̤ê¤ËÌ̤·¤¿¾ì½ê¤ËÇÛÃÖ¤µ¤ì¤Þ¤¹¡£

¥¨¥ó¥È¥é¥ó¥¹¥é¥¦¥ó¥¸´°À®Í½ÁÛCG[½Ðŵ¡§¸ø¼°HP]
¡¡¥¨¥ó¥È¥é¥ó¥¹¥é¥¦¥ó¥¸¤Î´°À®Í½ÁۿޤǤ¹¡£
´Ö¼è¤ê¿Þ

61A¥¿¥¤¥×[½Ðŵ¡§¸ø¼°HP]
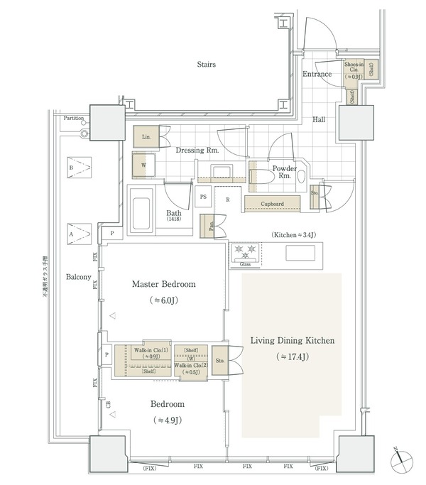
¡¡61A¥¿¥¤¥×¤Î´Ö¼è¤ê¿Þ¤Ç¤¹¡£´Ö¼è¤ê¤Ï2LDK+2WIC+SIC¡¢ÀìÍÌÌÀѤÏ61.70Ö¡¢¥Ð¥ë¥³¥Ë¡¼ÌÌÀѤÏ9.28֤ȤʤäƤ¤¤Þ¤¹¡£

62A¥¿¥¤¥×[½Ðŵ¡§¸ø¼°HP]
¡¡62A¥¿¥¤¥×¤Î´Ö¼è¤ê¿Þ¤Ç¤¹¡£´Ö¼è¤ê¤Ï2LDK+WIC¡¢ÀìÍÌÌÀѤÏ62.02Ö¡¢¥Ð¥ë¥³¥Ë¡¼ÌÌÀѤÏ5.18Ö¡¢¥µ¡¼¥Ó¥¹¥¹¥Ú¡¼¥¹ÌÌÀѤÏ1.42֤ȤʤäƤ¤¤Þ¤¹¡£

70B¥¿¥¤¥×[½Ðŵ¡§¸ø¼°HP]
¡¡70B¥¿¥¤¥×¤Î´Ö¼è¤ê¿Þ¤Ç¤¹¡£´Ö¼è¤ê¤Ï2LDK+2WIC+SIC¡¢ÀìÍÌÌÀѤÏ70.43Ö¡¢¥Ð¥ë¥³¥Ë¡¼ÌÌÀѤÏ13.32֤ȤʤäƤ¤¤Þ¤¹¡£

143A¥¿¥¤¥×[½Ðŵ¡§¸ø¼°HP]
¡¡143A¥¿¥¤¥×¤Î´Ö¼è¤ê¿Þ¤Ç¤¹¡£´Ö¼è¤ê¤Ï3LDK+3WIC+SIC+2S¡¢ÀìÍÌÌÀѤÏ143.42Ö¡¢¥Ð¥ë¥³¥Ë¡¼ÌÌÀѤÏ23.60֤ȤʤäƤ¤¤Þ¤¹¡£

143A¥¿¥¤¥×Living Dining Kitchen´°À®Í½ÁÛCG[½Ðŵ¡§¸ø¼°HP]
¡¡143A¥¿¥¤¥×¤Î¥ê¥Ó¥ó¥°¤Î´°À®Í½ÁۿޤǤ¹¡£¹âÁس¬¤«¤é¤ÏÅìµþÅÔ¿´¤òį¤á¤é¤ì¤Þ¤¹¡£
°ÌÃÖ¿Þ

°ÌÃÖ¿Þ[½Ðŵ¡§¸ø¼°HP]
¡¡·úÀßÃÏ¤ÏÆîÀÄ»³¤Î¹üÆ¡Ä̤ê¤ËÌ̤·¤¿¾ì½ê¤Ç¡¢É½»²Æ»±Ø¤«¤éÆîÅ즤ØÅÌÊâ8ʬ¤Îµ÷Î¥¤È¤Ê¤Ã¤Æ¤¤¤Þ¤¹¡£¤Þ¤¿¡¢·úÀßÃϤξ¯¤·Æî¦¤Ë¤ÏÏ»ËÜÌÚÄ̤꤬¤¢¤ê¡¢À¾Â¦¤Ø¹Ô¤¯¤È½Âë±Ø¡¢Å즤عԤ¯Ï»ËÜÌڱؤ˷Ҥ¬¤ê¤Þ¤¹¡£
·úÀß¾õ¶·

¡¡2025ǯ9·î21Æü¤Ë¹üÆ¡Ä̤ê±è¤¤¤«¤é»£±Æ¤·¤¿¡Ö¥Ñ¡¼¥¯¥³¡¼¥ÈÀÄ»³¹â¼ùÄ® ¥¶ ¥¿¥ï¡¼¡×(ÃϾå21³¬¡¢¹â¤µ74.79m)¤Î·úÀßÃϤǤ¹¡£

¡¡Á°ÅÄ·úÀß¹©¶È¤Î¸½¾ì¤Ï³°´Ñ¤¬¸«¤¨¤Ê¤¤¤³¤È¤¬Â¿¤¯¥ï¥¯¥ï¥¯´¶¤¬¥¼¥í¤Ç¤¹¡£

¡¡Æî¦¤ÎÏ©ÃϦ¤«¤é»£±Æ¡£

¡¡³°´Ñ¤¬¸«¤¨¤Ê¤¤¤Î¤Ï»Äǰ¤Ç¤¹¤¬¡¢¤³¤¦¤·¤ÆÁ´ÂΤòʤ¤Ã¤Æ¤¤¤ëÊý¤¬°ÂÁ´Ì̤äÁû²»Ì̤ǤϤ¤Ã¤ÈÎɤ¤¤Î¤Ç¤·¤ç¤¦¤Í¡£

¡¡9·î15Æü¤Ë¡ÖÏ»ËÜÌڥҥ륺¡×¤ÎŸ˾¼¼¤«¤é»£±Æ¡£¤è¤¦¤ä¤¯¼þ°Ï¤Î¥Þ¥ó¥·¥ç¥ó¤Î¹â¤µ¤òͤ¨¤Æ¤È¤³¤í¤Ç¤·¤¿¡£

¡¡½Âë±Ø¼þÊÕ¤Î͹âÁإӥ뷲¤âÆþ¤ì¤Æ»£±Æ¡£¡Ö¥Ñ¡¼¥¯¥³¡¼¥ÈÀÄ»³¹â¼ùÄ® ¥¶ ¥¿¥ï¡¼¡×¤Ï¼Ì¿¿±¦²¼¤Ë°ÌÃÖ¤·¤Æ¤¤¤Þ¤¹¡£Ë̦¤ÏÅìµþÅÔ¿´¡¢Æî¦¤Ï½Âë¤Î͹âÁإӥ뷲¤òį¤á¤é¤ì¤ëΩÃϤȤʤäƤ¤¤Þ¤¹¡£¤¿¤À¡¢Ë̦¤ÏÆüËÜ¥¨¥¹¥³¥ó¤Ë¤è¤ë¥¿¥ï¡¼¥Þ¥ó¥·¥ç¥ó¡Ö(²¾¾Î)¹Á¶èÀ¾ËãÉÛÆóÃúÌܷײè¡×(ÃϾå30³¬¡¢¹â¤µ122.49m)¤Ë¤è¤Ã¤Æ¡¢¤Á¤ç¤¦¤ÉÅìµþ¥¿¥ï¡¼¤¬±£¤ì¤Æ¤·¤Þ¤¦¤«¤â¤·¤ì¤Þ¤»¤ó¡£
ÃÏ¿Þ
ʪ·ï³µÍ×

¡¡·úÃ۷ײè¤Î¤ªÃΤ餻¤Ç¤¹¡£
¢£Êª·ï³µÍ×¢£
̾¾Î¡§¥Ñ¡¼¥¯¥³¡¼¥ÈÀÄ»³¹â¼ùÄ® ¥¶ ¥¿¥ï¡¼
»ö¶È̾¡§(²¾¾Î)¹Á¶èÆîÀÄ»³Ï»ÃúÌܷײè
½êºßÃÏ¡§ÅìµþÅÔ¹Á¶èÆîÀÄ»³£¶ÃúÌÜ255ÈÖ¡¢256ÈÖ1¡ÊÃÏÈÖ¡Ë
¸òÄÌ¡§Åìµþ¥á¥È¥íÀéÂåÅÄÀþ¡¦¶äºÂÀþ¡¦È¾Â¢ÌçÀþ¡Öɽ»²Æ»¡×±Ø ÅÌÊâ8ʬ
ÍÑÅÓ¡§¶¦Æ±½»Â𡦻ö̳½ê
Áí¸Í¿ô¡§85¸Í¡Ê°ìÈÌÈÎÇäÂоݽ»¸Í53¸Í¡Ë ¤½¤Î¾»ö̳½ê1¶è²è
³¬¿ô¡§ÃϾå21³¬¡¢Ãϲ¼2³¬
¹â¤µ¡§74.79m
¹½Â¤¡§Å´¶Ú¥³¥ó¥¯¥ê¡¼¥È¤
´ðÁù©Ë¡¡§¹º´ðÁÃ
ÉßÃÏÌÌÀÑ¡§1,312.65Ö
·úÃÛÌÌÀÑ¡§547.72Ö
±ä¾²ÌÌÀÑ¡§9,699.97Ö
·úÃۼ硧»°°æÉÔÆ°»º¥ì¥¸¥Ç¥ó¥·¥ã¥ë
Çä¼ç¡§»°°æÉÔÆ°»º¥ì¥¸¥Ç¥ó¥·¥ã¥ë
Àß·×¼Ô¡§Á°ÅÄ·úÀß¹©¶È
»Ü¹©¼Ô¡§Á°ÅÄ·úÀß¹©¶È
¹©´ü¡§2024ǯ1·î4ÆüÃ幩¡Á2026ǯ9·î²¼½Ü½×¹©Í½Äê
Æþµï¡§2026ǯ10·î¾å½ÜͽÄê
½Ðŵ
¢§¸ø¼°HP¡§¥Ñ¡¼¥¯¥³¡¼¥ÈÀÄ»³¹â¼ùÄ® ¥¶ ¥¿¥ï¡¼
https://www.31sumai.com/mfr/X2208/
- ¥«¥Æ¥´¥ê
- ¹Á¶è







