
¥¯¥í¥¹¶âÄ® ËÌÀ¾¸òº¹ÅÀ[½Ðŵ¡§»°É©ÃϽê]
¡¡³ë¾þ¶è¤Î¶âÄ®±Ø¶á¤¯¤ÎÂ絬ÌϺƳ«È¯¡ÖÅì¶âÄ®°ìÃúÌÜÀ¾Ã϶èÂè°ì¼ï»Ô³¹ÃϺƳ«È¯»ö¶È¡Ê³¹¶è̾¡§¥¯¥í¥¹¶âÄ®¡Ë¡×¤Î´°À®Í½ÁۿޤǤ¹¡£¼êÁ°¤ÎÄãÁؤηúʪ¤¬9·î3Æü¤Ë¥°¥é¥ó¥É¥ª¡¼¥×¥ó¤·¤¿¡ÖMARK IS ³ë¾þ¤«¤Ê¤Þ¤Á¡×¤Ç¡¢¤½¤ÎÇØ¸å¤¬¶´ü¹©»ö¤Ç·úÀߤµ¤ì¤ëÃϾå40³¬¡¢¹â¤µ150m¤Îʬ¾ù¤Î¥¿¥ï¡¼¥Þ¥ó¥·¥ç¥ó¤Ç¤¹¡£¸½ÃϤǤ϶´ü¹©»öÉôʬ¤Î´û¸·úʪ¤Î²òÂι©»ö¤¬»Ï¤Þ¤Ã¤Æ¤¤¤Þ¤¹¡£¤³¤Îµ»ö¤Ç¤ÏƱºÆ³«È¯¤Î³µÍפä´û¸·úʪ²òÂξõ¶·(2025ǯ9·î23Æü»þÅÀ)¡¢ÃÏ¿ÞÅù¤òºÜ¤»¤Æ¤¤¤Þ¤¹¡£
¥¯¥í¥¹¶âÄ®¤Ë¤Ä¤¤¤Æ

¥¯¥í¥¹¶âÄ® ¶´ü´°À®Ä»âץѡ¼¥¹[½Ðŵ¡§»°É©ÃϽê]
¡¡¡ÖÅì¶âÄ®°ìÃúÌÜÀ¾Ã϶èÂè°ì¼ï»Ô³¹ÃϺƳ«È¯»ö¶È¡Ê³¹¶è̾¡§¥¯¥í¥¹¶âÄ®¡Ë¡×¤ÏJR¶âÄ®±Ø¶á¤¯¤ÎÂ絬ÌϺƳ«È¯¤Ç¡¢¥·¥ç¥Ã¥Ô¥ó¥°¥â¡¼¥ë¤Î¡ÖMARK IS ³ë¾þ¤«¤Ê¤Þ¤Á¡×¤È¡Ö¶âÄ®¼«Æ°¼Ö¶µ½¬½ê¡×¡¢¤½¤·¤ÆÊ¬¾ù¤Î¥¿¥ï¡¼¥Þ¥ó¥·¥ç¥ó¤Ç¹½À®¤µ¤ì¤Þ¤¹¡£
¡¡Æ±ºÆ³«È¯¤Ïµ´ü¤È¶´ü¤Ëʬ¤«¤ì¤Æ¤ª¤ê¡¢µ´ü¹©»ö¤È¤·¤Æ¡ÖMARK IS ³ë¾þ¤«¤Ê¤Þ¤Á¡×¤È¡Ö¶âÄ®¼«Æ°¼Ö¶µ½¬½ê¡×¤¬·úÀߤµ¤ì¡¢2025ǯ8·î¤Ë¤Ï¼«Æ°¼Ö¶µ½¬½ê¤¬¥ª¡¼¥×¥ó¤·¡¢9·î3Æü¤Ë¤Ï¡ÖMARK IS ³ë¾þ¤«¤Ê¤Þ¤Á¡×¤¬¥°¥é¥ó¥É¥ª¡¼¥×¥ó¤·¤Æ¤¤¤Þ¤¹¡£

¥¯¥í¥¹¶âÄ® ¶´ü´°À®Í½ÁÛCG[½Ðŵ¡§»°É©ÃϽê]
¡¡¶´ü¤Ç·úÀߤµ¤ì¤ë¤Î¤Ï¡ÖMARK IS ³ë¾þ¤«¤Ê¤Þ¤Á¡×¤ÎÁý¾²Éôʬ¡¢¸ø±×»ÜÀß¡¢¤½¤·¤Æ¥¿¥ï¡¼¥Þ¥ó¥·¥ç¥ó¤Ç¡¢µ¬ÌϤÏÃϾå40³¬¡¢Ãϲ¼1³¬¡¢¹â¤µÌó150m¡¢±ä¾²ÌÌÀÑÌó11Ëü500֤ȤʤäƤ¤¤Þ¤¹¡£¹©´ü¤Ï2026ǯ10·îÃ幩¡Á2030ǯ11·î½×¹©Í½Äê¤Ç·×²è¤µ¤ì¤Æ¤¤¤Þ¤¹¡£

¥¯¥í¥¹¶âÄ® ÃÇÌÌ¿Þ[½Ðŵ¡§»°É©ÃϽê]
¡¡µ´ü¤È¤·¤Æ³«¶È¤·¤¿¤Î¤ÏÃÇÌ̿ޤκ¸Â¦¤Ç¡¢±¦Â¦¤Î¥ì¥¸¥Ç¥ó¥¹¤ä¸ø¶¦¸ø±×»ÜÀß¡¢¤½¤Î²¼¤Î¾¦¶È»ÜÀßÉôʬ¤¬¶´ü¹©»ö¤È¤Ê¤Ã¤Æ¤¤¤Þ¤¹¡£
¡¡µ´ü¤Ç³«¶È¤·¤¿¡ÖMARK IS ³ë¾þ¤«¤Ê¤Þ¤Á¡×¤Ë¤Ï¶´ü¹©»öÉôʬ¤Ë¤¢¤Ã¤¿¥¤¥È¡¼¥è¡¼¥«¥É¡¼¤¬¥è¡¼¥¯¥Õ¡¼¥º¤ËÀ¸¤Þ¤ìÊѤï¤Ã¤ÆºÆ½Ðʤ·¤Æ¤ª¤ê¡¢Â¾¤Ë¤â´ØÅì½é½ÐŹ¤Î¡Ö¤¹¤ß¤Ã¥³¤°¤é¤·¤¢¤½¤Ó¥¹¥¿¥¸¥ª¡×¤Ê¤É¤¬50ŹÊÞ¤¬½Ðʤ·¤Æ¤¤¤Þ¤¹¡£

¥¯¥í¥¹¶âÄ® ¶´ü´°À®Åì¦ΩÌÌ[½Ðŵ¡§»°É©ÃϽê]
¡¡¶âÄ®±ØÂ¦¤È¤Ê¤ë¶´ü¹©»ö¦¤Î´°À®Í½ÁۿޤǤ¹¡£¸½ºß¤Î¡ÖMARK IS ³ë¾þ¤«¤Ê¤Þ¤Á¡×¤Ï¶âÄ®±Ø¤«¤é¤Ï±ó¤¤Â¦¤Ë½ÐÆþ¸ý¤¬¤¢¤ê¤Þ¤¹¤¬¡¢¶´ü¦¤¬´°À®¤¹¤ë¤È½ÐÆþ¸ý¤¬±Ø¤Î¤¢¤ëÅ즤ˤâÀߤ±¤é¤ì¤ë¤¿¤áº£¤è¤ê¤â¥¢¥¯¥»¥¹¤·¤ä¤¹¤¯¤Ê¤ê¤Þ¤¹¡£
Ê¿ÌÌ¿Þ

Ãϲ¼1³¬Ê¿ÌÌ¿Þ[½Ðŵ¡§³ë¾þ¶è]
¡¡Ãϲ¼1³¬¤ÎÊ¿Ì̿ޤǤ¹¡£¶´ü¹©»öÉôʬ¡Ê±¦Â¦¡Ë¤ÏÃó¼Ö¾ì¤Ë¤Ê¤ê¤Þ¤¹¡£

1³¬Ê¿ÌÌ¿Þ[½Ðŵ¡§³ë¾þ¶è]
¡¡¶´ü¹©»ö¤Î1³¬¥¿¥ï¡¼¥Þ¥ó¥·¥ç¥óÉô¤Ï¡¢±Ø¤Ë¶á¤¤ÆîÅ즤˥¨¥ó¥È¥é¥¹¤äÃó¼Ö¾ì¤Î½ÐÆþ¸ý¤¬ÇÛÃÖ¤µ¤ì¡¢Åì¦¤ÏŹÊÞ¥¹¥Ú¡¼¥¹¤È¤Ê¤ê¤Þ¤¹¡£Ë̦¤Ï¡ÖMARK IS ³ë¾þ¤«¤Ê¤Þ¤Á¡×¤ÎÁý¾²Éôʬ¤È¤Ê¤ê¤Þ¤¹¡£

2³¬Ê¿ÌÌ¿Þ[½Ðŵ¡§³ë¾þ¶è]
¡¡¶´ü¹©»ö¤Î2³¬¥¿¥ï¡¼¥Þ¥ó¥·¥ç¥óÉô¤Ï¥¨¥ó¥È¥é¥ó¥¹¥í¥Ó¡¼¤ä2ÁØ¿á¤È´¤±¤Î¥é¥¦¥ó¥¸¡¢ÃóÎØ¾ì¤¬ÇÛÃÖ¤µ¤ì¡¢Åì¦¤ÏŹÊÞ¥¹¥Ú¡¼¥¹¤È¤Ê¤ê¤Þ¤¹¡£Ë̦¤Ï¡ÖMARK IS ³ë¾þ¤«¤Ê¤Þ¤Á¡×¤ÎÁý¾²Éôʬ¤È¤Ê¤ê¤Þ¤¹¡£

3³¬Ê¿ÌÌ¿Þ[½Ðŵ¡§³ë¾þ¶è]
¡¡¶´ü¹©»ö¤Î3³¬¥¿¥ï¡¼¥Þ¥ó¥·¥ç¥óÉô¤ÏÃóÎØ¾ì¤È¶¦ÍÑ»ÜÀߤˤʤê¤Þ¤¹¡£Ë̦¤Ï¡ÖMARK IS ³ë¾þ¤«¤Ê¤Þ¤Á¡×¤ÎÁý¾²Éôʬ¤È¤Ê¤ê¤Þ¤¹¡£

4³¬Ê¿ÌÌ¿Þ[½Ðŵ¡§³ë¾þ¶è]
¡¡¶´ü¹©»ö¤Î4³¬¥¿¥ï¡¼¥Þ¥ó¥·¥ç¥óÉô¤Ï½»Âð¤È¶¦ÍÑ»ÜÀߤ¬¤¢¤ë¥Õ¥í¥¢¤È¤Ê¤ê¤Þ¤¹¡£Ë̦¤Ï¸ø±×»ÜÀߤˤʤê¤Þ¤¹¡£

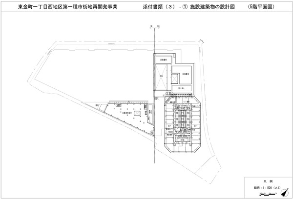
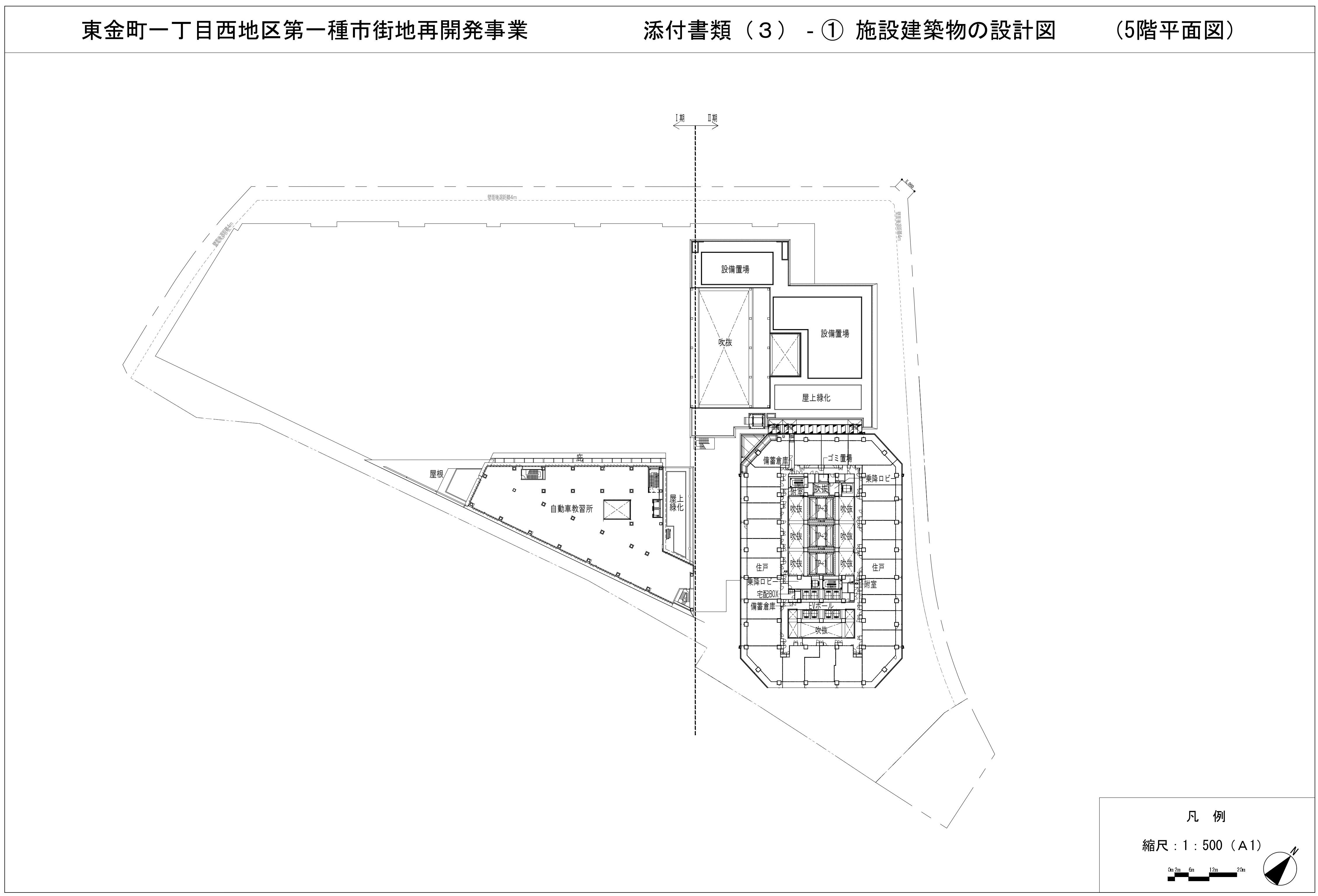
5³¬Ê¿ÌÌ¿Þ[½Ðŵ¡§³ë¾þ¶è]
¡¡¥¿¥ï¡¼¥Þ¥ó¥·¥ç¥ó¤Î5³¬¤«¤é¤Ï½»Âð¤À¤±¤Î¥Õ¥í¥¢¤Ë¤Ê¤ê¤Þ¤¹¡£Áí¸Í¿ô¤ÏÌó900¸Í¤Ç1LDK¡Á4LDK¡ÊÊ¿¶ÑÌó67֡ˤǷײ褵¤ì¤Æ¤¤¤Þ¤¹¡£

6³¬Ê¿ÌÌ¿Þ[½Ðŵ¡§³ë¾þ¶è]
¡¡¥¿¥ï¡¼¥Þ¥ó¥·¥ç¥ó¤Î³Æ³¬¤Ë¤Ï¥´¥ßÃÖ¤¾ì¡¢È÷ÃßÁҸˡ¢ÂðÇÛBOX¤¬ÀßÃÖ¤µ¤ì¤ë·×²è¤È¤Ê¤Ã¤Æ¤¤¤Þ¤¹¡£

Åã²°³¬Ê¿ÌÌ¿Þ[½Ðŵ¡§³ë¾þ¶è]
¡¡²°¾å³¬¤ÎÊ¿Ì̿ޤǤ¹¡£
°ÌÃÖ¿Þ

°ÌÃÖ¿Þ[½Ðŵ¡§ÅìµþÅÔ]
¡¡·úÀßÃϤÏJR¡Ö¶âÄ®¡×±ØË̸ý¤«¤éÍý²ÊÂç³ØÄ̤ê¤òÅìµþÍý²ÊÂç³ØÊýÌ̤˾¯¤·¹Ô¤Ã¤¿¡¢JR¾ïÈØÀþ¤ËÌ̤·¤¿¾ì½ê¤È¤Ê¤Ã¤Æ¤¤¤Þ¤¹¡£JR¡Ö¶âÄ®¡×±Ø¤ÎÆî¦¤Ë¤Ï¡ÖµþÀ®¶âÄ®¡×±Ø¤â¤¢¤ê2±Ø2Ï©Àþ¤¬ÍøÍѲÄǽ¤Ç¤¹¡£
´û¸·úʪ²òÂξõ¶·

¡¡¶´üÉôʬ¤Î²òÂÎÅù¤Îºî¶È¤Ë´Ø¤¹¤ë¤ªÃΤ餻¤Ç¤¹¡£»ö¶È¾ì¤Î̾¾Î¤Ï¡ÖÅì¶âÄ®°ìÃúÌÜÀ¾Ã϶èÂè°ì¼ï»Ô³¹ÃϺƳ«È¯»ö¶È ¶´ü´û¸·úʪÅù½üµî²òÂΡס¢²òÂι©´ü¤Ï2025ǯ8·î18Æü¡Á2026ǯ9·î15Æü¡¢²òÂΤλܹ©¼Ô¤Ï¥Õ¥¸¥¿¤È¤Ê¤Ã¤Æ¤¤¤Þ¤¹¡£

¡¡2025ǯ9·î23Æü¤Ë¶âÄ®±Ø¤Ë°ìÈֶᤤÆîÅ즤«¤é»£±Æ¤·¤¿¡ÖÅì¶âÄ®°ìÃúÌÜÀ¾Ã϶èÂè°ì¼ï»Ô³¹ÃϺƳ«È¯»ö¶È¡×¤Î·×²èÃϤǤ¹¡£¤³¤ÎÊÕ¤ê¤Ï¶´ü¹©»öÉôʬ¤Ç¡¢¾®µ¬ÌϤʷúʪ¤ÏÁ´¤ÆÂàµîºÑ¤ß¤Î¤è¤¦¤Ç¤·¤¿¡£

¡¡¶´ü¹©»ö¤ÎÂçÉôʬ¤òÀê¤á¤ë¡Ö¥¤¥È¡¼¥è¡¼¥«¥É¡¼¶âĮŹ¡×¤Ï²òÂÎÍѤξì¤ÎÀßÃÖºî¶È¤¬»Ï¤Þ¤Ã¤Æ¤¤¤Þ¤·¤¿¡£

¡¡¡Ö¥¤¥È¡¼¥è¡¼¥«¥É¡¼¶âĮʡפÏ2022ǯ9·î4Æü¤ËÊÄŹ¤·¤Æ¤¤¤Þ¤¹¤¬¡¢²°¾å¤Ë¤¢¤Ã¤¿¡Ö¶âÄ®¼«Æ°¼Ö¶µ½¬½ê¡×¤Ï¤½¤Î¸å¤â±Ä¶È¤ò³¤±¡¢º£Ç¯¤Î8·î¤Ëµ´ü¹©»ö¤È¤·¤ÆÎ٤˷úÀߤµ¤ì¤¿¡ÖMARK IS ³ë¾þ¤«¤Ê¤Þ¤Á¡×¤Î²°¾å¤Ë°Üž¤·¤Þ¤·¤¿¡£¤³¤ì¤Ë¤è¤Ã¤Æ¡Ö¥¤¥È¡¼¥è¡¼¥«¥É¡¼¶âĮŹ¡×¤Î²òÂι©»ö¤¬»Ï¤Þ¤Ã¤Æ¤¤¤Þ¤¹¡£

¡¡¤³¤ÎÀ×ÃϤˡÖMARK IS ³ë¾þ¤«¤Ê¤Þ¤Á¡×¤ÎÁý¾²Éôʬ¤È¸ø±×»ÜÀß¡¢¤½¤·¤ÆÃϾå40³¬¡¢¹â¤µÌó150m¤Î¥¿¥ï¡¼¥Þ¥ó¥·¥ç¥ó¤¬·úÀߤµ¤ì¤Þ¤¹¡£

¡¡µ´ü¤È¤·¤Æ9·î3Æü¤Ë¥°¥é¥ó¥É¥ª¡¼¥×¥ó¤·¤¿¡ÖMARK IS ³ë¾þ¤«¤Ê¤Þ¤Á¡×¤Ç¤¹¡£¶´üÉôʬ¤â´°À®¤¹¤ë¤ÈŹÊÞÌÌÀѤÏ3³äÄøÅÙÁý¾²¤·¤Þ¤¹¡£
ÃÏ¿Þ
ʪ·ï³µÍ×

»Ü¹©·×²è[½Ðŵ¡§»°É©ÃϽê]
¡¡Æ±ºÆ³«È¯¤Ïµ´ü¹©»ö¤È¶´ü¹©»ö¤Ëʬ¤«¤ì¤Æ¤ª¤ê¡¢¸½ºß¤Ïµ´ü¹©»ö¤¬½×¹©¤·¤Æ¡¢¿Þ¤Î±¦²¼¤Î´û¸·úʪ²òÂΤ¬»Ï¤Þ¤Ã¤¿¤È¤³¤í¤È¤Ê¤Ã¤Æ¤¤¤Þ¤¹¡£

¹©»ö¹©ÄøÉ½[½Ðŵ¡§ÅìµþÅÔ]
¡¡Í½Äê¤è¤ê¤â¿ô¥ö·îÃÙ¤ì¤Æ¶´ü¹©»ö¤Î²òÂνüµî¹©»ö¤¬»Ï¤Þ¤Ã¤Æ¤¤¤Þ¤¹¡£
¢£Êª·ï³µÍ×¢£
̾¾Î¡§¥¯¥í¥¹¶âÄ®
¾¦¶È»ÜÀß̾¡§MARK IS ³ë¾þ¤«¤Ê¤Þ¤Á
·×²è̾¡§Åì¶âÄ®°ìÃúÌÜÀ¾Ã϶èÂè°ì¼ï»Ô³¹ÃϺƳ«È¯»ö¶È
½êºßÃÏ¡§ÅìµþÅÔ³ë¾þ¶èÅì¶âÄ®£±ÃúÌÜ-2136¡Á2169¤Î°ìÉô
¸òÄÌ¡§JR¾ïÈØÀþ(³Æ±ØÄä¼Ö)¡Ö¶âÄ®¡×±Ø
¡¡¡¡¡¡µþÀ®¶âÄ®Àþ¡ÖµþÀ®¶âÄ®¡×±Ø
ÍÑÅÓ¡§½¸¹ç½»Âð¡¢¹Ô¶È»ÜÀß¡¢¸ø±×»ÜÀß¡¢¼«Æ°¼Ö¶µ½¬½ê¡¢¸ø¶¦ÃóÎØ¾ì¡¢Ãó¼Ö¾ì Åù
Áí¸Í¿ô¡§Ìó900¸Í
³¬¿ô¡§ÃϾå40³¬¡¢Åã²°2³¬¡¢Ãϲ¼1³¬
¹â¤µ¡§Ìó150m
¹½Â¤¡§S¡ÜRC¤
ÉßÃÏÌÌÀÑ¡§Ìó24,755Ö
·úÃÛÌÌÀÑ¡§Ìó18,880Ö
±ä¾²ÌÌÀÑ¡§Ìó159,310Ö¡ÊÁ´ÂΡË
·úÃۼ硧Åì¶âÄ®°ìÃúÌÜÀ¾Ã϶è»Ô³¹ÃϺƳ«È¯Áȹç
»²²ÃÁȹç°÷¡§»°É©ÃϽê¥ì¥¸¥Ç¥ó¥¹¡¢»°°æÉÔÆ°»º¥ì¥¸¥Ç¥ó¥·¥ã¥ë¡¢»°É©ÃϽê
Àß·×¼Ô¡§º´Æ£Áí¹ç·×²è¡Êµ´ü¹©»ö¡Ë
»Ü¹©¼Ô¡§¥Õ¥¸¥¿¡Êµ´ü¹©»ö¡Ë
¹©´ü¡§2022ǯ10·î1ÆüÃ幩¡Á2025ǯ7·î14Æü½×¹©¡Êµ´ü¹©»ö¡Ë
¡¡¡¡¡¡2026ǯ10·îÃ幩¡Á2030ǯ11·î½×¹©Í½Äê¡Ê¶´ü¹©»ö¡Ë
½Ðŵ
¢§³ë¾þ¶è¡§¤Þ¤Á¤Å¤¯¤ê¡Ê2025ǯ9·î3Æü¹¹¿·¡Ë
Åì¶âÄ®°ìÃúÌÜÀ¾Ã϶èÂè°ì¼ï»Ô³¹ÃϺƳ«È¯»ö¶È
¢§»°É©ÃϽꡧ¥Ë¥å¡¼¥¹¥ê¥ê¡¼¥¹¡Ê2025ǯ5·î20Æü¡Ë
Åì¶âÄ®°ìÃúÌÜÀ¾Ã϶è»Ô³¹ÃϺƳ«È¯»ö¶È ³¹¶è̾¾Î¡Ö¥¯¥í¥¹¶âÄ®¡× ¾¦¶È»ÜÀß̾¾Î¡ÖMARK IS ³ë¾þ¤«¤Ê¤Þ¤Á¡×¤Ë·èÄê
¢§»°É©ÃϽꡧ¥Ë¥å¡¼¥¹¥ê¥ê¡¼¥¹¡Ê2022ǯ8·î24Æü¡Ë
¡ÁÃϾå40³¬·ú¤Î͹âÁØ¥Þ¥ó¥·¥ç¥ó¤È¾¦¶È¡¦¶È̳¡¦¸ø±×»ÜÀߤÎÊ£¹çºÆ³«È¯¡Á
¡ÖÅì¶âÄ®°ìÃúÌÜÀ¾Ã϶èÂè°ì¼ï»Ô³¹ÃϺƳ«È¯»ö¶È¡×¸¢ÍøÊÑ´¹·×²èǧ²Ä¤Î¤ªÃΤ餻
- ¥«¥Æ¥´¥ê
- ³ë¾þ¶è







