
¥¤¥á¡¼¥¸¥Ñ¡¼¥¹[½Ðŵ¡§ÆüÅ´¶½ÏÂÉÔÆ°»º]
¡¡ÀÖºä¤ÎÌô¸¦ºä¤ËÌ̤·¤¿¥¿¥ï¡¼¥Þ¥ó¥·¥ç¥ó¡ÖÀֺ伷ÃúÌÜ2ÈÖÃ϶èÂè°ì¼ï»Ô³¹ÃϺƳ«È¯»ö¶È¡×(ÃϾå46³¬¡¢¹â¤µ163.45m)¤Î´°À®Í½ÁۿޤǤ¹¡£Ãæ¹âÁس¬¤ÎË̦½»¸Í¤«¤é¤ÏÀÖºä¸æÍÑÃϤò¼Ú·Ê¤Ç¤¤ëÆüÅ´¶½ÏÂÉÔÆ°»º¤ÈÌî¼ÉÔÆ°»º¤Ë¤è¤ëʬ¾ù¥¿¥ï¥Þ¥ó¤Ç¡¢º£Ç¯¤Î6·î1Æü¤ËÃ幩¤·¤Æ¤¤¤Þ¤¹¡£¤³¤Îµ»ö¤Ç¤ÏƱ¥¿¥ï¥Þ¥ó¤Î³µÍפä·úÀß¾õ¶·¡Ê2025ǯ9·î21Æü»þÅÀ¡Ë¡¢ÃÏ¿ÞÅù¤òºÜ¤»¤Æ¤¤¤Þ¤¹¡£
Àֺ伷ÃúÌÜ2ÈÖÃ϶è¤Ë¤Ä¤¤¤Æ

¥¤¥á¡¼¥¸¥Ñ¡¼¥¹[½Ðŵ¡§Ìî¼ÉÔÆ°»º]
¡¡¡ÖÀֺ伷ÃúÌÜ2ÈÖÃ϶èÂè°ì¼ï»Ô³¹ÃϺƳ«È¯»ö¶È¡×¤ÏÌô¸¦ºä¤È¹â¶¶À§À¶²§µÇ°¸ø±à¤Ë¶´¤Þ¤ì¤¿¥¨¥ê¥¢¤Î¥¿¥ï¡¼¥Þ¥ó¥·¥ç¥ó¤Ç¡¢µ¬ÌϤÏÃϾå46³¬¡¢Ãϲ¼1³¬¡¢¹â¤µ163.45m¡¢ÉßÃÏÌÌÀÑ8,719.04Ö¡¢·úÃÛÌÌÀÑ5,017.28Ö¡¢±ä¾²ÌÌÀÑ8Ëü7912.97֤ȤʤäƤ¤¤Þ¤¹¡£
¡¡·úÃÛ¼ç¤ÏÀֺ伷ÃúÌÜ£²ÈÖÃÏ¶èºÆ³«È¯Áȹç¡Ê»²²ÃÁȹç°÷¡§Ìî¼ÉÔÆ°»º¤ÈÆüÅ´¶½ÏÂÉÔÆ°»º¡Ë¡¢Àß·×¼Ô¤ÏÀ¶¿å·úÀß¡¦ÆüËÜÀß·× Àß·×¶¦Æ±ÂΡ¢»Ü¹©¼Ô¤ÏÀ¶¿å·úÀß¡¢¹©´ü¤Ï2025ǯ6·î1ÆüÃ幩¡¢2028ǯ12·î31Æü¤Î½×¹©Í½Äê¤Ç¤¹¡£

ÃÇÌÌ¥¤¥á¡¼¥¸[½Ðŵ¡§ÆüÅ´¶½ÏÂÉÔÆ°»º]
¡¡·úÀßÃϤϹâÄ㺹¤Î¤¢¤ëÉßÃϤȤʤäƤª¤ê¡¢ÀÄ»³°ìÃúÌܱØÂ¦¤È¤Ê¤ëÀ¾Â¦¤Ë¤Ï¥¿¥ï¥Þ¥óËÜÂΤ¬ÇÛÃÖ¤µ¤ì¡¢Ìô¸¦ºäÄ̤ê¤ËÌ̤·¤¿Åì¦¤ËŹÊÞ¡¢À콤³Ø¹»¡¢»ö̳½ê¤Ç¹½À®¤µ¤ì¤ëÄãÁØÅ郎ÇÛÃÖ¤µ¤ì¤Þ¤¹¡£

ÇÛÃÖ¿Þ[½Ðŵ¡§ÆüÅ´¶½ÏÂÉÔÆ°»º]
¡¡¹â¶¶À§À¶²§µÇ°¸ø±à¦¤È¤Ê¤ëÉßÃÏÀ¾Â¦¤Ë¤Ï¹¾ì¤ÈÎÐÃϤ¬À°È÷¤µ¤ì¡¢¤½¤·¤ÆÉßÃÏÆâ¤Î¹âÄ㺹¤ò²ò¾Ã¤¹¤ë¥¨¥¹¥«¥ì¡¼¥¿¡¼¡¢¥¨¥ì¥Ù¡¼¥¿¡¼¤È¤¤¤Ã¤¿¥Ð¥ê¥¢¥Õ¥ê¡¼Æ°Àþ¤¬³ÎÊݤµ¤ì¤Þ¤¹¡£

Êâ¹Ô¼Ô¥Í¥Ã¥È¥ï¡¼¥¯[½Ðŵ¡§ÆüÅ´¶½ÏÂÉÔÆ°»º]
¡¡¤³¤Î¥Ð¥ê¥¢¥Õ¥ê¡¼Æ°Àþ¤Ë¤è¤ê³Ú¤ËÀÄ»³°ìÃúÌܱØÊýÌ̤˹Ԥ±¤ë¤è¤¦¤Ë¤Ê¤ê¤Þ¤¹¡£

¹¾ì2¹æ¥¤¥á¡¼¥¸[½Ðŵ¡§¹Á¶è]
¡¡Ìô¸¦ºäÄ̤ê¤ËÌ̤·¤¿Å즤ËÇÛÃÖ¤µ¤ì¤ë¹¾ì¤Î´°À®Í½ÁۿޤǤ¹¡£¹âÄ㺹¤ò²ò¾Ã¤¹¤ë¥¨¥¹¥«¥ì¡¼¥¿¡¼¤È¥¨¥ì¥Ù¡¼¥¿¡¼¤¬ÀßÃÖ¤µ¤ì¤Þ¤¹¡£

¥¤¥á¡¼¥¸¥Ñ¡¼¥¹[½Ðŵ¡§¹Á¶èµÄ²ñ]
¡¡ÀÄ»³°ìÃúÌܱØÂ¦¤ÎÀ¾Â¦¤ËÀ°È÷¤µ¤ì¤ë¹¾ì¤Î´°À®Í½ÁۿޤǤ¹¡£

¹â¶¶À§À¶²§µÇ°¸ø±à²þ½¤¥¤¥á¡¼¥¸[½Ðŵ¡§¹Á¶è]
¡¡¤½¤Î¹¾ì¤ÎÀ¾Â¦¤Ë¤¢¤ë¹â¶¶À§À¶²§µÇ°¸ø±à¤Ë¤ÏÊɾõ¤ÎÀÐʽ¤¬¤¢¤ê¤Þ¤¹¤¬¡¢¤½¤ÎÀÐʽ¤òűµî¤·¤Æ´Ë¤ä¤«¤Ê·¹¼Ð¤Ë²þÎɤ¹¤ëÍÊÊɲþ½¤À°È÷¤â¹Ô¤ï¤ì¤ë·×²è¤È¤Ê¤Ã¤Æ¤¤¤Þ¤¹¡£
Ê¿ÌÌ¿Þ

³Æ³¬Ê¿ÌÌ¿Þ Ãϲ¼1³¬[½Ðŵ¡§¹Á¶è]
¡¡Ãϲ¼1³¬Ê¿Ì̿ޤǤ¹¡£ÄãÃϦ¡ÊÅ즡ˤȤʤëÌô¸¦ºä¤«¤é¤Î¸«¤¿¤á¤Ï1³¬¤È¤Ê¤ê¡¢Ìô¸¦ºä¦¤Ë¤ÏŹÊÞ¤âÇÛÃÖ¤µ¤ì¤Þ¤¹¡£

³Æ³¬Ê¿ÌÌ¿Þ 1³¬[½Ðŵ¡§¹Á¶è]
¡¡1³¬¤ÏÃó¼Ö¾ì¤Ø¤ÎưÀþ¤¬Â¿¤¤¥Õ¥í¥¢¤Ë¤Ê¤ê¤Þ¤¹¡£

³Æ³¬Ê¿ÌÌ¿Þ 2³¬[½Ðŵ¡§¹Á¶è]
¡¡Åì¦ÄãÁØÅï¤Î2³¬¤Ë¤ÏÀ콤³Ø¹»¤¬ÇÛÃÖ¤µ¤ì¡¢¹âÁØÅï¤ÎÀ¾Â¦¤Ë¤Ï¹¾ì¤¬À°È÷¤µ¤ì¤Þ¤¹¡£

³Æ³¬Ê¿ÌÌ¿Þ 3³¬[½Ðŵ¡§¹Á¶è]
¡¡À¾Â¦¹âÁØÅï3³¬¤Ë¤ÏSOHO¡¢Åì¦ÄãÁØÅï¤Ë¤Ï»ö̳½ê¤¬ÇÛÃÖ¤µ¤ì¤Þ¤¹¡£

³Æ³¬Ê¿ÌÌ¿Þ 4³¬[½Ðŵ¡§¹Á¶è]
¡¡À¾Â¦¹âÁØÅï¤Î4³¬¤«¤é¤¬½»Âð¥Õ¥í¥¢¤È¤Ê¤ê¤Þ¤¹¡£

³Æ³¬Ê¿ÌÌ¿Þ 5³¬[½Ðŵ¡§¹Á¶è]
¡¡Åì¦ÄãÁØÅï¤Î5³¬¤Þ¤Ç¤¬»ö̳½ê¥Õ¥í¥¢¤È¤Ê¤ê¤Þ¤¹¡£

³Æ³¬Ê¿ÌÌ¿Þ 6³¬[½Ðŵ¡§¹Á¶è]
¡¡¹âÁØÅï¤Ï½»Âð¥Õ¥í¥¢¤¬Â³¤¤Þ¤¹¡£

³Æ³¬Ê¿ÌÌ¿Þ 7¡Á10³¬[½Ðŵ¡§¹Á¶è]
¡¡Æ±¤¸¤è¤¦¤Ê¿Þ¤¬Â³¤¯¤Î¤ÇÅÓÃæ¥Õ¥í¥¢¤ÎÊ¿Ì̿ޤϾÊά¤·¤Þ¤¹¡£

³Æ³¬Ê¿ÌÌ¿Þ 26¡Á28³¬[½Ðŵ¡§¹Á¶è]
¡¡Ê¸»ú¤¬ÄÙ¤ì¤Æ¤¤¤ÆÆÉ¤ß¤Ë¤¯¤¤¤Ç¤¹¤¬¡¢27³¬¤È28³¬¤ÎÆî¦¤Ë½»Âð¶¦ÍÑ»ÜÀߤ¬ÇÛÃÖ¤µ¤ì¤Þ¤¹¡£

³Æ³¬Ê¿ÌÌ¿Þ 39¡Á42³¬[½Ðŵ¡§¹Á¶è]
¡¡41³¬¤«¤é¤Ï¹¤¤Éô²°¤À¤±¤È¤Ê¤ê¤Þ¤¹¡£

³Æ³¬Ê¿ÌÌ¿Þ 43¡Á46³¬[½Ðŵ¡§¹Á¶è]
¡¡¤½¤·¤Æ45³¬¤È46³¬¤Ï¤µ¤é¤Ë¹¤¤³ÑÉô²°¤À¤±¤È¤Ê¤ê¤Þ¤¹¡£
°ÌÃÖ¿Þ

°ÌÃÖ¿Þ[½Ðŵ¡§ÅìµþÅÔ]
¡¡·úÀßÃϤÏÀÖºä¸æÍÑÃÏ¤ÎÆî¦¤Ë¤¢¤ëÀÄ»³Ä̤꤫¤é°ìËÜÃæ¤ËÆþ¤Ã¤¿¹â¶¶À§À¶²§µÇ°¸ø±à¤ÈÌô¸¦ºä¤Ë¶´¤Þ¤ì¤¿¾ì½ê¤Ç¡¢ºÇ´ó±Ø¤ÏÀ¾Â¦¤Ë¤¢¤ëÅìµþ¥á¥È¥í¶äºÂÀþ¡¦È¾Â¢ÌçÀþµÚ¤ÓÅÔ±ÄÂç¹¾¸ÍÀþ¡ÖÀÄ»³°ìÃúÌܡױؤÇÅÌÊâ6ʬ¤È¤Ê¤Ã¤Æ¤¤¤Þ¤¹¡£Å즤ˤÏÅìµþ¥á¥È¥í´Ý¥ÎÆâÀþ¡¦¶äºÂÀþ¡ÖÀֺ丫Éí¡×±Ø¡¢Åìµþ¥á¥È¥íȾ¢ÌçÀþ¡¦ÆîËÌÀþ¡Ö±ÊÅÄÄ®¡×±Ø¡¢ÆîÅ즤ˤÏÅìµþ¥á¥È¥íÀéÂåÅÄÀþ¡ÖÀÖºä¡×±Ø¤â¤¢¤ê¡¢Ê£¿ô¤Î±Ø¡¦Ï©Àþ¤¬ÍøÍѤʲÄǽ¤ÊΩÃϤȤʤäƤ¤¤Þ¤¹¡£

¡¡¡ÖÀֺ伷ÃúÌÜ2ÈÖÃ϶èÂè°ì¼ï»Ô³¹ÃϺƳ«È¯»ö¶È¡×¤Î´û¸·úʪ²òÂÎÁ°¤Î¶õ»£¤Ç¤¹¡£ÀÖ¤¤Ìֳݤ±¤ò¤·¤¿¾ì½ê¤¬·úÀßÃϤǡ¢ÉßÃϺ¸Â¦¡ÊÀ¾Â¦¡Ë¤Ë¥¿¥ï¥Þ¥óËÜÂΤ¬ÇÛÃÖ¤µ¤ì¤Þ¤¹¡£±¦Â¦¡ÊÅ즡ˤˤ¢¤ë»°³Ñ·Á¤Î¥¿¥ï¡¼¥Þ¥ó¥·¥ç¥ó¤Ï¡Ö¥Ñ¡¼¥¯¥³¡¼¥ÈÀÖºä ¥¶ ¥¿¥ï¡¼¡×(ÃϾå43³¬¡¢¹â¤µ157.25m)¤Ç¤¹¡£
·úÀß¾õ¶·

¡¡2025ǯ9·î21Æü¤ËÌô¸¦ºä¤«¤é»£±Æ¤·¤¿¡ÖÀֺ伷ÃúÌÜ2ÈÖÃ϶èÂè°ì¼ï»Ô³¹ÃϺƳ«È¯»ö¶È¡×(ÃϾå46³¬¡¢¹â¤µ163.45m)¤Î·úÀßÃϤǤ¹¡£¤Á¤ç¤¦¤É¤³¤ÎÊդ꤬·¦¤ó¤Ç¸«¤¨¤Æ¤¤¤Þ¤¹¤¬¡¢¤½¤ÎÃÏ·Á¤¬Ìô¤òºÕ¤¯Ìô¸¦¤Ë»÷¤Æ¤¤¤ë¤³¤È¤«¤éÌô¸¦ºä¤È̾ÉÕ¤±¤é¤ì¤Æ¤¤¤Þ¤¹¡£

¡¡²¾°Ï¤¤¤ÎÃæ¤Ç¤¹¡£¤³¤Á¤é¦¤Ë¾¦¶È»ÜÀߤä¶È̳»ÜÀߤ¬Æþ¤ëÄãÁØÅ郎ÇÛÃÖ¤µ¤ì¡¢¥¿¥ï¥Þ¥óËÜÂΤϱü¦¤ËÇÛÃÖ¤µ¤ì¤Þ¤¹¡£

¡¡»£±Æ»þ¤Îºî¶È¹©Äø¤Ï´û¸¹ºÈ´¤¡¢SMWÂÇÀߤȤʤäƤ¤¤Þ¤·¤¿¡£

¡¡Ìô¸¦ºä¤«¤é¤â¤¦1Ëç¡£¤³¤Á¤é¦¤Ë¹âÄ㺹¤ò²ò¾Ã¤¹¤ë¥¨¥¹¥«¥ì¡¼¥¿¡¼¤È¥¨¥ì¥Ù¡¼¥¿¡¼¤¬ÀßÃÖ¤µ¤ì¡¢¥Ð¥ê¥¢¥Õ¥ê¡¼Æ°Àþ¤¬³ÎÊݤµ¤ì¤Þ¤¹¡£
¡¡¤È¤³¤í¤Çº¸Â¦¤Ë¥Õ¥§¥¢¥ì¥Ç¥£Z32¡Ê300ZX¡Ë¤¬Ï©Ã󤷤Ƥ¤¤Þ¤¹¤¬¡¢2ǯ´Ö¤Û¤ÉƱ¤¸¥â¥Ç¥ë¤Ë¾è¤Ã¤Æ¤¤¤¿»þ´ü¤¬¤¢¤Ã¤¿¤Î¤Ç²û¤«¤·¤¯»×¤¤¤Þ¤·¤¿¡£

¡¡¹âÂæÂ¦¤È¤Ê¤ëÆîÀ¾Â¦¤«¤é»£±Æ¡£

¡¡À¾Â¦¤Ë¤¢¤ë¹â¶¶À§À¶²§µÇ°¸ø±à¤«¤é»£±Æ¡£¾åÉô¤¬ÀÚ¤ì¤Æ¤¤¤ëÀµÌ̤Υª¥Õ¥£¥¹¥Ó¥ë¤Ï¡ÖÀֺ䥬¡¼¥Ç¥ó¥·¥Æ¥£¡×(ÃϾå20³¬¡¢ºÇ¹â¹â¤µ106.37m)¤Ç¤¹¡£

¡¡Ë̦¤«¤é»£±Æ¡£

¡¡²¾°Ï¤¤¤ÎÃæ¤Ç¤¹¡£º¸¤Î¥¿¥ï¡¼¥Þ¥ó¥·¥ç¥ó¤Ï¡Ö¥Ñ¡¼¥¯¥³¡¼¥ÈÀÖºä ¥¶ ¥¿¥ï¡¼¡×(ÃϾå43³¬¡¢¹â¤µ157.25m)¤Ç¡¢¡ÖÀֺ伷ÃúÌÜ2ÈÖÃ϶èÂè°ì¼ï»Ô³¹ÃϺƳ«È¯»ö¶È¡×(ÃϾå46³¬¡¢¹â¤µ163.45m)¤Ï¤½¤ì¤ÈƱ¤¸¤¯¤é¤¤¤Î¹â¤µ¤Ë¤Ê¤ê¤Þ¤¹¡£

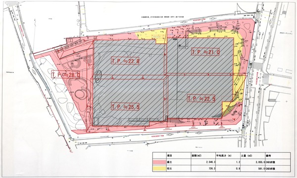
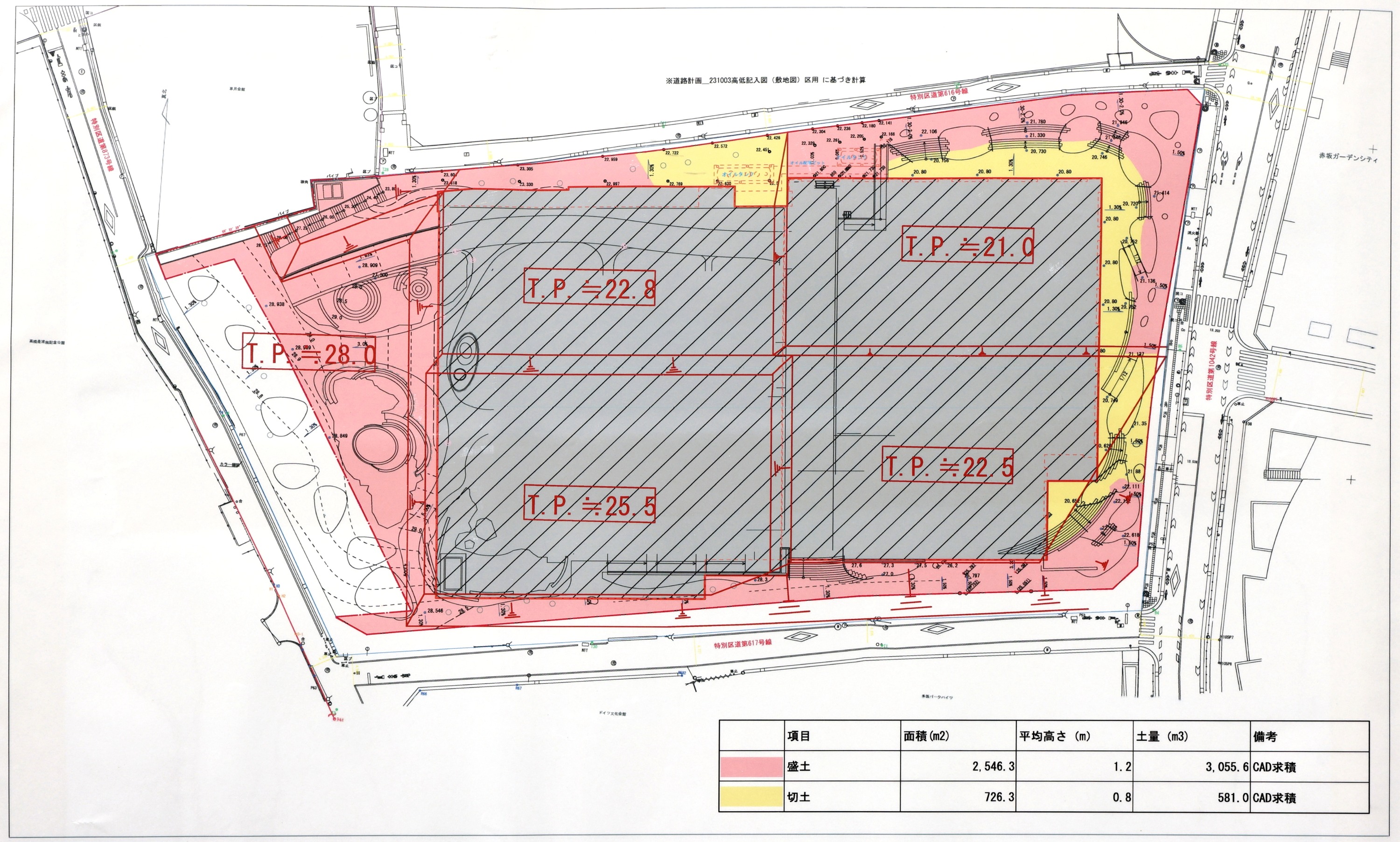
¡¡·úÀßÃÏÆâ¤Ç¤Ï¹âÄ㺹¤¬·ã¤·¤¤¤³¤È¤â¤¢¤ê¡¢À¹ÅÚ¤äÀÚÅÚ¤¬¹Ô¤ï¤ì¤Æ¤¤¤Þ¤¹¡£

¡¡¸½ÃϤËÀßÃÖ¤µ¤ì¤Æ¤¤¤¿ÂðÃϤÀ®µÚ¤ÓÆÃÄêÀ¹ÅÚÅù¤Ë´Ø¤¹¤ë¹©»ö¤Îµö²Äɸ¼±¤Ë¤è¤ë¤È¡¢À¹Åڤι⤵6.7m¡¢ÀÚÅÚ2.0m¡¢À¹ÅÚ¤ÎÌÌÀÑ2.564.32Ö¡¢ÀÚÅÚ¤ÎÌÌÀÑ726.30Ö¡¢À¹ÅÚ¤ÎÅÚÎÌ3,055㎥¡¢ÀÚÅÚ¤ÎÅÚÎÌ581㎥¤È¤Ê¤Ã¤Æ¤¤¤Þ¤·¤¿¡£

¡¡¤«¤Ê¤ê¹âÄ㺹¤¬¤¢¤ë¥¨¥ê¥¢¤Ç¤¹¤¬¡¢Â礤¯ÊѤï¤ë¤³¤È¤Ë¤Ê¤ê¤Þ¤¹¡£
ÃÏ¿Þ
ʪ·ï³µÍ×

¡¡·úÃ۷ײè¤Î¤ªÃΤ餻¤Ç¤¹¡£
¢£Êª·ï³µÍ×¢£
·×²è̾¡§Àֺ伷ÃúÌÜ£²ÈÖÃ϶èÂè°ì¼ï»Ô³¹ÃϺƳ«È¯»ö¶È »ÜÀß·úÃÛʪÅù¿·ÃÛ¹©»ö
½êºßÃÏ¡§ÅìµþÅÔ¹Á¶èÀֺ䣷ÃúÌÜ601ÈÖ
¸òÄÌ¡§Åìµþ¥á¥È¥í¶äºÂÀþ¡¦È¾Â¢ÌçÀþ¡ÖÀÄ»³°ìÃúÌܡױØ
¡¡¡¡¡¡ÅÔ±ÄÂç¹¾¸ÍÀþ¡ÖÀÄ»³°ìÃúÌܡױØ
¡¡¡¡¡¡Åìµþ¥á¥È¥í´Ý¥ÎÆâÀþ¡¦¶äºÂÀþ¡ÖÀֺ丫Éí¡×±Ø
¡¡¡¡¡¡Åìµþ¥á¥È¥íȾ¢ÌçÀþ¡¦ÆîËÌÀþ¡Ö±ÊÅÄÄ®¡×±Ø
¡¡¡¡¡¡Åìµþ¥á¥È¥íÀéÂåÅÄÀþ¡ÖÀÖºä¡×±Ø
ÍÑÅÓ¡§¶¦Æ±½»Âð¡¢»ö̳½ê¡¢ÊªÈÎŹÊÞ¡¢°û¿©Å¹¡¢¿ÇÎŽꡢÈþÍÆ±¡¡¢¥¢¥È¥ê¥¨¡¢²ÚÆ»¶µ¼¼¡¢¼«Æ°¼Ö¼Ö¸Ë¡¢¼«Å¾¼ÖÃó¼Ö¾ì
Áí¸Í¿ô¡§643¸Í¡¡¢¨Ãϸ¢¼Ô½»¸Í´Þ¤à¡ÊSOHO½ü¤¯¡Ë
³¬¿ô¡§ÃϾå46³¬¡¢Ãϲ¼1³¬
¹â¤µ¡§163.45m
¹½Â¤¡§Å´¶Ú¥³¥ó¥¯¥ê¡¼¥È¤¡Ê¹âÁØÅï¡Ë¡¢Å´¹ü¤¡ÊÃæÁØÅï¡Ë
´ðÁù©Ë¡¡§¾ì½êÂǤÁ¹º¡Ê¹âÁØÅï¡Ë¡¢´ûÀ®¹º¡ÊÃæÁØÅï¡Ë
ÉßÃÏÌÌÀÑ¡§8.719.04Ö
·úÃÛÌÌÀÑ¡§5,017.28Ö
±ä¾²ÌÌÀÑ¡§87,912.97Ö
·úÃۼ硧Àֺ伷ÃúÌÜ£²ÈÖÃÏ¶èºÆ³«È¯Áȹç
»²²ÃÁȹç°÷¡§Ìî¼ÉÔÆ°»º¡¢ÆüÅ´¶½ÏÂÉÔÆ°»º
Àß·×¼Ô¡§À¶¿å·úÀß¡¦ÆüËÜÀß·× Àß·×¶¦Æ±ÂÎ
»Ü¹©¼Ô¡§À¶¿å·úÀß
¹©´ü¡§2025ǯ6·î1ÆüÃ幩¡Á2028ǯ12·î31Æü½×¹©Í½Äê
½Ðŵ
¢§ÆüÅ´¶½ÏÂÉÔÆ°»º¡§¥Ë¥å¡¼¥¹¡Ê2025ǯ6·î9Æü¡Ë
¡ÖÀֺ伷ÃúÌÜ2ÈÖÃ϶èÂè°ì¼ï»Ô³¹ÃϺƳ«È¯»ö¶È¡×
¿·ÃÛÃ幩¤Î¤ªÃΤ餻
¢§¹Á¶è¡Ê2024ǯ2·î15Æü¹¹¿·¡Ë
Àֺ伷ÃúÌÜ2ÈÖÃ϶èÂè°ì¼ï»Ô³¹ÃϺƳ«È¯»ö¶È
¢§Ìî¼ÉÔÆ°»º¡§¥Ë¥å¡¼¥¹¥ê¥ê¡¼¥¹¡Ê2022ǯ7·î25Æü¡Ë
¡ÖÀֺ伷ÃúÌÜ2ÈÖÃ϶èÂè°ì¼ï»Ô³¹ÃϺƳ«È¯»ö¶È¡×»Ô³¹ÃϺƳ«È¯ÁȹçÀßΩ¤Î¤ªÃΤ餻
¢§ÅìµþÅÔ¡§Êóƻȯɽ¡Ê2022ǯ6·î23Æü¡Ë
Àֺ伷ÃúÌÜ2ÈÖÃ϶è»Ô³¹ÃϺƳ«È¯Áȹç¤ÎÀßΩ¤òǧ²Ä¤·¤Þ¤¹
¢§¹Á¶èµÄ²ñ¡Ê2022ǯ2·î9Æü¡Ë
Àֺ伷ÃúÌÜ£²ÈÖÃ϶è»Ô³¹ÃϺƳ«È¯Áȹç¤ÎÀßΩǧ²Ä¿½ÀÁ¤Ë¤Ä¤¤¤Æ
- ¥«¥Æ¥´¥ê
- ¹Á¶è







