
¡¡»ÔÀî¤Ç·úÀßÃæ¤Îʬ¾ù¥¿¥ï¥Þ¥ó¡Ö¥ê¡¼¥Õ¥·¥Æ¥£»ÔÀî ¥¶¡¦¥¿¥ï¡¼¡×(ÃϾå29³¬¡¢¹â¤µ104.15m)¤Ç¤¹¡£2025ǯ8·î9Æü¤Ë»£±Æ¤·¤Þ¤·¤¿¡£JRÁíÉðÀþ¡Ö»ÔÀî¡×±Ø¤«¤éÅÌÊâ7ʬ¡£µþÍÕ¥¬¥¹»ÔÀ¾ìÀ×ÃϤÎÂ絬ÌϺƳ«È¯¡Ö¥ê¡¼¥Õ¥·¥Æ¥£»ÔÀî¡×¤Î¥¿¥ï¡¼¥Þ¥ó¥·¥ç¥ó¤Ç¡¢¥¨¥ê¥¢Æâ¤Ë¤Ï¾¦¶È»ÜÀߤΥ¤¥ª¥ó¤Ê¤É¤â·úÀßÃæ¤Ç¤¹¡£¤³¤Îµ»ö¤Ç¤ÏƱ¥¿¥ï¥Þ¥ó¤Î³µÍפä·úÀß¾õ¶·¡¢ÃÏ¿ÞÅù¤òºÜ¤»¤Æ¤¤¤Þ¤¹¡£
¥ê¡¼¥Õ¥·¥Æ¥£»ÔÀî ¥¶¡¦¥¿¥ï¡¼¤Ë¤Ä¤¤¤Æ

³°´Ñ´°À®Í½ÁÛCG[½Ðŵ¡§¸ø¼°HP]
¡¡¡Ö¥ê¡¼¥Õ¥·¥Æ¥£»ÔÀî ¥¶¡¦¥¿¥ï¡¼¡×¤Ï»ÔÀî±Ø¤«¤éÆî¦¤ØÅÌÊâ7ʬ¤Îʬ¾ù¤Î¥¿¥ï¡¼¥Þ¥ó¥·¥ç¥ó¤Ç¡¢µ¬ÌϤÏÃϾå29³¬¡¢¹â¤µ104.15m¡¢ÉßÃÏÌÌÀÑ1Ëü2200.02Ö¡¢·úÃÛÌÌÀÑ5,340.88Ö¡¢±ä¾²ÌÌÀÑ7Ëü1594.63Ö¡¢Áí¸Í¿ô674¸Í¡¢·úÃۼ硦Çä¼ç¤Ï»°°æÉÔÆ°»º¥ì¥¸¥Ç¥ó¥·¥ã¥ë¡¢Ìî¼ÉÔÆ°»º¡¢»°É©ÃϽê¥ì¥¸¥Ç¥ó¥¹¡¢À߷׼ԤȻܹ©¼Ô¤ÏĹ빩¥³¡¼¥Ý¥ì¡¼¥·¥ç¥ó¤Ç2026ǯ10·î²¼½Ü½×¹©¡¢2027ǯ1·î²¼½Ü¤ÎÆþµï³«»ÏͽÄê¤È¤Ê¤Ã¤Æ¤¤¤Þ¤¹¡£¤Þ¤¿¡¢Æ±¥¿¥ï¥Þ¥ó¤Ï2100ǯ11·î14Æü¤Þ¤ÇÌó70ǯ¤ÎÄê´üž¼ÚÃϸ¢¤¬ÉÕ¤¤¤Æ¤¤¤Þ¤¹¡£

³°´Ñ´°À®Í½ÁÛCG[½Ðŵ¡§¸ø¼°HP]
¡¡2025ǯ8·î²¼½Ü¤«¤é¤ÏÂè3´ü¤ÎÈÎÇ䳫»ÏͽÄê¤Ç¡¢Âè3´ü¤â´Þ¤à»Ä¤ê¤ÎÈÎÇä¸Í¿ô¤Ï485¸Í¡¢´Ö¼è¤ê¤Ï1LDK¡Á4LDK¡¢ÀìÍÌÌÀѤÏ42.70Ö¡Á129.69Ö¡¢¥Ð¥ë¥³¥Ë¡¼ÌÌÀѤÏ8.93Ö¡Á29.64֤ȤʤäƤ¤¤Þ¤¹¡£Âè3´ü¤ÎÈÎÇäͽÄê²Á³Ê¤Ï3800Ëü±ßÂæ¡Á1²¯9000Ëü±ßÂæ¤Ç¤¹¡£

¥ê¡¼¥Õ¥·¥Æ¥£»ÔÀî Á´Âγ¹¶è´°À®Í½ÁÛCG[½Ðŵ¡§¸ø¼°HP]
¡¡¡Ö¥ê¡¼¥Õ¥·¥Æ¥£»ÔÀî ¥¶¡¦¥¿¥ï¡¼¡×¤ÏµþÍÕ¥¬¥¹»ÔÀ¾ìÀ×ÃϤκƳ«È¯¡Ö¥ê¡¼¥Õ¥·¥Æ¥£»ÔÀî¡×Æâ¤Î¥¿¥ï¡¼¥Þ¥ó¥·¥ç¥ó¤Ç¡¢½»Â𡦾¦¶È¡¦¹¾ìÅù¤¬¤¢¤ëÂ絬ÌÏÊ£¹ç¥·¥Æ¥£¤Ë¤Ê¤ê¤Þ¤¹¡£
¡¡Æ±¥¿¥ï¥Þ¥ó¤ÎÀ¾Â¦¡Ê±¦Â¦¡Ë¤Î¥·¥Ë¥¢½»Âð¤ÏÌî¼ÉÔÆ°»º¥¦¥§¥ë¥Í¥¹¤¬±¿±Ä¤¹¤ë¡Ö¥ª¥¦¥«¥¹ ¥ê¡¼¥Õ¥·¥Æ¥£»ÔÀî¡×(181¸Í¡¢2025ǯÅÙ³«¶ÈͽÄê)¤Ç¡¢Æî¦¤Ï¾¦¶È»ÜÀߤΡÖ(²¾¾Î)¥¤¥ª¥ó¥¹¥¿¥¤¥ë»ÔÀîÆî¡×¡Ê2025ǯÅÙ³«¶ÈͽÄê¡Ë¤È¤Ê¤Ã¤Æ¤¤¤Þ¤¹¡£¤½¤Î¥¤¥ª¥ó¤ÎÆî¦¤¬ÄÂÂß½»Âð¤Î¡Ö¥ê¡¼¥Õ¥·¥Æ¥£»ÔÀî ¥¶¡¦¥ì¥¸¥Ç¥ó¥¹¡×(ÃϾå9³¬¡¢¹â¤µ28.30m)¤Ç¡¢Â¾¤Ë¤â¥¨¥ê¥¢Æâ¤Ë¤ÏÃæ±û¹¾ì¤ä±¿Æ°¾ì¤¬À°È÷¤µ¤ì¤Þ¤¹¡£

ÉßÃÏÇÛÃÖ¿Þ´°À®Í½ÁÛCG[½Ðŵ¡§¸ø¼°HP]
¡¡¡Ö¥ê¡¼¥Õ¥·¥Æ¥£»ÔÀî¡×¤ÎÇÛÃֿޤǤ¹¡£¡Ö¥ê¡¼¥Õ¥·¥Æ¥£»ÔÀî ¥¶¡¦¥¿¥ï¡¼¡×¤Ï±Ø¤«¤é±ó¤¤Â¦¤ËÇÛÃÖ¤µ¤ì¤Þ¤¹¤¬¡¢ÎÙÀܤ¹¤ë¥¤¥ª¥ó¤Î¥¹¡¼¥Ñ¡¼¥Þ¡¼¥±¥Ã¥È¤Ë´ó¤Ã¤Æµ¢Âð¤Ç¤¤ë¥ë¡¼¥È¤Ë¤Ê¤Ã¤Æ¤¤¤Þ¤¹¡£

¥¨¥ó¥È¥é¥ó¥¹´°À®Í½ÁÛCG[½Ðŵ¡§¸ø¼°HP]
¡¡¥¨¥ó¥È¥é¥ó¥¹¤Î´°À®Í½ÁۿޤǤ¹¡£

¥¨¥ó¥È¥é¥ó¥¹¥é¥¦¥ó¥¸´°À®Í½ÁÛCG[½Ðŵ¡§¸ø¼°HP]
¡¡¥¨¥ó¥È¥é¥ó¥¹¥é¥¦¥ó¥¸¤ÏBIG LIVING¤ò¥³¥ó¥»¥×¥È¤È¤·¤¿³«ÊüŪ¤Ê¶õ´Ö¤Ë¤Ê¤ê¤Þ¤¹¡£

¥¥Ã¥º¥¹¥Ú¡¼¥¹´°À®Í½ÁÛCG[½Ðŵ¡§¸ø¼°HP]
¡¡¥é¥¦¥ó¥¸¤Î±ü¤Ë¤Ï¥¥Ã¥º¥¹¥Ú¡¼¥¹¤â¤¢¤ê¤Þ¤¹¡£Â¾¤Ë¤â1³¬¤Ë¤Ï¥ï¡¼¥¥ó¥°¥é¥¦¥ó¥¸¤ä¥é¥ó¥É¥ê¡¼¤âÍѰդµ¤ì¤Þ¤¹¡£

¥²¥¹¥È¥ë¡¼¥à´°À®Í½ÁÛCG[½Ðŵ¡§¸ø¼°HP]
¡¡¥²¥¹¥È¥ë¡¼¥à¤Ï1³¬¤Ë2Éô²°ÍѰդµ¤ì¤Þ¤¹¡£

¥¹¥«¥¤¥é¥¦¥ó¥¸´°À®Í½ÁÛCG[½Ðŵ¡§¸ø¼°HP]
¡¡¹âÁس¬¤Î¶¦ÍÑ»ÜÀߤȤ·¤Æ27³¬¤Ë¥¹¥«¥¤¥é¥¦¥ó¥¸¤¬ÇÛÃÖ¤µ¤ì¤Þ¤¹¡£¥¥Ã¥Á¥ó¥¹¥Ú¡¼¥¹¤âÈ÷¤¨¤Æ¤ª¤ê¡¢¤³¤³¤«¤é¤Ï»ÔÀî»Ô̱ǼÎòֲÐÂç²ñ¤Ê¤É¤ò³Ú¤·¤à¤³¤È¤â¤Ç¤¤ë¾ì½ê¤È¤Ê¤ê¤Þ¤¹¡£
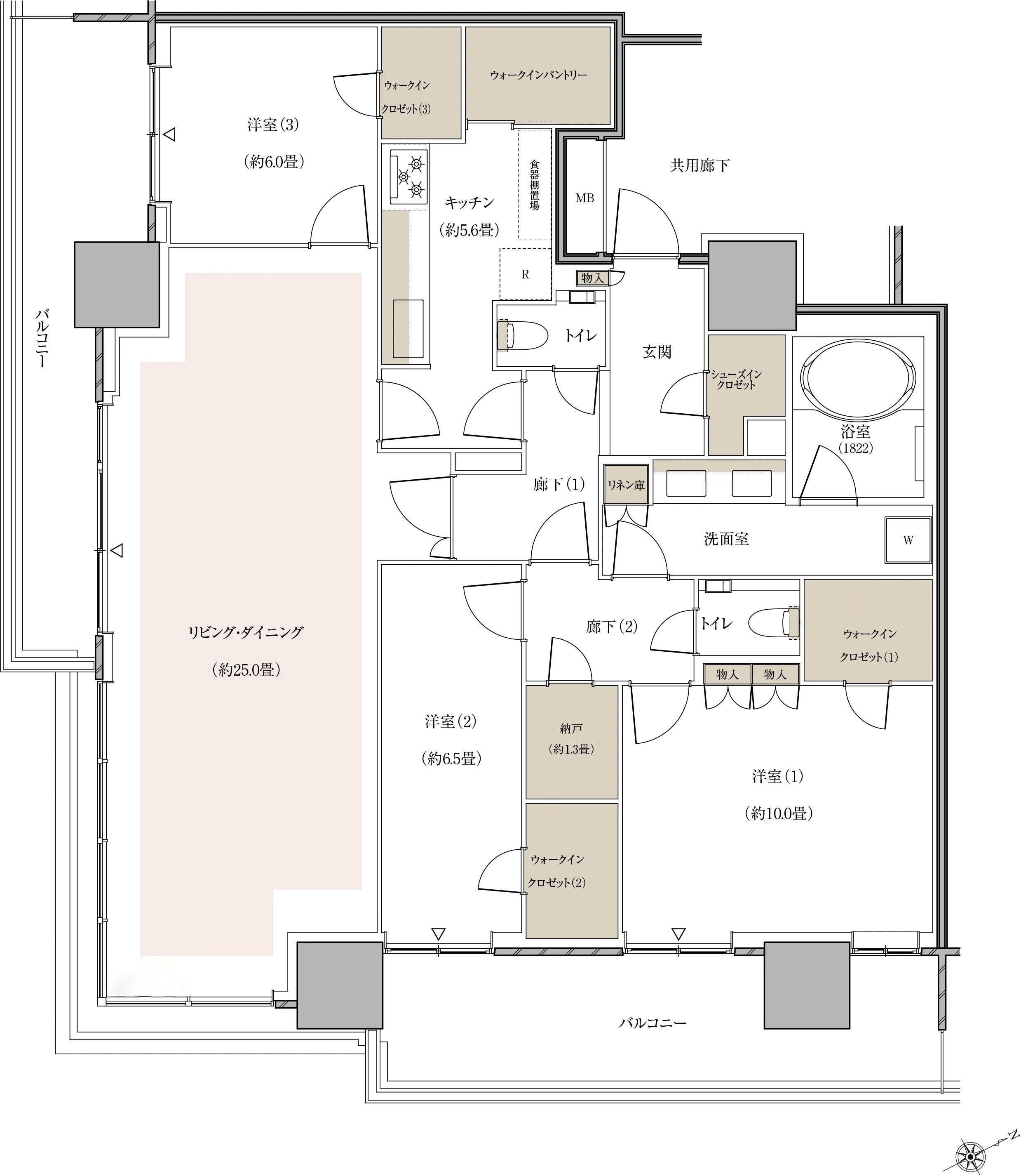
´Ö¼è¤ê¿Þ

N43C1¥¿¥¤¥×[½Ðŵ¡§¸ø¼°HP]
¡¡N43C1¥¿¥¤¥×¤Î´Ö¼è¤ê¿Þ¤Ç¤¹¡£´Ö¼è¤ê¤Ï1LDK+WIC¡¢ÀìÍÌÌÀѤÏ43.20Ö¡¢¥Ð¥ë¥³¥Ë¡¼ÌÌÀѤÏ9.85֤ǡ¢3³¬¤ÎÈÎÇäͽÄê²Á³Ê¤Ï3900Ëü±ßÂæ¤È¤Ê¤Ã¤Æ¤¤¤Þ¤¹¡£

N64B¥¿¥¤¥×[½Ðŵ¡§¸ø¼°HP]
¡¡N64B¥¿¥¤¥×¤Î´Ö¼è¤ê¿Þ¤Ç¤¹¡£´Ö¼è¤ê¤Ï2LDK+WIC+N¡¢ÀìÍÌÌÀѤÏ64.21Ö¡¢¥Ð¥ë¥³¥Ë¡¼ÌÌÀѤÏ14.71֤ǡ¢3³¬¤ÎÈÎÇäͽÄê²Á³Ê¤Ï5500Ëü±ßÂæ¤È¤Ê¤Ã¤Æ¤¤¤Þ¤¹¡£

N70C¥¿¥¤¥×[½Ðŵ¡§¸ø¼°HP]
¡¡SW86N¥¿¥¤¥×¤Î´Ö¼è¤ê¿Þ¤Ç¤¹¡£´Ö¼è¤ê¤Ï3LDK+WIC+N¡¢ÀìÍÌÌÀѤÏ70.43Ö¡¢¥Ð¥ë¥³¥Ë¡¼ÌÌÀѤÏ13.80֤ǡ¢4³¬¤ÎÈÎÇäͽÄê²Á³Ê¤Ï6100Ëü±ßÂæ¤È¤Ê¤Ã¤Æ¤¤¤Þ¤¹¡£

SE93A¥¿¥¤¥×[½Ðŵ¡§¸ø¼°HP]
¡¡SE93A¥¿¥¤¥×¤Î´Ö¼è¤ê¿Þ¤Ç¤¹¡£´Ö¼è¤ê¤Ï4LDK+WIC+SIC+WIP+N¡¢ÀìÍÌÌÀѤÏ93.11Ö¡¢¥Ð¥ë¥³¥Ë¡¼ÌÌÀѤÏ15.83Ö¡Ê3¡Á27³¬¡Ë¡¦28.05Ö¡Ê2³¬¡Ë¤È¤Ê¤Ã¤Æ¤¤¤Þ¤¹¡£

P-SE129O¥¿¥¤¥×[½Ðŵ¡§¸ø¼°HP]
¡¡¥×¥ì¥ß¥¢¥à¥×¥é¥ó¤ÎP-SE129O¥¿¥¤¥×¤Î´Ö¼è¤ê¿Þ¤Ç¤¹¡£´Ö¼è¤ê¤Ï3LDK+3WIC+SIC+WIP+N¡¢ÀìÍÌÌÀѤÏ129.69Ö¡¢¥Ð¥ë¥³¥Ë¡¼ÌÌÀѤÏ29.07֤ǡ¢28³¬¤ÎͽÄêÈÎÇä²Á³Ê¤Ï1²¯9000Ëü±ßÂæ¤È¤Ê¤Ã¤Æ¤¤¤Þ¤¹¡£
°ÌÃÖ¿Þ

°ÌÃÖ¿Þ[½Ðŵ¡§¸ø¼°HP]
¡¡·úÀßÃϤÏJR¡Ö»ÔÀî¡×±Ø¤ÎÆî¸ý¤«¤éÆî¦¤ØÅÌÊâ7ʬ¤Î¾ì½ê¤Ë°ÌÃÖ¤·¤Æ¤ª¤ê¡¢Ë̦ÎÙÀÜÃϤˤϥ¤¥ª¥ó¤¬2025ǯÅ٤˳«¶ÈͽÄê¤È¤Ê¤Ã¤Æ¤¤¤Þ¤¹¡£JR¡Ö»ÔÀî¡×±Ø¤ÏÁíÉðËÜÀþ¤Î³Æ±Ø¤È²÷®¤ÎξÊý¤¬Ää¼Ö¤¹¤ë±Ø¤Ç¡¢¤µ¤é¤ËË̦¡Ê¤³¤ÎÃϿޤα¦¾å¡Ë¤Ë¤ÏµþÀ®ËÜÀþ¡Ö»ÔÀî¿¿´Ö¡×±Ø¤â¤¢¤ê¤Þ¤¹¡£

³°´Ñ´°À®Í½ÁÛCG[½Ðŵ¡§¸ø¼°HP]
¡¡¡Ö¥ê¡¼¥Õ¥·¥Æ¥£»ÔÀî ¥¶¡¦¥¿¥ï¡¼¡×¤ÎÌܤÎÁ°¤Ë³«¶È¤¹¤ë¡Ö(²¾¾Î)¥¤¥ª¥ó¥¹¥¿¥¤¥ë»ÔÀîÆî¡×¤Ï1³¬¤¬¥¹¡¼¥Ñ¡¼¥Þ¡¼¥±¥Ã¥È¡¢2³¬¤¬¥Æ¥Ê¥ó¥È6ŹÊޤǷײ褵¤ì¤Æ¤ª¤ê¡¢24»þ´Ö±Ä¶È¤Ë¤Ê¤ëͽÄê¤Ç¤¹¡£
·úÀß¾õ¶·

¡¡2025ǯ8·î9Æü¤ËËÌÅ즤«¤é»£±Æ¤·¤¿¡Ö¥ê¡¼¥Õ¥·¥Æ¥£»ÔÀî ¥¶¡¦¥¿¥ï¡¼¡×(ÃϾå29³¬¡¢¹â¤µ104.15m)¤Ç¤¹¡£¤³¤Îƻϩ¤òË̦¤Ë¿¿¤Ã¤¹¤°¿Ê¤à¤ÈJR»ÔÀî±ØÆî¸ýÁ°¤Î¥í¡¼¥¿¥ê¡¼¤¬¤¢¤ê¤Þ¤¹¡£

¡¡ÆîÅ즤«¤é»£±Æ¡£³ÑÉô²°¤À¤±¥Í¥Ã¥È¤¬Å±µî¤µ¤ì³°´Ñ¤¬¥¥ì¥¤¤Ë¸«¤¨¤ë¤è¤¦¤Ë¤Ê¤Ã¤Æ¤¤¤Þ¤¹¡£

¡¡¾¯¤·Æî¦¤Ë¹Ô¤Ã¤¿¤È¤³¤í¤Ë¤¢¤ëT»úÏ©¤«¤é»£±Æ¡£

¡¡¤µ¤é¤ËÆî¦¤Ë°Üư¤·¤Æ¹¾¸ÍÀî¤Î²ÏÀîÉߤ«¤é»£±Æ¡£16³¬¤Þ¤Ç·úÀߤ¬¿Ê¤ó¤Ç¤¤¤Þ¤·¤¿¡£

¡¡º¸Î٤ϥ·¥Ë¥¢½»Âð¤Î¡Ö¥ª¥¦¥«¥¹ ¥ê¡¼¥Õ¥·¥Æ¥£»ÔÀî¡×(ÃϾå10³¬)¤Ç¤¹¡£¤½¤·¤ÆÇظå¤Ë¸«¤¨¤Æ¤¤¤ë¥¿¥ï¡¼¥Þ¥ó¥·¥ç¥ó¤¬»ÔÀî±ØÄ¾·ë¤Î¡ÖI-link¥¿¥¦¥ó¤¤¤Á¤«¤ï ¥¶¡¦¥¿¥ï¡¼¥º¥¦¥¨¥¹¥È ¥×¥ì¥ß¥¢¥ì¥¸¥Ç¥ó¥¹¡×(ÃϾå45³¬¡¢¹â¤µ160m)¤È¡ÖI-link¥¿¥¦¥ó¤¤¤Á¤«¤ï ¥¶¡¦¥¿¥ï¡¼¥º¥¤¡¼¥¹¥È¡×(ÃϾå37³¬¡¢¹â¤µ130m)¤Ç¤¹¡£

¡¡ÆîÀ¾Â¦¤«¤é»£±Æ¡£¤³¤Î¥»¥Ö¥ó¥¤¥ì¥Ö¥ó¤â¡Ö¥ê¡¼¥Õ¥·¥Æ¥£»ÔÀî¡×(2023ǯ12·î³«¶È)¤Ë´Þ¤Þ¤ì¤Æ¤¤¤Þ¤¹¡£

¡¡¡ÖI-link¥¿¥¦¥ó¤¤¤Á¤«¤ï ¥¶¡¦¥¿¥ï¡¼¥º¥¦¥¨¥¹¥È ¥×¥ì¥ß¥¢¥ì¥¸¥Ç¥ó¥¹¡×¤ÎºÇ¾å³¬¤Ë¤¢¤ë¥¢¥¤¡¦¥ê¥ó¥¯¥¿¥¦¥óŸ˾»ÜÀߤ«¤é»£±Æ¤·¤¿¡Ö¥ê¡¼¥Õ¥·¥Æ¥£»ÔÀî ¥¶¡¦¥¿¥ï¡¼¡×¤Ç¤¹¡£¤³¤ÎŸ˾¼¼¤Ïʬ¾ù¥¿¥ï¥Þ¥ó¤ÎºÇ¾å³¬¤Ë¤¢¤ê¤Þ¤¹¤¬¡¢»ÔÀî»Ô¤¬±¿±Ä¤·¤Æ¤ª¤êï¤Ç¤â̵ÎÁ¤Ç¹Ô¤±¤ë¾ì½ê¤È¤Ê¤Ã¤Æ¤¤¤Þ¤¹¡£

¡¡¹³Ñ¤Ç»£±Æ¡£¼êÁ°¤Î¥Þ¥ó¥·¥ç¥ó¡Ö¥ê¡¼¥Õ¥·¥Æ¥£»ÔÀî ¥¶¡¦¥ì¥¸¥Ç¥ó¥¹¡×(ÃϾå9³¬¡¢¹â¤µ28.30m)¤ä±¦Â¦¤Î±¿Æ°¾ì¤â¡Ö¥ê¡¼¥Õ¥·¥Æ¥£»ÔÀî¡×¤Ë´Þ¤Þ¤ì¤Æ¤ª¤ê¡¢¡Ö¥ê¡¼¥Õ¥·¥Æ¥£»ÔÀî ¥¶¡¦¥¿¥ï¡¼¡×Á°¤Ç¤Ï¡Ö(²¾¾Î)¥¤¥ª¥ó¥¹¥¿¥¤¥ë»ÔÀîÆî¡×¤¬·úÀßÃæ¤Ç¤¹¡£

¡¡¤½¤Î¡Ö(²¾¾Î)¥¤¥ª¥ó¥¹¥¿¥¤¥ë»ÔÀîÆî¡×¤Ç¤ÏÅ´¹ü¤¬ÁÈ¤Þ¤ì¤Æ¤¤¤Þ¤·¤¿¡£1³¬¤¬¥¹¡¼¥Ñ¡¼¥Þ¡¼¥±¥Ã¥È¡¢2³¬¤¬¥Æ¥Ê¥ó¥È6ŹÊޤǷײ褵¤ì¤Æ¤¤¤Þ¤¹¡£»ÔÀî±Ø¤ÏË̸ý¦¤Ë¾¦¶È¥¨¥ê¥¢¤¬½¸Ã椷¤Æ¤ª¤ê¡¢Æî¸ý¦¤Ï½»Â𳹤Ȥ¤¤Ã¤¿´¶¤¸¤È¤Ê¤Ã¤Æ¤¤¤Þ¤¹¤¬¡¢¤³¤³¤¬½ÐÍè¤ë¤ÈÆî¸ý¥¨¥ê¥¢¤ÎÍøÊØÀ¤¬¸þ¾å¤¹¤ë¤³¤È¤Ë¤Ê¤ê¤½¤¦¤Ç¤¹¡£

¡¡Æ±¤¸Æü¤Ë¹¾¸ÍÀî¶è¤ÎË¿¥¿¥ï¡¼¥Þ¥ó¥·¥ç¥ó¤«¤é»£±Æ¤·¤¿¡Ö¥ê¡¼¥Õ¥·¥Æ¥£»ÔÀî ¥¶¡¦¥¿¥ï¡¼¡×¤Ç¤¹¡£²£Éý¤¬¤¢¤ë¥¿¥ï¡¼¥Þ¥ó¥·¥ç¥ó¤Ç¡¢¹¾¸ÍÀî¤ÇƱ»þ³«ºÅ¤µ¤ì¤ë»ÔÀî»Ô̱ǼÎòֲÐÂç²ñ¤È¹¾¸ÍÀî¶è²Ö²ÐÂç²ñ¤ò¸«¤ëÆÃÅùÀʤˤʤê¤Þ¤¹¡£µÕ¤Ë¤³¤Î¥¿¥ï¥Þ¥ó¤Ë¤è¤Ã¤Æ²Ö²Ð¤¬¸«¤¨¤Ê¤¯¤Ê¤ë²È¤â½Ð¤Æ¤¯¤ë¤È¸À¤¨¤Þ¤¹¡£
ÃÏ¿Þ
ʪ·ï³µÍ×

¡¡·úÃ۷ײè¤Î¤ªÃΤ餻¤Ç¤¹¡£²¼µ¤Îʪ·ï³µÍפϸø¼°HP¤ÎÃͤòÍ¥À褷¤Æ·ÇºÜ¤·¤Æ¤¤¤Þ¤¹¡£
¢£Êª·ï³µÍ×¢£
̾¾Î¡§¥ê¡¼¥Õ¥·¥Æ¥£»ÔÀî ¥¶¡¦¥¿¥ï¡¼
»ö¶È̾¡§(²¾¾Î)ÀéÍÕ¸©»ÔÀî»Ô»ÔÀîÆîÆóÃúÌÜ(µþÍÕ¥¬¥¹»ÔÀ¾ìÀ×ÃÏ)·×²è¶¦Æ±½»Âð(ʬ¾ù)¡¦Êݰé½ê
½êºßÃÏ¡§ÀéÍÕ¸©»ÔÀî»Ô»ÔÀîÆî£²ÃúÌÜ£¸£¹ÈÖ£±Â¾¡ÊÃÏÈÖ¡Ë
¸òÄÌ¡§JRÁíÉðËÜÀþ¡Ö»ÔÀî¡×±Ø ÅÌÊâ7ʬ
ÍÑÅÓ¡§¶¦Æ±½»Âð¡¦Êݰé½ê
Áí¸Í¿ô¡§674¸Í¡Ê¾¤ËÊݰé»ÜÀß1¶è²è¡Ë
³¬¿ô¡§ÃϾå29³¬
¹â¤µ¡§104.15m
¹½Â¤¡§Å´¶Ú¥³¥ó¥¯¥ê¡¼¥È¤¡¢Ìȿ̹½Â¤
´ðÁù©Ë¡¡§¹º´ðÁÃ
ÉßÃÏÌÌÀÑ¡§12,200.02Ö
·úÃÛÌÌÀÑ¡§5,340.88Ö
±ä¾²ÌÌÀÑ¡§71,594.63Ö
·úÃۼ硦Çä¼ç¡§»°°æÉÔÆ°»º¥ì¥¸¥Ç¥ó¥·¥ã¥ë¡¢Ìî¼ÉÔÆ°»º¡¢»°É©ÃϽê¥ì¥¸¥Ç¥ó¥¹
Àß·×¼Ô¡§Ä¹Ã«¹©¥³¡¼¥Ý¥ì¡¼¥·¥ç¥ó¡¢
»Ü¹©¼Ô¡§Ä¹Ã«¹©¥³¡¼¥Ý¥ì¡¼¥·¥ç¥ó
¹©´ü¡§2023ǯ9·î29ÆüÃ幩¡Á2026ǯ10·î²¼½Ü½×¹©Í½Äê
Æþµï¡§2027ǯ1·î²¼½ÜͽÄê
Äê´ü¼ÚÃϸ¢¡§2100ǯ11·î14Æü¤Þ¤Ç
½Ðŵ
¢§¸ø¼°HP¡§¥ê¡¼¥Õ¥·¥Æ¥£»ÔÀî ¥¶¡¦¥¿¥ï¡¼
https://www.31ichikawa.com/shinchiku/G2004001/
¢§Ìî¼ÉÔÆ°»º¡§¥×¥ì¥¹¥ê¥ê¡¼¥¹¡Ê2023ǯ11·î15Æü¡Ë
Á´ÂÎÉßÃÏÌÌÀÑÌó3.8ha¡¢¶¦Æ±½»Âð¡Êʬ¾ù¡¦ÄÂÂߡˡ¢¾¦¶È»ÜÀßÅù¤È¤ÎÂ絬ÌÏÊ£¹ç³«È¯¡¡Âè7ÃÆ ·ò¹¯Áý¿Ê·¿¡¦ÄÂÂߥ·¥Ë¥¢¥ì¥¸¥Ç¥ó¥¹¡Ö¥ª¥¦¥«¥¹»ÔÀî¡× Ã幩¡¡ÀéÍÕ¸©ÆâÅö¼ÒºÇÂ絬ÌÏ¡¦Áí¸Í¿ô181¸Í¡¢2025ǯ½©³«¶ÈͽÄê
¢§µþÍÕ¥¬¥¹¡§¥×¥ì¥¹¥ê¥ê¡¼¥¹¡Ê2023ǯ10·î2Æü¡Ë
¡Ö¡Ê²¾¾Î¡ËÀéÍÕ¸©»ÔÀî»Ô»ÔÀîÆîÆóÃúÌܡʵþÍÕ¥¬¥¹»ÔÀ¾ìÀ×Ãϡ˷ײ趦Ʊ½»Âð¡ÊÄÂÂߡˡ¦Ãϰè¹×¸¥»ÜÀß¡×Ã幩¤Î¤ªÃΤ餻
¢§µþÍÕ¥¬¥¹¡§¥×¥ì¥¹¥ê¥ê¡¼¥¹¡Ê2022ǯ6·î24Æü¡Ë
µþÍÕ¥¬¥¹»ÔÀ¾ìÀ×Ãϳ«È¯»ö¶È¤Ë´Ø¤¹¤ë¤ªÃΤ餻
- ¥«¥Æ¥´¥ê
- »ÔÀî»Ô







