
¡¡»¥ËÚ¤ÎÂçÄ̱ؤ¬ÅÌÊâ·÷¤Îʬ¾ù¥¿¥ï¥Þ¥ó¡Ö¥ì¡¦¥¸¥§¥¤¥É»¥ËÚÂçÄÌ¥¶¡¦¥¿¥ï¡¼¡×(ÃϾå19³¬¡¢ºÇ¹â¹â¤µ59.96m)¤Î·úÀßÃϤǤ¹¡£2025ǯ6·î20Æü¤Ë»£±Æ¤·¤Þ¤·¤¿¡£2¡Á9³¬¤Ï̱ÇñÂбþ²Äǽ½»¸Í¤È¤Ê¤Ã¤Æ¤ª¤ê¡¢¥¨¥ì¥Ù¡¼¥¿¡¼¤Ï̱ÇñÂбþ³¬ÀìÍѤÈ10³¬°Ê¾å¤Î¹âÁس¬ÀìÍѤËʬ¤«¤ì¤Þ¤¹¡£¤³¤Îµ»ö¤Ç¤ÏƱ¥¿¥ï¥Þ¥ó¤Î³µÍפä·úÀß¾õ¶·¡¢ÃÏ¿ÞÅù¤òºÜ¤»¤Æ¤¤¤Þ¤¹¡£
¥ì¡¦¥¸¥§¥¤¥É»¥ËÚÂçÄÌ¥¶¡¦¥¿¥ï¡¼¤Ë¤Ä¤¤¤Æ

³°´Ñ´°À®Í½ÁÛCG[½Ðŵ¡§ÆüËÜ¥¨¥¹¥³¥ó]
¡¡¡Ö¥ì¡¦¥¸¥§¥¤¥É»¥ËÚÂçÄÌ¥¶¡¦¥¿¥ï¡¼¡×¤Ï»¥ËÚ¤ÎÂçÄ̱ؤ¬ÅÌÊâ·÷¤Î¥¿¥ï¡¼¥Þ¥ó¥·¥ç¥ó¤Ç¡¢µ¬ÌϤÏÃϾå19³¬¡¢Åã²°2³¬¡¢Ãϲ¼1³¬¡¢¹â¤µ59.41m¡¢ºÇ¹â¹â¤µ59.96m¡¢ÉßÃÏÌÌÀÑ821.30Ö¡¢·úÃÛÌÌÀÑ433.04Ö¡¢±ä¾²ÌÌÀÑ6,468.76Ö¡¢Áí¸Í¿ô80¸Í¡¢·úÃÛ¼ç¡ÊÇä¼ç¡Ë¤ÏÆüËÜ¥¨¥¹¥³¥ó¡¢Àß·×¼Ô¤ÏKSÀß·×¼¼¡¢»Ü¹©¼Ô¤Ïº½»ÒÁȤǡ¢2026ǯ8·î²¼½Ü½×¹©¡¢2026ǯ9·î²¼½ÜÆþµï³«»ÏͽÄê¤È¤Ê¤Ã¤Æ¤¤¤Þ¤¹¡£
¡¡2025ǯ8·î¾å½Ü¤«¤é¤ÏÂè4´ü3¼¡¤ÎÈÎÇ䳫»ÏͽÄê¤Ç¡¢Âè4´ü3¼¡¤â´Þ¤àº£¸å¤ÎͽÄêÈÎÇä½»¸ÍÁ´ÂΤδּè¤ê¤Ï1LDK¡Á3LDK¡¢ÀìÍÌÌÀѤÏ41.39Ö¡Á83.00Ö¡¢¥Ð¥ë¥³¥Ë¡¼ÌÌÀѤÏ5.72Ö¡Á11.05Ö¡¢¼¼³°µ¡ÃÖ¾ìÌÌÀѤÏ1.14Ö¡Á2.44֤ȤʤäƤ¤¤Þ¤¹¡£¤Þ¤¿¡¢2¡Á9³¬¤Ï̱ÇñÂбþ²Äǽ½»¸Í¤È¤Ê¤ê¡¢¥¨¥ì¥Ù¡¼¥¿¡¼¤Ï̱ÇñÂбþ³¬ÀìÍѤÈ10³¬°Ê¾å¤Î¹âÁس¬ÀìÍѤËʬ¤«¤ì¤Þ¤¹¡£

¥¨¥ó¥È¥é¥ó¥¹¥¢¥×¥í¡¼¥Á´°À®Í½ÁÛCG[½Ðŵ¡§¸ø¼°HP]
¡¡¥¨¥ó¥È¥é¥ó¥¹¥¢¥×¥í¡¼¥Á¤Î´°À®Í½ÁۿޤǤ¹¡£

¥¨¥ó¥È¥é¥ó¥¹¥é¥¦¥ó¥¸´°À®Í½ÁÛCG[½Ðŵ¡§¸ø¼°HP]
¡¡¥¨¥ó¥È¥é¥ó¥¹¥é¥¦¥ó¥¸¤Î´°À®Í½ÁۿޤǤ¹¡£

¥¨¥ó¥È¥é¥ó¥¹¥é¥¦¥ó¥¸´°À®Í½ÁÛCG[½Ðŵ¡§¸ø¼°HP]
¡¡¥¨¥ó¥È¥é¥ó¥¹¥é¥¦¥ó¥¸¤Ï¼«Á³ÁǺà¤ä¥¢¡¼¥È¤òÇÛ¤·¤¿2ÁØ¿áÈ´¤±¤Î½Å¸ü¤Ê¥é¥¦¥ó¥¸¤È¤Ê¤ê¤Þ¤¹¡£

¥ë¡¼¥Õ¥È¥Ã¥×¥Æ¥é¥¹¡ÊŸ˾¥Ç¥Ã¥¡Ë´°À®Í½ÁÛCG[½Ðŵ¡§¸ø¼°HP]
¡¡¶¦ÍÑ»ÜÀߤȤ·¤Æ²°¾å¤Ë¤Ï¥ë¡¼¥Õ¥È¥Ã¥×¥Æ¥é¥¹¡ÊŸ˾¥Ç¥Ã¥¡Ë¤¬Àߤ±¤é¤ì¡¢»¥ËÚ»Ô³¹¤ò°ì˾¤Ç¤¤ë²°³°¶õ´Ö¤È¤Ê¤ê¤Þ¤¹¡£
´Ö¼è¤ê

A¥¿¥¤¥×[½Ðŵ¡§¸ø¼°HP]
¡¡2¡Á18³¬¤ËÇÛÃÖ¤µ¤ì¤ëA¥¿¥¤¥×¤Î´Ö¼è¤ê¿Þ¤Ç¤¹¡£´Ö¼è¤ê¤Ï1LDK+WTC+N¡¢ÀìÍÌÌÀѤÏ45.34Ö¡ÊËɺÒÈ÷ÃßÁÒ¸ËÌÌÀÑ0.71Ö´Þ¤à¡Ë¡¢¥Ð¥ë¥³¥Ë¡¼ÌÌÀѤÏ9.50֤ȤʤäƤ¤¤Þ¤¹¡£

D¥¿¥¤¥×[½Ðŵ¡§¸ø¼°HP]
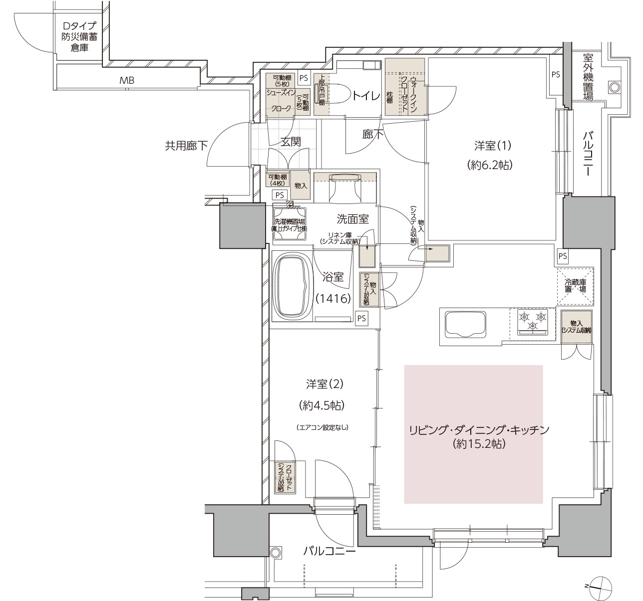
¡¡2¡Á12³¬¤ËÇÛÃÖ¤µ¤ì¤ëD¥¿¥¤¥×¤Î´Ö¼è¤ê¿Þ¤Ç¤¹¡£´Ö¼è¤ê¤Ï2LDK+WIC+SIC¡¢ÀìÍÌÌÀѤÏ61.82Ö¡ÊËɺÒÈ÷ÃßÁÒ¸ËÌÌÀÑ1.00Ö´Þ¤à¡Ë¡¢¥Ð¥ë¥³¥Ë¡¼ÌÌÀѤÏ6.27֤ȤʤäƤ¤¤Þ¤¹¡£

G¥¿¥¤¥×[½Ðŵ¡§¸ø¼°HP]
¡¡13¡Á18³¬¤ËÇÛÃÖ¤µ¤ì¤ëG¥¿¥¤¥×¤Î´Ö¼è¤ê¿Þ¤Ç¤¹¡£´Ö¼è¤ê¤Ï3LDK+WIC+WTC+SIC¡¢ÀìÍÌÌÀѤÏ83.00Ö¡ÊËɺÒÈ÷ÃßÁÒ¸ËÌÌÀÑ1.02Ö´Þ¤à¡Ë¡¢¥Ð¥ë¥³¥Ë¡¼ÌÌÀѤÏ10.21֤ȤʤäƤ¤¤Þ¤¹¡£G¥¿¥¤¥×¤ÏÃó¼Ö¾ìÍ¥À踢ÉÕ¤¤Î¥×¥ì¥ß¥¢¥à¥×¥é¥ó¤Ç¤¹¡£
°ÌÃÖ¿Þ

°ÌÃÖ¿Þ[½Ðŵ¡§¸ø¼°HP]
¡¡·úÀßÃϤÏJR»¥ËÚ±Ø¤ÎÆîÅ즡¢»Ô±ÄÃϲ¼Å´¡ÖÂçÄ̡ױؤÎËÌÅ즤ǡ¢»Ô±ÄÃϲ¼Å´¡Ö¤µ¤Ã¤Ý¤í¡×±Ø¤äÃϲ¼Å´ÅìÀ¾Àþ¡Ö¥Ð¥¹¥»¥ó¥¿¡¼Á°¡×±Ø¤¬ÅÌÊâ·÷¤ËÅÀºß¤·¤Æ¤¤¤Þ¤¹¡£¤Þ¤¿¡¢¸½ºß·úÀßÃæ¤ÎË̳¤Æ»¿·´´Àþ¡Ö»¥Ëڡױؤˤâ¶á¤¤Î©ÃϤȤʤäƤ¤¤Þ¤¹¡£
·úÀß¾õ¶·

¡¡2025ǯ6·î20Æü¤Ë»£±Æ¤·¤¿¡Ö¥ì¡¦¥¸¥§¥¤¥É»¥ËÚÂçÄÌ¥¶¡¦¥¿¥ï¡¼¡×(ÃϾå19³¬¡¢ºÇ¹â¹â¤µ59.96m)¤Î·úÀßÃϤǤ¹¡£

¡¡»£±Æ»þ¤Ë¤Ï11³¬¤¢¤¿¤ê¤¬·úÀßÃæ¤Ç¤·¤¿¡£

¡¡ÄãÁس¬¤Î2¡Á9³¬¤Ï̱ÇñÂбþ²Äǽ½»¸Í¤È¤Ê¤Ã¤Æ¤¤¤Þ¤¹¡£

¡¡Æ±¤¸Æü¤Ë¡Ö¤µ¤Ã¤Ý¤í¥Æ¥ì¥ÓÅã¡×¤ÎŸ˾¼¼¤«¤é»£±Æ¡£Ìð°õ¤òÆþ¤ì¤¿¾ì½ê¤Ë¡Ö¥ì¡¦¥¸¥§¥¤¥É»¥ËÚÂçÄÌ¥¶¡¦¥¿¥ï¡¼¡×¤¬¸«¤¨¤ë¤è¤¦¤Ë¤Ê¤ê¤Þ¤¹¡£

¡¡Æ±¤¸Æü¤Ë¡ÖJR¥¿¥ï¡¼¡×¤ÎŸ˾¼¼¤«¤é»£±Æ¡£Ìð°õ¤òÆþ¤ì¤¿¾ì½ê¤¬¡Ö¥ì¡¦¥¸¥§¥¤¥É»¥ËÚÂçÄÌ¥¶¡¦¥¿¥ï¡¼¡×¤Î·úÀßÃϤǤ¹¡£

¡¡¥Þ¥ó¥·¥ç¥óËÜÂΤ¬°ìÉô¸«¤¨¤Æ¤¤¤Þ¤·¤¿¡£
ÃÏ¿Þ
ʪ·ï³µÍ×

¡¡·úÃ۷ײè¤Î¤ªÃΤ餻¤Ç¤¹¡£
¢£Êª·ï³µÍ×¢£
̾¾Î¡§¥ì¡¦¥¸¥§¥¤¥É»¥ËÚÂçÄÌ¥¶¡¦¥¿¥ï¡¼
»ö¶È̾¡§(²¾¾Î)N2E2¿·ÃÛ¹©»ö
½êºßÃÏ¡§Ë̳¤Æ»»¥ËÚ»ÔÃæ±û¶èËÌ2¾òÅì2ÃúÌÜ1ÈÖ19
¸òÄÌ¡§Ãϲ¼Å´ÆîËÌÀþ¡¦ÅìËÀþ¡Ö¤µ¤Ã¤Ý¤í¡×±Ø ÅÌÊâ6ʬ
¡¡¡¡¡¡Ãϲ¼Å´ÆîËÌÀþ¡¦ÅìÀ¾Àþ¡¦ÅìËÀþ¡ÖÂçÄÌ¡×±Ø ÅÌÊâ7ʬ
¡¡¡¡¡¡JRË̳¤Æ»¿·´´Àþ¡Ö»¥ËÚ¡×±Ø Åì²þ»¥¸ý ÅÌÊâ7ʬ¡Ê·úÀßÃæ¡Ë
ÍÑÅÓ¡§¶¦Æ±½»Âð
Áí¸Í¿ô¡§80¸Í¡¢´ÉÍý¼¼1¸Í
³¬¿ô¡§ÃϾå19³¬¡¢Åã²°2³¬¡¢Ãϲ¼1³¬
¹â¤µ¡§59.41m¡ÊºÇ¹â¹â¤µ59.96m¡Ë
¹½Â¤¡§Å´¶Ú¥³¥ó¥¯¥ê¡¼¥È¤
ÉßÃÏÌÌÀÑ¡§821.30Ö
·úÃÛÌÌÀÑ¡§433.04Ö
±ä¾²ÌÌÀÑ¡§6,468.76Ö
·úÃÛ¼ç¡ÊÇä¼ç¡Ë¡§ÆüËÜ¥¨¥¹¥³¥ó
Àß·×¼Ô¡§KSÀß·×¼¼
»Ü¹©¼Ô¡§º½»ÒÁÈ
¹©´ü¡§2042ǯ6·î1ÆüÃ幩¡Á2026ǯ8·î²¼½Ü½×¹©Í½Äê
Æþµï¡§2026ǯ9·î²¼½ÜͽÄê
½Ðŵ
¢§¸ø¼°HP¡§¥ì¡¦¥¸¥§¥¤¥É»¥ËÚÂçÄÌ¥¶¡¦¥¿¥ï¡¼
https://sumai.es-conjapan.co.jp/sapporoodori80/
¢§ÆüËÜ¥¨¥¹¥³¥ó¡§¥×¥ì¥¹¥ê¥ê¡¼¥¹¡Ê2024ǯ11·î7Æü¡Ë
½»Âðʬ¾ù»ö¶È¡Ø¥ì¡¦¥¸¥§¥¤¥É»¥ËÚÂçÄÌ¥¶¡¦¥¿¥ï¡¼¡Ùʬ¾ù³«»Ï¤Î¤ªÃΤ餻
- ¥«¥Æ¥´¥ê
- »¥ËÚ»Ô







