
¡¡¾¡¤É¤ÅìÃ϶è¡Ê¥Ñ¡¼¥¯¥¿¥ï¡¼¾¡¤É¤¡Ë¤ÎÈľõ¥¿¥ï¥Þ¥ó¡Ö¾¡¤É¤ÅìÃ϶èÂè°ì¼ï»Ô³¹ÃϺƳ«È¯»ö¶È BÅï¡×(ÃϾå29³¬¡¢ºÇ¹â¹â¤µ103m)¤Î·úÀßÃϤǤ¹¡£2025ǯ6·î29Æü¤Ë»£±Æ¤·¤Þ¤·¤¿¡£¸½ºß¤Ï´û¸¥Þ¥ó¥·¥ç¥ó¡ÖóÕÌÀ¥¹¥«¥¤¥ì¥¸¥Æ¥ë¡×(ÃϾå14³¬¡¢¹â¤µ41.4m)¤Î²òÂÎÃæ¤Ç¡¢2026ǯ4·î¾å½Ü¤ÎÃ幩ͽÄê¤Ç¤¹¡£¤³¤³¤ÏÀè¤Ë´°À®¤·¤¿Â¾¤ÎÅï¤Î̾¾Î¤«¤é¡Ö¥Ñ¡¼¥¯¥¿¥ï¡¼¾¡¤É¤¥Î¡¼¥¹¡×¤Ë¤Ê¤ë¤ÈͽÁÛ¤µ¤ì¤Æ¤¤¤Þ¤¹¡£¤³¤Îµ»ö¤Ç¤ÏƱ¥¿¥ï¥Þ¥ó¤Î³µÍפä´û¸·úʪ²òÂξõ¶·¡¢ÃÏ¿ÞÅù¤òºÜ¤»¤Æ¤¤¤Þ¤¹¡£
¾¡¤É¤ÅìÃ϶è BÃ϶è¤Ë¤Ä¤¤¤Æ

´°À®Í½ÁÛ¿Þ[½Ðŵ¡§ÅìµþÅԴͶÉ]
¡¡¡Ö¾¡¤É¤ÅìÃ϶èÂè°ì¼ï»Ô³¹ÃϺƳ«È¯»ö¶È BÅï¡×¤ÏīĬ±¿²Ï¤ËÌ̤·¤¿Èľõ¤Î¥¿¥ï¡¼¥Þ¥ó¥·¥ç¥ó¤Ç¡¢¾¡¤É¤ÅìÃ϶è¤Ë¤ÏA1Åï¤È¤·¤Æ¡Ö¥Ñ¡¼¥¯¥¿¥ï¡¼¾¡¤É¤¥µ¥¦¥¹¡×(ÃϾå58³¬¡¢ºÇ¹â¹â¤µ194.53m)¡¢A2Åï¤È¤·¤Æ¡Ö¥Ñ¡¼¥¯¥¿¥ï¡¼¾¡¤É¤¥ß¥Ã¥É¡×(ÃϾå45³¬¡¢ºÇ¹â¹â¤µ164.60m)¤¬2023ǯ¤Ë´°À®¤·¤Æ¤¤¤Þ¤¹¡£
¡¡BÅï¤Î̾¾Î¤Ïȯɽ¤µ¤ì¤Æ¤¤¤Þ¤»¤ó¤¬¡¢A1Åï¡¢A2Åï¤Î̾¾Î¤È°ÌÃÖ´Ø·¸¤«¤é¡Ö¥Ñ¡¼¥¯¥¿¥ï¡¼¾¡¤É¤¥Î¡¼¥¹¡×¤Ë¤Ê¤ë¤³¤È¤¬Í½ÁÛ¤µ¤ì¤Æ¤¤¤Þ¤¹¡£

´°À®Í½ÁÛ¿Þ[½Ðŵ¡§ÅìµþÅÔÅÔ»ÔÀ°È÷¶É]
¡¡Èľõ¥¿¥ï¥Þ¥ó¤È¤Ê¤ëBÅï¤Îµ¬ÌϤÏÃϾå29³¬¡¢Åã²°1³¬¡¢Ãϲ¼1³¬¡¢¹â¤µÌó102m¡¢ºÇ¹â¹â¤µÌó103m¡¢ÉßÃÏÌÌÀÑ3,782.14Ö¡¢·úÃÛÌÌÀÑ2,130Ö¡¢±ä¾²ÌÌÀÑ5Ëü2130Ö¡¢Áí¸Í¿ô464¸Í¤È¤Ê¤Ã¤Æ¤¤¤Þ¤¹¡£
¡¡·úÃÛ¼ç¤Ï¾¡¤É¤ÅìÃ϶è»Ô³¹ÃϺƳ«È¯Áȹ硢»²²ÃÁȹç°÷¤Ï»°°æÉÔÆ°»º¥ì¥¸¥Ç¥ó¥·¥ã¥ë¡¢Àß·×¼Ô¤ÏÀ¶¿å·úÀߤÇ2026ǯ4·î¾å½ÜÃ幩¡¢2029ǯ5·î²¼½Ü¤Î½×¹©Í½Äê¤Ç¤¹¡£

ÇÛÃַײè¿Þ[½Ðŵ¡§ÅìµþÅԴͶÉ]
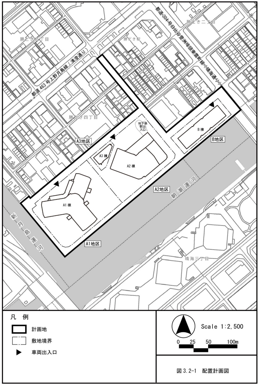
¡¡¾¡¤É¤ÅìÃ϶è¤Î³ÆÅï¤ÏīĬ±¿²Ï¤ËÌ̤·¤Æ¤ª¤ê¡¢BÃ϶è¤ÏÀ²³¤Ä̤ê¤Ë¤âÌ̤·¤Æ¤¤¤Þ¤¹¡£

ÃÇÌÌ¿Þ[½Ðŵ¡§Ãæ±û¶è]
¡¡BÅï¤Ï3³¬¤«¤é¤¬½»Âð¥Õ¥í¥¢¤È¤Ê¤ê¡¢23³¬¤Ë¤Ï¥²¥¹¥È¥ë¡¼¥à¤¬2¼¼ÇÛÃÖ¤µ¤ì¡¢28³¬¤Ë¤Ï¥¹¥«¥¤¥Ç¥Ã¥¤âÇÛÃÖ¤µ¤ì¤Þ¤¹¡£

ÃÇÌÌ¿Þ[½Ðŵ¡§Ãæ±û¶è]
¡¡Ä«Ä¬±¿²Ï¤ËÌ̤·¤¿2³¬¤Ë¤ÏŹÊÞ¤¬ÇÛÃÖ¤µ¤ì¤ë·×²è¤È¤Ê¤Ã¤Æ¤¤¤Þ¤¹¡£
Ê¿ÌÌ¿Þ

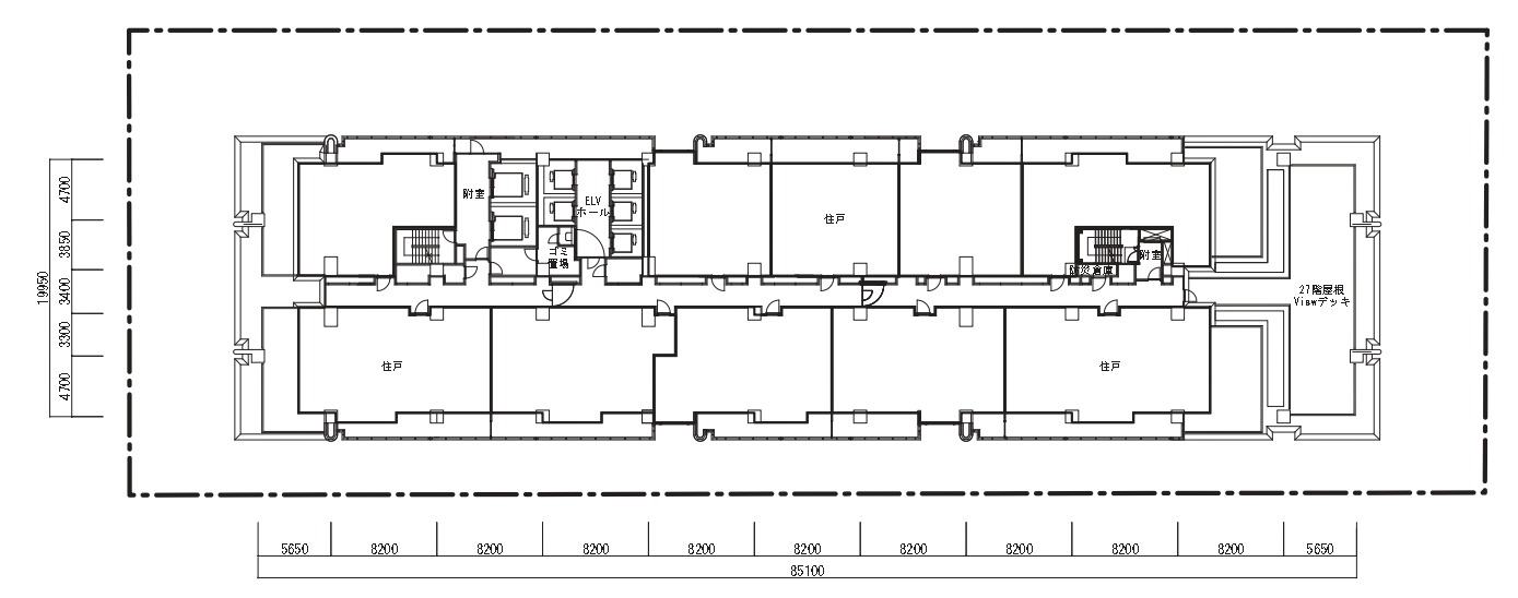
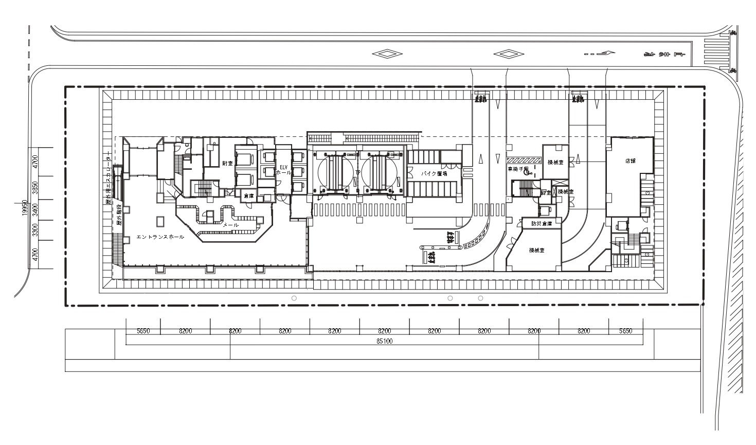
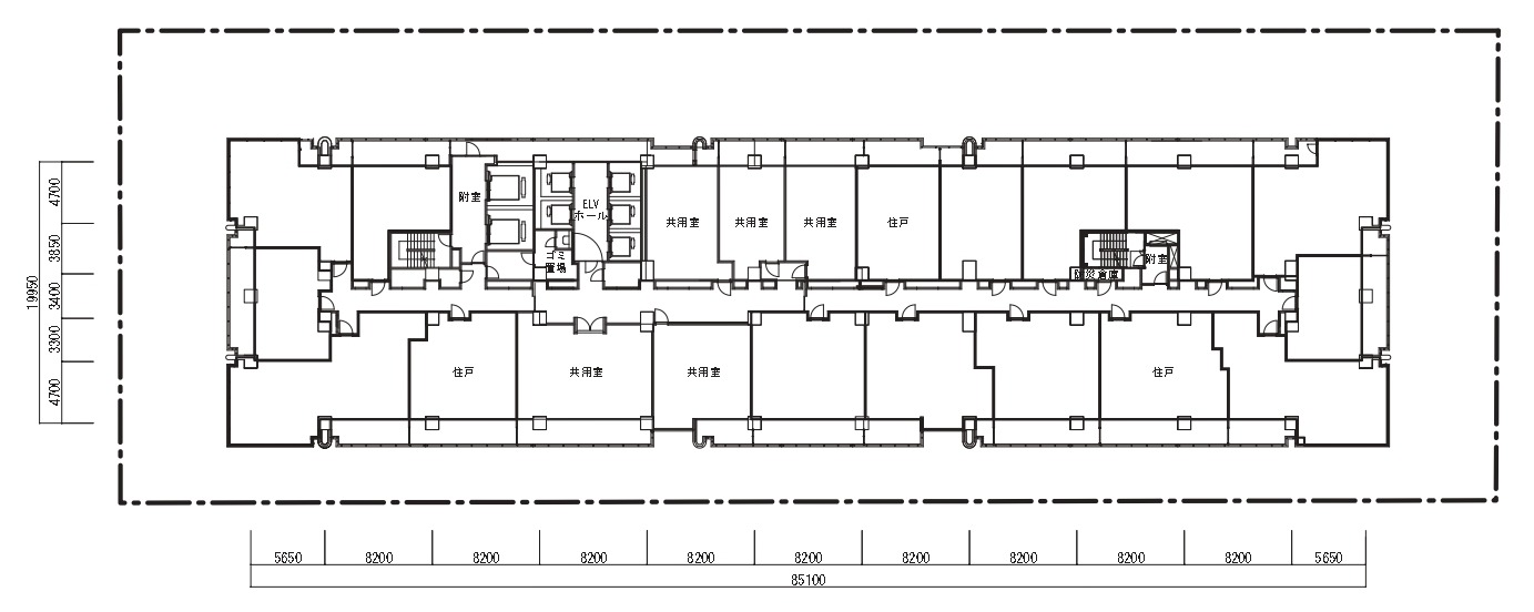
1³¬Ê¿ÌÌ¿Þ[½Ðŵ¡§Ãæ±û¶è]
¡¡BÅï1³¬¤ÎÊ¿Ì̿ޤǤ¹¡£¥¨¥ó¥È¥é¥ó¥¹¤Ï¾¡¤É¤±Ø¤Î½ÐÆþ¸ý¤¬¤¢¤ë¡Ö¥Ñ¡¼¥¯¥¿¥ï¡¼¾¡¤É¤¥ß¥Ã¥É¡×¦¤ËÇÛÃÖ¤µ¤ì¡¢À²³¤Ä̤ê±è¤¤¤Ë¤ÏŹÊÞ¥¹¥Ú¡¼¥¹¤â1¶è²èÍѰդµ¤ì¤Þ¤¹¡£
¡¡¤Þ¤¿¡¢¥¿¥ï¡¼¥Ñ¡¼¥¥ó¥°¤Ï·úʪÆâ¤Ë¤¢¤ë¤¿¤á¡¢±«¤ÎÆü¤Ç¤â»±¤Ê¤·¤Ç¼Ö¤Î½Ð¤·Æþ¤ì¤¬¤Ç¤¤Þ¤¹¡£

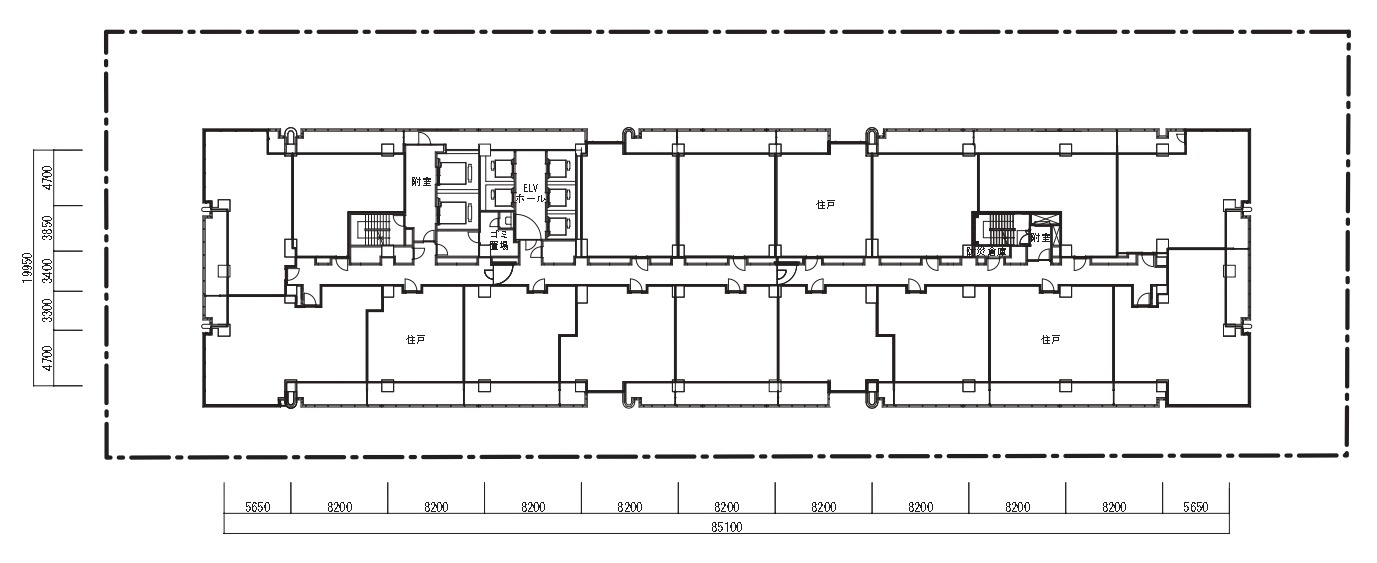
2³¬Ê¿ÌÌ¿Þ[½Ðŵ¡§Ãæ±û¶è]
¡¡2³¬¤Ë¤ÏīĬ±¿²Ï±è¤¤¤òÃæ¿´¤ËŹÊÞ¥¹¥Ú¡¼¥¹¤¬7¶è²èÍѰդµ¤ì¤Þ¤¹¡£

3¡Á22³¬Ê¿ÌÌ¿Þ[½Ðŵ¡§Ãæ±û¶è]
¡¡3³¬¤«¤é¤¬½»Âð¥Õ¥í¥¢¤È¤Ê¤ê¤Þ¤¹¡£Ê¿Ì̿ޤò¸«¤ë¸Â¤ê¤Ç¤Ï¥¨¥ì¥Ù¡¼¥¿¡¼¥Û¡¼¥ë¤«¤é¤ÏÅìµþÅÔ¿´Â¦¤Î·Ê¿§¤ò¸«¤ë¤³¤È¤¬¤Ç¤¤½¤¦¤Ç¤¹¡£

23³¬Ê¿ÌÌ¿Þ[½Ðŵ¡§Ãæ±û¶è]
¡¡23³¬¤Îξ¦¤Ë¶¦ÍÑ»ÜÀߤ¬ÇÛÃÖ¤µ¤ì¤Þ¤¹¡£Ä«Ä¬±¿²Ï¦¤¬¥Ñ¡¼¥Æ¥£¥ë¡¼¥àÅù¤Ç¡¢ÅìµþÅÔ¿´Â¦¡Ê¾¡¤É¤±ØÂ¦¡Ë¤¬¥²¥¹¥È¥ë¡¼¥à¤È¤Ê¤ë¤â¤Î¤È»×¤ï¤ì¤Þ¤¹¡£

24¡Á27³¬Ê¿ÌÌ¿Þ[½Ðŵ¡§Ãæ±û¶è]
¡¡24³¬¤«¤é¤Ï¾¯¤·Éô²°¤¬¹¤¯¤Ê¤ê¤Þ¤¹¡£

28¡Á29³¬Ê¿ÌÌ¿Þ[½Ðŵ¡§Ãæ±û¶è]
¡¡28³¬¡¢29³¬¤Ï¤µ¤é¤ËÉô²°¤¬¹¤¯¤Ê¤ë¤¿¤á¡¢¤¤¤ï¤æ¤ë¥×¥ì¥ß¥¢¥à¥Õ¥í¥¢¤È¤Ê¤ë¤È»×¤ï¤ì¤Þ¤¹¡£¤Þ¤¿¡¢À²³¤Ä̤ꦤˤÎ28³¬¡Ê27³¬¤Î²°º¬Éôʬ¡Ë¤Ë¤Ï¶¦ÍÑ»ÜÀߤȤ·¤Æ¥Ó¥å¡¼¥Ç¥Ã¥¤¬ÇÛÃÖ¤µ¤ì¤Þ¤¹¡£

PH³¬Ê¿ÌÌ¿Þ[½Ðŵ¡§Ãæ±û¶è]
¡¡µ¡³£¼¼¤ÎÊ¿Ì̿ޤǤ¹¡£

R³¬Ê¿ÌÌ¿Þ[½Ðŵ¡§Ãæ±û¶è]
¡¡²°¾å³¬¤ÎÊ¿Ì̿ޤǤ¹¡£
°ÌÃÖ¿Þ

·×²èÃϰÌÃÖ¿Þ[½Ðŵ¡§ÅìµþÅԴͶÉ]
¡¡BÅï¤ÏÅÔ±ÄÂç¹¾¸ÍÀþ¡Ö¾¡¤É¤¡×±ØÆîÅ즤ǡ¢Ä«Ä¬±¿²Ï¤ÈÀ²³¤Ä̤ê¤ËÌ̤·¤¿¾ì½ê¤Ë°ÌÃÖ¤·¤Æ¤¤¤Þ¤¹¡£Î٤ΥߥåɤˤϾ¡¤É¤±Ø¤Î½ÐÆþ¸ý¤¬¤¢¤ë¤¿¤á¡¢ÉÔÆ°»ºÉ½µÅª¤Ë¤Ï±Ø¤Þ¤ÇÅÌÊâ1ʬ¤«2ʬ¤Ë¤Ê¤ë¤È»×¤ï¤ì¤Þ¤¹¡£
´û¸·úʪ²òÂξõ¶·

¡¡2025ǯ6·î29Æü¤Ë»£±Æ¤·¤¿¡Ö¾¡¤É¤ÅìÃ϶èÂè°ì¼ï»Ô³¹ÃϺƳ«È¯»ö¶È BÅï¡×(ÃϾå29³¬¡¢ºÇ¹â¹â¤µ103m)¤Î·úÀßÃϤǤ¹¡£¸½ºß¤Ï´û¸¥Þ¥ó¥·¥ç¥ó¡ÖóÕÌÀ¥¹¥«¥¤¥ì¥¸¥Æ¥ë¡×(ÃϾå14³¬¡¢¹â¤µ41.4m)¤Î²òÂι©»ö¤¬¹Ô¤ï¤ì¤Æ¤¤¤Þ¤¹¡£

¡¡ÃϾåÉô¤Î²òÂΤϽª¤ï¤Ã¤Æ¤ª¤ê¡¢¸½ºß¤ÏÃϲ¼¡¦´ðÁÃÉôʬ¤Î²òÂι©»ö¤¬¹Ô¤ï¤ì¤Æ¤¤¤ë¤è¤¦¤Ç¤·¤¿¡£

¡¡¤µ¤é¤Ë¥º¡¼¥à¤Ç¤¹¡£

¡¡²òÂι©»ö¤Î¹©´ü¤Ï2026ǯ3·î31Æü¤Þ¤Ç¤È¤Ê¤Ã¤Æ¤¤¤Þ¤¹¡£

¡¡¡Ö¥Ñ¡¼¥¯¥¿¥ï¡¼¾¡¤É¤¥ß¥Ã¥É¡×¤È¡Ö(²¾¾Î)¥Ñ¡¼¥¯¥¿¥ï¡¼¾¡¤É¤¥Î¡¼¥¹¡×¤Î´Ö¤Ë¤¢¤ëƻϩ¤Ï¤Û¤Ü¸òÄÌÎ̤¬¤Ê¤¤¤¿¤á¡¢ÅÔ±ÄÂç¹¾¸ÍÀþ¡Ö¾¡¤É¤¡×±Ø¤Î½ÐÆþ¸ý¤Þ¤Ç¤Û¤Ü¥Î¥ó¥¹¥È¥Ã¥×¤Ç¹Ô¤±¤Þ¤¹¡£

¡¡Ä«Ä¬±¿²Ï¤ÎÂдߤȤʤëÀ²³¤Â¦¤«¤é»£±Æ¡£

¡¡Ãæ±û±ü¤Î¥¿¥ï¡¼¥Þ¥ó¥·¥ç¥ó¤Ï¾¡¤É¤±ØÄ¾·ë¤Î¡Ö¾¡¤É¤¥Ó¥å¡¼¥¿¥ï¡¼¡×(ÃϾå55³¬¡¢¹â¤µ193m)¤Ç¡¢ÅÔ±ÄÂç¹¾¸ÍÀþ¡Ö¾¡¤É¤¡×±Ø¤Î²þ»¥¤Þ¤Ç°ìÈֶᤤ¥¿¥ï¥Þ¥ó¤È¤Ê¤Ã¤Æ¤¤¤Þ¤¹¡£

¡¡º¸Â¦¤Î¥¿¥ï¡¼¥Þ¥ó¥·¥ç¥ó¤¬¡Ö¥Ñ¡¼¥¯¥¿¥ï¡¼¾¡¤É¤¥ß¥Ã¥É¡×(ÃϾå45³¬¡¢ºÇ¹â¹â¤µ164.60m)¤Ç±ØÄ¾·ë¤È¤Ê¤Ã¤Æ¤¤¤Þ¤¹¤¬¡¢¤³¤Á¤é¤ÏŤ¤Ãϲ¼ÄÌÏ©¤È¤Ê¤Ã¤Æ¤¤¤ë¤¿¤á²þ»¥¤Þ¤Ç¤Ï¿ôʬ¤«¤«¤ê¤Þ¤¹¡£

¡¡Ä«Ä¬±¿²Ï¤Ë²Í¤«¤ëóÕÌÀ¶¶¡ÊÀ²³¤Ä̤ê¡Ë¤«¤é»£±Æ¡£

¡¡²¾°Ï¤¤¤ÎÃæ¤Ç¤¹¡£Àè¤Ë´°À®¤·¤¿¡Ö¥Ñ¡¼¥¯¥¿¥ï¡¼¾¡¤É¤¡×¤ÏÃæ¸Å»Ô¾ì¤Çʬ¾ù²Á³Ê¤è¤ê¤â¹â³Û¤Ç¼è°ú¤µ¤ì¤Æ¤¤¤Þ¤¹¤¬¡¢¤³¤³¤Ï¤½¤Î¼è°ú²Á³Ê¤òͤ¨¤ë¹â³Ûʪ·ï¤Ë¤Ê¤ê¤½¤¦¤Ç¤¹¡£

¡¡º¸Â¦¤Ë¸«¤¨¤Æ¤¤¤ë¤Î¤ÏÀ²³¤Â¦¤Î¥¿¥ï¡¼¥Þ¥ó¥·¥ç¥ó¤Ç¡¢Ä«Ä¬±¿²Ï¤Ï¥¿¥ï¥Þ¥ó¤Ë¶´¤Þ¤ì¤¿±¿²Ï¤Ë¤Ê¤ê¤Þ¤¹¡£
ÃÏ¿Þ
ʪ·ï³µÍ×

¡¡·úÃ۷ײè¤Î¤ªÃΤ餻¤Ç¤¹¡£»Ü¹©¼Ô¤Ï̤Äê¤È¤Ê¤Ã¤Æ¤¤¤Þ¤¹¤¬¡¢À߷׼ԤǤ¢¤ê´û¸·úʪ¤Î²òÂι©»ö¤âôÅö¤·¤Æ¤¤¤ëÀ¶¿å·úÀߤˤʤë¤È»×¤ï¤ì¤Þ¤¹¡£
¢£Êª·ï³µÍ×¢£
·×²è̾¡§¾¡¤É¤ÅìÃ϶èÂè°ì¼ï»Ô³¹ÃϺƳ«È¯»ö¶È»ÜÀß·úÃÛʪ BÅï
½êºßÃÏ¡§ÅìµþÅÔÃæ±û¶è¾¡¤É¤Æó¡×ÃúÌÜ1900ÈÖ
¸òÄÌ¡§ÅÔ±ÄÂç¹¾¸ÍÀþ¡Ö¾¡¤É¤¡×±Ø
ÍÑÅÓ¡§¶¦Æ±½»Âð¡¢Å¹ÊÞ
Áí¸Í¿ô¡§464¸Í
³¬¿ô¡§ÃϾå29³¬¡¢Åã²°1³¬¡¢Ãϲ¼1³¬
¹â¤µ¡§Ìó102m¡ÊºÇ¹â¹â¤µÌó103m¡Ë
¹½Â¤¡§Å´¶Ú¥³¥ó¥¯¥ê¡¼¥È¤
´ðÁù©Ë¡¡§¹º´ðÁá¢Ä¾ÀÜ´ðÁáʾì½êÂǤÁ¹Ý´É¥³¥ó¥¯¥ê¡¼¥È¹º¡Ë
ÉßÃÏÌÌÀÑ¡§3,782.14Ö
·úÃÛÌÌÀÑ¡§2,130Ö
±ä¾²ÌÌÀÑ¡§52,130Ö
·úÃۼ硧¾¡¤É¤ÅìÃ϶è»Ô³¹ÃϺƳ«È¯Áȹç
»²²ÃÁȹç°÷¡§»°°æÉÔÆ°»º¥ì¥¸¥Ç¥ó¥·¥ã¥ë
Àß·×¼Ô¡§À¶¿å·úÀß
»Ü¹©¼Ô¡§¡Ý
¹©´ü¡§2026ǯ4·î¾å½ÜÃ幩¡Á2029ǯ5·î²¼½Ü½×¹©Í½Äê
½Ðŵ
¢§¸ø¼°HP¡§¥Ñ¡¼¥¯¥¿¥ï¡¼¾¡¤É¤¥ß¥Ã¥É¡¿¥µ¥¦¥¹
https://www.31sumai.com/mfr/X1972/
¢§ÅìµþÅԴͶɡ§´Ä¶±Æ¶Áɾ²Á¿Þ½ñ¡Ê2023ǯ8·î26Æü¡Ë
¡Ö¾¡¤É¤ÅìÃ϶èÂè°ì¼ï»Ô³¹ÃϺƳ«È¯»ö¶È¡× Êѹ¹ÆÏ
¢§ÅìµþÅÔÃæ±û¶è¡§»Ô³¹ÃϺƳ«È¯»ö¶È¡Ê2023ǯ6·î15ÆüÊѹ¹¡Ë
¾¡¤É¤ÅìÃ϶èÂè°ì¼ï»Ô³¹ÃϺƳ«È¯»ö¶È »ö¶È·×²è½ñ
¢§ÅìµþÅÔÅÔ»ÔÀ°È÷¶É
»Ô³¹ÃϺƳ«È¯»ö¶È¤Ë¤Ä¤¤¤Æ¡Ê¾¡¤É¤Åì¡Ë
¢§»°°æÉÔÆ°»º¥ì¥¸¥Ç¥ó¥·¥ã¥ë¡§¥Ë¥å¡¼¥¹¥ê¥ê¡¼¥¹¡Ê2021ǯ6·î2Æü¡Ë
GRAND MARINA TOKYO¡Ö¥Ñ¡¼¥¯¥¿¥ï¡¼¾¡¤É¤¥ß¥Ã¥É/¥µ¥¦¥¹¡× ¥µ¥¦¥¹Åï/7·î¾å½Ü »öÁ°°ÆÆâ²ñ³«ºÅͽÄê ¡Á¥Ë¥å¡¼¥Î¡¼¥Þ¥ë»þÂå¤Î¿Íͤʥ饤¥Õ¥¹¥¿¥¤¥ë¤Î¼Â¸½¤Ø¡Á
- ¥«¥Æ¥´¥ê
- Ãæ±û¶è







