
¡¡Àî¸ý¤Ç·úÀßÃæ¤Îʬ¾ù¥¿¥ï¥Þ¥ó¡Ö¥Ñ¡¼¥¯¥¿¥ï¡¼Àî¸ýËÜÄ®¡×(ÃϾå28³¬¡¢¹â¤µ93.85m)¤Ç¤¹¡£2025ǯ5·î24Æü¤Ë»£±Æ¤·¤Þ¤·¤¿¡£»°°æÉÔÆ°»º¥ì¥¸¥Ç¥ó¥·¥ã¥ë¤Ë¤è¤ëÁí¸Í¿ô255¸Í¡Ê°ìÈÌÈÎÇäÂоݸͿô138¸Í¡Ë¤Î¥¿¥ï¡¼¥Þ¥ó¥·¥ç¥ó¤Ç¡¢Àî¸ý±Ø¤ÎÅì¸ý¤«¤é¹ÓÀîÊýÌ̤ØÅÌÊâ6ʬ¤Î¾ì½ê¤Ë°ÌÃÖ¤·¤Æ¤¤¤Þ¤¹¡£¤³¤Îµ»ö¤Ç¤ÏƱ¥¿¥ï¥Þ¥ó¤Î³µÍפä·úÀß¾õ¶·¡¢ÃÏ¿ÞÅù¤òºÜ¤»¤Æ¤¤¤Þ¤¹¡£
¥Ñ¡¼¥¯¥¿¥ï¡¼Àî¸ýËÜÄ®¤Ë¤Ä¤¤¤Æ

³°´Ñ´°À®Í½ÁÛCG[½Ðŵ¡§¸ø¼°HP]
¡¡¡Ö¥Ñ¡¼¥¯¥¿¥ï¡¼Àî¸ýËÜÄ®¡×¤ÏJR¡ÖÀî¸ý¡×±ØÅì¸ý¤«¤é¹ÓÀî¦¡ÊÆî¦¡Ë¤ØÅÌÊâ6ʬ¤Î¥¿¥ï¡¼¥Þ¥ó¥·¥ç¥ó¤Ç¡¢µ¬ÌϤÏÃϾå28³¬¡¢Ãϲ¼1³¬¡¢¹â¤µ93.85mm¡¢ÉßÃÏÌÌÀÑ4,753.85Ö¡¢·úÃÛÌÌÀÑ2,217.31Ö¡¢±ä¾²ÌÌÀÑ2Ëü5291.99֤ȤʤäƤ¤¤Þ¤¹¡£
¡¡·úÃÛ¼ç¤ÏÀî¸ýËÜÄ®4ÃúÌÜ9ÈÖÃ϶è»Ô³¹ÃϺƳ«È¯Áȹç¡Ê»²²ÃÁȹç°÷¡¦Çä¼ç¡§»°°æÉÔÆ°»º¥ì¥¸¥Ç¥ó¥·¥ã¥ë¡Ë¡¢Àß·×¼Ô¤ÏGA·úÃÛÀß·×¼Ò¡¢»Ü¹©¼Ô¤Ïº´Æ£¹©¶È¤Ç2026ǯ7·î²¼½Ü½×¹©¡¢2026ǯ9·î²¼½Ü¤ÎÆþµï³«»ÏͽÄê¤Ç¤¹¡£

³°´Ñ´°À®Í½ÁÛCG[½Ðŵ¡§¸ø¼°HP]
¡¡Áí¸Í¿ô¤Ï225¸Í(°ìÈÌÈÎÇäÂоݸͿô138¸Í)¤Ç¡¢2025ǯ6·î¾å½Ü¤«¤é¤ÏÂè1´ü3¼¡¤ÎÈÎÇäͽÄê¤Ç¡¢ÈÎÇä´Ö¼è¤ê¤Ï1LDK¡Á4LDK¡¢ÀìÍÌÌÀѤÏ40.65Ö¡Á80.03Ö¡¢¥Ð¥ë¥³¥Ë¡¼ÌÌÀѤÏ9.86Ö¡Á42.64֤ȤʤäƤ¤¤Þ¤¹¡£

ÉßÃÏÇÛÃÖ¥¤¥é¥¹¥È[½Ðŵ¡§¸ø¼°HP]
¡¡±Ø¤Ë¶á¤¤Ë̦¤Ë¥¨¥ó¥È¥é¥ó¥¹¤È¥¨¥ó¥È¥é¥ó¥¹¥¬¡¼¥Ç¥ó¤¬ÇÛÃÖ¤µ¤ì¡¢¥¿¥ï¥Þ¥óËÜÂΤÎÀ¾Â¦¤Ë¤Ï3³¬·ú¤Æ¤Î¾¦¶ÈÅ郎ÇÛÃÖ¤µ¤ì¤Þ¤¹¡£ÉßÃÏÆî¦¤Ë¤Ï¤½¤Î¾¦¶ÈÅï¤Ë·Ò¤¬¤ëÅìÀ¾¤Ë´ÓÄ̤¹¤ëÉßÃÏÆâÄÌÏ©¤¬À°È÷¤µ¤ì¤Þ¤¹¡£ÉßÃÏËÌÀ¾Â¦¤ÎÇò¤¤Éôʬ¤Ï´û¸·úʪ¤¬»Ä¤ê¤Þ¤¹¡£

¥¨¥ó¥È¥é¥ó¥¹¥¬¡¼¥Ç¥ó´°À®Í½ÁÛCG[½Ðŵ¡§¸ø¼°HP]
¡¡Ìó700֤Υ¨¥ó¥È¥é¥ó¥¹¥¬¡¼¥Ç¥ó¤Î´°À®Í½ÁۿޤǤ¹¡£

¥¨¥ó¥È¥é¥ó¥¹´°À®Í½ÁÛCG[½Ðŵ¡§¸ø¼°HP]
¡¡¥¨¥ó¥È¥é¥ó¥¹¤Î´°À®Í½ÁۿޤǤ¹¡£

¥¨¥ó¥È¥é¥ó¥¹¥Û¡¼¥ë´°À®Í½ÁÛCG[½Ðŵ¡§¸ø¼°HP]
¡¡¥¨¥ó¥È¥é¥ó¥¹¥Û¡¼¥ë¤Î´°À®Í½ÁۿޤǤ¹¡£

¥¬¡¼¥Ç¥ó¥é¥¦¥ó¥¸´°À®Í½ÁÛCG[½Ðŵ¡§¸ø¼°HP]
¡¡2³¬¤ËÇÛÃÖ¤µ¤ì¤ë¥¬¡¼¥Ç¥ó¥é¥¦¥ó¥¸¤Î´°À®Í½ÁۿޤǤ¹¡£²°³°¤Î¥¨¥ó¥È¥é¥ó¥¹¥¬¡¼¥Ç¥ó¤ËÌ̤·¤¿¾ì½ê¤Ï¥Æ¥é¥¹¥¬¡¼¥Ç¥ó¤È¤Ê¤Ã¤Æ¤¤¤Þ¤¹¡£¤Þ¤¿¡¢2³¬¤Ë¤Ï¥²¥¹¥È¥ë¡¼¥à¤âÇÛÃÖ¤µ¤ì¤Þ¤¹¡£

¥¹¥«¥¤¥é¥¦¥ó¥¸´°À®Í½ÁÛCG[½Ðŵ¡§¸ø¼°HP]
¡¡27³¬¤ËÇÛÃÖ¤µ¤ì¤ë¥¹¥«¥¤¥é¥¦¥ó¥¸¤Î´°À®Í½ÁۿޤǤ¹¡£Åìµþ¥¹¥«¥¤¥Ä¥ê¡¼¤ò˾¤á¤ë¶õ´Ö¤Ë¤Ê¤ê¤Þ¤¹¡£
´Ö¼è¤ê

54Aw¥¿¥¤¥×[½Ðŵ¡§¸ø¼°HP]
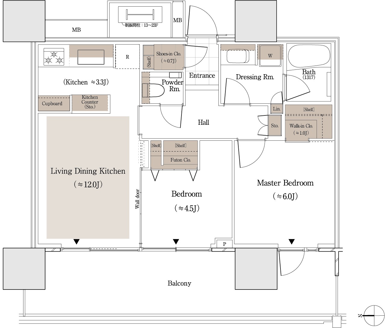
¡¡41Aw¥¿¥¤¥×¤Î´Ö¼è¤ê¿Þ¤Ç¤¹¡£´Ö¼è¤ê¤Ï1LDK¡¢ÀìÍÌÌÀѤÏ41.75Ö¡¢¥Ð¥ë¥³¥Ë¡¼ÌÌÀѤÏ13.60֤ȤʤäƤ¤¤Þ¤¹¡£

54Aw¥¿¥¤¥×[½Ðŵ¡§¸ø¼°HP]
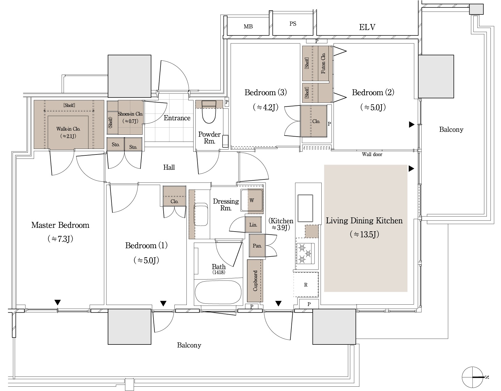
¡¡54Aw¥¿¥¤¥×¤Î´Ö¼è¤ê¿Þ¤Ç¤¹¡£´Ö¼è¤ê¤Ï2LDK+WIC+SIC¡¢ÀìÍÌÌÀѤÏ54.86Ö¡¢¥Ð¥ë¥³¥Ë¡¼ÌÌÀѤÏ18.33֤ȤʤäƤ¤¤Þ¤¹¡£

73Asw¥¿¥¤¥×[½Ðŵ¡§¸ø¼°HP]
¡¡73Asw¥¿¥¤¥×¤Î´Ö¼è¤ê¿Þ¤Ç¤¹¡£´Ö¼è¤ê¤Ï3LDK+MC+WIC+SIC¡¢ÀìÍÌÌÀѤÏ73.73Ö¡¢¥Ð¥ë¥³¥Ë¡¼ÌÌÀѤÏ24.98֤ȤʤäƤ¤¤Þ¤¹¡£

80Aen¥¿¥¤¥×[½Ðŵ¡§¸ø¼°HP]
¡¡80Aen¥¿¥¤¥×¤Î´Ö¼è¤ê¿Þ¤Ç¤¹¡£´Ö¼è¤ê¤Ï4LDK+WIC+SIC¡¢ÀìÍÌÌÀѤÏ80.03Ö¡¢¥Ð¥ë¥³¥Ë¡¼ÌÌÀѤÏ30.72֤ȤʤäƤ¤¤Þ¤¹¡£
°ÌÃÖ¿Þ

°ÌÃÖ¿Þ[½Ðŵ¡§¸ø¼°HP]
¡¡·úÀßÃϤÏJR¡ÖÀî¸ý¡×±Ø¤ÎÅì¸ý¤«¤é¹ÓÀî¦¡ÊÆî¦¡Ë¤ØÌó400m¡¢ÅÌÊâ6ʬ¤Î¾ì½ê¤Ë°ÌÃÖ¤·¤Æ¤¤¤Þ¤¹¡£¼þÊդˤÏÊ£¿ô¤Î¥¿¥ï¡¼¥Þ¥ó¥·¥ç¥ó¤¬·ú¤Áʤó¤Ç¤¤¤Þ¤¹¤¬¡¢Å즤ϡ֥¨¥ë¥¶¥¿¥ï¡¼55¡×¤¬¤¢¤ëÊÕ¤ê¤Þ¤Ç¤Ï¥¿¥ï¥Þ¥ó¶õÇòÃÏÂӤȤʤäƤª¤ê³«¤±¤¿»ë³¦¤¬¹¤¬¤ê¤Þ¤¹¡£
·úÀß¾õ¶·

¡¡2025ǯ5·î24Æü¤ËÀî¸ý±Ø¤Ë¶á¤¤ËÌÀ¾Â¦¤«¤é»£±Æ¤·¤¿¡Ö¥Ñ¡¼¥¯¥¿¥ï¡¼Àî¸ýËÜÄ®¡×(ÃϾå28³¬¡¢¹â¤µ93.85m)¤Ç¤¹¡£

¡¡Ë̦¤«¤é»£±Æ¡£±¦Â¦¤Î¥¿¥ï¡¼¥Þ¥ó¥·¥ç¥ó¤Ï¡Ö¥ê¥Ó¥ª¥¿¥ï¡¼Àî¸ý¥ß¥É¥ê¥Î¡×(ÃϾå32³¬¡¢ºÇ¹â¹â¤µ99.95m)¤Ç¤¹¡£

¡¡ËÌÅ즤«¤é»£±Æ¡£¥¿¥ï¥Þ¥óËÜÂΤÈË̦¤Îƻϩ¤È¤Î´Ö¤Ë¤ÏÌó700֤Υ¨¥ó¥È¥é¥ó¥¹¥¬¡¼¥Ç¥ó¤¬À°È÷¤µ¤ì¤Þ¤¹¡£

¡¡Å즤Îƻϩ±è¤¤¤«¤é»£±Æ¡£3Êý¸þ¤¬Æ»Ï©¤ËÀÜÆ»¤·¤Æ¤¤¤Þ¤¹¡£

¡¡ÆîÅ즤«¤é»£±Æ¡£Æî¦¤Ë¤ÏÉßÃϤòÅìÀ¾¤Ë´ÓÄ̤¹¤ëÄÌÏ©¤¬À°È÷¤µ¤ì¤Þ¤¹¡£

¡¡ÆîÀ¾Â¦¤«¤é»£±Æ¡£¤½¤ÎÅìÀ¾´ÓÄÌÄÌÏ©¤ÎÀè¤È¤Ê¤ëÀ¾Â¦¤Ë¤Ï3³¬·ú¤Æ¤Î¾¦¶ÈÅ郎ÇÛÃÖ¤µ¤ì¤Þ¤¹¡£

¡¡»£±Æ»þ¤Ë¤Ï15³¬Éôʬ¤Î·úÀߤ¬»Ï¤Þ¤Ã¤Æ¤¤¤ë¤è¤¦¤Ç¤·¤¿¡£

¡¡¤ª¤Þ¤±¤ÇÀî¸ý±ØÁ°¤Î¡Ö¤é¤é¥Æ¥é¥¹Àî¸ý¡×¤Ç¤¹¡£µì¤½¤´¤¦Àî¸ýʤÀ¤Ã¤¿·úʪ¤ËËÜÆü¡¢5·î31Æü¤Ë¥°¥é¥ó¥É¥ª¡¼¥×¥ó¤·¤Þ¤¹¡£Åì¸ý¦¤Ê¤Î¤Ç¡Ö¥Ñ¡¼¥¯¥¿¥ï¡¼Àî¸ýËÜÄ®¡×¤Î½»Ì±¤âµ¤·Ú¤Ë´ó¤êÆ»¤Ç¤¤ë¾¦¶È»ÜÀߤˤʤê¤Þ¤¹¡£
ÃÏ¿Þ
ʪ·ï³µÍ×

¡¡·úÃ۷ײè¤Î¤ªÃΤ餻¤Ç¤¹¡£
¢£Êª·ï³µÍ×¢£
̾¾Î¡§¥Ñ¡¼¥¯¥¿¥ï¡¼Àî¸ýËÜÄ®
»ö¶È̾¡§Àî¸ýËÜÄ®4ÃúÌÜ9ÈÖÃ϶èÂè°ì¼ï»Ô³¹ÃϺƳ«È¯»ö¶È »ÜÀß·úÃÛʪÅù¿·ÃÛ¹©»ö
½êºßÃÏ¡§ºë¶Ì¸©Àî¸ý»ÔËÜÄ®£´ÃúÌÜ£¹ÈÖ¡ÊÃÏÈÖ¡Ë
¸òÄÌ¡§µþÉÍÅìËÌ¡¦º¬´ßÀþ¡ÖÀî¸ý¡×±Ø ÅÌÊâ6ʬ
ÍÑÅÓ¡§¶¦Æ±½»Âð¡¢Å¹ÊÞ¡¢»ö̳½ê
Áí¸Í¿ô¡§225¸Í¡Ê°ìÈÌÈÎÇäÂоݸͿô138¸Í¡¿Å¹ÊÞ¡¦»ö̳½êÅù10¼¼¡Ë
³¬¿ô¡§ÃϾå28³¬¡¢Ãϲ¼1³¬
¹â¤µ¡§93.85m
¹½Â¤¡§Å´¶Ú¥³¥ó¥¯¥ê¡¼¥È¤¡¢À©¿¶¹½Â¤
ÉßÃÏÌÌÀÑ¡§4,753.85Ö
·úÃÛÌÌÀÑ¡§2,217.31Ö
±ä¾²ÌÌÀÑ¡§25,291.99Ö
·úÃۼ硧Àî¸ýËÜÄ®4ÃúÌÜ9ÈÖÃ϶è»Ô³¹ÃϺƳ«È¯Áȹç
»²²ÃÁȹç°÷¡¦Çä¼ç¡§»°°æÉÔÆ°»º¥ì¥¸¥Ç¥ó¥·¥ã¥ë
Àß·×¼Ô¡§GA·úÃÛÀß·×¼Ò
»Ü¹©¼Ô¡§º´Æ£¹©¶È
¹©´ü¡§2023ǯ8·î29ÆüÃ幩¡Á2026ǯ7·î²¼½Ü½×¹©Í½Äê
Æþµï¡§2026ǯ9·î²¼½ÜͽÄê
½Ðŵ
¢§¸ø¼°HP¡§¥Ñ¡¼¥¯¥¿¥ï¡¼Àî¸ýËÜÄ®
https://www.31sumai.com/mfr/X1918/
- ¥«¥Æ¥´¥ê
- Àî¸ý»Ô







