
³°´Ñ´°À®Í½ÁÛCG[½Ðŵ¡§°°²½À®ÉÔÆ°»º¥ì¥¸¥Ç¥ó¥¹]
¡¡ËãÉÛ½½ÈÖ¤ÈËãÉÛÂæ¥Ò¥ë¥º¤ÎÃæ´ÖÃÏÅÀ¤Î¥¿¥ï¥Þ¥ó¡Ö¥¢¥È¥é¥¹ËãÉÛÂæ¡×(ÃϾå17³¬¡¢¹â¤µ58.94m)¤Î´°À®Í½ÁۿޤǤ¹¡£1971ǯ¤Ë½×¹©¤·¤¿¡ÖÈÓÁÒ»°À¸¥Þ¥ó¥·¥ç¥ó¡×¤Î·úÂØ¤¨¤Ç¡¢¸½ºß¤Ï¥¿¥ï¡¼¥Þ¥ó¥·¥ç¥ó¤Ë·úÂØ¤¨Ãæ¤Ç¤¹¡£¤³¤Îµ»ö¤Ç¤ÏƱ¥Þ¥ó¥·¥ç¥ó¤Î³µÍפä·úÀß¾õ¶·¡Ê2025ǯ4·î26Æü¡Ë¡¢ÃÏ¿ÞÅù¤òºÜ¤»¤Æ¤¤¤Þ¤¹¡£
¥¢¥È¥é¥¹ËãÉÛÂæ¤Ë¤Ä¤¤¤Æ

³°´Ñ´°À®Í½ÁÛCG[½Ðŵ¡§¸ø¼°HP]
¡¡¡Ö¥¢¥È¥é¥¹ËãÉÛÂæ¡×¤Ï¡ÖÈÓÁÒ»°À¸¥Þ¥ó¥·¥ç¥ó¡×(ÃϾå7³¬¡¢1971ǯ½×¹©¡¢Áí¸Í¿ô17¸Í)¤Î·úÂØ¤¨¤Ç¡¢µ¬ÌϤÏÃϾå17³¬¡¢Ãϲ¼2³¬¡¢¹â¤µ59m¡¢ÉßÃÏÌÌÀÑ523.65Ö¡¢·úÃÛÌÌÀÑ257.65Ö¡¢±ä¾²ÌÌÀÑ4,488.19֤ȤʤäƤ¤¤Þ¤¹¡£·úÃÛ¼ç¤ÏÈÓÁÒ»°À¸¥Þ¥ó¥·¥ç¥ó´ÉÍýÁȹ硢Çä¼ç¤Ï°°²½À®ÉÔÆ°»º¥ì¥¸¥Ç¥ó¥¹¡¢Àß·×¼Ô¤ÏUGÅÔ»Ô·úÃÛ¡¢»Ü¹©¼Ô¤ÏÈôÅç·úÀߤÇ2025ǯ10·î²¼½Ü½×¹©¡¢2025ǯ12·î²¼½Ü¤ÎÆþµï³«»ÏͽÄê¤Ç¤¹¡£
¡¡Áí¸Í¿ô¤Ï34¸Í¡Ê»ö¶È¶¨ÎϼԼèÆÀ½»¸Í17¸Í´Þ¤à¡Ë¤Ç´û¤ËÁ´¸Í´°Ç䤷¤Æ¤¤¤Þ¤¹¡£
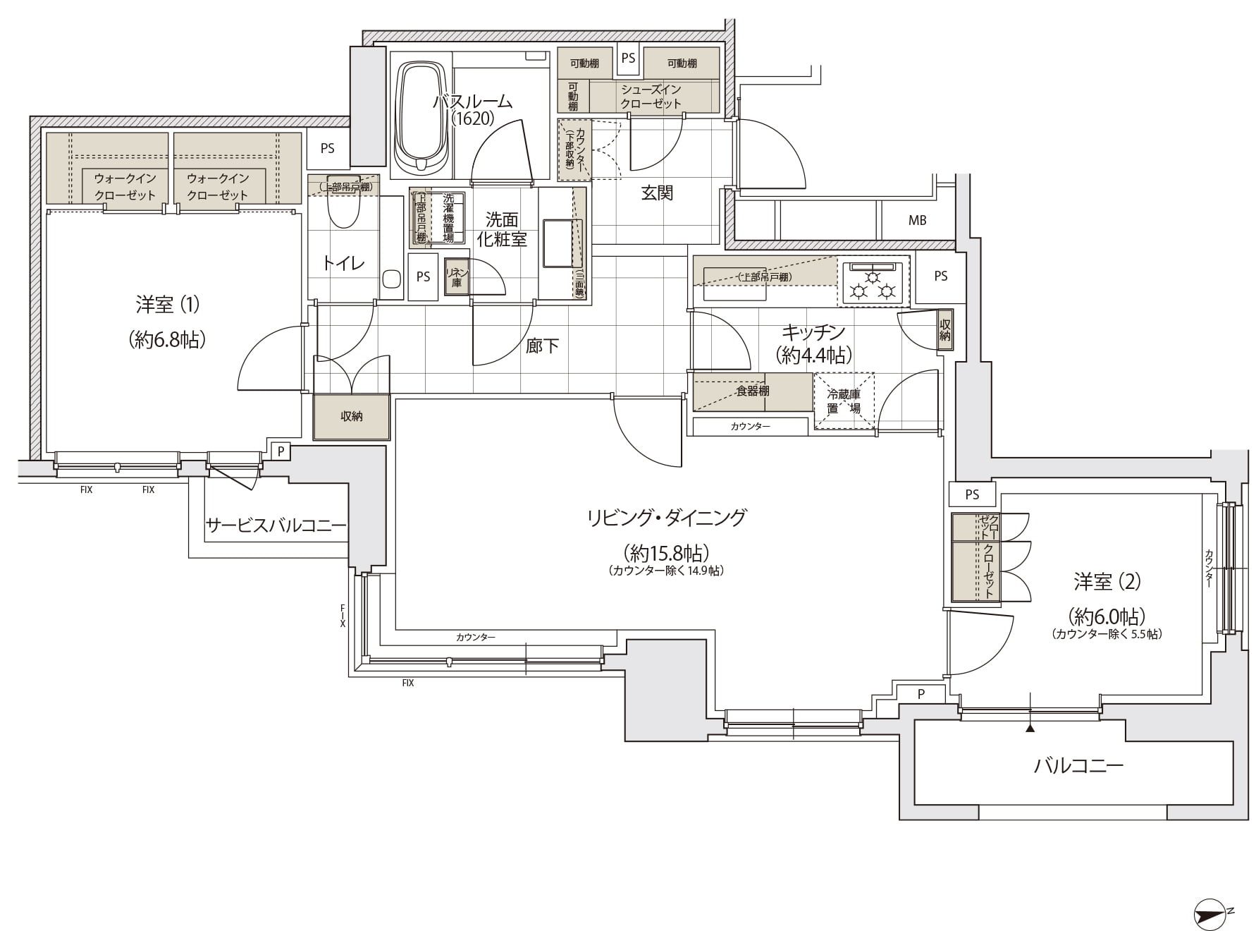
´Ö¼è¤ê¿Þ

D2¥¿¥¤¥×[½Ðŵ¡§¸ø¼°HP]
¡¡D2¥¿¥¤¥×¤Î´Ö¼è¤ê¿Þ¤Ç¤¹¡£´Ö¼è¤ê¤Ï2LDK+2WIC+SIC¡¢ÀìÍÌÌÀѤÏ82.45Ö¡¢¥Ð¥ë¥³¥Ë¡¼ÌÌÀѤÏ5.23Ö¡¢¼¼³°µ¡ÃÖ¾ìÌÌÀѤÏ2.16֤ȤʤäƤ¤¤Þ¤¹¡£
°ÌÃÖ¿Þ

°ÌÃÖ¿Þ[½Ðŵ¡§¸ø¼°HP]
¡¡·úÀßÃϤϡÖËãÉÛ½½È֡ױؤȡÖËãÉÛÂæ¥Ò¥ë¥º¡×¤ÎÃæ´ÖÃÏÅÀ¤Ç¡¢ËãÉÛ½½Èֱؤ«¤é¤ÏÅÌÊâ6ʬ¤È¤Ê¤Ã¤Æ¤¤¤Þ¤¹¡£Å즤ˤϡÖÅìµþ¥¿¥ï¡¼¡×¤¬¸«¤¨¤ë¥¿¥ï¥Þ¥ó¤Ç¡¢À¾Â¦¤Ë¤Ï¡ÖÏ»ËÜÌڥҥ륺¡×¤¬¤¢¤ê¤Þ¤¹¡£¤½¤ÎÏ»ËÜÌڥҥ륺¤Î¼êÁ°¤Ç¤Ï105ËüÖ¤ÎĶÂ絬ÌϺƳ«È¯¡ÖÏ»ËÜÌÚ¸ÞÃúÌÜÀ¾Ã϶èÂè°ì¼ï»Ô³¹ÃϺƳ«È¯»ö¶È¡×¤¬¹µ¤¨¤Æ¤¤¤Þ¤¹¡£
·úÀß¾õ¶·

¡¡2025ǯ4·î26Æü¤Ë»£±Æ¤·¤¿¡Ö¥¢¥È¥é¥¹ËãÉÛÂæ¡×(ÃϾå17³¬¡¢¹â¤µ58.94m)¤Î·úÀßÃϤǤ¹¡£

¡¡¸½ÃϺî¶È¹©Äø¤Ç¤ÏR³¬¤¬¶íÂι©»ö¡¢Ãϲ¼2³¬¡Á14³¬¤¬ÆâÁõ¹©»ö¤È¤Ê¤Ã¤Æ¤¤¤Þ¤·¤¿¡£²°¾å¤Î¶íÂι©»öÃæ¤È¤Î¤³¤È¤Ê¤Î¤Ç¡¢´û¤ËºÇ¾å³¬¤Þ¤Ç㤷¤Æ¤¤¤ë¤è¤¦¤Ç¤¹¡£

¡¡Æ±¤¸Æü¤ËÏ»ËÜÌڥҥ륺¤ÎŸ˾¼¼¤«¤é»£±Æ¡£

¡¡Å즤ˤÏÅìµþ¥¿¥ï¡¼¡¢Ë̦¤Ë¤ÏËãÉÛÂæ¥Ò¥ë¥º¤È¤¤¤¦ÅÔ¿´¤é¤·¤¤¸÷·Ê¤¬¹¤¬¤ëΩÃϤȤʤäƤ¤¤Þ¤¹¡£

¡¡¤Á¤Ê¤ß¤ËÃϾå¤Ë¹ß¤ê¤ÆÏ»ËÜÌڥҥ륺¤Î¥Ç¥Ã¥¤«¤é¸«¤ë¤È¡¢¡Ö¥¢¥È¥é¥¹ËãÉÛÂæ¡×¤¬Åìµþ¥¿¥ï¡¼¤Ë¤Ô¤Ã¤¿¤ê½Å¤Ê¤Ã¤Æ¸«¤¨¤Þ¤¹¡£
ÃÏ¿Þ
ʪ·ï³µÍ×

¡¡·úÃ۷ײè¤Î¤ªÃΤ餻¤Ç¤¹¡£
¢£Êª·ï³µÍ×¢£
̾¾Î¡§¥¢¥È¥é¥¹ËãÉÛÂæ
»ö¶È̾¡§(²¾¾Î)ÈÓÁÒ»°À¸¥Þ¥ó¥·¥ç¥ó·úÂØ¤¨·×²è
½êºßÃÏ¡§ÅìµþÅÔ¹Á¶èËãÉÛÂæ£³ÃúÌÜ29ÈÖ10¡ÊÃÏÈÖ¡Ë
¸òÄÌ¡§Åìµþ¥á¥È¥íÆîËÌÀþ¡¦ÅÔ±ÄÃϲ¼Å´Âç¹¾¸ÍÀþ¡ÖËãÉÛ½½ÈÖ¡×±Ø ÅÌÊâ6ʬ
¡¡¡¡¡¡Åìµþ¥á¥È¥íÆüÈæÃ«Àþ¡¦ÅÔ±ÄÃϲ¼Å´Âç¹¾¸ÍÀþ¡ÖÏ»ËÜÌÚ¡×±Ø ÅÌÊâ11ʬ
ÍÑÅÓ¡§¶¦Æ±½»Âð
Áí¸Í¿ô¡§34¸Í¡Ê»ö¶È¶¨ÎϼԼèÆÀ½»¸Í17¸Í´Þ¤à¡Ë
³¬¿ô¡§ÃϾå17³¬¡¢Ãϲ¼2³¬
¹â¤µ¡§58.94m
¹½Â¤¡§Å´¶Ú¥³¥ó¥¯¥ê¡¼¥È¤
´ðÁù©Ë¡¡§¹º´ðÁÃ
ÉßÃÏÌÌÀÑ¡§523.65Ö
·úÃÛÌÌÀÑ¡§257.65Ö
±ä¾²ÌÌÀÑ¡§4,488.19Ö
·úÃۼ硧ÈÓÁÒ»°À¸¥Þ¥ó¥·¥ç¥ó´ÉÍýÁȹç
Çä¼ç¡§°°²½À®ÉÔÆ°»º¥ì¥¸¥Ç¥ó¥¹
Àß·×¼Ô¡§UGÅÔ»Ô·úÃÛ
»Ü¹©¼Ô¡§ÈôÅç·úÀß
¹©´ü¡§2023ǯ5·îÃ幩¡Á2025ǯ10·î²¼½Ü½×¹©Í½Äê
Æþµï¡§2025ǯ12·î²¼½ÜͽÄê
½Ðŵ
¢§¥¢¥È¥é¥¹ËãÉÛÂæ¡§¸ø¼°HP
https://www.atlas-web.jp/atlas/mansion/azabudai/
¢§°°²½À®ÉÔÆ°»º¥ì¥¸¥Ç¥ó¥¹¡§¥Ë¥å¡¼¥¹¥ê¥ê¡¼¥¹¡Ê2023ǯ5·î26Æü¡Ë
ÈÓÁÒ»°À¸¥Þ¥ó¥·¥ç¥ó·úÂØ¤¨»ö¶È
¡Ö¥¢¥È¥é¥¹ËãÉÛÂæ¡×ËÜÂÎÃ幩¤Î¤ªÃΤ餻
- ¥«¥Æ¥´¥ê
- ¹Á¶è







