
¥¤¥á¡¼¥¸¥Ñ¡¼¥¹[½Ðŵ¡§ÅìµÞ]
¡¡½Âë¥Ò¥«¥ê¥¨¤ÎË̦¤ÎÂ絬ÌϺƳ«È¯¡ÖµÜ±×ºäÃ϶èÂè°ì¼ï»Ô³¹ÃϺƳ«È¯»ö¶È¡×(ÃϾå33³¬¡¢¹â¤µÌó180m)¤ÎºÆ³«È¯Áȹç¤ÎÀßΩ¤¬4·î30Æü¤Ëǧ²Ä¤µ¤ì¤¿¤Èȯɽ¤¬¤¢¤ê¤Þ¤·¤¿¡£Æ±ºÆ³«È¯¤ÏÅìµÞ¤È¥Ò¥å¡¼¥ê¥Ã¥¯¤¬»ö¶È¶¨ÎϼԤȤ·¤Æ»²²è¤¹¤ëºÆ³«È¯¤Ç¡¢¾¦¶È»ÜÀß¡¦¥Û¡¼¥ë¡¦»ö̳½ê¡¦¥Û¥Æ¥ëÅù¤Ç¹½À®¤µ¤ì¤ëÊ£¹ç»ÜÀߤˤʤê¤Þ¤¹¡£¤³¤Îµ»ö¤Ç¤ÏƱºÆ³«È¯¤Î³µÍפ丽¶·¡¢ÃÏ¿ÞÅù¤òºÜ¤»¤Æ¤¤¤Þ¤¹¡£
µÜ±×ºäÃ϶è¤Ë¤Ä¤¤¤Æ

Á´·Ê¥¤¥á¡¼¥¸[½Ðŵ¡§ÅìµÞ]
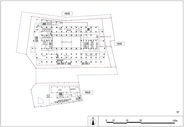
¡¡¡ÖµÜ±×ºäÃ϶èÂè°ì¼ï»Ô³¹ÃϺƳ«È¯»ö¶È¡×¤Ï½Âë¥Ò¥«¥ê¥¨¤ÎË̦¡¢µÜ±×ºä¤ò¶´¤ó¤ÀÂ絬ÌϺƳ«È¯¤Ç¡¢Ä¶¹âÁØÅï¤È¤Ê¤ëA³¹¶è¤È½Âë¥Ò¥«¥ê¥¨¤ËÎÙÀܤ·¤¿B³¹¶è¡¢¤½¤·¤Æ¸æÖÖ¿À¼Ò¤ÎºÆÀ°È÷¤È¤Ê¤ëC³¹¶è¤Ëʬ¤«¤ì¤Æ¤¤¤Þ¤¹¡£
¡¡A³¹¶è¤Îµ¬ÌϤÏÃϾå33³¬¡¢Ãϲ¼3³¬¡¢¹â¤µÌó180m¡¢ÉßÃÏÌÌÀÑÌó7,930Ö¡¢·úÃÛÌÌÀÑÌó6,790Ö¡¢±ä¾²ÌÌÀÑÌó19Ëü2057Ö¡¢B³¹¶è¤Îµ¬ÌϤÏÃϾå7³¬¡¢Ãϲ¼2³¬¡¢¹â¤µÌó40m¡¢ÉßÃÏÌÌÀÑÌó2,175Ö¡¢·úÃÛÌÌÀÑÌó1,730Ö¡¢±ä¾²ÌÌÀÑÌó8,490Ö¡¢C³¹¶è¤Îµ¬ÌϤÏÃϾå2³¬¡¢Ãϲ¼1³¬¡¢¹â¤µÌó10m¡¢ÉßÃÏÌÌÀÑÌó759Ö¡¢·úÃÛÌÌÀÑÌó480Ö¡¢±ä¾²ÌÌÀÑÌó754֤ȤʤäƤ¤¤Þ¤¹¡£»ö¶È¼Ô¤ÏµÜ±×ºäÃ϶è»Ô³¹ÃϺƳ«È¯Áȹ硢»ö¶È¶¨ÎϼԤÏÅìµÞ¤È¥Ò¥å¡¼¥ê¥Ã¥¯¤Ç¹©´ü¤Ï2027ǯ10·îÃ幩¡¢2031ǯ9·î¤Î½×¹©Í½Äê¤Ç¤¹¡£

°ÌÃÖ¿Þ·óÇÛÃÖ¿Þ[½Ðŵ¡§ÅìµþÅÔ]
¡¡ÌÀ¼£Ä̤ê¤ÈÂ绳³¹Æ»¡ÊµÜ±×ºä¡Ë¤ËÌ̤·¤¿Ë̦¤ÎÂ礤ʳ¹¶è¤¬A³¹¶è¡¢Æî¦¤Î¾®µ¬ÌϤʳ¹¶è¤¬B³¹¶è¡¢¤½¤·¤ÆËÌÅ즤ΡָæÖÖ¿À¼Ò¡×¤È¤Ê¤Ã¤Æ¤¤¤ë¾ì½ê¤¬C³¹¶è¤È¤Ê¤Ã¤Æ¤¤¤Þ¤¹¡£
¡¡A³¹¶è¤ÈB³¹¶è¤ÏÂ绳³¹Æ»¡ÊµÜ±×ºä¡Ë¾å¶õ¤òÄ̤ë¥Ç¥Ã¥¤ÇÀܳ¤µ¤ì¡¢¤½¤·¤ÆB³¹¶è¤ÏÆî¦¤Ë¤¢¤ë¡Ö½Âë¥Ò¥«¥ê¥¨¡×¤Ë¤âÀܳ¤·¤Þ¤¹¡£

ÃÇÌÌ¥¤¥á¡¼¥¸[½Ðŵ¡§ÅìµÞ]
¡¡A³¹¶è¤ÏÄãÁØÉô¤ËŹÊÞ¡¢»º¶È°éÀ®»Ù±ç»ÜÀß¡¢¥«¥ó¥Õ¥¡¥ì¥ó¥¹¡¢¥Û¡¼¥ë¡¢ÃæÁØÉô¤Ë»ö̳½ê¡¢¹âÁØÉô¤Ë¥Û¥Æ¥ë¤¬ÇÛÃÖ¤µ¤ì¡¢B³¹¶è¤ÏŹÊÞÅù¤¬Æþ¤ë¥Ó¥ë¤Ë¤Ê¤ê¤Þ¤¹¡£

ÃÇÌÌ¿Þ[½Ðŵ¡§½Âë¶è]
¡¡¥Õ¥í¥¢¹½À®¤Î¾ÜºÙ¤Ç¤¹¡£A³¹¶è¤ÏÃϲ¼2³¬¡Á3³¬¤¬Å¹ÊÞ¡¢4³¬¤¬»º¶È°éÀ®»Ù±ç»ÜÀß¡¢5³¬¤¬Â祫¥ó¥Õ¥¡¥ì¥ó¥¹¡¢6³¬¤¬¥Û¡¼¥ë¡¢9³¬¤¬»ö̳½ê¥í¥Ó¡¼¡¢10³¬¡Á27³¬¤¬»ö̳½ê¡¢29³¬¡Á32³¬¤¬¥Û¥Æ¥ë¤Ë¤Ê¤ê¤Þ¤¹¡£¤Þ¤¿¡¢Ãϲ¼2³¬¤Ç½Âë±Ø¤ËÀܳ¤·¡¢4³¬¤Ë¤ÏB³¹¶è¤Ë·Ò¤¬¤ë¥Ç¥Ã¥¤¬ÇÛÃÖ¤µ¤ì¤Þ¤¹¡£

ÃÇÌÌ¿Þ[½Ðŵ¡§½Âë¶è]
¡¡B³¹¶è¤âÃϲ¼2³¬¤Ç½Âë±Ø¤ËÀܳ¤·¡¢Ãϲ¼2³¬¡Á6³¬¤ÏŹÊÞ¤¬ÇÛÃÖ¤µ¤ì¡¢¥Æ¥é¥¹¤âÀ°È÷¤µ¤ì¤Þ¤¹¡£

¥¢¡¼¥Ð¥ó¡¦¥³¥¢¤ÈÃϲ¼¹¾ì¤ª¤è¤Ó¾å¶õÄÌÏ©¤Î¥¤¥á¡¼¥¸¥Ñ¡¼¥¹[½Ðŵ¡§ÅìµÞ]
¡¡A³¹¶è¡¦B³¹¶è¤ÎÄãÁØÉô¤Ë¤Ï½Âë±Ø¼þÊÕ¥¨¥ê¥¢¤ÎÊâ¹Ô¼Ô¥Í¥Ã¥È¥ï¡¼¥¯¤Î·ëÀáÅÀ¤È¤Ê¤ë½Ä¼´¶õ´Ö¡Ö¥¢¡¼¥Ð¥ó¡¦¥³¥¢¡×¤¬À°È÷¤µ¤ìÃϲ¼2³¬¤Ç½Âë±Ø¤Ëľ·ë¤·¤Þ¤¹¡£¤Þ¤¿¡¢4³¬¤Ç¤Ï¥Ò¥«¥ê¥¨¥Ç¥Ã¥¤äÅìµþ¥á¥È¥í¶äºÂÀþ¡Ö½Âë¡×±Ø¾åÉô¤ËÀ°È÷¤µ¤ì¤ë¥¹¥«¥¤¥¦¥¨¥¤¤ËÀܳ¤·¤Þ¤¹¡£

Ãϲ¼¹¾ì¤ÎÀ°È÷¥¤¥á¡¼¥¸[½Ðŵ¡§Æâ³ÕÉÜ]
¡¡½Âë±Ø¤ÎµÜ±×ºäÅì²þ»¥Á°¤Ë¤ÏA³¹¶è¤ÈB³¹¶è¤ò·Ò¤°Ìó400Ö¤ÎÃϲ¼¹¾ì¤¬À°È÷¤µ¤ì¤Þ¤¹¡£

Â绳³¹Æ»¤Î¤Ë¤®¤ï¤¤¥¤¥á¡¼¥¸[½Ðŵ¡§Æâ³ÕÉÜ]
¡¡Â绳³¹Æ»(µÜ±×ºä)±è¤¤¤Ë¤Ï¹¾ì¤äÊâÆ»¾õ¶õÃϤ¬À°È÷¤µ¤ì¡¢Êâ¹Ô¼Ô¶õ´Ö¤¬Â礤¯³ÈÉý¤µ¤ì¤ë¤³¤È¤Ë¤Ê¤ê¤Þ¤¹¡£

¥¢¡¼¥Ð¥ó¥³¥¢À°È÷¥¤¥á¡¼¥¸ A³¹¶è[½Ðŵ¡§Æâ³ÕÉÜ]
¡¡A³¹¶è¤ÎÄãÁØÉô¤Ë¤Ï¸òº¹ÅÀ¤ËÌ̤·¤¿¹¾ì¤¬À°È÷¤µ¤ì¡¢¥¢¡¼¥Ð¥ó¡¦¥³¥¢¤â´Þ¤á¤Æ½Âë±ØËÌÅìÊýÌ̤ؤε¯ÅÀ¤È¤Ê¤ê¤Þ¤¹¡£

¥¢¡¼¥Ð¥ó¥³¥¢À°È÷¥¤¥á¡¼¥¸ B³¹¶è[½Ðŵ¡§Æâ³ÕÉÜ]
¡¡B³¹¶è¤Ï¶õÃæ³¬¤Ë¹¾ìÅù¤òÈ÷¤¨¤¿¥¢¡¼¥Ð¥ó¡¦¥³¥¢¤¬À°È÷¤µ¤ì¡¢¡Ö½Âë¥Ò¥«¥ê¥¨¡×¤ÈÅìµþ¥á¥È¥í¶äºÂÀþ¥Û¡¼¥à¾åÉô¤òÄ̤ë¡Ö¥¹¥«¥¤¥¦¥§¥¤¡×¤ËÀܳ¤·¤Þ¤¹¡£

Â绳³¹Æ»¤Î¥¤¥á¡¼¥¸¥Ñ¡¼¥¹[½Ðŵ¡§ÅìµÞ]
¡¡½Âë±Ø¤È¤ÏÈ¿ÂЦ¤«¤é¸«¤¿Â绳³¹Æ»(µÜ±×ºä)¤Ç¤¹¡£±¦¤ÎÄ»µï¤¬¤¢¤ë¾ì½ê¤¬¸æÖÖ¿À¼Ò¤Î·ú¤ÆÂؤ¨¡¢ºÆÀ°È÷¤ò¹Ô¤¦C³¹¶è¤Ë¤Ê¤ê¤Þ¤¹¡£
Ê¿ÌÌ¿Þ

Ãϲ¼2³¬Ê¿ÌÌ¿Þ[½Ðŵ¡§½Âë¶è]
¡¡Ãϲ¼2³¬¤ÇÅìµþ¥á¥È¥í¤Î½Âë±Ø¤ËÀܳ¤·¡¢¤½¤Î¤Þ¤ÞJR½Âë±Ø¤Ë¤âÀܳ¤·¤Þ¤¹¡£

Ãϲ¼1³¬Ê¿ÌÌ¿Þ[½Ðŵ¡§½Âë¶è]

1³¬Ê¿ÌÌ¿Þ[½Ðŵ¡§½Âë¶è]
¡¡·¹¼ÐÃϤ¬·×²èÃϤȤʤäƤ¤¤Þ¤¹¤¬¡¢ÌÀ¼£Ä̤ê¤ËÌ̤·¤¿¾ì½ê¤¬1³¬¥ì¥Ù¥ë¤Ë¤Ê¤ë¤è¤¦¤Ç¤¹¡£

2³¬Ê¿ÌÌ¿Þ[½Ðŵ¡§½Âë¶è]
¡¡µÜ±×ºä¤ò¾¯¤·ÅФä¿A³¹¶è¤Î2³¬¥ì¥Ù¥ë¤Ë¤Ï´ÓÄÌÆ»Ï©¤¬ÇÛÃÖ¤µ¤ì¤Þ¤¹¡£

3³¬Ê¿ÌÌ¿Þ[½Ðŵ¡§½Âë¶è]
¡¡A³¹¶è¤Î3³¬¥ì¥Ù¥ë¤ËC³¹¶è¤Î¸æÖÖ¿À¼Ò¤Ë·Ò¤¬¤ë»²Æ»¤¬ÇÛÃÖ¤µ¤ì¤Þ¤¹¡£

4³¬Ê¿ÌÌ¿Þ[½Ðŵ¡§½Âë¶è]
¡¡4³¬¥ì¥Ù¥ë¤ÇA³¹¶è¤ÈB³¹¶è¤¬¥Ç¥Ã¥¤Ë¤è¤Ã¤ÆÀܳ¤·¤Þ¤¹¡£

5³¬Ê¿ÌÌ¿Þ[½Ðŵ¡§½Âë¶è]
¡¡A³¹¶è¤Î5³¬¤Ë¤ÏÂçÃæ¾®¤Î¥«¥ó¥Õ¥¡¥ì¥ó¥¹¤¬ÇÛÃÖ¤µ¤ì¤Þ¤¹¡£

6³¬Ê¿ÌÌ¿Þ[½Ðŵ¡§½Âë¶è]
¡¡A³¹¶è¤Î6³¬¤Ë¤Ï¥Û¡¼¥ë¤¬ÇÛÃÖ¤µ¤ì¤Þ¤¹¡£

7³¬Ê¿ÌÌ¿Þ[½Ðŵ¡§½Âë¶è]

8³¬Ê¿ÌÌ¿Þ[½Ðŵ¡§½Âë¶è]
¡¡A³¹¶è¤Î8³¬¤Ïµ¡³£¼¼¤Ë¤Ê¤ê¤Þ¤¹¡£

9³¬¡Á14³¬Ê¿ÌÌ¿Þ[½Ðŵ¡§½Âë¶è]
¡¡9³¬¤¬¥ª¥Õ¥£¥¹¥í¥Ó¡¼¤È»º¶È°éÀá»Ù±ç»ÜÀß¡¢¤½¤·¤Æ¥¢¥Õ¥¿¡¼¥Æ¥é¥¹¤¬ÇÛÃÖ¤µ¤ì¡¢10³¬¤«¤é¤¬¥ª¥Õ¥£¥¹¥Õ¥í¥¢¤È¤Ê¤ê¤Þ¤¹¡£15¡Á23³¬¤Þ¤Ç¤ÎÊ¿ÌÌ¿Þ¤ÏÆ±¤¸¤è¤¦¤Ê¿Þ¤¬Â³¤¯¤Î¤Ç¾Êά¤·¤Þ¤¹¡£

24³¬¡Á29³¬Ê¿ÌÌ¿Þ[½Ðŵ¡§½Âë¶è]
¡¡27³¬¤Þ¤Ç¤¬¥ª¥Õ¥£¥¹¥Õ¥í¥¢¤È¤Ê¤ê¡¢28³¬¤Îµ¡³£¼¼¤ò¶´¤ó¤Ç29³¬¤«¤é¤¬¥Û¥Æ¥ë¤Ë¤Ê¤ê¤Þ¤¹¡£

30³¬¡Á33³¬Ê¿ÌÌ¿Þ[½Ðŵ¡§½Âë¶è]
¡¡¥Û¥Æ¥ë¤ÎµÒ¼¼¤Ï29³¬¡Á32³¬¤ËÇÛÃÖ¤µ¤ì¡¢ºÇ¾å³¬¤Î33³¬¤â¥Û¥Æ¥ë»ÜÀߤˤʤê¤Þ¤¹¡£
°ÌÃÖ¿Þ

°ÌÃÖ¿Þ[½Ðŵ¡§ÅìµÞ]
¡¡·×²èÃϤÏJR»³¼êÀþ¤ÎÆâ¦¤È¤Ê¤ë¡Ö½Âë¥Ò¥«¥ê¥¨¡×¤ÎË̦¤Ë°ÌÃÖ¤·¤Æ¤ª¤ê¡¢³ÆÏ©Àþ¤Î¡Ö½Âë¡×±Ø¤Ëľ·ë¤·¤Þ¤¹¡£
¸½¶·

¡¡2019ǯ11·î¤Ë¥Ø¥ê¤«¤é»£±Æ¤·¤¿½Âë±Ø¼þÊդǤ¹¡£±¦²¼¤ÎÀÖ¤¤Ìֳݤ±¤ò¤·¤¿¾ì½ê¤¬¡ÖµÜ±×ºäÃ϶èÂè°ì¼ï»Ô³¹ÃϺƳ«È¯»ö¶È¡×¤Î·×²èÃϤǤ¹¡£

¡¡¡Ö½Â륹¥«¥¤¡×¤«¤é»£±Æ¤·¤¿¡ÖµÜ±×ºäÃ϶èÂè°ì¼ï»Ô³¹ÃϺƳ«È¯»ö¶È¡×¤ÎA³¹¶è¤ÈC³¹¶è¤Ç¤¹¡£C³¹¶è¤ÏÉßÃϤαü(±¦Â¦)¤Î¡Ö¸æÖÖ¿À¼Ò¡×¤¬¤¢¤ë¾ì½ê¤Ë¤Ê¤ê¤Þ¤¹¡£

¡¡B³¹¶è¤Ç¤¹¡£A³¹¶è¤ÈB³¹¶è¤Î´Ö¤Ë¤¢¤ëÂ绳³¹Æ»(µÜ±×ºä)¾å¶õ¤Ë¤Ïξ³¹¶è¤ò·ë¤Ö¥Ç¥Ã¥¤¬À°È÷¤µ¤ì¡¢B³¹¶è¤ÏÎ٤ΡֽÂë¥Ò¥«¥ê¥¨¡×¤Ë¤âÀܳ¤·¤Þ¤¹¡£

¡¡µÜ±×ºä²¼¸òº¹ÅÀ¤«¤é¸«¤¿¡ÖµÜ±×ºäÃ϶èÂè°ì¼ï»Ô³¹ÃϺƳ«È¯»ö¶È¡×¤ÎA³¹¶èÊýÌ̤Ǥ¹¡£

¡¡µÜ±×ºä¤«¤é¡ÖµÜ±×¸æÖÖ¿À¼Ò¡×¤Ø¤È·Ò¤¬¤ë³¬Ãʤǡ¢¤³¤Î³¬Ãʤâ´Þ¤á¤¿¾ì½ê¤¬C³¹¶è¤È¤Ê¤Ã¤Æ¤¤¤Þ¤¹¡£

¡¡A¡¦C³¹¶è¤òÆîÅ즤«¤é¸«¤¿ÍͻҤǤ¹¡£Â绳³¹Æ»(µÜ±×ºä)±è¤¤¤ÎÊâ¹Ô¼Ô¶õ´Ö¤ÏÂ礤¯³ÈÉý¤µ¤ì¤Þ¤¹¡£

¡¡µÜ±×ºä²¼¸òº¹ÅÀ¤«¤é¸«¤¿¡ÖµÜ±×ºäÃ϶èÂè°ì¼ï»Ô³¹ÃϺƳ«È¯»ö¶È¡×¤ÎB³¹¶èÊýÌ̤Ǥ¹¡£±¦Â¦¤Ë¤¢¤ë¡Ö½Âë¥Ò¥«¥ê¥¨¡×(ÃϾå34³¬¡¢¹â¤µ182.48m)¤Ë¤Ï4³¬¤ÇÀܳ¤·¤Þ¤¹¡£
ÃÏ¿Þ(A³¹¶è)
ʪ·ï³µÍ×(A³¹¶è)
̾¾Î¡§µÜ±×ºäÃ϶èÂè°ì¼ï»Ô³¹ÃϺƳ«È¯»ö¶È A³¹¶è
½êºßÃÏ¡§ÅìµþÅÔ½Âë¶è½Â룱ÃúÌÜ
¸òÄÌ¡§JR»³¼êÀþ¡¦ºëµþÀþ¡Ö½Âë¡×±Ø
¡¡¡¡¡¡ÅìµÞÅì²£Àþ¡¦ÅıàÅÔ»ÔÀþ¡Ö½Âë¡×±Ø
¡¡¡¡¡¡Åìµþ¥á¥È¥í¶äºÂÀþ¡¦ÉûÅÔ¿´Àþ¡¦È¾Â¢ÌçÀþ¡Ö½Âë¡×±Ø
¡¡¡¡¡¡µþ²¦°æ¤ÎƬÀþ¡Ö½Âë¡×±Ø
ÍÑÅÓ¡§»ö̳½ê¡¢Å¹ÊÞ¡¢¥Û¡¼¥ë¡¢½ÉÇñÂں߻ÜÀß¡¢»º¶È°éÀ®»Ù±ç»ÜÀß¡¢Ãó¼Ö¾ìÅù
³¬¿ô¡§ÃϾå33³¬¡¢Åã²°2³¬¡¢Ãϲ¼3³¬
¹â¤µ¡§Ìó180m
¹½Â¤¡§Å´¹ü¤¡¢°ìÉôÅ´¶Ú¥³¥ó¥¯¥ê¡¼¥È¤
ÉßÃÏÌÌÀÑ¡§Ìó7,930Ö
·úÃÛÌÌÀÑ¡§Ìó6,790Ö
±ä¾²ÌÌÀÑ¡§Ìó192,057Ö
·úÃۼ硧µÜ±×ºäÃ϶è»Ô³¹ÃϺƳ«È¯Áȹç
»²²ÃÁȹç°÷¡§ÅìµÞ¡¢¥Ò¥å¡¼¥ê¥Ã¥¯
Àß·×¼Ô¡§¡Ý
»Ü¹©¼Ô¡§¡Ý
¹©´ü¡§2027ǯ10·îÃ幩¡Á2031ǯ9·î½×¹©Í½Äê
Áí»ö¶ÈÈñ¡§Ìó2431²¯±ß¡Ê¹©»öÈñÌó1750²¯±ß¡Ë
½Ðŵ
¢§ÅìµÞ¡§¥Ë¥å¡¼¥¹¥ê¥ê¡¼¥¹(2025ǯ4·î30Æü)
¡ÖµÜ±×ºäÃ϶èÂè°ì¼ï»Ô³¹ÃϺƳ«È¯»ö¶È¡×¡¡»Ô³¹ÃϺƳ«È¯ÁȹçÀßΩǧ²Ä¤Î¤ªÃΤ餻
¡Á½Âë±Ø¼þÊÕ¤ÎÅÔ»ÔºÆÀ¸Â裲¥¹¥Æ¡¼¥¸¤òÂ¥¿Ê¤¹¤ëÅì¸ý¤Îµ¯ÅÀ³«È¯¤¬Ëܳʲ½¤·¤Þ¤¹¡Á
¢§ÅìµþÅÔ¡§Êóƻȯɽ(2025ǯ4·î28Æü)
µÜ±×ºäÃ϶è»Ô³¹ÃϺƳ«È¯Áȹç¤ÎÀßΩ¤òǧ²Ä¤·¤Þ¤¹
¢§½Âë¶è¡§´Ä¶¡¦¤Þ¤Á¤Å¤¯¤ê(2023ǯ4·î12Æü)
µÜ±×ºäÃ϶èÂè°ì¼ï»Ô³¹ÃϺƳ«È¯»ö¶È¡ÊÎáÏÂ5ǯ4·î12Æü½Âë¶è¹ð¼¨Âè129¹æ¡ÊÅԻԷײè·èÄê¡Ë¡Ë
¢¨ ½ÄÍ÷´ü´Ö¡§ÎáÏÂ7ǯ1·î7Æü¡Ê²ÐÍËÆü¡Ë¤«¤éÎáÏÂ7ǯ1·î20Æü¡Ê·îÍËÆü¡Ë¤Þ¤Ç
¢§½Âë¶è¡§´Ä¶¡¦¤Þ¤Á¤Å¤¯¤ê(2023ǯ4·î12Æü)
½Âë±ØÅì¸ýÃ϶è¤Þ¤Á¤Å¤¯¤ê
¢§Æâ³ÕÉÜ¡§Âè24²ó¡¡ÅìµþÅÔÅÔ»ÔºÆÀ¸Ê¬²Ê²ñ¡¡ÇÛÉÛ»ñÎÁ(2022ǯ9·î7Æü)
»ñÎÁ£± µÜ±×ºäÃ϶èÅԻԷײè¡ÊÁǰơˤγµÍ×
- ¥«¥Æ¥´¥ê
- ½Âë¶è







