
¡¡Á¥Ë٤ǷúÀßÃæ¤Î¥¿¥ï¡¼¥Þ¥ó¥·¥ç¥ó¡Ö¥ë¥Õ¥©¥óÁ¥ËÙ¥¶¡¦¥¿¥ï¡¼¥ì¥¸¥Ç¥ó¥¹¡×(ÃϾå20³¬¡¢ºÇ¹â¹â¤µ61.74m)¤Ç¤¹¡£2025ǯ4·î6Æü¤Ë»£±Æ¤·¤Þ¤·¤¿¡£ÅԱĿ·½ÉÀþ¡ÖÁ¥Ë١ױؤ«¤éÅÌÊâ3ʬ¤Îʬ¾ù¥¿¥ï¥Þ¥ó¤Ç¡¢½×¹©¤Þ¤Ç»Ä¤êÌó1¥õ·î¤È¤Ê¤Ã¤Æ¤¤¤Þ¤¹¡£¤³¤Îµ»ö¤Ç¤ÏƱ¥¿¥ï¥Þ¥ó¤Î³µÍפä·úÀß¾õ¶·¡¢ÃÏ¿ÞÅù¤òºÜ¤»¤Æ¤¤¤Þ¤¹¡£
¥ë¥Õ¥©¥óÁ¥ËÙ¥¶¡¦¥¿¥ï¡¼¥ì¥¸¥Ç¥ó¥¹¤Ë¤Ä¤¤¤Æ

³°´Ñ´°À®Í½ÁÛ¿Þ[½Ðŵ¡§¸ø¼°HP]
¡¡¡Ö¥ë¥Õ¥©¥óÁ¥ËÙ¥¶¡¦¥¿¥ï¡¼¥ì¥¸¥Ç¥ó¥¹¡×¤ÏÅԱĿ·½ÉÀþ¡ÖÁ¥Ë١ױؤ«¤éÆî¦¤ØÅÌÊâ3ʬ¤Î¥¿¥ï¡¼¥Þ¥ó¥·¥ç¥ó¤Ç¡¢µ¬ÌϤÏÃϾå20³¬¡¢¹â¤µ59.99m¡¢ºÇ¹â¹â¤µ61.74m¡¢ÉßÃÏÌÌÀÑ2,074.08Ö¡¢·úÃÛÌÌÀÑ1,032.18Ö¡¢±ä¾²ÌÌÀÑ1Ëü3128.15Ö¡¢·úÃۼ硦Çä¼ç¤Ï¥µ¥ó¥±¥¤¥Ó¥ë¡¢À߷׼ԤȻܹ©¼Ô¤ÏĹ빩¥³¡¼¥Ý¥ì¡¼¥·¥ç¥ó¡¢½×¹©Í½Äê¤Ï2025ǯ5·î31Æü¡¢Æþµï³«»ÏͽÄê¤Ï2025ǯ6·î²¼½Ü¤Ç¤¹¡£
¡¡2025ǯ4·î²¼½Ü¤«¤é¤ÏºÇ½ª´ü¤Î7¸Í¤¬ÈÎÇ䳫»ÏͽÄê¤Ç¡¢ÈÎÇä´Ö¼è¤ê¤Ï3LDK¡Á4LDK¡¢ÀìÍÌÌÀѤÏ65.96Ö¡Á81.92Ö¡¢¥Ð¥ë¥³¥Ë¡¼ÌÌÀÑ10.52Ö¡Á12.80֤ȤʤäƤ¤¤Þ¤¹¡£

ÉßÃÏÇÛÃÖ¥¤¥é¥¹¥È[½Ðŵ¡§¸ø¼°HP]
¡¡·úÀßÃÏ¤ÏÆîÅì³ÑÃϤÇ1³¬¤Ë¤Ï¶¦ÍÑ»ÜÀߤȤ·¤Æ¥°¥é¥ó¥É¥é¥¦¥ó¥¸¡¢¥é¥¤¥Ö¥é¥ê¡¼¥é¥¦¥ó¥¸¡¢¥³¥ß¥å¥Ë¥Æ¥£¥é¥¦¥ó¥¸¤¬ÇÛÃÖ¤µ¤ì¤Þ¤¹¡£¤Þ¤¿¡¢¥¿¥ï¡¼¥Ñ¡¼¥¥ó¥°¤Ï¥Þ¥ó¥·¥ç¥óËÜÂΤȤÏÎ¥¤ì¤¿À¾Â¦¤ËÇÛÃÖ¤µ¤ì¤Æ¤¤¤Þ¤¹¡£

¥¨¥ó¥È¥é¥ó¥¹¡¦¥¢¥×¥í¡¼¥Á´°À®Í½ÁÛ¿Þ[½Ðŵ¡§¸ø¼°HP]
¡¡¥¨¥ó¥È¥é¥ó¥¹¤Ï±Ø¤Ë°ìÈֶᤤÅ즤ËÇÛÃÖ¤µ¤ì¤Þ¤¹¡£

¥°¥é¥ó¥É¥é¥¦¥ó¥¸´°À®Í½ÁÛ¿Þ[½Ðŵ¡§¸ø¼°HP]
¡¡¥¨¥ó¥È¥é¥ó¥¹¤òÆþ¤Ã¤¿¤È¤³¤í¤ËÇÛÃÖ¤µ¤ì¤ë¥°¥é¥ó¥É¥é¥¦¥ó¥¸¤Î´°À®Í½ÁۿޤǤ¹¡£

¥°¥é¥ó¥É¥é¥¦¥ó¥¸´°À®Í½ÁÛ¿Þ[½Ðŵ¡§¸ø¼°HP]
¡¡Æî¦¤Îƻϩ±è¤¤¤ËÀ°È÷¤µ¤ì¤ëÄí¤ÎÎФòį¤á¤é¤ì¤ë¥¹¥Ú¡¼¥¹¤Ë¤Ê¤ê¤Þ¤¹¡£

¥é¥¤¥Ö¥é¥ê¡¼¥é¥¦¥ó¥¸´°À®Í½ÁÛ¿Þ[½Ðŵ¡§¸ø¼°HP]
¡¡1³¬¤Ë¤Ï¶¦ÍÑ»ÜÀߤȤ·¤Æ¥é¥¤¥Ö¥é¥ê¡¼¥é¥¦¥ó¥¸¤¬ÇÛÃÖ¤µ¤ì¤Þ¤¹¡£

¥³¥ß¥å¥Ë¥Æ¥£¥é¥¦¥ó¥¸´°À®Í½ÁÛ¿Þ[½Ðŵ¡§¸ø¼°HP]
¡¡Î٤ˤϥ¥Ã¥Á¥ó¤¬¤¢¤ë¥³¥ß¥å¥Ë¥Æ¥£¥é¥¦¥ó¥¸¤âÇÛÃÖ¤µ¤ì¤Þ¤¹¡£

²°¾å¥Æ¥é¥¹´°À®Í½ÁÛ¿Þ[½Ðŵ¡§¸ø¼°HP]
¡¡¤½¤·¤Æ²°¾å¤Ë¤ÏÉٻλ³¤â¸«¤¨¤ë²°¾å¥Æ¥é¥¹¤¬ÀßÃÖ¤µ¤ì¤Þ¤¹¡£¹ÓÀî±è¤¤¤Ç³«ºÅ¤µ¤ì¤ë¹¾Åì²Ö²ÐÂç²ñ¤â˾¤á¤ë¾ì½ê¤Ë¤Ê¤ê¤Þ¤¹¡£
´Ö¼è¤ê¿Þ

A¥¿¥¤¥×[½Ðŵ¡§¸ø¼°HP]
¡¡A¥¿¥¤¥×¤Î´Ö¼è¤ê¿Þ¤Ç¤¹¡£´Ö¼è¤ê¤Ï3LDK+WIC+SIC¡¢ÀìÍÌÌÀѤÏ81.92Ö¡¢¥Ð¥ë¥³¥Ë¡¼ÌÌÀѤÏ10.52֤ȤʤäƤ¤¤Þ¤¹¡£

E¥¿¥¤¥×[½Ðŵ¡§¸ø¼°HP]
¡¡E¥¿¥¤¥×¤Î´Ö¼è¤ê¿Þ¤Ç¤¹¡£´Ö¼è¤ê¤Ï3LDK+WIC¡¢ÀìÍÌÌÀѤÏ65.96Ö¡¢¥Ð¥ë¥³¥Ë¡¼ÌÌÀѤÏ11.20֤ȤʤäƤ¤¤Þ¤¹¡£

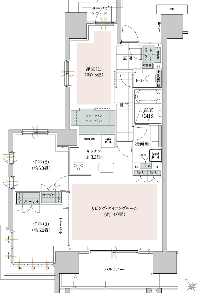
G¥¿¥¤¥×[½Ðŵ¡§¸ø¼°HP]
¡¡G¥¿¥¤¥×¤Î´Ö¼è¤ê¿Þ¤Ç¤¹¡£´Ö¼è¤ê¤Ï4LDK+2WIC¡¢ÀìÍÌÌÀѤÏ86.62Ö¡¢¥Ð¥ë¥³¥Ë¡¼ÌÌÀѤÏ7.60Ö¡¢¥µ¡¼¥Ó¥¹¥¹¥Ú¡¼¥¹ÌÌÀѤÏ2.60֤ȤʤäƤ¤¤Þ¤¹¡£
°ÌÃÖ¿Þ

°ÌÃÖ¿Þ[½Ðŵ¡§¸ø¼°HP]
¡¡·úÀßÃϤÏÅԱĿ·½ÉÀþ¡ÖÁ¥ËÙ¡×±Ø¤ÎÆî¦¤ÇÅÌÊâ3ʬ¡¢Ë̦¤Ë¤Ï¡ÖÁ¥ËÙ±ØÁ°¥È¥¥¿¥ï¡¼¡Ê¥È¥¥Ó¥ë¡Ë¡×¤¬¤¢¤ëΩÃϤȤʤäƤ¤¤Þ¤¹¡£¤³¤³¤ÏÁ¥ËÙ³¹Æ»¤«¤éÃæ¤ËÆþ¤Ã¤¿¾ì½ê¤Ç¡¢Å¹Êޤ⾯¤Ê¤¤Ä̤ê¤Ê¤Î¤Ç±Ø¶á¤È¤·¤Æ¤Ï³ä¤ê¤ÈÀŤ«¤Ê¾ì½ê¤È¤Ê¤Ã¤Æ¤¤¤Þ¤¹¡£
¡¡Á¥ËٱؤÎË̦¤Ë¤Ï¡Ö¥¿¥ï¡¼¥Û¡¼¥ëÁ¥Ë١פ¬¤¢¤ê¡¢¤µ¤é¤ËË̦¤Ç¤Ï¡ÖÁ¥ËÙ»ÍÃúÌÜÃ϶èÂè°ì¼ï»Ô³¹ÃϺƳ«È¯»ö¶È¡×¤¬·×²è¤µ¤ì¤Æ¤ª¤ê¡¢ÃϾå21³¬¡¢¹â¤µÌó99m¤Î¹¾¸ÍÀî¶è¿·Ä£¼Ë¤ÈÃϾå26³¬¡¢¹â¤µÌó99m¤Î¥¿¥ï¡¼¥Þ¥ó¥·¥ç¥ó¤¬·×²è¤µ¤ì¤Æ¤¤¤Þ¤¹¡£Åö½é¤Ï2028ǯÅ٤ˤϴ°À®Í½Äê¤Ç¤·¤¿¤¬¡¢¸½ºß¤Ï2030ǯÅÙ´°À®Í½Äê¤Ë¤Ê¤Ã¤Æ¤¤¤Þ¤¹¡£
·úÀß¾õ¶·

¡¡2025ǯ4·î6Æü¤ËÀ¾Â¦¤«¤é»£±Æ¤·¤¿¡Ö¥ë¥Õ¥©¥óÁ¥ËÙ¥¶¡¦¥¿¥ï¡¼¥ì¥¸¥Ç¥ó¥¹¡×(ÃϾå20³¬¡¢ºÇ¹â¹â¤µ61.74m)¤Ç¤¹¡£

¡¡Æî¦¤«¤é»£±Æ¡£¥¿¥ï¥Þ¥óËÜÂΤϤܴۤ°À®¤·¤Æ¤¤¤ë¤è¤¦¤Ë¸«¤¨¤Þ¤·¤¿¡£

¡¡»£±Æ»þ¤Ë¤Ï³°¹½¤ÎÀ°È÷Ãæ¤Ç¡¢·úÀß¹©»ö½ªÈפȤ¤¤Ã¤¿´¶¤¸¤Ç¤·¤¿¡£

¡¡Å즤«¤é»£±Æ¡£¤³¤³¤¬¥¨¥ó¥È¥é¥ó¥¹¤Ë¤Ê¤ë¾ì½ê¤Ç¡¢»£±Æ»þ¤Ï¤Þ¤À·úÀßÃæ¤Ç¤·¤¿¡£

¡¡Ë̦¤«¤é»£±Æ¡£¤³¤Á¤é¤Ï¡ÖÁ¥ËÙ±ØÁ°¥È¥¥¿¥ï¡¼¡Ê¥È¥¥Ó¥ë¡Ë¡×¦¤Ë¤Ê¤ë¤¿¤á¡¢³¬Ãʤ䳰ϲ¼¤Ê¤É¤¬ÇÛÃÖ¤µ¤ì¤Æ¤¤¤Þ¤¹¡£

¡¡Á¥ËÙ³¹Æ»±è¤¤¤È¤Ê¤ëÆîÀ¾Â¦¤«¤é»£±Æ¡£Èľõ¤Î¥Þ¥ó¥·¥ç¥ó¤¬¡Ö¥ë¥Õ¥©¥óÁ¥ËÙ¥¶¡¦¥¿¥ï¡¼¥ì¥¸¥Ç¥ó¥¹¡×(ÃϾå20³¬¡¢ºÇ¹â¹â¤µ61.74m)¤Ç¡¢¤½¤Îº¸Â¦¤¬¡ÖÁ¥ËÙ±ØÁ°¥È¥¥¿¥ï¡¼¡Ê¥È¥¥Ó¥ë¡Ë¡×(ÃϾå27³¬¡¢¹â¤µ91m)¡¢¤µ¤é¤Ëº¸Â¦¤ÎÅ㤬¡Ö¥¿¥ï¡¼¥Û¡¼¥ëÁ¥ËÙ¡ÊÄ̾Ρ§Á¥ËÙ¥¿¥ï¡¼¡Ë¡×(¹â¤µ115m)¤Ç¤¹¡£

¡¡¤½¤Î¡ÖÁ¥ËÙ¥¿¥ï¡¼¡×¤ÎŸ˾¼¼¤«¤é»£±Æ¤·¤¿¡Ö¥ë¥Õ¥©¥óÁ¥ËÙ¥¶¡¦¥¿¥ï¡¼¥ì¥¸¥Ç¥ó¥¹¡×¤Ç¤¹¡£

¡¡¤¹¤°Î٤ˤϡÖÁ¥ËÙ±ØÁ°¥È¥¥¿¥ï¡¼¡Ê¥È¥¥Ó¥ë¡Ë¡×¤¬¤¢¤ë¤¿¤á¤¢¤Þ¤êÌÜΩ¤Á¤Þ¤»¤ó¤¬¡¢Æ±¥¨¥ê¥¢¤Ç¤Ïµ×¤·¤Ö¤ê¤Î¥¿¥ï¡¼¥Þ¥ó¥·¥ç¥ó¤È¤Ê¤Ã¤Æ¤¤¤Þ¤¹¡£¤Á¤Ê¤ß¤Ë³ÑÉô²°¤Ï1²¯±ß¤òͤ¨¤Æ¤ª¤ê¡¢¤É¤¦¤¤¤Ã¤¿¿Í¤¬Ç㤦¤ó¤À¤í¤¦¡©¤È»×¤Ã¤Æ¤¤¤Þ¤·¤¿¤¬¡¢¤³¤³¤Î³ÑÉô²°¤òÇã¤Ã¤¿¤È¤¤¤¦ÃΤê¹ç¤¤¤ÎÃΤê¹ç¤¤¤ÏÃϱï¤Î¤¢¤ë¿Í¤À¤½¤¦¤Ç¤¹¡£¤ä¤Ã¤Ñ¤ê¤³¤¦¤¤¤Ã¤¿¥Þ¥¤¥Ê¡¼¥¨¥ê¥¢¤Î¹â³Ûʪ·ï¤Ï¡¢Ãϱï¤Î¤¢¤ë¿Í¤ÎÊý¤¬Â¿¤½¤¦¤Êµ¤¤¬¤·¤Þ¤¹¤Í¡£
ÃÏ¿Þ
ʪ·ï³µÍ×

¡¡·úÃ۷ײè¤Î¤ªÃΤ餻¤Ç¤¹¡£
¢£Êª·ï³µÍ×¢£
̾¾Î¡§¥ë¥Õ¥©¥óÁ¥ËÙ¥¶¡¦¥¿¥ï¡¼¥ì¥¸¥Ç¥ó¥¹
»ö¶È̾¡§(²¾¾Î)¹¾¸ÍÀî¶èÁ¥ËÙ3ÃúÌÜ·×²è ¿·ÃÛ¹©»ö
½êºßÃÏ¡§ÅìµþÅÔ¹¾¸ÍÀî¶èÁ¥ËÙ»°ÃúÌÜ603ÈÖ¡¢604ÈÖ¡¢605ÈÖ1¡Á4¡¢606ÈÖ1¡Á2
¸òÄÌ¡§ÅÔ±ÄÃϲ¼Å´¿·½ÉÀþ¡ÖÁ¥ËÙ¡×±Ø ÅÌÊâ3ʬ
ÍÑÅÓ¡§¶¦Æ±½»Âð
Áí¸Í¿ô¡§133¸Í
³¬¿ô¡§ÃϾå20³¬
¹â¤µ¡§59.99m¡ÊºÇ¹â¹â¤µ61.74m¡Ë
¹½Â¤¡§Å´¶Ú¥³¥ó¥¯¥ê¡¼¥È¤ °ìÉô Å´¹ü¤
´ðÁù©Ë¡¡§¹º´ðÁÃ
ÉßÃÏÌÌÀÑ¡§2,074.08Ö
·úÃÛÌÌÀÑ¡§1,032.18Ö
±ä¾²ÌÌÀÑ¡§13,128.15Ö
·úÃۼ硧¥µ¥ó¥±¥¤¥Ó¥ë
Àß·×¼Ô¡§Ä¹Ã«¹©¥³¡¼¥Ý¥ì¡¼¥·¥ç¥ó
»Ü¹©¼Ô¡§Ä¹Ã«¹©¥³¡¼¥Ý¥ì¡¼¥·¥ç¥ó
¹©´ü¡§2023ǯ2·î1ÆüÃ幩¡Á2025ǯ5·î31Æü½×¹©Í½Äê
Æþµï¡§2025ǯ6·î²¼½ÜͽÄê
½Ðŵ
¢§¸ø¼°HP¡§¥ë¥Õ¥©¥óÁ¥ËÙ¥¶¡¦¥¿¥ï¡¼¥ì¥¸¥Ç¥ó¥¹
https://www.lefond.jp/funabori-tower/
- ¥«¥Æ¥´¥ê
- ¹¾¸ÍÀî¶è







