
¡¡JRÉÊÀî±ØÅÌÊâ·÷¤Ç·úÀßÃæ¤Î¡Ö¥ê¥Ó¥ª¥¿¥ï¡¼ÉÊÀî¡×(ÃϾå34³¬¡¢¹â¤µ119.89m)¤Î·úÀßÃϤǤ¹¡£2025ǯ3·î30Æü¤Ë»£±Æ¤·¤Þ¤·¤¿¡£ÉÊÀî±Ø¤òºÇ´ó¤ê±Ø¤È¤¹¤ë30³¬Ä¶¤¨¤Î¥¿¥ï¡¼¥Þ¥ó¥·¥ç¥ó¤È¤·¤Æ¤Ï15ǯ¤Ö¤ê¤Ç¡¢Âè1´ü1¼¡¤ÎºÇ¹âÇÜΨ¤Ï139ÇÜ¡¢Ê¿¶ÑÇÜΨ12.3ÇܤǤ·¤¿¡£¤³¤Îµ»ö¤Ç¤ÏƱ¥¿¥ï¥Þ¥ó¤Î³µÍפä·úÀß¾õ¶·¡¢ÃÏ¿ÞÅù¤òºÜ¤»¤Æ¤¤¤Þ¤¹¡£
¥ê¥Ó¥ª¥¿¥ï¡¼ÉÊÀî¤Ë¤Ä¤¤¤Æ

³°´Ñ´°À®Í½ÁÛCG[½Ðŵ¡§¸ø¼°HP]
¡¡¡Ö¥ê¥Ó¥ª¥¿¥ï¡¼ÉÊÀî¡×¤ÏÉÊÀî±ØÅÌÊâ·÷¤Îʬ¾ù¤Î¥¿¥ï¡¼¥Þ¥ó¥·¥ç¥ó¤Ç¡¢µ¬ÌϤÏÃϾå34³¬¡¢¹â¤µ119.89m¡¢ÉßÃÏÌÌÀÑ6,821.38Ö¡¢·úÃÛÌÌÀÑ3,189.28Ö¡¢±ä¾²ÌÌÀÑ7Ëü6130.35Ö¡¢Áí¸Í¿ô815¸Í¤È¤Ê¤Ã¤Æ¤¤¤Þ¤¹¡£
¡¡·úÃۼ硦Çä¼ç¤ÏÆüÅ´¶½ÏÂÉÔÆ°»º¡¢´ØÅÅÉÔÆ°»º³«È¯¡¢¶å½£Î¹µÒÅ´Æ»¡¢µþÉ͵޹ÔÅÅÅ´¡¢Ãæ±ûÆüËÜÅÚÃÏ·úʪ¡¢Àß·×¼Ô¤ÏÀõ°æ¸¬·úÃÛ¸¦µæ½ê¡¦Ä¹Ã«¹©¥³¡¼¥Ý¥ì¡¼¥·¥ç¥ó¡¢»Ü¹©¼Ô¤ÏĹ빩¥³¡¼¥Ý¥ì¡¼¥·¥ç¥ó¤Ç2026ǯ5·î¾å½Ü½×¹©¡¢2026ǯ10·î¾å½Ü¤ÎÆþµï³«»ÏͽÄê¤Ç¤¹¡£

³°´Ñ´°À®Í½ÁÛCG[½Ðŵ¡§¸ø¼°HP]
¡¡2025ǯ6·î¾å½Ü¤«¤é¤ÏÂè1´ü2¼¡¤ÎÈÎÇ䳫»ÏͽÄê¤Ç¡¢ËÜÈÎÇä´ü°Ê¹ß¤ÎÁíÈÎÇä¸Í¿ô¡Ê594¸Í¡Ë¤Î´Ö¼è¤ê¤Ï1LDK¡Á3LDK¡¢ÀìÍÌÌÀѤÏ42.10Ö¡Á104.04Ö¡¢¥Ð¥ë¥³¥Ë¡¼ÌÌÀÑ4.94Ö¡Á24.32Ö¡¢¥È¥é¥ó¥¯¥ë¡¼¥à¤Ï0.97Ö¡Á1.85֤ȤʤäƤ¤¤Þ¤¹¡£
¡¡Âè1´ü1¼¡¤Ç¤Ï221¸Í¤¬Ê¬¾ù¤µ¤ì¡¢ÈÎÇä²Á³Ê¤Ï1²¯498Ëü±ß¡Á5²¯2998Ëü±ß¡¢ºÇ¹âÇÜΨ139ÇÜ¡ÊÊ¿¶Ñ12.3Çܡˤǡ¢221¸ÍÁ´¸Í¤Ë¤Ä¤¤¤ÆÅÐÏ¿¿½¹þ¤¬¤¢¤ê¤Þ¤·¤¿¡£

³°´Ñ´°À®Í½ÁÛCG[½Ðŵ¡§¸ø¼°HP]
¡¡ºÇ¾å³¬¤ÏÁ´15Å¡¤Î¥×¥ì¥ß¥¢¥à¥×¥é¥ó¤È¤Ê¤ê¡¢ÀìÍÌÌÀѤÏ90ÖĶ¡Á130ÖĶ¡¢¥ê¥Ó¥ó¥°¡¦¥À¥¤¥Ë¥ó¥°¤ÎÅ·°æ¹â¤Ï2.90m¤Ç½»¸ÍÀìÍѥȥé¥ó¥¯¥ë¡¼¥à¡Ê¢¨°ìÉô½»¸Í½ü¤¯¡Ë¤ÈÃó¼Ö¾ìÍ¥À踢¤¬ÉÕ¤¯¤Ê¤ÉÆÃÊÌ»ÅÍͤȤʤäƤ¤¤Þ¤¹¡£

ÉßÃÏÇÛÃÖ¿Þ[½Ðŵ¡§¸ø¼°HP]
¡¡Æ±¥¿¥ï¥Þ¥ó¤Î¼þ°Ï¤Ë¤Ï¥ê¥ó¥¯¥¬¡¼¥Ç¥ó¡¢¥¢¥¯¥¢¥¬¡¼¥Ç¥ó¡¢¥Ó¥ª¥¬¡¼¥Ç¥ó¤È¤¤¤Ã¤¿ÎÐÃϤ¬À°È÷¤µ¤ì¡¢ÅìµþÅÔÎв½´ð½àÈæ¤Ç137%Îв½¤µ¤ì¤Þ¤¹¡£

¥¢¥¯¥¢¥¬¡¼¥Ç¥ó´°À®Í½ÁÛCG[½Ðŵ¡§¸ø¼°HP]
¡¡¥¢¥¯¥¢¥¬¡¼¥Ç¥ó¤Î´°À®Í½ÁۿޤǤ¹¡£¥¨¥ó¥È¥é¥ó¥¹¥é¥¦¥ó¥¸¤«¤é¤Ï¿å·Ê¤Î¤¢¤ëÎФ˰Ϥޤ줿Äí¤ò¸«¤ë¤³¤È¤¬¤Ç¤¤Þ¤¹¡£

¥¨¥ó¥È¥é¥ó¥¹¥¢¥×¥í¡¼¥Á´°À®Í½ÁÛCG[½Ðŵ¡§¸ø¼°HP]
¡¡¥á¥¤¥ó¥¨¥ó¥È¥é¥ó¥¹¤Ë¤Ï¼Ö´ó¤»¤¬ÇÛÃÖ¤µ¤ì¤Þ¤¹¡£

¥¨¥ó¥È¥é¥ó¥¹¥Û¡¼¥ë´°À®Í½ÁÛCG[½Ðŵ¡§¸ø¼°HP]
¡¡¥¨¥ó¥È¥é¥ó¥¹¤Ï2ÁØ¿á¤È´¤±¤Ç¡¢¥¨¥ó¥È¥é¥ó¥¹¥Û¡¼¥ë¤«¤é¥é¥¦¥ó¥¸¤Þ¤Ç50m¤ÎÂç¶õ´Ö¤Ë¤Ê¤ê¤Þ¤¹¡£
¶¦ÍÑ»ÜÀß

³°´Ñ´°À®Í½ÁÛCG[½Ðŵ¡§¸ø¼°HP]
¡¡¡Ö¥ê¥Ó¥ª¥¿¥ï¡¼ÉÊÀî¡×¤Î¶¦ÍÑ»ÜÀߤÏ1³¬¤Ë¥¨¥ó¥È¥é¥ó¥¹¥é¥¦¥ó¥¸¡¢¥ï¡¼¥¯¥é¥¦¥ó¥¸¡¢¥´¥ë¥Õ¥ì¥ó¥¸¡¢2³¬¤Ë¥ª¡¼¥Ê¡¼¥º¥é¥¦¥ó¥¸¡¢¥Õ¥¡¥ß¥ê¡¼¥ë¡¼¥à¡¢¥Õ¥£¥Ã¥È¥Í¥¹¥ë¡¼¥à¡¢¤½¤·¤Æ29³¬¤Ë¥¹¥«¥¤¥é¥¦¥ó¥¸¤È¥²¥¹¥È¥ë¡¼¥à¤¬ÇÛÃÖ¤µ¤ì¤Þ¤¹¡£

¥¹¥«¥¤¥é¥¦¥ó¥¸´°À®Í½ÁÛCG[½Ðŵ¡§¸ø¼°HP]
¡¡29³¬¤ËÇÛÃÖ¤µ¤ì¤ë¥¹¥«¥¤¥é¥¦¥ó¥¸¤Ï¡¢¥ì¥¤¥ó¥Ü¡¼¥Ö¥ê¥Ã¥¸¤òį¤á¤ë¤³¤È¤¬¤Ç¤¤ëµï½»¼ÔÀìÍѤζõ´Ö¤Ë¤Ê¤ê¤Þ¤¹¡£

¥Ð¡¼¥«¥¦¥ó¥¿¡¼´°À®Í½ÁÛCG[½Ðŵ¡§¸ø¼°HP]
¡¡¥¹¥«¥¤¥é¥¦¥ó¥¸¤Ë¤Ï¥Ð¡¼¥«¥¦¥ó¥¿¡¼¤âÊ»Àߤµ¤ì¤Þ¤¹¡£

¥²¥¹¥È¥ë¡¼¥à´°À®Í½ÁÛCG[½Ðŵ¡§¸ø¼°HP]
¡¡29³¬¤Ë¤Ï¥²¥¹¥È¥ë¡¼¥à¤¬2Éô²°¤¢¤ê¡¢¥µ¥¦¥Ê¤òÈ÷¤¨¤¿Éô²°¤âÍѰդµ¤ì¤Þ¤¹¡£
´Ö¼è¤ê¿Þ

40Bw¥¿¥¤¥×[½Ðŵ¡§¸ø¼°HP]
¡¡40Bw¥¿¥¤¥×¤Î´Ö¼è¤ê¿Þ¤Ç¤¹¡£´Ö¼è¤ê¤Ï1LDK+WIC+SIC¡¢ÀìÍÌÌÀѤÏ43.68Ö¡¢¥Ð¥ë¥³¥Ë¡¼ÌÌÀѤÏ9.40֤ȤʤäƤ¤¤Þ¤¹¡£

60Bs¥¿¥¤¥×[½Ðŵ¡§¸ø¼°HP]
¡¡60Bs¥¿¥¤¥×¤Î´Ö¼è¤ê¿Þ¤Ç¤¹¡£´Ö¼è¤ê¤Ï2LDK+N¡¢ÀìÍÌÌÀѤÏ60.18֤ȤʤäƤ¤¤Þ¤¹¡£

75Asw¥¿¥¤¥×[½Ðŵ¡§¸ø¼°HP]
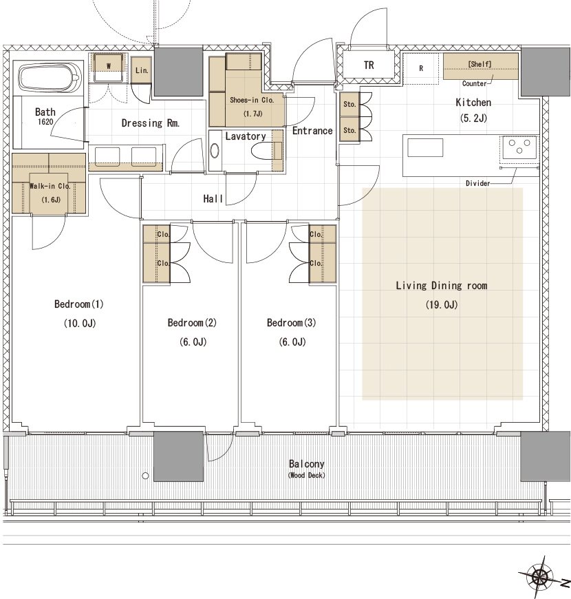
¡¡75Asw¥¿¥¤¥×¤Î´Ö¼è¤ê¿Þ¤Ç¤¹¡£´Ö¼è¤ê¤Ï3LDK+N¡¢ÀìÍÌÌÀѤÏ75.10֤ȤʤäƤ¤¤Þ¤¹¡£

P-100Ae¥¿¥¤¥×[½Ðŵ¡§¸ø¼°HP]
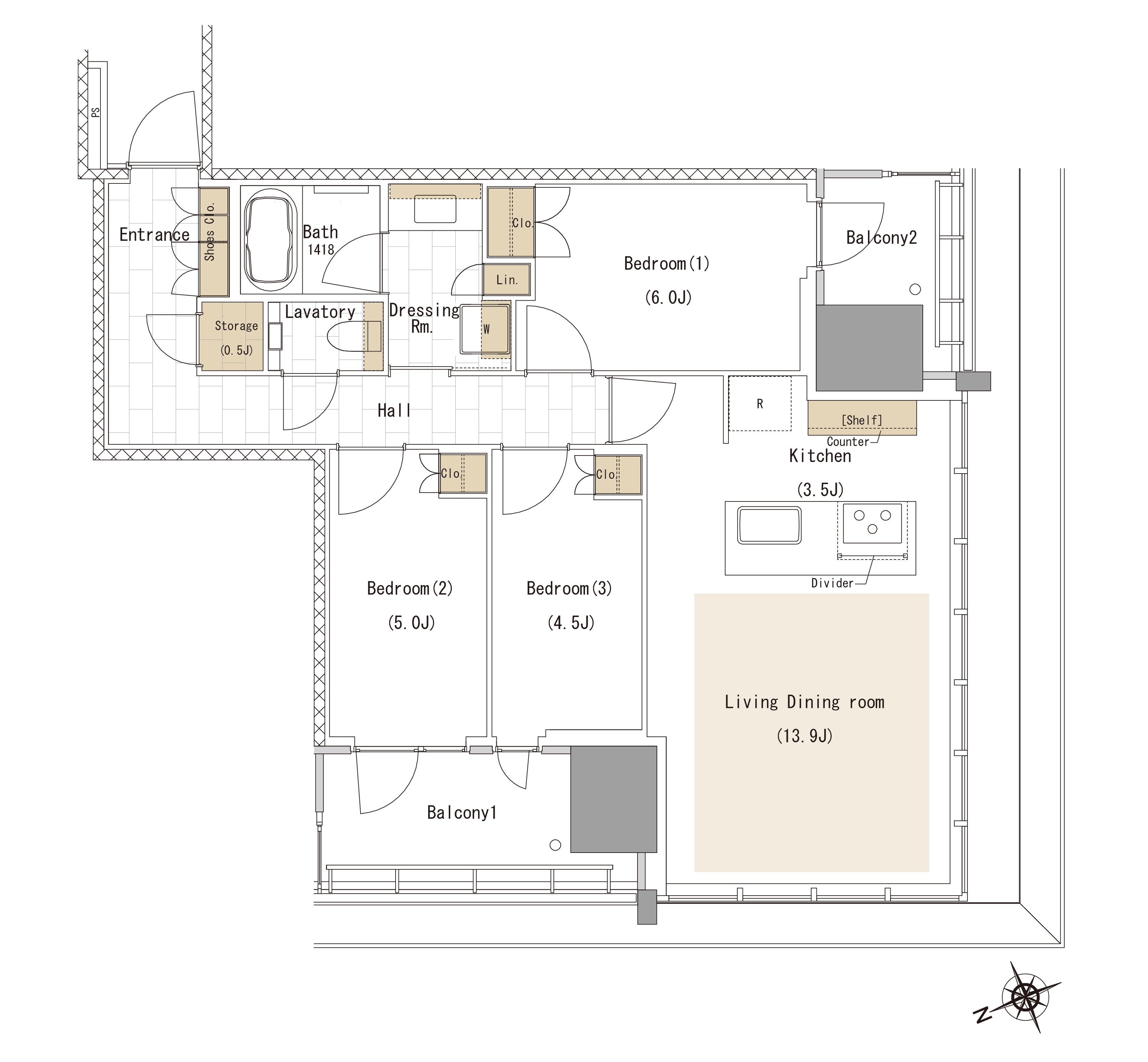
¡¡ºÇ¾å³¬¤ËÇÛÃÖ¤µ¤ì¤ë¥×¥ì¥ß¥¢¥à¥Õ¥í¥¢¤ÎP-100Ae¥¿¥¤¥×¤Î´Ö¼è¤ê¿Þ¤Ç¤¹¡£´Ö¼è¤ê¤Ï3LDK+WIC+SIC+TR¡¢ÀìÍÌÌÀѤÏ104.04֤ȤʤäƤ¤¤Þ¤¹¡£
°ÌÃÖ¿Þ

°ÌÃÖ¿Þ[½Ðŵ¡§¸ø¼°HP]
¡¡·úÀßÃϤÏJR¡ÖÉÊÀî¡×±Ø¤ÎËÌÅì¦¤ÇÆî¸ý¤«¤é¤ÏÅÌÊâ13ʬ¡¢µþµÞËÜÀþ¡ÖÉÊÀî¡×±Ø¤«¤é¤ÏÅÌÊâ17ʬ¤È¤Ê¤Ã¤Æ¤¤¤Þ¤¹¡£¤Þ¤¿¡¢JR¡Ö¹âÎØ¥²¡¼¥È¥¦¥§¥¤¡×±Ø¤Ë·Ò¤¬¤ëÊâ¹Ô¼ÔÀìÍÑÆ»¤¬·úÀßÃæ¤Ç¡¢¤³¤ì¤¬´°À®¤¹¤ë¤È¤³¤Á¤é¤âºÇ´ó¤ê±Ø¤È¤·¤ÆÍøÍѲÄǽ¤È¤Ê¤ê¤Þ¤¹¡£

³°´Ñį˾¹çÀ®´°À®Í½ÁÛCG[½Ðŵ¡§¸ø¼°HP]
¡¡¡Ö¥ê¥Ó¥ª¥¿¥ï¡¼ÉÊÀî¡×¤Î·úÀßÃϤμþ°Ï¤Ë¤Ï¥¿¥ï¡¼¥Þ¥ó¥·¥ç¥ó¤¬·ú¤ÁʤÖΩÃϤȤʤäƤ¤¤Þ¤¹¤¬¡¢Å즽»¸Í¤«¤é¤Ï¤Á¤ç¤¦¤É¥ì¥¤¥ó¥Ü¡¼¥Ö¥ê¥Ã¥¸¤ò˾¤à¤³¤È¤¬¤Ç¤¤ëΩÃϤȤʤäƤ¤¤Þ¤¹¡£
·úÀß¾õ¶·

¡¡2025ǯ3·î30Æü¤ËÆîÅ즤«¤é»£±Æ¤·¤¿¡Ö¥ê¥Ó¥ª¥¿¥ï¡¼ÉÊÀî¡×(ÃϾå34³¬¡¢¹â¤µ119.89m)¤Î·úÀßÃϤǤ¹¡£

¡¡Æî¦¤«¤é»£±Æ¡£Æ±¥¿¥ï¥Þ¥ó¤Î¥Ç¥¶¥¤¥ó¥³¥ó¥»¥×¥È¤ÏÁ¥¤È¤Ê¤Ã¤Æ¤¤¤Þ¤¹¡£

¡¡ÉÊÀî±ØÂ¦¤È¤Ê¤ëÆîÀ¾Â¦¤«¤é»£±Æ¡£Á¥¤ÎÈÁ¡¦É÷¡¦Î®¤ì¡¦¤æ¤é¤®¤òɽ¸½¤·¤¿ÌÏÍͤ¬¤À¤¤¤Ö¸«¤¨¤ë¤è¤¦¤Ë¤Ê¤Ã¤Æ¤¤Æ¤¤¤Þ¤¹¡£

¡¡ËÌÀ¾Â¦¤«¤é»£±Æ¡£Ê¿Ì̤ϥ«¥Ã¥È¤·¤¿¥±¡¼¥¤Î¤è¤¦¤Ê·Á¤Ç¡¢¤³¤Á¤é¤ÎË̦¤¬±Ô³Ñ¤È¤Ê¤Ã¤Æ¤¤¤Þ¤¹¡£

¡¡ËÌÅ즤«¤é»£±Æ¡£¤³¤Á¤é¦¤ÎÉô²°¤¬¥ì¥¤¥ó¥Ü¡¼¥Ö¥ê¥Ã¥¸¥Ó¥å¡¼¤È¤Ê¤ê¤Þ¤¹¡£29³¬¤Ë¥¹¥«¥¤¥é¥¦¥ó¥¸¤¬ÇÛÃÖ¤µ¤ì¤ë¤¿¤á¡¢½»Ì±¤Ê¤é¤Ðï¤Ç¤â¥ì¥¤¥ó¥Ü¡¼¥Ö¥ê¥Ã¥¸¥Ó¥å¡¼¤ò³Ú¤·¤à¤³¤È¤¬¤Ç¤¤Þ¤¹¡£

¡¡À¾Â¦¤Ë¤¢¤ë¹Á¶èΩ¼Ç±ºÃæ±û¸ø±à¤«¤é»£±Æ¡£¼þ°Ï¤Ë¤Ï¿¿ô¤Î¥¿¥ï¥Þ¥ó¤¬·ú¤Áʤó¤Ç¤¤¤Þ¤¹¤¬¡¢Êý³Ñ¤Ë¤è¤Ã¤Æ¤ÏÈ´¤±¤¿Ä¯Ë¾¤È¤Ê¤ë¤³¤È¤¬¤ï¤«¤ê¤Þ¤¹¡£

¡¡¼Ç±ºÃæ±û¸ø±à¤È·Ò¤¬¤Ã¤Æ¤¤¤ëÉÊÀ¡¼¥º¥ó¥Æ¥é¥¹¤Î¥¤¥Ù¥ó¥È¹¾ì¤Îºù¤È¡Ö¥ê¥Ó¥ª¥¿¥ï¡¼ÉÊÀî¡×¤Ç¤¹¡£

¡¡¹âÎØ¥²¡¼¥È¥¦¥§¥¤±ØÄ¾·ë¤Î¹âÎØ¥²¡¼¥È¥¦¥§¥¤¥·¥Æ¥£¤Î¥Ç¥Ã¥¤«¤é»£±Æ¤·¤¿¹ÁÆî¦¤Ç¤¹¡£

¡¡¡Ö¥ê¥Ó¥ª¥¿¥ï¡¼ÉÊÀî¡×¤Ë¥º¡¼¥à¤Ç¤¹¡£º¸²¼¤¬¹âÎØ¥²¡¼¥È¥¦¥§¥¤±Ø¤È¹ÁÆî¤ò·Ò¤°¥Ç¥Ã¥¤ÇÃ塹¤È·úÀߤ¬¿Ê¤ó¤Ç¤¤¤Þ¤¹¡£

¡¡Ë̦¤Î¼Ç±º±¿²Ï¤Ë²Í¤«¤ë¹Á±É¶¶¤«¤é»£±Æ¡£¸Ä¿ÍŪ¤Ë¤Ï¼þÊդΥ¿¥ï¥Þ¥ó·²¤ÎÃæ¿´¤Ë¡Ö¥ê¥Ó¥ª¥¿¥ï¡¼ÉÊÀî¡×¤¬¸«¤¨¤ë¤³¤Î¹½¿Þ¤¬°ìÈÖ¹¥¤¤Ç¤¹¡£
ÃÏ¿Þ
ʪ·ï³µÍ×

¡¡·úÃ۷ײè¤Î¤ªÃΤ餻¤Ç¤¹¡£
¢£Êª·ï³µÍ×¢£
̾¾Î¡§¥ê¥Ó¥ª¥¿¥ï¡¼ÉÊÀî
»ö¶È̾¡§(²¾¾Î)¹Á¶è¹ÁÆî»°ÃúÌÜ7ÈÖ¥×¥í¥¸¥§¥¯¥È
½êºßÃÏ¡§ÅìµþÅÔ¹Á¶è¹ÁÆî3ÃúÌÜ7-2¡ÊÃÏÈÖ¡Ë
¸òÄÌ¡§JR³ÆÀþ¡ÖÉÊÀî¡×±Ø ÅÌÊâ13ʬ
¡¡¡¡¡¡µþµÞËÜÀþ¡ÖÉÊÀî¡×±Ø ÅÌÊâ14ʬ
¡¡¡¡¡¡JR³ÆÀþ¡Ö¹âÎØ¥²¡¼¥È¥¦¥§¥¤¡×±Ø
¡¡¡¡¡¡Åìµþ¥â¥Î¥ì¡¼¥ë¡ÖÅ·²¦½§¥¢¥¤¥ë¡×±Ø
ÍÑÅÓ¡§¶¦Æ±½»Âð¡Ê°ìÉôŹÊÞ¡Ë
Áí¸Í¿ô¡§815¸Í¡Ê¾¤ËŹÊÞ1¶è²è¡Ë
³¬¿ô¡§ÃϾå34³¬
¹â¤µ¡§119.89m
¹½Â¤¡§Å´¶Ú¥³¥ó¥¯¥ê¡¼¥È¤¡¢Ìȿ̹½Â¤
´ðÁù©Ë¡¡§¸½¾ì¤À®¹º
ÉßÃÏÌÌÀÑ¡§6,821.38Ö
·úÃÛÌÌÀÑ¡§3,189.28Ö
±ä¾²ÌÌÀÑ¡§76,130.35Ö
·úÃۼ硦Çä¼ç¡§ÆüÅ´¶½ÏÂÉÔÆ°»º¡¢´ØÅÅÉÔÆ°»º³«È¯¡¢¶å½£Î¹µÒÅ´Æ»¡¢µþÉ͵޹ÔÅÅÅ´¡¢Ãæ±ûÆüËÜÅÚÃÏ·úʪ
Àß·×¼Ô¡§Àõ°æ¸¬·úÃÛ¸¦µæ½ê¡¦Ä¹Ã«¹©¥³¡¼¥Ý¥ì¡¼¥·¥ç¥ó
»Ü¹©¼Ô¡§Ä¹Ã«¹©¥³¡¼¥Ý¥ì¡¼¥·¥ç¥ó
¹©´ü¡§2023ǯ1·î10ÆüÃ幩¡Á2026ǯ5·î¾å½Ü½×¹©Í½Äê
Æþµï¡§2026ǯ10·î¾å½ÜͽÄê
½Ðŵ
¢§¸ø¼°HP¡§¥ê¥Ó¥ª¥¿¥ï¡¼ÉÊÀî
https://livio-sumai.jp/pj/shinagawa-tower/
¢§ÆüÅ´¶½ÏÂÉÔÆ°»º¡§¥Ë¥å¡¼¥¹¥ê¥ê¡¼¥¹¡Ê2025ǯ4·î4Æü¡Ë
ºÆ³«È¯¤¬¿Ê¤àÅìµþ¤Î¸¼´Ø¸ý¡ÖÉÊÀî¡×
ÃϾå34³¬·ú¤Æ¡¦Áí¸Í¿ô815¸Í¤Î͹âÁØÂ絬ÌÏ¥¿¥ï¡¼¥×¥í¥¸¥§¥¯¥È
¡Ø¥ê¥Ó¥ª¥¿¥ï¡¼ÉÊÀî¡ÙÂè°ì´ü1¼¡221¸ÍÅÐÏ¿¿½¹þ
¢§ÆüÅ´¶½ÏÂÉÔÆ°»º¡§¥Ë¥å¡¼¥¹¥ê¥ê¡¼¥¹¡Ê2024ǯ2·î22Æü¡Ë
¥Þ¥ó¥·¥ç¥ó¥Ö¥é¥ó¥É¡ÖLIVIO¡Ê¥ê¥Ó¥ª¡Ë¡×ÅÔ¿´Âç·¿2ʪ·ï¡Ê·×1,337¸Í¡Ë ¡Ø¥ê¥Ó¥ª¥¿¥ï¡¼ÉÊÀî¡Ù¡Ø¥ê¥Ó¥ª¥·¥Æ¥£Ê¸µþ¾®ÀÐÀî¡Ù 2·î22Æü¡ÊÌڡˤè¤êƱ»þ¥¨¥ó¥È¥ê¡¼¼õÉÕ³«»Ï
¢§ÆüÅ´¶½ÏÂÉÔÆ°»º¡§¥Ë¥å¡¼¥¹¥ê¥ê¡¼¥¹¡Ê2023ǯ9·î26Æü¡Ë
¡Á¿ÍÀ¸¤òˤ«¤Ë¤¹¤ë¡Ö´Ä¶¼«Á³ÇÛθ·¿¡×ʬ¾ù¥Þ¥ó¥·¥ç¥ó¡Á ¡Ø¥ê¥Ó¥ª¥·¥Æ¥£Ê¸µþ¾®ÀÐÀî¡Ù¡Ø¥ê¥Ó¥ª¥¿¥ï¡¼ÉÊÀî¡Ù ABINCǧ¾Ú¡¦SEGESǧÄê¤òƱ»þ¼èÆÀ
- ¥«¥Æ¥´¥ê
- ¹Á¶è







