
¡¡ÃæÌî¤Ç·úÀßÃæ¤Î¥¿¥ï¡¼¥Þ¥ó¥·¥ç¥ó¡Ö¥Ñ¡¼¥¯¥·¥Æ¥£ÃæÌî¡×¤Ç¤¹¡£2025ǯ3·î22Æü¤Ë»£±Æ¤·¤Þ¤·¤¿¡£º¸¤¬ÃϾå20³¬¡¢¹â¤µ81.98m¤Î¥¶ ¥¿¥ï¡¼ ¥Ö¥ê¡¼¥º¡¢±¦¤¬ÃϾå25³¬¡¢¹â¤µ99.44m¤Î¥¶ ¥¿¥ï¡¼ ¥¨¥¢¡¼¥º¤Ç¤¹¡£¤µ¤é¤Ë±¦Â¦¤Ç¤Ï¾¦¶È»ÜÀß¡¦¥ª¥Õ¥£¥¹¤Ç¹½À®¤µ¤ì¤ë¡ÖÃæÌî M-SQUARE¡×¤â·úÀßÃæ¤Ç¤¹¡£¤³¤Îµ»ö¤Ç¤ÏƱ¥¿¥ï¥Þ¥ó¤Î³µÍפä·úÀß¾õ¶·¡¢ÃÏ¿ÞÅù¤òºÜ¤»¤Æ¤¤¤Þ¤¹¡£
¥Ñ¡¼¥¯¥·¥Æ¥£ÃæÌî¤Ë¤Ä¤¤¤Æ

³°´Ñ´°À®Í½ÁÛCG[½Ðŵ¡§¸ø¼°HP]
¡¡¡Ö¥Ñ¡¼¥¯¥·¥Æ¥£ÃæÌî¡×¤ÏÃæÌî±ØË̸ý¦¡¢JR¤ÎÀþÏ©¤ËÌ̤·¤¿Â絬ÌÏÊ£¹çºÆ³«È¯¤Ç¡¢º¸¤Î¥¿¥ï¡¼¥Þ¥ó¥·¥ç¥ó¤¬¡Ö¥Ñ¡¼¥¯¥·¥Æ¥£ÃæÌî ¥¶ ¥¿¥ï¡¼ ¥Ö¥ê¡¼¥º¡×¡¢Ãæ±û¤Î¥¿¥ï¡¼¥Þ¥ó¥·¥ç¥ó¤¬¡Ö¥Ñ¡¼¥¯¥·¥Æ¥£ÃæÌî ¥¶ ¥¿¥ï¡¼ ¥¨¥¢¡¼¥º¡×¡¢¤½¤·¤Æ±¦¤Î¸«ÀÚ¤ì¤Æ¤¤¤ë¥Ó¥ë¤¬¥ª¥Õ¥£¥¹¡¦¾¦¶ÈÅï¤Î¡ÖÃæÌî M-SQUARE¡×¤Ç¤¹¡£

³°´Ñ´°À®Í½ÁÛCG[½Ðŵ¡§¸ø¼°HP]
¡¡¡Ö¥Ñ¡¼¥¯¥·¥Æ¥£ÃæÌî ¥¶ ¥¿¥ï¡¼ ¥¨¥¢¡¼¥º¡×¤Ï·úÃÛ´ð½àË¡¾å¤Ç¤Ï¡ÖÃæÌî M-SQUARE¡×¤ÈƱ¤¸·úʪ¤Ç¡¢µ¬ÌϤÏÃϾå25³¬¡¢Ãϲ¼2³¬¡¢¹â¤µ99.44m¡¢ÉßÃÏÌÌÀÑ1Ëü59Ö¡¢·úÃÛÌÌÀÑ6,989.40Ö¡¢±ä¾²ÌÌÀÑ5Ëü8955.24Ö¡ÊM-SQUARE´Þ¤à9Ëü1298.95Ö¡Ë¡¢Áí¸Í¿ô545¸Í¡¢·úÃÛ¼ç¤Ï°ÏÄ®ÅìÃ϶è»Ô³¹ÃϺƳ«È¯Áȹç¡Ê»²²ÃÁȹç°÷¡§»°°æÉÔÆ°»º¡¢»°°æÉÔÆ°»º¥ì¥¸¥Ç¥ó¥·¥ã¥ë¡Ë¡¢À߷׼ԤϺ´Æ£Áí¹ç·×²è¡¢»Ü¹©¼Ô¤ÏÅìµÞ·úÀß¡¢½×¹©Í½Äê¤Ï2026ǯ3·î²¼½Ü¤Ç¤¹¡£³«¶È¤Ï¥ª¥Õ¥£¥¹¤¬2026ǯ1·î¡¢¾¦¶È»ÜÀߤ¬2026ǯ½Õ¡¢¥Þ¥ó¥·¥ç¥ó¤ÎÆþµï³«»Ï¤Ï2026ǯ7·î²¼½ÜͽÄê¤Ç¤¹¡£

³°´Ñ´°À®Í½ÁÛCG[½Ðŵ¡§»°°æÉÔÆ°»º¥ì¥¸¥Ç¥ó¥·¥ã¥ë]
¡¡¤³¤Î´°À®Í½ÁۿޤǤϺ¸¤ÎÅï¤È¤Ê¤ë¥¶ ¥¿¥ï¡¼ ¥Ö¥ê¡¼¥º¤Îµ¬ÌϤϡ¢ÃϾå20³¬¡¢Ãϲ¼1³¬¡¢¹â¤µ81.98m¡¢ÉßÃÏÌÌÀÑ3,170Ö¡¢·úÃÛÌÌÀÑ1,773.34Ö¡¢±ä¾²ÌÌÀÑ2Ëü8108.24Ö¡¢Áí¸Í¿ô262¸Í¡¢·úÃÛ¼ç¤Ï°ÏÄ®ÅìÃ϶è»Ô³¹ÃϺƳ«È¯Áȹç¡Ê»²²ÃÁȹç°÷¡§»°°æÉÔÆ°»º¡¢»°°æÉÔÆ°»º¥ì¥¸¥Ç¥ó¥·¥ã¥ë¡Ë¡¢À߷׼ԤϺ´Æ£Áí¹ç·×²è¡¢»Ü¹©¼Ô¤ÏÅìµÞ·úÀß¡¢½×¹©Í½Äê¤Ï2025ǯ10·î²¼½Ü¤Ç¤¹¡£

³°´Ñ´°À®Í½ÁÛCG[½Ðŵ¡§¸ø¼°HP]
¡¡¥¶ ¥¿¥ï¡¼ ¥¨¥¢¡¼¥º¤Ï2025ǯ5·îÃæ½Ü¤«¤éÂè»°´ü¤ÎÈÎÇ䳫»ÏͽÄê¤È¤Ê¤Ã¤Æ¤¤¤Þ¤¹¡£ËÜÈÎÇä´ü°Ê¹ß¤ÎÁíÈÎÇä¸Í¿ô¤Ï89¸Í¤Ç¡¢ÈÎÇä´Ö¼è¤ê¤Ï1DK¡Á3LDK¡¢ÀìÍÌÌÀѤÏ30.65Ö¡Á70.06Ö¡¢¥Ð¥ë¥³¥Ë¡¼ÌÌÀѤÏ5.77Ö¡Á18.68֤ȤʤäƤ¤¤Þ¤¹¡£

³°´Ñ´°À®Í½ÁÛCG[½Ðŵ¡§¸ø¼°HP]
¡¡·úÀßÃϤÏJRÁíÉð¡¦Ãæ±û´Ë¹ÔÀþ¤È¡ÖÃæÌ¥ó¥È¥é¥ë¥Ñ¡¼¥¯¥µ¥¦¥¹¡×(ÃϾå22³¬¡¢ºÇ¹â¹â¤µ99.95m)¤ä¡ÖÌÀ¼£Âç³ØÃæÌî ¥¥ã¥ó¥Ñ¥¹¡×(ÃϾå14³¬¡¢¹â¤µ59.95m)¤Ë¶´¤Þ¤ì¤¿¥¨¥ê¥¢¤È¤Ê¤Ã¤Æ¤¤¤Þ¤¹¡£
¡¡¤Þ¤¿¡¢º¸Â¦¡ÊÀ¾Â¦¡Ë¤Î·Á¤À¤±ÉÁ¤«¤ì¤Æ¤¤¤ë·úʪ¤Ï½»Í§ÉÔÆ°»º¤¬·×²è¤·¤Æ¤¤¤ë¥¿¥ï¡¼¥Þ¥ó¥·¥ç¥ó¡Ö°ÏÄ®À¾Ã϶èÂè°ì¼ï»Ô³¹ÃϺƳ«È¯»ö¶È¡×(ÃϾå25³¬¡¢¹â¤µÌó90m)¤Ç¤¹¡£

ÉßÃÏÇÛÃÖ¥¤¥é¥¹¥È[½Ðŵ¡§¸ø¼°HP]
¡¡ÉßÃϤÏÅìÀ¾¤ËĹºÙ¤¯¡¢ÃæÌî¶èΩ°ÏÄ®¤Ò¤í¤Ð¤ò¶¤ËAÉßÃϤÈBÉßÃϤËʬ¤«¤ì¤Æ¤ª¤ê¡¢±Ø¤Ë¶á¤¤AÉßÃϡʰÏÄ®¤Ò¤í¤Ð¤Î±¦Â¦¡Ë¤Ë¤Ï¥¶ ¥¿¥ï¡¼ ¥¨¥¢¡¼¥º¤ÈÃæÌîM-SQUARE¤¬ÇÛÃÖ¤µ¤ì¡¢BÉßÃϡʰÏÄ®¤Ò¤í¤Ð¤Îº¸Â¦¡Ë¤Ë¤Ï¥¶ ¥¿¥ï¡¼ ¥Ö¥ê¡¼¥º¤¬ÇÛÃÖ¤µ¤ì¤Þ¤¹¡£
¡¡¥¶ ¥¿¥ï¡¼ ¥¨¥¢¡¼¥º¤È¥¶ ¥¿¥ï¡¼ ¥Ö¥ê¡¼¥º¤Ï¥Ç¥Ã¥¤ÇÀܳ¤µ¤ì¡¢¤½¤·¤ÆÃæÌîM-SQUARE¤Ï2029ǯÅÙ´°À®Í½Äê¤Î¥Ú¥Ç¥¹¥È¥ê¥¢¥ó¥Ç¥Ã¥¤ÇÃæÌî±Ø¤ËÀܳ¤¹¤ë·×²è¤È¤Ê¤Ã¤Æ¤ª¤ê¡¢¾ÍèŪ¤Ë¤Ï±ØÄ¾·ë¥¿¥ï¥Þ¥ó¤Ë¤Ê¤ê¤Þ¤¹¡£
¶¦ÍÑÉô

¥¶ ¥¿¥ï¡¼ ¥¨¥¢¡¼¥º¶¦ÍÑ»ÜÀß³µÇ°¥¤¥é¥¹¥È[½Ðŵ¡§¸ø¼°HP]
¡¡¥¶ ¥¿¥ï¡¼ ¥¨¥¢¡¼¥º¤Î¶¦ÍÑ»ÜÀß³µÇ°¥¤¥é¥¹¥È¤Ç¤¹¡£¶¦ÍÑ»ÜÀߤȤ·¤Æ1³¬¤Ë¥Õ¥£¥Ã¥È¥Í¥¹¥ë¡¼¥à¤ä¥é¥¦¥ó¥¸Åù¡¢2³¬¤Ë¥²¥¹¥È¥ë¡¼¥àÊ»ÀߤΥѡ¼¥Æ¥£¥ë¡¼¥à¤ä¸Ä¼¼¥¹¥¿¥Ç¥£¥ë¡¼¥àÅù¤¬Àߤ±¤é¤ì¤Þ¤¹¡£

¥¶ ¥¿¥ï¡¼ ¥¨¥¢¡¼¥º¡¡¥¨¥ó¥È¥é¥ó¥¹¥Û¡¼¥ë¡¿¥¨¥ó¥È¥é¥ó¥¹¥é¥¦¥ó¥¸´°À®Í½ÁÛCG[½Ðŵ¡§¸ø¼°HP]
¡¡¥¶ ¥¿¥ï¡¼ ¥¨¥¢¡¼¥º¤Î2³¬¤ËÇÛÃÖ¤µ¤ì¤ë¥¨¥ó¥È¥é¥ó¥¹¥Û¡¼¥ë¡¿¥¨¥ó¥È¥é¥ó¥¹¥é¥¦¥ó¥¸¤Î´°À®Í½ÁۿޤǤ¹¡£±ß·Á¤ÎÆÃħŪ¤Ê¶õ´Ö¤Ë¤Ê¤ê¤Þ¤¹¡£

¥¶ ¥¿¥ï¡¼ ¥¨¥¢¡¼¥º¡¡¥Ñ¡¼¥Æ¥£¡¼¥ë¡¼¥à·ó¥²¥¹¥È¥ë¡¼¥à´°À®Í½ÁÛCG[½Ðŵ¡§¸ø¼°HP]
¡¡¥¶ ¥¿¥ï¡¼ ¥¨¥¢¡¼¥º¤Î2³¬¤ËÇÛÃÖ¤µ¤ì¤ë¥Ñ¡¼¥Æ¥£¡¼¥ë¡¼¥à·ó¥²¥¹¥È¥ë¡¼¥à¤Î´°À®Í½ÁۿޤǤ¹¡£

¥¶ ¥¿¥ï¡¼ ¥Ö¥ê¡¼¥º ¥¨¥ó¥È¥é¥ó¥¹¥Û¡¼¥ë¡¿¥³¥ó¥·¥§¥ë¥¸¥å´°À®Í½ÁÛCG[½Ðŵ¡§¸ø¼°HP]
¡¡¥¶ ¥¿¥ï¡¼ ¥Ö¥ê¡¼¥º¤Î¥¨¥ó¥È¥é¥ó¥¹¥Û¡¼¥ë¡¿¥³¥ó¥·¥§¥ë¥¸¥å¤Î´°À®Í½ÁۿޤǤ¹¡£

¥¶ ¥¿¥ï¡¼ ¥Ö¥ê¡¼¥º ¥Ñ¡¼¥Æ¥£¡¼¥ë¡¼¥à·ó¥²¥¹¥È¥ë¡¼¥à´°À®Í½ÁÛCG[½Ðŵ¡§¸ø¼°HP]
¡¡¥¶ ¥¿¥ï¡¼ ¥Ö¥ê¡¼¥º¤Î2³¬¤ËÇÛÃÖ¤µ¤ì¤ë¥Ñ¡¼¥Æ¥£¡¼¥ë¡¼¥à·ó¥²¥¹¥È¥ë¡¼¥à¤Î´°À®Í½ÁۿޤǤ¹¡£Â¾¤Ë¤â2³¬¤Ë¤Ï¥Õ¥£¥Ã¥È¥Í¥¹¥ë¡¼¥à¤äͽÌóÀ©¤Î¥¹¥¿¥Ç¥£¥ë¡¼¥à¤¬ÇÛÃÖ¤µ¤ì¤Þ¤¹¡£

¥¶ ¥¿¥ï¡¼ ¥Ö¥ê¡¼¥º ¥Æ¥é¥¹´°À®Í½ÁÛCG[½Ðŵ¡§¸ø¼°HP]
¡¡¥¶ ¥¿¥ï¡¼ ¥Ö¥ê¡¼¥º¤Ë¤Ï²°¾å¥Æ¥é¥¹¤¬Àߤ±¤é¤ì¤Þ¤¹¡£
´Ö¼è¤ê¿Þ

A-55Aw¥¿¥¤¥×[½Ðŵ¡§¸ø¼°HP]
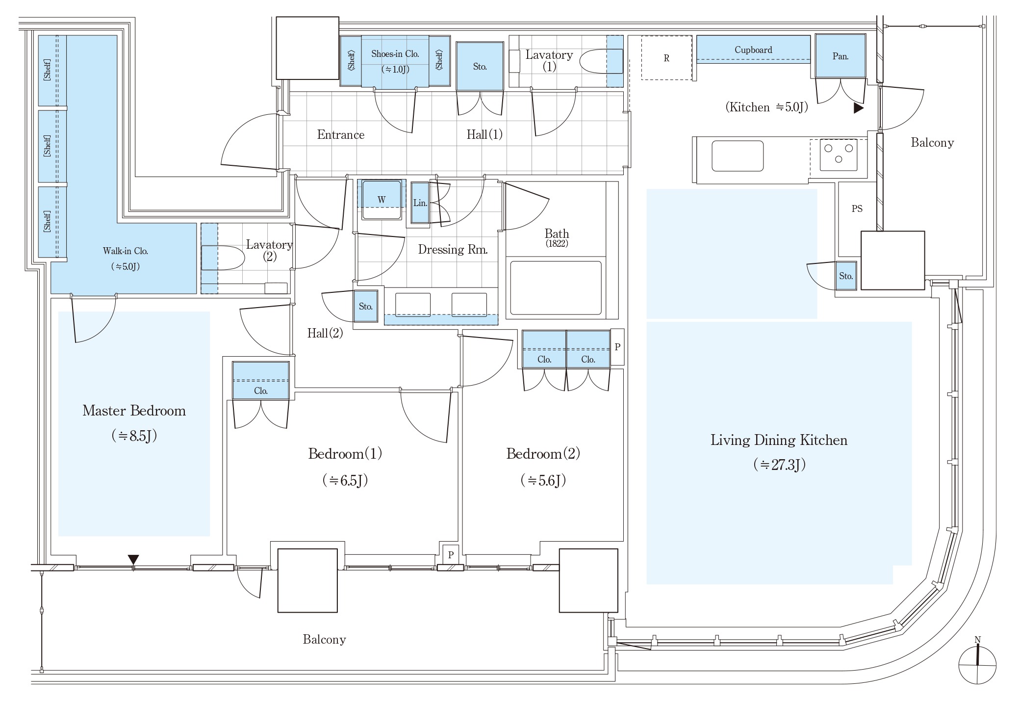
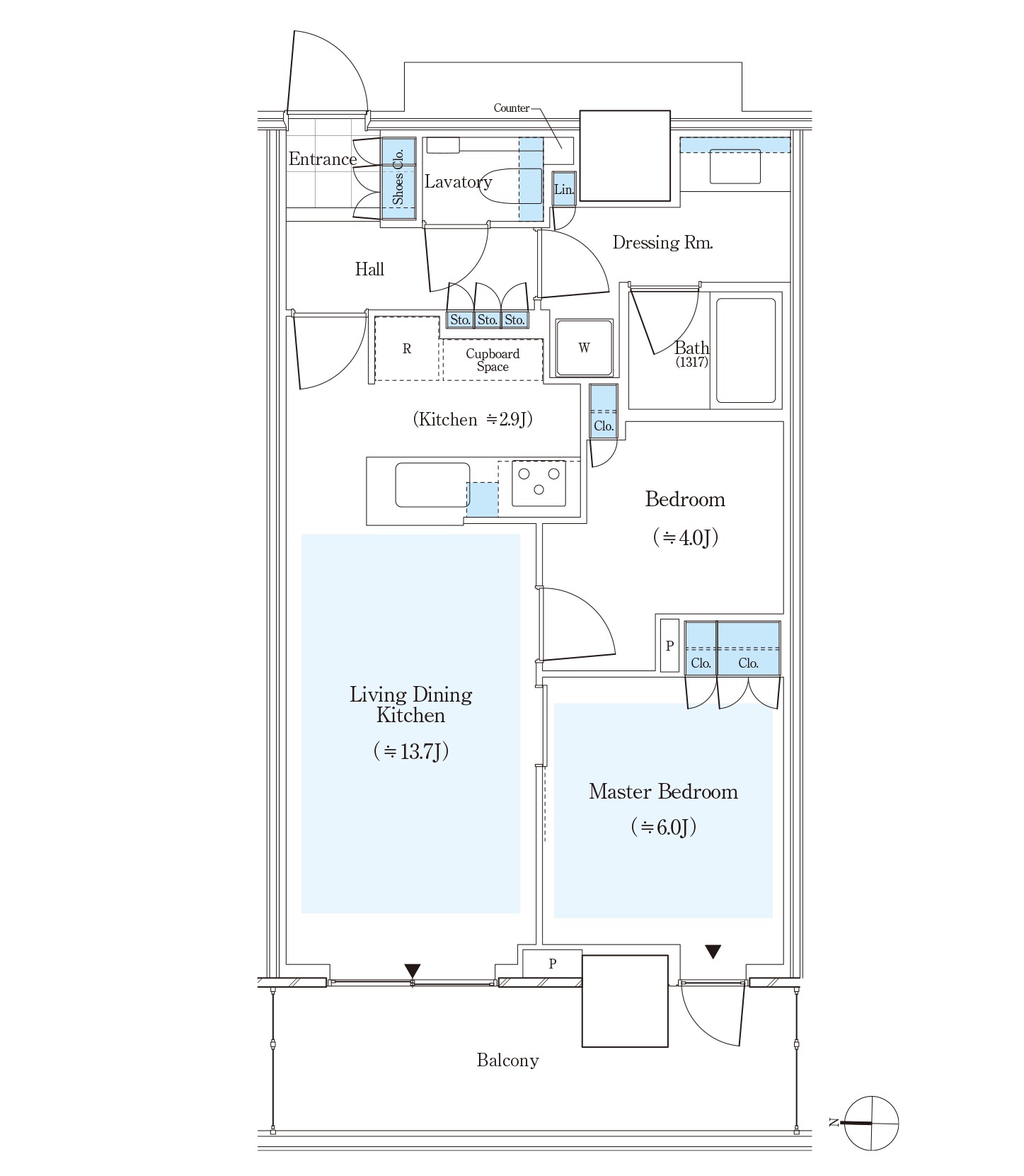
¡¡¥¶ ¥¿¥ï¡¼ ¥¨¥¢¡¼¥º¤ÎA-55Aw¥¿¥¤¥×¤Î´Ö¼è¤ê¿Þ¤Ç¤¹¡£´Ö¼è¤ê¤Ï2LDK¡¢ÀìÍÌÌÀѤÏ55.10Ö¡¢¥Ð¥ë¥³¥Ë¡¼ÌÌÀѤÏ10.15֤ȤʤäƤ¤¤Þ¤¹¡£

A-67As¥¿¥¤¥×[½Ðŵ¡§¸ø¼°HP]
¡¡¥¶ ¥¿¥ï¡¼ ¥¨¥¢¡¼¥º¤ÎA-67As¥¿¥¤¥×¤Î´Ö¼è¤ê¿Þ¤Ç¤¹¡£´Ö¼è¤ê¤Ï3LDK+WIC+SIC¡¢ÀìÍÌÌÀѤÏ64.47Ö¡¢¥Ð¥ë¥³¥Ë¡¼ÌÌÀѤÏ13.65֤ȤʤäƤª¤ê¡¢Æ±¥¿¥¤¥×¤ÎÈÎÇä²Á³Ê¤Ï13³¬¤¬1²¯4980Ëü±ß¡¢22³¬¤¬1²¯6060Ëü±ß¤Ç¤·¤¿¡£

A-77Asw¥¿¥¤¥×[½Ðŵ¡§¸ø¼°HP]
¡¡¥¶ ¥¿¥ï¡¼ ¥¨¥¢¡¼¥º¤ÎA-77Asw¥¿¥¤¥×¤Î´Ö¼è¤ê¿Þ¤Ç¤¹¡£´Ö¼è¤ê¤Ï3LDK+SIC¡¢ÀìÍÌÌÀѤÏ77.36Ö¡¢¥Ð¥ë¥³¥Ë¡¼ÌÌÀѤÏ15.48֤ȤʤäƤª¤ê¡¢Æ±¥¿¥¤¥×¤ÎÈÎÇä²Á³Ê¤Ï14³¬¤¬1²¯8980Ëü±ß¡¢20³¬¤¬1²¯9820Ëü±ß¤Ç¤·¤¿¡£

A-P120Ase¥¿¥¤¥×[½Ðŵ¡§¸ø¼°HP]
¡¡¥¶ ¥¿¥ï¡¼ ¥¨¥¢¡¼¥º¤ÎA-P120Ase¥¿¥¤¥×¤Î´Ö¼è¤ê¿Þ¤Ç¤¹¡£´Ö¼è¤ê¤Ï3LDK+WIC+SIC¡¢ÀìÍÌÌÀѤÏ120.27Ö¡¢¥Ð¥ë¥³¥Ë¡¼ÌÌÀѤÏ23.09֤ȤʤäƤª¤ê¡¢Æ±¥¿¥¤¥×23³¬¤ÎÈÎÇä²Á³Ê¤Ï4²¯900Ëü±ß¤Ç¤·¤¿¡£¥¶ ¥¿¥ï¡¼ ¥¨¥¢¡¼¥º¤ÎÂè°ì´ü°ì¼¡¤ÇºÇ¤â¹â¤«¤Ã¤¿Éô²°¤¬¤³¤³¤Ë¤Ê¤ê¤Þ¤¹¡£
°ÌÃÖ¿Þ

°ÌÃÖ¿Þ[½Ðŵ¡§¸ø¼°HP]
¡¡·úÀßÃϤÏÃæÌî±ØË̸ý¤ò½Ð¤ÆÀþÏ©±è¤¤¤ËÀ¾Â¦¤Ø¹Ô¤Ã¤¿¾ì½ê¤Ç¡ÖÃæÌî¡×±Ø¤«¤é¤ÏÅÌÊâ6ʬ¡Á8ʬ¤È¤Ê¤Ã¤Æ¤¤¤Þ¤¹¡£2029ǯÅ٤ˤϥڥǥ¹¥È¥ê¥¢¥ó¥Ç¥Ã¥¤ÇÃæÌî±ØÄ¾·ë¤È¤Ê¤ëͽÄê¤Ç¡¢¤½¤Î¥Ú¥Ç¥¹¥È¥ê¥¢¥ó¥Ç¥Ã¥¤¬´°À®¤¹¤ë¤È¡ÖÃæÌî¡×±Ø¤«¤é¥¶ ¥¿¥ï¡¼ ¥¨¥¢¡¼¥º¤Î¥¨¥ó¥È¥é¥ó¥¹¤Þ¤Ç¤ÏÅÌÊâ4ʬ¡¢¥¶ ¥¿¥ï¡¼ ¥Ö¥ê¡¼¥º¤Î¥¨¥ó¥È¥é¥ó¥¹¤Þ¤Ç¤ÏÅÌÊâ5ʬ¤Ëû½Ì¤µ¤ì¤Þ¤¹¡£
·úÀß¾õ¶·

¡¡2025ǯ3·î22Æü¤ËËÌÅ즤«¤é»£±Æ¤·¤¿¡Ö¥Ñ¡¼¥¯¥·¥Æ¥£ÃæÌî ¥¶ ¥¿¥ï¡¼ ¥Ö¥ê¡¼¥º¡×(ÃϾå20³¬¡¢¹â¤µ81.98m)¤Ç¤¹¡£¼êÁ°¤Ï¡ÖÃæÌî¶èΩ°ÏÄ®¤Ò¤í¤Ð¡×¤Ç¤¹¡£

¡¡ËÌÀ¾Â¦¤«¤é»£±Æ¡£´û¤ËºÇ¾å³¬¤Î20³¬¤Ë㤷¤Æ¤¤¤ë¤è¤¦¤Ç¤·¤¿¡£

¡¡Àþϩ¦¤È¤Ê¤ëÆîÀ¾Â¦¤«¤é»£±Æ¡£

¡¡¤½¤ÎJR¤ÎÀþÏ©¤Î¸ÙÀþ¶¶¤«¤é»£±Æ¡£¤³¤Îº¸Â¦¤Ç¤Ï½»Í§ÉÔÆ°»º¤Ë¤è¤ë¥¿¥ï¡¼¥Þ¥ó¥·¥ç¥ó¡Ö°ÏÄ®À¾Ã϶èÂè°ì¼ï»Ô³¹ÃϺƳ«È¯»ö¶È¡×(ÃϾå25³¬¡¢¹â¤µÌó90m)¤¬·×²è¤µ¤ì¤Æ¤¤¤ë¤¿¤á¡¢¥¿¥ï¥Þ¥ó¤Ë¶´¤Þ¤ì¤¿Åï¤È¤Ê¤ê¤Þ¤¹¡£

¡¡¥¶ ¥¿¥ï¡¼ ¥Ö¥ê¡¼¥º¤ÎÃæÌî±ØÂ¦¤Ç·úÀßÃæ¤Î¡Ö¥Ñ¡¼¥¯¥·¥Æ¥£ÃæÌî ¥¶ ¥¿¥ï¡¼ ¥¨¥¢¡¼¥º¡×(ÃϾå25³¬¡¢¹â¤µ99.44m)¤Ç¤¹¡£

¡¡ÆîÅ즤«¤é»£±Æ¡£ÌܤÎÁ°¤Ë¤ÏJRÃæ±ûËÜÀþ¡¦ÁíÉðÀþ¤ÎÀþÏ©¤¬¤¢¤ê¤Þ¤¹¡£

¡¡È¿ÂЦ¤ÎËÌÀ¾Â¦¤«¤é»£±Æ¡£

¡¡ËÌÅ즤«¤é»£±Æ¡£²£Éý¤Î¤¢¤ëÂ礤ʥ¿¥ï¥Þ¥ó¤Ë¤Ê¤ê¤Þ¤¹¡£

¡¡¥¶ ¥¿¥ï¡¼ ¥¨¥¢¡¼¥º¤ÎÃæÌî±ØÂ¦¤Ç·úÀßÃæ¤Î¡ÖÃæÌîM-SQUARE¡×¤Ç¤¹¡£

¡¡ËÌÅ즤«¤é»£±Æ¡£¡ÖÃæÌîM-SQUARE¡×¤Ï¾¦¶È»ÜÀߤȥª¥Õ¥£¥¹¥Õ¥í¥¢¤Ç¹½À®¤µ¤ì¤ë¥Ó¥ë¤Ë¤Ê¤ê¤Þ¤¹¡£

¡¡ÀþÏ©¤òͤ¨¤¿ÆîÀ¾Â¦¤«¤é»£±Æ¡£

¡¡Çظå¤Î²£Éý¤Î͹âÁØ¥Ó¥ë¤Ï¡ÖÃæÌ¥ó¥È¥é¥ë¥Ñ¡¼¥¯¥µ¥¦¥¹¡×(ÃϾå22³¬¡¢ºÇ¹â¹â¤µ99.95m)¤ÇµðÂç¤ÊÊɤȤʤäƤ¤¤Þ¤¹¡£

¡¡¡Ö¥Ñ¡¼¥¯¥·¥Æ¥£ÃæÌî¡×Á´ÂΤǤ¹¡£
ÃÏ¿Þ
ʪ·ï³µÍ×

¡¡¥¶ ¥¿¥ï¡¼ ¥¨¥¢¡¼¥º¡ÊAÉßÃϡˤηúÃ۷ײè¤Î¤ªÃΤ餻¤Ç¤¹¡£
¢£Êª·ï³µÍ×¢£
̾¾Î¡§¥Ñ¡¼¥¯¥·¥Æ¥£ÃæÌî ¥¶ ¥¿¥ï¡¼ ¥¨¥¢¡¼¥º
»ö¶È̾¡§°ÏÄ®ÅìÃ϶èÂè°ì¼ï»Ô³¹ÃϺƳ«È¯»ö¶È AÉßÃÏ
½êºßÃÏ¡§ÅìµþÅÔÃæÌî¶èÃæÌî»ÍÃúÌÜ2ÈÖ6¾
¸òÄÌ¡§JRÁíÉð¡¦Ãæ±û´Ë¹ÔÀþ¡ÖÃæÌî¡×±Ø
¡¡¡¡¡¡Åìµþ¥á¥È¥íÅìÀ¾Àþ¡ÖÃæÌî¡×±Ø
ÍÑÅÓ¡§¶¦Æ±½»Âð¡¢»ö̳½ê¡¢Å¹ÊÞÅù
Áí¸Í¿ô¡§545¸Í¡ÊÈÎÇäÂоݽ»¸Í¡§239¸Í¡Ë
³¬¿ô¡§ÃϾå25³¬¡¢Ãϲ¼2³¬¡Ê½»ÂðÅï¡Ë
¡¡¡¡¡¡ÃϾå12³¬¡¢Ãϲ¼2³¬¡Ê¥ª¥Õ¥£¥¹¡¦¾¦¶ÈÅï¡Ë
¹â¤µ¡§99.44m¡ÊºÇ¹â¹â¤µ99.44m¡Ë
¹½Â¤¡§Å´¹ü¤(À©¿Ì¹½Â¤)¡¦Å´¹üÅ´¶Ú¥³¥ó¥¯¥ê¡¼¥È¤¡¦Å´¶Ú¥³¥ó¥¯¥ê¡¼¥È¤(Ãæ´ÖÌȿ̹½Â¤)
´ðÁù©Ë¡¡§Ä¾ÀÜ´ðÁÃ
ÉßÃÏÌÌÀÑ¡§10,059Ö
·úÃÛÌÌÀÑ¡§6,989.40Ö
±ä¾²ÌÌÀÑ¡§58,955.24Ö¡ÊÁ´ÂΡ§91,298.95Ö¡Ë
·úÃۼ硧°ÏÄ®ÅìÃ϶è»Ô³¹ÃϺƳ«È¯Áȹç
»²²ÃÁȹç°÷¡§»°°æÉÔÆ°»º¡¢»°°æÉÔÆ°»º¥ì¥¸¥Ç¥ó¥·¥ã¥ë
Çä¼ç¡§»°°æÉÔÆ°»º¥ì¥¸¥Ç¥ó¥·¥ã¥ë
Àß·×¼Ô¡§º´Æ£Áí¹ç·×²è
»Ü¹©¼Ô¡§ÅìµÞ·úÀß
¹©´ü¡§2022ǯ9·î7ÆüÃ幩¡Á2026ǯ3·î²¼½Ü½×¹©Í½Äê
³«¶È¡§2026ǯ1·î ¥ª¥Õ¥£¥¹³«¶ÈͽÄê
¡¡¡¡¡¡2026ǯ½Õ ¾¦¶È»ÜÀß³«¶ÈͽÄê
¡¡¡¡¡¡2026ǯ7·î²¼½ÜÆþµï³«»ÏͽÄê

¡¡¥¶ ¥¿¥ï¡¼ ¥Ö¥ê¡¼¥º¡ÊBÉßÃϡˤηúÃ۷ײè¤Î¤ªÃΤ餻¤Ç¤¹¡£
¢£Êª·ï³µÍ×¢£
̾¾Î¡§¥Ñ¡¼¥¯¥·¥Æ¥£ÃæÌî ¥¶ ¥¿¥ï¡¼ ¥Ö¥ê¡¼¥º
»ö¶È̾¡§°ÏÄ®ÅìÃ϶èÂè°ì¼ï»Ô³¹ÃϺƳ«È¯»ö¶È BÉßÃÏ
½êºßÃÏ¡§ÅìµþÅÔÃæÌî¶èÃæÌî»ÍÃúÌÜ3ÈÖ1¾
¸òÄÌ¡§JRÁíÉð¡¦Ãæ±û´Ë¹ÔÀþ¡ÖÃæÌî¡×±Ø
¡¡¡¡¡¡Åìµþ¥á¥È¥íÅìÀ¾Àþ¡ÖÃæÌî¡×±Ø
ÍÑÅÓ¡§¶¦Æ±½»Âð
Áí¸Í¿ô¡§262¸Í¡ÊÈÎÇäÂоݽ»¸Í¡§162¸Í¡Ë
³¬¿ô¡§ÃϾå20³¬¡¢Ãϲ¼1³¬
¹â¤µ¡§81.98m¡ÊºÇ¹â¹â¤µ81.98m¡Ë
¹½Â¤¡§Å´¶Ú¥³¥ó¥¯¥ê¡¼¥È¤(´ðÁÃÌȿ̹½Â¤)°ìÉôÅ´¹ü¤
´ðÁù©Ë¡¡§Ä¾ÀÜ´ðÁÃ
ÉßÃÏÌÌÀÑ¡§3,170Ö
·úÃÛÌÌÀÑ¡§1,773.34Ö
±ä¾²ÌÌÀÑ¡§28,108.24Ö
·úÃۼ硧°ÏÄ®ÅìÃ϶è»Ô³¹ÃϺƳ«È¯Áȹç
»²²ÃÁȹç°÷¡§»°°æÉÔÆ°»º¡¢»°°æÉÔÆ°»º¥ì¥¸¥Ç¥ó¥·¥ã¥ë
Çä¼ç¡§»°°æÉÔÆ°»º¥ì¥¸¥Ç¥ó¥·¥ã¥ë
Àß·×¼Ô¡§º´Æ£Áí¹ç·×²è
»Ü¹©¼Ô¡§ÅìµÞ·úÀß
¹©´ü¡§2022ǯ10·î29ÆüÃ幩¡Á2025ǯ10·î²¼½Ü½×¹©Í½Äê
Æþµï¡§2026ǯ7·î²¼½ÜÆþµï³«»ÏͽÄê
½Ðŵ
¢§¸ø¼°HP¡§¥Ñ¡¼¥¯¥·¥Æ¥£ÃæÌî
https://www.31sumai.com/mfr/X1514/
¢§»°°æÉÔÆ°»º¥ì¥¸¥Ç¥ó¥·¥ã¥ë¡§¥Ë¥å¡¼¥¹¥ê¥ê¡¼¥¹¡Ê2024ǯ4·î23Æü¡Ë
ÃæÌî±ØÁ°Â絬ÌÏÊ£¹çºÆ³«È¯¥×¥í¥¸¥§¥¯¥È¡¡¥Ú¥Ç¥¹¥È¥ê¥¢¥ó¥Ç¥Ã¥¤ÇÃæÌî±ØÀܳ¤Î2ÅïÁ´807¸Í¤Î¥¿¥ï¡¼¥Þ¥ó¥·¥ç¥ó
¡Ö¥Ñ¡¼¥¯¥·¥Æ¥£ÃæÌî¡¡¥¶ ¥¿¥ï¡¼ ¥¨¥¢¡¼¥º¡¿¥¶ ¥¿¥ï¡¼ ¥Ö¥ê¡¼¥º¡×
2024ǯ5·î3Æü¡Ê¶â¡¦½Ë¡Ë¤è¤ê»öÁ°°ÆÆâ²ñ¡Ê´°Á´Í½ÌóÀ©¡Ë³«»Ï
¢§»°°æÉÔÆ°»º¥ì¥¸¥Ç¥ó¥·¥ã¥ë¡§¥Ë¥å¡¼¥¹¥ê¥ê¡¼¥¹¡Ê2023ǯ2·î16Æü¡Ë
ÃæÌî±ØÁ°Â絬ÌÏÊ£¹çºÆ³«È¯»ö¶È¡Ö¥Ñ¡¼¥¯¥·¥Æ¥£ÃæÌî¡×¤Ë³¹¶è̾¾Î·èÄê
½»Â𡦥ª¥Õ¥£¥¹¡¦¾¦¶È»ÜÀߤÎÌó2.0ha ¥ß¥¯¥¹¥È¥æ¡¼¥¹¥×¥í¥¸¥§¥¯¥È
2025ǯ12·î½×¹©Í½Äê
¢§»°°æÉÔÆ°»º¥ì¥¸¥Ç¥ó¥·¥ã¥ë¡§¥Ë¥å¡¼¥¹¥ê¥ê¡¼¥¹¡Ê2020ǯ9·î18Æü¡Ë
¡Ö°ÏÄ®ÅìÃ϶èÂè°ì¼ï»Ô³¹ÃϺƳ«È¯»ö¶È¡×»Ô³¹ÃϺƳ«È¯ÁȹçÀßΩǧ²Ä¤Î¤ªÃΤ餻
ÃæÌî±ØÁ°Ìó2.0ha¡¢½»Â𡦾¦¶È¡¦¥ª¥Õ¥£¥¹¤Î¥ß¥¯¥¹¥È¥æ¡¼¥¹¥×¥í¥¸¥§¥¯¥È
- ¥«¥Æ¥´¥ê
- ÃæÌî¶è







