
¡¡Ï»ËÜÌڥҥ륺¤ÎÎÙ¡Ö(²¾¾Î)À¾ËãÉÛ»°ÃúÌÜËÌÅìÃ϶èÂè°ì¼ï»Ô³¹ÃϺƳ«È¯»ö¶È¡×(ÃϾå54³¬¡¢ºÇ¹â¹â¤µ201.20m)¤Î·úÀßÃϤǤ¹¡£2025ǯ3·î22Æü¤ËÏ»ËÜÌڥҥ륺¤ÎŸ˾¼¼¤«¤é»£±Æ¤·¤Þ¤·¤¿¡£Ìî¼ÉÔÆ°»º¤È¥±¥ó¡¦¥³¡¼¥Ý¥ì¡¼¥·¥ç¥ó¤Ë¤è¤ëºÆ³«È¯¤Ç¡¢¹âÁØÉô¤Ë³°»ñ·Ï¥é¥°¥¸¥å¥¢¥ê¡¼¥Û¥Æ¥ë¤¬Æþ¤ë¥¿¥ï¡¼¥Þ¥ó¥·¥ç¥ó¤Ë¤Ê¤ê¤Þ¤¹¡£»Ü¹©¼Ô¤ÏÂçÀ®·úÀߤ˷èÄꤷ¤Æ¤ª¤ê¡¢º£·î²¼½Ü¤Ë¤ÏÃ幩ͽÄê¤È¤Ê¤Ã¤Æ¤¤¤Þ¤¹¡£¤³¤Îµ»ö¤Ç¤ÏƱºÆ³«È¯¤Î³µÍפä·úÀß¾õ¶·¡¢ÃÏ¿ÞÅù¤òºÜ¤»¤Æ¤¤¤Þ¤¹¡£
À¾ËãÉÛ»°ÃúÌÜËÌÅìÃ϶è¤Ë¤Ä¤¤¤Æ

¥¤¥á¡¼¥¸¥Ñ¡¼¥¹[½Ðŵ¡§¹Á¶è]
¡¡¡Ö(²¾¾Î)À¾ËãÉÛ»°ÃúÌÜËÌÅìÃ϶èÂè°ì¼ï»Ô³¹ÃϺƳ«È¯»ö¶È¡×¤Ï¡ÖÏ»ËÜÌڥҥ륺¡×¤ÎÀ¾Â¦(½Âë¦)¤ÎºÆ³«È¯¤Ç¡¢µ¬ÌϤÏÃϾå54³¬¡¢Ãϲ¼4³¬¡¢¹â¤µ199.98m¡¢ºÇ¹â¹â¤µ201.20m¡¢ÉßÃÏÌÌÀÑ7,427.87Ö¡¢·úÃÛÌÌÀÑ3,846.03Ö¡¢±ä¾²ÌÌÀÑ9Ëü6832.49Ö¡¢Áí¸Í¿ô498¸Í¤È¤Ê¤Ã¤Æ¤¤¤Þ¤¹¡£

´°À®¥¤¥á¡¼¥¸[½Ðŵ¡§Ìî¼ÉÔÆ°»º]
¡¡·úÃÛ¼ç¤ÏÀ¾ËãÉÛ»°ÃúÌÜËÌÅìÃ϶è»Ô³¹ÃϺƳ«È¯Áȹç¡Ê»²²ÃÁȹç°÷¡§Ìî¼ÉÔÆ°»º¥±¥ó¡¦¥³¡¼¥Ý¥ì¡¼¥·¥ç¥ó¡Ë¡¢À߷׼Ԥϰ´À߷ס¦ÂçÀ®·úÀß¡¢»Ü¹©¼Ô¤ÏÂçÀ®·úÀߤǹ©´ü¤Ï2025ǯ3·î²¼½ÜÃ幩¡¢2029ǯ12·î²¼½Ü¤Î½×¹©Í½Äê¤È¤Ê¤Ã¤Æ¤¤¤Þ¤¹¡£

ÃÇÌÌ¿Þ[½Ðŵ¡§¹Á¶è]
¡¡¥Õ¥í¥¢¹½À®¤ÏÃϲ¼¤ËÃó¼Ö¾ìÅù¡¢1³¬¡Á2³¬¤ËŹÊÞ¡¢»ö̳½ê¡¢3³¬¤ËŹÊÞ¡¢4³¬¡Á5³¬¤¬¥Û¥Æ¥ë»ÜÀß¡¢6³¬¡Á45³¬¤¬½»Âð¡¢46³¬¡Á52³¬¤¬¥Û¥Æ¥ë¡¢53³¬¡¢54³¬¤¬µ¡³£¼¼¤È¤Ê¤ê¤Þ¤¹¡£34³¬¤È36³¬¤Ë¤Ï½»Âð¤Î¶¦ÍÑ»ÜÀߤ¬ÇÛÃÖ¤µ¤ì¡¢¥Û¥Æ¥ë¤ÎµÒ¼¼¤Ï47³¬¡Á52³¬¤ËÇÛÃÖ¤µ¤ì¤Þ¤¹¡£

ÃÇÌÌ¿Þ[½Ðŵ¡§¹Á¶è]
¡¡Ìî¼ÉÔÆ°»º¤ÎÃæÄ¹´ü·Ð±Ä·×²èÀâÌÀ»ñÎÁ¤Ç¤Ï¡Ö¥×¥é¥¦¥É¡×¤ÎÍó¤ËƱºÆ³«È¯¤ÎµºÜ¤¬¤¢¤ë¤¿¤á¡¢Ìî¼ÉÔÆ°»º¤Îʬ¾ù¥Þ¥ó¥·¥ç¥ó¥Ö¥é¥ó¥É¡Ö¥×¥é¥¦¥É¡×¤ò´§¤Ë¤·¤¿¥¿¥ï¡¼¥Þ¥ó¥·¥ç¥ó¤Ë¤Ê¤ë²ÄǽÀ¤¬¤¢¤ê¤Þ¤¹¡£
¢¨ ÃæÄ¹´ü·Ð±Ä·×²èÀâÌÀ»ñÎÁ(P.24)

ÇÛÃÖ¿Þ[½Ðŵ¡§Ìî¼ÉÔÆ°»º]
¡¡ÉßÃÏ¤ÏÆîË̤˺ÙŤ¯¡¢Ë̦¤Î¼óÅԹ⡦ϻËÜÌÚÄ̤ꦤË͹âÁØÅ郎ÇÛÃÖ¤µ¤ì¡¢Êâ¹Ô¼Ô¥Ç¥Ã¥¤Ë¤è¤Ã¤ÆÅìÎ٤ˤ¢¤ë¡ÖÏ»ËÜÌڥҥ륺¡×¤ËÀܳ¤·¤Þ¤¹¡£
¡¡ÉßÃÏ¤ÎÆî¦¤Ë¤Ï¹¾ì¤¬À°È÷¤µ¤ì¡¢¤½¤Î¹¾ì¤Î¼þ¤ê¤Ë¤Ï·úÀßÃÏÆâ¤Ë¤¢¤Ã¤¿»û¼Ò¤¬ºÆÇÛÈ÷¤µ¤ì¤Þ¤¹¡£

¥¤¥á¡¼¥¸¥Ñ¡¼¥¹[½Ðŵ¡§Ìî¼ÉÔÆ°»º]
¡¡ÆîÅ즤«¤é¸«¤¿´°À®Í½ÁۿޤǤ¹¡£¹âÁØÉô¤Î¥Ð¥ë¥³¥Ë¡¼¤¬¤Ê¤¤¥Õ¥í¥¢¤«¤é¤¬³°»ñ·Ï¥é¥°¥¸¥å¥¢¥ê¡¼¥Û¥Æ¥ë¤Ë¤Ê¤ê¤Þ¤¹¡£

¥¤¥á¡¼¥¸¥Ñ¡¼¥¹[½Ðŵ¡§Ìî¼ÉÔÆ°»º]
¡¡ÄãÁØÉô¤Î1¡Á2³¬¤Ï¾¦¶È»ÜÀß¡¢3³¬¤Ï»ö̳½ê¡¢4¡Á5³¬¤Ï¥Û¥Æ¥ë»ÜÀߤǷײ褵¤ì¤Æ¤¤¤Þ¤¹¡£

¥¤¥á¡¼¥¸¥Ñ¡¼¥¹[½Ðŵ¡§Ìî¼ÉÔÆ°»º]
¡¡Ï»ËÜÌÚÄ̤ê±è¤¤¤È¤Ê¤ëÉßÃÏËÌü¤Ë¤Ï¹¾ì¤¬À°È÷¤µ¤ì¡¢Ï»ËÜÌڥҥ륺¤ËÀܳ¤¹¤ëÊâ¹Ô¼Ô¥Ç¥Ã¥¤â·úÀߤµ¤ì¤Þ¤¹¡£

¥¤¥á¡¼¥¸¥Ñ¡¼¥¹[½Ðŵ¡§Ìî¼ÉÔÆ°»º]
¡¡¥Æ¥ì¥ÓÄ«ÆüÄ̤ê±è¤¤¤È¤Ê¤ëÆî¦¤ËÀ°È÷¤µ¤ì¤ë¹¾ì¤Î´°À®¥¤¥á¡¼¥¸¤Ç¤¹¡£¤³¤ÎÊÕ¤ê¤Ï´û¸·úʪ¤Î΢¤Ë»û¼Ò¤¬±£¤ì¤Æ¤¤¤Þ¤·¤¿¤¬¡¢ºÆ³«È¯¸å¤Ï¹¾ì¤«¤é¹Ô¤±¤ë¤è¤¦¤Ë¤Ê¤ê¤Þ¤¹¡£
Ê¿ÌÌ¿Þ

Ê¿Ì̿ޡÊA³¹¶è¡¿¥Ô¥Ã¥È³¬¡ÁÃϲ¼1³¬¡Ë[½Ðŵ¡§¹Á¶è]

Ê¿Ì̿ޡÊA³¹¶è¡¿1³¬¡Á2³¬¡Ë[½Ðŵ¡§¹Á¶è]

Ê¿Ì̿ޡÊA³¹¶è¡¿3³¬¡Á5³¬¡Ë[½Ðŵ¡§¹Á¶è]

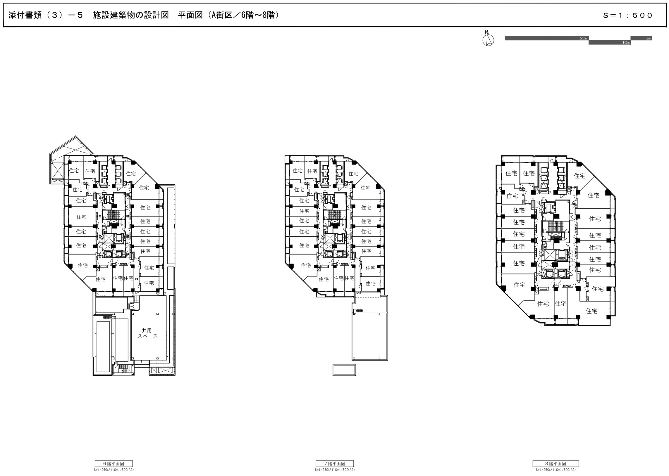
Ê¿Ì̿ޡÊA³¹¶è¡¿6³¬¡Á8³¬¡Ë[½Ðŵ¡§¹Á¶è]

Ê¿Ì̿ޡÊA³¹¶è¡¿9³¬¡Á24³¬¡Ë[½Ðŵ¡§¹Á¶è]

Ê¿Ì̿ޡÊA³¹¶è¡¿25³¬¡Á45³¬¡Ë[½Ðŵ¡§¹Á¶è]

Ê¿Ì̿ޡÊA³¹¶è¡¿46³¬¡Á51³¬¡Ë[½Ðŵ¡§¹Á¶è]

Ê¿Ì̿ޡÊA³¹¶è¡¿52³¬¡ÁR³¬¡Ë[½Ðŵ¡§¹Á¶è]
°ÌÃÖ¿Þ

°ÌÃÖ¿Þ[½Ðŵ¡§ÅìµþÅÔ]
¡¡·úÀßÃϤϡÖÏ»ËÜÌڥҥ륺¡×¤ÎÀ¾Â¦¡Ê½Âë¦¡Ë¤ÇÆîË̤˺ÙŤ¤ÉßÃϤˤʤäƤª¤ê¡¢Ë̦¤ÏÏ»ËÜÌÚÄ̤ꡦ¼óÅÔ¹â½ÂëÀþ¡¢Å즤ϥƥì¥ÓÄ«ÆüÄ̤ê¤ËÌ̤·¤Æ¤¤¤Þ¤¹¡£Ï»ËÜÌÚÄ̤ê¤òÅ즤عԤ¯¤ÈºÇ´ó±Ø¤ÎÅìµþ¥á¥È¥íÆüÈæÃ«Àþ¤ª¤è¤ÓÅÔ±ÄÂç¹¾¸ÍÀþ¤Î¡ÖÏ»ËÜÌڡױؤ¬¤¢¤ê¤Þ¤¹¡£²°º¬ÉÕ¤¤Ç¤Ï¤¢¤ê¤Þ¤»¤ó¤¬¡¢ÆüÈæÃ«Àþ¤Ë¤ÏÊâ¹Ô¼Ô¥Ç¥Ã¥¤ÇÀܳ¤¹¤ëÏ»ËÜÌڥҥ륺·Ðͳ¤Ç·Ò¤¬¤ê¤Þ¤¹¡£

¡¡2020ǯ12·î14Æü¤Ë¥Ø¥ê¤«¤é»£±Æ¤·¤¿À¾ËãÉÛ¡¦Ï»ËÜÌÚÊýÌ̤ζõ»£¤Ç¤¹¡£ÀÖ¤¤Ìֳݤ±¤ò¤·¤¿¾ì½ê¤¬¡Ö(²¾¾Î)À¾ËãÉÛ»°ÃúÌÜËÌÅìÃ϶èÂè°ì¼ï»Ô³¹ÃϺƳ«È¯»ö¶È¡×¤Î·úÀßÃϤǡ¢Ï»ËÜÌڥҥ륺¤ÎÎ٤˰ÌÃÖ¤·¤Æ¤¤¤ë¤³¤È¤¬¤ï¤«¤ê¤Þ¤¹¡£
·úÀß¾õ¶·

¡¡2025ǯ3·î22Æü¤ËÆîÅ즤«¤é»£±Æ¤·¤¿¡Ö(²¾¾Î)À¾ËãÉÛ»°ÃúÌÜËÌÅìÃ϶èÂè°ì¼ï»Ô³¹ÃϺƳ«È¯»ö¶È¡×(ÃϾå54³¬¡¢ºÇ¹â¹â¤µ201.20m)¤Î·úÀßÃϤǤ¹¡£

¡¡T»úÏ©¤ËÌ̤·¤¿¾ì½ê¤Ç¤Ï´û¸·úʪ¤Î¡Ö¥³¡¼¥È¥¢¥Í¥Ã¥¯¥¹Ï»ËÜÌڡפ¬²òÂÎÃæ¤Ç¤¹¡£

¡¡ÃϾåÉô¤¬»Ä¤Ã¤Æ¤¤¤ë´û¸·úʪ¤Ï¤³¤³¤À¤±¤Ç¡¢¶á¤¤¤¦¤Á¤ËÃϾåÉô¤Î²òÂι©»ö¤Ï½ª¤ï¤ê¤½¤¦¤Ç¤¹¡£¤³¤Á¤é¦¤Ë¤Ï¹¾ì¤¬À°È÷¤µ¤ì¡¢±ü¤Ë¤Ï»û¼Ò¤¬ÇÛÃÖ¤µ¤ì¤Þ¤¹¡£

¡¡Ä¶¹âÁØÅ郎·úÀߤµ¤ì¤ëÉßÃÏË̦¤Ç¤¹¡£ËÌü¤Î³ÑÃϤˤϹ¾ì¤¬À°È÷¤µ¤ì¡¢Ï»ËÜÌڥҥ륺¤ËÀܳ¤¹¤ëÊâ¹Ô¼Ô¥Ç¥Ã¥¤â·úÀߤµ¤ì¤Þ¤¹¡£

¡¡ËÌÀ¾Â¦¤«¤é»£±Æ¡£Å즤ϡÖÏ»ËÜÌڥҥ륺¡×¤È¤Ê¤Ã¤Æ¤¤¤Þ¤¹¡£¼êÁ°¤ÎÄãÁØ¥Ó¥ë¤ä¥°¥é¥ó¥É¥Ï¥¤¥¢¥Ã¥ÈÅìµþ¤âÏ»ËÜÌڥҥ륺¤Î°ìÉô¤Ç¤¹¡£

¡¡¤½¤Î¡ÖÏ»ËÜÌڥҥ륺¡×Æâ¤Î͹âÁØ¥Ó¥ë¡ÖÏ»ËÜÌڥҥ륺¿¹¥¿¥ï¡¼¡×¤ÎŸ˾¼¼¤«¤é¸«²¼¤í¤·¤¿¡Ö(²¾¾Î)À¾ËãÉÛ»°ÃúÌÜËÌÅìÃ϶èÂè°ì¼ï»Ô³¹ÃϺƳ«È¯»ö¶È¡×¤Î·úÀßÃϤǤ¹¡£¤³¤Á¤é¦¤Ï¹¾ì¤ä»û¼Ò¤Î·úÀßÃϤˤʤê¤Þ¤¹¡£

¡¡Ä¶¹âÁØÅï¤Î·úÀßÃϦ¤Ç¤¹¡£·úÃ۷ײè¤Î¤ªÃΤ餻¤Ï¿§¡¹¤È¹¹¿·¤µ¤ì¤Æ¤¤¤Þ¤¹¤¬¡¢Ã幩ͽÄê¤Î3·î²¼½Ü¤ÏÊѤï¤Ã¤Æ¤¤¤Ê¤¤¤Î¤Ç̵»ö¤ËÃ幩¤·¤Æ¤¤¤ë¤â¤Î¤È»×¤ï¤ì¤Þ¤¹¡£
ÃÏ¿Þ
ʪ·ï³µÍ×

¡¡A³¹¶è¤Î·úÃ۷ײè¤Î¤ªÃΤ餻¤Ç¤¹¡£»Ü¹©¼Ô¤¬Ì¤Äê¤À¤Ã¤¿¤Î¤¬ÂçÀ®·úÀߤȤʤäƤ¤¤Þ¤·¤¿¡£
¢£Êª·ï³µÍ×¢£
»ö¶È̾¡§(²¾¾Î)À¾ËãÉÛ»°ÃúÌÜËÌÅìÃ϶èÂè°ì¼ï»Ô³¹ÃϺƳ«È¯»ö¶È »ÜÀß·úÃÛʪ(A³¹¶è)¿·ÃÛ¹©»ö
½êºßÃÏ¡§ÅìµþÅÔ¹Á¶èÀ¾ËãÉÛ»°ÃúÌÜ159ÈÖ(ÃÏÈÖ)
¸òÄÌ¡§Åìµþ¥á¥È¥íÆüÈæÃ«Àþ¡ÖÏ»ËÜÌÚ¡×±Ø
¡¡¡¡¡¡ÅÔ±ÄÂç¹¾¸ÍÀþ¡ÖÏ»ËÜÌÚ¡×±Ø
ÍÑÅÓ¡§¶¦Æ±½»Âð¡¢Å¹ÊÞ¡¢»ö̳½ê¡¢¥Û¥Æ¥ë¡¢¼«Æ°¼Ö¼Ö¸Ë
Áí¸Í¿ô¡§498¸Í¡ÊÃϸ¢¼Ô½»¸Í´Þ¤à¡Ë
³¬¿ô¡§ÃϾå54³¬¡¢Ãϲ¼4³¬
¹â¤µ¡§199.98m¡ÊºÇ¹â¹â¤µ201.20m¡Ë
¹½Â¤¡§Å´¶Ú¥³¥ó¥¯¥ê¡¼¥È¤ °ìÉô Å´¹ü¤¡¢À©¿Ì¹½Â¤
´ðÁù©Ë¡¡§Ä¾ÀÜ´ðÁᢰìÉô¹º´ðÁÃ
ÉßÃÏÌÌÀÑ¡§7,427.87Ö
·úÃÛÌÌÀÑ¡§3,846.03Ö
±ä¾²ÌÌÀÑ¡§96,832.49Ö
»ö¶È¼Ô¡§À¾ËãÉÛ»°ÃúÌÜËÌÅìÃ϶è»Ô³¹ÃϺƳ«È¯Áȹç
»²²ÃÁȹç°÷¡§Ìî¼ÉÔÆ°»º¡¢¥±¥ó¡¦¥³¡¼¥Ý¥ì¡¼¥·¥ç¥ó
ÆÃÄê¶È̳Âå¹Ô¼Ô¡§ÂçÀ®·úÀß
Àß·×¼Ô¡§°´À߷ס¦ÂçÀ®·úÀß
»Ü¹©¼Ô¡§ÂçÀ®·úÀß
¹©´ü¡§2025ǯ3·î²¼½ÜÃ幩¡Á2029ǯ12·î²¼½Ü½×¹©Í½Äê
½Ðŵ
¢§ÅìµþÅÔ¹Á¶è¡§Âè°ì¼ï»Ô³¹ÃϺƳ«È¯»ö¶È¡Ê2023ǯ11·î30Æü¡Ë
À¾ËãÉÛ»°ÃúÌÜËÌÅìÃ϶èÂè°ì¼ï»Ô³¹ÃϺƳ«È¯»ö¶È
¢§Ìî¼ÉÔÆ°»º¡§¥Ë¥å¡¼¥¹¥ê¥ê¡¼¥¹¡Ê2023ǯ2·î15Æü¡Ë
½»Â𡦻ö̳½ê¡¦¾¦¶È¡¦¥Û¥Æ¥ë¤Î͹âÁØÅï¤È»°»û¼Ò¤«¤é¤Ê¤ëÊ£¹çºÆ³«È¯ ¡ØÀ¾ËãÉÛ»°ÃúÌÜËÌÅìÃ϶èÂè°ì¼ï»Ô³¹ÃϺƳ«È¯»ö¶È¡Ù ¸¢ÍøÊÑ´¹·×²èǧ²Ä¤Î¤ªÃΤ餻¡ÊÌî¼ÉÔÆ°»º¡¢¥±¥ó¡¦¥³¡¼¥Ý¥ì¡¼¥·¥ç¥ó¡Ë
¢§Ìî¼ÉÔÆ°»º¡§¥Ë¥å¡¼¥¹¥ê¥ê¡¼¥¹¡Ê2020ǯ9·î10Æü¡Ë
¡ÖÀ¾ËãÉÛ»°ÃúÌÜËÌÅìÃ϶èÂè°ì¼ï»Ô³¹ÃϺƳ«È¯»ö¶È¡×»Ô³¹ÃϺƳ«È¯ÁȹçÀßΩǧ²Ä¤Î¤ªÃΤ餻(Ìî¼ÉÔÆ°»º¡¢¥±¥ó¡¦¥³¡¼¥Ý¥ì¡¼¥·¥ç¥ó)
¢§ÅìµþÅÔ¡§Êóƻȯɽ»ñÎÁ¡Ê2020ǯ9·î9Æü¡Ë
À¾ËãÉÛ»°ÃúÌÜËÌÅìÃ϶è»Ô³¹ÃϺƳ«È¯Áȹç¤ÎÀßΩ¤òǧ²Ä¤·¤Þ¤¹
- ¥«¥Æ¥´¥ê
- ¹Á¶è







