
¡¡¸þ¥öµÖÍ·±à±ØÁ°¤Ç·úÀßÃæ¤Î¥¿¥ï¡¼¥Þ¥ó¥·¥ç¥ó¡Ö¥Ñ¡¼¥¯¥¿¥ï¡¼¸þ¥öµÖÍ·±à¡×(ÃϾå25³¬¡¢¹â¤µ79.98m)¤Ç¤¹¡£2025ǯ3·î15Æü¤Ë»£±Æ¤·¤Þ¤·¤¿¡£¸þ¥öµÖÍ·±à±Ø¤«¤é¤ÏÅÌÊâ2ʬ¡¢ÎٱؤÎÅиͱؤ«¤é¤Ç¤âÅÌÊâ7¡Á8ʬ¤È¤Ê¤ëΩÃϤÎʬ¾ù¥¿¥ï¥Þ¥ó¤È¤Ê¤Ã¤Æ¤¤¤Þ¤¹¡£¤³¤Îµ»ö¤Ç¤ÏƱ¥¿¥ï¥Þ¥ó¤Î³µÍפä·úÀß¾õ¶·¡¢ÃÏ¿ÞÅù¤òºÜ¤»¤Æ¤¤¤Þ¤¹¡£
¥Ñ¡¼¥¯¥¿¥ï¡¼¸þ¥öµÖÍ·±à¤Ë¤Ä¤¤¤Æ

³°´Ñ´°À®Í½ÁÛCG[½Ðŵ¡§¸ø¼°HP]
¡¡¡Ö¥Ñ¡¼¥¯¥¿¥ï¡¼¸þ¥öµÖÍ·±à¡×¤Ï¾®Åĵ޾®Åĸ¶Àþ¡Ö¸þ¥öµÖÍ·±à¡×±Ø¤ÎË̸ý¦¤Î¥¿¥ï¡¼¥Þ¥ó¥·¥ç¥ó¤Ç¡¢µ¬ÌϤÏÃϾå25³¬¡¢¹â¤µ79.98m¡¢ºÇ¹â¹â¤µ89.98m¡¢ÉßÃÏÌÌÀÑ3,450.00Ö¡¢·úÃÛÌÌÀÑ1,551.57Ö¡¢±ä¾²ÌÌÀÑ2Ëü5577.97Ö¡¢Áí¸Í¿ô241¸Í¡Ê°ìÈÌÈÎÇäÂоݸͿô201¸Í¡¢Â¾¤ËŹÊÞ5¸Í¡Ë¤È¤Ê¤Ã¤Æ¤¤¤Þ¤¹¡£
¡¡·úÃۼ硦Çä¼ç¤Ï»°°æÉÔÆ°»º¥ì¥¸¥Ç¥ó¥·¥ã¥ë¡¢¾®ÅĵÞÉÔÆ°»º¡¢À߷׼ԤȻܹ©¼Ô¤Ï»°°æ½»Í§·úÀߤÇ2025ǯ9·î²¼½Ü½×¹©¡¢2025ǯ12·î²¼½Ü¤ÎÆþµï³«»ÏͽÄê¤Ç¤¹¡£

³°´Ñ¡¦±ØÁ°¹¾ì´°À®Í½ÁÛCG[½Ðŵ¡§¸ø¼°HP]
¡¡2025ǯ3·î²¼½Ü¤«¤é¤ÏÂè5´ü5¼¡¤ÎÈÎÇ䳫»ÏͽÄê¤Ç¡¢ËÜÈÎÇä´ü°Ê¹ß¤ÎÁíÈÎÇä¸Í¿ô24¸Í¡¢´Ö¼è¤ê¤Ï3LDK¡¢ÀìÍÌÌÀѤÏ69.65Ö¡Á84.19Ö¡¢¥Ð¥ë¥³¥Ë¡¼ÌÌÀѤÏ10.13Ö¡Á39.75֤ȤʤäƤ¤¤Þ¤¹¡£

ÉßÃÏÇÛÃÖ¡¦1³¬´°À®Í½ÁÛ¥¤¥é¥¹¥È[½Ðŵ¡§¸ø¼°HP]
¡¡»ÍÊý¤¬Æ»Ï©¤Ë°Ï¤Þ¤ì¤¿ÉßÃϤȤʤäƤª¤ê¡¢À¾Â¦¤«¤éÅ즤ˤ«¤±¤Æ¤Ï¹âÌÚ¤¬Ê¤٤é¤ì¡¢ËÌÅìÌ̤ˤϸø³«¶õÃϤ¬À°È÷¤µ¤ì¤Þ¤¹¡£

¥¨¥ó¥È¥é¥ó¥¹´°À®Í½ÁÛCG[½Ðŵ¡§¸ø¼°HP]
¡¡Å즤ËÀßÃÖ¤µ¤ì¤ë¥¨¥ó¥È¥é¥ó¥¹¤Î´°À®Í½ÁۿޤǤ¹¡£

¸ø³«¶õÃÏ´°À®Í½ÁÛ¥¤¥é¥¹¥È[½Ðŵ¡§¸ø¼°HP]
¡¡ÉßÃÏËÌÅ즤ËÌó590֤ο͹©¼Ç¥¹¥Ú¡¼¥¹¤â¤¢¤ë¸ø³«¶õÃϤòÇÛÃÖ¤·¡¢¥¥Ã¥Á¥ó¥«¡¼¤ÎͶÃפäÃϰè¸òή¤ò°é¤à¥¤¥Ù¥ó¥È¤Ê¤ÉÍÍ¡¹¤ÊºÅ¤·¤¬·×²è¤µ¤ì¤Æ¤¤¤Þ¤¹¡£
¶¦ÍÑ»ÜÀß

³Æ³¬³µÇ°¥¤¥é¥¹¥È[½Ðŵ¡§¸ø¼°HP]
¡¡¡Ö¥Ñ¡¼¥¯¥¿¥ï¡¼¸þ¥öµÖÍ·±à¡×¤Î³Æ³¬³µÇ°¥¤¥é¥¹¥È¤Ç¤¹¡£1¡¦2³¬¤ÏŹÊÞ¥Õ¥í¥¢¤Ç¡¢3³¬¤Ë¤Ï¥ï¡¼¥¥ó¥°¥¹¥Ú¡¼¥¹¡¢È¾²°³°¤Î¥¥Ã¥º¥¹¥Ú¡¼¥¹¡¢Åŵ¤¥°¥ê¥ë¤ò¾ïÈ÷¤·¤¿¥°¥é¥ó¥Ô¥ó¥°¥ë¡¼¥à¤È¤¤¤Ã¤¿¶¦ÍÑ»ÜÀߤ¬ÇÛÃÖ¤µ¤ì¡¢ºÇ¾å³¬¤Î25³¬¤Ë¤Ï¥¹¥«¥¤¥é¥¦¥ó¥¸¡¢¤½¤·¤Æ²°¾å¤Ë¤Ï²°¾å¥Æ¥é¥¹¤¬ÀßÃÖ¤µ¤ì¤Þ¤¹¡£

¥ï¡¼¥¥ó¥°¥¹¥Ú¡¼¥¹´°À®Í½ÁÛCG[½Ðŵ¡§¸ø¼°HP]
¡¡3³¬¤ËÀßÃÖ¤µ¤ì¤ë¥ï¡¼¥¥ó¥°¥¹¥Ú¡¼¥¹¤Î´°À®Í½ÁۿޤǤ¹¡£¥ª¥ó¥é¥¤¥ó¥ß¡¼¥Æ¥£¥ó¥°¤â¹Ô¤¨¤ë¡Ö¸Ä¼¼¥Ö¡¼¥¹¡ÊÍÎÁ¡Ë¡×¤âÀßÃÖ¤µ¤ì¤Þ¤¹¡£

¥¥Ã¥º¥¹¥Ú¡¼¥¹´°À®Í½ÁÛCG[½Ðŵ¡§¸ø¼°HP]
¡¡¥¥Ã¥º¥¹¥Ú¡¼¥¹¤ÏȾ²°³°¤Ç¡¢¿Í¹©¼Ç¤ä³ê¤êÂæ¡¢Íî½ñ¤¤¬¤Ç¤¤ëÊÉÌ̤ʤɤ¬ÇÛÃÖ¤µ¤ì¤Þ¤¹¡£¤³¤³¤Ï»Ò¶¡¤ò¸«¼é¤ê¤Ê¤¬¤é»Å»ö¤¬¤Ç¤¤ë¤è¤¦¤ËÎ٤Υ¥¥ó¥°¥¹¥Ú¡¼¥¹¤«¤é¸«¤¨¤ë¤è¤¦¤Ë¤Ê¤Ã¤Æ¤¤¤Þ¤¹¡£
´Ö¼è¤ê¿Þ

K¥¿¥¤¥×[½Ðŵ¡§¸ø¼°HP]
¡¡K¥¿¥¤¥×¤Î´Ö¼è¤ê¿Þ¤Ç¤¹¡£´Ö¼è¤ê¤Ï1LDK+WIC¡¢ÀìÍÌÌÀÑ37.16Ö¡¢¥Ð¥ë¥³¥Ë¡¼ÌÌÀÑ23.27Ö¤ÇË̸þ¤¤Î³ÑÉô²°¤È¤Ê¤Ã¤Æ¤¤¤Þ¤¹¡£

I1¥¿¥¤¥×[½Ðŵ¡§¸ø¼°HP]
¡¡I1¥¿¥¤¥×¤Î´Ö¼è¤ê¿Þ¤Ç¤¹¡£´Ö¼è¤ê¤Ï2LDK+WTC+SIC+DOMA¡¢ÀìÍÌÌÀÑ60.63Ö¡¢¥Ð¥ë¥³¥Ë¡¼ÌÌÀÑ11.20֤ǡ¢¸¼´ØÏƤËÅÚ´Ö¼ýǼ¤¬¤¢¤ëÆîÅì¸þ¤¤ÎÉô²°¤È¤Ê¤Ã¤Æ¤¤¤Þ¤¹¡£

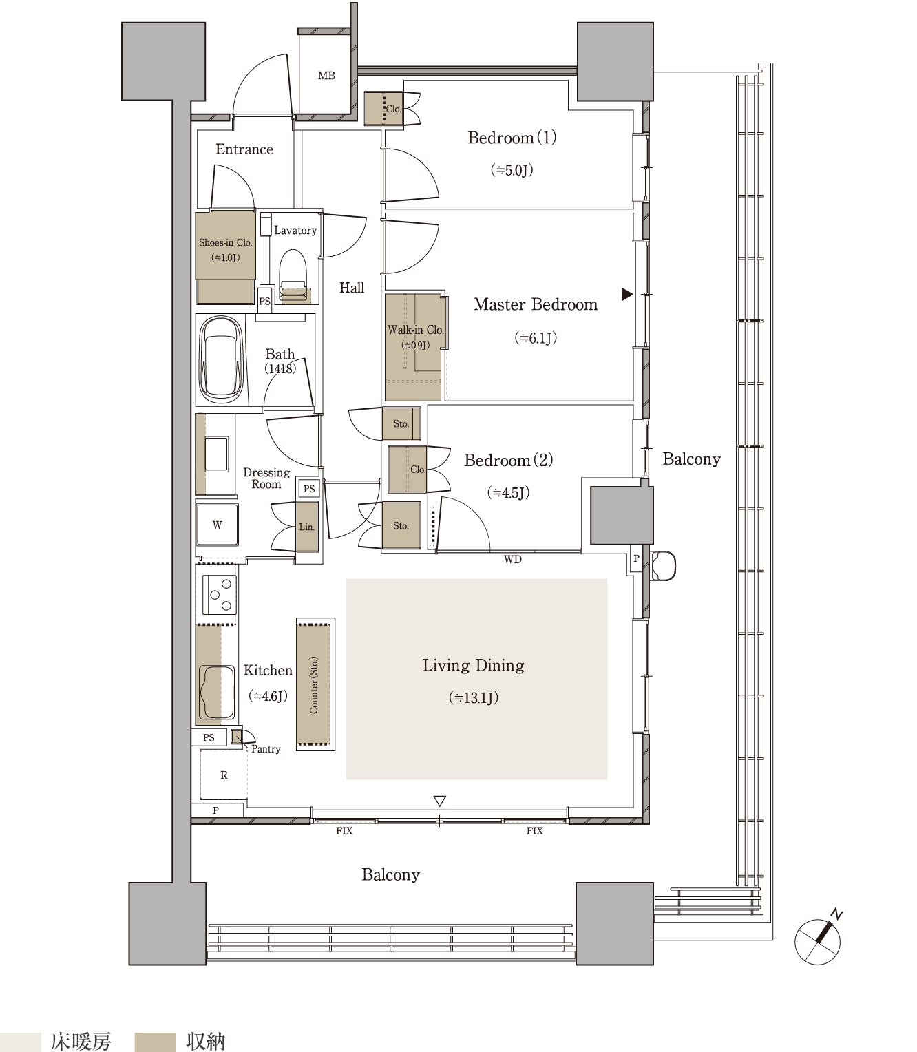
E¥¿¥¤¥×[½Ðŵ¡§¸ø¼°HP]
¡¡E¥¿¥¤¥×¤Î´Ö¼è¤ê¿Þ¤Ç¤¹¡£´Ö¼è¤ê¤Ï3LDK+WIC+SIC+S¡¢ÀìÍÌÌÀÑ69.65Ö¡¢¥Ð¥ë¥³¥Ë¡¼ÌÌÀÑ11.16Ö¤ÇÆî¸þ¤¤ÎÉô²°¤È¤Ê¤Ã¤Æ¤¤¤Þ¤¹¡£

J¥¿¥¤¥×[½Ðŵ¡§¸ø¼°HP]
¡¡J¥¿¥¤¥×¤Î´Ö¼è¤ê¿Þ¤Ç¤¹¡£´Ö¼è¤ê¤Ï3LDK+WIC+SIC¡¢ÀìÍÌÌÀÑ77.28Ö¡¢¥Ð¥ë¥³¥Ë¡¼ÌÌÀÑ36.95Ö¤ÇÆîÅì³ÑÉô²°¤È¤Ê¤Ã¤Æ¤¤¤Þ¤¹¡£

F¥¿¥¤¥×[½Ðŵ¡§¸ø¼°HP]
¡¡F¥¿¥¤¥×¤Î´Ö¼è¤ê¿Þ¤Ç¤¹¡£´Ö¼è¤ê¤Ï4LDK+WIC+S+TR¡¢ÀìÍÌÌÀÑ84.19֡ʥȥé¥ó¥¯¥ë¡¼¥àÌÌÀÑ1.27Ö´Þ¤à¡Ë¡¢¥Ð¥ë¥³¥Ë¡¼ÌÌÀÑ10.13Ö¡¢¥µ¡¼¥Ó¥¹¥¹¥Ú¡¼¥¹ÌÌÀÑ3.84Ö¤ÇÆî¸þ¤¤Î³ÑÉô²°¤È¤Ê¤Ã¤Æ¤¤¤Þ¤¹¡£
°ÌÃÖ¿Þ

°ÌÃÖ¿Þ[½Ðŵ¡§¸ø¼°HP]
¡¡·úÀßÃϤϾ®ÅĵÞÅÅÅ´¾®Åĸ¶Àþ¡Ö¸þ¥öµÖÍ·±à¡×±Ø¤ÎË̸ý¤«¤éÅÌÊâ2ʬ¤Ç¡¢ËÌÅ즤ˤ¢¤ëJRÆîÉðÀþ¡¦¾®ÅĵÞÅÅÅ´¾®Åĸ¶Àþ¡ÖÅи͡ױؤ«¤é¤âÅÌÊâ7¡Á8ʬ¤È¤Ê¤Ã¤Æ¤ª¤ê¡¢2Ï©Àþ¤¬ÍøÍѲÄǽ¤ÊΩÃϤȤʤäƤ¤¤Þ¤¹¡£
·úÀß¾õ¶·

¡¡2025ǯ3·î15Æü¤Ë¾®ÅĵÞÅÅÅ´¾®Åĸ¶Àþ¡Ö¸þ¥öµÖÍ·±à¡×±ØÁ°¤«¤é»£±Æ¤·¤¿¡Ö¥Ñ¡¼¥¯¥¿¥ï¡¼¸þ¥öµÖÍ·±à¡×(ÃϾå25³¬¡¢¹â¤µ79.98m)¤Ç¤¹¡£
¡¡±¦Â¦¤Ï¡Ö¥¢¥È¥é¥¹¥¿¥ï¡¼¸þ¥öµÖÍ·±à¡×(ÃϾå23³¬¡¢¹â¤µ78.94m)¤Ç¤Û¤ÜƱ¤¸¹â¤µ¤Î¥¿¥ï¥Þ¥ó¤¬±ØÁ°¤Ë·ú¤Áʤ֤³¤È¤Ë¤Ê¤ê¤Þ¤¹¡£

¡¡À¾Â¦¤«¤é»£±Æ¡£»þ·×²ó¤ê¤ËºÜ¤»¤Æ¤¤¤¤Þ¤¹¡£

¡¡ËÌÀ¾Â¦¤«¤é»£±Æ¡£

¡¡Ë̦¤«¤é»£±Æ¡£¤Ø¤Î»ú·¿¤ò¤·¤¿¥¿¥ï¡¼¥Þ¥ó¥·¥ç¥ó¤È¤Ê¤Ã¤Æ¤¤¤Þ¤¹¡£

¡¡ËÌÅ즤«¤é»£±Æ¡£¤³¤Á¤é¤ÎË̦¤Ë¸ø³«¶õÃϤ¬À°È÷¤µ¤ì¤Þ¤¹¡£

¡¡Å즤«¤é»£±Æ¡£¤Ø¤Î»ú·¿¤ò¤·¤Æ¤¤¤ë¤¿¤á¸«¤ë³ÑÅ٤ˤè¤Ã¤Æ·Á¤¬ÊѤï¤Ã¤Æ¸«¤¨¤Þ¤¹¡£

¡¡¡Ö¥¢¥È¥é¥¹¥¿¥ï¡¼¸þ¥öµÖÍ·±à¡×Á°¤«¤é»£±Æ¤·¤¿¡Ö¥Ñ¡¼¥¯¥¿¥ï¡¼¸þ¥öµÖÍ·±à¡×¤Ç¤¹¡£¼¡²óˬÌä»þ¤Ë¤Ï¥Í¥Ã¥È¤¬Å±µî¤µ¤ì³°´Ñ¤¬¸«¤¨¤ë¤è¤¦¤Ë¤Ê¤Ã¤Æ¤¤¤ë¤«¤È»×¤¤¤Þ¤¹¡£
ÃÏ¿Þ
ʪ·ï³µÍ×

¡¡»ö¶È·×²è¤Î¤ªÃΤ餻¤Ç¤¹¡£
¢£Êª·ï³µÍ×¢£
̾¾Î¡§¥Ñ¡¼¥¯¥¿¥ï¡¼¸þ¥öµÖÍ·±à
»ö¶È̾¡§(²¾¾Î)¿ÀÆàÀÀîºê»Ô¿Ëà¶èÅиÍ51³¹¶è·×²è
½êºßÃÏ¡§¿ÀÆàÀÀîºê»Ô¿Ëà¶èÅиÍ51³¹¶è
¸òÄÌ¡§¾®ÅĵÞÅÅÅ´¾®Åĸ¶Àþ¡Ö¸þ¥öµÖÍ·±à¡×±Ø ÅÌÊâ2ʬ
¡¡¡¡¡¡¾®ÅĵÞÅÅÅ´¾®Åĸ¶Àþ¡ÖÅÐ¸Í¡×±Ø ÅÌÊâ7ʬ
¡¡¡¡¡¡JRÆîÉðÀþ¡ÖÅÐ¸Í¡×±Ø ÅÌÊâ8ʬ
ÍÑÅÓ¡§¶¦Æ±½»Âð¡¢Å¹ÊÞ
Áí¸Í¿ô¡§241¸Í¡Ê°ìÈÌÈÎÇäÂоݸͿô201¸Í¡Ë¾¤ËŹÊÞ5¸Í
»ÜÀß¡¦ÀßÈ÷¡§¥ï¡¼¥¥ó¥°¥¹¥Ú¡¼¥¹¡¢¥¥Ã¥º¥¹¥Ú¡¼¥¹¡¢¥°¥é¥ó¥Ô¥ó¥°¥ë¡¼¥à¡Ê¥²¥¹¥È¥ë¡¼¥à¡Ë¡¢¥¹¥«¥¤¥é¥¦¥ó¥¸¡¢²°¾å¥Æ¥é¥¹Åù
³¬¿ô¡§ÃϾå25³¬
¹â¤µ¡§79.98m(ºÇ¹â¹â¤µ89.98m)
¹½Â¤¡§Å´¶Ú¥³¥ó¥¯¥ê¡¼¥È¤¡¢°ìÉôÅ´¹ü¤¡¢Ìȿ̹½Â¤
´ðÁù©Ë¡¡§¾ì½êÂǤÁ¥³¥ó¥¯¥ê¡¼¥È¹º
ÉßÃÏÌÌÀÑ¡§3,450.00Ö
·úÃÛÌÌÀÑ¡§1,551.57Ö
±ä¾²ÌÌÀÑ¡§25,577.97Ö
·úÃۼ硧»°°æÉÔÆ°»º¥ì¥¸¥Ç¥ó¥·¥ã¥ë¡¢¾®ÅĵÞÉÔÆ°»º
Àß·×¼Ô¡§»°°æ½»Í§·úÀß
»Ü¹©¼Ô¡§»°°æ½»Í§·úÀß
¹©´ü¡§2023ǯ1·îÃæ½ÜÃ幩¡Á2025ǯ11·î²¼½Ü½×¹©Í½Äê
Æþµï¡§2025ǯ12·î²¼½ÜÆþµïͽÄê
½Ðŵ
¢§¸ø¼°HP¡§¥Ñ¡¼¥¯¥¿¥ï¡¼¸þ¥öµÖÍ·±à
https://www.31sumai.com/mfr/F2005/
- ¥«¥Æ¥´¥ê
- Àîºê»Ô







