
¡¡°ËÀªÃ°ÁêÌϸ¶Å¹À×ÃϤΥ¿¥ï¡¼¥Þ¥ó¥·¥ç¥ó¡Ö¥×¥é¥¦¥É¥¿¥ï¡¼ÁêÌÏÂçÌ¥í¥¹¡×(ÃϾå41³¬¡¢ºÇ¹â¹â¤µ152.86m)¤Ç¤¹¡£»£±Æ¤·¤¿2025ǯ3·î15Æü¤Ë¤Ï40³¬Éôʬ¤ò·úÀßÃæ¤Î¤è¤¦¤Ç¤·¤¿¡£Æ±¥¿¥ï¥Þ¥ó¤ÏÁêÌÏÂçÌî±Ø¥¨¥ê¥¢¤Ï¤â¤Á¤í¤ó¡¢ÁêÌϸ¶»ÔÆâ¡¦¾®ÅĵÞÀþ±èÀþ¥¨¥ê¥¢¤ÇºÇ¹âÁØ¥¿¥ï¥Þ¥ó¤È¤Ê¤ê¤Þ¤¹¡£¤³¤Îµ»ö¤Ç¤ÏƱ¥¿¥ï¥Þ¥ó¤Î³µÍפä·úÀß¾õ¶·¡¢ÃÏ¿ÞÅù¤òºÜ¤»¤Æ¤¤¤Þ¤¹¡£
¥×¥é¥¦¥É¥¿¥ï¡¼ÁêÌÏÂçÌ¥í¥¹¤Ë¤Ä¤¤¤Æ

³°´Ñ´°À®Í½ÁÛ¿Þ[½Ðŵ¡§¸ø¼°HP]
¡¡¡Ö¥×¥é¥¦¥É¥¿¥ï¡¼ÁêÌÏÂçÌ¥í¥¹¡×¤Ï¡Ö°ËÀªÃ°ÁêÌϸ¶Å¹¡×À×ÃϤΥ¿¥ï¡¼¥Þ¥ó¥·¥ç¥ó¤Ç¡¢µ¬ÌϤÏÃϾå41³¬¡¢Ãϲ¼3³¬¡¢¹â¤µ145.11m¡¢ºÇ¹â¹â¤µ152.86m¡¢ÉßÃÏÌÌÀÑ1Ëü186.49Ö¡¢·úÃÛÌÌÀÑ7,489.85Ö¡¢±ä¾²ÌÌÀÑ8Ëü353.05Ö¡¢Áí¸Í¿ô687¸Í¤È¤Ê¤Ã¤Æ¤¤¤Þ¤¹¡£
¡¡·úÃÛ¼ç(Çä¼ç)¤ÏÌî¼ÉÔÆ°»º¡¢À߷׼ԤȻܹ©¼Ô¤Ï»°°æ½»Í§·úÀߤǡ¢2025ǯ11·î¾å½Ü½×¹©¡¢2026ǯ1·î²¼½Ü¤ÎÆþµï³«»ÏͽÄê¤Ç¤¹¡£

³°´Ñ´°À®Í½ÁÛ¿Þ[½Ðŵ¡§¸ø¼°HP]
¡¡¸½ºß¤Ï30¸Í¤¬ÀèÃå½çÈÎÇäÃæ¤Ç¡¢ÈÎÇä´Ö¼è¤ê¤Ï1LDK¡Á4LDK¡¢ÀìÍÌÌÀѤÏ37.70Ö¡Á113.68Ö¡¢¥Ð¥ë¥³¥Ë¡¼ÌÌÀѤÏ5.10Ö¡Á18.14Ö¡¢ÈÎÇä²Á³Ê¤Ï4198Ëü±ß¡Á2²¯1790Ëü±ß¤È¤Ê¤Ã¤Æ¤¤¤Þ¤¹¡£


ÉßÃÏÇÛÃÖ¿Þ[½Ðŵ¡§¸ø¼°HP]
¡¡1³¬¤Ë¤Ï¥¹¡¼¥Ñ¡¼¥Þ¡¼¥±¥Ã¥È¤Î¡Ö(²¾¾Î)¥Þ¥Ã¥¯¥¹¥Ð¥ê¥å¥¨¥¯¥¹¥×¥ì¥¹ÁêÌÏÂçÌîŹ¡×¡¢2³¬¤Ë¤ÏŹÊÞ¡¦Ãϰè¹×¸¥»ÜÀß¡Ê2026ǯ1·î¤è¤ê½ç¼¡³«¶ÈͽÄê¡Ë¡¢¤Ë¤®¤ï¤¤¹¾ì(²¾¾Î)¤¬ÇÛÃÖ¤µ¤ì¤Þ¤¹¡£¤Þ¤¿¡¢2³¬¤Ç¤Ï´û¸¤Î¥Ç¥Ã¥¤ËÀܳ¤·¡¢ÁêÌϸ¶»Ôʸ²½²ñ´Û(ÁêÌϽ÷»ÒÂç³Ø¥°¥ê¡¼¥ó¥Û¡¼¥ë¡Ë¡¢ÁêÌÏÂçÌîÃæ±û¸ø±à¤Þ¤ÇÄ̤êÈ´¤±¤é¤ì¤ë¤è¤¦¤Ë¤Ê¤ê¤Þ¤¹¡£

¤Ë¤®¤ï¤¤¹¾ì(²¾¾Î)´°À®Í½ÁÛ¿Þ[½Ðŵ¡§¸ø¼°HP]
¡¡¤Ë¤®¤ï¤¤¹¾ì(²¾¾Î)¤Ï¿Í¹©¼Ç¤Î¹¾ì¤È¤Ê¤ê¡¢¥µ¥¤¥Í¡¼¥¸¤ò³èÍѤ·¤¿¥¤¥Ù¥ó¥È¤â³«ºÅ²Äǽ¤È¤Ê¤Ã¤Æ¤¤¤Þ¤¹¡£

¼Ö´ó¤»´°À®Í½ÁÛ¿Þ[½Ðŵ¡§¸ø¼°HP]
¡¡¼Ö´ó¤»¤Ï²°º¬ÉÕ¤¤È¤Ê¤ê¡¢±«¤ÎÆü¤Ç¤âǨ¤ì¤º¤ËƱ¾è¼Ô¤Î¾è¤ê¹ß¤ê¤¬¤Ç¤¤Þ¤¹¡£

2³¬¥¨¥ó¥È¥é¥ó¥¹¥Û¡¼¥ë´°À®Í½ÁÛ¿Þ[½Ðŵ¡§¸ø¼°HP]
¡¡2³¬¤ËÇÛÃÖ¤µ¤ì¤ë¥¨¥ó¥È¥é¥ó¥¹¥Û¡¼¥ë¤Î´°À®Í½ÁۿޤǤ¹¡£

Ãϲ¼¶¦ÍÑ»ÜÀß´°À®Í½ÁÛ¿Þ[½Ðŵ¡§¸ø¼°HP]
¡¡Ãϲ¼1³¬¤ËÇÛÃÖ¤µ¤ì¤ë¿ÌÜۥ饦¥ó¥¸¤Î´°À®Í½ÁۿޤǤ¹¡£

¥²¥¹¥È¥ë¡¼¥à´°À®Í½ÁÛ¿Þ[½Ðŵ¡§¸ø¼°HP]
¡¡24³¬¤Ë¤Ï¥²¥¹¥È¥ë¡¼¥à¤¬Íμ¼¤Èϼ¼¤Î2Éô²°ÍѰդµ¤ì¤Þ¤¹¡£

¥¹¥«¥¤¥é¥¦¥ó¥¸¡¦¥¹¥«¥¤¥Æ¥é¥¹´°À®Í½ÁÛ¿Þ[½Ðŵ¡§¸ø¼°HP]
¡¡ºÇ¾å³¬¤Î41³¬¤Ë¤Ï¥¹¥«¥¤¥é¥¦¥ó¥¸¡¦¥¹¥«¥¤¥Æ¥é¥¹¤¬ÇÛÃÖ¤µ¤ì¤Þ¤¹¡£

³°´Ñ´°À®Í½ÁÛ¿Þ[½Ðŵ¡§¸ø¼°HP]
¡¡¡Ö¥×¥é¥¦¥É¥¿¥ï¡¼ÁêÌÏÂçÌ¥í¥¹¡×¤Ï¼þÊÕ¥¨¥ê¥¢¤Ç°µÅÝŪ¤Ê¹â¤µ¤È¤Ê¤ë¤¿¤á¡¢¹âÁس¬¤«¤é¤Ï¼×¤ë·úʪ¤¬°ìÀڤʤ¤Ä¯Ë¾¤¬¹¤¬¤ê¤Þ¤¹¡£
´Ö¼è¤ê¿Þ

M¥¿¥¤¥×[½Ðŵ¡§¸ø¼°HP]
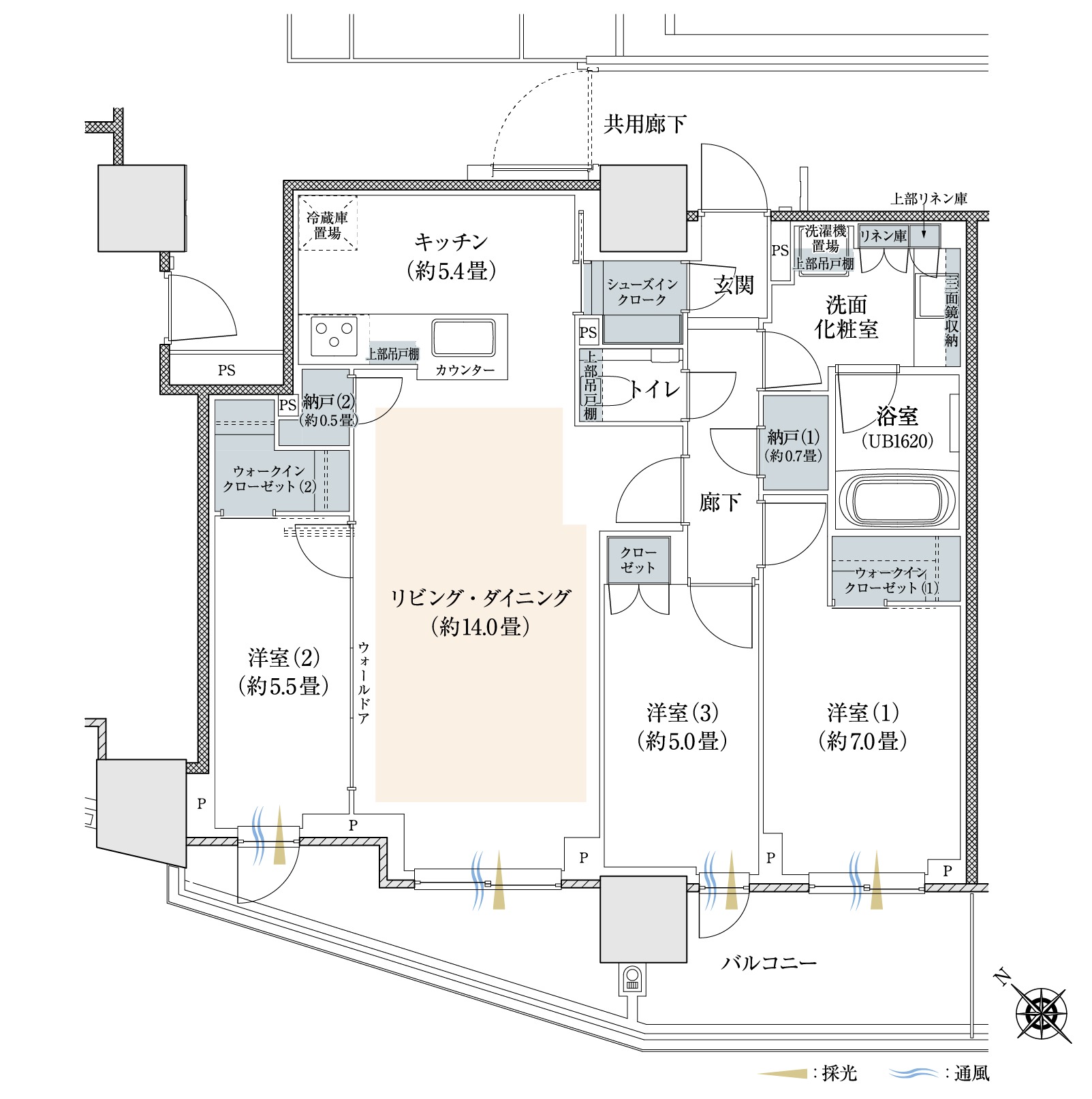
¡¡3¡Á12³¬¤ËÇÛÃÖ¤µ¤ì¤ëM¥¿¥¤¥×¤Î´Ö¼è¤ê¿Þ¤Ç¤¹¡£´Ö¼è¤ê¤Ï1LDK+WIC+SIC¡¢ÀìÍÌÌÀѤÏ37.70Ö¡¢¥Ð¥ë¥³¥Ë¡¼ÌÌÀѤÏ7.00֤ȤʤäƤª¤ê¡¢4³¬¤ÎÉô²°¤¬4198Ëü±ß¤ÇÀèÃå½çÈÎÇäÃæ¤È¤Ê¤Ã¤Æ¤¤¤Þ¤¹¡£

G2¥¿¥¤¥×[½Ðŵ¡§¸ø¼°HP]
¡¡3¡Á39³¬¤ËÇÛÃÖ¤µ¤ì¤ëG-2¥¿¥¤¥×¤Î´Ö¼è¤ê¿Þ¤Ç¤¹¡£´Ö¼è¤ê¤Ï2LDK+N+2WIC+SIC¡¢ÀìÍÌÌÀѤÏ56.71Ö¡¢¥Ð¥ë¥³¥Ë¡¼ÌÌÀѤÏ11.96֤ȤʤäƤª¤ê¡¢9³¬¤ÎÉô²°¤¬6108Ëü±ß¡¢30³¬¤ÎÉô²°¤¬6648Ëü±ß¤ÇÀèÃå½çÈÎÇäÃæ¤È¤Ê¤Ã¤Æ¤¤¤Þ¤¹¡£

R¥¿¥¤¥×[½Ðŵ¡§¸ø¼°HP]
¡¡30¡Á39³¬¤ËÇÛÃÖ¤µ¤ì¤ëR¥¿¥¤¥×¤Î´Ö¼è¤ê¿Þ¤Ç¤¹¡£´Ö¼è¤ê¤Ï3LDK+2N+2WIC+SIC¡¢ÀìÍÌÌÀѤÏ85.12Ö¡¢¥Ð¥ë¥³¥Ë¡¼ÌÌÀѤÏ16.65֤ȤʤäƤª¤ê¡¢35³¬¤ÎÉô²°¤¬1²¯1638Ëü±ß¤ÇÀèÃå½çÈÎÇäÃæ¤È¤Ê¤Ã¤Æ¤¤¤Þ¤¹¡£

E¥¿¥¤¥×[½Ðŵ¡§¸ø¼°HP]
¡¡3¡Á39³¬¤ËÇÛÃÖ¤µ¤ì¤ëE¥¿¥¤¥×¤Î´Ö¼è¤ê¿Þ¤Ç¤¹¡£´Ö¼è¤ê¤Ï4LDK+WIC+SIC¡¢ÀìÍÌÌÀѤÏ86.34Ö¡¢¥Ð¥ë¥³¥Ë¡¼ÌÌÀÑ(1)¤Ï11.96Ö¡¢¥Ð¥ë¥³¥Ë¡¼ÌÌÀÑ(2)¤Ï6.18֤ǡ¢Æ±¥¿¥¤¥×¤Î7³¬¤ÎÉô²°¤¬9908Ëü±ß¤ÇÀèÃå½çÈÎÇäÃæ¤È¤Ê¤Ã¤Æ¤¤¤Þ¤¹¡£

PG¥¿¥¤¥×[½Ðŵ¡§¸ø¼°HP]
¡¡½»¸Í¤È¤·¤Æ¤ÏºÇ¾å³¬¤Î40³¬¤ËÇÛÃÖ¤µ¤ì¤ëPG¥¿¥¤¥×¤Î´Ö¼è¤ê¿Þ¤Ç¤¹¡£´Ö¼è¤ê¤Ï3LDK+N+2WIC+SIC¡¢ÀìÍÌÌÀѤÏ113.68Ö¡¢¥Ð¥ë¥³¥Ë¡¼ÌÌÀÑ7.32֤ǡ¢Æ±¥¿¥¤¥×¤ÎÉô²°¤¬2²¯1790Ëü±ß¤ÇÀèÃå½çÈÎÇäÃæ¤È¤Ê¤Ã¤Æ¤¤¤Þ¤¹¡£
°ÌÃÖ¿Þ

°ÌÃÖ¿Þ[½Ðŵ¡§¸ø¼°HP]
¡¡·úÀßÃϤϾ®Åĵ޾®Åĸ¶Àþ¡¦¾®Åĵ޹¾¥ÎÅçÀþ¡ÖÁêÌÏÂçÌî¡×±Ø¤ÎÀ¾Â¦¤Ë¤¢¤Ã¤¿¡Ö°ËÀªÃ°ÁêÌϸ¶Å¹¡×¤ÎÀ×ÃϤǥ³¥ê¥É¡¼³¹¤ÎÆÍ¤Åö¤ê¤Ë°ÌÃÖ¤·¤Æ¤ª¤ê¡¢±Ø¤«¤é¤ÏÅÌÊâ4ʬ¤Îµ÷Î¥¤È¤Ê¤Ã¤Æ¤¤¤Þ¤¹¡£
¡¡ÁêÌÏÂçÌî±Ø¤«¤é¤Ï²°º¬ÉÕ¤¤Î¥Ú¥Ç¥¹¥È¥ê¥¢¥ó¥Ç¥Ã¥¤¬¥³¥ê¥É¡¼³¹¤ÎÌܤÎÁ°¤Þ¤Ç³¤¤¤Æ¤¤¤Þ¤¹¡£¥³¥ê¥É¡¼³¹¤È¤Î´Ö¤Î¿ô¥á¡¼¥È¥ë¤À¤±²°º¬¤ÏÅÓÀÚ¤ì¤Þ¤¹¤¬¡¢¥³¥ê¥É¡¼³¹¤ÎÊâÆ»¤Ï²°º¬ÉÕ¤¤È¤Ê¤Ã¤Æ¤ª¤ê¡¢¤½¤·¤ÆÆÍ¤Åö¤ê¤Î´û¸¥Ç¥Ã¥¤â²°º¬ÉÕ¤¤È¤Ê¤Ã¤Æ¤¤¤Þ¤¹¡£¡Ö¥×¥é¥¦¥É¥¿¥ï¡¼ÁêÌÏÂçÌ¥í¥¹¡×¤È¤Ï¤½¤Î´û¸¥Ç¥Ã¥¤ÇÀܳ¤¹¤ë¤¿¤á±Ø¤Þ¤Ç¤Û¤Ü²°º¬ÉÕ¤¤ÎưÀþ¤Ç¥¢¥¯¥»¥¹²Äǽ¤È¤Ê¤ê¤Þ¤¹¡£

¥¨¥ê¥¢³µÇ°¿Þ[½Ðŵ¡§¸ø¼°HP]
¡¡¡ÖÁêÌÏÂçÌî¡×±ØÁ°¤Ë¤Ï¡ÖÁêÌÏÂçÌ¥Æ¡¼¥·¥ç¥ó¥¹¥¯¥¨¥¢¡×¤ä¡Ö¥Ü¡¼¥ÎÁêÌÏÂçÌî¡×¤È¤¤¤Ã¤¿Âç·¿¾¦¶È»ÜÀߤ¬¤¢¤ê¤Þ¤¹¡£¤Þ¤¿¡¢Æ±¥¿¥ï¥Þ¥ó¤Î2³¬¹¾ì¤«¤é¤Ï¡ÖÁêÌϸ¶»Ôʸ²½²ñ´Û(ÁêÌϽ÷»ÒÂç³Ø¥°¥ê¡¼¥ó¥Û¡¼¥ë¡Ë¡×¤ËÀܳ¤·¡¢¤½¤ÎÀè¤Ë¤¢¤ë¡ÖÁêÌÏÂçÌîÃæ±û¸ø±à¡×¤Ë¤â·Ò¤¬¤Ã¤Æ¤¤¤Þ¤¹¡£
·úÀß¾õ¶·

¡¡2025ǯ3·î15Æü¤ËÁêÌÏÂçÌî±Ø¤Î¥Ú¥Ç¥¹¥È¥ê¥¢¥ó¥Ç¥Ã¥¤«¤é»£±Æ¤·¤¿¡Ö¥×¥é¥¦¥É¥¿¥ï¡¼ÁêÌÏÂçÌ¥í¥¹¡×(ÃϾå41³¬¡¢ºÇ¹â¹â¤µ152.86m)ÊýÌ̤Ǥ¹¡£±ØÁ°¤Î´û¸·úʪ±Û¤·¤Ë¹âÁØÉô¤¬¸«¤¨¤ë¤è¤¦¤Ë¤Ê¤Ã¤Æ¤¤¤Þ¤·¤¿¡£

¡¡ÁêÌÏÂçÌî±ØÁ°¤Ë¤¢¤ë¥³¥ê¥É¡¼³¹¤ÎÆÍ¤Åö¤ê¤¬·úÀßÃϤȤʤäƤ¤¤Þ¤¹¡£

¡¡¥³¥ê¥É¡¼³¹¤ÎÆÍ¤Åö¤ê¤Ë¤¢¤ë¥Ç¥Ã¥¤«¤é»£±Æ¡£¡Ö¥×¥é¥¦¥É¥¿¥ï¡¼ÁêÌÏÂçÌ¥í¥¹¡×¤Ï¤½¤Î¥Ç¥Ã¥¤ÈÀܳ¤·¤Þ¤¹¡£

¡¡Æî¦¤«¤é»£±Æ¡£»£±Æ»þ¤Ë¤Ï40³¬Éôʬ¤ò·úÀßÃæ¤Î¤è¤¦¤Ç¤·¤¿¡£

¡¡ËÌÅ즤«¤é»£±Æ¡£

¡¡1³¬¤Ë¡Ö(²¾¾Î)¥Þ¥Ã¥¯¥¹¥Ð¥ê¥å¥¨¥¯¥¹¥×¥ì¥¹ÁêÌÏÂçÌîŹ¡×¡¢2³¬¤Ë¤ÏŹÊÞ¡¦Ãϰè¹×¸¥»ÜÀߤ乾줬À°È÷¤µ¤ì¤ëÄãÁØÉô¤Ç¤¹¡£¤³¤³¤Ï°ìÉô´û¸·úʪ¤¬ºÆÍøÍѤµ¤ì¤Æ¤¤¤Þ¤¹¡£

¡¡Ë̦¤Ë¤¢¤ëÁêÌÏÂçÌîÃæ±û¸ø±àÆâ¤«¤é»£±Æ¡£

¡¡ÁêÌÏÂçÌîÃæ±û¸ø±à¤È¤Ï2³¬¥Ç¥Ã¥¤È·Ò¤¬¤ëÁêÌϸ¶»Ôʸ²½²ñ´Û(ÁêÌϽ÷»ÒÂç³Ø¥°¥ê¡¼¥ó¥Û¡¼¥ë¡Ë·Ðͳ¤Ç·Ò¤¬¤ê¤Þ¤¹¡£

¡¡¤½¤Î¤¿¤á¤³¤ÎÂ礤ʸø±à¤Ëµ¤·Ú¤Ë¹Ô¤±¤ë¤è¤¦¤Ë¤Ê¤ê¡¢¤½¤·¤Æ¡Ö¥×¥é¥¦¥É¥¿¥ï¡¼ÁêÌÏÂçÌ¥í¥¹¡×¤«¤é¤Ï¸ø±à¤ÎÎÐÃϤò¼Ú·Ê¤Ç¤¤ë¤è¤¦¤Ë¤Ê¤ê¤Þ¤¹¡£
ÃÏ¿Þ
ʪ·ï³µÍ×

¡¡·úÃ۷ײè¤Î¤ªÃΤ餻¤Ç¤¹¡£Åã²°¤¬7.75m¤Ê¤Î¤Ç¹â¤µ145.11m¤Ë¤·¤ÆºÇ¹â¹â¤µ¤ò152.86m¤È¤·¤Æ¤¤¤Þ¤¹¡£
¢£Êª·ï³µÍ×¢£
̾¾Î¡§¥×¥é¥¦¥É¥¿¥ï¡¼ÁêÌÏÂçÌ¥í¥¹
»ö¶È̾¡§(²¾¾Î)ÁêÌÏÂçÌî4ÃúÌܷײè
½êºßÃÏ¡§ÁêÌϸ¶»ÔÆî¶èÁêÌÏÂçÌî4 ÃúÌÜ4009ÈÖ45¡Ê°ËÀªÃ°ÁêÌϸ¶Å¹À×ÃÏ¡Ë
¸òÄÌ¡§¾®ÅĵÞÅÅÅ´¾®Åĸ¶Àþ¡ÖÁêÌÏÂçÌî¡×±Ø ÅÌÊâ4ʬ
¡¡¡¡¡¡¾®ÅĵÞÅÅÅ´¹¾¥ÎÅçÀþ¡ÖÁêÌÏÂçÌî¡×±Ø ÅÌÊâ4ʬ
ÍÑÅÓ¡§¶¦Æ±½»Â𡦾¦¶È¡¦Ãϰè¹×¸¥»ÜÀß
Áí¸Í¿ô¡§687¸Í
³¬¿ô¡§ÃϾå41³¬¡¢Ãϲ¼3³¬
¹â¤µ¡§145.11m¡ÊºÇ¹â¹â¤µ152.86m¡Ë
¹½Â¤¡§Å´¶Ú¥³¥ó¥¯¥ê¡¼¥È¤¡Ê°ìÉôÅ´¹ü¤ µÚ¤Ó Å´¹üÅ´¶Ú¥³¥ó¥¯¥ê¡¼¥È¤¡Ë¡¢Ìȿ̹½Â¤
´ðÁù©Ë¡¡§¸½¾ì¤À®¹º
ÉßÃÏÌÌÀÑ¡§10,186.49Ö
·úÃÛÌÌÀÑ¡§7,489.85Ö
±ä¾²ÌÌÀÑ¡§83,535.05Ö
·úÃۼ硦Çä¼ç¡§Ìî¼ÉÔÆ°»º
Àß·×¼Ô¡§»°°æ½»Í§·úÀß
»Ü¹©¼Ô¡§»°°æ½»Í§·úÀß
¹©´ü¡§2023ǯ5·î23ÆüÃ幩¡Á2025ǯ11·î¾å½Ü½×¹©Í½Äê
Æþµï¡§2026ǯ1·î²¼½ÜͽÄê
½Ðŵ
¢§¸ø¼°HP¡§¥×¥é¥¦¥É¥¿¥ï¡¼ÁêÌÏÂçÌ¥í¥¹
https://www.proud-web.jp/mansion/f116160/
¢§Ìî¼ÉÔÆ°»º¡§¥Ë¥å¡¼¥¹¥ê¥ê¡¼¥¹¡Ê2024ǯ2·î16Æü¡Ë
¥×¥é¥¦¥É¥¿¥ï¡¼ÁêÌÏÂçÌ¥í¥¹¤ä¤½¤Î¼þÊդγ¹¤òºÆ¸½¡¡Ìî¼ÉÔÆ°»º½é¡¢Ê¬¾ù¥Þ¥ó¥·¥ç¥óÈÎÇä¤Ë¤ª¤¤¤ÆÊª·ïñÂΤǤΥ᥿¥Ð¡¼¥¹¶õ´ÖƳÆþ¡¡Êª·ï¤ä¼þÊդγ¹¤ò¥¢¥Ð¥¿¡¼¤Ç»¶ºö¤·¡¢¤¤¤Ä¤Ç¤âµ¤·Ú¤Ë¾ðÊó¼ý½¸¤¬²Äǽ¤Ë
¢§Ìî¼ÉÔÆ°»º¡§¥Ë¥å¡¼¥¹¥ê¥ê¡¼¥¹¡Ê2023ǯ9·î15Æü¡Ë
°ËÀªÃ°ÁêÌϸ¶Å¹À×ÃϤ˿·¤¿¤ÊÅÔ»Ô¼´¤ò·ÁÀ®¤¹¤ë½»¾¦Ê£¹ç³«È¯¤¬ÃÂÀ¸ ¾®ÅĵÞÀþ±èÀþ¥¨¥ê¥¢ºÇ¹âÁؤÎʬ¾ù¥Þ¥ó¥·¥ç¥ó¡Ö¥×¥é¥¦¥É¥¿¥ï¡¼ÁêÌÏÂçÌ¥í¥¹¡×ȯɽ ¡½ 9·î16Æü¤è¤êͽÌóÀ©¥â¥Ç¥ë¥ë¡¼¥à°ÆÆâ²ñ³«»Ï ¡½
¢§Ìî¼ÉÔÆ°»º¡§¥Ë¥å¡¼¥¹¥ê¥ê¡¼¥¹¡Ê2021ǯ11·î9Æü¡Ë
¹ñÆâ½é¡¡Åŵ¤¡¦¥¬¥¹ CO₂ÇÓ½ÐÎ̼¼Á¥¼¥í¤Îʬ¾ù¥Þ¥ó¥·¥ç¥ó·úÃÛ·èÄê¡¡¥×¥é¥¦¥É¥·¥ê¡¼¥º¡Ö¡Ê²¾¾Î¡ËÁêÌÏÂçÌî 4 ÃúÌܷײè¡×¡Êµì°ËÀªÃ°À×ÃÏ¡Ë ¡½ºÆÀ¸²Äǽ¥¨¥Í¥ë¥®¡¼¤Ë¤è¤ëÅŵ¤¼«Æ°¼Ö½¼ÅÅÀßÈ÷¤òÃó¼Ö¾ìÁ´¶è²è¤ËÀßÃÖ¡½
- ¥«¥Æ¥´¥ê
- ÁêÌϸ¶»Ô







