
¡¡Âçºê±Ø¤ÎÀ¾Â¦¡Ê»³¼êÀþ³°Â¦¡Ë¤Ç·úÀßÃæ¤Î¡ÖÂçºê±ØÀ¾¸ýFÆîÃ϶èÂè°ì¼ï»Ô³¹ÃϺƳ«È¯»ö¶È¡×(ÃϾå37³¬¡¢¹â¤µ143m)¤Ç¤¹¡£2025ǯ3·î9Æü¤Ë»£±Æ¤·¤Þ¤·¤¿¡£ÄãÁØÉô¤¬¥ª¥Õ¥£¥¹¤È¤Ê¤ë¥¿¥ï¡¼¥Þ¥ó¥·¥ç¥ó¤Ç¡¢½»Í§ÉÔÆ°»º¤Ë¤è¤ë¹âµéÄÂÂߥޥ󥷥ç¥ó¥·¥ê¡¼¥º¤Î¡Ö¥é¡¦¥È¥¥¡¼¥ë¡×¤Ë¤Ê¤ë¤È¸À¤ï¤ì¤Æ¤¤¤Þ¤¹¡£¤³¤Îµ»ö¤Ç¤ÏƱ¥¿¥ï¥Þ¥ó¤Î³µÍפä·úÀß¾õ¶·¡¢ÃÏ¿ÞÅù¤òºÜ¤»¤Æ¤¤¤Þ¤¹¡£
Âçºê±ØÀ¾¸ýFÆîÃ϶è¤Ë¤Ä¤¤¤Æ

´°À®¥¤¥á¡¼¥¸¥Ñ¡¼¥¹
¡¡¡ÖÂçºê±ØÀ¾¸ýFÆîÃ϶èÂè°ì¼ï»Ô³¹ÃϺƳ«È¯»ö¶È¡×¤ÏÂçºê±ØÀ¾¸ý¦¡Ê»³¼êÀþ³°Â¦¡Ë¤Î¥¿¥ï¡¼¥Þ¥ó¥·¥ç¥ó¤Ç¡¢µ¬ÌϤÏÃϾå37³¬¡¢Ãϲ¼3³¬¡¢¹â¤µ143m¡¢ÉßÃÏÌÌÀÑ5,054.42Ö¡¢·úÃÛÌÌÀÑÌó3,030Ö¡¢±ä¾²ÌÌÀÑÌó5Ëü3400֤ȤʤäƤ¤¤Þ¤¹¡£·úÃÛ¼ç¤ÏÂçºê±ØÀ¾¸ýFÆîÃ϶è»Ô³¹ÃϺƳ«È¯Áȹç¡Ê»²²ÃÁȹç°÷¡§½»Í§ÉÔÆ°»º¡Ë¡¢Àß·×¼Ô¤ÏÆü·úÀ߷ס¢»Ü¹©¼Ô¤ÏÁ°ÅÄ·úÀß¹©¶È¤Ç2026ǯ2·îÃæ½Ü¤Î½×¹©Í½Äê¤Ç¤¹¡£
¡¡·úÃÛʪ´Ä¶·×²è½ñÀ©Å٤ǤÏʬ¾ù451¸Í¤È¤Ê¤Ã¤Æ¤¤¤Þ¤¹¤¬¡¢½»Í§ÉÔÆ°»º¤Ë¤è¤ë¹âµéÄÂÂߥޥ󥷥ç¥ó¥·¥ê¡¼¥º¤Î¡Ö¥é¡¦¥È¥¥¡¼¥ë¡×¤Ë¤Ê¤ë¤È¸À¤ï¤ì¤Æ¤¤¤Þ¤¹¡£

ÃÇÌÌ¿Þ[½Ðŵ¡§ÉÊÀî¶è]
¡¡¥Õ¥í¥¢¹½À®¤ÏÃϲ¼3³¬¡ÁÃϲ¼1³¬¤¬Ãó¼Ö¾ìÅù¡¢Ãϲ¼1³¬¡ÁÃϾå2³¬¤¬Å¹ÊÞ¡¢ÃϾå1³¬¤¬Êݰé½êÅù¡¢2³¬¤¬Å¹ÊÞ¡¢¸ø±×»ÜÀß¡¢2¡Á5³¬¤¬»ö̳½ê¡¢6³¬¤¬µ¡³£¼¼¡¢¤½¤·¤Æ7³¬¡Á36³¬¤¬½»Âð¥Õ¥í¥¢¤È¤Ê¤Ã¤Æ¤¤¤Þ¤¹¡£ºÇ¾å³¬¤Î37³¬¤Ïµ¡³£¼¼Åù¤È¤Ê¤ê¤Þ¤¹¡£

ÃÇÌÌ¿Þ[½Ðŵ¡§ÉÊÀî¶è]
¡¡7¡Á35³¬¤Î³¬¹â¤Ï3.25m¡Á3.4m¤Ç¡¢½»Âð¥Õ¥í¥¢¤È¤·¤Æ¤ÏºÇ¾å³¬¤È¤Ê¤ë36³¬¤Î³¬¹â¤Ï3.9m¤È¤Ê¤ê¤Þ¤¹¡£

ÇÛÃÖ¿Þ[½Ðŵ¡§ÅìµþÅÔ]
¡¡·úÀßÃϤÏÂçºê±Ø¤ÎÀ¾Â¦¤Ç¡¢Î٤ˤ¢¤ë¡Ö¥·¥ó¥¯¥Ñ¡¼¥¯¥¿¥ï¡¼¡×¤È¤Ï¥Ç¥Ã¥¤ÇÀܳ¤·¤Þ¤¹¡£¤½¤Î¡Ö¥·¥ó¥¯¥Ñ¡¼¥¯¥¿¥ï¡¼¡×¤ÏÂçºê±Ø¤Ë¥Ç¥Ã¥¤ÇÀܳ¤·¤Æ¤¤¤ë¤¿¤á¡¢Æ±¥¿¥ï¥Þ¥ó¤âÂçºê±Ø¤Ë¥Ç¥Ã¥¤ÇÀܳ¤¹¤ë¤³¤È¤Ë¤Ê¤ê¤Þ¤¹¡£
¡¡¤Þ¤¿¡¢¼þ°Ï¤Ë¤ÏÊâÆ»¾õ¶õÃϤ¬À°È÷¤µ¤ì¡¢ËÌÀ¾Â¦¤Î¡ÖµïÌÚ¿À¼Ò¡×Á°¤Ë¤ÏÌó1,000֤ι¾ì¤¬ÇÛÃÖ¤µ¤ì¤Þ¤¹¡£
Ê¿ÌÌ¿Þ

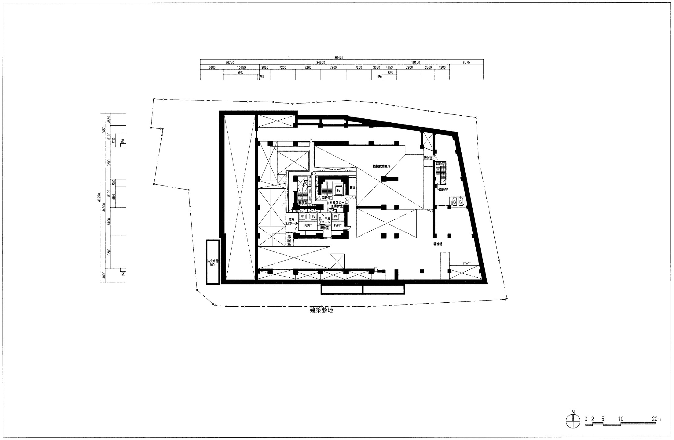
Ãϲ¼3³¬Ê¿ÌÌ¿Þ[½Ðŵ¡§ÉÊÀî¶è]
¡¡Ê¿Ì̿ޤǤ¹¡£Ãϲ¼3³¬¤Ë¤ÏÃóÎØ¾ì¤Î¾¤Ë½¸²ñ¼¼¤ä¿ÌÜŪ¼¼¤¬ÇÛÃÖ¤µ¤ì¤Þ¤¹¡£

Ãϲ¼2³¬Ê¿ÌÌ¿Þ[½Ðŵ¡§ÉÊÀî¶è]
¡¡Ãϲ¼2³¬¤ÏÃóÎØ¾ì¤È¤Ê¤ê¤Þ¤¹¡£

Ãϲ¼1³¬Ê¿ÌÌ¿Þ[½Ðŵ¡§ÉÊÀî¶è]
¡¡Ãϲ¼1³¬¤Ë¤ÏŹÊÞ¤äÃó¼Ö¾ì¤Î½ÐÆþ¸ý¤¬ÇÛÃÖ¤µ¤ì¤Þ¤¹¡£¤³¤³¤Ï·¹¼ÐÃϤÇÃϾå1³¬¤¬ºä¤Î¾å¤È¤Ê¤Ã¤Æ¤¤¤ë¤¿¤á¡¢Ãϲ¼1³¬¤¬ÃϾå1³¬¤Î¤è¤¦¤Ê°·¤¤¤È¤Ê¤ê¤Þ¤¹¡£±¿ÍѾå¤Î¸Æ¾Î¤ÏÃϲ¼1³¬¤¬ÃϾå1³¬¤Ë¤Ê¤ë²ÄǽÀ¤¬¤¢¤ê¤Þ¤¹¡£

1³¬Ê¿ÌÌ¿Þ[½Ðŵ¡§ÉÊÀî¶è]
¡¡¼Â¼Á¡¢2³¬¤È¤Ê¤ë1³¬¤Ë¤Ï¡Ö¥·¥ó¥¯¥Ñ¡¼¥¯¥¿¥ï¡¼¡×¤ÈÀܳ¤¹¤ë¥Ç¥Ã¥¤¬ÀßÃÖ¤µ¤ì¤Þ¤¹¡£

2³¬Ê¿ÌÌ¿Þ[½Ðŵ¡§ÉÊÀî¶è]
¡¡2³¬¤Ë¤Ï»ö̳½ê¡¢Å¹ÊÞ¡¢¸ø±×»ÜÀߤ¬ÇÛÃÖ¤µ¤ì¤Þ¤¹¡£

3³¬Ê¿ÌÌ¿Þ[½Ðŵ¡§ÉÊÀî¶è]
¡¡3³¬¤«¤é¤Ï¥ª¥Õ¥£¥¹¥Õ¥í¥¢¤Ë¤Ê¤ê¤Þ¤¹¡£

4³¬Ê¿ÌÌ¿Þ[½Ðŵ¡§ÉÊÀî¶è]

5³¬Ê¿ÌÌ¿Þ[½Ðŵ¡§ÉÊÀî¶è]

6³¬Ê¿ÌÌ¿Þ[½Ðŵ¡§ÉÊÀî¶è]
¡¡6³¬¤ÏÃæ´ÖÌÈ¿Ì¥Õ¥í¥¢¤È¤Ê¤ê¤Þ¤¹¡£

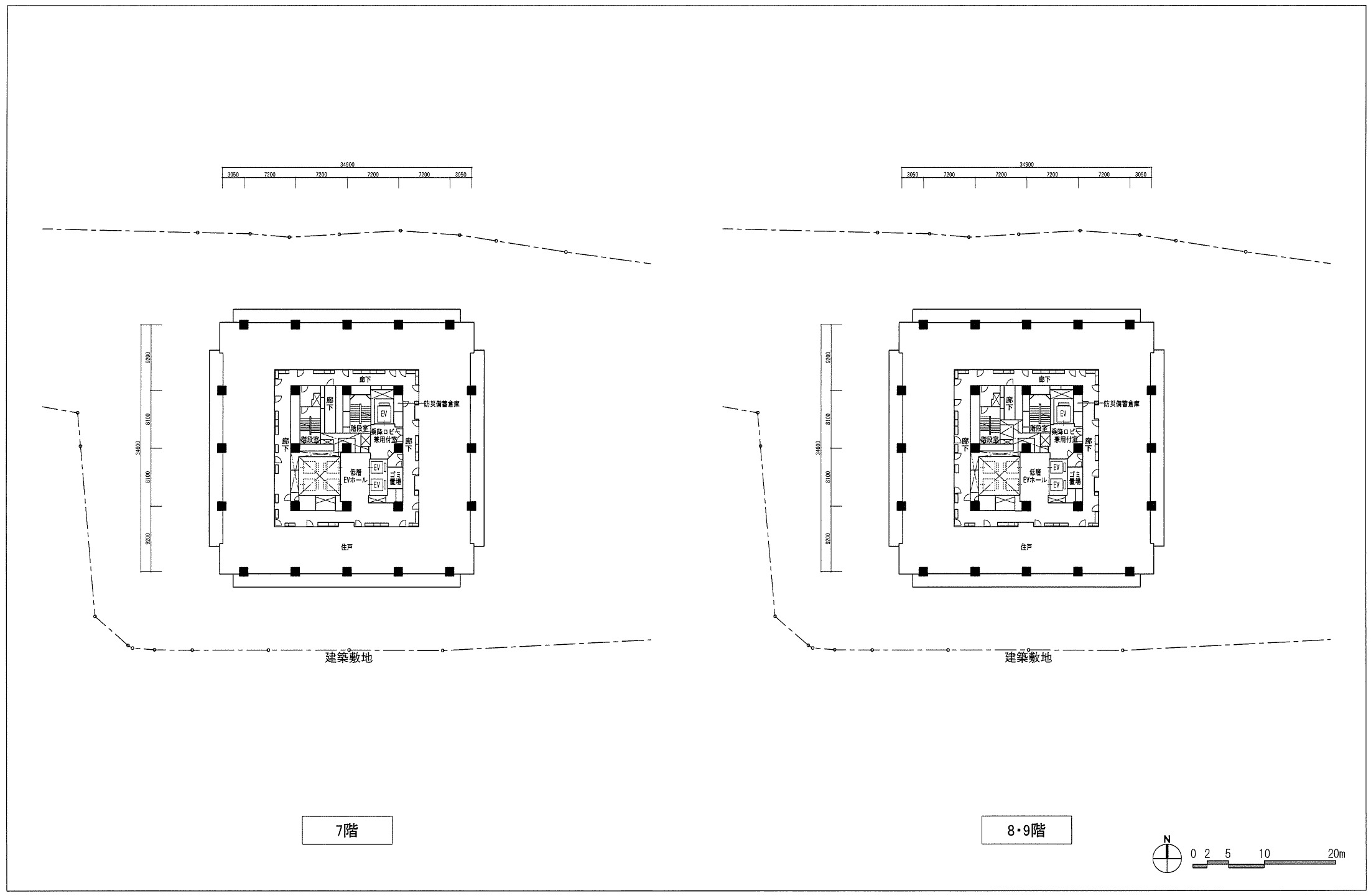
7³¬¡¢8¡¦9³¬Ê¿ÌÌ¿Þ[½Ðŵ¡§ÉÊÀî¶è]
¡¡7³¬¤«¤é¤¬½»Âð¥Õ¥í¥¢¤Ë¤Ê¤ê¤Þ¤¹¡£

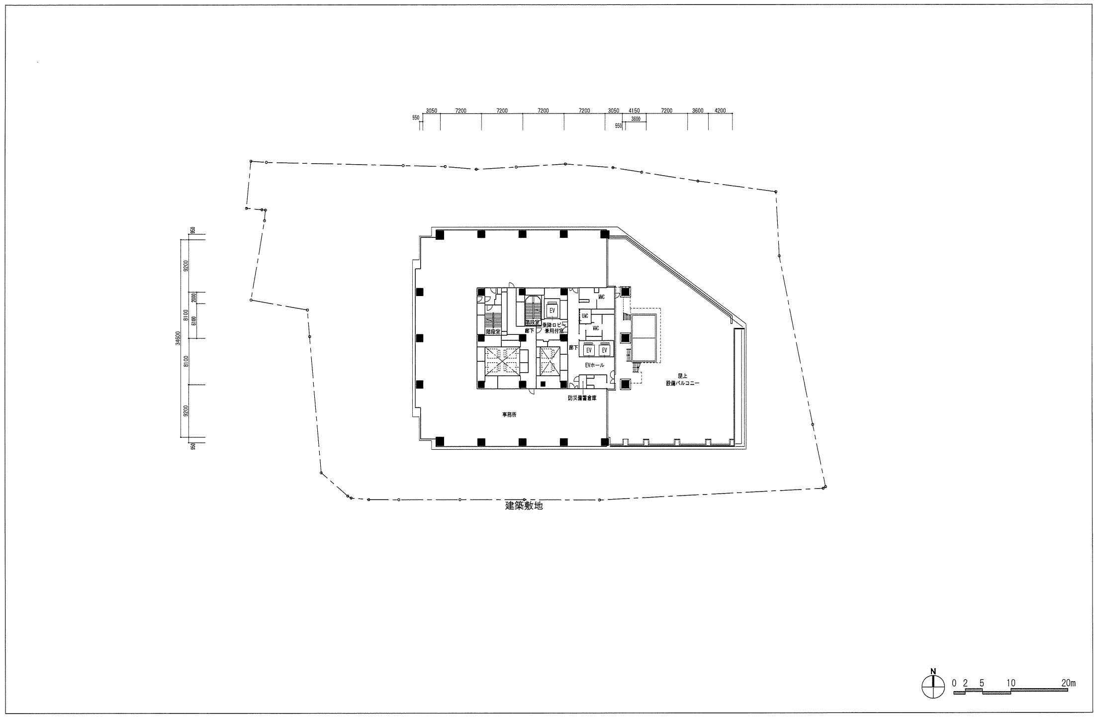
31¡Á35³¬¡¢36³¬Ê¿ÌÌ¿Þ[½Ðŵ¡§ÉÊÀî¶è]

37³¬¡¢PH³¬Ê¿ÌÌ¿Þ[½Ðŵ¡§ÉÊÀî¶è]
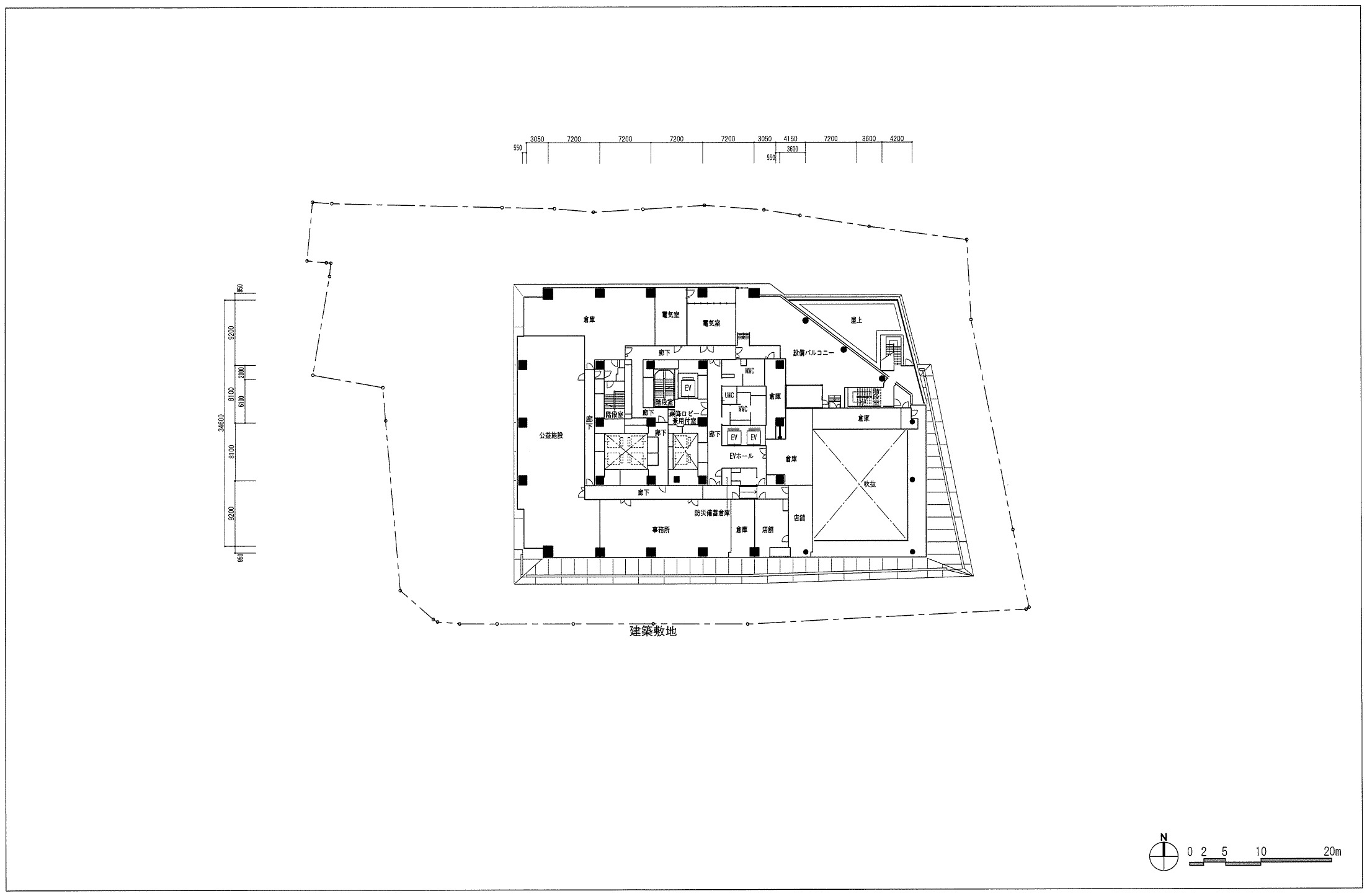
¡¡½»Âð¥Õ¥í¥¢¤Ï36³¬¤Þ¤Ç¤Ç¡¢ºÇ¾å³¬¤È¤Ê¤ë37³¬¤Ë¤ÏËɺÒÈ÷ÃßÁҸˤÈÈó¾ïÍÑȯÅŵ¡¼¼¤¬ÇÛÃÖ¤µ¤ì¤Þ¤¹¡£
°ÌÃÖ¿Þ

°ÌÃÖ¿Þ[½Ðŵ¡§ÉÊÀî¶è]
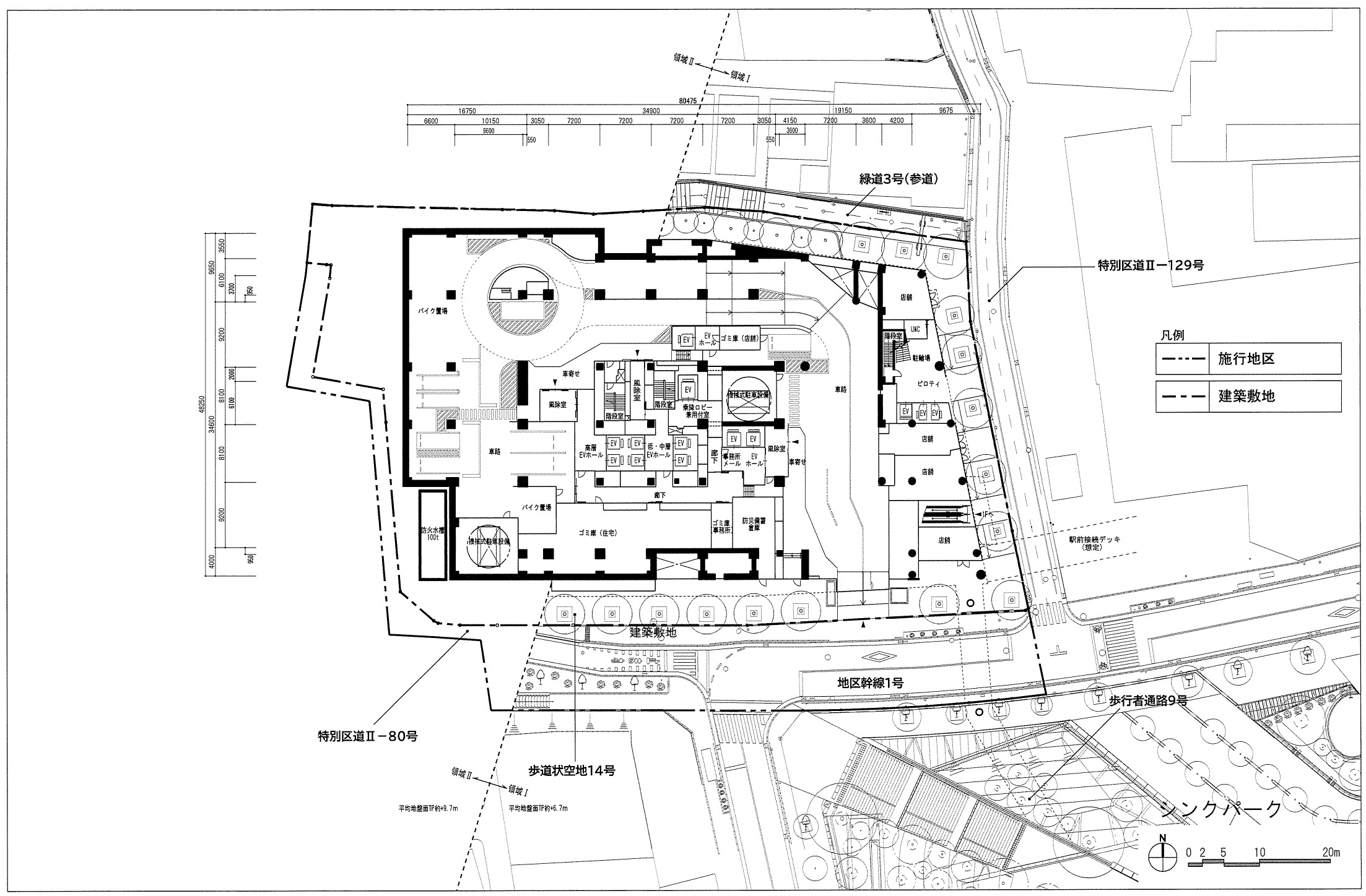
¡¡·úÀßÃϤÏÂçºê±ØÀ¾¸ý¦¤Ç¡¢¿·Àߤ¹¤ëÊâ¹Ô¼Ô¥Ç¥Ã¥¤Ë¤è¤Ã¤Æ¡Ö¥·¥ó¥¯¥Ñ¡¼¥¯¥¿¥ï¡¼¡×¤ËÀܳ¤·¡¢¤½¤³¤«¤éJR¡ÖÂçºê¡×±Ø¤ÎÆî²þ»¥¸ý¤Þ¤Ç¹Ô¤¯¤³¤È¤¬¤Ç¤¤ë¤è¤¦¤Ë¤Ê¤ê¤Þ¤¹¡£¤¿¤À¡¢µ÷ΥŪ¤Ë¤ÏË̲þ»¥¸ý¤ÎÊý¤¬¶á¤¤¤Ç¤¹¡£
·úÀß¾õ¶·

¡¡2025ǯ3·î9Æü¤ËÆîÅ즤Ȥʤë¡Ö¥·¥ó¥¯¥Ñ¡¼¥¯¥¿¥ï¡¼¡×¤Î³¬Ãʤ«¤é»£±Æ¤·¤¿¡ÖÂçºê±ØÀ¾¸ýFÆîÃ϶èÂè°ì¼ï»Ô³¹ÃϺƳ«È¯»ö¶È¡×(ÃϾå37³¬¡¢¹â¤µ143m)¤Ç¤¹¡£

¡¡Å즤ÎÄãÁØÉô¤ÎÅ´¹ü¤¬ÁȤޤì»Ï¤á¤Æ¤¤¤Þ¤·¤¿¡£ÄãÁØÉô¤ÏŹÊޤ䥪¥Õ¥£¥¹¥Õ¥í¥¢¤Ë¤Ê¤ê¤Þ¤¹¡£

¡¡ËÌÅ즤«¤é»£±Æ¡£

¡¡ËÌÅ즤ÎÄãÁØÉô¤ÎÊ¿Ì̤ϼФá¤Ë¤Ê¤Ã¤Æ¤¤¤ë¤³¤È¤¬¤ï¤«¤ê¤Þ¤¹¡£¤Þ¤¿¡¢¤³¤Á¤é¤ÎË̦¤Ë¤ÏµïÌÚ¿À¼Ò¤Î»²Æ»¤¬¤¢¤Ã¤¿¤Î¤Ç¤¹¤¬¡Ä

¡¡¸½ºß¤Ï²þ½¤À°È÷¤Î¤¿¤áÄ̹Իߤá¤È¤Ê¤Ã¤Æ¤¤¤Þ¤¹¡£¹©»ö´ü´Ö¤Ï2025ǯ8·î13Æü¤Þ¤Ç¤È¤Ê¤Ã¤Æ¤¤¤ë¤¿¤á¡¢¤Á¤ç¤¦¤É¤ªËߤκ¢¤Ë¤ÏÄ̤ì¤ë¤è¤¦¤Ë¤Ê¤Ã¤Æ¤¤¤ëͽÄê¤Ç¤¹¡£

¡¡²þ½¤À°È÷Ãæ¤Î»²Æ»Á°¤«¤é¸«¾å¤²¤¿¡ÖÂçºê±ØÀ¾¸ýFÆîÃ϶èÂè°ì¼ï»Ô³¹ÃϺƳ«È¯»ö¶È¡×¤Ç¤¹¡£»£±Æ»þ¤Ë¤Ï23³¬¤Þ¤Ç·úÀߤ¬¿Ê¤ó¤Ç¤¤¤Þ¤·¤¿¡£

¡¡µïÌÚ¿À¼ÒÆâ¤«¤é»£±Æ¡£

¡¡µïÌÚ¿À¼Ò¤ÎÆî¦¤Ë¤¢¤ëƻϩ¤«¤é»£±Æ¡£¤³¤Îƻϩ¤«¤é¤ÏÀµÌ̤ˡÖÂçºê±ØÀ¾¸ýFÆîÃ϶èÂè°ì¼ï»Ô³¹ÃϺƳ«È¯»ö¶È¡×¤ò¸«¤ë¤³¤È¤¬¤Ç¤¤Þ¤¹¡£¤Þ¤¿¡¢±¦±ü¤Ë¸«¤Æ¤¤¤ë͹âÁإӥ뤬¥Ç¥Ã¥¤ÇÀܳ¤¹¤ë¡Ö¥·¥ó¥¯¥Ñ¡¼¥¯¥¿¥ï¡¼¡×(ÃϾå30³¬¡¢ºÇ¹â¹â¤µ140.5m)¤Ç¤¹¡£

¡¡ÆîÀ¾Â¦¤«¤é»£±Æ¡£¤³¤Á¤é¤ÎÀ¾Â¦¤Ë¤Ï¹â¤¤·úʪ¤Ï¤Ê¤¤¤¿¤á¡¢½»Âð¥Õ¥í¥¢¤È¤·¤Æ¤Ï°ìÈÖÄ㤤7³¬¤Ç¤â³«¤±¤¿Ä¯Ë¾¤È¤Ê¤ê¤Þ¤¹¡£

¡¡¥·¥ó¥¯¥Ñ¡¼¥¯¥¿¥ï¡¼¤ÈÂçºê±Ø¤ò·Ò¤°¥Ç¥Ã¥¤«¤é»£±Æ¡£

¡¡Âçºê±Ø±Û¤·¤Ë»£±Æ¡£¤³¤Á¤é¤ÎÅ즽»¸Í¤ÏÌܤÎÁ°¤ËÂçºê±Ø¤Î͹âÁإӥ뷲¤¬¹¤¬¤ê¤Þ¤¹¡£

¡¡Âçºê±ØÅ즤Î͹âÁإӥ뷲¤Þ¤Ç¤Ï¾¯¡¹µ÷Î¥¤¬¤¢¤ë¤¿¤á¡¢Ä¶¹âÁإӥ뷲Á´ÂΤò¸«ÅϤ»¤ëÎɤ¤µ÷Î¥´¶¤Ë¤Ê¤ê¤½¤¦¤Ç¤¹¡£
ÃÏ¿Þ
ʪ·ï³µÍ×

¡¡·úÃ۷ײè¤Î¤ªÃΤ餻¤Ç¤¹¡£
¢£Êª·ï³µÍ×¢£
»ö¶È̾¡§Âçºê±ØÀ¾¸ýFÆîÃ϶èÂè°ì¼ï»Ô³¹ÃϺƳ«È¯»ö¶È
½êºßÃÏ¡§ÅìµþÅÔÉÊÀî¶èÂçºê»°ÃúÌÜ500È֤ΰìÉô
¸òÄÌ¡§JR»³¼êÀþ¡¦ºëµþÀþ¡¦¾ÅÆî¿·½É¥é¥¤¥ó¡ÖÂçºê¡×±Ø
¡¡¡¡¡¡¤ê¤ó¤«¤¤Àþ¡ÖÂçºê¡×±Ø
¡¡¡¡¡¡ÅìµÞÃÓ¾åÀþ¡ÖÂçºê¹¾®Ï©¡×±Ø
ÍÑÅÓ¡§½»Âð¡¢»ö̳½ê¡¢Å¹ÊÞ¡¢Êݰé½êÅù
Áí¸Í¿ô¡§460¸Í
³¬¿ô¡§ÃϾå37³¬¡¢Ãϲ¼3³¬
¹â¤µ¡§143m
¹½Â¤¡§Å´¶Ú¥³¥ó¥¯¥ê¡¼¥È¤ °ìÉôÅ´¹ü¤¡¦Å´¹üÅ´¶Ú¥³¥ó¥¯¥ê¡¼¥È¤¡¢Ãæ´ÖÌȿ̹½Â¤
´ðÁù©Ë¡¡§Ä¾ÀÜ´ðÁÃ
ÉßÃÏÌÌÀÑ¡§5,054.42Ö
·úÃÛÌÌÀÑ¡§3,030Ö
±ä¾²ÌÌÀÑ¡§53,400Ö
·úÃۼ硧Âçºê±ØÀ¾¸ýFÆîÃ϶è»Ô³¹ÃϺƳ«È¯Áȹç
»²²ÃÁȹç°÷¡§½»Í§ÉÔÆ°»º
Àß·×¼Ô¡§Æü·úÀß·×
»Ü¹©¼Ô¡§Á°ÅÄ·úÀß¹©¶È
¹©´ü¡§2023ǯ1·îÃæ½ÜÃ幩¡Á2026ǯ2·îÃæ½Ü½×¹©Í½Äê
½Ðŵ
¢§ÉÊÀî¶è¡§¥×¥í¥¸¥§¥¯¥È ¡Ê2023ǯ3·î30Æü¡Ë
Âçºê±ØÀ¾¸ýÃ϶è
¢§½»Í§ÉÔÆ°»º¡§¥Ë¥å¡¼¥¹¥ê¥ê¡¼¥¹¡Ê2021ǯ3·î15Æü¡Ë
¡ÖÂçºê±ØÀ¾¸ýFÆîÃ϶èÂè°ì¼ï»Ô³¹ÃϺƳ«È¯»ö¶È¡×ÁȹçÀßΩǧ²Ä
¢§ÅìµþÅÔ¡§Êóƻȯɽ¡Ê2021ǯ3·î4Æü¡Ë
Âçºê±ØÀ¾¸ýFÆîÃ϶è»Ô³¹ÃϺƳ«È¯Áȹç¤ÎÀßΩ¤òǧ²Ä
- ¥«¥Æ¥´¥ê
- ÉÊÀî¶è







