
¡¡»ÔÀî¤Îʬ¾ù¥¿¥ï¥Þ¥ó¡Ö¥ê¡¼¥Õ¥·¥Æ¥£»ÔÀî ¥¶¡¦¥¿¥ï¡¼¡×(ÃϾå29³¬¡¢¹â¤µ104.15m)¤Î·úÀßÃϤǤ¹¡£2025ǯ3·î1Æü¤Ë¥¢¥¤¡¦¥ê¥ó¥¯¥¿¥¦¥óŸ˾»ÜÀߤ«¤é»£±Æ¤·¤Þ¤·¤¿¡£µþÍÕ¥¬¥¹»ÔÀ¾ìÀ×ÃϤκƳ«È¯¤Ç¡¢½»Â𡦾¦¶È¡¦¹¾ì¤Ç¹½À®¤µ¤ì¤ëÂ絬ÌÏÊ£¹ç¥·¥Æ¥£¡Ö¥ê¡¼¥Õ¥·¥Æ¥£»ÔÀî¡×Æâ¤Î¥¿¥ï¡¼¥Þ¥ó¥·¥ç¥ó¤È¤Ê¤ê¤Þ¤¹¡£¤³¤Îµ»ö¤Ç¤ÏƱºÆ³«È¯¤Î³µÍפä·úÀß¾õ¶·¡¢ÃÏ¿ÞÅù¤òºÜ¤»¤Æ¤¤¤Þ¤¹¡£
¥ê¡¼¥Õ¥·¥Æ¥£»ÔÀî ¥¶¡¦¥¿¥ï¡¼¤Ë¤Ä¤¤¤Æ

³°´Ñ´°À®Í½ÁÛCG[½Ðŵ¡§¸ø¼°HP]
¡¡¡Ö¥ê¡¼¥Õ¥·¥Æ¥£»ÔÀî ¥¶¡¦¥¿¥ï¡¼¡×¤Ï»ÔÀî±Ø¤«¤éÆî¦¤ØÅÌÊâ7ʬ¤Îʬ¾ù¤Î¥¿¥ï¡¼¥Þ¥ó¥·¥ç¥ó¤Ç¡¢µ¬ÌϤÏÃϾå29³¬¡¢¹â¤µ104.15m¡¢ÉßÃÏÌÌÀÑ1Ëü7043.65Ö¡ÊÄê´üž¼ÚÃϸ¢¤ª¤è¤ÓÄê´üž¡¹¼ÚÃϸ¢¤ÎÂоÝÌÌÀÑ¡§1Ëü2200.02Ö¡Ë¡¢·úÃÛÌÌÀÑ5,340.88Ö¡¢±ä¾²ÌÌÀÑ7Ëü1594.63Ö¡¢Áí¸Í¿ô674¸Í¤È¤Ê¤Ã¤Æ¤¤¤Þ¤¹¡£
¡¡·úÃۼ硦Çä¼ç¤Ï»°°æÉÔÆ°»º¥ì¥¸¥Ç¥ó¥·¥ã¥ë¡¢Ìî¼ÉÔÆ°»º¡¢»°É©ÃϽê¥ì¥¸¥Ç¥ó¥¹¡¢À߷׼ԤȻܹ©¼Ô¤ÏĹ빩¥³¡¼¥Ý¥ì¡¼¥·¥ç¥ó¤Ç2026ǯ12·î²¼½Ü½×¹©¡¢2027ǯ3·î²¼½Ü¤ÎÆþµï³«»ÏͽÄê¤Ç¤¹¡£Æ±¥¿¥ï¥Þ¥ó¤Ï2100ǯ11·î14Æü¤Þ¤ÇÌó70ǯ¤ÎÄê´üž¼ÚÃϸ¢ÉÕ¤¤È¤Ê¤Ã¤Æ¤¤¤Þ¤¹¡£

³°´Ñ´°À®Í½ÁÛCG[½Ðŵ¡§¸ø¼°HP]
¡¡ËÜÆü2025ǯ3·î8Æü¤ÏÂè2´ü3¼¡¤Î9¸Í¤¬ÈÎÇ䤵¤ì¤Þ¤·¤¿¡£ÈÎÇä´Ö¼è¤ê¤Ï3LDK(8¸Í)¡¦4LDK(1¸Í)¡¢ÀìÍÌÌÀѤÏ69.08Ö¡Á93.11Ö¡¢¥Ð¥ë¥³¥Ë¡¼ÌÌÀѤÏ11.72Ö¡Á18.68֤ǡ¢ÈÎÇä²Á³Ê¤Ï7470Ëü±ß¡Á1²¯750Ëü±ß¤Ç¤·¤¿¡£

Á´Âγ¹¶è´°À®Í½ÁÛCG[½Ðŵ¡§¸ø¼°HP]
¡¡¡Ö¥ê¡¼¥Õ¥·¥Æ¥£»ÔÀî ¥¶¡¦¥¿¥ï¡¼¡×¤Î·úÀßÃϤϵþÍÕ¥¬¥¹»ÔÀ¾ìÀ×ÃϤÎÂ絬ÌϺƳ«È¯¡Ö¥ê¡¼¥Õ¥·¥Æ¥£»ÔÀî¡×Æâ¤Î¥¿¥ï¡¼¥Þ¥ó¥·¥ç¥ó¤Ç¡¢½»Â𡦾¦¶È¡¦¹¾ìÅù¤Ç¹½À®¤µ¤ì¤ëÂ絬ÌÏÊ£¹ç¥·¥Æ¥£¤È¤Ê¤ê¤Þ¤¹¡£
¡¡Æ±¥¿¥ï¥Þ¥ó¤ÎÀ¾Â¦¡Ê±¦Â¦¡Ë¤Ç¤ÏÌî¼ÉÔÆ°»º¥¦¥§¥ë¥Í¥¹¤¬±¿±Ä¤¹¤ë¥·¥Ë¥¢½»Âð¤Î¡Ö¥ª¥¦¥«¥¹»ÔÀî¡×(181¸Í¡¢2025ǯÅÙ³«¶ÈͽÄê)¤¬·úÀßÃæ¤Ç¡¢Æî¦¤Ç¤Ï¥¤¥ª¥ó¥ê¥Æ¡¼¥ë¤¬·úÃÛ¼ç¤È¤Ê¤ë±ä¾²ÌÌÀÑ1Ëü417.00֤ξ¦¶È»ÜÀß¡Ê2025ǯÅÙ³«¶ÈͽÄê¡Ë¤ÈÃϾå9³¬¡¢Áí¸Í¿ô235¸Í¤ÎÄÂÂß½»Âð¡Ê2025ǯÅÙ³«¶ÈͽÄê¡Ë¤¬·úÀßÃæ¤Ç¤¹¡£

ÉßÃÏÇÛÃÖ¿Þ´°À®Í½ÁÛCG[½Ðŵ¡§¸ø¼°HP]
¡¡¡Ö¥ê¡¼¥Õ¥·¥Æ¥£»ÔÀî¡×Æâ¤Ç¤Ï¾¤Ë¤âÃæ±û¹¾ì¡Ê2027ǯÅÙ3·î³«¶ÈͽÄê¡Ë¤ä±¿Æ°¾ì¡Ê2027ǯÅÙ3·î³«¶ÈͽÄê¡Ë¤âÀ°È÷¤µ¤ì¤Þ¤¹¡£

¥¨¥ó¥È¥é¥ó¥¹´°À®Í½ÁÛCG[½Ðŵ¡§¸ø¼°HP]
¡¡¥¨¥ó¥È¥é¥ó¥¹¤Î´°À®Í½ÁۿޤǤ¹¡£

¥¨¥ó¥È¥é¥ó¥¹¥é¥¦¥ó¥¸´°À®Í½ÁÛCG[½Ðŵ¡§¸ø¼°HP]
¡¡¥¨¥ó¥È¥é¥ó¥¹¥é¥¦¥ó¥¸¤ÏBIG LIVING¤ò¥³¥ó¥»¥×¥È¤È¤·¤¿³«ÊüŪ¤Ê¶õ´Ö¤Ë¤Ê¤ê¤Þ¤¹¡£

¥¥Ã¥º¥¹¥Ú¡¼¥¹´°À®Í½ÁÛCG[½Ðŵ¡§¸ø¼°HP]
¡¡¥é¥¦¥ó¥¸¤Î±ü¤Ë¤Ï¥¥Ã¥º¥¹¥Ú¡¼¥¹¤â¤¢¤ê¤Þ¤¹¡£1³¬¤Ë¤Ï¥ï¡¼¥¥ó¥°¥é¥¦¥ó¥¸¤ä¥é¥ó¥É¥ê¡¼¤âÍѰդµ¤ì¤Æ¤¤¤Þ¤¹¡£

¥²¥¹¥È¥ë¡¼¥à´°À®Í½ÁÛCG[½Ðŵ¡§¸ø¼°HP]
¡¡¥²¥¹¥È¥ë¡¼¥à¤Ï1³¬¤Ë2Éô²°ÍѰդµ¤ì¤Þ¤¹¡£

¥¹¥«¥¤¥é¥¦¥ó¥¸´°À®Í½ÁÛCG[½Ðŵ¡§¸ø¼°HP]
¡¡27³¬¤Ë¤Ï¶¦ÍÑ»ÜÀߤȤ·¤Æ¥¹¥«¥¤¥é¥¦¥ó¥¸¤¬ÇÛÃÖ¤µ¤ì¤Þ¤¹¡£¥¥Ã¥Á¥ó¥¹¥Ú¡¼¥¹¤òÈ÷¤¨¤Æ¤ª¤ê¡¢¤³¤³¤«¤é¤Ï»ÔÀî»Ô̱ǼÎòֲÐÂç²ñ¤Ê¤É¤ò³Ú¤·¤à¤³¤È¤â¤Ç¤¤ë¾ì½ê¤È¤Ê¤ê¤Þ¤¹¡£
´Ö¼è¤ê¿Þ

N43C1¥¿¥¤¥×[½Ðŵ¡§¸ø¼°HP]
¡¡N43C1¥¿¥¤¥×¤Î´Ö¼è¤ê¿Þ¤Ç¤¹¡£´Ö¼è¤ê¤Ï1LDK+WIC¡¢ÀìÍÌÌÀѤÏ43.20Ö¡¢¥Ð¥ë¥³¥Ë¡¼ÌÌÀѤÏ9.85֤ȤʤäƤ¤¤Þ¤¹¡£

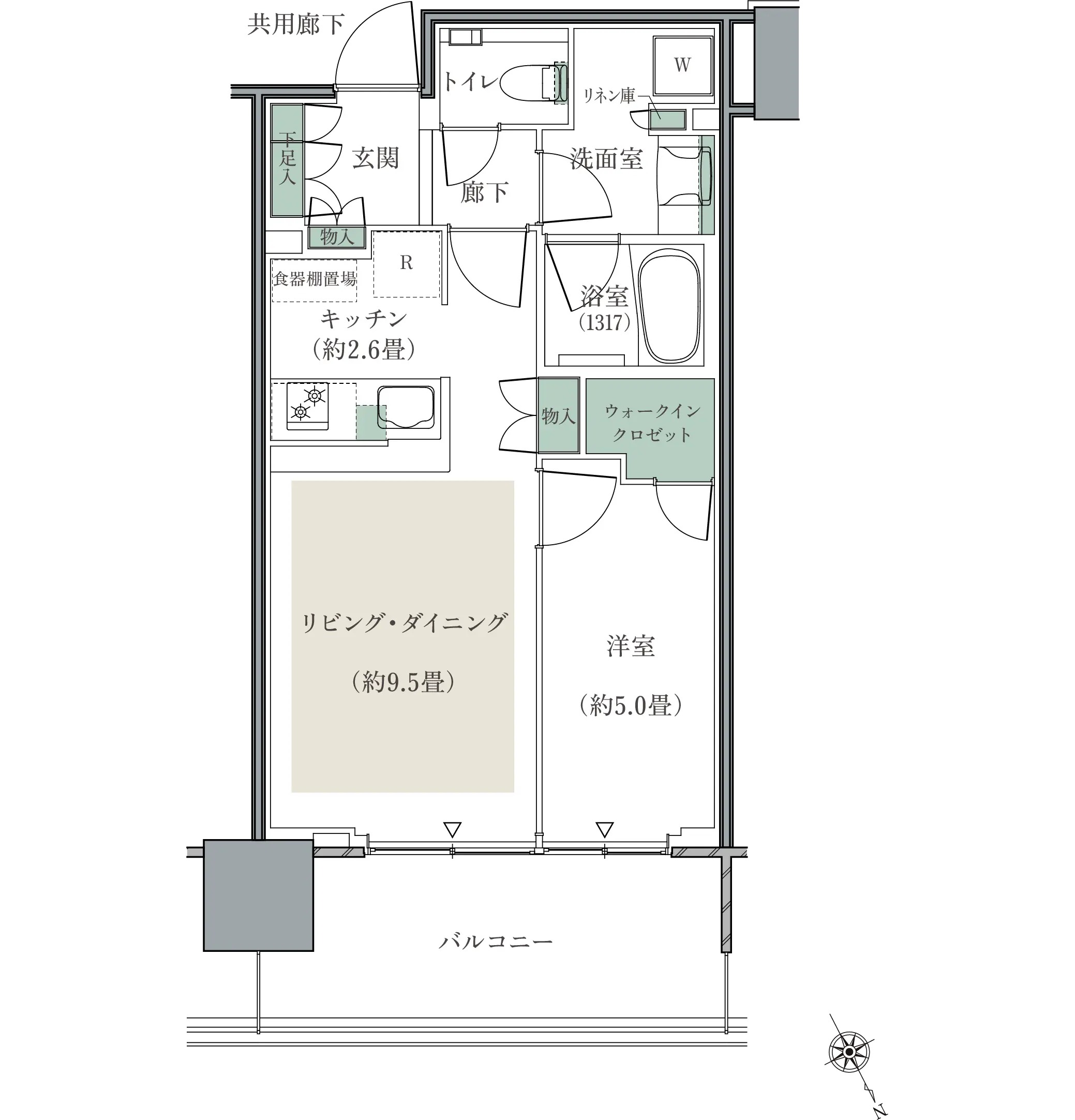
N64B¥¿¥¤¥×[½Ðŵ¡§¸ø¼°HP]
¡¡N64B¥¿¥¤¥×¤Î´Ö¼è¤ê¿Þ¤Ç¤¹¡£´Ö¼è¤ê¤Ï2LDK+WIC+N¡¢ÀìÍÌÌÀѤÏ64.21Ö¡¢¥Ð¥ë¥³¥Ë¡¼ÌÌÀѤÏ14.71֤ȤʤäƤ¤¤Þ¤¹¡£

S69A¥¿¥¤¥×[½Ðŵ¡§¸ø¼°HP]
¡¡S69A¥¿¥¤¥×¤Î´Ö¼è¤ê¿Þ¤Ç¤¹¡£´Ö¼è¤ê¤Ï3LDK+WIC+SIC¡¢ÀìÍÌÌÀѤÏ69.08Ö¡¢¥Ð¥ë¥³¥Ë¡¼ÌÌÀѤÏ13.95֤ȤʤäƤ¤¤Þ¤¹¡£

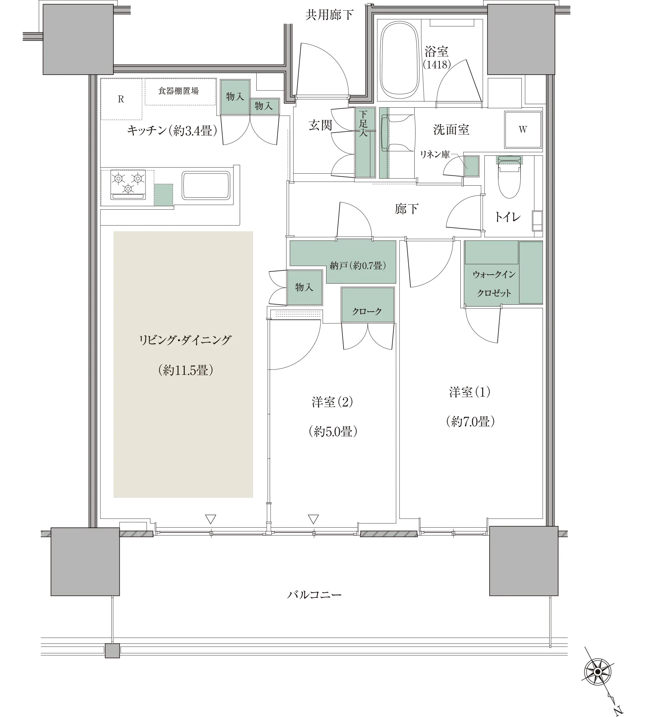
SW86N¥¿¥¤¥×[½Ðŵ¡§¸ø¼°HP]
¡¡SW86N¥¿¥¤¥×¤Î´Ö¼è¤ê¿Þ¤Ç¤¹¡£´Ö¼è¤ê¤Ï3LDK+2WIC+SIC+N¡¢ÀìÍÌÌÀѤÏ86.60Ö¡¢¥Ð¥ë¥³¥Ë¡¼ÌÌÀѤÏ17.25Ö¡Ê3¡Á27³¬¡Ë¡¦29.64Ö¡Ê2³¬¡Ë¤È¤Ê¤Ã¤Æ¤¤¤Þ¤¹¡£
°ÌÃÖ¿Þ

°ÌÃÖ¿Þ[½Ðŵ¡§¸ø¼°HP]
¡¡·úÀßÃϤϵþÍÕ¥¬¥¹»ÔÀ¾ìÀ×ÃϤǡ¢»ÔÀî±ØÆî¸ý¤«¤éÆî¦¤ØÅÌÊâ7ʬ¤Î¾ì½ê¤Ë°ÌÃÖ¤·¤Æ¤¤¤Þ¤¹¡£JR¡Ö»ÔÀî¡×±Ø¤ÏÁíÉðËÜÀþ¤Î³Æ±Ø¤È²÷®¤ÎξÊý¤¬Ää¼Ö¤¹¤ë±Ø¤È¤Ê¤Ã¤Æ¤¤¤Þ¤¹¡£¤µ¤é¤ËJR»ÔÀî±Ø¤ÎË̦¡Ê¤³¤ÎÃϿޤα¦¾å¡Ë¤Ë¤ÏµþÀ®ËÜÀþ¤Î»ÔÀî¿¿´Ö±Ø¤â¤¢¤ê¤Þ¤¹¡£
·úÀß¾õ¶·

¡¡2025ǯ3·î1Æü¤Ë¥¢¥¤¡¦¥ê¥ó¥¯¥¿¥¦¥óŸ˾»ÜÀߤ«¤é»£±Æ¤·¤¿¡Ö¥ê¡¼¥Õ¥·¥Æ¥£»ÔÀî¡×¤Î·úÀßÃϤǤ¹¡£½»Â𡦾¦¶È¡¦¹¾ì¤Ç¹½À®¤µ¤ì¤ëÂ絬ÌÏÊ£¹ç¥·¥Æ¥£¤Ç¡¢ÃϾå29³¬¡¢¹â¤µ104.15m¤È¤Ê¤ë¥¿¥ï¡¼¥Þ¥ó¥·¥ç¥ó¡Ö¥ê¡¼¥Õ¥·¥Æ¥£»ÔÀî ¥¶¡¦¥¿¥ï¡¼¡×¤¬·úÀßÃæ¤Ç¤¹¡£

¡¡¡Ö¥ê¡¼¥Õ¥·¥Æ¥£»ÔÀî ¥¶¡¦¥¿¥ï¡¼¡×¤Î·úÀßÃϤ˥º¡¼¥à¤Ç¤¹¡£¥¿¥ï¡¼¥¯¥ì¡¼¥ó2´ð¤ÇÃϾåÉô¤Î·úÀߤ¬»Ï¤Þ¤Ã¤Æ¤¤¤Þ¤·¤¿¡£

¡¡¹©¾ì¤Ç¤Ï¤Ê¤¯¸½¾ì¤Ç¥³¥ó¥¯¥ê¡¼¥È¤òÀ½Â¤¤·¤¿¥×¥ì¥¥ã¥¹¥È¥³¥ó¥¯¥ê¡¼¥È¤¬Ê¤ó¤Ç¤¤¤Þ¤·¤¿¡£¤³¤³¤«¤é¹â¤¯¤Ê¤Ã¤Æ¹Ô¤¯Â®ÅÙ¤ÏÁ᤽¤¦¤Ç¤¹¡£

¡¡À¾Î٤Ǥϥ·¥Ë¥¢½»Âð¤Î¡Ö¥ª¥¦¥«¥¹»ÔÀî¡×(ÃϾå10³¬)¤¬·úÀßÃæ¤Ç¤¹¡£

¡¡Ë̦¤Ç¤ÏÄÂÂß½»Âð¤Î¡Ö(²¾¾Î)ÀéÍÕ¸©»ÔÀî»Ô»ÔÀîÆîÆóÃúÌܷײè ÄÂÂß½»Âð¡×(ÃϾå9³¬)¤¬·úÀßÃæ¤Ç¤¹¡£¤Þ¤¿¡¢¤³¤ÎÄÂÂß½»Âð¤È¡Ö¥ê¡¼¥Õ¥·¥Æ¥£»ÔÀî ¥¶¡¦¥¿¥ï¡¼¡×¤Î´Ö¤Ç¤Ï¡¢¥¤¥ª¥ó¤Ë¤è¤ë¾¦¶È»ÜÀߤ¬·úÀßÃæ¤Ç¤¹¡£

¡¡ÉßÃÏËÌÀ¾Â¦¤Ë¤Ï2027ǯ3·î±¿Íѳ«»ÏͽÄê¤ÎÂ絬ÌϤÊÃæ±û¹¾ì¤¬À°È÷¤µ¤ì¤Þ¤¹¡£

¡¡À¾Â¦¤Ç¤Ï2027ǯ3·î±¿Íѳ«»ÏͽÄê¤Î±¿Æ°¾ì¤¬À°È÷¤µ¤ì¤Þ¤¹¡£

¡¡ÃϾ夫¤é»£±Æ¤·¤¿¡Ö¥ê¡¼¥Õ¥·¥Æ¥£»ÔÀî ¥¶¡¦¥¿¥ï¡¼¡×¤Î·úÀßÃϤǤ¹¡£

¡¡²¾°Ï¤¤Ä¶¤·¤Ë1³¬Éôʬ¤¬¸«¤¨¤ë¤è¤¦¤Ë¤Ê¤Ã¤Æ¤¤¤Þ¤·¤¿¡£¤Á¤Ê¤ß¤Ë±¦±ü¤Ë¸«¤Æ¤¤¤ë¥¿¥ï¡¼¥Þ¥ó¥·¥ç¥ó¤¬¡ÖI-link¥¿¥¦¥ó¤¤¤Á¤«¤ï ¥¶¡¦¥¿¥ï¡¼¥º¥¦¥¨¥¹¥È ¥×¥ì¥ß¥¢¥ì¥¸¥Ç¥ó¥¹¡×(ÃϾå45³¬¡¢¹â¤µ160m)¤Ç¡¢¤³¤ÎºÇ¾å³¬¤Ë»ÔÀî»Ô¤¬±¿±Ä¤¹¤ë̵ÎÁ¤ÎŸ˾¼¼¡Ö¥¢¥¤¡¦¥ê¥ó¥¯¥¿¥¦¥óŸ˾»ÜÀߡפ¬¤¢¤ê¤Þ¤¹¡£

¡¡¥¤¥ª¥ó¤Ë¤è¤ë¾¦¶È»ÜÀߤǤϿ·µ¬¥¯¥ê¥Ë¥Ã¥¯¤ä¿·µ¬¥Æ¥Ê¥ó¥È¤¬Êç½¸Ãæ¤Ç¤·¤¿¡£2025ǯÅ٤γ«¶ÈͽÄê¤Ç¤¹¡£

¡¡2025ǯ3·î7Æü¤Ë¹¾¸ÍÀî¶è¤ÎË¿¥¿¥ï¡¼¥Þ¥ó¥·¥ç¥ó¤«¤é»£±Æ¤·¤¿¡Ö¥¢¥¤¥ê¥ó¥¯¥¿¥¦¥ó»ÔÀî¡×¤È¡Ö¥ê¡¼¥Õ¥·¥Æ¥£»ÔÀî ¥¶¡¦¥¿¥ï¡¼¡×¤Ç¤¹¡£¤Þ¤À¥¿¥ï¥Þ¥óËÜÂΤϸ«¤¨¤Þ¤»¤ó¤¬¡¢¥¿¥ï¡¼¥¯¥ì¡¼¥ó2´ð¤¬¤¢¤ë¾ì½ê¤¬·úÀßÃϤȤʤäƤ¤¤Þ¤¹¡£±¦¤Î¥¿¥ï¡¼¥¯¥ì¡¼¥ó¤Ï¥¿¥ï¥Þ¥óËÜÂΤÎÃæ¿´¤ËÀßÃÖ¤µ¤ì¤Æ¤¤¤ë¤¿¤á¡¢±¦Â¦¤ÎÄÂÂߥ¿¥ï¥Þ¥ó¡ÖI-link¥¿¥¦¥ó¤¤¤Á¤«¤ï ¥¶¡¦¥¿¥ï¡¼¥º¥¤¡¼¥¹¥È¡×(ÃϾå37³¬¡¢¹â¤µ130m)¡×¤ÎȾʬ¤¯¤é¤¤¤¬¸«¤¨¤Ê¤¯¤Ê¤ê¤½¤¦¤Ç¤¹¡£
ÃÏ¿Þ
ʪ·ï³µÍ×

¡¡·úÃ۷ײè¤Î¤ªÃΤ餻¤Ç¤¹¡£²¼µ¤Îʪ·ï³µÍפϸø¼°HP¤ÎÃͤòÍ¥À褷¤Æ·ÇºÜ¤·¤Æ¤¤¤Þ¤¹¡£
¢£Êª·ï³µÍ×¢£
̾¾Î¡§¥ê¡¼¥Õ¥·¥Æ¥£»ÔÀî ¥¶¡¦¥¿¥ï¡¼
»ö¶È̾¡§(²¾¾Î)ÀéÍÕ¸©»ÔÀî»Ô»ÔÀîÆîÆóÃúÌÜ(µþÍÕ¥¬¥¹»ÔÀ¾ìÀ×ÃÏ)·×²è¶¦Æ±½»Âð(ʬ¾ù)¡¦Êݰé½ê
½êºßÃÏ¡§ÀéÍÕ¸©»ÔÀî»Ô»ÔÀîÆî£²ÃúÌÜ£¸£¹ÈÖ£±Â¾¡ÊÃÏÈÖ¡Ë
¸òÄÌ¡§JRÁíÉðËÜÀþ¡Ö»ÔÀî¡×±Ø ÅÌÊâ7ʬ
ÍÑÅÓ¡§¶¦Æ±½»Âð¡¦Êݰé½ê
Áí¸Í¿ô¡§674¸Í¡Ê¾¤ËÊݰé»ÜÀß1¶è²è¡Ë
³¬¿ô¡§ÃϾå29³¬
¹â¤µ¡§104.15m
¹½Â¤¡§Å´¶Ú¥³¥ó¥¯¥ê¡¼¥È¤¡¢Ìȿ̹½Â¤
´ðÁù©Ë¡¡§¹º´ðÁÃ
ÉßÃÏÌÌÀÑ¡§17,043.65Ö¡ÊÄê´üž¼ÚÃϸ¢¤ª¤è¤ÓÄê´üž¡¹¼ÚÃϸ¢¤ÎÂоÝÌÌÀÑ¡§12,200.02Ö¡Ë
·úÃÛÌÌÀÑ¡§5,340.88Ö
±ä¾²ÌÌÀÑ¡§71,594.63Ö
·úÃۼ硦Çä¼ç¡§»°°æÉÔÆ°»º¥ì¥¸¥Ç¥ó¥·¥ã¥ë¡¢Ìî¼ÉÔÆ°»º¡¢»°É©ÃϽê¥ì¥¸¥Ç¥ó¥¹
Àß·×¼Ô¡§Ä¹Ã«¹©¥³¡¼¥Ý¥ì¡¼¥·¥ç¥ó¡¢
»Ü¹©¼Ô¡§Ä¹Ã«¹©¥³¡¼¥Ý¥ì¡¼¥·¥ç¥ó
¹©´ü¡§2023ǯ9·î29ÆüÃ幩¡Á2026ǯ12·î²¼½Ü½×¹©Í½Äê
Æþµï¡§2027ǯ3·î²¼½ÜͽÄê
Äê´ü¼ÚÃϸ¢¡§2100ǯ11·î14Æü¤Þ¤Ç
½Ðŵ
¢§¸ø¼°HP¡§¥ê¡¼¥Õ¥·¥Æ¥£»ÔÀî ¥¶¡¦¥¿¥ï¡¼
https://www.31ichikawa.com/shinchiku/G2004001/
¢§Ìî¼ÉÔÆ°»º¡§¥×¥ì¥¹¥ê¥ê¡¼¥¹¡Ê2023ǯ11·î15Æü¡Ë
Á´ÂÎÉßÃÏÌÌÀÑÌó3.8ha¡¢¶¦Æ±½»Âð¡Êʬ¾ù¡¦ÄÂÂߡˡ¢¾¦¶È»ÜÀßÅù¤È¤ÎÂ絬ÌÏÊ£¹ç³«È¯¡¡Âè7ÃÆ ·ò¹¯Áý¿Ê·¿¡¦ÄÂÂߥ·¥Ë¥¢¥ì¥¸¥Ç¥ó¥¹¡Ö¥ª¥¦¥«¥¹»ÔÀî¡× Ã幩¡¡ÀéÍÕ¸©ÆâÅö¼ÒºÇÂ絬ÌÏ¡¦Áí¸Í¿ô181¸Í¡¢2025ǯ½©³«¶ÈͽÄê
¢§µþÍÕ¥¬¥¹¡§¥×¥ì¥¹¥ê¥ê¡¼¥¹¡Ê2023ǯ10·î2Æü¡Ë
¡Ö¡Ê²¾¾Î¡ËÀéÍÕ¸©»ÔÀî»Ô»ÔÀîÆîÆóÃúÌܡʵþÍÕ¥¬¥¹»ÔÀ¾ìÀ×Ãϡ˷ײ趦Ʊ½»Âð¡ÊÄÂÂߡˡ¦Ãϰè¹×¸¥»ÜÀß¡×Ã幩¤Î¤ªÃΤ餻
¢§µþÍÕ¥¬¥¹¡§¥×¥ì¥¹¥ê¥ê¡¼¥¹¡Ê2022ǯ6·î24Æü¡Ë
µþÍÕ¥¬¥¹»ÔÀ¾ìÀ×Ãϳ«È¯»ö¶È¤Ë´Ø¤¹¤ë¤ªÃΤ餻
- ¥«¥Æ¥´¥ê
- »ÔÀî»Ô







