
³°´Ñ´°À®Í½ÁÛCG[½Ðŵ¡§¸ø¼°HP]
¡¡Âçºå¤ÎËÜÄ®±Ø¤È¿´ºØ¶¶±Ø¤ÎÃæ´ÖÃÏÅÀ¤Ç·úÀßÃæ¤Î¥¿¥ï¡¼¥Þ¥ó¥·¥ç¥ó¡Ö¥¶¡¦¥Ñ¡¼¥¯¥Ï¥¦¥¹¿´ºØ¶¶¥¿¥ï¡¼¡×(ÃϾå35³¬¡¢¹â¤µ125.50m)¤Î´°À®Í½ÁۿޤǤ¹¡£»°É©ÃϽê¥ì¥¸¥Ç¥ó¥¹Ã±ÆÈÇä¼ç¤ÎÁí¸Í¿ô222¸Í¤Îʬ¾ù¤Î¥¿¥ï¡¼¥Þ¥ó¥·¥ç¥ó¤Ç¡¢¸æÆ²¶Ú¤«¤é¾¯¤·Åì¦¤ØÆþ¤Ã¤¿¾ì½ê¤¬·úÀßÃϤȤʤäƤ¤¤Þ¤¹¡£¤³¤Îµ»ö¤Ç¤ÏƱ¥¿¥ï¥Þ¥ó¤Î³µÍפä·úÀß¾õ¶·¡Ê2024ǯ12·î15Æü»þÅÀ¡Ë¡¢ÃÏ¿ÞÅù¤òºÜ¤»¤Æ¤¤¤Þ¤¹¡£
¥¶¡¦¥Ñ¡¼¥¯¥Ï¥¦¥¹¿´ºØ¶¶¥¿¥ï¡¼¤Ë¤Ä¤¤¤Æ

³°´Ñ´°À®Í½ÁÛCG[½Ðŵ¡§¸ø¼°HP]
¡¡¡Ö¥¶¡¦¥Ñ¡¼¥¯¥Ï¥¦¥¹¿´ºØ¶¶¥¿¥ï¡¼¡×¤ÏËÜÄ®±Ø¤È¿´ºØ¶¶±Ø¤ÎÃæ´ÖÃÏÅÀ¤Î¥¿¥ï¡¼¥Þ¥ó¥·¥ç¥ó¤Ç¡¢µ¬ÌϤÏÃϾå35³¬¡¢Ãϲ¼1³¬¡¢¹â¤µ125.50m¡¢ÉßÃÏÌÌÀÑ1,810.49Ö¡¢·úÃÛÌÌÀÑ951.15Ö¡¢±ä¾²ÌÌÀÑ2Ëü4890.61Ö¡¢·úÃۼ硦Çä¼ç¤Ï»°É©ÃϽê¥ì¥¸¥Ç¥ó¥¹¡¢Àß·×¼Ô¤ÏÆü´ëÀ߷פȹãÃÓÁÈ¡¢»Ü¹©¼Ô¤Ï¹ãÃÓÁȤÇ2026ǯ9·î¾å½Ü½×¹©¡¢2026ǯ12·îÃæ½Ü¤ÎÆþµïͽÄê¤È¤Ê¤Ã¤Æ¤¤¤Þ¤¹¡£
¡¡4³¬¡Á25³¬¤¬¥°¥ì¥¤¥¹¥Õ¥í¥¢¡¢26³¬¡Á33³¬¤¬¥í¥¤¥ä¥ë¥Õ¥í¥¢¡¢¤½¤·¤Æ34³¬¡¦35³¬¤¬¥×¥ì¥ß¥¢¥à¥Õ¥í¥¢¤È¤Ê¤Ã¤Æ¤ª¤ê¡¢30³¬¡¦31³¬¤Ë¥Ó¥å¡¼¥é¥¦¥ó¥¸¡¢30³¬¤Ë¥²¥¹¥È¥ë¡¼¥à¤¬ÇÛÃÖ¤µ¤ì¤Þ¤¹¡£

³°´Ñ´°À®Í½ÁÛCG[½Ðŵ¡§¸ø¼°HP]
¡¡Âè1´ü2¼¡¤ÎÈÎÇä²ñͽÄê¤Ï2025ǯ2·î²¼½Ü¤Ç¡¢º£¸å¤ÎÈÎÇäͽÄê´Ö¼è¤ê¤Ï1LDK¡Á3LDK¡¢ÀìÍÌÌÀѤÏ42.77Ö¡Á151.33֡ʸÄÊÌÂðÇۥܥ寥¹ÌÌÀÑ0.67Ö¡Á2.98Ö´Þ¤à¡Ë¡¢¥Ð¥ë¥³¥Ë¡¼ÌÌÀѤÏ4.14Ö¡Á14.84֤ȤʤäƤ¤¤Þ¤¹¡£

ÉßÃÏÇÛÃÖ¥¤¥á¡¼¥¸¥¤¥é¥¹¥È[½Ðŵ¡§¸ø¼°HP]
¡¡ÉßÃÏ¤ÏÆî¦¤ÈÅ즤¬ÀÜÆ»¤¹¤ë³ÑÃϤȤʤäƤª¤ê¡¢³Æ¿ôÃͤξì½ê¤Ï°Ê²¼¤Î¤è¤¦¤Ë¤Ê¤Ã¤Æ¤¤¤Þ¤¹¡£
1¡§¥¨¥ó¥È¥é¥ó¥¹
2¡§¥¨¥ó¥È¥é¥ó¥¹¥Û¡¼¥ë
3¡§¥³¥ó¥·¥§¥ë¥¸¥å¥«¥¦¥ó¥¿¡¼
4¡§¼Ö´ó¤»
5¡§¥µ¥Ö¥¨¥ó¥È¥é¥ó¥¹
6¡§¥¿¥ï¡¼¥Ñ¡¼¥¥ó¥°¡Ê90Âæ¡Ë
7¡§¼«Å¾¼ÖÃÖ¾ì¡Ê444Âæ¡Ë
8¡§¥Ð¥¤¥¯¡¦¥ß¥Ë¥Ð¥¤¥¯ÃÖ¾ì¡Ê¥Ð¥¤¥¯5Âæ¡¢¥ß¥Ë¥Ð¥¤¥¯41Âæ¡Ë
9¡§¼«Å¾¼ÖÍÑ¥¨¥ì¥Ù¡¼¥¿¡¼
10¡§¥×¥ì¥¤¥í¥Ã¥È

¼Ö´ó¤»´°À®Í½ÁÛCG[½Ðŵ¡§¸ø¼°HP]
¡¡¼Ö´ó¤»¤Î´°À®Í½ÁۿޤǤ¹¡£Æ±¾è¼Ô¤ä²Ùʪ¤ò²¼¤í¤·¤¿¸å¤Ë¥¿¥ï¡¼¥Ñ¡¼¥¥ó¥°¤Ë¹Ô¤±¤ëưÀþ¤È¤Ê¤Ã¤Æ¤ª¤ê¡¢½Ð¸Ë¤Ê¤É¤ÎÂԤĶõÄ´ÉÕ¤¤ÎÂԹ缼¤âÀßÃÖ¤µ¤ì¤Þ¤¹¡£

¥¨¥ó¥È¥é¥ó¥¹´°À®Í½ÁÛCG[½Ðŵ¡§¸ø¼°HP]
¡¡Æî¦¤ËÇÛÃÖ¤µ¤ì¤ë¥¨¥ó¥È¥é¥ó¥¹¤Î´°À®Í½ÁۿޤǤ¹¡£»°ÁØÀÐÀѤߤΥ¢¥×¥í¡¼¥Á¤ò¶´¤ó¤Çº¸±¦¤Ë¥·¥ó¥Ü¥ë¥Ä¥ê¡¼¤òÇÛ¿¢¤µ¤ì¤Þ¤¹¡£

¥¨¥ó¥È¥é¥ó¥¹¥Û¡¼¥ë´°À®Í½ÁÛCG[½Ðŵ¡§¸ø¼°HP]
¡¡¥¨¥ó¥È¥é¥ó¥¹¥Û¡¼¥ë¤ÏÅ·Á³ÀФˤè¤ë¿áÈ´¤±¤Î¶õ´Ö¤Ë¤Ê¤ê¤Þ¤¹¡£

¥Ó¥å¡¼¥é¥¦¥ó¥¸´°À®Í½ÁÛCG[½Ðŵ¡§¸ø¼°HP]
¡¡30³¬¤Ë¤Ï¶¦ÍÑ»ÜÀߤȤ·¤Æ2ÁØ¿á¤È´¤±¤Î¥Ó¥å¡¼¥é¥¦¥ó¥¸¤¬ÀßÃÖ¤µ¤ì¤Þ¤¹¡£

¥Ó¥å¡¼¥é¥¦¥ó¥¸´°À®Í½ÁÛCG[½Ðŵ¡§¸ø¼°HP]
¡¡31³¬Éôʬ¤Î¥Ó¥å¡¼¥é¥¦¥ó¥¸¤«¤é¤ÏÇßÅÄÊýÌ̤ò˾¤à¤³¤È¤¬¤Ç¤¤Þ¤¹¡£

¥²¥¹¥È¥ë¡¼¥à´°À®Í½ÁÛCG[½Ðŵ¡§¸ø¼°HP]
¡¡30³¬¤Ë¤Ï¥Ó¥å¡¼¥Ð¥¹¤Î¤¢¤ë2Ì̳«¸ý¤Î¥²¥¹¥È¥ë¡¼¥à¤¬ÇÛÃÖ¤µ¤ì¤Þ¤¹¡£
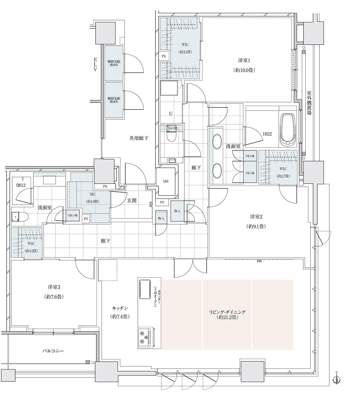
´Ö¼è¤ê¿Þ

G-42A¥¿¥¤¥×[½Ðŵ¡§¸ø¼°HP]
¡¡G-42A¥¿¥¤¥×¤Î´Ö¼è¤ê¿Þ¤Ç¤¹¡£´Ö¼è¤ê¤Ï1LDK¡¢ÀìÍÌÌÀѤÏ42.77֡ʸÄÊÌÂðÇۥܥ寥¹0.67Ö¡Ë¡¢¥Ð¥ë¥³¥Ë¡¼ÌÌÀÑ11.15֤ȤʤäƤ¤¤Þ¤¹¡£

G-58E¥¿¥¤¥×[½Ðŵ¡§¸ø¼°HP]
¡¡G-58E¥¿¥¤¥×¤Î´Ö¼è¤ê¿Þ¤Ç¤¹¡£´Ö¼è¤ê¤Ï2LDK¡¢ÀìÍÌÌÀѤÏ58.06֡ʸÄÊÌÂðÇۥܥ寥¹0.85Ö¡Ë¡¢¥Ð¥ë¥³¥Ë¡¼ÌÌÀÑ5.07Ö¡¢¼¼³°µ¡ÃÖ¾ìÌÌÀÑ2.05֤ȤʤäƤ¤¤Þ¤¹¡£

P-151D¥¿¥¤¥×[½Ðŵ¡§¸ø¼°HP]
¡¡P-151D¥¿¥¤¥×¤Î´Ö¼è¤ê¿Þ¤Ç¤¹¡£´Ö¼è¤ê¤Ï3LDK+3WIC+SIC¡¢ÀìÍÌÌÀѤÏ151.33֡ʸÄÊÌÂðÇۥܥ寥¹2.98Ö¡Ë¡¢¥Ð¥ë¥³¥Ë¡¼ÌÌÀÑ6.76Ö¡¢¼¼³°µ¡ÃÖ¾ìÌÌÀÑ4.48֤ȤʤäƤ¤¤Þ¤¹¡£
°ÌÃÖ¿Þ

°ÌÃÖ¿Þ[½Ðŵ¡§¸ø¼°HP]
¡¡·úÀßÃϤÏËÜÄ®±Ø¤È¿´ºØ¶¶±Ø¤ÎÃæ´ÖÃÏÅÀ¤Çξ±Ø¤«¤éÅÌÊâ6ʬ¤Îµ÷Î¥¤Ç¡¢Ê£¿ôÏ©Àþ¡¦±Ø¤¬ÍøÍѲÄǽ¤ÊΩÃϤȤʤäƤ¤¤Þ¤¹¡£¤Þ¤¿¡¢¸æÆ²¶Ú¤«¤é¤Ï¾¯¤·Ãæ¤ËÆþ¤Ã¤¿¾ì½ê¤Î¤¿¤á¡¢¸òÄÌÎ̤Ϥ½¤ì¤Û¤É¿¤¯¤¢¤ê¤Þ¤»¤ó¤¬¡¢¿ÍÄ̤ê¤Ï¿¤¤¾ì½ê¤È¤Ê¤Ã¤Æ¤¤¤Þ¤¹¡£
·úÀß¾õ¶·

¡¡2024ǯ12·î15Æü¤ËÆîÀ¾Â¦¤«¤é»£±Æ¤·¤¿¡Ö¥¶¡¦¥Ñ¡¼¥¯¥Ï¥¦¥¹¿´ºØ¶¶¥¿¥ï¡¼¡×(ÃϾå35³¬¡¢¹â¤µ125.50m)¤Î·úÀßÃϤǤ¹¡£ÃϾåÉô¤Î·úÀߤ¬»Ï¤Þ¤Ã¤Æ¤¤¤Þ¤·¤¿¡£

¡¡ÆîÅ즤«¤é»£±Æ¡£¥¿¥ï¡¼¥¯¥ì¡¼¥ó1´ð¤Ç·úÀßÃæ¤Ç¤¹¡£

¡¡ËÌÅ즤«¤é»£±Æ¡£¤³¤Á¤é¤ÎË̦¤Ë¼Ö´ó¤»¤ä¥¿¥ï¡¼¥Ñ¡¼¥¥ó¥°¤¬ÇÛÃÖ¤µ¤ì¤Þ¤¹¡£
ÃÏ¿Þ
ʪ·ï³µÍ×

¡¡·úÃ۷ײè¤Î³µÍפǤ¹¡£
¢£Êª·ï³µÍ×¢£
̾¾Î¡§¥¶¡¦¥Ñ¡¼¥¯¥Ï¥¦¥¹¿´ºØ¶¶¥¿¥ï¡¼
»ö¶È̾¡§(²¾¾Î)Âçºå»ÔÃæ±û¶èÇîϫĮ£³ÃúÌܷײè
½êºßÃÏ¡§ÂçºåÉÜÂçºå»ÔÃæ±û¶èÇîϫĮ£³ÃúÌÜ1ÈÖ¡¢Æîµ×Êõ»ûÄ®£³ÃúÌÜ53ÈÖ5¡ÊÃÏÈÖ¡Ë
¸òÄÌ¡§Âçºå¥á¥È¥í¸æÆ²¶ÚÀþ¡¢Ä¹ËÙÄḫÎÐÃÏÀþ¡Ö¿´ºØ¶¶¡×±Ø ÅÌÊâ6ʬ
¡¡¡¡¡¡Âçºå¥á¥È¥í¸æÆ²¶ÚÀþ¡¢Ãæ±ûÀþ¡¢»Í¤Ä¶¶Àþ¡ÖËÜÄ®¡×±Ø ÅÌÊâ6ʬ
¡¡¡¡¡¡Âçºå¥á¥È¥íºæ¶ÚÀþ¡¢Ä¹ËÙÄḫÎÐÃÏÀþ¡ÖĹËÙ¶¶¡×±Ø ÅÌÊâ9ʬ
ÍÑÅÓ¡§¶¦Æ±½»Âð
Áí¸Í¿ô¡§222¸Í
³¬¿ô¡§ÃϾå35³¬¡¢Ãϲ¼1³¬
¹â¤µ¡§125.50m
¹½Â¤¡§Å´¶Ú¥³¥ó¥¯¥ê¡¼¥È¤¡¢°ìÉôÅ´¹ü¤
ÉßÃÏÌÌÀÑ¡§1,810.49Ö
·úÃÛÌÌÀÑ¡§951.15Ö
±ä¾²ÌÌÀÑ¡§24,890.61Ö
·úÃۼ硧»°É©ÃϽê¥ì¥¸¥Ç¥ó¥¹
Àß·×¼Ô¡§Æü´ëÀ߷ס¢¹ãÃÓÁÈ
»Ü¹©¼Ô¡§¹ãÃÓÁÈ
¹©´ü¡§2023ǯ9·î¾å½ÜÃ幩¡Á2026ǯ9·î¾å½Ü½×¹©Í½Äê
Æþµï¡§2026ǯ12·îÃæ½ÜͽÄê
½Ðŵ
¢§¸ø¼°HP¡§¥¶¡¦¥Ñ¡¼¥¯¥Ï¥¦¥¹ ¿´ºØ¶¶¥¿¥ï¡¼
https://www.mecsumai.com/tph-shinsaibashi-tower/
PR

¡÷´ØÀ¾¿Í¤µ¤ó¤ÎÃø½ñ¡ØÆüËܤΥӥë¥Ù¥¹¥È100¡Ù¤Î²þÄûÈÇ
¡ØÆüËܤΥӥë¥Ù¥¹¥È111¡Ù
¤¬È¯Çä¤Ë¤Ê¤ê¤Þ¤·¤¿¡ª
¥Ù¥¹¥È100¤Ç¤Ï¼Ì¿¿Ä󶡤À¤±¤Ç¤·¤¿¤¬¡¢¥Ù¥¹¥È111¤Ç¤Ï¶¦Ãø¼Ô¤ËÁª¤ó¤Çĺ¤
¤¤¤¯¤Ä¤«¤Î¥Ó¥ë¤ÎËÜʸ¤âôÅö¤·¤Æ¤¤¤Þ¤¹¡£
Â礤ʽñŹ¤Ë¤ÏÃÖ¤¤¤Æ¤¢¤ë¤È»×¤¦¤Î¤ÇÀ§È󸫤Ƥ¯¤À¤µ¤¤¡£
¤è¤í¤·¤¯¤ª´ê¤¤Ãפ·¤Þ¤¹¡ª
- ¥«¥Æ¥´¥ê
- Âçºå»Ô







