
¡¡Âçºå¤ÎƲÅçÀî¤ËÌ̤·¤¿Äê¼Úʬ¾ù¥¿¥ï¥Þ¥ó¡Ö¥·¥¨¥ê¥¢¥¿¥ï¡¼ÃæÇ·Åç¡×(ÃϾå46³¬¡¢¹â¤µ168m)¤Ç¤¹¡£2024ǯ12·î15Æü¤Ë»£±Æ¤·¤Þ¤·¤¿¡£ÃæÇ·Å硦ÇßÅĤγ¹¤¬ÌܤÎÁ°¤Ë¹¤¬¤ë¥¿¥ï¡¼¥Þ¥ó¥·¥ç¥ó¤Ç¡¢Å즤ˤÏƲÅçÀ°ìľÀþ¤Ë¿¤Ó¤Þ¤¹¡£¤³¤Îµ»ö¤Ç¤ÏƱ¥¿¥ï¥Þ¥ó¤Î³µÍפä·úÀß¾õ¶·¡¢ÃÏ¿ÞÅù¤òºÜ¤»¤Æ¤¤¤Þ¤¹¡£
¥·¥¨¥ê¥¢¥¿¥ï¡¼ÃæÇ·Åç¤Ë¤Ä¤¤¤Æ

³°´Ñ´°À®Í½ÁÛCG[½Ðŵ¡§¸ø¼°HP]
¡¡¡Ö¥·¥¨¥ê¥¢¥¿¥ï¡¼ÃæÇ·Åç¡×¤ÏÄê´ü¼ÚÃϸ¢ÉÕ¤¤Îʬ¾ù¤Î¥¿¥ï¡¼¥Þ¥ó¥·¥ç¥ó¤Ç¡¢µ¬ÌϤÏÃϾå46³¬¡¢¹â¤µ168.00m¡¢ÉßÃÏÌÌÀÑ2,972.83Ö¡¢·úÃÛÌÌÀÑ1,462.23Ö¡¢±ä¾²ÌÌÀÑ4Ëü6721.95֤ȤʤäƤ¤¤Þ¤¹¡£
¡¡Çä¼ç¤Ï´ØÅÅÉÔÆ°»º³«È¯¡¢Àß·×¼Ô¤ÏIAOÃÝÅÄÀ߷פÈÂçÎÓÁÈ¡¢»Ü¹©¼Ô¤ÏÂçÎÓÁȤÇ2025ǯ12·î½×¹©¡¢2026ǯ3·î¤ÎÆþµï³«»ÏͽÄê¤Ç¤¹¡£¤Þ¤¿¡¢²òÂι©»ö´ü´Ö´Þ¤à¼ÚÃÏ´ü´Ö¤Ï2098ǯ2·î28Æü¤Þ¤Ç¤È¤Ê¤Ã¤Æ¤¤¤Þ¤¹¡£

³°´Ñ´°À®Í½ÁÛCG[½Ðŵ¡§¸ø¼°HP]
¡¡Áí¸Í¿ô¤Ï364¸Í¤ÇÂè1´ü¤ËÈÎÇ䤷¤¿176¸Í¤Ï¡¢ÀìÍÌÌÀÑ55Ö¡Á168.43Ö¡¢ÈÎÇä²Á³Ê¤Ï5199Ëü±ß¡Á4²¯3999Ëü±ß¡¢ºÇ¹âÇÜΨ¤Ï11ÇÜ¡¢Ê¿¶ÑÈÎÇä²Á³Ê¤Ï1²¯1287Ëü±ß¤Ç¤·¤¿¡£¸½ºß¤ÏÂè3´ü¤ÎÈÎÇä¤Þ¤Ç´°Î»¤·¤Æ¤ª¤ê¡¢Âè4´ü¤Ï2025ǯ3·î¾å½Ü¤«¤éÈÎÇ䳫»ÏͽÄê¤È¤Ê¤Ã¤Æ¤¤¤Þ¤¹¡£
¡¡Âè4´ü°Ê¹ß¤Îʬ¾ù¸Í¿ô¤Ï38¸Í¤Ç¡¢´Ö¼è¤ê¤Ï1LDK¡Á4LDK¡¢ÀìÍÌÌÀѤÏ45.98Ö¡Á93.40Ö¡¢¥Ð¥ë¥³¥Ë¡¼ÌÌÀÑ4.17Ö¡Á13.56Ö¡¢¥µ¡¼¥Ó¥¹¥Ð¥ë¥³¥Ë¡¼ÌÌÀÑ2.43Ö¡Á8.82֤ȤʤäƤ¤¤Þ¤¹¡£

¥¢¥¯¥¢¥¨¥ó¥È¥é¥ó¥¹´°À®Í½ÁÛ¿Þ[½Ðŵ¡§¸ø¼°HP]
¡¡¥¨¥ó¥È¥é¥ó¥¹¤ÏÃæÇ·Åç¤Î¸¶É÷·Ê¤ò¥â¥Á¡¼¥Õ¤È¤·¡¢Æ²ÅçÀî¤Î¿åÌ̤Τæ¤é¤®¤ÈÍÛ¸÷¤Î¤¤é¤á¤¤¬É½¸½¤µ¤ì¤Þ¤¹¡£

¥°¥é¥ó¥É¥¨¥ó¥È¥é¥ó¥¹´°À®Í½ÁÛ¿Þ[½Ðŵ¡§¸ø¼°HP]
¡¡¥°¥é¥ó¥É¥¨¥ó¥È¥é¥ó¥¹¤ÏÌó9m¤Î¿áÈ´¤±¤¬¤¢¤ë¶õ´Ö¤Ë¤Ê¤ê¤Þ¤¹¡£

¥ê¥Ð¡¼¥µ¥¤¥É¥é¥¦¥ó¥¸´°À®Í½ÁÛ¿Þ[½Ðŵ¡§¸ø¼°HP]
¡¡Æ²ÅçÀî¤ËÌ̤·¤¿3³¬¤Ë¤Ï2ÁØ¿á¤È´¤±¤Î¥ê¥Ð¡¼¥µ¥¤¥É¥é¥¦¥ó¥¸¤¬ÀßÃÖ¤µ¤ì¤Þ¤¹¡£

¥ê¥Ð¡¼¥µ¥¤¥É¥é¥¦¥ó¥¸´°À®Í½ÁÛ¿Þ[½Ðŵ¡§¸ø¼°HP]
¡¡¡Ö¥·¥¨¥ê¥¢¥¿¥ï¡¼ÃæÇ·Åç¡×¤ÈƲÅçÀî¤Î´Ö¤Ë¤Ïƻϩ¤¬¤¢¤ê¤Þ¤¹¤¬¡¢¥ê¥Ð¡¼¥µ¥¤¥É¥é¥¦¥ó¥¸¤Ï¤½¤Îƻϩ¤¬¤¢¤ë¤³¤È¤ò´¶¤¸¤µ¤»¤Ê¤¤¶õ´Ö¤Ë¤Ê¤ê¤Þ¤¹¡£

¥²¥¹¥È¥ë¡¼¥à¡Á¥ê¥å¥¯¥¹¡Á´°À®Í½ÁÛ¿Þ[½Ðŵ¡§¸ø¼°HP]
¡¡3³¬¤Ë¤Ï¥²¥¹¥È¥ë¡¼¥à¤¬2Éô²°ÍѰդµ¤ì¤Þ¤¹¡£Æ±¤¸3³¬¤Ë¤Ï¶¦ÍÑ»ÜÀߤȤ·¤Æ¥Õ¥£¥Ã¥È¥Í¥¹¥¹¥¿¥¸¥ª¤ä¥³¥ï¡¼¥¥ó¥°¥ë¡¼¥à¤âÇÛÃÖ¤µ¤ì¤Þ¤¹¡£

¥Ñ¡¼¥Æ¥£¥µ¥í¥ó´°À®Í½ÁÛ¿Þ[½Ðŵ¡§¸ø¼°HP]
¡¡¹âÁس¬¤Î¶¦ÍÑ»ÜÀߤȤ·¤Æ38³¬¤ÎË̦¤Ë¤Ï¥Ñ¡¼¥Æ¥£¥ë¡¼¥à¤¬ÇÛÃÖ¤µ¤ì¤Þ¤¹¡£

¥¹¥«¥¤¥é¥¦¥ó¥¸´°À®Í½ÁÛ¿Þ[½Ðŵ¡§¸ø¼°HP]
¡¡Æ±¤¸38¡Á39³¬¤ÎËÌÅ즤ˤϥ¹¥«¥¤¥é¥¦¥ó¥¸¤¬ÇÛÃÖ¤µ¤ì¤Þ¤¹¡£

¥¹¥«¥¤¥é¥¦¥ó¥¸´°À®Í½ÁÛ¿Þ[½Ðŵ¡§¸ø¼°HP]
¡¡¥¹¥«¥¤¥é¥¦¥ó¥¸¤«¤é¤Ï¥°¥é¥ó¥°¥ê¡¼¥óÂçºå¤äÍäÀî¤Î²Ö²Ð¤â¸«ÅϤ»¤ë¾ì½ê¤Ë¤Ê¤ê¤Þ¤¹¡£
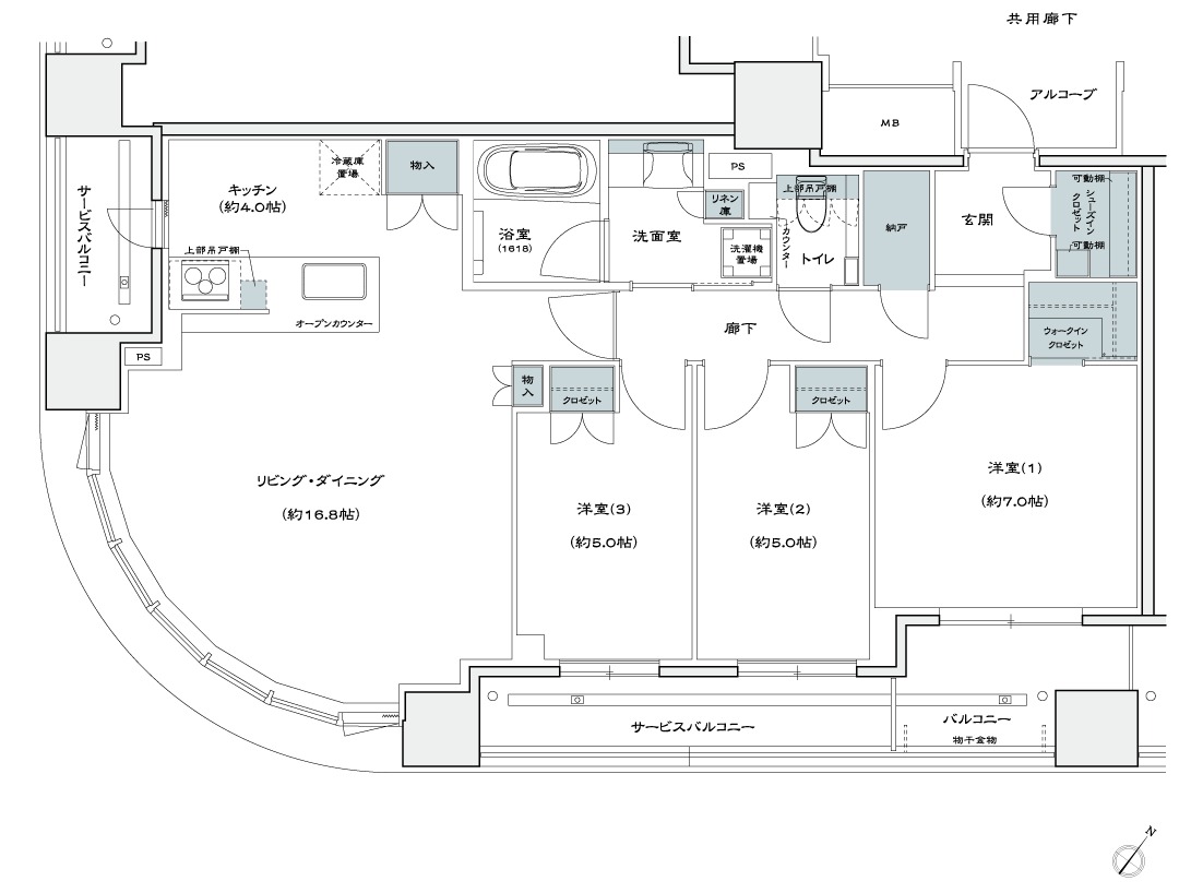
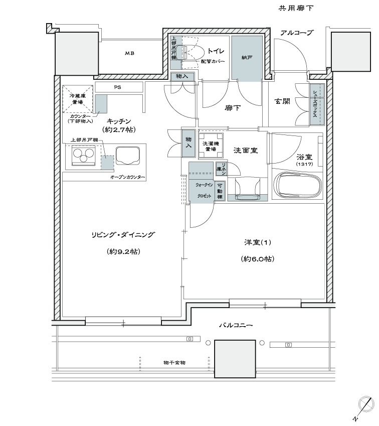
´Ö¼è¤ê¿Þ

H¥¿¥¤¥×[½Ðŵ¡§¸ø¼°HP]
¡¡H¥¿¥¤¥×¤Î´Ö¼è¤ê¿Þ¤Ç¤¹¡£´Ö¼è¤ê¤Ï1LDK¡¢ÀìÍÌÌÀѤÏ45.98Ö¡¢¥Ð¥ë¥³¥Ë¡¼ÌÌÀѤÏ10.29Ö¡¢¥¢¥ë¥³¡¼¥×ÌÌÀѤÏ1.86֤ȤʤäƤ¤¤Þ¤¹¡£

P¥¿¥¤¥×[½Ðŵ¡§¸ø¼°HP]
¡¡P¥¿¥¤¥×¤Î´Ö¼è¤ê¿Þ¤Ç¤¹¡£´Ö¼è¤ê¤Ï2LDK¡¢ÀìÍÌÌÀѤÏ65.01Ö¡¢¥Ð¥ë¥³¥Ë¡¼ÌÌÀѤÏ10.67Ö¡¢¥µ¡¼¥Ó¥¹¥Ð¥ë¥³¥Ë¡¼ÌÌÀѤÏ2.92Ö¡¢¥¢¥ë¥³¡¼¥×ÌÌÀѤÏ2.10֤ȤʤäƤ¤¤Þ¤¹¡£

B¥¿¥¤¥×[½Ðŵ¡§¸ø¼°HP]
¡¡B¥¿¥¤¥×¤Î´Ö¼è¤ê¿Þ¤Ç¤¹¡£´Ö¼è¤ê¤Ï3LDK¡¢ÀìÍÌÌÀѤÏ86.94Ö¡¢¥Ð¥ë¥³¥Ë¡¼ÌÌÀѤÏ5.04Ö¡¢¥µ¡¼¥Ó¥¹¥Ð¥ë¥³¥Ë¡¼ÌÌÀѤÏ8.82Ö¡¢¥¢¥ë¥³¡¼¥×ÌÌÀѤÏ2.42֤ȤʤäƤ¤¤Þ¤¹¡£

L¥¿¥¤¥×[½Ðŵ¡§¸ø¼°HP]
¡¡L¥¿¥¤¥×¤Î´Ö¼è¤ê¿Þ¤Ç¤¹¡£´Ö¼è¤ê¤Ï4LDK¡¢ÀìÍÌÌÀѤÏ93.40Ö¡¢¥Ð¥ë¥³¥Ë¡¼ÌÌÀѤÏ5.58Ö¡¢¥µ¡¼¥Ó¥¹¥Ð¥ë¥³¥Ë¡¼ÌÌÀѤÏ5.48Ö¡¢¥¢¥ë¥³¡¼¥×ÌÌÀѤÏ2.29֤ȤʤäƤ¤¤Þ¤¹¡£
°ÌÃÖ¿Þ

°ÌÃÖ¿Þ[½Ðŵ¡§¸ø¼°HP]
¡¡·úÀßÃÏ¤ÏÆ²ÅçÀî¤ËÌ̤·¤¿¾ì½ê¤Ç¡¢Ë̦¤Ë¤¢¤ëJRÅìÀ¾Àþ¡Ö¿·Ê¡Åç¡×±Ø¤«¤é¤ÏÅÌÊâ4ʬ¡¢ºå¿ÀËÜÀþ¡ÖÊ¡Åç¡×±Ø¤«¤é¤ÏÅÌÊâ5ʬ¡¢JR´Ä¾õÀþ¡ÖÊ¡Åç¡×±Ø¤«¤éÅÌÊâ7ʬ¤Îµ÷Î¥¤Ç¡¢Æî¦¤Ë¤¢¤ëµþºåÅżÖÃæÇ·ÅçÀþ¡ÖÃæÇ·Åç¡×±Ø¤«¤é¤ÏÅÌÊâ5ʬ¤È¤Ê¤Ã¤Æ¤¤¤Þ¤¹¡£¤Þ¤¿¡¢2031ǯ½Õ¤Ë¤Ï¤Ê¤Ë¤ï¶ÚÀþ¡Ö(²¾¾Î)ÃæÇ·Åç¡×±Ø¤¬³«¶ÈͽÄê¤È¤Ê¤Ã¤Æ¤ª¤ê¡¢Ê£¿ôÏ©Àþ¡¦±Ø¤¬»ÈÍѲÄǽ¤ÊΩÃϤȤʤäƤ¤¤Þ¤¹¡£
·úÀß¾õ¶·

¡¡2024ǯ12·î15Æü¤ËËÌÅ즤«¤é»£±Æ¤·¤¿¡Ö¥·¥¨¥ê¥¢¥¿¥ï¡¼ÃæÇ·Åç¡×(ÃϾå46³¬¡¢¹â¤µ168m)¤Ç¤¹¡£

¡¡46³¬·ú¤Æ¤Î¥¿¥ï¡¼¥Þ¥ó¥·¥ç¥ó¤È¤·¤Æ¤ÏºÙ¿È¤ÇÁí¸Í¿ô¤â364¸Í¤È¾¯¤ÊÌܤǤ¹¡£

¡¡Æ²ÅçÀî¤ÈƱ¥¿¥ï¥Þ¥ó¤Î´Ö¤òÄÌ¤ëÆ»Ï©¤«¤é»£±Æ¡£¤Á¤ç¤¦¤É¤³¤Î»£±Æ¾ì½ê¤ÎÇØ¸å¤Ë¤Ï¡¢Æ²ÅçÀî¤ÎÄéËɾå¤Ë¤¢¤ëÊ¡ÅçÉÍÎÐÆ»¤Ë·Ò¤¬¤ë³¬Ãʤ¬¤¢¤ê¤Þ¤¹¡£

¡¡Æ²ÅçÀî¤Ë²Í¤«¤ë¶¶¤«¤é»£±Æ¡£º¸ÎÙ¤ÎÇò¤¤¥¿¥ï¡¼¥Þ¥ó¥·¥ç¥ó¤Ï¡Ö¥¯¥ì¥ô¥£¥¢¥¿¥ï¡¼ÃæÇ·Åç¡×(ÃϾå36³¬¡¢¹â¤µ127.24m)¤Ç¤¹¡£

¡¡¡Ö¥·¥¨¥ê¥¢¥¿¥ï¡¼ÃæÇ·Åç¡×¤Ï9·î¤Î±óÀ¬»þ¤Ë»£¤Ã¤Æ¤¤¤ë¤Î¤Ç¡¢º£²ó¤Ï¥Ñ¥¹¤¹¤ëͽÄê¤Ç¤·¤¿¤¬¡Ä¥é¥Ð¡¼¥À¥Ã¥°¤¬¤¤¤¿¤Î¤Çº£²ó¤â»£¤ê¤ËÍè¤Þ¤·¤¿¡£

¡¡¤Á¤Ê¤ß¤Ë¤½¤ó¤Ê´ó¤êÆ»¤ò¤·¤Æ¤¤¤¿¤¿¤á¡¢Í½Äꤷ¤Æ¤¤¤¿¾ì½ê¤Î²¿¥õ½ê¤«¤Ï»£¤ê¤Ë¹Ô¤¯»þ´Ö¤¬¤¢¤ê¤Þ¤»¤ó¤Ç¤·¤¿¡Ä

¡¡¡ÖÂçºåƲÅçÉÍ¥¿¥ï¡¼¡×(ÃϾå32³¬¡¢¹â¤µ147m)¤Î16³¬¤Ë¤¢¤ë̵ÎÁ³«Êü¤µ¤ì¤Æ¤¤¤ë¥¦¥Ã¥É¥Ç¥Ã¥¥Æ¥é¥¹¡ÖWowUs¡Ê¥ï¥ª¥¢¥¹¡Ë¡×¤«¤é»£±Æ¡£

¡¡¡Ö¥·¥¨¥ê¥¢¥¿¥ï¡¼ÃæÇ·Åç¡×¤«¤é¤Ï¡¢¤³¤³¡ÖÂçºåƲÅçÉÍ¥¿¥ï¡¼¡×¤Þ¤ÇƲÅçÀ°ìľÀþ¤Ë¸«¤¨¤ë¤³¤È¤¬¤ï¤«¤ê¤Þ¤¹¡£

¡¡¥é¥Ð¡¼¥À¥Ã¥°¤¬¤¤¤ë¤Î¤Ï12·î25Æü¤Þ¤Ç¤Ç¤¹¡£
ÃÏ¿Þ
ʪ·ï³µÍ×

¡¡·úÃ۷ײè¤Î¤ªÃΤ餻¤Ç¤¹¡£
¢£Êª·ï³µÍ×¢£
̾¾Î¡§¥·¥¨¥ê¥¢¥¿¥ï¡¼ÃæÇ·Åç
»ö¶È̾¡§(²¾¾Î)Âçºå»ÔÊ¡Åç¶èÊ¡Åç2ÃúÌÜ¥×¥í¥¸¥§¥¯¥È
½êºßÃÏ¡§ÂçºåÉÜÂçºå»ÔÊ¡Åç¶èÊ¡ÅçÆóÃúÌÜ3ÈÖ2(ÃÏÈÖ)
¸òÄÌ¡§µþºåÅżÖÃæÇ·ÅçÀþ¡ÖÃæÇ·Åç¡×±Ø ÅÌÊâ5ʬ
¡¡¡¡¡¡ºå¿ÀËÜÀþ¡ÖÊ¡Åç¡×±Ø ÅÌÊâ5ʬ
¡¡¡¡¡¡JRÅìÀ¾Àþ¡Ö¿·Ê¡Åç¡×±Ø ÅÌÊâ4ʬ
¡¡¡¡¡¡JRÂçºå´Ä¾õÀþ¡ÖÊ¡Åç¡×±Ø ÅÌÊâ7ʬ
ÍÑÅÓ¡§¶¦Æ±½»Âð
Áí¸Í¿ô¡§364¸Í
³¬¿ô¡§ÃϾå46³¬
¹â¤µ¡§168.00m
¹½Â¤¡§Å´¶Ú¥³¥ó¥¯¥ê¡¼¥È¤(°ìÉôÅ´¹ü¤)
ÉßÃÏÌÌÀÑ¡§2,972.83Ö
·úÃÛÌÌÀÑ¡§1,462.23Ö
±ä¾²ÌÌÀÑ¡§46,721.95Ö
»ö¶È¼ç(Çä¼ç)¡§´ØÅÅÉÔÆ°»º³«È¯
Àß·×¼Ô¡§IAOÃÝÅÄÀ߷ס¢ÂçÎÓÁÈ
»Ü¹©¼Ô¡§ÂçÎÓÁÈ
¹©´ü¡§2023ǯ2·î1ÆüÃ幩¡Á2025ǯ12·î½×¹©Í½Äê
Æþµï¡§2026ǯ3·îͽÄê
¼ÚÃÏ´ü´Ö¡§2098ǯ2·î28Æü¤Þ¤Ç(²òÂι©»ö´ü´Ö´Þ¤à)
½Ðŵ
¢§¸ø¼°HP¡§¥·¥¨¥ê¥¢¥¿¥ï¡¼ÃæÇ·Åç
https://www.cielia.com/m/nakanoshima364/
¢§´ØÅÅÉÔÆ°»º³«È¯¡§¥Ë¥å¡¼¥¹¥ê¥ê¡¼¥¹¡Ê2023ǯ9·î25Æü¡Ë
ƲÅçÀî¤òÆî¤Ë˾¤à¡¢ÃϾå46³¬Ä¶¹âÁØ¥¿¥ï¡¼¡Ö¥·¥¨¥ê¥¢¥¿¥ï¡¼ÃæÇ·Åç¡×Âè1´üÈÎÇä157¸Í¿½¹þ¡£ºÇ¹â²Á³Ê4²¯3,999Ëü±ß¡£Ê¿¶Ñ²Á³Ê1²¯±ßĶ¡¢ºÇ¹âÇÜΨ11ÇÜ
PR

¡÷´ØÀ¾¿Í¤µ¤ó¤ÎÃø½ñ¡ØÆüËܤΥӥë¥Ù¥¹¥È100¡Ù¤Î²þÄûÈÇ
¡ØÆüËܤΥӥë¥Ù¥¹¥È111¡Ù
¤¬12·î25Æü¤ËȯÇ䤵¤ì¤Þ¤¹¡£
Á°ºî¤Ï¼Ì¿¿Ä󶡤·¤Æ¤¤¤Þ¤·¤¿¤¬¡¢º£ºî¤Ï¶¦Ãø¼Ô¤ËÁª¤ó¤Çĺ¤¤Þ¤·¤¿¡ª
Ëܺî¤â¤è¤í¤·¤¯¤ª´ê¤¤Ãפ·¤Þ¤¹¡ª
- ¥«¥Æ¥´¥ê
- Âçºå»Ô







