
¡¡ËëÄ¥¥Ù¥¤¥Ñ¡¼¥¯¤Ç·úÀßÃæ¤Î¥¿¥ï¡¼¥Þ¥ó¥·¥ç¥ó¡ÖËëÄ¥¥Ù¥¤¥Ñ¡¼¥¯ ¥é¥¤¥º¥²¡¼¥È¥¿¥ï¡¼¡×(ÃϾå38³¬¡¢ºÇ¹â¹â¤µ141.60m)¤Ç¤¹¡£2024ǯ12·î8Æü¤Ë»£±Æ¤·¤Þ¤·¤¿¡£¥·¥Ë¥¢¥ì¥¸¥Ç¥ó¥¹¤â´Þ¤á¤ë¤ÈËëÄ¥¥Ù¥¤¥Ñ¡¼¥¯¤Ç¤Ï5ÅïÌܤΥ¿¥ï¡¼¥Þ¥ó¥·¥ç¥ó¤È¤Ê¤Ã¤Æ¤¤¤Þ¤¹¡£¤³¤Îµ»ö¤Ç¤ÏƱ¥¿¥ï¥Þ¥ó¤Î³µÍפä·úÀß¾õ¶·¡¢ÃÏ¿ÞÅù¤òºÜ¤»¤Æ¤¤¤Þ¤¹¡£
ËëÄ¥¥Ù¥¤¥Ñ¡¼¥¯ ¥é¥¤¥º¥²¡¼¥È¥¿¥ï¡¼¤Ë¤Ä¤¤¤Æ

³°´Ñ´°À®Í½ÁÛCG[½Ðŵ¡§¸ø¼°HP]
¡¡¡ÖËëÄ¥¥Ù¥¤¥Ñ¡¼¥¯ ¥é¥¤¥º¥²¡¼¥È¥¿¥ï¡¼¡×¤Ï¡ÖËëÄ¥¥Ù¥¤¥Ñ¡¼¥¯¡×Æâ¤Ç·úÀßÃæ¤Î¥¿¥ï¡¼¥Þ¥ó¥·¥ç¥ó¤Ç¡¢µ¬ÌϤÏÃϾå38³¬¡¢¹â¤µ132.90m¡¢ºÇ¹â¹â¤µ141.60m¡¢ÉßÃÏÌÌÀÑ1Ëü7911.69Ö¡¢·úÃÛÌÌÀÑ6,950.11Ö¡¢±ä¾²ÌÌÀÑ8Ëü5023.00Ö¡¢Áí¸Í¿ô768¸Í¤È¤Ê¤Ã¤Æ¤¤¤Þ¤¹¡£·úÃÛ¼ç¤Ï»°°æÉÔÆ°»º¥ì¥¸¥Ç¥ó¥·¥ã¥ë¡¢Ìî¼ÉÔÆ°»º¡¢»°É©ÃϽê¥ì¥¸¥Ç¥ó¥¹¡¢°ËÆ£ÃéÅÔ»Ô³«È¯¡¢ÅìÊýÃϽꡢÉٻθ«ÃϽꡢµ¥ö±º¶½¶È¡¢À߷׼ԤȻܹ©¼Ô¤Ï·§Ã«ÁȤÇ2026ǯ2·î½×¹©¡¢2026ǯ3·î²¼½Ü¤ÎÆþµï³«»ÏͽÄê¤Ç¤¹¡£
¡¡2025ǯ2·îÃæ½Ü¤«¤é¤ÏÂè4´ü¤ÎÈÎÇ䳫»ÏͽÄê¤Ç¡¢4´ü°Ê¹ß¤ÎÁíÈÎÇä¸Í¿ô¤Ï330¸Í¡¢ÈÎÇä´Ö¼è¤ê¤Ï2LDK¡Á4LDK¡¢ÀìÍÌÌÀѤÏ63.14Ö¡Á98.96Ö¡¢¥Ð¥ë¥³¥Ë¡¼ÌÌÀѤÏ11.25Ö¡Á17.13֤ȤʤäƤ¤¤Þ¤¹¡£

³¹¶è´°À®Í½ÁÛCG[½Ðŵ¡§¸ø¼°HP]
¡¡¡ÖËëÄ¥¥Ù¥¤¥Ñ¡¼¥¯¡×¤Ç¤Ï¥é¥°¥Ó¡¼¥Ü¡¼¥ë¤Î¤è¤¦¤Ê·Á¤ò¤·¤¿¡Ö¼ãÍÕ3ÃúÌܸø±à¡×¤òÃæ¿´¤Ë¡¢¥·¥Ë¥¢¥ì¥¸¥Ç¥ó¥¹¤â´Þ¤á¤Æ6Åï¤Î¥¿¥ï¡¼¥Þ¥ó¥·¥ç¥ó¤¬·ú¤Áʤַײè¤È¤Ê¤Ã¤Æ¤ª¤ê¡¢Æ±¥¿¥ï¥Þ¥ó¤Ï¤³¤Î¿Þ¤Îº¸Ã¼¤Ë°ÌÃÖ¤·¤Æ¤¤¤Þ¤¹¡£
Âè1ÃÆ¡§ËëÄ¥¥Ù¥¤¥Ñ¡¼¥¯ ¥¯¥í¥¹¥¿¥ï¡¼¡ÊÃϾå37³¬¡¢¹â¤µ132.89m¡¢2018ǯ½×¹©¡Ë
Âè2ÃÆ¡§ËëÄ¥¥Ù¥¤¥Ñ¡¼¥¯ ¥¹¥«¥¤¥°¥é¥ó¥É¥¿¥ï¡¼¡ÊÃϾå48³¬¡¢¹â¤µ172.40m¡¢2020ǯ½×¹©¡Ë
Âè3ÃÆ¡§ËëÄ¥¥Ù¥¤¥Ñ¡¼¥¯ ¥ß¥Ã¥É¥¹¥¯¥¨¥¢¥¿¥ï¡¼¡ÊÃϾå43³¬¡¢¹â¤µ155.35m¡¢2023ǯ½×¹©¡Ë
Âè4ÃÆ¡§¥Ñ¡¼¥¯¥¦¥§¥ë¥¹¥Æ¥¤¥ÈËëÄ¥¥Ù¥¤¥Ñ¡¼¥¯¡ÊÃϾå28³¬¡¢¹â¤µ105.60m¡¢2024ǯ½×¹©¡Ë
Âè5ÃÆ¡§ËëÄ¥¥Ù¥¤¥Ñ¡¼¥¯ ¥é¥¤¥º¥²¡¼¥È¥¿¥ï¡¼¡ÊÃϾå38³¬¡¢¹â¤µ141.60m¡¢2026ǯ½×¹©Í½Äê¡Ë
Âè6ÃÆ¡§ËëÄ¥¿·ÅÔ¿´¼ãÍÕ½»ÂðÃ϶è·×²è(B-6³¹¶è)¡ÊÃϾå42³¬¡¢¹â¤µ159m¡¢2028ǯ½×¹©Í½Äê¡Ë

³¹¶è´°À®Í½ÁÛCG[½Ðŵ¡§¸ø¼°HP]
¡¡¡Ö¥Ñ¡¼¥¯¥¦¥§¥ë¥¹¥Æ¥¤¥ÈËëÄ¥¥Ù¥¤¥Ñ¡¼¥¯¡×ÊýÌ̤«¤é¸«¤¿³¤Â¦3Åï¤Î´°À®Í½ÁۿޤǤ¹¡£¡ÖËëÄ¥¥Ù¥¤¥Ñ¡¼¥¯ ¥é¥¤¥º¥²¡¼¥È¥¿¥ï¡¼¡×¤Ï¡ÖËëÄ¥¥Ù¥¤¥Ñ¡¼¥¯¡×Æâ¤ÎÆîü¤Ë°ÌÃÖ¤·¤Æ¤¤¤ë¤¿¤á³«¤±¤¿»ë³¦¤ÎÉô²°¤¬Â¿¤¤Åï¤È¤Ê¤ê¤Þ¤¹¡£
¥é¥ó¥É¥¹¥±¡¼¥×

ÉßÃÏÇÛÃÖ³µÇ°¥¤¥é¥¹¥È[½Ðŵ¡§¸ø¼°HP]
¡¡¡ÖËëÄ¥¥Ù¥¤¥Ñ¡¼¥¯ ¥é¥¤¥º¥²¡¼¥È¥¿¥ï¡¼¡×¤Ï1Ëü7911.69֤Ȥ¤¤¦¹Âç¤ÊÉßÃÏ¤ÎÆîü¤ËÇÛÃÖ¤µ¤ì¡¢¼þ°Ï¤Ë¤Ï¹¾ì¤ä¼«Áö¼°Ãó¼Ö¾ì¡¢Å¹Êޤʤɤ¬ÇÛÃÖ¤µ¤ì¤Þ¤¹¡£

¥é¥ó¥É¥¹¥±¡¼¥×´°À®Í½ÁÛCG[½Ðŵ¡§¸ø¼°HP]
¡¡¾å¶õ¤«¤é¸«¤¿¥é¥ó¥É¥¹¥±¡¼¥×¤Ç¤¹¡£±¦¾å¤ËÉÁ¤«¤ì¤Æ¤¤¤ë¼«Áö¼°¤ÎΩÂÎÃó¼Ö¾ì¤Ï494Âæ¤Ç¡¢Â¾¤Ëµ¡³£¼°94Âæ¡¢Ê¿ÌÌ25Âæ¤¬ÍѰդµ¤ì¤Þ¤¹¡£

¥°¥ê¡¼¥ó¥×¡¼¥ë´°À®Í½ÁÛCG[½Ðŵ¡§¸ø¼°HP]
¡¡¿åÍ·¤Ó¤â¤Ç¤¤ë¿åÊÕ¶õ´Ö¤Î¥°¥ê¡¼¥ó¥×¡¼¥ë¤Ç¤¹¡£

¥Ó¥ª¥¬¡¼¥Ç¥ó´°À®Í½ÁÛCG[½Ðŵ¡§¸ø¼°HP]
¡¡¥Ó¥ª¥¬¡¼¥Ç¥ó¤Î´°À®Í½ÁۿޤǤ¹¡£¥¬¥Þ¡¢¥¥Ü¥¦¥·¡¢¥·¥ç¥¦¥Ö¤Ê¤É¿åÊդο¢Êª¤¬¿¢¤¨¤é¤ì¡¢¤½¤³¤Ë½¸¤Þ¤ëÀ¸¤Êª¤¿¤Á¤ÎÀ¸ÂÖ¤ò´Ñ»¡¤Ç¤¤ë½á¤¤¥¹¥Ý¥Ã¥È¤Ë¤Ê¤ê¤Þ¤¹¡£

¥Ä¥ê¡¼¥Ç¥Ã¥´°À®Í½ÁÛCG[½Ðŵ¡§¸ø¼°HP]
¡¡¼«Á³°î¤ì¤ë·Æ¤¤¤Î¾ì¤È¤·¤Æ¡¢ÅФäÆÍ·¤Ù¤ë¥Ä¥ê¡¼¥Ç¥Ã¥¤âÇÛÃÖ¤µ¤ì¤Þ¤¹¡£

¥Ö¥í¥Ã¥µ¥à¥²¡¼¥È´°À®Í½ÁÛCG[½Ðŵ¡§¸ø¼°HP]
¡¡ËëÄ¥¥Ù¥¤¥Ñ¡¼¥¯Å즤ˤϡ¢¥µ¥¯¥é¤ÈÀÐÊɤòÇÛ¤·¤¿¥Ö¥í¥Ã¥µ¥à¥²¡¼¥È¤¬À°È÷¤µ¤ì¤Þ¤¹¡£

¥¨¥ó¥È¥é¥ó¥¹´°À®Í½ÁÛCG[½Ðŵ¡§¸ø¼°HP]
¡¡¥¨¥ó¥È¥é¥ó¥¹¤Î´°À®Í½ÁۿޤǤ¹¡£
¶¦ÍÑÉô

1³¬³µÇ°CG[½Ðŵ¡§¸ø¼°HP]
¡¡¶¦ÍÑ»ÜÀߤ¬½¸¤á¤é¤ì¤ë1³¬¤Î³µÇ°¿Þ¤Ç¤¹¡£

¥°¥é¥ó¥É¥¨¥ó¥È¥é¥ó¥¹´°À®Í½ÁÛCG[½Ðŵ¡§¸ø¼°HP]
¡¡¥°¥é¥ó¥É¥¨¥ó¥È¥é¥ó¥¹¤ÏÌÚ¤òÄ¥¤Ã¤¿Â礤ÊÈ⤬Àߤ¨¤é¤ì¡¢¤½¤ÎÈâ¤Îº¸±¦¤Ï¥¬¥é¥¹¤È¤Ê¤êÃæ¤È³°¤È¤Î¤Ä¤Ê¤¬¤ê¤ò´¶¤¸¤µ¤»¤ë¶õ´Ö¤Ë¤Ê¤ê¤Þ¤¹¡£

¥¦¥¨¥ë¥«¥à¥é¥¦¥ó¥¸´°À®Í½ÁÛCG[½Ðŵ¡§¸ø¼°HP]
¡¡¥¨¥ó¥È¥é¥ó¥¹¤òÆþ¤Ã¤¿Àè¤Ë¤¢¤ë¥¦¥¨¥ë¥«¥à¥é¥¦¥ó¥¸¤Î´°À®Í½ÁۿޤǤ¹¡£

¥¦¥¨¥ë¥«¥à¥é¥¦¥ó¥¸´°À®Í½ÁÛCG[½Ðŵ¡§¸ø¼°HP]
¡¡¶ÊÀþ¤òÀ¸¤«¤·¤¿¥Ç¥¶¥¤¥ó¤ä¼«Á³ÁǺà¤Î²¹¤«¤ß¤ÎÃæ¤Ëßê¤á¤¤ÎÍ×ÁǤò»¶¤ê¤Ð¤á¤¿¶õ´Ö¤Ë¤Ê¤ê¤Þ¤¹¡£

¥é¥¤¥Ö¥é¥ê¡¼¥é¥¦¥ó¥¸´°À®Í½ÁÛCG[½Ðŵ¡§¸ø¼°HP]
¡¡¥¦¥¨¥ë¥«¥à¥é¥¦¥ó¥¸¤ÎÎ٤ˤ¢¤ë¥é¥¤¥Ö¥é¥ê¡¼¥é¥¦¥ó¥¸¤Ë¤Ï¡¢³¬Ãʾõ¤Î¥Ù¥ó¥Á¤ä±ß·Á¤Î¥Ó¥Ã¥°¥Æ¡¼¥Ö¥ë¤Ê¤É¤¬ÇÛÃÖ¤µ¤ì¤Þ¤¹¡£

¥Ö¥é¥¤¥È¥Æ¥é¥¹´°À®Í½ÁÛCG[½Ðŵ¡§¸ø¼°HP]
¡¡¥Æ¥é¥¹¶õ´Ö¤Î¥Ö¥é¥¤¥È¥Æ¥é¥¹¤Ï¥¦¥¨¥ë¥«¥à¥é¥¦¥ó¥¸¤«¤é½ÐÆþ¤ê¤Ç¤¤ë¤è¤¦¤Ë¤Ê¤ê¤Þ¤¹¡£

¥Ñ¡¼¥Æ¥£¥ë¡¼¥à´°À®Í½ÁÛCG[½Ðŵ¡§¸ø¼°HP]
¡¡¥Ñ¡¼¥Æ¥£¥ë¡¼¥à¤Î¥Ç¥¶¥¤¥ó¥â¥Á¡¼¥Õ¤Ï¡Ö¥Ô¥¢¥Î¡×¤Ç¡¢¸°Èפò»×¤ï¤»¤ëÊÉÌÌ¡¢¸¹¤ò¥â¥Á¡¼¥Õ¤È¤·¤¿¾ÈÌÀ¡¦Å·°æ¥Ç¥¶¥¤¥ó¤È¤Ê¤Ã¤Æ¤¤¤Þ¤¹¡£

¥ß¡¼¥Æ¥£¥ó¥°¥ë¡¼¥à´°À®Í½ÁÛCG[½Ðŵ¡§¸ø¼°HP]
¡¡¥ß¡¼¥Æ¥£¥ó¥°¥ë¡¼¥à¤Î¥Ç¥¶¥¤¥ó¥â¥Á¡¼¥Õ¤Ï¡ÖÌڶספǡ¢¶ÊÌ̤ÎÊɤËÌÚ¤òÄ¥¤êʬ¤±¤¿Ìڶפ¬¥Ç¥¶¥¤¥ó¤µ¤ì¤Æ¤¤¤Þ¤¹¡£

¥²¥¹¥È¥ë¡¼¥à´°À®Í½ÁÛCG[½Ðŵ¡§¸ø¼°HP]
¡¡¥²¥¹¥È¥ë¡¼¥à¤Î¥Ç¥¶¥¤¥ó¥â¥Á¡¼¥Õ¤Ï¡Ö¥Ï¡¼¥×¡×¤Ç¡¢¸¹¤ò»×¤ï¤»¤ë¾ã»Ò¤Î¥é¥¤¥ó¤¬¥Ç¥¶¥¤¥ó¤µ¤ì¤Æ¤¤¤Þ¤¹¡£

¥Ó¥å¡¼¥é¥¦¥ó¥¸¡õ¥²¥¹¥È´°À®Í½ÁÛCG[½Ðŵ¡§¸ø¼°HP]
¡¡30³¬¤ËÇÛÃÖ¤µ¤ì¤ë¥Ó¥å¡¼¥é¥¦¥ó¥¸¡õ¥²¥¹¥È¤Î´°À®Í½ÁۿޤǤ¹¡£¥Ó¥å¡¼¥é¥¦¥ó¥¸¤È¥²¥¹¥È¥ë¡¼¥à¤¬°ìÂΤȤʤä¿¶õ´Ö¤Ç¡¢¥Ç¥¶¥¤¥ó¥Æ¡¼¥Þ¤Ï¡ÖMotion of Conductor¡Çs Baton¡×¡Á»Ø´ø¤Îµ°Àס¢Æ³¤¤Îư¤¡Á ¤È¤Ê¤Ã¤Æ¤ª¤ê¡¢»Ø´ø¼Ô¤Îư¤¤ä»Ø´øËÀ¤Îµ°Àפò´¶¤¸¤µ¤»¤ë¡¢Ä¾Àþ¤È¶ÊÀþ¤¬ÁդǤë¶õ´Ö¤¬¡¢Â礤¯¹¤¬¤ëį¤á¤ä¡¢¤ä¤ï¤é¤«¤Ê¸÷¤È¤Ä¤Ê¤¬¤ê¤Þ¤¹¡£

¥Ó¥å¡¼¥é¥¦¥ó¥¸¡õ¥²¥¹¥È´°À®Í½ÁÛCG[½Ðŵ¡§¸ø¼°HP]
¡¡¥Ó¥å¡¼¥é¥¦¥ó¥¸¤ÎÎ٤ˤϥӥ塼¥Ð¥¹¤â¤¢¤ë¥²¥¹¥È¥ë¡¼¥à¤¬ÇÛÃÖ¤µ¤ì¤Þ¤¹¡£
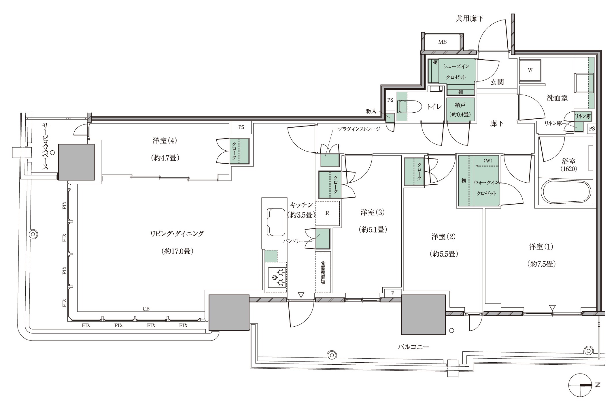
´Ö¼è¤ê¿Þ

W63¥¿¥¤¥×[½Ðŵ¡§¸ø¼°HP]
¡¡W63¥¿¥¤¥×¤Î´Ö¼è¤ê¿Þ¤Ç¤¹¡£´Ö¼è¤ê¤Ï2LDK+WIC+SIC+N¡¢ÀìÍÌÌÀѤÏ63.14Ö¡¢¥Ð¥ë¥³¥Ë¡¼ÌÌÀѤÏ11.78֡ʶö¿ô³¬¡Ë¡¢11.44Ö¡Ê´ñ¿ô³¬¡Ë¤È¤Ê¤Ã¤Æ¤¤¤Þ¤¹¡£

N71Bt¥¿¥¤¥×[½Ðŵ¡§¸ø¼°HP]
¡¡N71Bt¥¿¥¤¥×¤Î´Ö¼è¤ê¿Þ¤Ç¤¹¡£´Ö¼è¤ê¤Ï3LDK+WIC¡¢ÀìÍÌÌÀѤÏ71.78Ö¡¢¥Ð¥ë¥³¥Ë¡¼ÌÌÀѤÏ15.21֡ʶö¿ô³¬¡Ë¡¢15.56Ö¡Ê´ñ¿ô³¬¡Ë¤È¤Ê¤Ã¤Æ¤¤¤Þ¤¹¡£

Se98¥¿¥¤¥×[½Ðŵ¡§¸ø¼°HP]
¡¡Se98¥¿¥¤¥×¤Î´Ö¼è¤ê¿Þ¤Ç¤¹¡£´Ö¼è¤ê¤Ï4LDK+WIC+SIC+N¡¢ÀìÍÌÌÀѤÏ98.16Ö¡¢¥Ð¥ë¥³¥Ë¡¼ÌÌÀѤÏ17.13֡ʶö¿ô³¬¡Ë¡¢16.8Ö¡Ê´ñ¿ô³¬¡Ë¡¢¥µ¡¼¥Ó¥¹¥¹¥Ú¡¼¥¹¤Ï3.01֡ʶö¿ô³¬¡Ë¡¢2.92Ö¡Ê´ñ¿ô³¬¡Ë¤È¤Ê¤Ã¤Æ¤¤¤Þ¤¹¡£
°ÌÃÖ¿Þ

°ÌÃÖ¿Þ[½Ðŵ¡§¸ø¼°HP]
¡¡¡ÖËëÄ¥¥Ù¥¤¥Ñ¡¼¥¯ ¥é¥¤¥º¥²¡¼¥È¥¿¥ï¡¼¡×¤ÏJRµþÍÕÀþ¡Ö³¤ÉÍËëÄ¥¡×±Ø¤ÎÅ즤ǥᥤ¥ó¥¨¥ó¥È¥é¥ó¥¹¤Þ¤ÇÅÌÊâ18ʬ¡¢À¾Â¦ÄÌÍѸý¤Þ¤ÇÅÌÊâ16ʬ¤Îµ÷Î¥¤È¤Ê¤Ã¤Æ¤¤¤Þ¤¹¡£¤³¤³¤Ï¡ÖËëÄ¥¥Ù¥¤¥Ñ¡¼¥¯¡×¤ÎÃæ¤Ç¤â±Ø¤«¤éÎ¥¤ì¤¿¾ì½ê¤Ë°ÌÃÖ¤·¤Æ¤ª¤ê¡¢¡Ö³¤ÉÍËëÄ¥¡×±Ø¤ÎÎٱؤǤ¢¤ë¡Ö¸¡¸«ÀîÉÍ¡×±Ø¤âÆ±¤¸¤¯¤é¤¤¤Îµ÷Î¥¤Ë¤¢¤ê¤Þ¤¹¡£

°ÌÃÖ¿Þ[½Ðŵ¡§¸ø¼°HP]
¡¡±Ø¤Þ¤Ç¤Ï¤½¤³¤½¤³¤Îµ÷Î¥¤¬¤¢¤ê¤Þ¤¹¤¬¡¢2025ǯ½Õ¤Ë³«¶ÈͽÄê¤Î¡Ö³¤ÉÍËëÄ¥¡×±Ø¿·²þ»¥¸ý¤¬´°À®¤¹¤ë¤È2¡Á3Ê¬ÄøÅÙû½Ì¤µ¤ì¡¢±Ø¤Þ¤ÇºÇû¤Ç14ʬ¤È¤Ê¤ê¤Þ¤¹¡£
·úÀß¾õ¶·

¡¡2024ǯ12·î8Æü¤Ë»£±Æ¤·¤¿¡ÖËëÄ¥¥Ù¥¤¥Ñ¡¼¥¯¡×¤Î¥¿¥ï¥Þ¥ó·²¤Ç¤¹¡£¤³¤ÎÃæ¤Ç·úÀßÃæ¤Î¥¿¥ï¡¼¥Þ¥ó¥·¥ç¥ó¤¬¡ÖËëÄ¥¥Ù¥¤¥Ñ¡¼¥¯ ¥é¥¤¥º¥²¡¼¥È¥¿¥ï¡¼¡×(ÃϾå38³¬¡¢ºÇ¹â¹â¤µ141.60m)¤Ç¤¹¡£

¡¡¡Ö¼ãÍÕ£³ÃúÌܸø±à¡×±Û¤·¤Ë»£±Æ¤·¤¿¡ÖËëÄ¥¥Ù¥¤¥Ñ¡¼¥¯ ¥é¥¤¥º¥²¡¼¥È¥¿¥ï¡¼¡×¤Ç¤¹¡£

¡¡»£±Æ»þ¤Ë¤Ï30³¬¤Þ¤Ç·úÀߤ¬¿Ê¤ó¤Ç¤¤¤Þ¤·¤¿¡£

¡¡38³¬·ú¤Æ¤Î¤¿¤á¤¢¤È¤â¤¦¾¯¤·¹â¤¯¤Ê¤ê¤Þ¤¹¡£

¡¡¡ÖËëÄ¥¥Ù¥¤¥Ñ¡¼¥¯¡×¤Î³¤Â¦3Åï¤Ç¤¹¡£º¸¤«¤é¡ÖËëÄ¥¥Ù¥¤¥Ñ¡¼¥¯ ¥é¥¤¥º¥²¡¼¥È¥¿¥ï¡¼¡×(ÃϾå38³¬¡¢ºÇ¹â¹â¤µ141.60m)¡¢ËëÄ¥¥Ù¥¤¥Ñ¡¼¥¯ ¥ß¥Ã¥É¥¹¥¯¥¨¥¢¥¿¥ï¡¼¡ÊÃϾå43³¬¡¢¹â¤µ155.35m¡Ë¡¢ËëÄ¥¥Ù¥¤¥Ñ¡¼¥¯ ¥¹¥«¥¤¥°¥é¥ó¥É¥¿¥ï¡¼¡ÊÃϾå48³¬¡¢¹â¤µ172.40m¡Ë¤È¤Ê¤Ã¤Æ¤ª¤ê¡¢³¤ÉÍËëÄ¥±Ø¤Ë¸þ¤«¤Ã¤Æ¹â¤¯¤Ê¤ëÇÛÅï¤È¤Ê¤Ã¤Æ¤¤¤Þ¤¹¡£

¡¡¥·¥Ë¥¢¥ì¥¸¥Ç¥ó¥¹¤Î¡Ö¥Ñ¡¼¥¯¥¦¥§¥ë¥¹¥Æ¥¤¥ÈËëÄ¥¥Ù¥¤¥Ñ¡¼¥¯¡×(ÃϾå28³¬¡¢¹â¤µ105.60m)¤âÆþ¤ì¤Æ»£±Æ¡£

¡¡¤³¤ì¤À¤±¤Î¥¿¥ï¥Þ¥ó¤¬·×²èŪ¤ËÇÛÃÖ¤µ¤ì¤ë¾ì½ê¤Ï¤Ê¤«¤Ê¤«¤¢¤ê¤Þ¤»¤ó¡£

¡¡¤«¤Ê¤ê¹¤¤ÉßÃϤǤ¹¤¬¡¢¥¿¥ï¥Þ¥óËÜÂÎ¤ÏÆ»Ï©Â¦¤ËÇÛÃÖ¤µ¤ì¤Æ¤¤¤Þ¤¹¡£

¡¡Æî¦¤«¤éµþÍÕÀþ±Û¤·¤Ë»£±Æ¡£

¡¡²Ö¸«Àî¤Ë²Í¤«¤ë¶¶¤«¤é»£±Æ¡£

¡¡¤Þ¤À½»Âð¤¬1¸®¤â¤Ê¤¤º¢¤«¤é»£¤ê¤ËÍè¤Æ¤¤¤Þ¤¹¤¬¡¢º£¤Ï¤À¤¤¤ÖÆø¤ï¤¦³¹¤ËÀ®Ä¹¤·¤Æ¤¤¤Þ¤¹¡£

¡¡ÆîÀ¾Â¦¤«¤é»£±Æ¡£

¡¡³ÑÉô²°¤Ë¥º¡¼¥à¤Ç¤¹¡£¥Ð¥ë¥³¥Ë¡¼¤Ç¤Ï¤Ê¤¤Èߤ¬ÆÃħŪ¤Ê³ÑÉô²°¤È¤Ê¤Ã¤Æ¤¤¤Þ¤¹¡£

¡¡ÉßÃÏÆâ¤Ë¤Ï´û¤Ë¼«Áö¼°Ãó¼Ö¾ì¤¬´°À®¤·¤Æ¤¤¤Þ¤¹¡£
ÃÏ¿Þ
ʪ·ï³µÍ×

¡¡·úÃ۷ײè¤Î¤ªÃΤ餻¤Ç¤¹¡£ÉßÃÏÌÌÀÑ¡¢·úÃÛÌÌÀÑ¡¢±ä¾²ÌÌÀѤϸø¼°HP¤ÎÃͤòºÎÍѤ·¤Æ¤¤¤Þ¤¹¡£
¢£Êª·ï³µÍ×¢£
̾¾Î¡§ËëÄ¥¥Ù¥¤¥Ñ¡¼¥¯ ¥é¥¤¥º¥²¡¼¥È¥¿¥ï¡¼
·×²è̾¡§(²¾¾Î)ËëÄ¥¿·ÅÔ¿´¼ãÍÕ½»ÂðÃ϶è·×²è(B-4³¹¶è)
½êºßÃÏ¡§ÀéÍÕ¸©ÀéÍÕ»ÔÈþÉͶè¼ãÍÕ£³ÃúÌÜ1-13(ÃÏÈÖ)
¸òÄÌ¡§JRµþÍÕÀþ¡Ö³¤ÉÍËëÄ¥¡×±Ø ÅÌÊâ16ʬ
ÍÑÅÓ¡§¶¦Æ±½»Âð¡¢Ãó¼Ö¾ì¡¢Å¹ÊÞ
Áí¸Í¿ô¡§768¸Í
³¬¿ô¡§ÃϾå38³¬
¹â¤µ¡§132.90m¡ÊºÇ¹â¹â¤µ141.60m¡Ë
¹½Â¤¡§Å´¶Ú¥³¥ó¥¯¥ê¡¼¥È¤¡¢Å´¹ü¤¡¢ÌÚ¤
´ðÁù©Ë¡¡§¾ì½êÂǤÁ¥³¥ó¥¯¥ê¡¼¥È¹º¡¢´ûÀ®¥³¥ó¥¯¥ê¡¼¥È¹º
ÉßÃÏÌÌÀÑ¡§17,911.69Ö
·úÃÛÌÌÀÑ¡§6,950.11Ö
±ä¾²ÌÌÀÑ¡§85,023.00Ö
·úÃۼ硧»°°æÉÔÆ°»º¥ì¥¸¥Ç¥ó¥·¥ã¥ë¡¢Ìî¼ÉÔÆ°»º¡¢»°É©ÃϽê¥ì¥¸¥Ç¥ó¥¹¡¢°ËÆ£ÃéÅÔ»Ô³«È¯¡¢ÅìÊýÃϽꡢÉٻθ«ÃϽꡢµ¥ö±º¶½¶È
Àß·×¼Ô¡§·§Ã«ÁÈ
»Ü¹©¼Ô¡§·§Ã«ÁÈ
¹©´ü¡§2022ǯ11·î1ÆüÃ幩¡Á2026ǯ2·î²¼½Ü½×¹©Í½Äê
Æþµï¡§2026ǯ3·î²¼½ÜÆþµï³«»ÏͽÄê
½Ðŵ
¢§¸ø¼°HP¡§ËëÄ¥¥Ù¥¤¥Ñ¡¼¥¯ ¥é¥¤¥º¥²¡¼¥È¥¿¥ï¡¼
https://www.makuhari-pj4.com/shinchiku/G2371001/
PR

¡÷´ØÀ¾¿Í¤µ¤ó¤ÎÃø½ñ¡ØÆüËܤΥӥë¥Ù¥¹¥È100¡Ù¤Î²þÄûÈÇ
¡ØÆüËܤΥӥë¥Ù¥¹¥È111¡Ù
¤¬12·î24Æü¤ËȯÇ䤵¤ì¤Þ¤¹¡£
Á°ºî¤Ï¼Ì¿¿Ä󶡤·¤Æ¤¤¤Þ¤·¤¿¤¬¡¢º£ºî¤Ï¶¦Ãø¼Ô¤ËÁª¤ó¤Çĺ¤¤Þ¤·¤¿¡ª
Ëܺî¤â¤è¤í¤·¤¯¤ª´ê¤¤Ãפ·¤Þ¤¹¡ª
- ¥«¥Æ¥´¥ê
- ÀéÍÕ»Ô







