
¡¡°½À¥±ØÁ°¤Î¥¿¥ï¡¼¥Þ¥ó¥·¥ç¥ó¡Ö¥·¥Æ¥£¥¿¥ï¡¼°½À¥¡×(ÃϾå32³¬¡¢ºÇ¹â¹â¤µ118m)¤Î·úÀßÃϤǤ¹¡£2024ǯ11·î24Æü¤Ë»£±Æ¤·¤Þ¤·¤¿¡£·úÀßÃϤÎÅ즤Ǥϰ½À¥±ØÅì¸ý±ØÁ°¸òÄ̹¾ì¤ÎÀ°È÷¤â¹Ô¤ï¤ì¤Æ¤ª¤ê¡¢¸òÄ̹¾ì¤Ï2025ǯ3·îËö¡¢¥¿¥ï¥Þ¥óËÜÂΤÏ2025ǯ11·îÃæ½Ü¤Ë´°À®¤¹¤ëͽÄê¤Ç¤¹¡£¤³¤Îµ»ö¤Ç¤ÏƱ¥¿¥ï¥Þ¥ó¤Î³µÍפä·úÀß¾õ¶·¡¢ÃÏ¿ÞÅù¤òºÜ¤»¤Æ¤¤¤Þ¤¹¡£
¥·¥Æ¥£¥¿¥ï¡¼°½À¥¤Ë¤Ä¤¤¤Æ

³°´Ñ´°À®Í½ÁÛ¿Þ[½Ðŵ¡§¸ø¼°HP]
¡¡¡Ö¥·¥Æ¥£¥¿¥ï¡¼°½À¥¡×¤Ï°½À¥±ØÁ°¤Îʬ¾ù¥¿¥ï¥Þ¥ó¤Ç¡¢µ¬ÌϤÏÃϾå32³¬¡¢Ãϲ¼1³¬¡¢¹â¤µ109.99m¡¢ºÇ¹â¹â¤µ118.00m¡¢ÉßÃÏÌÌÀÑ3,643.67Ö¡¢·úÃÛÌÌÀÑ1,837.59Ö¡¢±ä¾²ÌÌÀÑ4Ëü7090.43Ö¡¢Áí¸Í¿ô422¸Í¡¢¤½¤Î¾ŹÊÞ2¶è²è¤È¤Ê¤Ã¤Æ¤¤¤Þ¤¹¡£·úÃÛ¼ç(Çä¼ç)¤Ï½»Í§ÉÔÆ°»º¡¢À߷׼ԤȻܹ©¼Ô¤ÏĹ빩¥³¡¼¥Ý¥ì¡¼¥·¥ç¥ó¤Ç2025ǯ11·îÃæ½Ü½×¹©¡¢2025ǯ12·îÃæ½Ü¤ÎÆþµï³«»ÏͽÄê¤Ç¤¹¡£
¡¡¸½ºß¤Ï11¸Í¤¬ÀèÃå½ç¼õÉÕÃæ¤Ç¡¢ÈÎÇä´Ö¼è¤ê¤Ï2LDK¡Á3LDK¡¢ÀìÍÌÌÀѤÏ58.93Ö¡Á74.18Ö¡¢¥Ð¥ë¥³¥Ë¡¼ÌÌÀÑ16.4Ö¡Á35.02Ö¡¢ÈÎÇä²Á³Ê¤Ï8200Ëü±ß¡Á1²¯2800Ëü±ß¤È¤Ê¤Ã¤Æ¤¤¤Þ¤¹¡£

ÉßÃϳµÇ°¥¤¥é¥¹¥È[½Ðŵ¡§¸ø¼°HP]
¡¡·úÀßÃϤϰ½À¥±ØÅì¸ý¤ÎË̦¤Ç¡¢±Ø¤Î½ÐÆþ¸ýÁ°¤Ë¤¢¤ë²£ÃÇÊâÆ»¤òÅϤ俤Ȥ³¤í¤¬¡Ö¥·¥Æ¥£¥¿¥ï¡¼°½À¥¡×¤È¤Ê¤Ã¤Æ¤¤¤Þ¤¹¡£¥¨¥ó¥È¥é¥ó¥¹¤Ï±ØÂ¦¤ËÇÛÃÖ¤µ¤ì¡¢Ãó¼Ö¾ì¤Î½ÐÆþ¸ý¤Ï¸òÄÌÎ̤â¿ÍÄ̤ê¤â¾¯¤Ê¤¤Ë̦¤ËÇÛÃÖ¤µ¤ì¤Þ¤¹¡£
¡¡ÅìÎ٤Ǥϥ¿¥¯¥·¡¼¾è¤ê¾ì¤È¥Ð¥¹Ä䤬¤¢¤ëÅì¸ý±ØÁ°¸òÄ̹¾ì¤¬2025ǯ3·îËö¤Î¹©»ö´°Î»Í½Äê¤ÇÀ°È÷Ãæ¤Ç¤¹¡£¤Þ¤¿¡¢¤µ¤é¤ËÅ즤ˤ¢¤ë¡ÖÅì°½À¥¸ø±à¡×¤È¤Î´Ö¤Ë¤¢¤Ã¤¿Ï©ÃϤÏÇÑÆ»¤È¤Ê¤ê¸ø±à¤È·Ò¤¬¤ê¤Þ¤¹¡£

³°´Ñ´°À®Í½ÁÛ¿Þ[½Ðŵ¡§¸ø¼°HP]
¡¡ÆîÅ즤«¤é¸«¤¿ÄãÁØÉô¤Ç¤¹¡£¥Þ¥ó¥·¥ç¥óËÜÂΤÏÊâÆ»¤â´Þ¤á¤ÆÆ»Ï©¤«¤é10mÎ¥¤ì¤¿¾ì½ê¤ËÇÛÃÖ¤µ¤ì¤Þ¤¹¡£

³°´Ñ´°À®Í½ÁÛ¿Þ[½Ðŵ¡§¸ø¼°HP]
¡¡¥¨¥ó¥È¥é¥ó¥¹¤Î´°À®Í½ÁۿޤǤ¹¡£´ðÃÅÉô¤ÏÂçȽ¥¿¥¤¥ë¤ä¥¬¥é¥¹¥«¡¼¥Æ¥ó¥¦¥©¡¼¥ë¤Ê¤É¤Ç»Å¾å¤²¤é¤ì¤Þ¤¹¡£

¥¨¥ó¥È¥é¥ó¥¹¥Û¡¼¥ë´°À®Í½ÁÛ¿Þ[½Ðŵ¡§¸ø¼°HP]
¡¡¥¨¥ó¥È¥é¥ó¥¹¥Û¡¼¥ë¤ÏÌó7.8m¤ÎÅ·°æ¹â¤¬¤¢¤ëÆóÁØ¿á¤È´¤±Ìó148֤ζõ´Ö¤Ë¤Ê¤ê¤Þ¤¹¡£

¥Æ¥ì¥ï¡¼¥¯¥é¥¦¥ó¥¸´°À®Í½ÁÛ¿Þ[½Ðŵ¡§¸ø¼°HP]
¡¡¶¦ÍÑ»ÜÀߤΥƥì¥ï¡¼¥¯¥é¥¦¥ó¥¸¤Ë¤Ï¥é¥¦¥ó¥É¥Æ¡¼¥Ö¥ë¤¬ÇÛÃÖ¤µ¤ì¤Þ¤¹¡£¤Þ¤¿¡¢¥Æ¥ì¥ï¡¼¥¯¥¹¥Ú¡¼¥¹¤È¤·¤Æ¸Ä¼¼¥Ö¡¼¥¹¤âÈ÷¤¨¤é¤ì¤Þ¤¹¡£

¥Ñ¡¼¥Æ¥£¥ë¡¼¥à´°À®Í½ÁÛ¿Þ[½Ðŵ¡§¸ø¼°HP]
¡¡¥Ñ¡Ý¥Æ¥£¥ë¡¼¥à¤ÏÂÐÌ̼°¤Î¥¥Ã¥Á¥ó¥¹¥Ú¡¼¥¹¤¬¤¢¤ë¶õ´Ö¤È¤Ê¤ê¤Þ¤¹¡£

¥²¥¹¥È¥ë¡¼¥à´°À®Í½ÁÛ¿Þ[½Ðŵ¡§¸ø¼°HP]
¡¡¥²¥¹¥È¥ë¡¼¥à¤Ï2Éô²°¤¢¤ê¡¢Â¾¤Ë¤â¶¦ÍÑ»ÜÀߤȤ·¤Æ¥Õ¥£¥Ã¥È¥Í¥¹¥ë¡¼¥à¡¢¥¥Ã¥º¥ë¡¼¥à¡õ¥Ú¥¢¥ì¥ó¥Ä¥¹¥Ú¡¼¥¹¤¬ÍѰդµ¤ì¤Þ¤¹¡£

³°´Ñ´°À®Í½ÁÛ¿Þ[½Ðŵ¡§¸ø¼°HP]
¡¡¡Ö¥·¥Æ¥£¥¿¥ï¡¼°½À¥¡×¤Ï¡¢»Í¶ù¤Ë¤¢¤ë¶õ¤Ë¸þ¤«¤Ã¤Æ¿¤Ó¤ë¥Ö¥ë¡¼¥é¥¤¥ó¤¬Â¸ºß´¶¤òÊü¤Á¤Þ¤¹¡£

³°´Ñ´°À®Í½ÁÛ¿Þ[½Ðŵ¡§¸ø¼°HP]
¡¡Æ±¥¿¥ï¥Þ¥ó¤Ï°½À¥¥¨¥ê¥¢¤Ç¤ÏÍ£°ì¤Î͹âÁؤȤʤ뤿¤á¡¢ÃæÁس¬¤«¤é¤¢¤¿¤ê¤«¤é¤Ï³«¤±¤¿Ä¯Ë¾¤¬¹¤¬¤ê¤Þ¤¹¡£
´Ö¼è¤ê¿Þ

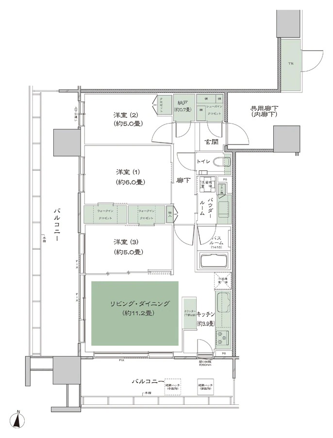
O3_ɸ½à¥¿¥¤¥×[½Ðŵ¡§¸ø¼°HP]
¡¡O3_ɸ½à¥¿¥¤¥×¤Î´Ö¼è¤ê¿Þ¤Ç¤¹¡£´Ö¼è¤ê¤Ï2LDK+N+WIC+SIC¡¢ÀìÍÌÌÀѤÏ58.93Ö¡¢¥Ð¥ë¥³¥Ë¡¼ÌÌÀÑ17.63Ö(3)¡¦16.40Ö(4¡Á25F)¤È¤Ê¤Ã¤Æ¤¤¤Þ¤¹¡£¸½ºß¡¢Æ±¥¿¥¤¥×¤Î11³¬¤ÎÉô²°¤¬8200Ëü±ß¤ÇÀèÃå½ç¼õÉÕÃæ¤È¤Ê¤Ã¤Æ¤¤¤Þ¤¹¡£

K-LD³ÈÂ祿¥¤¥×[½Ðŵ¡§¸ø¼°HP]
¡¡K-LD³ÈÂ祿¥¤¥×¤Î´Ö¼è¤ê¿Þ¤Ç¤¹¡£´Ö¼è¤ê¤Ï2LDK+N+WIC¡¢ÀìÍÌÌÀѤÏ69.00Ö¡¢¥Ð¥ë¥³¥Ë¡¼ÌÌÀÑ17.73Ö(3)¡¢¥È¥é¥ó¥¯¥ë¡¼¥àÌÌÀÑ1.15֤ȤʤäƤ¤¤Þ¤¹¡£¸½ºß¡¢Æ±¥¿¥¤¥×¤Î24³¬¤ÎÉô²°¤¬1²¯1000Ëü±ß¤ÇÀèÃå½ç¼õÉÕÃæ¤È¤Ê¤Ã¤Æ¤¤¤Þ¤¹¡£

E1_ɸ½à¥¿¥¤¥×[½Ðŵ¡§¸ø¼°HP]
¡¡E1_ɸ½à¥¿¥¤¥×¤Î´Ö¼è¤ê¿Þ¤Ç¤¹¡£´Ö¼è¤ê¤Ï3LDK+N+2WIC+SIC¡¢ÀìÍÌÌÀѤÏ73.43Ö¡¢¥Ð¥ë¥³¥Ë¡¼ÌÌÀÑ35.02֤ȤʤäƤ¤¤Þ¤¹¡£¸½ºß¡¢Æ±¥¿¥¤¥×¤Î13³¬¤ÎÉô²°¤¬1²¯2800Ëü±ß¤ÇÀèÃå½ç¼õÉÕÃæ¤È¤Ê¤Ã¤Æ¤¤¤Þ¤¹¡£

I_ɸ½à¥¿¥¤¥×[½Ðŵ¡§¸ø¼°HP]
¡¡I_ɸ½à¥¿¥¤¥×¤Î´Ö¼è¤ê¿Þ¤Ç¤¹¡£´Ö¼è¤ê¤Ï3LDK+N+WIC+SIC¡¢ÀìÍÌÌÀѤÏ74.18Ö¡¢¥Ð¥ë¥³¥Ë¡¼ÌÌÀÑ34.72Ö¡Ê3F¡Ë¡¢32.21Ö¡Ê4¡Á31F¡Ë¤È¤Ê¤Ã¤Æ¤¤¤Þ¤¹¡£¸½ºß¡¢Æ±¥¿¥¤¥×¤Î13³¬¤ÎÉô²°¤¬1²¯2800Ëü±ß¤ÇÀèÃå½ç¼õÉÕÃæ¤È¤Ê¤Ã¤Æ¤¤¤Þ¤¹¡£
°ÌÃÖ¿Þ

°ÌÃÖ¿Þ[½Ðŵ¡§¸ø¼°HP]
¡¡·úÀßÃϤϡְ½À¥¡×±ØÅì¸ý¤ÎË̦¤Ë¤¢¤ë²£ÃÇÊâÆ»¤òÅϤ俤Ȥ³¤í¤Ë°ÌÃÖ¤·¤Æ¤ª¤ê¡¢É½µ¾å¤Ç¤ÏÅÌÊâ1ʬ¤È¤Ê¤ê¤Þ¤¹¤¬¼ÂºÝ¤Ï¥¨¥ó¥È¥é¥ó¥¹¤«¤éÅÌÊâ30Éðʲ¼¤Ç±Ø¤Ë¹Ô¤¯¤³¤È¤¬¤Ç¤¤¹¡£
¡¡°½À¥±Ø¤ÏÅìµþ¥á¥È¥íÀéÂåÅÄÀþ¤ÈJR¾ïÈØÀþ(³Æ±ØÄä¼Ö)¤Î2Ï©Àþ¤¬Áê¸ßľÄ̱¿Å¾¤ò¹Ô¤Ã¤Æ¤ª¤ê¡¢ÅÔ¿´Â¦¤¬Åìµþ¥á¥È¥íÀéÂåÅÄÀþ¡¢¤½¤ÎµÕ¦¤¬JR¾ïÈØÀþ¤Î³Æ±ØÄä¼Ö¤È¤Ê¤Ã¤Æ¤¤¤Þ¤¹¡£¤Þ¤¿¡¢ËÜ¿ô¤Ï¿¤¯¤Ï¤¢¤ê¤Þ¤»¤ó¤¬¡¢°½À¥±Ø»Ïȯ¤ÎÅż֤⤢¤ë¤Î¤ÇºÂ¤Ã¤ÆÄ̶Ф¹¤ë¤³¤È¤â²Äǽ¤Ç¤¹¡£

³°´Ñ´°À®Í½ÁÛ¿Þ[½Ðŵ¡§¸ø¼°HP]
¡¡¤³¤Î¤è¤¦¤ËËÜÅö¤Ë±Ø¤ÎÌܤÎÁ°¤Ë°ÌÃÖ¤·¤Æ¤¤¤ë¤¿¤á¡¢¾®¹ß¤êÄøÅ٤α«¤Ê¤é»±¤Ê¤·¤Ç¤â±Ø¤Ë¹Ô¤±¤ëµ÷Î¥¤È¤Ê¤Ã¤Æ¤¤¤Þ¤¹¡£
·úÀß¾õ¶·

¡¡2024ǯ11·î24Æü¤Ë»£±Æ¤·¤¿¡Ö¥·¥Æ¥£¥¿¥ï¡¼°½À¥¡×(ÃϾå32³¬¡¢ºÇ¹â¹â¤µ118m)¤Î·úÀßÃϤǤ¹¡£º¸¤Î¹â²Í¤¬°½À¥±Ø¤Ç¤¹¡£

¡¡»£±Æ»þ¤Ë¤Ï22³¬¤Þ¤Ç·úÀߤ¬¿Ê¤ó¤Ç¤¤¤ë¤è¤¦¤Ç¤·¤¿¡£

¡¡ÆîÀ¾Â¦¤«¤é»£±Æ¡£À¾Â¦¤Ï¥¤¥È¡¼¥è¡¼¥«¥É¡¼°½À¥Å¹¤È¤Ê¤Ã¤Æ¤¤¤Þ¤¹¡£

¡¡ËÌÀ¾Â¦¤«¤é»£±Æ¡£³Ñ¤Î¥Ö¥ë¡¼¤Î¥é¥¤¥ó¤¬ÆÃħŪ¤Ê¥¿¥ï¡¼¥Þ¥ó¥·¥ç¥ó¤È¤Ê¤Ã¤Æ¤¤¤Þ¤¹¡£

¡¡ËÌÅ즤«¤é»£±Æ¡£¸½»þÅÀ¤Ç¥¨¥ê¥¢¥Ê¥ó¥Ð¡¼¥ï¥ó¤Î¹â¤µ¤Ë¤Ê¤Ã¤Æ¤¤¤Þ¤¹¡£

¡¡·úÀߤÎÅì¦ÎÙÀÜÃϤǤϡְ½À¥±ØÅì¸ý±ØÁ°¸òÄ̹¾ì¡×¤ÎÀ°È÷¤¬¿Ê¤á¤é¤ì¤Æ¤¤¤Þ¤¹¡£¥¿¥¯¥·¡¼¤ä¥Ð¥¹¾è¤ê¾ì¤¬ÍøÍѤµ¤ì¤ë¤Î¤Ï´°À®¸å¤Ë¤Ê¤ë¤«¤È»×¤¤¤Þ¤¹¤¬¡¢¤³¤Î¹¾ìÉôʬ¤Ï°ìÂÀè¤Ë³«Êü¤µ¤ì¤½¤¦¤ÊÊ·°Ïµ¤¤¬¤¢¤ê¤Þ¤·¤¿¡£

¡¡11·î23Æü¤ËÏ»Ëܥҥ륺¤ÎÅ¸Ë¾Âæ¤«¤é»£±Æ¡£¼êÁ°¤Î¥¿¥ï¡¼¥Þ¥ó¥·¥ç¥ó·²¤ÏÆîÀé½»¡¢¤½¤Îº¸Çظå¤Î¸«¤¨¤Æ¤¤¤ë·úÀßÃæ¤Î·úʪ¤¬¡Ö¥·¥Æ¥£¥¿¥ï¡¼°½À¥¡×¤Ç¤¹¡£¤Á¤Ê¤ß¤Ë¤µ¤é¤Ë±ü¤Ë¸«¤Æ¤¤¤ë¥¿¥ï¡¼¥Þ¥ó¥·¥ç¥ó¤ÏÇð¤ÎÍÕ¥¥ã¥ó¥Ñ¥¹±Ø¼þÊդΥ¿¥ï¡¼¥Þ¥ó¥·¥ç¥ó¤Ê¤É¤Ç¤¹¡£

¡¡12·î7Æü¤Ë»ÔÀî±ØÁ°¤Î̵ÎÁŸ˾¼¼¡Ö¥¢¥¤¡¦¥ê¥ó¥¯¥¿¥¦¥óŸ˾»ÜÀߡפ«¤é»£±Æ¤·¤¿¡Ö¥·¥Æ¥£¥¿¥ï¡¼°½À¥¡×¤Ç¤¹¡£º¸±ü¤ÏÀî¸ý±Ø¼þÊդΥ¿¥ï¥Þ¥ó·²¤Ç¡¢±¦±ü¤ÏÉ𢱺ϱؼþÊդΥ¿¥ï¥Þ¥ó·²¤Ç¤¹¡£

¡¡¥º¡¼¥à¤Ç¤¹¡£¸½»þÅÀ¤Ç¼þÊÕ¥¨¥ê¥¢¤ÇºÇ¤â¹â¤¤·úʪ¤È¤Ê¤Ã¤Æ¤¤¤Þ¤¹¡£

¡¡12·î9Æü¤Ë¹¾¸ÍÀî¶è¤«¤é»£±Æ¤·¤¿¹ÓÀî¤Ç¤¹¡£

¡¡¸Ì¤òÉÁ¤¯¹ÓÀî¤ÎÀè¤Ë¸«¤¨¤ë·úÀßÃæ¤Î¥¿¥ï¡¼¥Þ¥ó¥·¥ç¥ó¤¬¡Ö¥·¥Æ¥£¥¿¥ï¡¼°½À¥¡×¤Ç¤¹¡£

¡¡¤³¤³¤«¤é¤Þ¤À¹â¤¯¤Ê¤ë¤¿¤á¡¢¼þÊÕ¥¨¥ê¥¢¤Ç¤Ï°µÅÝŪ¤Ê¹â¤µ¤Î¥¿¥ï¡¼¥Þ¥ó¥·¥ç¥ó¤È¤Ê¤ê¤Þ¤¹¡£
ÃÏ¿Þ
ʪ·ï³µÍ×

¡¡·úÃ۷ײè¤Î¤ªÃΤ餻¤Ç¤¹¡£
¢£Êª·ï³µÍ×¢£
̾¾Î¡§¥·¥Æ¥£¥¿¥ï¡¼°½À¥
»ö¶È̾¡§(²¾¾Î)ÂΩ¶è°½À¥£³ÃúÌܷײè
½êºßÃÏ¡§ÅìµþÅÔÂΩ¶è°½À¥»°ÃúÌÜ4ÈÖ4¾¡ÊÃÏÈÖ¡Ë
¸òÄÌ¡§Åìµþ¥á¥È¥íÀéÂåÅÄÀþ¡Ö°½À¥¡×±Ø ÅÌÊâ1ʬ
¡¡¡¡¡¡ÅìÉð°ËÀªºêÀþ¡Ö¾®¿û¡×±Ø ÅÌÊâ18ʬ
ÍÑÅÓ¡§¶¦Æ±½»Âð¡¦Å¹ÊÞ
Áí¸Í¿ô¡§422¸Í¡¢¤½¤Î¾ŹÊÞ2¶è²è
³¬¿ô¡§ÃϾå32³¬¡¢Ãϲ¼1³¬
¹â¤µ¡§109.99m(ºÇ¹â118.00m)
¹½Â¤¡§Å´¶Ú¥³¥ó¥¯¥ê¡¼¥È¤¡¢À©¿Ì¹½Â¤
´ðÁù©Ë¡¡§¹º´ðÁÃ
ÉßÃÏÌÌÀÑ¡§3,643.67Ö
·úÃÛÌÌÀÑ¡§1,837.59Ö
±ä¾²ÌÌÀÑ¡§47,090.43Ö
·úÃۼ硧½»Í§ÉÔÆ°»º
Àß·×¼Ô¡§Ä¹Ã«¹©¥³¡¼¥Ý¥ì¡¼¥·¥ç¥ó
»Ü¹©¼Ô¡§Ä¹Ã«¹©¥³¡¼¥Ý¥ì¡¼¥·¥ç¥ó
¹©´ü¡§2022ǯ4·î1ÆüÃ幩¡Á2025ǯ11·îÃæ½Ü½×¹©Í½Äê
Æþµï¡§2025ǯ12·îÃæ½ÜͽÄê
½Ðŵ
¢§¸ø¼°HP¡§¥·¥Æ¥£¥¿¥ï¡¼°½À¥
https://www.sumitomo-rd-mansion.jp/shuto/ayase/
¢§½»Í§ÉÔÆ°»º¡§¥Ë¥å¡¼¥¹¥ê¥ê¡¼¥¹¡Ê2023ǯ9·î25Æü¡Ë
Åìµþ¥á¥È¥íÀéÂåÅÄÀþ±èÀþºÇÂ硦¡Ö°½À¥¡×±ØÅÌÊâ1ʬ ¡Ø¥·¥Æ¥£¥¿¥ï¡¼°½À¥¡ÙÂè°ì´üÈÎÇ䳫»Ï
ÅÔ¿´Ä¾·ë¡¦±Ø¶á¿¿²Á¤òµý¼õ¤¹¤ëÁ´422Å¡ 9·î23Æü¡ÊÅڡˤè¤êÅÐÏ¿¼õÉÕ³«»Ï
- ¥«¥Æ¥´¥ê
- ÂΩ¶è







