
Æî³¹¶è ³°´Ñ¥¤¥á¡¼¥¸¥Ñ¡¼¥¹[½Ðŵ¡§¹Á¶è]
¡¡µðÂç¤ÊÁ¥¤Î·Á¤ò¤·¤¿ÉÊÀî±ØÄ¾·ë¤ÎÂ絬ÌϺƳ«È¯¡ÖÉÊÀî±Ø³¹¶èÃ϶è¡×¤Î´Ä¶±Æ¶ÁÄ´ºº½ñ¤Î±ÜÍ÷¤¬³«»Ï¤µ¤ì¤Þ¤·¤¿¡£Á¥¤ÎÈÁ¤Ë¤¢¤¿¤ëÉôʬ¤ËÃϾå28³¬¡¢¹â¤µ150m¤Î͹âÁإӥ뤬2Åï·úÀߤµ¤ì¡¢Á¥¼ó¤Ë¤¢¤¿¤ëÉôʬ¤Ë¤ÏµþµÞËÜÀþ¤¬Ä̤ë¥Ó¥ë¤Ç¡¢¥ª¥Õ¥£¥¹¡¦¾¦¶È¡¦¥Û¥Æ¥ë¤Ç¹½À®¤µ¤ì¤ëÊ£¹ç»ÜÀߤˤʤê¤Þ¤¹¡£¤³¤Îµ»ö¤Ç¤ÏƱºÆ³«È¯¤Î³µÍפ丽¶·¡¢ÃÏ¿ÞÅù¤òºÜ¤»¤Æ¤¤¤Þ¤¹¡£
ÉÊÀî±Ø³¹¶èÃ϶è¤Ë¤Ä¤¤¤Æ

³°´Ñ¥¤¥á¡¼¥¸¥Ñ¡¼¥¹[½Ðŵ¡§¹Á¶è]
¡¡¡ÖÉÊÀî±Ø³¹¶èÃ϶è¡×¤ÏÅìÆüËÜιµÒÅ´Æ»¡ÊJRÅìÆüËܡˤ¬»ö¶È¼Ô¤È¤Ê¤ëË̳¹¶è¤È¡¢µþÉ͵޹ÔÅÅÅ´¤¬»ö¶È¼Ô¤È¤Ê¤ëÆî³¹¶è¤Ëʬ¤«¤ì¤¿ÉÊÀî±ØÄ¾·ë¤ÎÂ絬ÌϺƳ«È¯¤Ç¡¢Æî³¹¶è¤ÏµðÂç¤ÊÁ¥¤Î·Á¤ò¤·¤¿Ä¶¹âÁØ¥Ó¥ë¤È¤Ê¤ê¡¢¡¢Ë̳¹¶è¤ÏÁ¥¤ÎºÇ¸åÈø¤ÎÈÁ¤Î·Á¤ò¤·¤¿Ä¶¹âÁØ¥Ó¥ë¤Ë¤Ê¤ê¤Þ¤¹¡£

Ë̳¹¶è ·×²è·úÃÛʪÇÛÃÖ¿Þ[½Ðŵ¡§¹Á¶è]
¡¡Ë̳¹¶è¤ÏJRÉÊÀî±ØÁ°¤Ë°ÌÃÖ¤·¤Æ¤ª¤ê¡¢µ¬ÌϤÏÃϾå28³¬¡¢Ãϲ¼3³¬¡¢¹â¤µÌó150m¡¢ÉßÃÏÌÌÀÑÌó1Ëü4700Ö¡¢·úÃÛÌÌÀÑÌó£±Ëü1000Ö¡¢±ä¾²ÌÌÀÑÌó16Ëü5000֤ȤʤäƤ¤¤Þ¤¹¡£
¡¡·úÃÛ¤ÏÅìÆüËÜιµÒÅ´Æ»¡¢Àß·×¼Ô¤ÏÅìÆüËÜιµÒÅ´Æ»¤Ç2026ǯ3·î¾å½ÜÃ幩¡¢2031ǯ3·î²¼½Ü¤Î½×¹©Í½Äê¤Ç¤¹¡£Æ±»þ¤ËÀ°È÷¤µ¤ì¤ëË̸ýÊâ¹Ô¼Ô¹¾ì¤ÏJR¤ÎÀþϩľ¾å¤Ë°ÌÃÖ¤·¤Æ¤¤¤Þ¤¹¡£

Ë̳¹¶è ·×²è·úÃÛʪÃÇÌÌ¿Þ¡ÊÆîËÌ¡Ë[½Ðŵ¡§¹Á¶è]
¡¡Ë̳¹¶è¤Î¥Õ¥í¥¢¹½À®¤Ï1¡Á2³¬¤¬±Ø»ÜÀߤȤʤꡢ3¡Á5³¬¤ËŹÊÞ¡¢2¡Á6³¬¤Ë¾ðÊóȯ¿®»ÜÀߤ¬ÇÛÃÖ¤µ¤ì¡¢9¡Á28³¬¤Ï»ö̳½ê¤Ë¤Ê¤ê¤Þ¤¹¡£

Ë̳¹¶è ·×²è·úÃÛʪÃÇÌ̿ޡÊÅìÀ¾¡Ë[½Ðŵ¡§¹Á¶è]
¡¡Á¥¤Î·Á¤ò¤·¤¿Æî³¹¶èË̦¤ÎÁ¥Èø¤Ë¤¢¤¿¤ëÉôʬ¤Ë°ÌÃÖ¤·¤Æ¤ª¤ê¡¢Â礤ÊÈÁ¤Î¤è¤¦¤Ë¤Ê¤ê¤Þ¤¹¡£

Æî³¹¶è ·×²è·úÃÛʪÇÛÃÖ¿Þ[½Ðŵ¡§¹Á¶è]
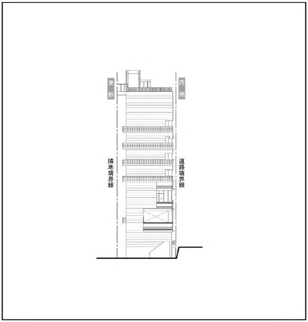
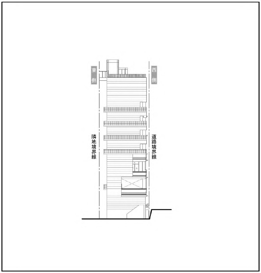
¡¡Æî³¹¶è¤Ï¸½ºß¤ÎµþµÞÉÊÀî±Ø¤äµþµÞËÜÀþ¤ÎÀþÏ©¤¬¤¢¤ë¾ì½ê¤ÇÁ¥¤Î·Á¤ò¤·¤¿Ä¶¹âÁØ¥Ó¥ë¤È¤Ê¤ê¡¢Â絬ÌÏ¤ÊÆî-a¤È¾®µ¬ÌÏ¤ÊÆî-b¤Ëʬ¤«¤ì¤Æ¤¤¤Þ¤¹¡£
¡¡Æî-a¤Îµ¬ÌϤÏÃϾå28³¬¡¢Ãϲ¼2³¬¡¢¹â¤µÌó150m¡¢ÉßÃÏÌÌÀÑÌó1Ëü7300Ö¡¢·úÃÛÌÌÀÑÌó1Ëü4800Ö¡¢±ä¾²ÌÌÀÑÌó20Ëü1000Ö¡¢·úÃÛ¼ç¤ÏµþÉ͵޹ÔÅÅÅ´¡¢Àß·×¼Ô¤ÏÆü·úÀ߷פÇ2026ǯ3·î²¼½ÜÃ幩¡¢2037ǯ3·î²¼½Ü¤Î½×¹©Í½Äê¤Ç¤¹¡£Æî-b¤Îµ¬ÌϤÏÃϾå9³¬¡¢Ãϲ¼1³¬¡¢¹â¤µÌó47m¡¢ÉßÃÏÌÌÀÑÌó1,500Ö¡¢±ä¾²ÌÌÀÑÌó8,300Ö¡¢»ö¶È¼çÂΤϵþÉ͵޹ÔÅÅÅ´¡¢´ðËÜÀß·×¤ÏÆü·úÀ߷פÇ2030ǯÅÙÃ幩¡¢2032ǯÅÙ½×¹©Í½Äê¤È¤Ê¤Ã¤Æ¤¤¤Þ¤¹¡£

Æî-aÃÇÌ̿ޡÊA-A¡¡Ë[½Ðŵ¡§¹Á¶è]
¡¡Á¥¤ÎÈÁ¤ÎÉôʬ¤Ë¤¢¤¿¤ëÄãÁØÉô¤ÏŹÊÞ¡¢±Ø»ÜÀß¡¢Ãæ¹âÁØÉô¤Ï»ö̳½ê¤È¤Ê¤ê¡¢Á¥¼óÉôʬ¤È¤Ê¤ëÆî¦¤ÎÄãÁØÉô¤Ï½¸²ñ¾ì¡¢¹âÁØÉô¤Ï½ÉÇñ»ÜÀߤˤʤê¤Þ¤¹¡£

Æî-aÃÇÌ̿ޡÊB-B¡¡Ë[½Ðŵ¡§¹Á¶è]
¡¡Æî-a¤ÎÄãÁØÉô¤Ë¤ÏΩÂβóÍ·¶õ´Ö¤âÀ°È÷¤µ¤ì¤Þ¤¹¡£

Æî-aÃÇÌ̿ޡÊC-C¡¡Ë[½Ðŵ¡§¹Á¶è]
¡¡Á¥¤Î·Á¤ò¤·¤¿Á¥¼óÉôʬ¤Î1³¬Éôʬ¤òµþµÞËÜÀþ¤¬´Ó¤¤Þ¤¹¡£

Æî-bÃÇÌ̿ޡÊA-A¡¡Ë[½Ðŵ¡§¹Á¶è]
¡¡Æî-b¤ÎÃÇÌ̿ޤǤ¹¡£Æî-a¤ÈÈæ¤Ù¤ë¤È¾®µ¬ÌϤÊÌó8,300֤Υª¥Õ¥£¥¹¥Ó¥ë¤È¤Ê¤ê¤Þ¤¹¡£

Æî-bÃÇÌ̿ޡÊB-B¡¡Ë[½Ðŵ¡§¹Á¶è]
¡¡Æî-b¤ÎÄãÁØÉô¤Ë¤â¾¦¶È»ÜÀߤ¬Æþ¤ê¤Þ¤¹¡£

Ë̸ýÊâ¹Ô¼Ô¹¾ì¤Î¥¤¥á¡¼¥¸[½Ðŵ¡§Æâ³ÕÉÜ]
¡¡Ë̳¹¶è¤ËÀ°È÷¤µ¤ì¤ëË̸ýÊâ¹Ô¼Ô¹¾ì¤Î´°À®Í½ÁۿޤǤ¹¡£JR¤ÎÀþÏ©¾å¶õ¤ÇÀ°È÷Ãæ¤ÎÂ絬ÌϤʿ͹©ÃÏÈפ¬¤¢¤ë¾ì½ê¤È¤Ê¤ê¤Þ¤¹¡£

Ë̸ýÊâ¹Ô¼Ô¹¾ì¤Î¥¤¥á¡¼¥¸[½Ðŵ¡§Æâ³ÕÉÜ]
¡¡Ë̸ýÊâ¹Ô¼Ô¹¾ì¤«¤é¸«¤¿Ë̳¹¶è¤Ç¤¹¡£¥Ó¥ëËܰÌÂâ¤ÎÄãÁØÉô¤Ë¤ÏË̸ý¥Æ¥é¥¹¤¬À°È÷¤µ¤ì¤Þ¤¹¡£

Ë̸ý¥Æ¥é¥¹¤Î¥¤¥á¡¼¥¸[½Ðŵ¡§Æâ³ÕÉÜ]
¡¡¤½¤ÎË̸ý¥Æ¥é¥¹¤«¤é¤Ï³¤Â¦¤È¤Ê¤ë¹ÁÆî¤Î͹âÁإӥ뷲¤òį¤á¤é¤ì¤ë¾ì½ê¤Ë¤Ê¤ê¤Þ¤¹¡£

Ë̦ͳÄÌÏ©¼þÊդΥ¤¥á¡¼¥¸[½Ðŵ¡§Æâ³ÕÉÜ]
¡¡Ë̳¹¶è¤Ë¤ÏÅìÀ¾Êý¸þ¤ËÄ̤êÈ´¤±¤é¤ì¤ëË̦ͳÄÌÏ©¤¬À°È÷¤µ¤ì¤Þ¤¹¡£

Ãæ±û²°¾å¹¾ì¤Î¥¤¥á¡¼¥¸[½Ðŵ¡§Æâ³ÕÉÜ]
¡¡Æî³¹¶è¤ËÀ°È÷¤µ¤ì¤ëÃæ±û²°¾å¹¾ì¤Î´°À®Í½ÁۿޤǤ¹¡£

Ãæ±û²°¾å¹¾ì¤Î¥¤¥á¡¼¥¸[½Ðŵ¡§Æâ³ÕÉÜ]
¡¡Ãæ±û²°¾å¹¾ì¤Ë¤ÏÎÐÃϤâÀ°È÷¤µ¤ì¤Þ¤¹¡£

Æî²°¾å¹¾ì¤Î¥¤¥á¡¼¥¸[½Ðŵ¡§Æâ³ÕÉÜ]
¡¡Æîü¤ËÀ°È÷¤µ¤ì¤ëÆî²°¾å¹¾ì¤«¤é¤ÏÉÊÀî±ØÆî¦¤Î·Ê¿§¤ò˾¤á¤ë¤è¤¦¤Ë¤Ê¤ê¤Þ¤¹¡£

¹ñÆ»¾å¶õ¥Ç¥Ã¥¡ÊË̦¡Ë¤Î¥¤¥á¡¼¥¸[½Ðŵ¡§Æâ³ÕÉÜ]
¡¡Æ±ºÆ³«È¯¤ÏÂè°ìµþÉ;å¶õ¤ËÀ°È÷¤µ¤ì¤ë¹ñÆ»¾å¶õ¥Ç¥Ã¥¤Ë·Ò¤¬¤ê¤Þ¤¹¡£

¥Ç¥Ã¥¥ì¥Ù¥ë¤È¥À¥¤¥Ð¡¼¥·¥Æ¥£¥×¥é¥Ã¥È¥Õ¥©¡¼¥à¤ò¤Ä¤Ê¤°Î©ÂβóÍ·¶õ´Ö¤Î¥¤¥á¡¼¥¸[½Ðŵ¡§Æâ³ÕÉÜ]
¡¡Æî³¹¶è¤Ë¤ÏÂ絬ÌϤʿá¤È´¤±¤Î¤¢¤ëΩÂβóÍ·¶õ´Ö¤¬À°È÷¤µ¤ì¤Þ¤¹¡£

¥¤¥á¡¼¥¸¥Ñ¡¼¥¹[½Ðŵ¡§¹Á¶èµÄ²ñ]
¡¡Æ±ºÆ³«È¯¤ÏÁ¥¤Î·Á¤ò¤·¤¿Ä¶¹âÁØ¥Ó¥ë¤È¤Ê¤Ã¤Æ¤ª¤ê¡¢Æî³¹¶è¤ÎÆîü¤ÎÁ¥¼óÉôʬ¤ÏµþµÞËÜÀþ¤¬´Ó¤¤Þ¤¹¡£

¥¤¥á¡¼¥¸¥Ñ¡¼¥¹[½Ðŵ¡§¹Á¶èµÄ²ñ]
¡¡Á¥¼óÉôʬ¤Î¥Ó¥ë¤Ï¥Û¥Æ¥ë¤Ë¤Ê¤ê¤Þ¤¹¡£

¥¤¥á¡¼¥¸¥Ñ¡¼¥¹[½Ðŵ¡§Æâ³ÕÉÜ]
¡¡Ë̦¤ËÇÛÃÖ¤µ¤ì¤ëÁ¥¤ÎÈÁ¤Ë¤¢¤¿¤ë͹âÁØ¥ª¥Õ¥£¥¹¥Ó¥ëÉôʬ¤Ç¤¹¡£ÄãÁØÉô¤Ï¾¦¶È»ÜÀߤȤʤꡢº¸¤¬Ë̳¹¶è¡¢±¦¤¬Æî³¹¶è¤È¤Ê¤Ã¤Æ¤¤¤Þ¤¹¡£
ΩÌÌ¿Þ

Æî-aΩÌ̿ޡÊÀ¾Â¦Î©Ì̿ޡË[½Ðŵ¡§¹Á¶è]

Æî-aΩÌ̿ޡÊÅì¦ΩÌ̿ޡË[½Ðŵ¡§¹Á¶è]

Æî-aΩÌ̿ޡÊË̦ΩÌ̿ޡË[½Ðŵ¡§¹Á¶è]

Æî-aΩÌÌ¿Þ¡ÊÆî¦ΩÌ̿ޡË[½Ðŵ¡§¹Á¶è]

Æî-bΩÌ̿ޡÊÀ¾Â¦Î©Ì̿ޡË[½Ðŵ¡§¹Á¶è]

Æî-bΩÌ̿ޡÊÅì¦ΩÌ̿ޡË[½Ðŵ¡§¹Á¶è]

Æî-bΩÌ̿ޡÊË̦ΩÌ̿ޡË[½Ðŵ¡§¹Á¶è]

Æî-bΩÌÌ¿Þ¡ÊÆî¦ΩÌ̿ޡË[½Ðŵ¡§¹Á¶è]

Ë̳¹¶è ·×²è·úÃÛʪΩÌ̿ޡÊÀ¾Â¦¡Ë[½Ðŵ¡§¹Á¶è]

Ë̳¹¶è ·×²è·úÃÛʪΩÌ̿ޡÊÅ즡Ë[½Ðŵ¡§¹Á¶è]

Ë̳¹¶è ·×²è·úÃÛʪΩÌ̿ޡÊË̦¡Ë[½Ðŵ¡§¹Á¶è]

Ë̳¹¶è ·×²è·úÃÛʪΩÌÌ¿Þ¡ÊÆî¦¡Ë[½Ðŵ¡§¹Á¶è]
°ÌÃÖ¿Þ

Æî³¹¶è ·×²èÃϰÌÃֿޡʾܺ١Ë[½Ðŵ¡§¹Á¶è]
¡¡Æî³¹¶è¤ÏµþµÞÉÊÀî±Ø¤ÈµþµÞËÜÀþ¤ÎÀþÏ©¤Îľ¾å¤Ë°ÌÃÖ¤·¤Æ¤ª¤ê±ØÄ¾·ë¤Î±Ø¥Ó¥ë¤È¤Ê¤ê¤Þ¤¹¡£Æ±³¹¶è¤ÏJRÉÊÀî±Ø¤äÇò¶â¹âÎØ±Ø¤È·Ò¤¬¤ëÅìµþ¥á¥È¥íÆîËÌÀþ¤Î¿·±Ø¤Ë¤âľ·ë¤·¤Þ¤¹¡£

Ë̳¹¶è ·×²èÃϰÌÃֿޡʾܺ١Ë[½Ðŵ¡§¹Á¶è]
¡¡Ë̳¹¶è¤ÏJRÉÊÀî±Ø¤Î¹âÎØ¸ý(À¾¸ý)Á°¤Î¥í¡¼¥¿¥ê¡¼¤¬¤¢¤Ã¤¿¾ì½ê¤È¤½¤ÎË̦¡¢¤½¤·¤ÆJR¤ÎÀþÏ©¤Îľ¾å¤Ë°ÌÃÖ¤·¤Æ¤ª¤ê±ØÄ¾·ë¤È¤Ê¤ê¤Þ¤¹¡£¤Þ¤¿¡¢À¾Â¦¤Ç¤ÏÂè°ìµþÉͤÎľ¾å¤ËÀ°È÷¤µ¤ì¤ëÂ絬ÌϤʹñÆ»¾å¶õ¥Ç¥Ã¥¤Ë¤âÀܳ¤·¤Þ¤¹¡£

Æî³¹¶è Êâ¹Ô¼Ô¤Î¼ç¤ÊÄ̹ԥ롼¥È¿Þ[½Ðŵ¡§¹Á¶è]
¡¡¥Ó¥ëÆâ¤Ë¤Ï´ÓÄÌÄÌÏ©¤ä¼«Í³ÄÌÏ©¤¬À°È÷¤µ¤ì¤Þ¤¹¡£

Ë̳¹¶è Êâ¹Ô¼Ô¤Î¼ç¤ÊÄ̹ԥ롼¥È¿Þ[½Ðŵ¡§¹Á¶è]
¡¡Æ±ºÆ³«È¯¤Ç¤ÏµþµÞ¤ÈJR¤Î²þ»¥¤¬Ê£¿ô¿·Àߤµ¤ì¤Þ¤¹¡£

ÇÛÃÖ¥¤¥á¡¼¥¸[½Ðŵ¡§GoogleMap¤Ë²ÃÉ®]
¡¡¡ÖÉÊÀî±Ø³¹¶èÃ϶è¡×¤Î¤À¤¤¤¿¤¤¤Î°ÌÃÖ¤ËÀÖ¤¤Ìֳݤ±¤ò¤·¤Þ¤·¤¿¡£¸½ºß¤ÎÉÊÀî±Ø¼þÊÕ¤ÏÅ즤ËÂ絬ÌϤÊ͹âÁإӥ뷲¤¬¹¤¬¤Ã¤Æ¤¤¤Þ¤¹¤¬¡¢Æ±ºÆ³«È¯¤ò´Þ¤á¤Æ¤³¤ì¤«¤é¤ÏÀ¾Â¦¤ÎºÆ³«È¯¤¬³èȯ¤Ë¤Ê¤ê¤Þ¤¹¡£
¡¡ÉÊÀî±Ø¤ÎË̦¤Ç¤Ï¹âÎØ¥²¡¼¥È¥¦¥§¥¤±Ø¥¨¥ê¥¢¤Þ¤Ç͹âÁإӥ뤬Ϣ¤Ê¤ë·×²è¤È¤Ê¤Ã¤Æ¤ª¤ê¡¢ÉÊÀ¥ê¥¢¤Î͹âÁإӥ뷲¤¬Â礤¯³ÈÂ礷¤Þ¤¹¡£¤¿¤À¡¢¤³¤ÎÊÕ¤ê¤Ï±©ÅĶõ¹Á¤Ë¶á¤¤¤¿¤á¡¢¹Ò¶õË¡¤Ë¤è¤ë¹â¤µÀ©¸Â¤Ë¤è¤Ã¤ÆÆ±¤¸¤è¤¦¤Ê¹â¤µ¤Î͹âÁإӥ뷲¤È¤Ê¤ê¤Þ¤¹¡£
¸½¶·

¡¡2024ǯ5·î11Æü¤Ë»£±Æ¤·¤¿¡Ö(²¾¾Î)ÉÊÀî±Ø³¹¶èÃ϶è Ë̳¹¶è¿·Ã۷ײè¡×(ÃϾå28³¬¡¢¹â¤µÌó150m)¤Î·×²èÃÏÊýÌ̤Ǥ¹¡£±ü¤ÇJR¤ÎÀþÏ©¾å¤ÇÀ°È÷Ãæ¤Î¿Í¹©ÃÏÈפ¬¤¢¤ë¾ì½ê¤¢¤¿¤ê¤Þ¤Ç¤¬Ë̳¹¶è¤È¤Ê¤Ã¤Æ¤ª¤ê¡¢¤³¤Á¤é¤Î·úÃÛ¼ç¤ÏJRÅìÆüËܤȤʤäƤ¤¤Þ¤¹¡£

¡¡JRÉÊÀî±Ø¤Ë¶á¤¤Â¦¤Ç¤â¿Í¹©ÃÏÈפ¬À°È÷Ãæ¤Ç¤¹¤¬¡¢¤³¤ÎÊÕ¤ê¤ÏË̳¹¶è¤Ç¤Ï¤Ê¤¯ÊÌ»ö¶È¤ÎÉÊÀî±ØË̸ý²þÎÉ¡¦±Ø¥Ó¥ëÀ°È÷¤«¤È»×¤¤¤Þ¤¹¡£

¡¡JRÉÊÀî±Ø¤Î¹âÎØ¸ý¡ÊÀ¾¸ý¦¡Ë¤Ç¤¹¡£

¡¡±¦¤ÎÂè°ìµþÉͱ褤¤Î·úʪ¤¬¤¢¤ë¼êÁ°¤¢¤¿¤ê¤Þ¤Ç¤¬Ë̳¹¶è¤Ç¡¢¤½¤Î±ü¤¬¡Ö(²¾¾Î)ÉÊÀî±Ø³¹¶èÃÏ¶è Æî³¹¶è(Æî-a)¿·Ã۷ײè¡×(ÃϾå28³¬¡¢¹â¤µÌó150m)¤Î·úÀßÃϤˤʤê¤Þ¤¹¡£Æî³¹¶è¤ÏµþµÞËÜÀþ¤ÈµþµÞÉÊÀî±Ø¤¬¤¢¤ë¾ì½ê¤Î¤¿¤á¡¢·úÃÛ¼ç¤ÏµþÉ͵޹ÔÅÅÅ´¤È¤Ê¤Ã¤Æ¤¤¤Þ¤¹¡£

¡¡Âè°ìµþÉͱ褤¤«¤é»£±Æ¤·¤¿µþµÞÉÊÀî±Ø¤Î¥Û¡¼¥à¤Ç¤¹¡£¸½ºß¤Î¥Û¡¼¥à¤Ï¹â²Í¤È¤Ê¤Ã¤Æ¤¤¤Þ¤¹¤¬1³¬¤Ë°ÜÀߤµ¤ì¡¢¥Û¡¼¥à¤Ï3Ëܤ«¤é4ËܤËÁýÀߤµ¤ì¤Þ¤¹¡£¤Þ¤¿¡¢µþµÞÉÊÀî±Ø¤ÎÎٱؤÎËÌÉÊÀî±Ø¤Ï¹â²Í²½¤µ¤ì¡¢ÉÊÀî±Ø¤ÈËÌÉÊÀî±Ø¤Î´Ö¤Ë¤¢¤ëƧÀÚ¤¬½üµî¤µ¤ì¤Þ¤¹¡£

¡¡ÆîÅ즤«¤é»£±Æ¤·¤¿Æî³¹¶è¤Ç¤¹¡£ÉÊÀî±Ø¼þÊդǤÏÂç²þ¤¤¬¿Ê¹ÔÃæ¤Ç¡¢´°À®»þ¤Ë¤Ïº£¤ÈÁ´Á³°ã¤Ã¤¿¸÷·Ê¤¬¹¤¬¤ê¤Þ¤¹¡£
ÃÏ¿Þ
ʪ·ï³µÍסÊË̳¹¶è¡Ë

Ë̳¹¶è ¹©»ö¹©Äø[½Ðŵ¡§¹Á¶è]

¡¡Ë̳¹¶è¤Î·úÃ۷ײè¤Î¤ªÃΤ餻¤Ç¤¹¡£
¢£Êª·ï³µÍסÊË̳¹¶è¡Ë¢£
»ö¶È̾¡§(²¾¾Î)ÉÊÀî±Ø³¹¶èÃ϶è Ë̳¹¶è¿·Ã۷ײè
½êºßÃÏ¡§ÅìµþÅÔ¹Á¶è¹ÁÆî£²ÃúÌܵڤӹâÎØ£³ÃúÌܳ°
¸òÄÌ¡§JR³ÆÀþ¡ÖÉÊÀî¡×±Ø
¡¡¡¡¡¡µþµÞËÜÀþ¡ÖÉÊÀî¡×±Ø
ÍÑÅÓ¡§»ö̳½ê¡¢Å¹ÊÞ¡¢±Ø»ÜÀß¡¢Ãó¼Ö¾ìÅù
³¬¿ô¡§ÃϾå28³¬¡¢Ãϲ¼3³¬
¹â¤µ¡§Ìó150m
¹½Â¤¡§Å´¹ü¤¡¢°ìÉôÅ´¹üÅ´¶Ú¥³¥ó¥¯¥ê¡¼¥È¤
´ðÁù©Ë¡¡§Ä¾ÀÜ´ðÁᢰìÉô¹º´ðÁÃ
ÉßÃÏÌÌÀÑ¡§Ìó14,700Ö
·úÃÛÌÌÀÑ¡§Ìó11,000Ö
±ä¾²ÌÌÀÑ¡§Ìó165,000Ö
·úÃۼ硧ÅìÆüËÜιµÒÅ´Æ»
´ðËÜÀ߷ס§JRÅìÆüËÜ·úÃÛÀ߷ס¦ÆüËÜÀ߷ס¦Æü·úÀß·×JV
Àß·×¼Ô¡§ÅìÆüËÜιµÒÅ´Æ»
»Ü¹©¼Ô¡§Ì¤Äê
¹©´ü¡§2026ǯ3·î¾å½ÜÃ幩¡Á2031ǯ3·î²¼½Ü½×¹©Í½Äê
ʪ·ï³µÍ×¡ÊÆî³¹¶è¡Ë

Æî³¹¶è ¹©»ö¹©Äø[½Ðŵ¡§¹Á¶è]

¡¡Æî³¹¶è(Æî-a)¤Î·úÃ۷ײè¤Î¤ªÃΤ餻¤Ç¤¹¡£
¢£Êª·ï³µÍ×¡ÊÆî³¹¶è¡¡Æî-a¡Ë¢£
»ö¶È̾¡§(²¾¾Î)ÉÊÀî±Ø³¹¶èÃÏ¶è Æî³¹¶è(Æî-a)¿·Ã۷ײè
½êºßÃÏ¡§ÅìµþÅÔ¹Á¶è¹ÁÆî£²ÃúÌܵڤӹâÎØ£³ÃúÌܳ°
¸òÄÌ¡§JR³ÆÀþ¡ÖÉÊÀî¡×±Ø
¡¡¡¡¡¡µþµÞËÜÀþ¡ÖÉÊÀî¡×±Ø
ÍÑÅÓ¡§»ö̳½ê¡¢Å¹ÊÞ¡¢½ÉÇñ»ÜÀß¡¢½¸²ñ¾ì¡¢±Ø»ÜÀß¡¢Ãó¼Ö¾ì¡¢ÃóÎØ¾ìÅù
³¬¿ô¡§ÃϾå28³¬¡¢Ãϲ¼2³¬
¹â¤µ¡§Ìó150m
¹½Â¤¡§Å´¹ü¤¡¢°ìÉôÅ´¹üÅ´¶Ú¥³¥ó¥¯¥ê¡¼¥È¤
´ðÁù©Ë¡¡§Ä¾ÀÜ´ðÁᢰìÉô¹º´ðÁÃ
ÉßÃÏÌÌÀÑ¡§Ìó17,300Ö
·úÃÛÌÌÀÑ¡§Ìó14,800Ö
±ä¾²ÌÌÀÑ¡§Ìó201,000Ö
·úÃۼ硧µþÉ͵޹ÔÅÅÅ´
Àß·×¼Ô¡§Æü·úÀß·×
»Ü¹©¼Ô¡§Ì¤Äê
¹©´ü¡§2026ǯ3·î²¼½ÜÃ幩¡Á2037ǯ3·î²¼½Ü½×¹©Í½Äê
½Ðŵ
¢§´Ä¶¥¢¥»¥¹¥á¥ó¥È¡§¹Á¶è¡Ê2023ǯ3·î15Æü¡Ë
¡¦¹Á¶è´Ä¶±Æ¶ÁÄ´ºº¼Â»ÜÍ׹ˤ˴ð¤Å¤¯´Ä¶±Æ¶ÁÄ´ºº½ñ¤Î±ÜÍ÷¡Ú(²¾¾Î)ÉÊÀî±Ø³¹¶èÃ϶èÆî³¹¶è¿·Ã۷ײè¡Û
¡¦¹Á¶è´Ä¶±Æ¶ÁÄ´ºº¼Â»ÜÍ׹ˤ˴ð¤Å¤¯´Ä¶±Æ¶ÁÄ´ºº½ñ¤Î±ÜÍ÷¡Ú(²¾¾Î)ÉÊÀî±Ø³¹¶èÃ϶èË̳¹¶è¿·Ã۷ײè¡Û
¢¨½ÄÍ÷´ü´Ö¡§2024ǯ10·î1Æü¡Á2024ǯ11·î1Æü¤Þ¤Ç
¢§¹Á¶èµÄ²ñ¡§·úÀß¾ïǤ°Ñ°÷²ñ¡Ê2023ǯ11·î6Æü¡Ë
»ñÎÁ7_ÉÊÀî±Ø¼þÊÕÃ϶èÃ϶è·×²è¤ÎÊѹ¹¡Ê°Æ¡Ë¤Ë¤Ä¤¤¤Æ (PDF 2,624KB)
¢§ÅìÆüËÜιµÒÅ´Æ»¡§¥Ë¥å¡¼¥¹¥ê¥ê¡¼¥¹¡Ê2023ǯ8·î29Æü¡Ë
ÉÊÀî±Ø³¹¶èÃ϶è¤Ë¤ª¤±¤ë³«È¯·×²è¤Ë¤Ä¤¤¤Æ
¢§Æâ³ÕÉÜ¡§Âè26²ó¡¡ÅìµþÅÔÅÔ»ÔºÆÀ¸Ê¬²Ê²ñ¡¡ÇÛÉÛ»ñÎÁ¡Ê2023ǯ8·î25Æü¡Ë
»ñÎÁ£± ÅÔ»ÔºÆÀ¸ÆÃÊÌÃ϶è¡ÊÉÊÀî±Ø³¹¶èÃ϶è¡ËÅԻԷײè¡ÊÁǰơˤγµÍ×
- ¥«¥Æ¥´¥ê
- ¹Á¶è







