
¡¡·îÅç¤Î¥¿¥ï¡¼¥Þ¥ó¥·¥ç¥ó¡Ö¥°¥é¥ó¥É¥·¥Æ¥£¥¿¥ï¡¼·îÅç¡×(ÃϾå58³¬¡¢ºÇ¹â¹â¤µ199.45m)¤Î·úÀßÃϤǤ¹¡£2024ǯ9·î16Æü¤Ë·îÅç¤â¤ó¤¸¤ã¥¹¥È¥ê¡¼¥È¤«¤é»£±Æ¤·¤Þ¤·¤¿¡£¤³¤Á¤é¦¤Ë¤ÏŹÊÞ¤¬ÇÛÃÖ¤µ¤ì¡¢¤½¤Î¤Þ¤ÞÉßÃϤò¼Ð¤á¤Ë²£ÀڤäƶùÅÄÀî¥Æ¥é¥¹¤Þ¤Ç¹Ô¤±¤ë¤è¤¦¤Ë¤Ê¤ê¤Þ¤¹¡£¤³¤Îµ»ö¤Ç¤ÏƱ¥¿¥ï¥Þ¥ó¤Î³µÍפä·úÀß¾õ¶·¡¢ÃÏ¿ÞÅù¤òºÜ¤»¤Æ¤¤¤Þ¤¹¡£
¥°¥é¥ó¥É¥·¥Æ¥£¥¿¥ï¡¼·îÅç¤Ë¤Ä¤¤¤Æ

³°´Ñ´°À®Í½ÁÛ¿Þ[½Ðŵ¡§¸ø¼°HP]
¡¡¡Ö¥°¥é¥ó¥É¥·¥Æ¥£¥¿¥ï¡¼·îÅç¡×¤Ï¶ùÅÄÀî¤È¤â¤ó¤¸¤ã¥¹¥È¥ê¡¼¥È¤Ë¶´¤Þ¤ì¤¿¾ì½ê¤Î¥¿¥ï¡¼¥Þ¥ó¥·¥ç¥ó¤Ç¡¢µ¬ÌϤÏÃϾå58³¬¡¢Ãϲ¼2³¬¡¢¹â¤µ197.65m¡¢ºÇ¹â¹â¤µ199.45m¡¢ÉßÃÏÌÌÀÑ1Ëü76.42Ö¡¢·úÃÛÌÌÀÑ6,743.49Ö¡¢±ä¾²ÌÌÀÑ14Ëü4276.80Ö¡¢Áí¸Í¿ô¤Ï1285¸Í¡Êʬ¾ù½»¸Í915¸Í¡¢Èóʬ¾ù½»¸Í340¸Í¡¢¤½¤Î¾¹¹ðÂоݳ°½»¸Í30¸Í¡Ë¤È¤Ê¤Ã¤Æ¤¤¤Þ¤¹¡£·úÃÛ¼ç¤Ï·îÅç»°ÃúÌÜËÌÃ϶è»Ô³¹ÃϺƳ«È¯Áȹç¡Ê»²²ÃÁȹç°÷¡¦Çä¼ç¡§½»Í§ÉÔÆ°»º¡¢Åìµþ·úʪ¡¢ÂçÏ¥ϥ¦¥¹¹©¶È¡¢¼óÅÔ·÷ÉÔdz·úÃÛ¸ø¼Ò¡Ë¡¢À߷׼ԤϸÞÍηúÀß¡¦Âç·úÀ߷ׯÃÄê¶È̳Âå¹Ô¶¦Æ±ÂΡ¢»Ü¹©¼Ô¤Ï¸ÞÍηúÀߤÇ2026ǯ4·î²¼½Ü½×¹©¡¢2026ǯ9·î²¼½Ü¤ÎÆþµï³«»ÏͽÄê¤Ç¤¹¡£
¡¡¸½ºß¤Ï8¸Í¤¬ÀèÃå½ç¼õÉÕÃæ¤Ç¡¢ÈÎÇä²Á³Ê¤Ï1²¯4800Ëü±ß¡Á3²¯±ß¡¢ÈÎÇä´Ö¼è¤ê¤Ï2LDK¡Á3LDK¡¢ÀìÍÌÌÀѤÏ55.82Ö¡Á91.25֡ʰìÉô½»¸Í¤ÎÀìͥȥé¥ó¥¯¥ë¡¼¥àÌÌÀÑ1.39Ö¡Á2.01Ö¤ò´Þ¤à¡Ë¡¢¥Ð¥ë¥³¥Ë¡¼ÌÌÀÑ6.45Ö¡Á12.24֤ȤʤäƤ¤¤Þ¤¹¡£

ÉßÃÏÇÛÃÖ³µÇ°¿Þ[½Ðŵ¡§¸ø¼°HP]
¡¡¡Ö¥°¥é¥ó¥É¥·¥Æ¥£¥¿¥ï¡¼·îÅç¡×¤¬·úÀߤµ¤ì¤ë¤Î¤Ï¡Ö·îÅç»°ÃúÌÜËÌÃ϶èÂè°ì¼ï»Ô³¹ÃϺƳ«È¯»ö¶È¡×¤ÎA³¹¶è¤Ç¡¢¡Ö·îÅçÀ¾ÃçÄ̤꾦ʳ¹(·îÅç¤â¤ó¤¸¤ã¥¹¥È¥ê¡¼¥È)¡×¦¤Ë¤Ï2³¬·ú¤Æ¤ÎŹÊÞÅ郎ÇÛÃÖ¤µ¤ì¤Þ¤¹¡£¤Þ¤¿¡¢¥Þ¥ó¥·¥ç¥óËÜÂΤÎ1¡¢2³¬¤Ë¤âŹÊÞ¤¬ÇÛÃÖ¤µ¤ì¡¢Á´ÂΤǤÏŹÊÞÅù¤¬25¶è²èÍѰդµ¤ì¤Þ¤¹¡£
¡¡¶ùÅÄÀî¤ËÌ̤·¤¿¾ì½ê¤Ë¤Ï¾®µ¬ÌϤÊB1³¹¶è¤ÈB2³¹¶è¤¬ÇÛÃÖ¤µ¤ì¡¢B1³¹¶è¤ÏÃϾå6³¬¡¢¹â¤µ24.80m¡¢ºÇ¹â¹â¤µ27.40m¡¢±ä¾²ÌÌÀÑ1,925.19֤ξ㤬¤¤¼Ô¥°¥ë¡¼¥×¥Û¡¼¥à¤È¤Ê¤ê¡¢B2³¹¶è¤ÏÃϾå7³¬¡¢¹â¤µ25.37m¡¢ºÇ¹â¹â¤µ27.12m¡¢±ä¾²ÌÌÀÑ3,245.34֤ζ¦Æ±½»Âð¤È¤Ê¤ê¤Þ¤¹¡£

ΩÃϳµÇ°¿Þ[½Ðŵ¡§¸ø¼°HP]
¡¡B1³¹¶è¤Î2³¬¤Ë¤Ï¶ùÅÄÀî¥Æ¥é¥¹¤ËÀܳ¤¹¤ë¹¾ì¤¬À°È÷¤µ¤ì¡¢¤½¤Î¹¾ì¤È¡Ö¥°¥é¥ó¥É¥·¥Æ¥£¥¿¥ï¡¼·îÅç¡×¤¬Êâ¹Ô¼Ô¥Ç¥Ã¥¤ÇÀܳ¤¹¤ë¤³¤È¤Ç¡Ö·îÅçÀ¾ÃçÄ̤꾦ʳ¹(·îÅç¤â¤ó¤¸¤ã¥¹¥È¥ê¡¼¥È)¡×¤«¤é¶ùÅÄÀî¥Æ¥é¥¹¤Þ¤Ç¤¬·Ò¤¬¤ëÊâ¹Ô¶õ´Ö¤¬ÃÂÀ¸¤·¤Þ¤¹¡£

¥×¥é¥¶¥¬¡¼¥Ç¥ó´°À®Í½ÁÛ¿Þ[½Ðŵ¡§¸ø¼°HP]
¡¡¡Ö·îÅçÀ¾ÃçÄ̤꾦ʳ¹(·îÅç¤â¤ó¤¸¤ã¥¹¥È¥ê¡¼¥È)¡×¤ËÌ̤·¤¿¾ì½ê¤ËÀ°È÷¤µ¤ì¤ë¥×¥é¥¶¥¬¡¼¥Ç¥ó¤Î´°À®Í½ÁۿޤǤ¹¡£

¥³¥ß¥å¥Ë¥Æ¥£¥¹¥È¥ê¡¼¥È´°À®Í½ÁÛ¿Þ[½Ðŵ¡§¸ø¼°HP]
¡¡¥×¥é¥¶¥¬¡¼¥Ç¥ó¤ÎÀè¤Ë¤ÏÏ©ÃÏʸ²½¤ò·Ñ¾µ¤·¤¿¥³¥ß¥å¥Ë¥Æ¥£¥¹¥È¥ê¡¼¥È¤¬À°È÷¤µ¤ì¡¢±¦¤Î³¬Ãʤò¾å¤Ã¤¿2³¬²°¾å¤Ë¤Ï¥Õ¥©¥ì¥¹¥È¥Ñ¡¼¥¯¤¬ÇÛÃÖ¤µ¤ì¤Þ¤¹¡£

¥Õ¥©¥ì¥¹¥È¥Ñ¡¼¥¯´°À®Í½ÁÛ¿Þ[½Ðŵ¡§¸ø¼°HP]
¡¡2³¬¤Î²°¾å¤ËÀ°È÷¤µ¤ì¤ë¥Õ¥©¥ì¥¹¥È¥Ñ¡¼¥¯¤Î´°À®Í½ÁۿޤǤ¹¡£¤³¤Î¹¾ì¤ÈB1³¹¶è¤Î¹¾ì¤ÏÊâ¹Ô¼Ô¥Ç¥Ã¥¤ÇÀܳ¤µ¤ì¶ùÅÄÀî¥Æ¥é¥¹¤Þ¤Ç·Ò¤¬¤ê¤Þ¤¹¡£

³°´Ñ´°À®Í½ÁÛ¿Þ[½Ðŵ¡§¸ø¼°HP]
¡¡¥¿¥ï¥Þ¥óËÜÂΤȶùÅÄÀî¤È¤Î´Ö¤Ë¤Ï¾®µ¬ÌϤʥޥ󥷥ç¥ó¤Ê¤É¤¬¤¢¤ë¤¿¤á¡¢¥ê¥Ð¡¼¥Ó¥å¡¼¤¬Â¸Ê¬¤Ë³Ú¤·¤á¤ë¤Î¤Ï10³¬ÄøÅÙ¤«¤é¤È¤Ê¤ê¤½¤¦¤Ç¤¹¡£
¶¦ÍѶõ´Ö¡¦¶¦ÍÑ»ÜÀß

¥°¥é¥ó¥É¥¨¥ó¥È¥é¥ó¥¹´°À®Í½ÁÛ¿Þ[½Ðŵ¡§¸ø¼°HP]
¡¡ÉßÃÏË̦¤ËÇÛÃÖ¤µ¤ì¤ë¡Ö¥°¥é¥ó¥É¥·¥Æ¥£¥¿¥ï¡¼·îÅç¡×¤Î¥°¥é¥ó¥É¥¨¥ó¥È¥é¥ó¥¹¤Ç¤¹¡£±Ø¤Ë¶á¤¤·îÅç¤â¤ó¤¸¤ã¥¹¥È¥ê¡¼¥È¦¤Ë¤Ï¾¦¶È»ÜÀߤ¬ÇÛÃÖ¤µ¤ì¡¢±Ø¤«¤é¤Ï¾¯¤·Î¥¤ì¤¿¶ùÅÄÀ˥°¥é¥ó¥É¥¨¥ó¥È¥é¥ó¥¹¤¬ÇÛÃÖ¤µ¤ì¤Þ¤¹¡£

¥°¥é¥ó¥É¥¨¥ó¥È¥é¥ó¥¹¥Û¡¼¥ë´°À®Í½ÁÛ¿Þ[½Ðŵ¡§¸ø¼°HP]
¡¡¥°¥é¥ó¥É¥¨¥ó¥È¥é¥ó¥¹¥Û¡¼¥ë¤Ï¥é¥¦¥ó¥¸¥¹¥Ú¡¼¥¹¤â¤¢¤ë2ÁØ¿á¤È´¤±¤Î¶õ´Ö¤È¤Ê¤ê¤Þ¤¹¡£

¥³¡¼¥Á¥¨¥ó¥È¥é¥ó¥¹´°À®Í½ÁÛ¿Þ[½Ðŵ¡§¸ø¼°HP]
¡¡Ãϲ¼¤Ë¤Ï¥³¡¼¥Á¥¨¥ó¥È¥é¥ó¥¹¤¬2¥õ½êÀߤ±¤é¤ì¤Þ¤¹¡£

¤Ä¤¤·¤ÞFARM´°À®Í½ÁÛ¿Þ[½Ðŵ¡§¸ø¼°HP]
¡¡Å¹ÊÞÅï¤Î²°¾å(3³¬)¤Ë¤Ï¶¦ÍÑ»ÜÀߤȤ·¤Æ²ÈÄíºÚ±à¤ò³Ú¤·¤á¤ë¡Ö¤Ä¤¤·¤ÞFARM¡×¤¬ÇÛÃÖ¤µ¤ì¤Þ¤¹¡£

¥¥Ã¥º¥ë¡¼¥à¡Ê½¸²ñ¼¼¡Ë´°À®Í½ÁÛ¿Þ[½Ðŵ¡§¸ø¼°HP]
¡¡2³¬¤ËÀßÃÖ¤µ¤ì¤ë¥¥Ã¥º¥ë¡¼¥à¤Î¼çÍ×ÍÑÅÓ¤ÏÃϰè¤Ë³«¤«¤ì¤¿½¸²ñ¼¼¤È¤Ê¤Ã¤Æ¤ª¤ê¡¢¥¥Ã¥º¥ë¡¼¥à¤È¤·¤ÆÍøÍѤǤ¤ë¤Î¤Ï½¸²ñ¼¼¤È¤·¤Æ¤ÎÍøÍѳ°¤Î¤È¤¤È¤Ê¤ê¤Þ¤¹¡£

¥Æ¥ì¥ï¡¼¥¯¥é¥¦¥ó¥¸´°À®Í½ÁÛ¿Þ[½Ðŵ¡§¸ø¼°HP]
¡¡2³¬¤Ë¤Ï¥Æ¥ì¥ï¡¼¥¯¥é¥¦¥ó¥¸¤¬ÇÛÃÖ¤µ¤ì¤Þ¤¹¡£

¥²¥¹¥È¥ë¡¼¥à´°À®Í½ÁÛ¿Þ[½Ðŵ¡§¸ø¼°HP]
¡¡3³¬¤Ë¤ÏÏÂÉ÷¤ÈÍÎÉ÷¤Î¥²¥¹¥È¥ë¡¼¥à¤¬2Éô²°ÍѰդµ¤ì¤Þ¤¹¡£

¥Ó¥å¡¼¥é¥¦¥ó¥¸´°À®Í½ÁÛ¿Þ[½Ðŵ¡§¸ø¼°HP]
¡¡30³¬¤Ë¤Ï¥Ó¥å¡¼¥é¥¦¥ó¥¸¤¬ÇÛÃÖ¤µ¤ì¤Þ¤¹¡£

¥Ó¥å¡¼¥é¥¦¥ó¥¸´°À®Í½ÁÛ¿Þ[½Ðŵ¡§¸ø¼°HP]
¡¡¥Ó¥å¡¼¥é¥¦¥ó¥¸¤«¤é¤Ï´ã²¼¤Ë¶ùÅÄÀî¡¢ÀµÌ̤ËÅìµþÅÔ¿´¤Î͹âÁإӥ뷲¤È¤¤¤Ã¤¿·Ê¿§¤¬¹¤¬¤ê¤Þ¤¹¡£

¥Ñ¡¼¥Æ¥£¥ë¡¼¥à´°À®Í½ÁÛ¿Þ[½Ðŵ¡§¸ø¼°HP]
¡¡30³¬¤Ë¤Ï¥Ñ¡¼¥Æ¥£¥ë¡¼¥à¤âÇÛÃÖ¤µ¤ì¤Þ¤¹¡£
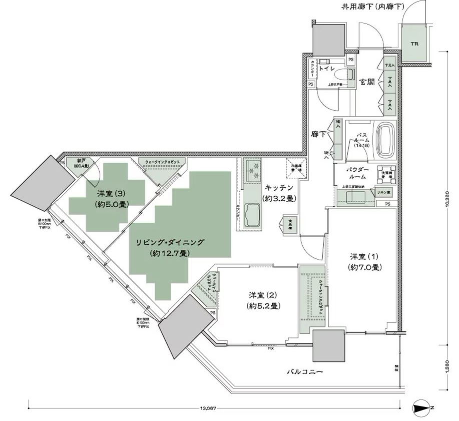
´Ö¼è¤ê¿Þ

S-55C ɸ½à¥¿¥¤¥×[½Ðŵ¡§¸ø¼°HP]
¡¡S-55C ɸ½à¥¿¥¤¥×¤Î´Ö¼è¤ê¿Þ¤Ç¤¹¡£´Ö¼è¤ê¤Ï2LDK+N+WIC¡¢ÀìÍÌÌÀѤÏ56.54Ö¡¢¥Ð¥ë¥³¥Ë¡¼ÌÌÀÑ11.20֤ǡ¢Æ±¥¿¥¤¥×¤Î44³¬¤ÎÉô²°¤ÎÈÎÇä²Á³Ê¤Ï1²¯5000Ëü±ß¤È¤Ê¤Ã¤Æ¤¤¤Þ¤¹¡£

W-75Art ɸ½à¥¿¥¤¥×[½Ðŵ¡§¸ø¼°HP]
¡¡W-75Art ɸ½à¥¿¥¤¥×¤Î´Ö¼è¤ê¿Þ¤Ç¤¹¡£´Ö¼è¤ê¤Ï3LDK+N+2WIC+SIC¡¢ÀìÍÌÌÀѤÏ78.95Ö¡¢¥Ð¥ë¥³¥Ë¡¼ÌÌÀÑ15.34֤ǡ¢Æ±¥¿¥¤¥×¤Î49³¬¤ÎÉô²°¤ÎÈÎÇä²Á³Ê¤Ï1²¯9800Ëü±ß¤Ç¤·¤¿¡£

E-80Atr ɸ½à¥¿¥¤¥×[½Ðŵ¡§¸ø¼°HP]
¡¡E-80Atr ɸ½à¥¿¥¤¥×¤Î´Ö¼è¤ê¿Þ¤Ç¤¹¡£´Ö¼è¤ê¤Ï3LDK+N+3WIC¡¢ÀìÍÌÌÀѤÏ83.74Ö¡¢¥Ð¥ë¥³¥Ë¡¼ÌÌÀÑ12.24֤ȤʤäƤ¤¤Þ¤¹¡£

E-90Atr ɸ½à¥¿¥¤¥×[½Ðŵ¡§¸ø¼°HP]
¡¡E-90Atr ɸ½à¥¿¥¤¥×¤Î´Ö¼è¤ê¿Þ¤Ç¤¹¡£´Ö¼è¤ê¤Ï3LDK+2N+3WIC+SIC¡¢ÀìÍÌÌÀѤÏ91.25Ö¡¢¥Ð¥ë¥³¥Ë¡¼ÌÌÀÑ6.45֤ǡ¢Æ±¥¿¥¤¥×¤Î38³¬¤ÎÉô²°¤¬3²¯±ß¤ÇÀèÃå½ç¼õÉÕÃæ¤È¤Ê¤Ã¤Æ¤¤¤Þ¤¹¡£
°ÌÃÖ¿Þ

°ÌÃÖ¿Þ[½Ðŵ¡§¸ø¼°HP]
¡¡¡Ö¥°¥é¥ó¥É¥·¥Æ¥£¥¿¥ï¡¼·îÅç¡×¤Î·úÀßÃϤϡַîÅç¡×±Ø¤È¡Ö¾¡¤É¤¡×±Ø¤Îξ±Ø¤ÎÃæ´Ö¤¯¤é¤¤¤Ë°ÌÃÖ¤·¤Æ¤ª¤ê¡¢¡Ö·îÅç¡×±Ø¤¬ÅÌÊâ5ʬ¡¢¡Ö¾¡¤É¤¡×±Ø¤¬ÅÌÊâ9ʬ¤È¤Ê¤Ã¤Æ¤¤¤Þ¤¹¡£¤¿¤À¡¢·îÅç±Ø¤Ï½ÐÆþ¸ý¤«¤é¥Û¡¼¥à¤Þ¤Ç¾¯¡¹µ÷Î¥¤¬¤¢¤ê¤Þ¤¹¡£
·úÀß¾õ¶·

¡¡2024ǯ9·î16Æü¤ËË̦¤«¤é»£±Æ¤·¤¿¡Ö¥°¥é¥ó¥É¥·¥Æ¥£¥¿¥ï¡¼·îÅç¡×(ÃϾå58³¬¡¢ºÇ¹â¹â¤µ199.45m)¤Î·úÀßÃϤǤ¹¡£¤³¤Á¤é¤Î³ÑÃϤ˥°¥é¥ó¥É¥¨¥ó¥È¥é¥ó¥¹¤¬ÇÛÃÖ¤µ¤ì¤Þ¤¹¡£

¡¡Æ±¥¿¥ï¥Þ¥ó¤Î³ÑÉô²°¤Ï¼Ð¤á¤Ë¤Ê¤Ã¤Æ¤ª¤ê¡¢¤½¤ÎÉôʬ¤Ï¾²¤«¤éÅ·°æ¤Þ¤Ç¤¬Áë¤È¤Ê¤ë¥À¥¤¥Ê¥ß¥Ã¥¯¥Ñ¥Î¥é¥Þ¥¦¥¤¥ó¥É¥¦¤Ë¤Ê¤ê¤Þ¤¹¡£

¡¡À¾Â¦¤«¤é»£±Æ¡£Æ»Ï©¹©»ö¡©¤Î½àÈ÷Ãæ¤Ç·ÙÈ÷°÷¤äºî¶È°÷¤À¤é¤±¤Ç»£¤ê¤º¤é¤«¤Ã¤¿¤Ç¤¹¡£

¡¡À¾Â¦¤«¤é»£±Æ¡£±¦Â¦¤Ë¸«ÀÚ¤ì¤Æ¤¤¤ë¥Þ¥ó¥·¥ç¥ó¤Ï¡ÖTHE¥Ñ¡¼¥à¥¹·îÅç¥ë¥Ê¥¬¡¼¥Ç¥ó¡×(ÃϾå10³¬)¤Ç¡¢¤³¤Î¶è²è¤Ç¤ÏÍ£°ìºÆ³«È¯¤Ë»²²Ã¤·¤Æ¤¤¤Ê¤¤·úʪ¤È¤Ê¤Ã¤Æ¤¤¤Þ¤¹¡£

¡¡Å즤«¤é»£±Æ¡£¤³¤Á¤é¤Î¡Ö·îÅçÀ¾ÃçÄ̤꾦ʳ¹(·îÅç¤â¤ó¤¸¤ã¥¹¥È¥ê¡¼¥È)¡×¤ËÌ̤·¤¿¾ì½ê¤Ë¤ÏŹÊޤ乾ì¶õ´Ö¤È¤Ê¤ë¥×¥é¥¶¥¬¡¼¥Ç¥ó¤¬ÇÛÃÖ¤µ¤ì¤Þ¤¹¡£

¡¡·îÅç¤â¤ó¤¸¤ã¥¹¥È¥ê¡¼¥È¤ÎÆþ¸ý¤¢¤¿¤ê¤«¤é¤â¡Ö¥°¥é¥ó¥É¥·¥Æ¥£¥¿¥ï¡¼·îÅç¡×¤¬¸«¤¨¤ë¤è¤¦¤Ë¤Ê¤Ã¤Æ¤¤¤Þ¤¹¡£

¡¡»£±Æ»þ¤Ë¤Ï26³¬¤Þ¤Ç·úÀߤ¬¿Ê¤ó¤Ç¤¤¤¿¤Î¤Ç¡¢¤³¤³¤«¤é¤Þ¤ÀÇܰʾå¤Î¹â¤µ¤Ë¤Ê¤ê¤Þ¤¹¡£

¡¡¤â¤ó¤¸¤ã¥¹¥È¥ê¡¼¥È¤«¤é¾¯¤·¶ùÅÄÀ˰Üư¤¹¤ë¤È¡¢Ï©ÃϤÎÀè¤Ë¡Ö¥°¥é¥ó¥É¥·¥Æ¥£¥¿¥ï¡¼·îÅç¡×¤¬¸«¤¨¤ë¾ì½ê¤â¤¢¤ê¤Þ¤¹¡£

¡¡Å즤ˤ¢¤ëīĬÂç¶¶¤«¤é»£±Æ¤·¤¿·îÅç¤È¾¡¤É¤ÊýÌ̤Υ¿¥ï¥Þ¥ó·²¤Ç¤¹¡£

¡¡¡Ö¥°¥é¥ó¥É¥·¥Æ¥£¥¿¥ï¡¼·îÅç¡×¤Ë¥º¡¼¥à¤Ç¤¹¡£

¡¡9·î15Æü¤Ë¥«¥ì¥Ã¥¿¼®Î±¤Î̵ÎÁŸ˾¼¼¤«¤é»£±Æ¤·¤¿¡Ö¥°¥é¥ó¥É¥·¥Æ¥£¥¿¥ï¡¼·îÅç¡×¤Ç¤¹¡£¤½¤Î¼êÁ°¤Î¶ùÅÄÀî±è¤¤¤Î·úʪ¤¬B1³¹¶è¤Î¾ã¤¬¤¤¼Ô¥°¥ë¡¼¥×¥Û¡¼¥à¤Ç¤¹¡£

¡¡¾¯¤·¹³Ñ¤Ç»£±Æ¡£±¦¸å¤í¤Î˽§¥¨¥ê¥¢¤â´Þ¤á¤ÆÄ¶¹âÁز½¤¬¤«¤Ê¤ê¿Ê¤ß¤Þ¤·¤¿¡£

¡¡¼êÁ°¤ÎÃÛÃϻԾìÀ×ÃϤκƳ«È¯¡ÖÃÛÃÏÃ϶è¤Þ¤Á¤Å¤¯¤ê»ö¶È¡×¤¬´°À®¤¹¤ë¤È¡¢·îÅ硦¾¡¤É¤¥¨¥ê¥¢¤Î²ÁÃͤ¬¤â¤¦°ìÃʳ¬¾å¤¬¤ê¤½¤¦¤Ç¤¹¡£
ÃÏ¿Þ
ʪ·ï³µÍ×

¡¡A³¹¶è¤Î·úÃ۷ײè¤Î¤ªÃΤ餻¤Ç¤¹¡£
¢£Êª·ï³µÍ×(A³¹¶è)¢£
̾¾Î¡§¥°¥é¥ó¥É¥·¥Æ¥£¥¿¥ï¡¼·îÅç
»ö¶È̾¡§·îÅç»°ÃúÌÜËÌÃ϶èÂè°ì¼ï»Ô³¹ÃϺƳ«È¯»ö¶È A³¹¶è
½êºßÃÏ¡§ÅìµþÅÔÃæ±û¶è·îÅ磳ÃúÌÜ3300ÈÖ¾¡ÊÃÏÈÖ¡Ë
¸òÄÌ¡§Åìµþ¥á¥È¥íͳÚÄ®Àþ¡Ö·îÅç¡×±Ø¤Þ¤ÇÅÌÊâ5ʬ
¡¡¡¡¡¡ÅÔ±ÄÂç¹¾¸ÍÀþ¡Ö·îÅç¡×±Ø¤Þ¤ÇÅÌÊâ5ʬ
¡¡¡¡¡¡ÅÔ±ÄÂç¹¾¸ÍÀþ¡Ö¾¡¤É¤¡×±Ø¤Þ¤ÇÅÌÊâ9ʬ
ÍÑÅÓ¡§¶¦Æ±½»Âð¡¢¾¦¶È¡¢Êݰé½ê¡¢¥Ç¥¤¥µ¡¼¥Ó¥¹Â¾
Áí¸Í¿ô¡§1285¸Í¡Êʬ¾ù½»¸Í915¸Í¡¢Èóʬ¾ù½»¸Í340¸Í¡¢¤½¤Î¾¹¹ðÂоݳ°½»¸Í30¸Í¡Ë¡¢Â¾Å¹ÊÞÅù25¶è²è
³¬¿ô¡§ÃϾå58³¬¡¢Ãϲ¼2³¬
¹â¤µ¡§197.65m¡ÊºÇ¹â¹â¤µ199.45m¡Ë
¹½Â¤¡§Å´¶Ú¥³¥ó¥¯¥ê¡¼¥È¤ °ìÉôÅ´¹ü¤¡¢À©¿¶¹½Â¤
´ðÁù©Ë¡¡§¸½¾ì¤À®¹º¡Ê¥¢¡¼¥¹¥É¥ê¥ë¼°³ÈÄ칩ˡ¡Ë
ÉßÃÏÌÌÀÑ¡§10,076.42Ö
·úÃÛÌÌÀÑ¡§6,743.49Ö
±ä¾²ÌÌÀÑ¡§144,276.80Ö
·úÃۼ硧·îÅç»°ÃúÌÜËÌÃ϶è»Ô³¹ÃϺƳ«È¯Áȹç
»²²ÃÁȹç°÷(Çä¼ç)¡§½»Í§ÉÔÆ°»º¡¢Åìµþ·úʪ¡¢ÂçÏ¥ϥ¦¥¹¹©¶È¡¢¼óÅÔ·÷ÉÔdz·úÃÛ¸ø¼Ò
»ö¶È¶¨Îϼԡ§¸ÞÍηúÀß¡¢¼óÅÔ·÷ÉÔdz·úÃÛ¸ø¼Ò
Àß·×¼Ô¡§¸ÞÍηúÀß¡¦Âç·úÀ߷ׯÃÄê¶È̳Âå¹Ô¶¦Æ±ÂÎ
»Ü¹©¼Ô¡§¸ÞÍηúÀß
¹©´ü¡§2022ǯ10·î20ÆüÃ幩¡Á2026ǯ4·î²¼½Ü½×¹©Í½Äê
Æþµï¡§2026ǯ12·î²¼½ÜͽÄê
½Ðŵ
¢§¸ø¼°HP¡§¥°¥é¥ó¥É¥·¥Æ¥£¥¿¥ï¡¼·îÅç
https://www.sumitomo-rd-mansion.jp/shuto/tsukishima/
¢§½»Í§ÉÔÆ°»º¡§¥Ë¥å¡¼¥¹¥ê¥ê¡¼¥¹¡Ê2022ǯ11·î7Æü¡Ë
·îÅ票¥ê¥¢¤ÎÆÃÀ¤ò³è¤«¤·¡¢Æø¤ï¤¤¤È¿åÊմͤÎÌ¥ÎϤò°ú¤½Ð¤¹ºÆ³«È¯
¡Ö·îÅç»°ÃúÌÜËÌÃ϶èÂè°ì¼ï»Ô³¹ÃϺƳ«È¯»ö¶È¡× 10·î20ÆüÃ幩
- ¥«¥Æ¥´¥ê
- Ãæ±û¶è







