
¡¡À²³¤¥Õ¥é¥Ã¥°¤Î¥Ä¥¤¥ó¥¿¥ï¥Þ¥ó¡ÖÀ²³¤¥Õ¥é¥Ã¥° SKY DUO¡×(ÃϾå50³¬¡¢ºÇ¹â¹â¤µ179.60m)¤Ç¤¹¡£»£±Æ¤·¤¿2024ǯ9·î15Æü¤Ë¤ÏξÅï¤È¤âºÇ¾å³¬¤ËÅþ㤷¤Æ¤¤¤Þ¤·¤¿¡£À²³¤¥Õ¥é¥Ã¥°¤ÏÅìµþ¸ÞÎØ¤ÎÁª¼ê¼¤È¤·¤ÆÍøÍѤµ¤ì¤¿¥Þ¥ó¥·¥ç¥ó·²¤Ç¡¢SKY DUO¤Ï¸ÞÎØ¸å¤ËÀ²³¤¥Õ¥é¥Ã¥°¤ÎÃæ¿´Éô¤Ç·úÀߤ¬»Ï¤Þ¤Ã¤¿¥Ä¥¤¥ó¥¿¥ï¡¼¥Þ¥ó¥·¥ç¥ó¤Ç¤¹¡£¤³¤Îµ»ö¤Ç¤ÏƱ¥Ä¥¤¥ó¥¿¥ï¥Þ¥ó¤Î³µÍפä·úÀß¾õ¶·¡¢ÃÏ¿ÞÅù¤òºÜ¤»¤Æ¤¤¤Þ¤¹¡£
HARUMI FLAG¤Ë¤Ä¤¤¤Æ

´°À®Í½ÁÛCG[½Ðŵ¡§¸ø¼°HP]
¡¡¡ÖÀ²³¤¥Õ¥é¥Ã¥° SKY DUO¡×¤ÏÅìµþ¥ª¥ê¥ó¥Ô¥Ã¥¯¤ÎÁª¼ê¼¤È¤·¤ÆÍøÍѤµ¤ì¤¿¥Þ¥ó¥·¥ç¥ó·²¡ÖÀ²³¤¥Õ¥é¥Ã¥°¡ÊHARUMI FLAG¡Ë¡×¤ÎÃæ¿´¤Ë°ÌÃÖ¤¹¤ë¥Ä¥¤¥ó¥¿¥ï¡¼¥Þ¥ó¥·¥ç¥ó¤Ç¡¢¥ª¥ê¥ó¥Ô¥Ã¥¯¸å¤Ë·úÀߤ¬»Ï¤Þ¤Ã¤Æ¤¤¤Þ¤¹¡£
¡¡À²³¤¥Õ¥é¥Ã¥°¡ÊHARUMI FLAG¡Ë¤ÏÂ礤¯SUN VILLAGE¡Êʬ¾ù¡Ë¡¢PARK VILLAGE¡Êʬ¾ù¡Ë¡¢SEA VILLAGE¡Êʬ¾ù¡Ë¡¢PORT VILLAGE¡ÊÄÂÂߡˤËʬ¤«¤ì¤Æ¤ª¤ê¡¢¥Ä¥¤¥ó¥¿¥ï¥Þ¥ó¤ÏSUN VILLAGE¤ÈPARK VILLAGE¤Ë1Å鷺¤ÄÇÛÃÖ¤µ¤ì¤Æ¤¤¤Þ¤¹¡£

´°À®Í½ÁÛCG[½Ðŵ¡§¸ø¼°HP]
¡¡º¸¤ÎÅìµþÅÔ¿´Â¦¤¬SUN VILLAGE¤Ç¡¢¥¿¥ï¡¼Åï¤Îµ¬ÌϤÏÃϾå50³¬¡¢Ãϲ¼1³¬¡¢¹â¤µ171.90m¡¢ºÇ¹â¹â¤µ179.60m¡¢ÉßÃÏÌÌÀÑ3Ëü7441.27Ö(SUN VILLAGEÁ´ÂÎ)¡¢·úÃÛÌÌÀÑ2,361.12Ö¡¢±ä¾²ÌÌÀÑ8Ëü4289.84Ö¡¢Áí¸Í¿ô733¸Í¤È¤Ê¤Ã¤Æ¤¤¤Þ¤¹¡£À߷׼Ԥϻ°É©ÃϽêÀ߷ס¢Á°ÅÄ·úÀß¹©¶È¡¢»Ü¹©¼Ô¤ÏÁ°ÅÄ·úÀß¹©¶È¤Ç¡¢2025ǯ½©½×¹©¡¢2025ǯ10·î²¼½Ü¤ÎÆþµï³«»ÏͽÄê¤Ç¤¹¡£
¡¡±¦¤ÎÅìµþÏѦ¤¬PARK VILLAGE¤Ç¡¢¥¿¥ï¡¼Åï¤Îµ¬ÌϤÏÃϾå50³¬¡¢Ãϲ¼1³¬¡¢¹â¤µ171.90m¡¢ºÇ¹â¹â¤µ179.60m¡¢ÉßÃÏÌÌÀÑ3Ëü5175.79Ö¡ÊPARK VILLAGEÁ´ÂΡˡ¢·úÃÛÌÌÀÑ2,424.34Ö¡¢±ä¾²ÌÌÀÑ8Ëü6532.36Ö¡¢Áí¸Í¿ô722¸Í¤È¤Ê¤Ã¤Æ¤¤¤Þ¤¹¡£Àß·×¼Ô¤ÏÆü·ú¥Ï¥¦¥¸¥ó¥°¥·¥¹¥Æ¥à¡¢»°°æ½»Í§·úÀß¡¢»Ü¹©¼Ô¤Ï»°°æ½»Í§·úÀߤǡ¢2025ǯ½©½×¹©¡¢2025ǯ10·î²¼½Ü¤ÎÆþµï³«»ÏͽÄê¤Ç¤¹¡£

³°´Ñ´°À®Í½ÁÛCG[½Ðŵ¡§»°°æÉÔÆ°»º¥ì¥¸¥Ç¥ó¥·¥ã¥ë]
¡¡Çä¼ç¤Ï»°°æÉÔÆ°»º¥ì¥¸¥Ç¥ó¥·¥ã¥ë¡¢»°É©ÃϽê¥ì¥¸¥Ç¥ó¥¹¡¢Ìî¼ÉÔÆ°»º¡¢½»Í§ÉÔÆ°»º¡¢ÅìµÞÉÔÆ°»º¡¢Åìµþ·úʪ¡¢ÂçÏ¥ϥ¦¥¹¹©¶È¡¢½»Í§¾¦»ö¡¢NTTÅÔ»Ô³«È¯¡¢ÆüÅ´¶½ÏÂÉÔÆ°»º¤Î10¼Ò¤Ç¡¢Å¾ÇäÌÜŪ¤Ç¤ÎÊ£¿ô¸Í¹ØÆþ¤òÍÞÀ©¤¹¤ë¤¿¤á¡¢ÅìµþÅÔ¤ÎÍ×ÀÁ¤ò¼õ¤±¤Æ1̾µÁ2¸Í¤Þ¤Ç¤Î¿½¹þÀ©¸Â¤¬¤«¤±¤é¤ì¤Æ¤¤¤Þ¤¹¡£´û¤Ëʪ·ï¥¨¥ó¥È¥ê¡¼¤Î¼õÉդϽªÎ»¤·¤Æ¤ª¤ê¡¢¿·µ¬¤Î¾¦Ã̼õÉդ⽪λ¤·¡¢¸ø¼°HP¤âÊĺ¿¤µ¤ì¤Æ¤¤¤Þ¤¹¡£º£¸å¤Ï10·î5Æü¡Á18Æü¤Ë¿½¹þ¼õÉÕ¡¢10·î21Æü¤ËÃêÁª¤¬¹Ô¤ï¤ì¤Þ¤¹¡£
¡¡º£¤«¤é¤Ç¤Ï¿·µ¬¿½¤·¹þ¤ß¤Ï¤Ç¤¤Þ¤»¤ó¤¬¡¢Âè2´ü¤ÎSUN VILLAGE¤ÎÈÎÇä¸Í¿ô¤Ï164¸Í¡¢ÈÎÇä´Ö¼è¤ê¤Ï2LDK¡¦3LDK¡¢ÀìÍÌÌÀѤÏ54.80Ö¡Á121.66Ö¡¢¥Ð¥ë¥³¥Ë¡¼ÌÌÀѤÏ11.27Ö¡Á51.72Ö¡¢ÈÎÇä²Á³Ê¤Ï5890Ëü±ß¡Á2²¯3290Ëü±ß¡¢PARK VILLAGE¤ÎÈÎÇä¸Í¿ô¤Ï191¸Í¡¢ÈÎÇä´Ö¼è¤ê¤Ï2LDK¡Á3LDK¡¢ÀìÍÌÌÀѤÏ61.33Ö¡Á94.61Ö¡¢¥Ð¥ë¥³¥Ë¡¼ÌÌÀѤÏ15.20Ö¡Á42.84Ö¡¢ÈÎÇä²Á³Ê¤Ï6950Ëü±ß¡Á1²¯6190Ëü±ß¤È¤Ê¤Ã¤Æ¤¤¤Þ¤¹¡£

ÉßÃÏÇÛÃÖ´°À®Í½ÁÛCG[½Ðŵ¡§¸ø¼°HP]
¡¡SYK DUO¤ÏÀ²³¤¥Õ¥é¥Ã¥°¡ÊHARUMI FLAG¡Ë¤ÎÃæ±û¤Ë°ÌÃÖ¤·¤Æ¤ª¤ê¡¢ÌܤÎÁ°¤Î¸òº¹ÅÀ¤òÅϤë¤È¾¦¶È»ÜÀߤΡ֤é¤é¥Æ¥é¥¹HARUMI FLAG¡×¤È¡ÖÃæ±û¶èΩÀ²³¤À¾¾®¡¦Ãæ³Ø¹»¡×¤¬¤¢¤ë¾ì½ê¤È¤Ê¤Ã¤Æ¤¤¤Þ¤¹¡£

³°´Ñ´°À®Í½ÁÛCG[½Ðŵ¡§¸ø¼°HP]
¡¡¤½¤Î¸òº¹ÅÀ¤«¤é³¤Â¦¤Ï¡¢¤æ¤ë¤ä¤«¤ÊÈóÂоÎÀ¤ò¤â¤Ä¥À¥¤¥Ê¥ß¥Ã¥¯¥·¥ó¥á¥È¥ê¡¼¤Î¹Í¤¨Êý¤¬ºÎÍѤµ¤ì¤Æ¤ª¤ê¡¢¼þÊÕ¤ÎÆ»Ï©¤ò´Þ¤á¤Æº¸±¦¤Ç»÷¤¿¤è¤¦¤Ê¥Ç¥¶¥¤¥ó¡¦ÇÛÃ֤Ƿ¤¨¤é¤ì¤Æ¤¤¤Þ¤¹¡£

¥¨¥ó¥È¥é¥ó¥¹¥Û¡¼¥ë´°À®Í½ÁÛCG[½Ðŵ¡§¸ø¼°HP]
¡¡SUN VILLAGE ¥¿¥ï¡¼Åï¤Î¥¨¥ó¥È¥é¥ó¥¹¥Û¡¼¥ë¤Ç¤¹¡£2ÁØ¿á¤È´¤±Å·°æ¹âÌó8m¤Î¶õ´Ö¤È¤Ê¤ê¤Þ¤¹¡£

¥¨¥ó¥È¥é¥ó¥¹¥Û¡¼¥ë´°À®Í½ÁÛCG[½Ðŵ¡§¸ø¼°HP]
¡¡PARK VILLAGE ¥¿¥ï¡¼Åï¤Î¥¨¥ó¥È¥é¥ó¥¹¥Û¡¼¥ë¤Ç¤¹¡£·úʪÁ´ÂΤγ°´Ñ¤Ï¤Û¤ÜƱ¤¸¤Ç¤âÃæ¤ÏSUN VILLAGE¤È¤ÏÁ´Á³°ã¤Ã¤¿¥Ç¥¶¥¤¥ó¤Ë¤Ê¤ê¤Þ¤¹¡£
¶¦ÍÑ»ÜÀß

SUN VILLAGE 48³¬³µÇ°¥¤¥é¥¹¥È[½Ðŵ¡§»°°æÉÔÆ°»º¥ì¥¸¥Ç¥ó¥·¥ã¥ë]
¡¡SUN VILLAGE¦48³¬¤ËÇÛÃÖ¤µ¤ì¤ë¶¦ÍÑ»ÜÀߤγµÇ°¥¤¥é¥¹¥È¤Ç¤¹¡£

SUN VILLAGE SKY LOUNGE URBAN ´°À®Í½ÁÛCG[½Ðŵ¡§¸ø¼°HP]
¡¡SUN VILLAGE¤Î¡ÖSKY LOUNGE URBAN¡×¤ÏÌó280֤餵¤Ç¡Ö¥·¥Æ¥£¥Ó¥å¡¼¡×¤ò¥³¥ó¥»¥×¥È¤ËÅԻԤΤ¤é¤á¤¤ä¿ÍÍÀ¤Ê¤É¤ò°Õ¼±¤·¤¿¶õ´Ö¤Ë¤Ê¤ê¤Þ¤¹¡£

PARK VILLAGE 48³¬³µÇ°¥¤¥é¥¹¥È[½Ðŵ¡§»°°æÉÔÆ°»º¥ì¥¸¥Ç¥ó¥·¥ã¥ë]
¡¡PARK VILLAGE¦48³¬¤ËÇÛÃÖ¤µ¤ì¤ë¶¦ÍÑ»ÜÀߤγµÇ°¥¤¥é¥¹¥È¤Ç¤¹¡£

PARK VILLAGE SUNNY LOUNGE ´°À®Í½ÁÛCG[½Ðŵ¡§»°°æÉÔÆ°»º¥ì¥¸¥Ç¥ó¥·¥ã¥ë]
¡¡48³¬¤ËÇÛÃÖ¤µ¤ì¤ëSUNNY LOUNGE¤Î´°À®Í½ÁۿޤǤ¹¡£À²³¤¥Õ¥é¥Ã¥°Æâ¤Î¶¦ÍÑ»ÜÀߤο¤¯¤ÏÁê¸ßÍøÍѤ¬²Äǽ¤È¤Ê¤ê¤Þ¤¹¡£
´Ö¼è¤ê¿Þ

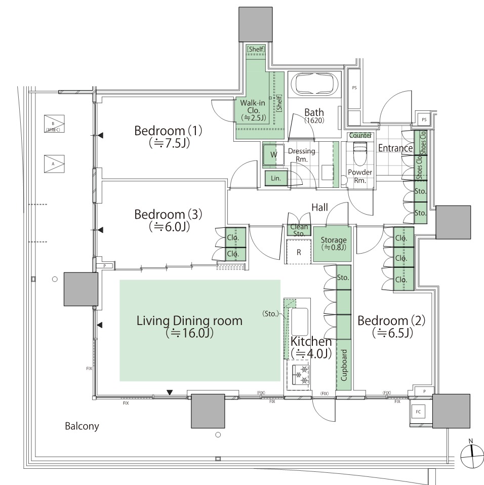
SUN VILLAGE 5TL62¥¿¥¤¥×[½Ðŵ¡§¸ø¼°HP]
¡¡SUN VILLAGE¤ËÇÛÃÖ¤µ¤ì¤ë¥¿¥ï¡¼Åï¤Î5TL62¥¿¥¤¥×¤Î´Ö¼è¤ê¿Þ¤Ç¤¹¡£´Ö¼è¤ê¤Ï2LDK+SIC¡¢ÀìÍÌÌÀѤÏ62.56Ö¡¢¥Ð¥ë¥³¥Ë¡¼ÌÌÀѤÏ15.22Ö¤Ç3¡Á30³¬¤ËÇÛÃÖ¤µ¤ì¤Þ¤¹¡£

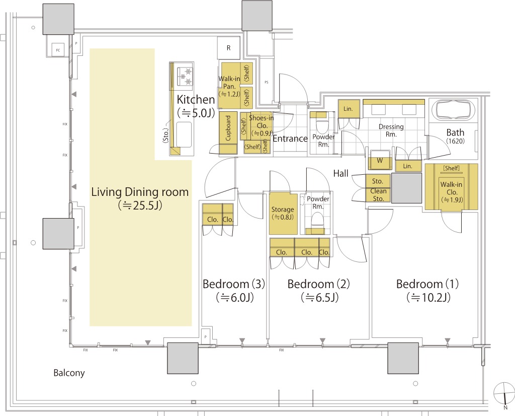
SUN VILLAGE 5TM121¥¿¥¤¥×[½Ðŵ¡§¸ø¼°HP]
¡¡SUN VILLAGE¤ËÇÛÃÖ¤µ¤ì¤ë¥¿¥ï¡¼Åï¤Î5TM121¥¿¥¤¥×¤Î´Ö¼è¤ê¿Þ¤Ç¤¹¡£´Ö¼è¤ê¤Ï3LDK+WIC+SIC+WIP+S¡¢ÀìÍÌÌÀѤÏ121.66Ö¡¢¥Ð¥ë¥³¥Ë¡¼ÌÌÀѤÏ51.72Ö¤Ç48³¬¤ËÇÛÃÖ¤µ¤ì¤Þ¤¹¡£

PARK VILLAGE 6TM71B¥¿¥¤¥×[½Ðŵ¡§¸ø¼°HP]
¡¡PARK VILLAGE¤ËÇÛÃÖ¤µ¤ì¤ë¥¿¥ï¡¼Åï¤Î6TM71B¥¿¥¤¥×¤Î´Ö¼è¤ê¿Þ¤Ç¤¹¡£´Ö¼è¤ê¤Ï3LDK+WIC+SIC¡¢ÀìÍÌÌÀѤÏ71.45Ö¡¢¥Ð¥ë¥³¥Ë¡¼ÌÌÀѤÏ18.10Ö¡Ê19¡Á35³¬¡Ë¡¢18.17Ö¡Ê36¡Á47³¬¡Ë¤Ç19¡Á47³¬¤ËÇÛÃÖ¤µ¤ì¤Þ¤¹¡£

PARK VILLAGE 6TL92¥¿¥¤¥×[½Ðŵ¡§¸ø¼°HP]
¡¡PARK VILLAGE¤ËÇÛÃÖ¤µ¤ì¤ë¥¿¥ï¡¼Åï¤Î6TL92¥¿¥¤¥×¤Î´Ö¼è¤ê¿Þ¤Ç¤¹¡£´Ö¼è¤ê¤Ï3LDK+WIC+S¡¢ÀìÍÌÌÀѤÏ92.91Ö¡¢¥Ð¥ë¥³¥Ë¡¼ÌÌÀѤÏ42.84Ö¤Ç3¡Á18³¬¤ËÇÛÃÖ¤µ¤ì¤Þ¤¹¡£
°ÌÃÖ¿Þ

°ÌÃÖ¿Þ[½Ðŵ¡§¸ø¼°HP]
¡¡À²³¤¥Õ¥é¥Ã¥°¡ÊHARUMI FLAG¡Ë¤ÏÅÔ±ÄÂç¹¾¸ÍÀþ¡Ö¾¡¤É¤¡×±Ø¤ÎÆî¦¤ÇÅÌÊâ18ʬ¤È¤Ê¤Ã¤Æ¤¤¤Þ¤¹¡£±Ø¤«¤é¤Ï¾¯¡¹µ÷Î¥¤¬¤¢¤ê¤Þ¤¹¤¬¡¢¥¨¥ê¥¢Æâ¤Ë¤ÏÅԱĥХ¹¤äÅìµþBRT¡Ê¥Ð¥¹¹â®͢Á÷¥·¥¹¥Æ¥à¡Ë¤¬±¿¹Ô¤·¤Æ¤ª¤ê¡¢¥·¥§¥¢¥µ¥¤¥¯¥ë¤â¿§¡¹¤Ê¾ì½ê¤ËÇÛÃÖ¤µ¤ì¤Æ¤¤¤Þ¤¹¡£¤½¤·¤Æ¡¢BRTÄäα½ê¡¢Ï©Àþ¥Ð¥¹Ää¼Ö»ÜÀß¡¢¥³¥ß¥å¥Ë¥Æ¥£¥µ¥¤¥¯¥ë¥Ý¡¼¥È¡¦Á¥Ã夾줬1¥õ½ê¤Ë¤Þ¤È¤Þ¤Ã¤¿¥Þ¥ë¥Á¥â¥Ó¥ê¥Æ¥£¥¹¥Æ¡¼¥·¥ç¥ó¤Î¡ÖÀ²³¤¸ÞÃúÌÜ¥¿¡¼¥ß¥Ê¥ë¡×¤â¤¢¤ê¤Þ¤¹¡£
¡¡¤Þ¤À¤Þ¤ÀÀè¤ÎÏäˤʤê¤Þ¤¹¤¬¡¢Åìµþ±Ø¤ÈÅìµþ¥Ó¥Ã¥°¥µ¥¤¥È¤ò·Ò¤°¡ÖÅÔ¿´¡¦Î׳¤Ãϲ¼Å´¿·Àþ¡×¤ò2040ǯ¤Þ¤Ç¤Ë³«¶È¤¹¤ë·×²è¤¬¤¢¤ê¡¢¤³¤Î¿·Ï©Àþ¤¬¼Â¸½¤¹¤ë¤ÈÀ²³¤¥¨¥ê¥¢¤Ë¤â¿·±Ø¤¬ÀßÃÖ¤µ¤ì¤ë¤³¤È¤Ë¤Ê¤ê¤Þ¤¹¡£
·úÀß¾õ¶·

¡¡2024ǯ9·î16Æü¤Ë»£±Æ¤·¤¿¡ÖÀ²³¤¥Õ¥é¥Ã¥° SKY DUO¡×(ÃϾå50³¬¡¢ºÇ¹â¹â¤µ179.60m)¤Ç¤¹¡£º¸¤¬PARK VILLAGE¤Ç¡¢±¦¤¬SUN VILLAGE¤Ç¤¹¡£

¡¡PARK VILLAGE¦¤«¤é»£±Æ¡£

¡¡¡ÖÀ²³¤¥Õ¥é¥Ã¥° SKY DUO PARK VILLAGE¡×(ÃϾå50³¬¡¢ºÇ¹â¹â¤µ179.60m)¤Ç¤¹¡£¤³¤³¤«¤éÈ¿»þ·×²ó¤ê¤ËºÜ¤»¤Æ¤¤¤¤Þ¤¹¡£

¡¡PARK VILLAGE¤ÎÀß·×¼Ô¤ÏÆü·ú¥Ï¥¦¥¸¥ó¥°¥·¥¹¥Æ¥à¡¢»°°æ½»Í§·úÀß¡¢»Ü¹©¼Ô¤Ï»°°æ½»Í§·úÀߤȤʤäƤ¤¤Þ¤¹¡£

¡¡¡Ö¤é¤é¥Æ¥é¥¹HARUMI FLAG¡×Á°¤«¤é»£±Æ¡£

¡¡´û¤ËºÇ¾å³¬¤Î50³¬¤Þ¤Ç㤷¤Æ¤¤¤ë¤è¤¦¤Ç¤·¤¿¡£

¡¡¹âÇÜΨ¤Î¿Íµ¤¥¿¥ï¥Þ¥ó¤È¤Ê¤Ã¤Æ¤¤¤ë¤¿¤á¡¢¤³¤³¤Ë½»¤á¤ë¿Íã¤Ï¤ª¶â»ý¤Á¤«¤Ä¹¬±¿¤Î»ý¤Á¼ç¤È¤¤¤¦¤³¤È¤Ë¤Ê¤ê¤Þ¤¹¡£

¡¡SUN VILLAGE¦¤«¤é»£±Æ¤·¤¿¡ÖÀ²³¤¥Õ¥é¥Ã¥° SKY DUO¡×(ÃϾå50³¬¡¢ºÇ¹â¹â¤µ179.60m)¤Ç¤¹¡£

¡¡¡ÖÀ²³¤¥Õ¥é¥Ã¥° SKY DUO SUN VILLAGE¡×(ÃϾå50³¬¡¢ºÇ¹â¹â¤µ179.60m)¤Ç¤¹¡£¤³¤³¤«¤é»þ·×²ó¤ê¤ËºÜ¤»¤Æ¤¤¤¤Þ¤¹¡£

¡¡¡ÖÃæ±û¶èΩÀ²³¤À¾¾®¡¦Ãæ³Ø¹»¡×Á°¤«¤é»£±Æ¡£PARK VILLAGE¤È¤Ï°ã¤Ã¤ÆÀ߷׼Ԥϻ°É©ÃϽêÀ߷ס¢Á°ÅÄ·úÀß¹©¶È¡¢»Ü¹©¼Ô¤ÏÁ°ÅÄ·úÀß¹©¶È¤È¤Ê¤Ã¤Æ¤¤¤Þ¤¹¡£

¡¡¤³¤Á¤é¤â´û¤ËºÇ¾å³¬¤Î50³¬¤Þ¤Ç㤷¤Æ¤¤¤Þ¤¹¡£

¡¡Âè2´ü¤ÎÇÜΨ¤Ï¤É¤Î¤¯¤é¤¤¤Ë¤Ê¤ë¤ó¤Ç¤·¤ç¤¦¤Í¡©¸½ºß¤Î¥Þ¥ó¥·¥ç¥ó²Á³Ê¤ÎÁê¾ì¤è¤ê¤Ï°Â¤¤¤¿¤á¡¢ÅöÁª³ÎΨ¤Î¹â¤¤Êõ¤¯¤¸¤Î¤è¤¦¤Ê¾õÂ֤ȤʤäƤ¤¤Þ¤¹¡£

¡¡À²³¤Âç¶¶¤«¤é»£±Æ¤·¤¿¡ÖÀ²³¤¥Õ¥é¥Ã¥° SKY DUO¡×¤Ç¤¹¡£À²³¤¥Õ¥é¥Ã¥°¡ÊHARUMI FLAG¡Ë¤Ï¹âÇÜΨ¤ÎÂç¿Íµ¤¥Þ¥ó¥·¥ç¥ó¤È¤Ê¤Ã¤Æ¤¤¤Þ¤¹¤¬¡¢¥Ä¥¤¥ó¥¿¥ï¡¼¼êÁ°¤ÎÄÂÂßÅï¤Ï¤Þ¤À¤Þ¤À¶õ¤Éô²°¤¬¤¢¤ê¤Þ¤¹¡£

¡¡Á°Æü¤Î9·î15Æü¤Ë¡Ö¥«¥ì¥Ã¥¿¼®Î±¡×¤«¤é»£±Æ¡£º£¤ÏSUN VILLAGE¤Î¤Û¤ÜÁ´·Ê¤¬¸«¤¨¤Æ¤¤¤Þ¤¹¤¬¡¢¼êÁ°¤Ç¤Ï¡Ö¥¶ ˳¤¥¿¥ï¡¼¡×(ÃϾå53³¬¡¢¹â¤µ189m)¤¬·úÀßÃæ¤Î¤¿¤á¡¢¤³¤³¤«¤é¡Ö¡ÖÀ²³¤¥Õ¥é¥Ã¥° SKY DUO¡×¤Ï¤Û¤È¤ó¤É¸«¤¨¤Ê¤¯¤Ê¤ê¤Þ¤¹¡£

¡¡¤µ¤é¤ËÁ°Æü¤Î9·î14Æü¤Ë¡ÖÏ»ËÜÌڥҥ륺¡×¤ÎŸ˾¼¼¤«¤é»£±Æ¡£¤µ¤¹¤¬¤Ë50³¬·ú¤Æ¤Ï¤«¤Ê¤ê¤ÎÂ礤µ¤Ç¤¹¡£

¡¡À²³¤¤ÕƬ¸ø±à¤«¤é»£±Æ¤·¤¿Ìë¤ÎÀ²³¤¥Õ¥é¥Ã¥°¡ÊHARUMI FLAG¡Ë¤Ç¤¹¡£¡ÖÀ²³¤¥Õ¥é¥Ã¥° SKY DUO¡×¤â´Þ¤á¤Æ¤æ¤ë¤ä¤«¤Ëº¸±¦ÂоΤȤʤë¥À¥¤¥Ê¥ß¥Ã¥¯¥·¥ó¥á¥È¥ê¡¼¤Ê¥Ç¥¶¥¤¥ó¡¦ÇÛÅï¤È¤Ê¤Ã¤Æ¤¤¤Þ¤¹¡£

¡¡Ë½§Âç¶¶¤«¤é»£±Æ¤·¤¿À²³¤¥Õ¥é¥Ã¥°¡ÊHARUMI FLAG¡ËÌë·Ê¤Ç¤¹¡£

¡¡¡ÖÀ²³¤¥Õ¥é¥Ã¥° SKY DUO¡×¤Ë¥º¡¼¥à¤Ç¤¹¡£Å¾ÇäÌÜŪ¤Ð¤«¤ê¤Ç¥´¡¼¥¹¥È¥¿¥¦¥ó¤À¤È¤·¤¿µ»ö¤â¤¢¤ê¤Þ¤·¤¿¤¬¡¢³«¤±¤¿»ë³¦¤Î¤¢¤ëÉô²°¤Ë¤ÏÁëÌÀ¤«¤ê¤¬¤³¤ì¤À¤±¤º¤é¤Ã¤Èʤó¤Ç¤¤¤Þ¤·¤¿¡£Â¾¤Î¸þ¤¤ÎÉô²°¤Ï¤É¤¦¤Ê¤Î¤«¤Ï¼«Å¾¼Ö¤ÇÄ̤ê²á¤®¤¿¤À¤±¤Ê¤Î¤Ç̤³Îǧ¤Ç¤¹¡£

¡¡Ë½§¤Î½Õ³¤¶¶¸ø±à¤«¤é»£±Æ¡£SKY DUO¤ËÁëÌÀ¤«¤ê¤¬ÅÀ¤¤¤ÆÌë·Ê¤Î°ìÉô¤Ë¤Ê¤ë¤Î¤ÏÌó1ǯ¸å¤È¤Ê¤ê¤Þ¤¹¡£
ÃÏ¿Þ
ʪ·ï³µÍ×

¡¡SUN VILLAGE ¥¿¥ï¡¼Åï¤Î·úÃ۷ײè¤Î¤ªÃΤ餻¤Ç¤¹¡£
¢£Êª·ï³µÍסÊSUN VILLAGE¡Ë¢£
̾¾Î¡§À²³¤¥Õ¥é¥Ã¥° SKY DUO SUN VILLAGE
·×²è̾¡§À²³¤¸ÞÃúÌÜÀ¾Ã϶èÂè°ì¼ï»Ô³¹ÃϺƳ«È¯»ö¶È Âè5-5³¹¶è TÅï
½êºßÃÏ¡§ÅìµþÅÔÃæ±û¶èÀ²³¤¸ÞÃúÌÜ503ÈÖ
¸òÄÌ¡§ÅÔ±ÄÂç¹¾¸ÍÀþ¡Ö¾¡¤É¤¡×±Ø ÅÌÊâ18ʬ
ÍÑÅÓ¡§¶¦Æ±½»Âð¡¢Å¹ÊÞ
Áí¸Í¿ô¡§733¸Í
³¬¿ô¡§ÃϾå50³¬¡¢Ãϲ¼1³¬
¹â¤µ¡§171.90m¡ÊºÇ¹â¹â¤µ179.60m¡Ë
¹½Â¤¡§Å´¶Ú¥³¥ó¥¯¥ê¡¼¥È¤¡Ê°ìÉôÅ´¹ü¤¡Ë¡¢ÌÈÀ©¿Ì¹½Â¤
´ðÁù©Ë¡¡§¹º´ðÁÃ
ÉßÃÏÌÌÀÑ¡§37,441.27Ö¡ÊSUN VILLAGEÁ´ÂΡË
·úÃÛÌÌÀÑ¡§2,361.12Ö
±ä¾²ÌÌÀÑ¡§84,289.84Ö
·úÃۼ硧»°°æÉÔÆ°»º¥ì¥¸¥Ç¥ó¥·¥ã¥ë¡¢»°É©ÃϽê¥ì¥¸¥Ç¥ó¥¹¡¢Ìî¼ÉÔÆ°»º¡¢½»Í§ÉÔÆ°»º¡¢ÅìµÞÉÔÆ°»º¡¢Åìµþ·úʪ¡¢ÂçÏ¥ϥ¦¥¹¹©¶È¡¢½»Í§¾¦»ö¡¢NTTÅÔ»Ô³«È¯¡¢ÆüÅ´¶½ÏÂÉÔÆ°»º
Àß·×¼Ô¡§»°É©ÃϽêÀ߷ס¢Á°ÅÄ·úÀß¹©¶È
»Ü¹©¼Ô¡§Á°ÅÄ·úÀß¹©¶È
¹©´ü¡§2017ǯ1·îÃæ½ÜÃ幩¡Á2025ǯ½©½×¹©Í½Äê
Æþµï¡§2025ǯ10·î²¼½ÜͽÄê

¡¡PARK VILLAGE ¥¿¥ï¡¼Åï¤Î·úÃ۷ײè¤Î¤ªÃΤ餻¤Ç¤¹¡£
¢£Êª·ï³µÍסÊPARK VILLAGE¡Ë¢£
̾¾Î¡§À²³¤¥Õ¥é¥Ã¥° SKY DUO PARK VILLAGE¡ÊÂèÆó¹©¶è¡Ë
·×²è̾¡§À²³¤¸ÞÃúÌÜÀ¾Ã϶èÂè°ì¼ï»Ô³¹ÃϺƳ«È¯»ö¶È Âè5-6³¹¶è TÅï
½êºßÃÏ¡§ÅìµþÅÔÃæ±û¶èÀ²³¤¸ÞÃúÌÜ504ÈÖ
¸òÄÌ¡§ÅÔ±ÄÂç¹¾¸ÍÀþ¡Ö¾¡¤É¤¡×±Ø ÅÌÊâ18ʬ
ÍÑÅÓ¡§¶¦Æ±½»Âð¡¢Å¹ÊÞ
Áí¸Í¿ô¡§722¸Í
³¬¿ô¡§ÃϾå50³¬¡¢Ãϲ¼1³¬
¹â¤µ¡§171.90m¡ÊºÇ¹â¹â¤µ179.60m¡Ë
¹½Â¤¡§Å´¶Ú¥³¥ó¥¯¥ê¡¼¥È¤¡Ê°ìÉôÅ´¹ü¤¡Ë¡¢ÌÈÀ©¿Ì¹½Â¤
´ðÁù©Ë¡¡§¹º´ðÁÃ
ÉßÃÏÌÌÀÑ¡§35,175.79Ö¡ÊPARK VILLAGEÁ´ÂΡË
·úÃÛÌÌÀÑ¡§2,424.34Ö
±ä¾²ÌÌÀÑ¡§86,532.36Ö
·úÃۼ硧»°°æÉÔÆ°»º¥ì¥¸¥Ç¥ó¥·¥ã¥ë¡¢»°É©ÃϽê¥ì¥¸¥Ç¥ó¥¹¡¢Ìî¼ÉÔÆ°»º¡¢½»Í§ÉÔÆ°»º¡¢ÅìµÞÉÔÆ°»º¡¢Åìµþ·úʪ¡¢ÂçÏ¥ϥ¦¥¹¹©¶È¡¢½»Í§¾¦»ö¡¢NTTÅÔ»Ô³«È¯¡¢ÆüÅ´¶½ÏÂÉÔÆ°»º
Àß·×¼Ô¡§Æü·ú¥Ï¥¦¥¸¥ó¥°¥·¥¹¥Æ¥à¡¢»°°æ½»Í§·úÀß
»Ü¹©¼Ô¡§»°°æ½»Í§·úÀß
¹©´ü¡§2017ǯ1·îÃæ½ÜÃ幩¡Á2025ǯ½©½×¹©Í½Äê
Æþµï¡§2025ǯ10·î²¼½ÜͽÄê
½Ðŵ
¢§¸ø¼°HP¡§HARUMI FLAG
¢¨ Êĺ¿ºÑ¤ß
¢§»°°æÉÔÆ°»º¥ì¥¸¥Ç¥ó¥·¥ã¥ë¡§¥Ë¥å¡¼¥¹¡Ê2023ǯ10·î4Æü¡Ë
¡Ö»°°æ¥·¥ç¥Ã¥Ô¥ó¥°¥Ñ¡¼¥¯ ¤é¤é¥Æ¥é¥¹ HARUMI FLAG¡×2024ǯ3·î³«¶È·èÄê
À²³¤¥¨¥ê¥¢¤ÎÀ¸³è¤ò»Ù¤¨¤ëÁ´40ŹÊÞ¤òȯɽ
10·îËö¤è¤êŹÊÞµá¿Í¥µ¥¤¥È³«ÀßͽÄê
¢§»°°æÉÔÆ°»º¥ì¥¸¥Ç¥ó¥·¥ã¥ë¡§¥Ë¥å¡¼¥¹¡Ê2023ǯ4·î6Æü¡Ë
Åìµþ¤ÎºÇÁ°Îó¤ËÅо줹¤ë°ìÂФΥ·¥ó¥Ü¥ë¡¢ÃϾå50³¬·ú¤Æ¤Î͹âÁØÌÈÀ©¿Ì¥¿¥ï¡¼
HARUMI FLAG SKY DUO
2023ǯ4·î8Æü¡ÊÅÚ¡Ë¿·¡ÖHARUMI FLAG ¥Ñ¥Ó¥ê¥ª¥ó¡×¤ò³«Àß
»öÁ°°ÆÆâ²ñ¡Ê´°Á´Í½ÌóÀ©¡Ë³«»Ï
¢§»°°æÉÔÆ°»º¥ì¥¸¥Ç¥ó¥·¥ã¥ë¡§¥Ë¥å¡¼¥¹¡Ê2023ǯ4·î6Æü¡Ë
Åìµþ2020¥ª¥ê¥ó¥Ô¥Ã¥¯¶¥µ»Âç²ñÁª¼ê¼¤ÎÃϤˡ¢¥ª¥ê¥ó¥Ô¥Ã¥¯¡¦¥à¡¼¥Ö¥á¥ó¥È¿ä¿ÊµòÅÀ
¡ÖTEAM JAPAN 2020 VILLAGE¡×2024ǯ½Õ³«¶È
¡Ö»°°æ¥·¥ç¥Ã¥Ô¥ó¥°¥Ñ¡¼¥¯¡¡¤é¤é¥Æ¥é¥¹ HARUMI FLAG¡×1F¤Ë³«¶ÈͽÄê
- ¥«¥Æ¥´¥ê
- Ãæ±û¶è







