
¥¤¥á¡¼¥¸¥Ñ¡¼¥¹[½Ðŵ¡§ÅìµþÅÔ]
¡¡ÃÓÂޤǷײ褵¤ì¤Æ¤¤¤ë¡ÖÅìÃÓÂÞ°ìÃúÌÜÃ϶èÂè°ì¼ï»Ô³¹ÃϺƳ«È¯»ö¶È¡×(ÃϾå32³¬¡¢¹â¤µÌó180m)¤Î´°À®Í½ÁۿޤǤ¹¡£½»Í§ÉÔÆ°»º¤¬»²²ÃÁȹç°÷¤È¤·¤Æ»²²è¤¹¤ëºÆ³«È¯¤Ç¡¢ÄãÁØÉô¤Ë¤Ï¥¤¥Ù¥ó¥È¥Û¡¼¥ë¤äʸ²½Âθ³»ÜÀߤ¬Æþ¤ë¥ª¥Õ¥£¥¹¥Ó¥ë¤Ë¤Ê¤ê¤Þ¤¹¡£¸½ÃϤǤÏ8·î14Æü°Ê¹ß¤ËÇÑÆ»¤Ëȼ¤¦Æ»Ï©Éõº¿¤Î¤ªÃΤ餻¤¬·Ç¼¨¤µ¤ì¤¿¤¿¤á¡¢¤³¤ì¤«¤é´û¸·úʪ¤Î²òÂι©»ö¤¬»Ï¤Þ¤ë¤³¤È¤Ë¤Ê¤ê¤½¤¦¤Ç¤¹¡£¤³¤Îµ»ö¤Ç¤ÏƱºÆ³«È¯¤Î³µÍפ丽¶·¡Ê2024ǯ8·î3Æü»þÅÀ¡Ë¡¢ÃÏ¿ÞÅù¤òºÜ¤»¤Æ¤¤¤Þ¤¹¡£
ÅìÃÓÂÞ°ìÃúÌÜÃ϶è¤Ë¤Ä¤¤¤Æ

¥¤¥á¡¼¥¸¥Ñ¡¼¥¹[½Ðŵ¡§ÅìµþÅÔ]
¡¡¡ÖÅìÃÓÂÞ°ìÃúÌÜÃ϶èÂè°ì¼ï»Ô³¹ÃϺƳ«È¯»ö¶È¡×¤ÏJRÃÓÂޱؤÎËÌÅ즤Ȥʤ뻳¼êÀþÆâ¦¤ÎºÆ³«È¯¤Ç¡¢µ¬ÌϤÏÃϾå32³¬¡¢Åã²°1³¬¡¢Ãϲ¼4³¬¡¢¹â¤µÌó180m¡¢ÉßÃÏÌÌÀÑÌó9,900Ö¡¢·úÃÛÌÌÀÑÌó7,600Ö¡¢±ä¾²ÌÌÀÑÌó15Ëü5900֤ȤʤäƤ¤¤Þ¤¹¡£
¡¡»ö¶È¼Ô¤ÏÅìÃÓÂÞ°ìÃúÌÜÃ϶è»Ô³¹ÃϺƳ«È¯Áȹç¤Ç½»Í§ÉÔÆ°»º¤¬»²²ÃÁȹç°÷¤È¤·¤Æ»²²è¡£¹©´ü¤Ï2025ǯ2·îÃ幩¡¢2028ǯ6·î½×¹©Í½Äê¤È¤Ê¤Ã¤Æ¤¤¤Þ¤¹¡£

ÃÇÌÌ¥¤¥á¡¼¥¸[½Ðŵ¡§ÅìµþÅÔ]
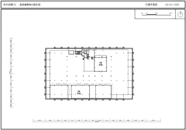
¡¡33³¬¤Ç·×²è¤µ¤ì¤Æ¤¤¤¿º¢¤ÎÃÇÌ̿ޤǤ¹¡£¥Õ¥í¥¢¹½À®¤ËÂ礤ÊÊѹ¹¤Ï¤Ê¤¯¡¢Ãϲ¼1¡Á2³¬¤Ë¥¤¥Ù¥ó¥È¥Û¡¼¥ë¡¢ÃϾå1³¬¤Ë¥¢¥È¥ê¥¦¥à¤ä¥¤¥±¥Ð¥¹±¿¹ÔµòÅÀ¡¢3³¬¡¢5³¬¤Ëʸ²½Âθ³»ÜÀß¡¢6³¬¡Á31³¬¤¬¥ª¥Õ¥£¥¹¥Õ¥í¥¢¤È¤Ê¤ê¡¢ºÇ¾å³¬¤Î32³¬¤Ë¤ÏÀßÈ÷¼¼Åù¤Ë¤Ê¤ê¤Þ¤¹¡£

ÃÇÌÌ¿Þ[½Ðŵ¡§ËÅç¶è]
¡¡ºÇ¿·¤ÎÃÇÌ̿ޤǤ¹¡£¥ª¥Õ¥£¥¹¥Õ¥í¥¢¤Ï³¬¹â¤¬4.8m¤¢¤ë¤³¤È¤¬¤ï¤«¤ê¤Þ¤¹¡£

ÇÛÃÖ¿Þ[½Ðŵ¡§ÅìµþÅÔ]
¡¡·×²èÃϤÎÀ¾Â¦¤Ë¤ÏÌó2000֤ι¾ì1¹æ(¥²¡¼¥È¹¾ì)¡¢Æî¦¤Ë¤ÏÌó900֤ι¾ì2¹æ¡¢Å즤«¤éË̦¤Ë¤«¤±¤Æ¤ÏÌó2000֤ι¾ì3¹æ(¤ß¤É¤ê¤ÎµÖ)¤¬À°È÷¤µ¤ì¤Þ¤¹¡£¤½¤·¤ÆË̦¤Ë¤Ï¥¤¥±¥Ð¥¹±¿¹ÔµòÅÀ¤¬ÇÛÃÖ¤µ¤ì¤Þ¤¹¡£

¥¤¥±¥Ð¥¹±¿¹ÔµòÅÀ¤ÎÀ°È÷¥¤¥á¡¼¥¸[½Ðŵ¡§Æâ³ÕÉÜ]
¡¡¥¤¥±¥Ð¥¹±¿¹ÔµòÅÀ¤Ë¤Ï¾è¹ß¾ì¤äÂÔµ¡¡¦½¼ÅÅ¥¹¥Ú¡¼¥¹¡¢¤½¤·¤ÆÂÔ¹ç½ê¤È¤Ê¤ë¥é¥¦¥ó¥¸¤¬ÇÛÃÖ¤µ¤ì¤Þ¤¹¡£

¥¤¥á¡¼¥¸¥Ñ¡¼¥¹[½Ðŵ¡§Æâ³ÕÉÜ]
¡¡À¾Â¦ÄãÁØÉô¤Ë¤Ï¥²¡¼¥È¹¾ì¤ä¥¢¥È¥ê¥¦¥à¶õ´Ö¤¬À°È÷¤µ¤ì¡¢ÄãÁØÉô¤ËÆþ¤ëʸ²½Âθ³»ÜÀߤǤϥ¢¥Ë¥á¤Îºî²è¡¦ÊÔ½¸Âθ³¤ä¥µ¥Ö¥«¥ë¥Á¥ã¡¼¤ÎÀ¤³¦¤Ë¿¨¤ì¤ë»ÜÀߤ¬·×²è¤µ¤ì¤Æ¤ª¤ê¡¢Ãϲ¼¤ËÀ°È÷¤µ¤ì¤ë¥¤¥Ù¥ó¥È¥Û¡¼¥ë¤Ç¤ÏÃÓÂޤ餷¤¤¥¢¡¼¥È¡¦¥«¥ë¥Á¥ã¡¼Åù¤Î¥¤¥Ù¥ó¥ÈͶÃפËÀѶËŪ¤Ë¼è¤êÁȤàÊý¿Ë¤È¤Ê¤Ã¤Æ¤¤¤Þ¤¹¡£±¿±ÄÂÎÀ©¤Ï½»Í§ÉÔÆ°»º¤ÈKADOKAWA¤Î2¼Ò¤¬Ã´¤¦¤³¤È¤Ë¤Ê¤Ã¤Æ¤¤¤Þ¤¹¡£

¥¤¥á¡¼¥¸¥Ñ¡¼¥¹[½Ðŵ¡§Æâ³ÕÉÜ]
¡¡¥²¡¼¥È¹¾ì¤Ï²°º¬¤Î¤¢¤ë¶õ´Ö¤È¤Ê¤ê¡¢Â¿Íͤʥ¤¥Ù¥ó¥ÈÍøÍѤ¬²Äǽ¤Ë¤Ê¤ê¤Þ¤¹¡£

¥¤¥á¡¼¥¸¥Ñ¡¼¥¹[½Ðŵ¡§Æâ³ÕÉÜ]
¡¡Å즤ËÀ°È÷¤µ¤ì¤ë¤ß¤É¤ê¤ÎµÖ¤Î´°À®Í½ÁۿޤǤ¹¡£¹âÄ㺹¤¬¤¢¤ë¾ì½ê¤Ç¡¢¤³¤Î²¼¤Ë¤ÏÃóÎØ¾ì¤¬ÇÛÃÖ¤µ¤ì¤Þ¤¹¡£

¥¤¥á¡¼¥¸¥Ñ¡¼¥¹[½Ðŵ¡§Æâ³ÕÉÜ]
¡¡3³¬Éôʬ¤ËÀ°È÷¤µ¤ì¤ëË̦¤Î¤ß¤É¤ê¤ÎµÖÉôʬ¤Ç¤¹¡£ÀþÏ©±è¤¤¤Ë¤¢¤ëÃÓÂÞ±ØÁ°¸ø±à¤¬ºÆÀ°È÷¤µ¤ì¡¢Ï¢Â³Åª¤Ê¡Ö¤ß¤É¤ê¤Î¥×¥í¥à¥Ê¡¼¥É¡×¤¬ÁϽФµ¤ì¤Þ¤¹¡£¤Þ¤¿¡¢¤³¤³¤Î1³¬Éôʬ¤Ï¥¤¥±¥Ð¥¹±¿¹ÔµòÅÀ¤È¤Ê¤ê¤Þ¤¹¡£

¥¤¥á¡¼¥¸¥Ñ¡¼¥¹[½Ðŵ¡§Æâ³ÕÉÜ]
¡¡¾å¶õ¤«¤é¸«¤¿¡ÖÅìÃÓÂÞ°ìÃúÌÜÃ϶èÂè°ì¼ï»Ô³¹ÃϺƳ«È¯»ö¶È¡×¤Î´°À®Í½ÁۿޤǤ¹¡£¤³¤Î¿Þ¤Î±¦²¼¤ËJR¡ÖÃÓÂޡױؤ¬¤¢¤ê¤Þ¤¹¡£
¡¡¤Þ¤¿¡¢´°À®Í½ÁÛ¿Þ¤ÎÃæ±û¤¢¤¿¤ê¤ËÉÁ¤«¤ì¤Æ¤¤¤ë͹âÁØ¥Ó¥ë¤ÏËÅç¶èÄ£¼ËÀ×ÃϤ˷úÀߤµ¤ì¤¿¡Ö¥Ï¥ì¥¶¥¿¥ï¡¼¡×(ÃϾå33³¬¡¢¹â¤µ158.28m)¤Ç¤¹¡£
Ê¿ÌÌ¿Þ

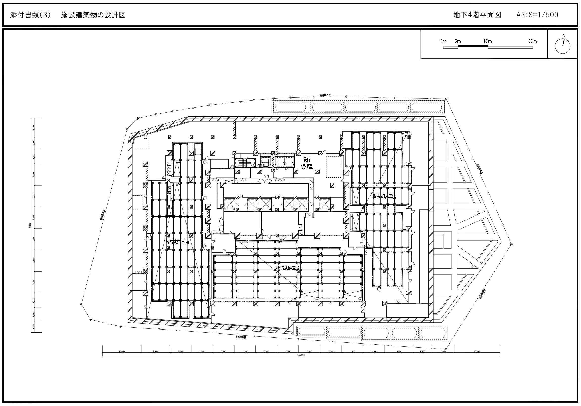
Ãϲ¼4³¬Ê¿ÌÌ¿Þ[½Ðŵ¡§ËÅç¶è]

Ãϲ¼3³¬Ê¿ÌÌ¿Þ[½Ðŵ¡§ËÅç¶è]

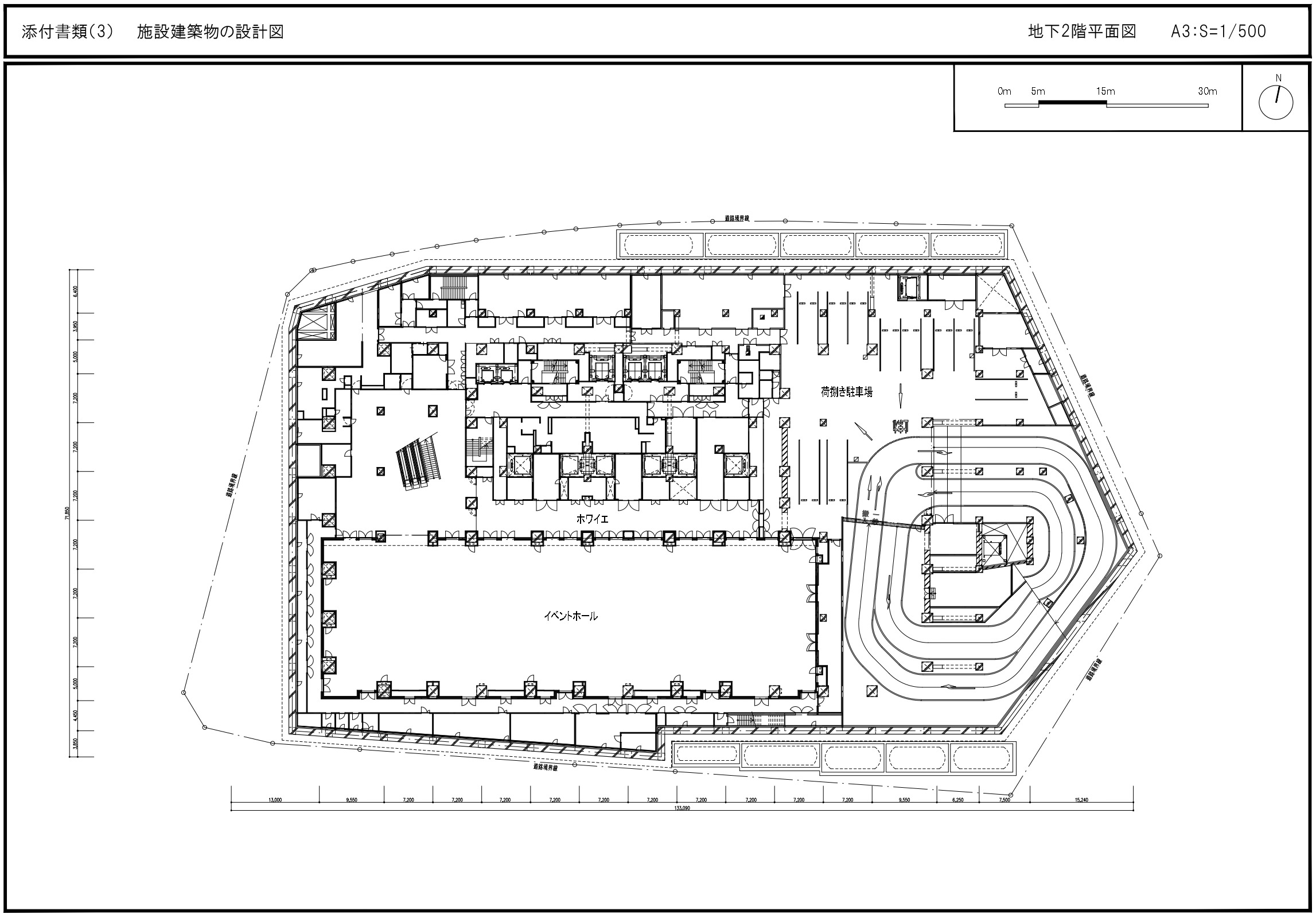
Ãϲ¼2³¬Ê¿ÌÌ¿Þ[½Ðŵ¡§ËÅç¶è]

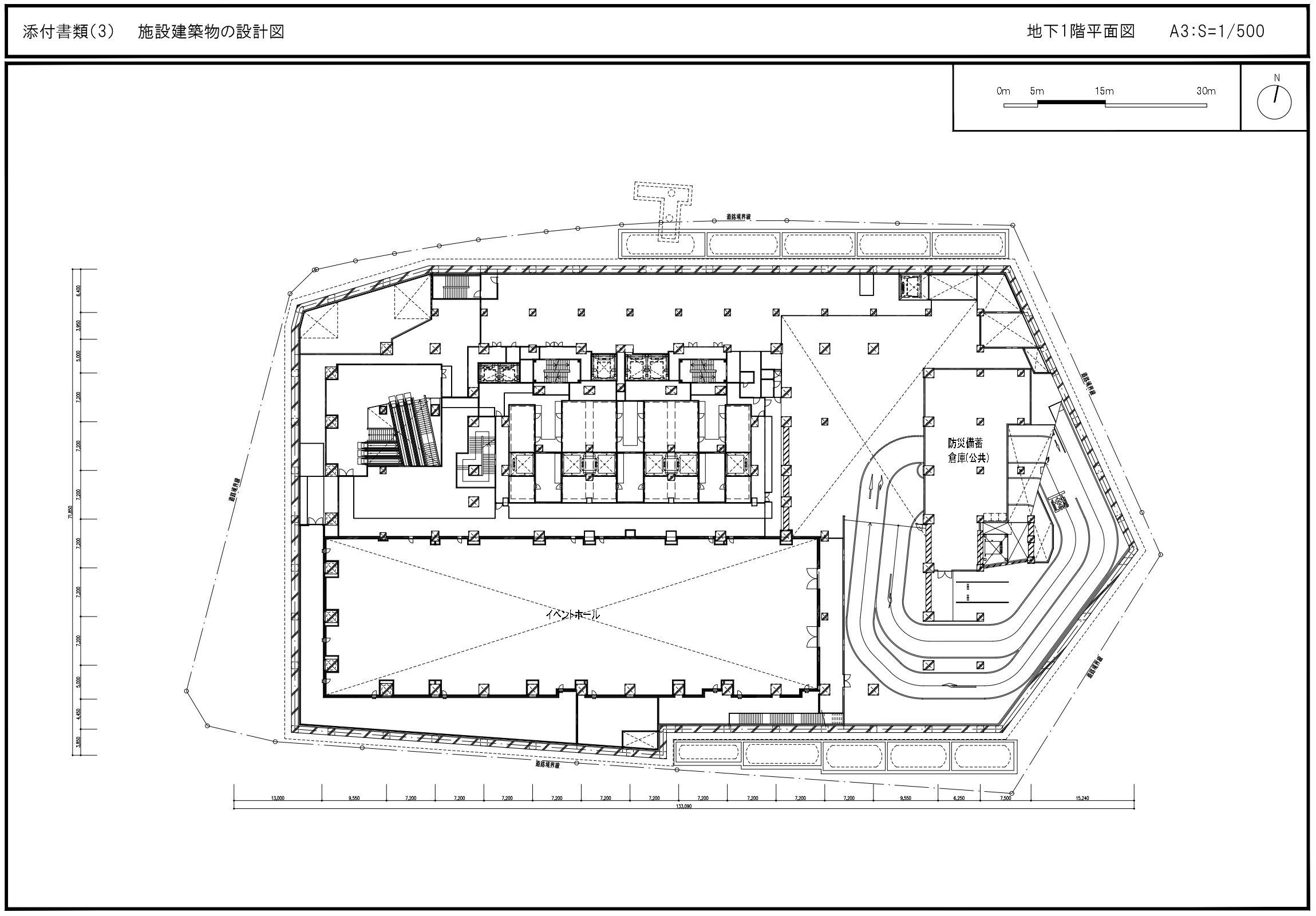
Ãϲ¼1³¬Ê¿ÌÌ¿Þ[½Ðŵ¡§ËÅç¶è]

1³¬Ê¿ÌÌ¿Þ[½Ðŵ¡§ËÅç¶è]

2³¬Ê¿ÌÌ¿Þ[½Ðŵ¡§ËÅç¶è]

3³¬Ê¿ÌÌ¿Þ[½Ðŵ¡§ËÅç¶è]

4³¬Ê¿ÌÌ¿Þ[½Ðŵ¡§ËÅç¶è]

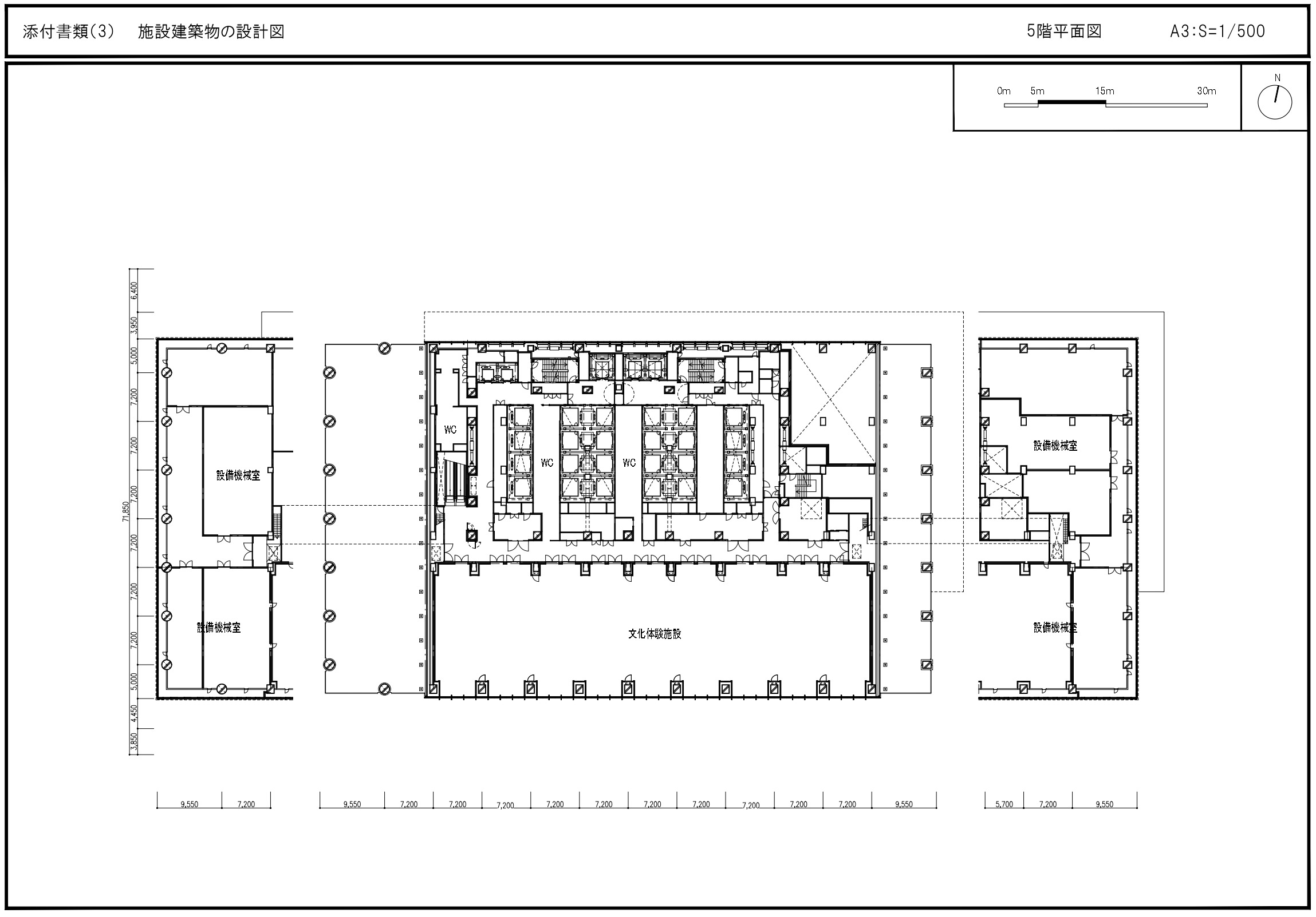
5³¬Ê¿ÌÌ¿Þ[½Ðŵ¡§ËÅç¶è]

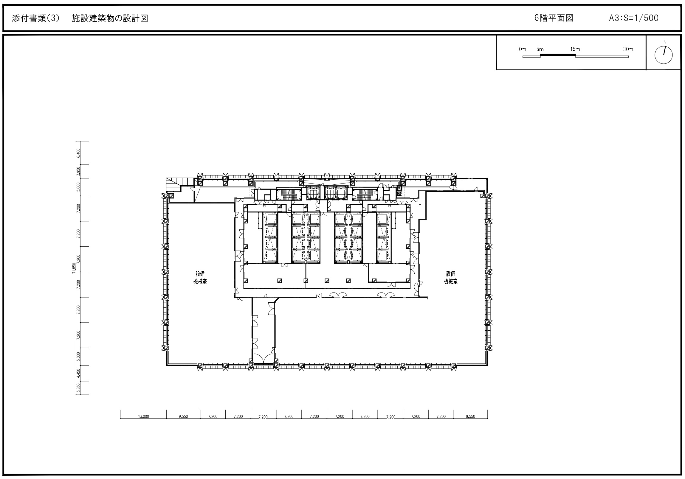
6³¬Ê¿ÌÌ¿Þ[½Ðŵ¡§ËÅç¶è]

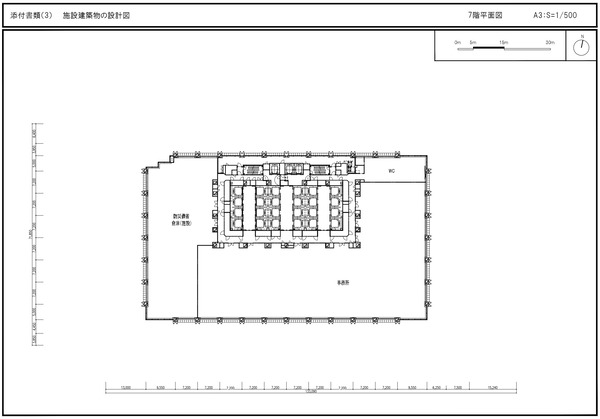
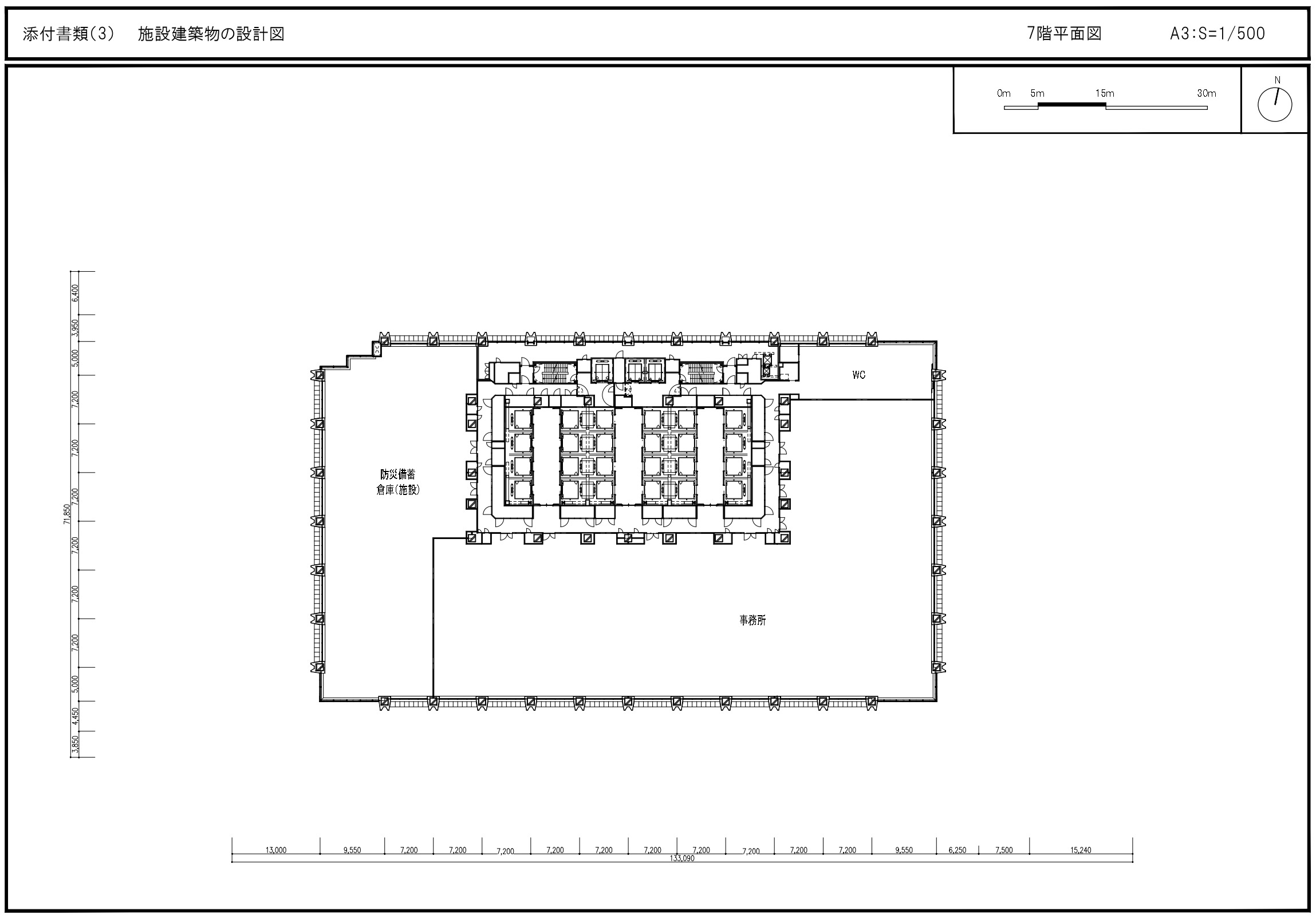
7³¬Ê¿ÌÌ¿Þ[½Ðŵ¡§ËÅç¶è]

8¡¦9³¬Ê¿ÌÌ¿Þ[½Ðŵ¡§ËÅç¶è]

´ð½à³¬(10¡Á15³¬)Ê¿ÌÌ¿Þ[½Ðŵ¡§ËÅç¶è]

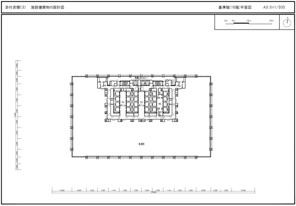
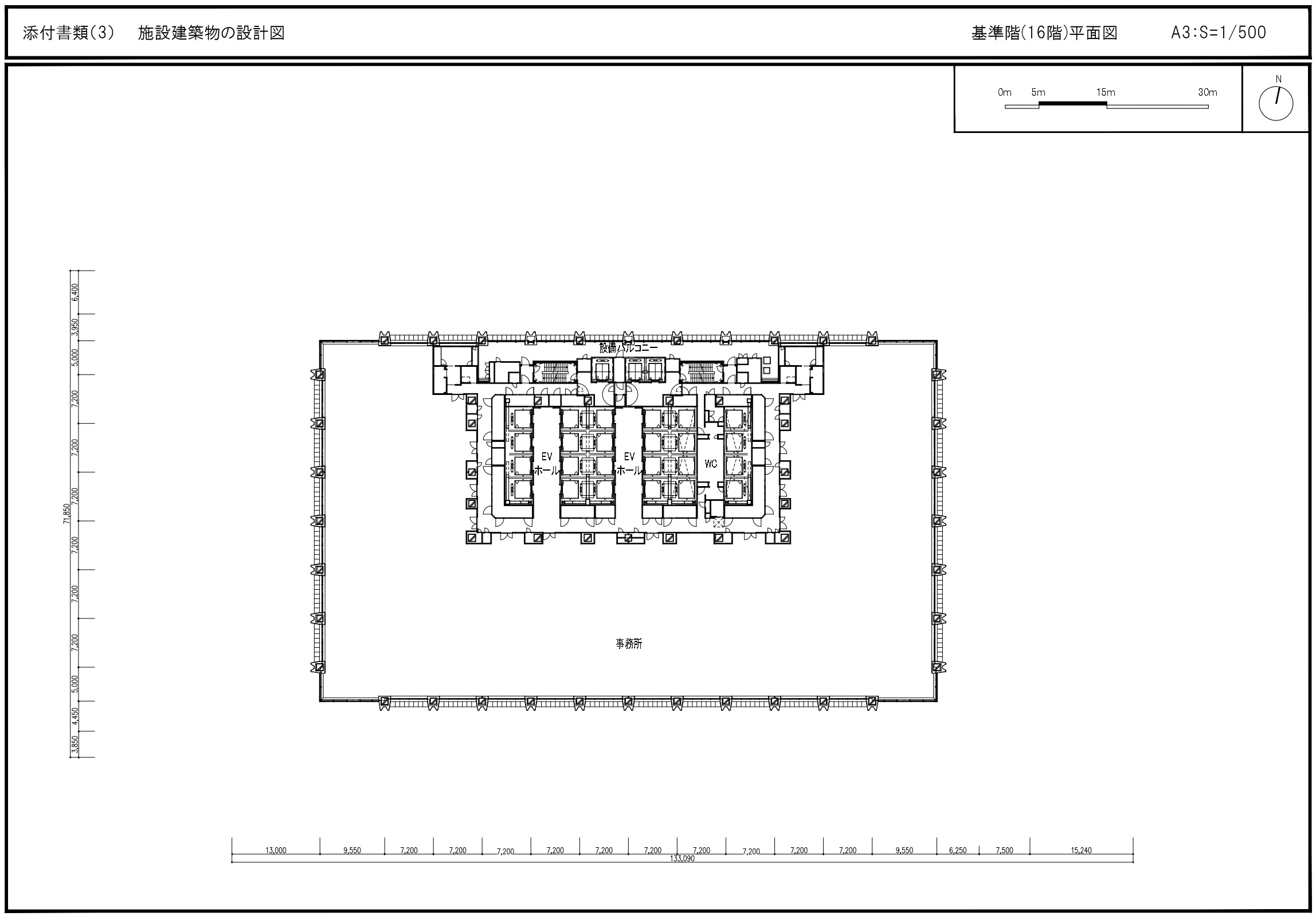
´ð½à³¬(16³¬)Ê¿ÌÌ¿Þ[½Ðŵ¡§ËÅç¶è]

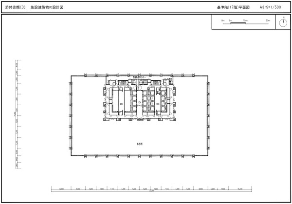
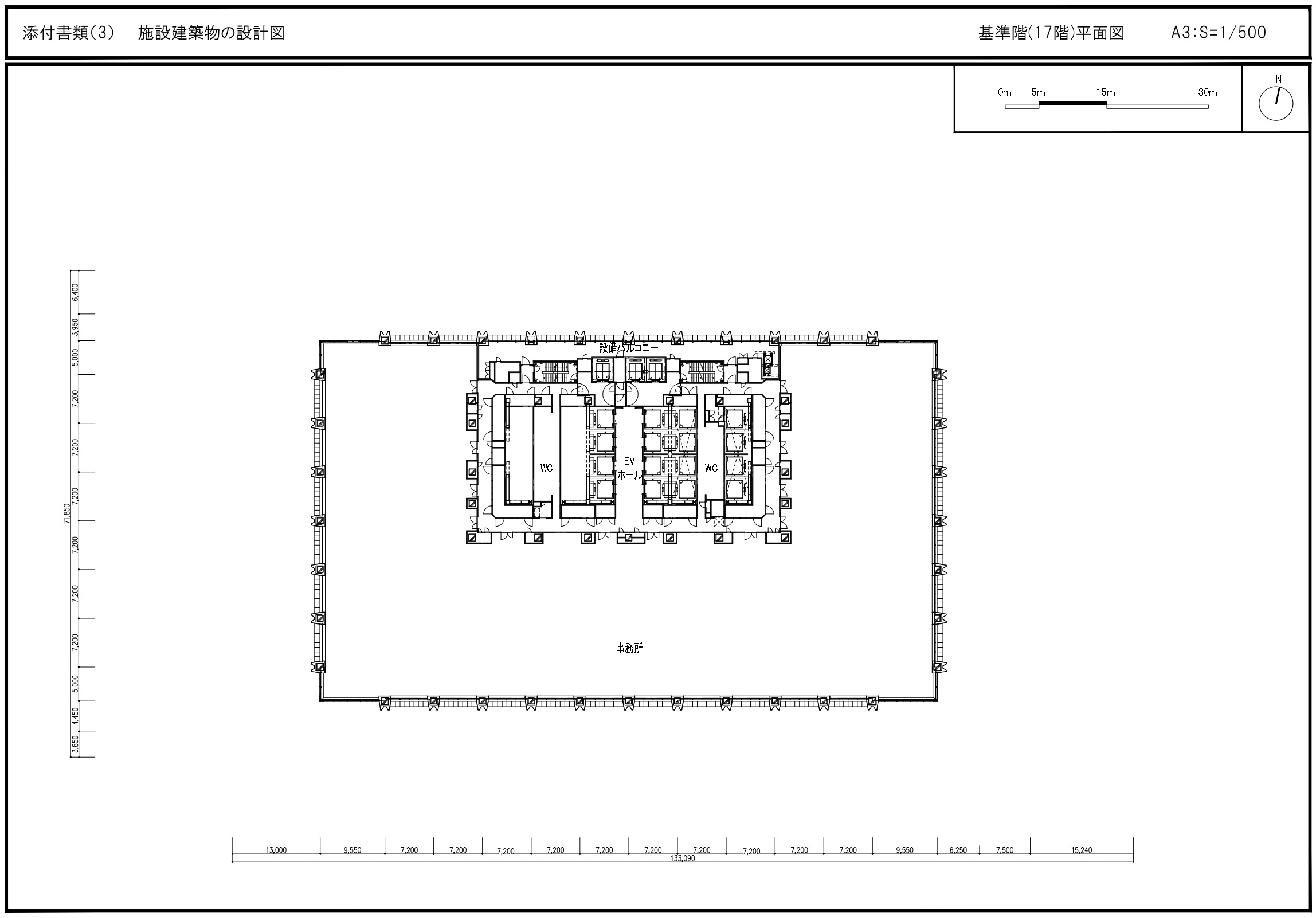
´ð½à³¬(17³¬)Ê¿ÌÌ¿Þ[½Ðŵ¡§ËÅç¶è]

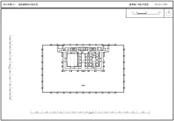
´ð½à³¬(18³¬)Ê¿ÌÌ¿Þ[½Ðŵ¡§ËÅç¶è]

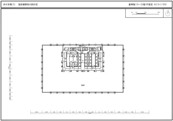
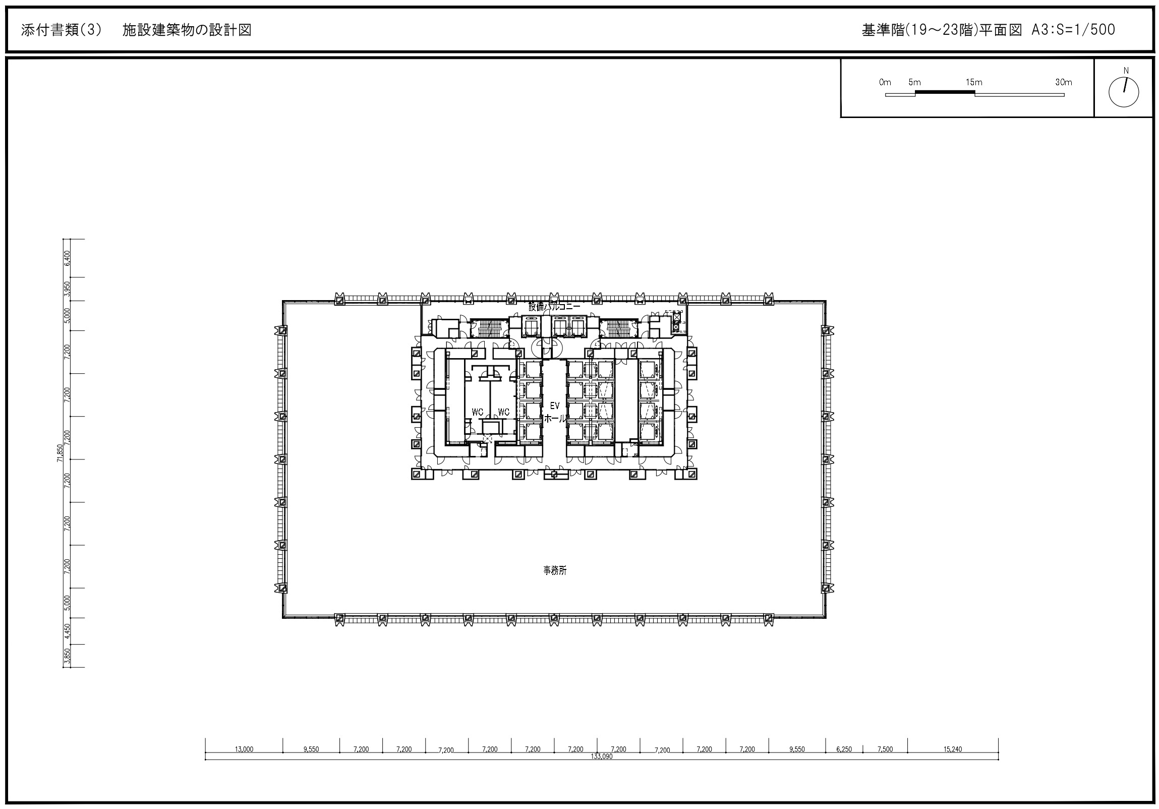
´ð½à³¬(19¡Á23³¬)Ê¿ÌÌ¿Þ[½Ðŵ¡§ËÅç¶è]

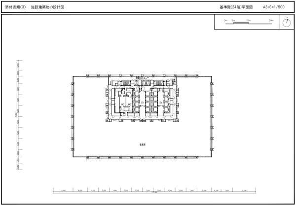
´ð½à³¬(24³¬)Ê¿ÌÌ¿Þ[½Ðŵ¡§ËÅç¶è]

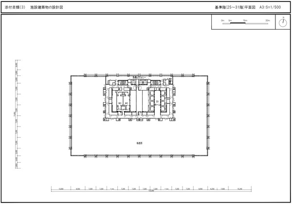
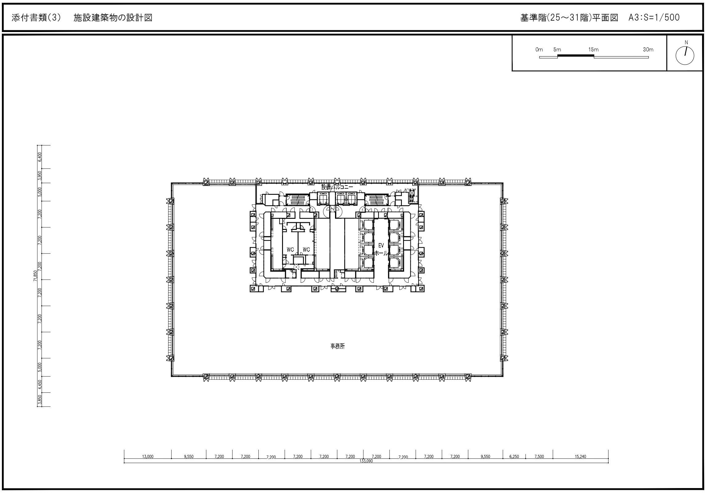
´ð½à³¬(25¡Á31³¬)Ê¿ÌÌ¿Þ[½Ðŵ¡§ËÅç¶è]

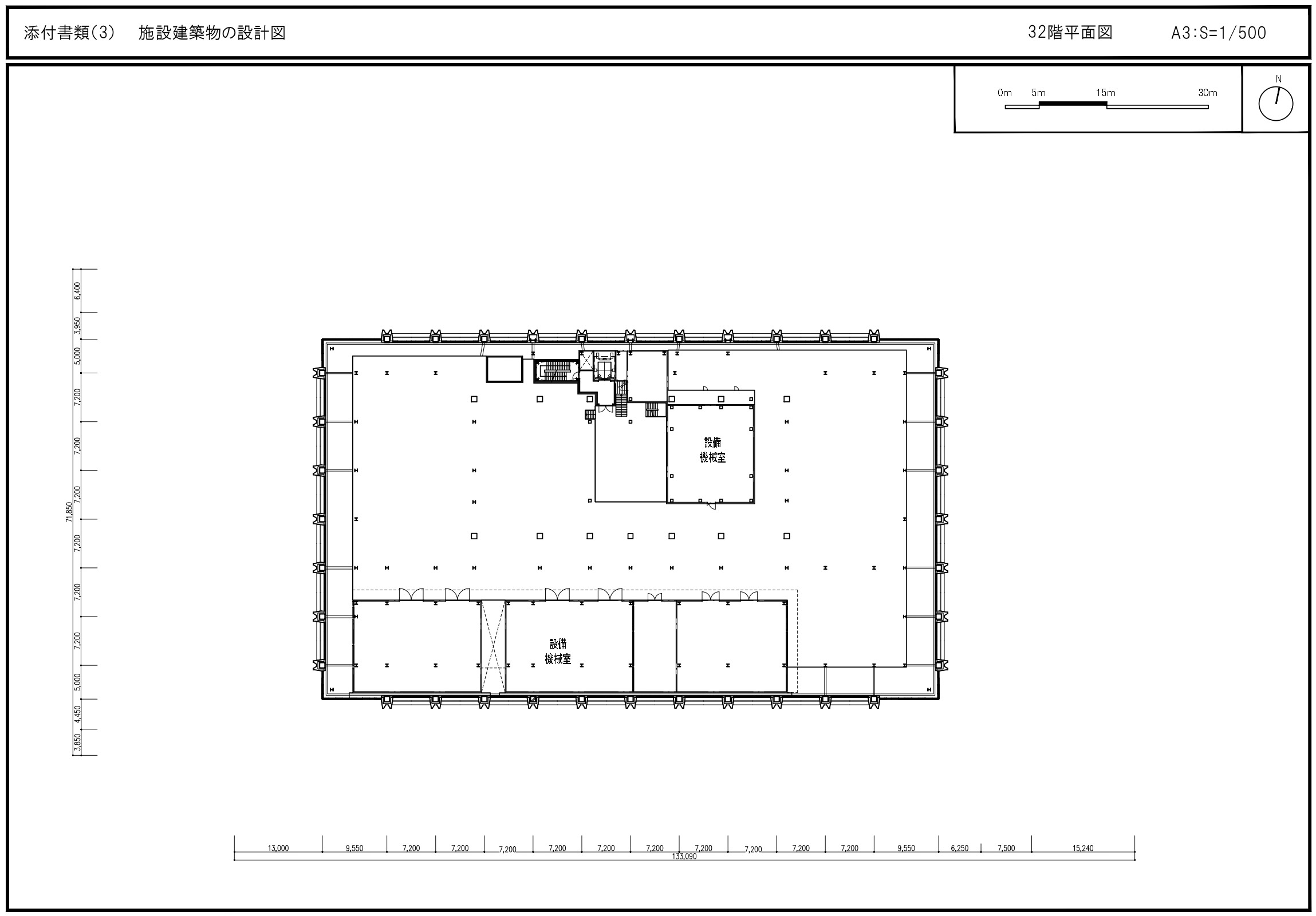
32³¬Ê¿ÌÌ¿Þ[½Ðŵ¡§ËÅç¶è]

RFL Ê¿ÌÌ¿Þ[½Ðŵ¡§ËÅç¶è]
°ÌÃÖ¿Þ

°ÌÃÖ¿Þ[½Ðŵ¡§ÅìµþÅÔ]
¡¡·×²èÃϤÏÃÓÂޱؤÎËÌÅ즤ǻ³¼êÀþ¤ÎÆâ¦¤Ë°ÌÃÖ¤·¤Æ¤¤¤Þ¤¹¡£JR¤ÎÀþÏ©¤ò¶´¤ó¤ÀË̦¤Ë¤Ï¹â¤µÌó210m¤Î±ìÆÍ¤¬¤¢¤ë¡ÖËÅçÀ¶Áݹ©¾ì¡×¤¬¤¢¤ê¤Þ¤¹¡£
¸½¶·

¡¡2024ǯ8·î3Æü¤Ë¥µ¥ó¥·¥ã¥¤¥ó60¤ÎÅ¸Ë¾Âæ¤«¤é»£±Æ¤·¤¿Ë̦¤Îį¤á¤Ç¤¹¡£Ãæ±û¤ÎݹÖkÁإӥ뤬ËÅç¶èÌò½êÀ×ÃϤΡ֥ϥ쥶¥¿¥ï¡¼¡×(ÃϾå33³¬¡¢¹â¤µ158.28m)¤Ç¡¢¤½¤Î±¦Â¦¤ÎÀÖ¤¤Ìֳݤ±¤ò¤·¤¿Êդ꤬¡ÖÅìÃÓÂÞ°ìÃúÌÜÃ϶èÂè°ì¼ï»Ô³¹ÃϺƳ«È¯»ö¶È¡×(ÃϾå32³¬¡¢¹â¤µÌó180m)¤Î·×²èÃϤǤ¹¡£

¡¡¡ÖÅìÃÓÂÞ°ìÃúÌÜÃ϶èÂè°ì¼ï»Ô³¹ÃϺƳ«È¯»ö¶È¡×¤Î·×²èÃϤ˥º¡¼¥à¤Ç¤¹¡£

¡¡·×²èÃϤˤÏÊ£¿ô¤Î´û¸·úʪ¤¬·ú¤Áʤó¤Ç¤¤¤Þ¤¹¤¬¡¢¡ÖÅìÃÓÂÞ°ìÃúÌÜÃ϶è»Ô³¹ÃϺƳ«È¯»ö¶È¤Ëȼ¤¦Æ»Ï©¤ÎÇѻߵڤÓÉõº¿¤Ë¤Ä¤¤¤Æ¤Î¤ªÃΤ餻¡×¤¬·Ç¼¨¤µ¤ì¡¢8·î14Æü°Ê¹ß¤ËÇÑÆ»¤Ëȼ¤¦Æ»Ï©Éõº¿¤Îͽ¹ð¤¬¤Ê¤µ¤ì¤Æ¤¤¤Þ¤¹¡£

¡¡ÉßÃÏÆâ¤ò½½»ú¤Ë´Ó¤¯Æ»Ï©¤¬ÇÑÆ»ÂоݤΤ¿¤á¡¢³¹¶èÁ´ÂΤòÉõº¿¤·¤Æ°ìµ¤¤Ë´û¸·úʪ¤Î²òÂι©»ö¤¬¹Ô¤ï¤ì¤ë¤³¤È¤Ë¤Ê¤ê¤½¤¦¤Ç¤¹¡£

¡¡Æ±¤¸Æü¤ËÆîÅ즤«¤é»£±Æ¤·¤¿¡ÖÅìÃÓÂÞ°ìÃúÌÜÃ϶èÂè°ì¼ï»Ô³¹ÃϺƳ«È¯»ö¶È¡×¤Î·×²èÃϤǤ¹¡£

¡¡Æî¦¤Îƻϩ¤«¤é»£±Æ¡£¤Û¤È¤ó¤É¤Î·úʪ¤¬´û¤ËÂàµîºÑ¤ß¤Î¤è¤¦¤Ë¸«¤¨¤Þ¤·¤¿¡£

¡¡ÂàµîÃæ¤Î¥Ó¥ë¤â¤¢¤ê¤Þ¤·¤¿¤¬¡¢¤Û¤È¤ó¤É¤Î¥Ó¥ë¤Ç¿Í¤Îµ¤ÇۤϤ⤦¤¢¤ê¤Þ¤»¤ó¤Ç¤·¤¿¡£

¡¡ÉßÃÏÆîÅ즤ˤ¢¤Ã¤¿Â礤á¤ÎÃó¼Ö¾ì¤Ï¿ôǯÁ°¤«¤éÊĺ¿¤È¤Ê¤Ã¤Æ¤¤¤Þ¤¹¡£

¡¡Ãó¼Ö¾ì¤¬Êĺ¿¤µ¤ì¤¿¤È¤¤Ï¤â¤¦¤¹¤°¹©»ö¤¬»Ï¤Þ¤ë¤Î¤«¤È»×¤Ã¤¿¤Î¤Ç¤¹¤¬¡¢¤½¤³¤«¤é¤³¤Î¾õÂÖ¤¬¤·¤Ð¤é¤¯Â³¤¤¤Æ¤¤¤Þ¤·¤¿¡£¤¿¤À¡¢Æ»Ï©¤âÉõº¿¤µ¤ì¤ë¤³¤È¤Ë¤Ê¤Ã¤¿¤Î¤Ç¡¢¤¤¤è¤¤¤èËܳÊŪ¤ËƱºÆ³«È¯¤¬Æ°¤½Ð¤¹¤³¤È¤Ë¤Ê¤ê¤½¤¦¤Ç¤¹¡£

¡¡À¾Â¦¤Îƻϩ¤«¤é»£±Æ¡£

¡¡ÉßÃÏËÌÀ¾³Ñ¤Ë¤¢¤ëÃó¼Ö¾ì¤Ï¤Þ¤À²ÔƯ¤·¤Æ¤¤¤Þ¤·¤¿¡£

¡¡ÉßÃÏÃæ±û¤Ë¤¢¤ë¸òº¹ÅÀ¤«¤é»£±Æ¡£¤³¤Á¤é¤Î½»Í§µ¡ºà¥Ó¥ë¤Ï½ÐÆþ¸ý¤¬Éõº¿¤µ¤ì¡¢²òÂÎÅù¤Îºî¶È¤Ë´Ø¤¹¤ë¤ªÃΤ餻¤¬ÀßÃÖ¤µ¤ì¤Æ¤¤¤Þ¤·¤¿¡£

¡¡¹©»ö¤Î̾¾Î¤Ï¡ÖÅìÃÓÂÞ°ìÃúÌÜÃ϶è»Ô³¹ÃϺƳ«È¯»ö¶È¤Ë·¸¤ë´û¸·úʪ²òÂι©»ö¡Ú¡½»Í§µ¡ºà¥Ó¥ë ³°Êɡۡפǡ¢²òÂι©»ö¤Î¸µÀÁ¶È¼Ô¤ÏÂçÀ®·úÀß¡¢²òÂι©´ü¤Ï8·î31Æü¤Þ¤Ç¤È¤Ê¤Ã¤Æ¤¤¤Þ¤·¤¿¡£³°ÊɤȤΤ³¤È¤Ê¤Î¤Ç¡¢¤É¤³¤Þ¤Ç²òÂΤµ¤ì¤ë¤Î¤«¤ÏÉÔÌÀ¤Ç¤¹¡£

¡¡º¸¸å¤í¤Ë¸«¤¨¤Æ¤¤¤ë͹âÁØ¥Ó¥ë¤Ï¡Ö¥Ï¥ì¥¶¥¿¥ï¡¼¡×(ÃϾå33³¬¡¢¹â¤µ158.28m)¤Ç¡¢¡ÖÅìÃÓÂÞ°ìÃúÌÜÃ϶èÂè°ì¼ï»Ô³¹ÃϺƳ«È¯»ö¶È¡×(ÃϾå32³¬¡¢¹â¤µÌó180m)¤Ï¤½¤ì¤è¤ê¤âÂ礤Ê͹âÁØ¥Ó¥ë¤Ë¤Ê¤ê¤Þ¤¹¡£

¡¡¤³¤³¤Ï³¹¶è¤ÎÃæ¿´Éô¤Î¤¿¤á¡¢Æ»Ï©¤¬Éõº¿¤µ¤ì¤ì¤ÐÍè¤ë¤³¤È¤Ï¤Ç¤¤Ê¤¯¤Ê¤ë¾ì½ê¤Ç¤¹¡£Æ»Ï©Éõº¿¤Ï8·î14Æü°Ê¹ß¤È¤¤¤¦¤À¤±¤Ç¡¢Éõº¿¤µ¤ì¤ëÆü¤Ï¤Þ¤À³ÎÄꤷ¤Æ¤¤¤Þ¤»¤ó¤¬¡¢¼¡²óˬÌä»þ¤Ë¤Ï¤â¤¦¤³¤³¤Ë¤ÏÆþ¤ì¤Ê¤¯¤Ê¤Ã¤Æ¤¤¤ë¤«¤â¤·¤ì¤Þ¤»¤ó¡£¡£

¡¡¤³¤Î¸òº¹ÅÀ¤ËÌ̤·¤¿¾ì½ê¤Ë¤¢¤Ã¤¿Ãó¼Ö¾ì¤â¿ôǯÁ°¤«¤éÊĺ¿¤µ¤ì¤Æ¤¤¤Þ¤¹¡£

¡¡Å즤ˤ¢¤ëJR¤ÎÀþÏ©¤òÅϤëÊâÆ»¶¶¤«¤é»£±Æ¡£

¡¡¤³¤ÎÊÕ¤ê¤Î´û¸·úʪ¤¬²òÂΤµ¤ì¤ë¤È·Ê¿§¤¬¿ïʬ¤ÈÊѤï¤ê¤½¤¦¤Ç¤¹¡£

¡¡JR¤ÎÀþÏ©±Û¤·¤Ë»£±Æ¡£ÃÓÂޱؼþÊÕ¤Î͹âÁز½¤Ï¤·¤Ð¤é¤¯Â³¤¤Þ¤¹¡£
ÃÏ¿Þ
ʪ·ï³µÍ×
¢£Êª·ï³µÍ×¢£
»ö¶È̾¡§ÅìÃÓÂÞ°ìÃúÌÜÃ϶èÂè°ì¼ï»Ô³¹ÃϺƳ«È¯»ö¶È
½êºßÃÏ¡§ÅìµþÅÔËÅç¶èÅìÃÓÂÞ°ìÃúÌÜ45¡Á48ÈÖ
¸òÄÌ¡§JR³ÆÀþ¡¦Åìµþ¥á¥È¥í³ÆÀþ¡¦ÅìÉðÅì¾åÀþ¡ÖÃÓÂÞ¡×±Ø
ÍÑÅÓ¡§»ö̳½ê¡¢¥¤¥Ù¥ó¥È¥Û¡¼¥ë¡¢Ê¸²½Âθ³»ÜÀß¡¢Ãó¼Ö¾ìÅù
³¬¿ô¡§ÃϾå32³¬¡¢Åã²°1³¬¡¢Ãϲ¼4³¬
¹â¤µ¡§Ìó180m
¹½Â¤¡§S¤¡¢RC¤¡¢SRC¤
ÉßÃÏÌÌÀÑ¡§Ìó9,900Ö
·úÃÛÌÌÀÑ¡§Ìó7,600Ö
±ä¾²ÌÌÀÑ¡§Ìó155,900Ö
»ö¶È¼Ô¡§ÅìÃÓÂÞ°ìÃúÌÜÃ϶è»Ô³¹ÃϺƳ«È¯Áȹç
»²²ÃÁȹç°÷¡§½»Í§ÉÔÆ°»º(ͽÄê)
»ö¶È¥³¥ó¥µ¥ë¥¿¥ó¥È¡§¥¢¡¼¥ë¡¦¥¢¥¤¡¦¥¨¡¼
´ðËÜÀ߷ס§¥¢¡¼¥ë¡¦¥¢¥¤¡¦¥¨¡¼
Àß·×¼Ô¡§¡Ý
»Ü¹©¼Ô¡§¡Ý
¹©´ü¡§2025ǯ2·îÃ幩¡Á2028ǯ6·î½×¹©Í½Äê
½Ðŵ
¢§ËÅç¶è¡§¤Þ¤Á¤Å¤¯¤ê
»Ô³¹ÃϺƳ«È¯»ö¶È¡ÊÅìÃÓÂÞ°ìÃúÌÜÃ϶è¡Ë
¢§ÅìµþÅÔ¡§»Ô³¹ÃϺƳ«È¯»ö¶È¤Ë¤Ä¤¤¤Æ
ÅìÃÓÂÞ°ìÃúÌÜ
¢§ÅìµþÅÔ¡§Êóƻȯɽ»ñÎÁ¡Ê2022ǯ7·î5Æü¡Ë
ÅìÃÓÂÞ°ìÃúÌÜÃ϶è»Ô³¹ÃϺƳ«È¯Áȹç¤ÎÀßΩ¤òǧ²Ä¤·¤Þ¤¹
¢§Âè17²ó¡¡ÅìµþÅÔÅÔ»ÔºÆÀ¸Ê¬²Ê²ñ¡¡ÇÛÉÛ»ñÎÁ¡Ê2020ǯ3·î23Æü¡Ë
»ñÎÁ£± ÅÔ»ÔºÆÀ¸ÆÃÊÌÃ϶è¡ÊÅìÃÓÂÞ°ìÃúÌÜÃ϶è¡ËÅԻԷײè¤Î³µÍ×
¢§½»Í§ÉÔÆ°»º¡§¥Ë¥å¡¼¥¹¥ê¥ê¡¼¥¹¡Ê2022ǯ7·î26Æü¡Ë
ÅìÃÓÂÞ°ìÃúÌÜÃ϶èÂè°ì¼ï»Ô³¹ÃϺƳ«È¯»ö¶È¡¡ºÆ³«È¯ÁȹçÀßΩ¤Î¤ªÃΤ餻
- ¥«¥Æ¥´¥ê
- ËÅç¶è







