
³°´Ñ´°À®Í½ÁÛCG[½Ðŵ¡§¸ø¼°HP]
¡¡ÅìµþÅÔ¾®Ê¿»Ô¤Î¡Ö¾®Àî¡×±ØÁ°¤Ç·úÀßÃæ¤Î¥¿¥ï¡¼¥Þ¥ó¥·¥ç¥ó¡Ö¥¢¥È¥é¥¹¥¿¥ï¡¼¾®Ê¿¾®Àî¡×(ÃϾå27³¬¡¢¹â¤µ98.51m)¤Î´°À®Í½ÁۿޤǤ¹¡£ÄãÁØÉô¤Ë¾¦¶È»ÜÀߤä¿Þ½ñ´Û¤¬ÇÛÃÖ¤µ¤ì¤ë°°²½À®ÉÔÆ°»º¥ì¥¸¥Ç¥ó¥¹¤Ë¤è¤ëʬ¾ù¥¿¥ï¥Þ¥ó¤Ç¡¢¾®Àî±Ø¤Ë¤Ï¥Ú¥Ç¥¹¥È¥ê¥¢¥ó¥Ç¥Ã¥¤Çľ·ëͽÄê¤È¤Ê¤Ã¤Æ¤¤¤Þ¤¹¡£¤³¤Îµ»ö¤Ç¤ÏƱ¥¿¥ï¥Þ¥ó¤Î³µÍפä·úÀß¾õ¶·¡Ê2024ǯ6·î8Æü»þÅÀ¡Ë¡¢ÃÏ¿ÞÅù¤òºÜ¤»¤Æ¤¤¤Þ¤¹¡£
¥¢¥È¥é¥¹¥¿¥ï¡¼¾®Ê¿¾®Àî¤Ë¤Ä¤¤¤Æ

³°´Ñ´°À®Í½ÁÛCG[½Ðŵ¡§¸ø¼°HP]
¡¡¡Ö¥¢¥È¥é¥¹¥¿¥ï¡¼¾®Ê¿¾®Àî¡×¤ÏÀ¾Éð¹ñʬ»ûÀþ¡¦ÇÒÅçÀþ¡Ö¾®Àî¡×±ØÁ°¤ÎºÆ³«È¯¤Ç¡¢µ¬ÌϤÏÃϾå27³¬¡¢Ãϲ¼1³¬¡¢¹â¤µ98.51m¡¢ÉßÃÏÌÌÀÑ5,045.35Ö¡¢·úÃÛÌÌÀÑ3,513.84Ö¡¢±ä¾²ÌÌÀÑ4Ëü268.69Ö¡¢·úÃÛ¼ç¤Ï¾®Àî±ØÀ¾¸ýÃ϶è»Ô³¹ÃϺƳ«È¯Áȹç¡Ê»²²ÃÁȹç°÷¡¦Çä¼ç¡§°°²½À®ÉÔÆ°»º¥ì¥¸¥Ç¥ó¥¹¡Ë¡¢Àß·×¼Ô¤ÏINA¿··úÃÛ¸¦µæ½ê¡¢»Ü¹©¼Ô¤Ï¸ÍÅÄ·úÀß¡¢½×¹©Í½Äê¤Ï2026ǯ5·î²¼½Ü¡¢Æþµï³«»ÏͽÄê¤Ï2026ǯ8·î²¼½Ü¤È¤Ê¤Ã¤Æ¤¤¤Þ¤¹¡£
¡¡Áí¸Í¿ô¤Ï218¸Í¡Ê»ö¶È¶¨ÎϼԼèÆÀ½»¸Í33¸Í´Þ¤à¡Ë¡¢ÈÎÇ䳫»ÏͽÄê»þ´ü¤Ï2024ǯ12·î¾å½Ü¤Ç¡¢ÈÎÇä´Ö¼è¤ê¤Ï1LDK¡Á4LDK¡¢ÀìÍÌÌÀѤÏ53.97Ö¡Á87.11Ö¡¢¥Ð¥ë¥³¥Ë¡¼ÌÌÀѤÏ7.88Ö¡Á30.28֤ȤʤäƤ¤¤Þ¤¹¡£

¥Õ¥í¥¢¿Þ[½Ðŵ¡§¸ø¼°HP]
¡¡Æ±¥¿¥ï¥Þ¥ó¤Î1¡Á2³¬¤Ï¥³¡¼¥×¤ß¤é¤¤¡¦¾¦¶ÈŹÊÞ¡¢3³¬¤Ë¤ÏÀ¸³è¥µ¡¼¥Ó¥¹·ÏŹÊÞ¡¢4¡Á5³¬¤Ï¿Þ½ñ´Û¡¦¸ø±×»ÜÀߤ¬ÇÛÃÖ¤µ¤ì¡¢5³¬¤Ë¤Ï½»Âð¤Î¥á¥¤¥ó¥¨¥ó¥È¥é¥ó¥¹¤âÇÛÃÖ¤µ¤ì¤Þ¤¹¡£

³µÇ°¿Þ[½Ðŵ¡§¸ø¼°HP]
¡¡½»Âð¥Õ¥í¥¢¤Ï6¡Á27³¬¤ËÇÛÃÖ¤µ¤ì¡¢2³¬¤Ç¤Ï¥Ç¥Ã¥¤Ë¤è¤Ã¤Æ¾®Àî±Ø¤Ëľ·ëͽÄê¤È¤Ê¤Ã¤Æ¤¤¤Þ¤¹¡£

³°´Ñ´°À®Í½ÁÛCG[½Ðŵ¡§¸ø¼°HP]
¡¡Æ±ºÆ³«È¯¤Ï¤æ¤È¤ê¤¢¤ëÇÛÅï¤È¤Ê¤Ã¤Æ¤ª¤ê¡¢·úʪ¤ÈÄÌÏ©¤Ë¥¹¥Ú¡¼¥¹¤òÀߤ±¤Æ¥×¥í¥à¥Ê¡¼¥É¤Î¤è¤¦¤Ê¶õ´Ö¤¬ÁϽФµ¤ì¡¢¸òÄ̹¾ì¤ä»Ô̱¹¾ì¤Ê¤É¤âÀ°È÷¤µ¤ì¤Þ¤¹¡£

¥¨¥ó¥È¥é¥ó¥¹¥Û¡¼¥ë´°À®Í½ÁÛCG[½Ðŵ¡§¸ø¼°HP]
¡¡5³¬¤Î½»Âð¶¦ÍÑÉô¤ËÇÛÃÖ¤µ¤ì¤ë¥¨¥ó¥È¥é¥ó¥¹¥Û¡¼¥ë¤Î´°À®Í½ÁۿޤǤ¹¡£

¥é¥¦¥ó¥¸´°À®Í½ÁÛCG[½Ðŵ¡§¸ø¼°HP]
¡¡5³¬¤Ë¤Ï¶¦ÍÑ»ÜÀߤȤ·¤Æ¥é¥¦¥ó¥¸¤âÇÛÃÖ¤µ¤ì¤Þ¤¹¡£

¸ø¶¦»ÜÀß´°À®Í½ÁÛCG[½Ðŵ¡§¸ø¼°HP]
¡¡¸ø¶¦»ÜÀߤȤ·¤Æ4¡Á5³¬¤Ë¤Ï¿Þ½ñ´Û¤¬ÇÛÃÖ¤µ¤ì¤Þ¤¹¡£
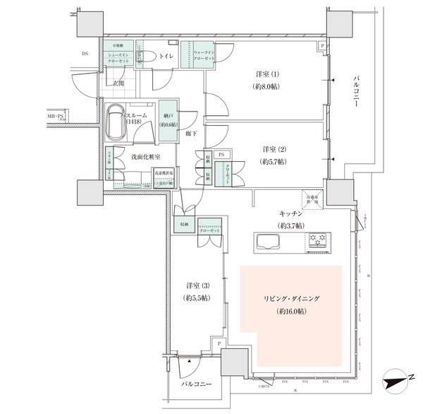
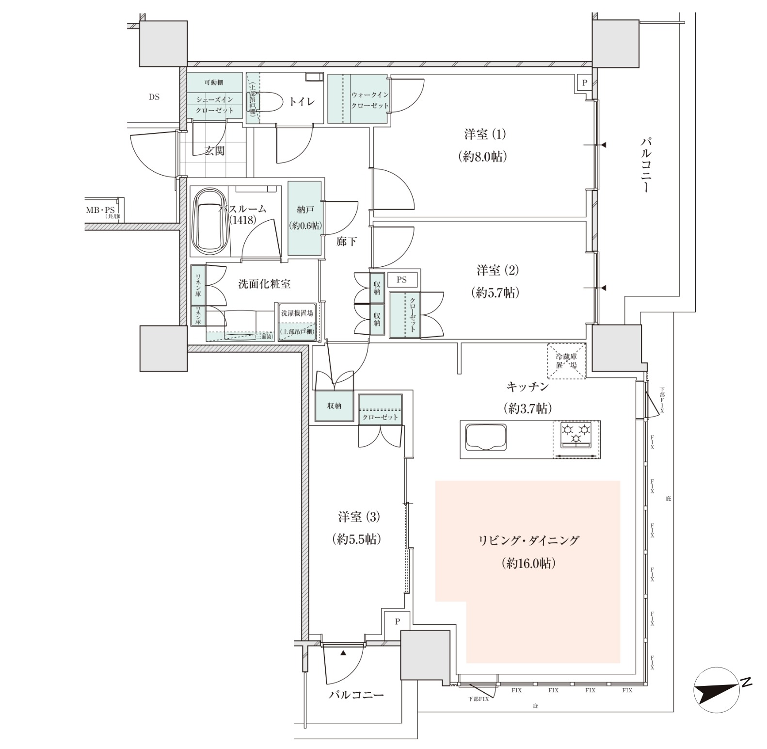
´Ö¼è¤ê¿Þ

¥Õ¥í¥¢¥¤¥é¥¹¥È[½Ðŵ¡§¸ø¼°HP]
¡¡11¡Á13¡¢15¡Á20³¬¥Õ¥í¥¢¥¤¥é¥¹¥È¤Ç¤¹¡£Æâϲ¼À߷פȤʤäƤª¤ê¡¢³Æ¥Õ¥í¥¢¤Ë¤Ï¥´¥ßÃÖ¤¾ì¤¬ÀßÃÖ¤µ¤ì¤Þ¤¹¡£¤Þ¤¿¡¢6³¬¤Ë¤Ï¥²¥¹¥È¥ë¡¼¥à¤¬ÀßÃÖ¤µ¤ì¤Þ¤¹¡£

E1¥¿¥¤¥×[½Ðŵ¡§¸ø¼°HP]
¡¡E1¥¿¥¤¥×¤Î´Ö¼è¤ê¿Þ¤Ç¤¹¡£´Ö¼è¤ê¤Ï3LDK+WIC+SIC¡¢ÀìÍÌÌÀѤÏ72.47Ö¡¢¥Ð¥ë¥³¥Ë¡¼ÌÌÀѤÏ12.71֤ȤʤäƤ¤¤Þ¤¹¡£

F1¥¿¥¤¥×[½Ðŵ¡§¸ø¼°HP]
¡¡F1¥¿¥¤¥×¤Î´Ö¼è¤ê¿Þ¤Ç¤¹¡£´Ö¼è¤ê¤Ï3LDK+2WIC¡¢ÀìÍÌÌÀѤÏ75.24Ö¡¢¥Ð¥ë¥³¥Ë¡¼ÌÌÀѤÏ17.94֤ȤʤäƤ¤¤Þ¤¹¡£

I3¥¿¥¤¥×[½Ðŵ¡§¸ø¼°HP]
¡¡I3¥¿¥¤¥×¤Î´Ö¼è¤ê¿Þ¤Ç¤¹¡£´Ö¼è¤ê¤Ï3LDK+WIC+SIC+N¡¢ÀìÍÌÌÀѤÏ86.94Ö¡¢¥Ð¥ë¥³¥Ë¡¼ÌÌÀѤÏ14.38֤ȤʤäƤ¤¤Þ¤¹¡£
°ÌÃÖ¿Þ

°ÌÃÖ¿Þ[½Ðŵ¡§¸ø¼°HP]
¡¡·úÀßÃϤÏÀ¾Éð¹ñʬ»ûÀþ¡¦À¾ÉðÇÒÅçÀþ¡Ö¾®Àî¡×±Ø¤ÎÀ¾¸ý¤ÎÌܤÎÁ°¤Ç¡¢2³¬¥ì¥Ù¥ë¤ËÀßÃÖͽÄê¤Î¥Ç¥Ã¥¤Ç±ØÄ¾·ë¤È¤Ê¤ê¤Þ¤¹¡£
¡¡¾®Àî±Ø¤ÏÆëÀ÷¤ß¤Î¤Ê¤¤Êý¤¬Â¿¤¤¤È»×¤¤¤Þ¤¹¤¬¡¢ÅìµþÅÔ¾®Ê¿»ÔÆâ¤Î±Ø¤Ç¹ñʬ»û¤È½êÂô¤ÎÃæ´Ö¤¢¤¿¤ê¤Ë°ÌÃÖ¤·¤Æ¤¤¤Þ¤¹¡£ËÜ¿ô¤Ï¿¤¯¤¢¤ê¤Þ¤»¤ó¤¬À¾É𿷽ɱؤˤâľÄ̤·¤Æ¤¤¤Þ¤¹¡£
·úÀß¾õ¶·

¡¡2024ǯ6·î8Æü¤Ë»£±Æ¤·¤¿¡Ö¥¢¥È¥é¥¹¥¿¥ï¡¼¾®Ê¿¾®Àî¡×(ÃϾå27³¬¡¢¹â¤µ98.51m)¤Î·úÀßÃϤǤ¹¡£

¡¡¥×¥ì¥Ï¥Ö»ö̳½ê¤¬¤¢¤ë¤³¤Á¤é¤ÎËÌÀ¾³ÑÃϤˤϹ¾ì¤¬ÇÛÃÖ¤µ¤ì¤Þ¤¹¡£

¡¡¤³¤Á¤é¤ÎËÌÅì³ÑÃϤˤϻÜÀßÍÑÃó¼Ö¾ì¤¬ÇÛÃÖ¤µ¤ì¤Þ¤¹¡£

¡¡²¾°Ï¤¤¤ÎÃæ¤Ç¤¹¡£±ü¤ÎÆî¦¤Ë¥¿¥ï¡¼¥Þ¥ó¥·¥ç¥óËÜÂΤ¬ÇÛÃÖ¤µ¤ì¤Þ¤¹¡£½»ÂðÍÑÃó¼Ö¾ì¤Ï¥¿¥ï¡¼¥Ñ¡¼¥¥ó¥°100Âæ¡¢Ê¿ÃÖ10Âæ¡¢¿È¾ã¼ÔÍÑ1Âæ¤È¤Ê¤Ã¤Æ¤¤¤Þ¤¹¡£

¡¡¾®Àî±Ø¤«¤é»£±Æ¤·¤¿¡Ö¥¢¥È¥é¥¹¥¿¥ï¡¼¾®Ê¿¾®Àî¡×¤Î·úÀßÃϤǤ¹¡£

¡¡»£±Æ»þ¤Ë¤Ï´ðÁöíÂι©»ö¤¬¹Ô¤ï¤ì¤Æ¤¤¤Þ¤·¤¿¡£Ãϲ¼¤Ë¤Ï½»ÂðÍÑÃóÎØ¾ì¤ä»ÜÀßÍÑÃóÎØ¾ì¤¬ÇÛÃÖ¤µ¤ì¤Þ¤¹¡£
ÃÏ¿Þ
ʪ·ï³µÍ×

¡¡·úÃ۷ײè¤Î¤ªÃΤ餻¤Ç¤¹¡£
¢£Êª·ï³µÍ×¢£
̾¾Î¡§¥¢¥È¥é¥¹¥¿¥ï¡¼¾®Ê¿¾®Àî
»ö¶È̾¡§¾®Àî±ØÀ¾¸ýÃ϶èÂè°ì¼ï»Ô³¹ÃϺƳ«È¯»ö¶È¤Ë·¸¤ë»ÜÀß·úÃÛʪ¿·ÃÛ¹©»ö
½êºßÃÏ¡§ÅìµþÅÔ¾®Ê¿»Ô¾®ÀîÀ¾Ä®4ÃúÌÜ3001ÈÖ¡ÊÃÏ̾ÃÏÈÖ¡Ë
¸òÄÌ¡§À¾Éð¹ñʬ»ûÀþ¡¦À¾ÉðÇÒÅçÀþ¡Ö¾®Àî±Ø¡×À¾¸ý¤è¤êÅÌÊâ1ʬ
ÍÑÅÓ¡§Å¹ÊÞ¡¢¿Þ½ñ´Û¡¢»ö̳½ê¡¢¶¦Æ±½»Âð¡¢Ãó¼Ö¾ì
Áí¸Í¿ô¡§218¸Í¡Ê»ö¶È¶¨ÎϼԼèÆÀ½»¸Í33¸Í´Þ¤à¡Ë¡¢Å¹ÊÞ12¶è²è¡¢¶È̳1¶è²è¡¢¸ø¶¦1¶è²è
³¬¿ô¡§ÃϾå27³¬¡¢Ãϲ¼1³¬
¹â¤µ¡§98.51m
¹½Â¤¡§Å´¶Ú¥³¥ó¥¯¥ê¡¼¥È¤ °ìÉô Å´¹ü¤¡ÊËÜÂΡˡ¢Å´¹ü¤¡ÊÃó¼Ö¾ìÅï¡Ë¡¢À©¿Ì¹½Â¤
´ðÁù©Ë¡¡§Ä¾ÀÜ´ðÁáÊËÜÂΡˡ¢¹º´ðÁáÊÃó¼Ö¾ìÅï¡Ë
ÉßÃÏÌÌÀÑ¡§5,045.35Ö
·úÃÛÌÌÀÑ¡§3,513.84Ö
±ä¾²ÌÌÀÑ¡§40,268.69Ö
·úÃۼ硧¾®Àî±ØÀ¾¸ýÃ϶è»Ô³¹ÃϺƳ«È¯Áȹç
»²²ÃÁȹç°÷¡¦Çä¼ç¡§°°²½À®ÉÔÆ°»º¥ì¥¸¥Ç¥ó¥¹
Àß·×¼Ô¡§INA¿··úÃÛ¸¦µæ½ê
»Ü¹©¼Ô¡§¸ÍÅÄ·úÀß
¹©´ü¡§2023ǯ12·î1ÆüÃ幩¡Á2026ǯ5·î²¼½Ü½×¹©Í½Äê
Æþµï¡§2026ǯ8·î²¼½ÜͽÄê
½Ðŵ
¢§¸ø¼°HP¡§¥¢¥È¥é¥¹¥¿¥ï¡¼¾®Ê¿¾®Àî
https://www.atlas-web.jp/atlas/mansion/ogawa/
¢§¾®Ê¿»Ô¡§¤Þ¤Á¤Å¤¯¤ê
¾®Àî±ØÀ¾¸ýÃ϶èÂè°ì¼ï»Ô³¹ÃϺƳ«È¯»ö¶È
¢§¾®Àî±ØÀ¾¸ýÃ϶è»Ô³¹ÃϺƳ«È¯Áȹç
https://ogawawest-renewal.com/
- ¥«¥Æ¥´¥ê
- ¾®Ê¿»Ô







