
³°´Ñ´°À®Í½ÁÛCG[½Ðŵ¡§¸ø¼°HP]
¡¡ºûÄͤǷúÀßÃæ¤Î¥¿¥ï¡¼¥Þ¥ó¥·¥ç¥ó¡Ö¥Ñ¡¼¥¯¥¿¥ï¡¼½ÂëºûÄÍ¡×(ÃϾå28³¬¡¢¹â¤µ99.98m)¤Î´°À®Í½ÁۿޤǤ¹¡£·úÀßÃϤϺûÄÍ±ØÆî¸ý¤ÎÅ즡ʿ·½É¦¡Ë¤Ë¤¢¤Ã¤¿ÃæÂ¼²°Åìµþ»ö¶È½êÀ×ÃÏ¡¢Çä¼ç¤Ï»°°æÉÔÆ°»º¥ì¥¸¥Ç¥ó¥·¥ã¥ëñÂΤÇ2025ǯ3·î¾å½Ü¤«¤éÈÎÇ䳫»ÏͽÄê¤È¤Ê¤Ã¤Æ¤¤¤Þ¤¹¡£¤³¤Îµ»ö¤Ç¤ÏƱ¥¿¥ï¥Þ¥ó¤Î³µÍפä·úÀß¾õ¶·¡Ê2024ǯ6·î8Æü»þÅÀ¡Ë¡¢ÃÏ¿ÞÅù¤òºÜ¤»¤Æ¤¤¤Þ¤¹¡£
¥Ñ¡¼¥¯¥¿¥ï¡¼½ÂëºûÄͤˤĤ¤¤Æ

³°´Ñ´°À®Í½ÁÛCG[½Ðŵ¡§¸ø¼°HP]
¡¡¡Ö¥Ñ¡¼¥¯¥¿¥ï¡¼½ÂëºûÄ͡פϺûÄÍ±ØÆî¸ý¤ÎÅ즡ʿ·½É¦¡Ë¤Ë¤¢¤Ã¤¿ÃæÂ¼²°Åìµþ»ö¶È½êÀ×ÃϤÎʬ¾ù¥¿¥ï¥Þ¥ó¤Ç¡¢µ¬ÌϤÏÃϾå28³¬¡¢Åã²°2³¬¡¢Ãϲ¼1³¬¡¢¹â¤µ99.98m¡¢ÉßÃÏÌÌÀÑ8,156.34Ö¡¢·úÃÛÌÌÀÑ5,284.96Ö¡¢±ä¾²ÌÌÀÑ7Ëü7376.68Ö¡¢·úÃۼ硦Çä¼ç¤Ï»°°æÉÔÆ°»º¥ì¥¸¥Ç¥ó¥·¥ã¥ë¡¢À߷׼ԤȻܹ©¼Ô¤ÏÂçÎÓÁȤÇ2027ǯ12·î²¼½Ü½×¹©¡¢2028ǯ3·î²¼½Ü¤ÎÆþµï³«»ÏͽÄê¤È¤Ê¤Ã¤Æ¤¤¤Þ¤¹¡£¤Þ¤¿¡¢Æ±¥¿¥ï¥Þ¥ó¤Ï2028ǯ3·î²¼½Ü¤«¤é2098ǯ12·î31Æü¤Þ¤Ç¤ÎÌó70ǯ¤ÎÄê´üž¼ÚÃϸ¢¤¬ÉÕ¤¤¤Æ¤¤¤Þ¤¹¡£
¡¡Áí¸Í¿ô659¸Í¤Î¤¦¤Á°ìÈÌÈÎÇäÂоݽ»¸Í¤Ï633¸Í¡¢2025ǯ3·î¾å½Ü¤«¤é¤ÏÈÎÇ䳫»ÏͽÄê¤Ç¡¢ÈÎÇä´Ö¼è¤ê¤Ï1LDK¡Á4LDK¡¢ÀìÍÌÌÀѤÏ43.94Ö¡Á129.45Ö¡¢¥Ð¥ë¥³¥Ë¡¼ÌÌÀѤÏ10.54Ö¡Á26.57֤ȤʤäƤ¤¤Þ¤¹¡£

¥Õ¥í¥¢¹½À®[½Ðŵ¡§¸ø¼°HP]
¡¡1³¬¤Ë¤ÏÂç·¿¥¹¡¼¥Ñ¡¼¤¬ÇÛÃÖ¤µ¤ì¡¢2³¬¤Ë¤Ï»Ò°é¤Æ»Ù±ç»ÜÀߤ¬³«ÀßͽÄê¤È¤Ê¤Ã¤Æ¤¤¤Þ¤¹¡£¤½¤·¤Æ3³¬¤Ë¤Ï¥Þ¥ó¥·¥ç¥ó¶¦ÍÑÉô¤¬½¸¤á¤é¤ì¡¢²°¾å¤Ë¤Ï¥¹¥«¥¤¥Æ¥é¥¹¤¬ÇÛÃÖ¤µ¤ì¤Þ¤¹¡£

B1³¬Ê¿ÌÌ¿Þ[½Ðŵ¡§¸ø¼°HP]
¡¡Ãϲ¼1³¬¤ÏÃó¼Ö¾ì¤¬ÇÛÃÖ¤µ¤ì¤Þ¤¹¡£

1³¬Ê¿ÌÌ¿Þ[½Ðŵ¡§¸ø¼°HP]
¡¡1³¬¤ÎºûÄͱؤ˶ᤤ¦¤Ë¤Ï¥¨¥ó¥È¥é¥ó¥¹¤¬Àߤ±¤é¤ì¡¢¼Ö´ó¤»¤ä¥¿¥ï¡¼¥Ñ¡¼¥¥ó¥°¤Î½ÐÆþ¸ý¡¢EV½¼ÅÅ¥¹¥Ú¡¼¥¹¤âÀߤ±¤é¤ì¤Þ¤¹¡£¤Þ¤¿¡¢1³¬¤ÎŹÊޤȤ·¤Æ¤ÏÂç·¿¥¹¡¼¥Ñ¡¼¤¬ÆþµïͽÄê¤Ç¡¢¿Þ¤ÎÎп§Éôʬ¤Ë¤Ï¥¹¡¼¥Ñ¡¼Ä¾·ë¤Î¥¨¥ì¥Ù¡¼¥¿¡¼¤¬ÇÛÃÖ¤µ¤ì¤Þ¤¹¡£

2³¬Ê¿ÌÌ¿Þ[½Ðŵ¡§¸ø¼°HP]
¡¡2³¬¤Ë¤Ï»ö̳½ê¡¢Å¹ÊÞ¡¢»Ò°é¤Æ»Ù±ç»ÜÀߤ¬ÇÛÃÖ¤µ¤ì¡¢¥Þ¥ó¥·¥ç¥ó¤Î¶¦ÍÑ»ÜÀߤȤ·¤Æ¥²¥¹¥È¥ë¡¼¥à¤¬5¼¼ÍѰդµ¤ì¤Þ¤¹¡£

3³¬Ê¿ÌÌ¿Þ[½Ðŵ¡§¸ø¼°HP]
¡¡3³¬¤«¤é¤¬½»Âð¥Õ¥í¥¢¤Ç¡¢3³¬¤Ë¤Ï¥é¥¦¥ó¥¸¤ä¥¹¥¿¥Ç¥£¥ë¡¼¥à¡¢¥Ñ¡¼¥Æ¥£¥ë¡¼¥à¤Ê¤É¤Î¶¦ÍÑ»ÜÀߤ¬½¸Ì󤵤ì¤Þ¤¹¡£

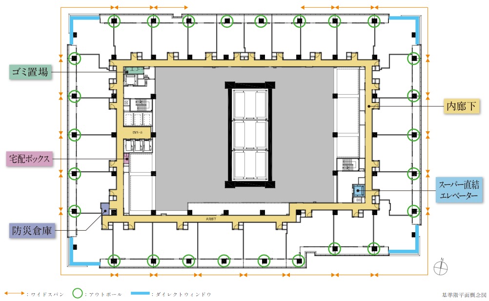
20³¬Ê¿ÌÌ¿Þ[½Ðŵ¡§¸ø¼°HP]
¡¡½»Âð¥Õ¥í¥¢¤Î³Æ³¬¤Ë¤Ï¥´¥ßÃÖ¾ì¤äÂðÇۥܥ寥¹¤¬Àߤ±¤é¤ì¤Þ¤¹¡£

²°¾å³¬Ê¿ÌÌ¿Þ[½Ðŵ¡§¸ø¼°HP]
¡¡²°¾å¤Ë¤ÏÎФ˰Ϥޤ줿µï½»¼ÔÀìÍѶõ´Ö¤Î¡Ö¥¹¥«¥¤¥Æ¥é¥¹¡×¤¬ÀßÃÖ¤µ¤ì¤Þ¤¹¡£

ÉßÃÏÇÛÃÖ³µÇ°¿Þ[½Ðŵ¡§¸ø¼°HP]
¡¡¡Ö¥Ñ¡¼¥¯¥¿¥ï¡¼½ÂëºûÄ͡פμþ°Ï¤Ë¤Ï6¤Ä¤Î¥¨¥ê¥¢¤Ëʬ¤±¤¿¿¢ºÏ¤¬·×²è¤µ¤ì¤Æ¤ª¤ê¡¢650ËܤÎÃæ¹âÌÚ¤È3000³ô¤ÎÄãÌÚÃÏÈïÎब »Íµ¨¤òºÌ¤ê¤Þ¤¹¡£

³°¹½¡Ê¿åÊÕ¤ÎÎС˴°À®Í½ÁÛCG[½Ðŵ¡§¸ø¼°HP]
¡¡£¤Î¤Ê¤¬¤ì¤Î´°À®Í½ÁۿޤǤ¹¡£¿å·Ê¤Ë´ó¤êꤦÊâÆ»¤¬À°È÷¤µ¤ì¤Þ¤¹¡£

¹¾ì´°À®Í½ÁÛCG[½Ðŵ¡§¸ø¼°HP]
¡¡ÉßÃÏË̦¤ËÀ°È÷¤µ¤ì¤ë¹¾ì¤Î´°À®Í½ÁۿޤǤ¹¡£

¥¨¥ó¥È¥é¥ó¥¹´°À®Í½ÁÛCG[½Ðŵ¡§¸ø¼°HP]
¡¡¤½¤Î¹¾ì¤ÎºûÄͱØÂ¦¤Ë¤Ï¥¨¥ó¥È¥é¥ó¥¹¤¬Àߤ±¤é¤ì¡¢¹¾ì¤Ë¤ÏÊ£¿ô¤Î¿³Ñ·Á¤Ç¥Ç¥¶¥¤¥ó¤·¤¿¥¥ã¥Î¥Ô¡¼¡ÊÅ·³¸¡Ë¤¬ÇÛÃÖ¤µ¤ì¤Þ¤¹¡£

¥¨¥ó¥È¥é¥ó¥¹¥Û¡¼¥ë´°À®Í½ÁÛCG[½Ðŵ¡§¸ø¼°HP]
¡¡¥¨¥ó¥È¥é¥ó¥¹¥Û¡¼¥ë¤Ï¿å·Ê¥Ç¥¶¥¤¥ó¤ò¼è¤ê¹þ¤ó¤ÀÌó7.8m¤ÎÅ·°æ¹â¤¬¤¢¤ë2ÁØ¿áÈ´¤±¤Î¶õ´Ö¤È¤Ê¤ê¤Þ¤¹¡£

¥é¥¦¥ó¥¸´°À®Í½ÁÛCG[½Ðŵ¡§¸ø¼°HP]
¡¡3³¬¤ËÇÛÃÖ¤µ¤ì¤ë¥é¥¦¥ó¥¸¤Î´°À®Í½ÁۿޤǤ¹¡£°ì¿Í³Ý¤±¥½¥Õ¥¡¤ä¥Ó¥Ã¥°¥Æ¡¼¥Ö¥ë¤Ê¤É¤¬ÇÛÃÖ¤µ¤ì¤Þ¤¹¡£
´Ö¼è¤ê¿Þ

´ð½à³¬Ê¿Ì̳µÇ°¿Þ[½Ðŵ¡§¸ø¼°HP]
¡¡³Æ³¬¤Î½»Âð¥Õ¥í¥¢¤ÏÆâϲ¼À߷פ¬ºÎÍѤµ¤ì¤Æ¤ª¤ê¡¢¥´¥ßÃ־졢ÂðÇۥܥ寥¹¡¢ËɺÒÁҸˤ¬ÇÛÃÖ¤µ¤ì¡¢¤½¤·¤Æ1³¬¤Î¥¹¡¼¥Ñ¡¼¤Ëľ·ë¤¹¤ë¥¨¥ì¥Ù¡¼¥¿¡¼¤âÀߤ±¤é¤ì¤Þ¤¹¡£

45A¥¿¥¤¥×[½Ðŵ¡§¸ø¼°HP]
¡¡45A¥¿¥¤¥×¤Î´Ö¼è¤ê¿Þ¤Ç¤¹¡£´Ö¼è¤ê¤Ï1LDK+WIC+TR¡¢ÀìÍÌÌÀѤÏ45.71֡ʥȥé¥ó¥¯¥ë¡¼¥àÌÌÀÑ0.66Ö´Þ¤à¡Ë¡¢¥Ð¥ë¥³¥Ë¡¼ÌÌÀѤÏ11.10֤Ǥ¹¡£

64A¥¿¥¤¥×[½Ðŵ¡§¸ø¼°HP]
¡¡64A¥¿¥¤¥×¤Î´Ö¼è¤ê¿Þ¤Ç¤¹¡£´Ö¼è¤ê¤Ï2LDK+WIC+SIC+S+TR¡¢ÀìÍÌÌÀѤÏ64.23֡ʥȥé¥ó¥¯¥ë¡¼¥àÌÌÀÑ0.66Ö´Þ¤à¡Ë¡¢¥Ð¥ë¥³¥Ë¡¼ÌÌÀѤÏ15.21֤Ǥ¹¡£

77Ab¥¿¥¤¥×[½Ðŵ¡§¸ø¼°HP]
¡¡77Ab¥¿¥¤¥×¤Î´Ö¼è¤ê¿Þ¤Ç¤¹¡£´Ö¼è¤ê¤Ï3LDK+WIC+SIC+TR¡¢ÀìÍÌÌÀѤÏ77.60֡ʥȥé¥ó¥¯¥ë¡¼¥àÌÌÀÑ0.55Ö´Þ¤à¡Ë¡¢¥Ð¥ë¥³¥Ë¡¼ÌÌÀѤÏ10.54֤Ǥ¹¡£

P-126A¥¿¥¤¥×[½Ðŵ¡§¸ø¼°HP]
¡¡¥×¥ì¥ß¥¢¥à¥×¥é¥ó¡Ê27¡¦28³¬¡Ë¤ÎP-126A¥¿¥¤¥×¤Î´Ö¼è¤ê¿Þ¤Ç¤¹¡£´Ö¼è¤ê¤Ï4LDK+DEN+2WIC+SIC+TR¡¢ÀìÍÌÌÀѤÏ126.21֡ʥȥé¥ó¥¯¥ë¡¼¥àÌÌÀÑ0.77Ö´Þ¤à¡Ë¡¢¥Ð¥ë¥³¥Ë¡¼ÌÌÀѤÏ19.51֤Ǥ¹¡£
°ÌÃÖ¿Þ

°ÌÃÖ¿Þ[½Ðŵ¡§¸ø¼°HP]
¡¡¡Ö¥Ñ¡¼¥¯¥¿¥ï¡¼½ÂëºûÄ͡פηúÀßÃϤϵþ²¦Àþ¡ÖºûÄÍ¡×±ØÆî¸ý¤ÎÅ즤ˤ¢¤Ã¤¿ÃæÂ¼²°Åìµþ»ö¶È½ê¤ÎÀ×ÃϤǤ¹¡£¥Þ¥ó¥·¥ç¥ó̾¤Ë½Â뤬Æþ¤Ã¤Æ¤¤¤Þ¤¹¤¬¡¢½»½ê¤¬½Âë¶èºûÄͤʤÀ¤±¤Ç¾è¤ê´¹¤¨¤Ê¤·¤Î°ìËܤǹԤ±¤ë¤Î¤Ï¿·½É±Ø¤Ë¤Ê¤ê¤Þ¤¹¡£

°ÌÃÖ¿Þ[½Ðŵ¡§¸ø¼°HP]
¡¡µþ²¦Àþ¡¦µþ²¦¿·Àþ¡ÖºûÄ͡ױؤ«¤é¤ÏÅÌÊâ4ʬ¡¢¾¦¶È»ÜÀߤεþ²¦¥¯¥é¥¦¥ó³¹½Ð¸ý¤«¤é¤ÏÅÌÊâ3ʬ¤È¤Ê¤Ã¤Æ¤¤¤Þ¤¹¡£
·úÀß¾õ¶·

¡¡2024ǯ6·î8Æü¤Ëµþ²¦Àþ¼ÖÆâ¤«¤é»£±Æ¤·¤¿¡Ö¥Ñ¡¼¥¯¥¿¥ï¡¼½ÂëºûÄÍ¡×(ÃϾå28³¬¡¢¹â¤µ99.98m)¤Î·úÀßÃϤǤ¹¡£

¡¡·úÀßÃϤòÅÅ¼ÖÆâ¤«¤é¸«¤ë¤Ë¤Ï¿·½É±Ø¤¬»Ïȯ¤È¤Ê¤Ã¤Æ¤¤¤ëµþ²¦Àþ¤Ë¾è¤ëɬÍפ¬¤¢¤ê¤Þ¤¹¡£ÅԱĿ·½ÉÀþ¤ÈľÄ̤·¤Æ¤¤¤ëµþ²¦¿·Àþ¤ÏÎÙ¤Î2ÈÖÀþ¤ËÆþ¤Ã¤Æ¤·¤Þ¤¤¤Þ¤¹¡£¤¿¤À¡¢Îã³°¤ÇÈÖÀþ¤¬ÊѤï¤ë¤³¤È¤â¤¢¤ë¤è¤¦¤Ç¤¹¡£

¡¡·úÀßÃϤÏ8000Ö¤òͤ¨¤ë¹¤¤ÉßÃϤȤʤäƤ¤¤Þ¤¹¡£

¡¡ÃϾ夫¤é»£±Æ¤·¤¿¡Ö¥Ñ¡¼¥¯¥¿¥ï¡¼½ÂëºûÄ͡פηúÀßÃϤǤ¹¡£ÉßÃϤޤǤϱؤ«¤é¹â²Í²¼¤òÄ̤äÆÍè¤ë¤³¤È¤¬¤Ç¤¡¢¤½¤·¤ÆÉßÃϤ«¤é¥¨¥ó¥È¥é¥ó¥¹¤Þ¤Ç¤ÏÊ£¿ô¤Î¿³Ñ·Á¤Ç¥Ç¥¶¥¤¥ó¤·¤¿²°º¬¤Î¤¢¤ëÄÌÏ©¤¬Àߤ±¤é¤ì¤Þ¤¹¡£

ÆîÀ¾Â¦¤«¤é»£±Æ¡£Çظå¤Î͹âÁØ¥Ó¥ë¤Ï¡ÖDaiwaºûÄÍ¥¿¥ï¡¼(µì¾Î¡§ºûÄÍNA¥Ó¥ë)¡×(ÃϾå18³¬¡¢¹â¤µ72.8m)¤Ç¡¢¿·½ÉÊýÌ̤Îį˾¤ò°ìÉô¼×¤ë¥Ó¥ë¤Ë¤Ê¤ê¤Þ¤¹¡£

¡¡ÃæÌîÄ̤ê±è¤¤¤È¤Ê¤ëÆîÅ즤«¤é»£±Æ¡£

¡¡ËÌÅ즤«¤é»£±Æ¡£±ü¤Ë¸«¤Æ¤¤¤ëÇØ¤Î¹â¤¤·úʪ¤ÏºûÄͱؤΡ֥á¥ë¥¯¥Þ¡¼¥ëµþ²¦ºûÄÍ¡×(ÃϾå21³¬¡¢ºÇ¹â¹â¤µ93.27m)¤Ç¡¢¤³¤³¤Ë·úÀߤµ¤ì¤ë¡Ö¥Ñ¡¼¥¯¥¿¥ï¡¼½ÂëºûÄ͡פϤ½¤ì¤è¤ê¤â¹â¤¯¤Ê¤ê¤Þ¤¹¡£
ÃÏ¿Þ
ʪ·ï³µÍ×

¡¡·úÃ۷ײè¤Î¤ªÃΤ餻¤Ç¤¹¡£
¢£Êª·ï³µÍ×¢£
̾¾Î¡§¥Ñ¡¼¥¯¥¿¥ï¡¼½ÂëºûÄÍ
»ö¶È̾¡§ºûÄÍ±ØÆî¸ýÅìÃÏ¶èºÆ³«È¯·×²è
½êºßÃÏ¡§ÅìµþÅÔ½Âë¶èºûÄÍ£±ÃúÌÜ50ÈÖ-1¾¡ÊÃÏÈÖ¡Ë
¸òÄÌ¡§µþ²¦Àþ¡¦µþ²¦¿·Àþ¡ÖºûÄÍ¡×±Ø ÅÌÊ⣴ʬ
ÍÑÅÓ¡§¶¦Æ±½»Âð¡¢»ö̳½ê¡¢ÊªÈÎŹÊÞ¡¢°û¿©Å¹¡¢Êݰé½ê¡¢¤½¤Î¾
Áí¸Í¿ô¡§659¸Í(°ìÈÌÈÎÇäÂоݽ»¸Í633¸Í)
³¬¿ô¡§ÃϾå28³¬¡¢Åã²°2³¬¡¢Ãϲ¼1³¬
¹â¤µ¡§99.98m
¹½Â¤¡§Å´¶Ú¥³¥ó¥¯¥ê¡¼¥È¤ °ìÉô Å´¹ü¤¡¢À©¿Ì¹½Â¤
´ðÁù©Ë¡¡§¹º´ðÁÃ
ÉßÃÏÌÌÀÑ¡§8,156.34Ö
·úÃÛÌÌÀÑ¡§5,284.96Ö
±ä¾²ÌÌÀÑ¡§77,376.68Ö
·úÃۼ硧»°°æÉÔÆ°»º¥ì¥¸¥Ç¥ó¥·¥ã¥ë
Çä¡¡¼ç¡§»°°æÉÔÆ°»º¥ì¥¸¥Ç¥ó¥·¥ã¥ë
Àß·×¼Ô¡§ÂçÎÓÁÈ
»Ü¹©¼Ô¡§ÂçÎÓÁÈ
¹©´ü¡§2024ǯ2·î¾å½ÜÃ幩¡Á2027ǯ12·î²¼½Ü½×¹©Í½Äê
Æþµï¡§2028ǯ3·î²¼½ÜͽÄê
ž¼ÚÃϸ¢¡§2028ǯ3·î²¼½Ü¤«¤é2098ǯ12·î31Æü¤Þ¤Ç
½Ðŵ
¢§¸ø¼°HP¡§¥Ñ¡¼¥¯¥¿¥ï¡¼½ÂëºûÄÍ
https://www.31sumai.com/mfr/X1901/
¢§½Âë¶è¡Ê2023ǯ7·î1Æü¹¹¿·¡Ë
ºûÄÍ±ØÆî¸ýÃ϶è¤Þ¤Á¤Å¤¯¤ê
- ¥«¥Æ¥´¥ê
- ½Âë¶è







