
³°´Ñ´°À®Í½ÁÛCG[½Ðŵ¡§¸ø¼°HP]
¡¡»ÔÀî±ØÅÌÊâ·÷¤Ç·úÀßÃæ¤Î¥¿¥ï¡¼¥Þ¥ó¥·¥ç¥ó¡Ö¥ê¡¼¥Õ¥·¥Æ¥£»ÔÀî ¥¶¡¦¥¿¥ï¡¼¡×(ÃϾå29³¬¡¢¹â¤µ104.15m)¤Î´°À®Í½ÁۿޤǤ¹¡£·úÀßÃϤϵþÍÕ¥¬¥¹»ÔÀ¾ìÀ×ÃϤǡ¢½»Â𡦾¦¶È¡¦¹¾ì¤Ê¤É¤¬ÇÛÃÖ¤µ¤ì¤ëÌó3.7ha¤ÎÂ絬ÌÏÊ£¹ç¥·¥Æ¥£¡Ö¥ê¡¼¥Õ¥·¥Æ¥£»ÔÀî¡×Æâ¤Îʬ¾ù¥¿¥ï¥Þ¥ó¤È¤Ê¤ê¤Þ¤¹¡£Çä¼ç¤Ï»°°æÉÔÆ°»º¥ì¥¸¥Ç¥ó¥·¥ã¥ë¡¦Ìî¼ÉÔÆ°»º¡¦»°É©ÃϽê¥ì¥¸¥Ç¥ó¥¹¤ÇÌó70ǯ¤ÎÄê´ü¼ÚÃϸ¢ÉÕ¤¤È¤Ê¤Ã¤Æ¤¤¤Þ¤¹¡£¤³¤Îµ»ö¤Ç¤ÏƱºÆ³«È¯¤Î³µÍפä·úÀß¾õ¶·¡Ê2024ǯ5·î4Æü»þÅÀ¡Ë¡¢ÃÏ¿ÞÅù¤òºÜ¤»¤Æ¤¤¤Þ¤¹¡£
¥ê¡¼¥Õ¥·¥Æ¥£»ÔÀî ¥¶¡¦¥¿¥ï¡¼¤Ë¤Ä¤¤¤Æ

³°´Ñ´°À®Í½ÁÛCG[½Ðŵ¡§¸ø¼°HP]
¡¡¡Ö¥ê¡¼¥Õ¥·¥Æ¥£»ÔÀî ¥¶¡¦¥¿¥ï¡¼¡×¤Ï»ÔÀî±Ø¤«¤éÆî¦¤ØÅÌÊâ7ʬ¤Î¥¿¥ï¡¼¥Þ¥ó¥·¥ç¥ó¤Ç¡¢µ¬ÌϤÏÃϾå29³¬¡¢¹â¤µ104.15m¡¢ÉßÃÏÌÌÀÑ1Ëü7043.65Ö¡ÊÄê´üž¼ÚÃϸ¢¤ª¤è¤ÓÄê´üž¡¹¼ÚÃϸ¢¤ÎÂоÝÌÌÀÑ¡§1Ëü2200.02Ö¡Ë¡¢·úÃÛÌÌÀÑ6,106.66Ö¡¢±ä¾²ÌÌÀÑ7Ëü2346.45Ö¡¢Áí¸Í¿ô672¸Í¤È¤Ê¤Ã¤Æ¤¤¤Þ¤¹¡£
¡¡·úÃÛ¼ç¤ÈÇä¼ç¤Ï»°°æÉÔÆ°»º¥ì¥¸¥Ç¥ó¥·¥ã¥ë¡¢Ìî¼ÉÔÆ°»º¡¢»°É©ÃϽê¥ì¥¸¥Ç¥ó¥¹¡¢À߷׼ԤȻܹ©¼Ô¤ÏĹ빩¥³¡¼¥Ý¥ì¡¼¥·¥ç¥ó¤Ç2026ǯ12·î²¼½Ü½×¹©¡¢2027ǯ3·î²¼½Ü¤ÎÆþµï³«»ÏͽÄê¤Ç¤¹¡£Æ±¥¿¥ï¥Þ¥ó¤ÏÄê´üž¼ÚÃϸ¢¤ª¤è¤ÓÄê´üž¡¹¼ÚÃϸ¢ÉÕ¤¤Î¥Þ¥ó¥·¥ç¥ó¤È¤Ê¤Ã¤Æ¤ª¤ê¡¢Â¸Â³´ü´Ö¤Ï2100ǯ11·î14Æü¤Þ¤Ç¤Ç¡¢¤½¤ì¤Þ¤Ç¤Ë¹¹ÃϤˤ·¤ÆÊÖ´Ô¤¹¤ë¤³¤È¤Ë¤Ê¤ê¤Þ¤¹¡£

³°´Ñ´°À®Í½ÁÛCG[½Ðŵ¡§¸ø¼°HP]
¡¡2024ǯ9·î¾å½Ü¤è¤êÂè1´ü¤ÎÈÎÇ䳫»ÏͽÄê¤È¤Ê¤Ã¤Æ¤ª¤ê¡¢Âè1´ü°Ê¹ß¤â´Þ¤á¤¿ÁíÈÎÇäͽÄê½»¸Í¡Ê672¸Í¡Ë¤ÎÈÎÇä´Ö¼è¤ê¤Ï1LDK¡Á4LDK¡¢ÀìÍÌÌÀѤÏ42.70Ö¡Á129.90Ö¡¢¥Ð¥ë¥³¥Ë¡¼ÌÌÀѤÏ8.93Ö¡Á29.64Ö¡¢ÈÎÇäͽÄê²Á³Ê¤Ï3800Ëü±ßÂæ¡Á1²¯9600Ëü±ßÂæ¤Ç¡¢Í½ÄêºÇ¿ÈÎÇä²Á³ÊÂÓ¤Ï7700Ëü±ßÂæ¤È¤Ê¤Ã¤Æ¤¤¤Þ¤¹¡£ÈÎÇäͽÄê²Á³Ê¤Ë¤Ï¾ÃÈñÀÇ¡¢Á°Ê§¤¤ÃÏÂå¤â´Þ¤Þ¤ì¤Æ¤¤¤Þ¤¹¡£
¡¡27³¬¤Ë¤Ï¶¦ÍÑ»ÜÀߤȤ·¤Æ¥¥Ã¥Á¥ó¥¹¥Ú¡¼¥¹¤òÈ÷¤¨¤¿¥¹¥«¥¤¥é¥¦¥ó¥¸¤¬ÍѰդµ¤ì¡¢¤½¤³¤«¤é¤Ï»ÔÀî»Ô̱ǼÎòֲÐÂç²ñ¤Ê¤É¤ò˾¤à¤³¤È¤â¤Ç¤¤ë¾ì½ê¤È¤Ê¤ê¤Þ¤¹¡£

Á´Âγ¹¶è´°À®Í½ÁÛCG[½Ðŵ¡§¸ø¼°HP]
¡¡¡Ö¥ê¡¼¥Õ¥·¥Æ¥£»ÔÀî ¥¶¡¦¥¿¥ï¡¼¡×¤Î·úÀßÃϤϵþÍÕ¥¬¥¹»ÔÀ¾ìÀ×ÃϤǡ¢½»Â𡦾¦¶È¡¦¹¾ìÅù¤Ç¹½À®¤µ¤ì¤ëÂ絬ÌÏÊ£¹ç¥·¥Æ¥£¡Ö¥ê¡¼¥Õ¥·¥Æ¥£»ÔÀî¡×¤È¤·¤ÆºÆ³«È¯¤¬¹Ô¤ï¤ì¤Æ¤¤¤Þ¤¹¡£
¡¡Æ±¥¿¥ï¥Þ¥ó¤ÎÀ¾Â¦¤Ç¤ÏÌî¼ÉÔÆ°»º¥¦¥§¥ë¥Í¥¹¤¬±¿±Ä¤¹¤ë¥·¥Ë¥¢½»Âð¤Î¡Ö¥ª¥¦¥«¥¹»ÔÀî¡×(181¸Í¡¢2025ǯÅÙ³«¶ÈͽÄê)¤¬·úÀßÃæ¤Ç¡¢Æî¦¤Ç¤Ï¥¤¥ª¥ó¥ê¥Æ¡¼¥ë¤¬·úÃÛ¼ç¤È¤Ê¤ë±ä¾²ÌÌÀÑ1Ëü417.00֤ξ¦¶È»ÜÀß¡Ê2025ǯÅÙ³«¶ÈͽÄê¡Ë¤¬·úÀߤµ¤ì¤Þ¤¹¡£¤µ¤é¤ËÆî¦¤Ç¤ÏÃϾå9³¬¡¢Áí¸Í¿ô235¸Í¤ÎÄÂÂß½»Âð¡Ê2025ǯÅÙ³«¶ÈͽÄê¡Ë¤â·úÀßÃæ¤Ç¤¹¡£

ÉßÃÏÇÛÃÖ¿Þ´°À®Í½ÁÛCG[½Ðŵ¡§¸ø¼°HP]
¡¡¡Ö¥ê¡¼¥Õ¥·¥Æ¥£»ÔÀî¡×Æâ¤Ç¤Ï¾¤Ë¤âÃæ±û¹¾ì¡Ê2027ǯÅÙ3·î³«¶ÈͽÄê¡Ë¤ä±¿Æ°¾ì¡Ê2027ǯÅÙ3·î³«¶ÈͽÄê¡Ë¤Ê¤É¤âÀ°È÷¤µ¤ì¤Þ¤¹¡£
´Ö¼è¤ê¿Þ

N43C1¥¿¥¤¥×[½Ðŵ¡§¸ø¼°HP]
¡¡N43C1¥¿¥¤¥×¤Î´Ö¼è¤ê¿Þ¤Ç¤¹¡£´Ö¼è¤ê¤Ï1LDK+WIC¡¢ÀìÍÌÌÀѤÏ43.20Ö¡¢¥Ð¥ë¥³¥Ë¡¼ÌÌÀѤÏ9.85֤ȤʤäƤ¤¤Þ¤¹¡£

S58A1¥¿¥¤¥×[½Ðŵ¡§¸ø¼°HP]
¡¡S58A1¥¿¥¤¥×¤Î´Ö¼è¤ê¿Þ¤Ç¤¹¡£´Ö¼è¤ê¤Ï2LDK+WIC+SIC¡¢ÀìÍÌÌÀѤÏ58.88Ö¡¢¥Ð¥ë¥³¥Ë¡¼ÌÌÀѤÏ11.82֤ȤʤäƤ¤¤Þ¤¹¡£

S78K2¥¿¥¤¥×[½Ðŵ¡§¸ø¼°HP]
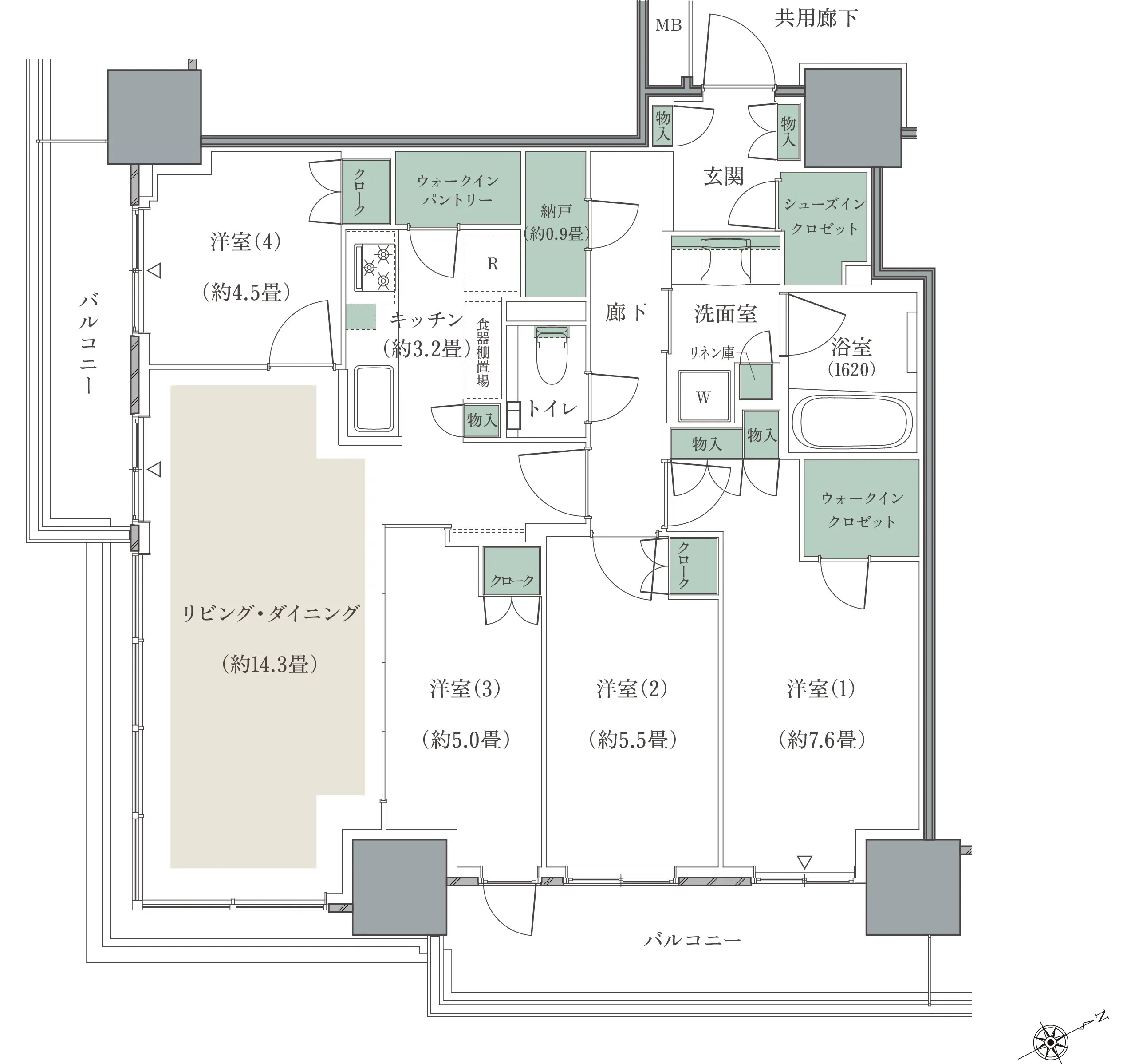
¡¡S78K2¥¿¥¤¥×¤Î´Ö¼è¤ê¿Þ¤Ç¤¹¡£´Ö¼è¤ê¤Ï3LDK+2WIC+SIC+WIP+N¡¢ÀìÍÌÌÀѤÏ78.22Ö¡¢¥Ð¥ë¥³¥Ë¡¼ÌÌÀѤÏ18.68֤ȤʤäƤ¤¤Þ¤¹¡£

SE93A¥¿¥¤¥×[½Ðŵ¡§¸ø¼°HP]
¡¡SE93A¥¿¥¤¥×¤Î´Ö¼è¤ê¿Þ¤Ç¤¹¡£´Ö¼è¤ê¤Ï4LDK+WIC+SIC+WIP+N¡¢ÀìÍÌÌÀѤÏ93.11Ö¡¢¥Ð¥ë¥³¥Ë¡¼ÌÌÀѤÏ15.83Ö¡Ê3¡Á27³¬¡Ë¡¦28.05Ö¡Ê2³¬¡Ë¤È¤Ê¤Ã¤Æ¤¤¤Þ¤¹¡£

P-SW129P¥¿¥¤¥×[½Ðŵ¡§¸ø¼°HP]
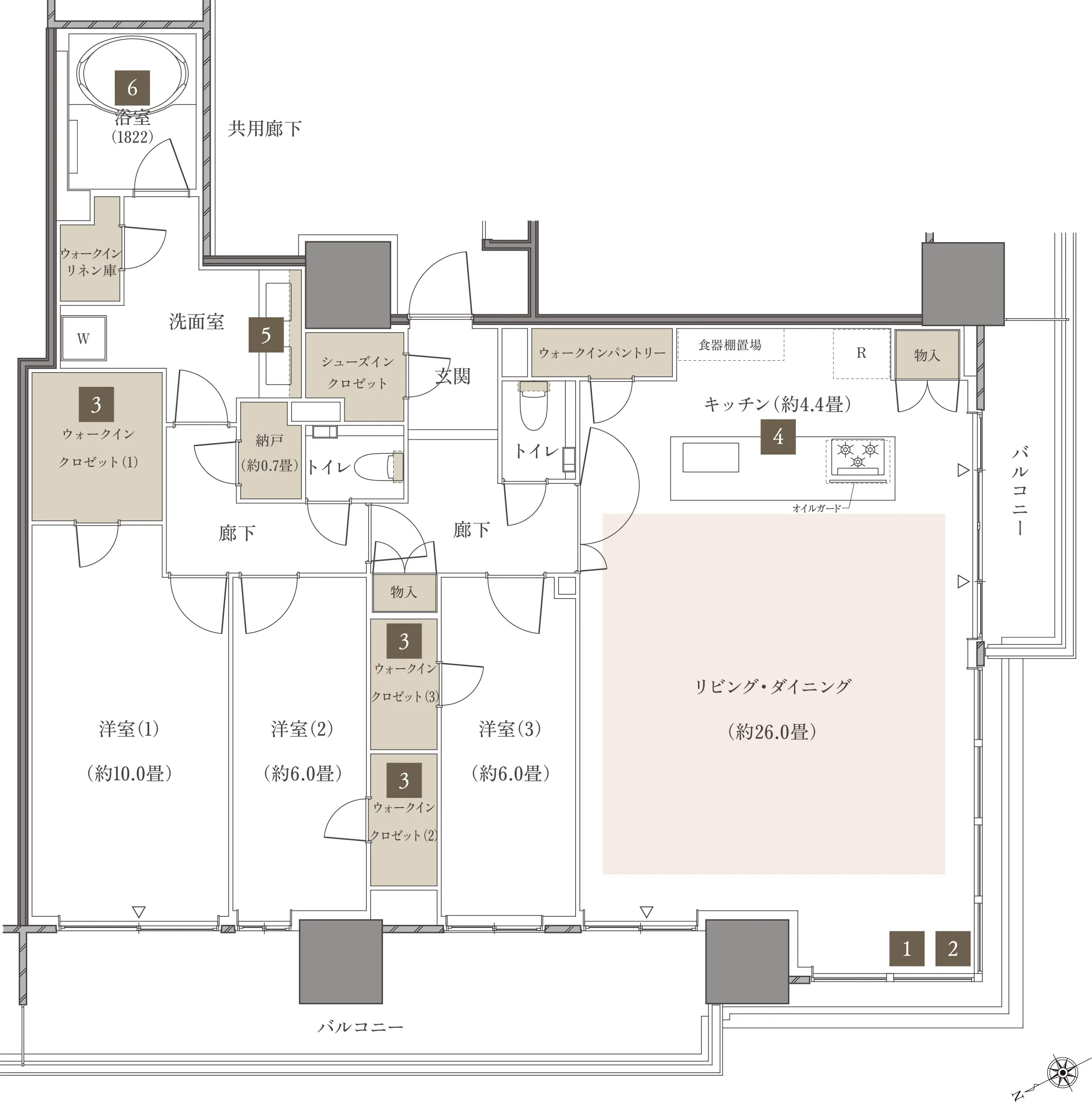
¡¡28³¬¡¦29³¬¤ËÇÛÃÖ¤µ¤ì¤ë¥×¥ì¥ß¥¢¥à¥×¥é¥ó¤È¤Ê¤ëP-SW129P¥¿¥¤¥×¤Î´Ö¼è¤ê¿Þ¤Ç¤¹¡£´Ö¼è¤ê¤Ï3LDK+3WIC+WIL+SIC+WIP+N¡¢ÀìÍÌÌÀѤÏ129.90Ö¡¢¥Ð¥ë¥³¥Ë¡¼ÌÌÀѤÏ25.17֤ȤʤäƤ¤¤Þ¤¹¡£
°ÌÃÖ¿Þ

°ÌÃÖ¿Þ[½Ðŵ¡§¸ø¼°HP]
¡¡·úÀßÃϤϻÔÀî±ØÆî¸ý¤«¤éÆî¦¤ØÅÌÊâ7ʬ¤ÎµþÍÕ¥¬¥¹»ÔÀ¾ìÀ×ÃϤǤ¹¡£JR¡Ö»ÔÀî¡×±Ø¤ÏÁíÉðËÜÀþ¤Î³Æ±Ø¤È²÷®¤ÎξÊý¤¬Ää¼Ö¤¹¤ë±Ø¤Ç¡¢ÁíÉðÀþ²÷®¤ÏÅìµþ±Ø¤äÉÊÀî±Ø¤Ê¤É¡¢Ãæ±û¡¦ÁíÉðÀþ³Æ±ØÄä¼Ö¤Ï½©ÍÕ¸¶±Ø¤ä¿·½É±Ø¤Ê¤É¤ËľÄ̤·¤Æ¤¤¤Þ¤¹¡£
·úÀß¾õ¶·

¡¡2024ǯ5·î4Æü¤Ë¸½ÃϤ«¤é»£±Æ¤·¤¿¡Ö¥ê¡¼¥Õ¥·¥Æ¥£»ÔÀî ¥¶¡¦¥¿¥ï¡¼¡×(ÃϾå29³¬¡¢¹â¤µ104.15m)¤Î·úÀßÃϤǤ¹¡£

¡¡±¦±ü¤Ë¸«¤¨¤Æ¤¤¤ë¤Î¤ÏJR»ÔÀî±ØÄ¾·ë¤Î¡ÖI-link¥¿¥¦¥ó¤¤¤Á¤«¤ï ¥¶¡¦¥¿¥ï¡¼¥º¥¦¥¨¥¹¥È ¥×¥ì¥ß¥¢¥ì¥¸¥Ç¥ó¥¹¡×(ÃϾå45³¬¡¢¹â¤µ160m)¤Ç¡¢ºÇ¾å³¬¤Ë¤Ï̵ÎÁÅ¸Ë¾Âæ¤Î¡Ö¥¢¥¤¡¦¥ê¥ó¥¯¥¿¥¦¥óŸ˾»ÜÀߡפ¬¤¢¤ê¤Þ¤¹¡£

¡¡ÆîÀ¾Â¦¤«¤é»£±Æ¡£ÃϾ夫¤é¤Ï²¾°Ï¤¬¤¢¤Ã¤ÆÃæ¤Ï¸«¤¨¤Þ¤»¤ó¡£

¡¡ÉßÃÏË̦¤Î²¾°Ï¤¤¤Î·ä´Ö¤«¤é»£±Æ¡£¤³¤³¤«¤é¤Ï¾¯¤·Ãæ¤ÎÍͻҤò¸«¤ë¤³¤È¤¬¤Ç¤¤Þ¤·¤¿¡£

¡¡ÃϾ夫¤é¤Ï¤Û¤È¤ó¤ÉÃæ¤ÎÍͻҤò¸«¤ë¤³¤È¤Ï¤Ç¤¤Þ¤»¤ó¤¬¡¢¡Ö¥¢¥¤¡¦¥ê¥ó¥¯¥¿¥¦¥óŸ˾»ÜÀߡפ«¤é¤Ï¤³¤¦¤·¤Æ¡Ö¥ê¡¼¥Õ¥·¥Æ¥£»ÔÀî¡×Á´ÂΤòį¤á¤ë¤³¤È¤¬¤Ç¤¤Þ¤¹¡£

¡¡¡Ö¥ê¡¼¥Õ¥·¥Æ¥£»ÔÀî ¥¶¡¦¥¿¥ï¡¼¡×¤Î·úÀßÃϤ˥º¡¼¥à¤Ç¤¹¡£½Åµ¡1Âæ¤Ç·¡ºï¤·¤Æ¤¤¤ë¤è¤¦¤Ç¤·¤¿¡£

¡¡¥·¥Ë¥¢½»Âð¤Î¡Ö¥ª¥¦¥«¥¹»ÔÀî¡×¤Î·úÀßÃϤ˥º¡¼¥à¤Ç¤¹¡£¤³¤Á¤é¤ÏÅ´¶Ú¥³¥ó¥¯¥ê¡¼¥È¤ÎÅ´¶Ú¤¬ÁÈ¤Þ¤ì¤Æ¤¤¤Þ¤·¤¿¡£

¡¡ÄÂÂß½»Âð¤Î·úÀßÃϦ¤Ç¤¹¡£¤³¤Á¤é¤âÅ´¶Ú¤¬¸«¤¨¤ë¤è¤¦¤Ë¤Ê¤Ã¤Æ¤¤¤Þ¤·¤¿¡£

¡¡·úÀßÃϤζ᤯¤Ë¤Ï¹¾¸ÍÀή¤ì¤Æ¤ª¤ê¡¢»ÔÀî»Ô̱ǼÎòֲÐÂç²ñ¡¦¹¾¸ÍÀî¶è²Ö²ÐÂç²ñ¤ò´Ö¶á¤Ë˾¤à¤³¤È¤¬¤Ç¤¤ë¥¿¥ï¡¼¥Þ¥ó¥·¥ç¥ó¤Ë¤Ê¤ê¤Þ¤¹¡£
ÃÏ¿Þ
ʪ·ï³µÍ×

¡¡·úÃ۷ײè¤Î¤ªÃΤ餻¤Ç¤¹¡£²¼µ¤Îʪ·ï³µÍפϸø¼°HP¤ÎÃͤòºÎÍѤ·¤Æ¤¤¤Þ¤¹¡£
¢£Êª·ï³µÍ×¢£
̾¾Î¡§¥ê¡¼¥Õ¥·¥Æ¥£»ÔÀî ¥¶¡¦¥¿¥ï¡¼
»ö¶È̾¡§(²¾¾Î)ÀéÍÕ¸©»ÔÀî»Ô»ÔÀîÆîÆóÃúÌÜ(µþÍÕ¥¬¥¹»ÔÀ¾ìÀ×ÃÏ)·×²è¶¦Æ±½»Âð(ʬ¾ù)¡¦Êݰé½ê
½êºßÃÏ¡§ÀéÍÕ¸©»ÔÀî»Ô»ÔÀîÆî£²ÃúÌÜ£¸£¹ÈÖ£±Â¾¡ÊÃÏÈÖ¡Ë
¸òÄÌ¡§JRÁíÉðËÜÀþ¡Ö»ÔÀî¡×±Ø ÅÌÊâ7ʬ
ÍÑÅÓ¡§¶¦Æ±½»Âð¡¦Êݰé½ê
Áí¸Í¿ô¡§672¸Í¡Ê¾¤ËÊݰé»ÜÀß1¶è²è¡Ë
³¬¿ô¡§ÃϾå29³¬
¹â¤µ¡§104.15m
¹½Â¤¡§Å´¶Ú¥³¥ó¥¯¥ê¡¼¥È¤¡¢Ìȿ̹½Â¤
´ðÁù©Ë¡¡§¹º´ðÁÃ
ÉßÃÏÌÌÀÑ¡§17,043.65Ö¡ÊÄê´üž¼ÚÃϸ¢¤ª¤è¤ÓÄê´üž¡¹¼ÚÃϸ¢¤ÎÂоÝÌÌÀÑ¡§12,200.02Ö¡Ë
·úÃÛÌÌÀÑ¡§6,106.66Ö
±ä¾²ÌÌÀÑ¡§72,346.45Ö
·úÃۼ硦Çä¼ç¡§»°°æÉÔÆ°»º¥ì¥¸¥Ç¥ó¥·¥ã¥ë¡¢Ìî¼ÉÔÆ°»º¡¢»°É©ÃϽê¥ì¥¸¥Ç¥ó¥¹
Àß·×¼Ô¡§Ä¹Ã«¹©¥³¡¼¥Ý¥ì¡¼¥·¥ç¥ó¡¢
»Ü¹©¼Ô¡§Ä¹Ã«¹©¥³¡¼¥Ý¥ì¡¼¥·¥ç¥ó
¹©´ü¡§2023ǯ9·î29ÆüÃ幩¡Á2026ǯ12·î²¼½Ü½×¹©Í½Äê
Æþµï¡§2027ǯ3·î²¼½ÜͽÄê
Äê´ü¼ÚÃϸ¢¡§2100ǯ11·î14Æü¤Þ¤Ç
½Ðŵ
¢§¸ø¼°HP¡§¥ê¡¼¥Õ¥·¥Æ¥£»ÔÀî ¥¶¡¦¥¿¥ï¡¼
https://www.31ichikawa.com/shinchiku/G2004001/
¢§Ìî¼ÉÔÆ°»º¡§¥×¥ì¥¹¥ê¥ê¡¼¥¹¡Ê2023ǯ11·î15Æü¡Ë
Á´ÂÎÉßÃÏÌÌÀÑÌó3.8ha¡¢¶¦Æ±½»Âð¡Êʬ¾ù¡¦ÄÂÂߡˡ¢¾¦¶È»ÜÀßÅù¤È¤ÎÂ絬ÌÏÊ£¹ç³«È¯¡¡Âè7ÃÆ ·ò¹¯Áý¿Ê·¿¡¦ÄÂÂߥ·¥Ë¥¢¥ì¥¸¥Ç¥ó¥¹¡Ö¥ª¥¦¥«¥¹»ÔÀî¡× Ã幩¡¡ÀéÍÕ¸©ÆâÅö¼ÒºÇÂ絬ÌÏ¡¦Áí¸Í¿ô181¸Í¡¢2025ǯ½©³«¶ÈͽÄê
¢§µþÍÕ¥¬¥¹¡§¥×¥ì¥¹¥ê¥ê¡¼¥¹¡Ê2023ǯ10·î2Æü¡Ë
¡Ö¡Ê²¾¾Î¡ËÀéÍÕ¸©»ÔÀî»Ô»ÔÀîÆîÆóÃúÌܡʵþÍÕ¥¬¥¹»ÔÀ¾ìÀ×Ãϡ˷ײ趦Ʊ½»Âð¡ÊÄÂÂߡˡ¦Ãϰè¹×¸¥»ÜÀß¡×Ã幩¤Î¤ªÃΤ餻
¢§µþÍÕ¥¬¥¹¡§¥×¥ì¥¹¥ê¥ê¡¼¥¹¡Ê2022ǯ6·î24Æü¡Ë
µþÍÕ¥¬¥¹»ÔÀ¾ìÀ×Ãϳ«È¯»ö¶È¤Ë´Ø¤¹¤ë¤ªÃΤ餻
- ¥«¥Æ¥´¥ê
- »ÔÀî»Ô







